Isaac Tu's Portfolio

Page 1


Isaac Tu
PORTFOLIO
Isaac Tu

Year : 2025

https://www.linkedin.com/in/isaactu2

Isaac Tu

Hello! My name is Isaac, and I am a Junior majoring in Architectural Studies and minoring in Informatics at the University of Illinois at Urbana-Champaign. I am passionate about using my background in Architecture, Computer-Aided Design, and Fabrication to create innovative designs, solve problems, and positively impact others.

Education

08.2022 - Present

01.2023 - Present

08.2017 - 05.2021

Experience

06.2024-08.2024

University of Illinois Urbana Champaign

Architecture, B.SC.

Informatics Minor

Morrison Academy Taipei

09.2022-Present

07.2023 - 08.2023

Organizations

08.2022 - Present

01.2024 - Present

01.2024 - Present

01.2022 - 12.2023

09.2021 - 05.2022

10.2017 - 08.2023

Awards

10.2023

12.2023

Software Skills

Ho+Hou Studio Architects

Office Internship

- Housing Projects

- AutoCAD, Renderings, Physical models

- Museum Display Piece

University of Illinois School of Architecture

Fabrication Lab Assistant

- Laser Cut, 3D Printing, Heavy Machinery

Woodwork, Printing Maintenance

Sami: Art, Design, Architecture

Teaching Assistant

- Architecture

Summer Camp Assistant

Flashpoint Photography Club

President

Illinois Solar Decathlon

Architecture Build Team Member

The Fashion Network

Main Photographer

Eco Illini Supermileage

Body Sub-team Member

School+ Non Profit Organization

Co-founder, teacher, music and media specialist

UIUC Dean's List

Gargoyle Architecture Honors Society

2D Drafting: AutoCAD, Revit, Illustrator

3D Modeling: Rhino 3D, Revit, Grasshopper, Fusion 360, Sketchup

Rendering: Twinmotion, Rhino, Grasshopper, Enscape

Presentation: Indesign, Photoshop, Powerpoint, Word, Excel, Google Suite

Interests

Photography, Pencil and Charcoal Sketching, Watchmaking, Piano Playing

01 Dajiang Housing Development

New Design Additions, Exploded View

This project in the schematic design stage calls for refinement in design and constant communication with the client. This residential housing project located in Taipei City has a complete redesign from the old undeveloped model. An exterior orange terracota cladding is added to complete the architect's design language, with three railing configurations for the client to choose from.

West Façade Details

East Façade Details

Balcony Sections, with different railing options

Using early development floorplans, I revitalized outdated blueprints by creating comprehensive AutoCAD drawings, complete with precise floor plans with new additions from our firm's designs as seen in red.

Section drawing on the right translates the details needed for the main entrance. It demonstrates the scale of the entry door to the recess that forms a covered entrance.

Further design anaylsis in the façade is displayed with the material palette inspiration, and a study model for various brick configurations on the principal façade.

Material

Material

Main Entrance & Second Floor Section

Main Entrance Render

Physical Model

Material Palette Inspiration from Internet

Brick Pattern Iterations Realistic Brick Render

02

Taipei Fine Art Museum

Exhibition Interactive Piece

Straight Lines to a Curve

Concept Based On: Luce Memorial Chapel by I.M. Pei Exhibition: A Class on Space - Point and Line to Plane On Display Oct. 12 2024 - Feb. 23 2025

https://www.tfam.museum/Exhibition/Exhibition_Special.aspx?id=776&ddlLang=en-us

In Fall 2024, our firm was commissioned by the Taipei Fine Arts Museum to design an interactive architectural exhibition for children. I was responsible for creating a hands-on design piece that illustrates the design fundamentals of I.M. Pei's Luce Memorial Chapel. By constructing a bracing system that holds rods at slightly rotated angles, the model demonstrates how a curvilinear outline can be achieved from straight lines, reflecting the principles behind the chapel's distinctive form.

Columns x3

Study Model Top Plate

Rods x20

Base Plate Model on Display

Detail A

Luce Chapel, I.M. Pei, 1963

#244, Zhongxiao Rd, Linkou District, New Taipei City, Taiwan

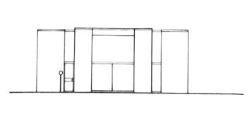
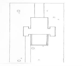
Linkou Clinic Schematics

The client initially presented three potential sites for the clinic’s construction. After conducting a topographic analysis using surveyed data, one site was deemed too costly, while another was eliminated due to city zoning restrictions

According to the lead architect’s vision, the design was structured around a grid column system, while featuring cantilevering façades that extend from three sides. A secondary volume attached to the clinic was designated for egress, elevators, and HVAC.

The client had two primary land-use requirements: reserving half of the plot for future development and incorporating a dedicated ground-floor parking area for accessibility. As a result, the clinic was designed as part of Phase 1, alongside a parking lot.

Building Phase 1
Building Phase 2

Glass Block Façade Sample Photos From Internet

Iteration 1 of the façade design featured the use of frosted glass blocks to demonstrate transparency while remaining private. The dim glow of backlight as shown in Chareau's work for night scenes would also fit the client's asthetic.

After some preliminary calculations, an extruded glass block Façade would overload the truss system. A solution we found was Kalwall panels. These panels accomodate the same design purpose, with even higher material effectiveness

Kalwall Panel Sample Photos provided by Kalwall Corp.

In order to serve the purpose as a clinic and a back-of-the-house research facility, we needed to incorporate high levels of privacy into our design. Kalwall VertiKal™ 8" x 10' were utilized to form a translucent façade, enabling daylight from all four sides to pass through while maintaining privacy for the end-users. These panels are glare-free, thermal efficient, and lightweight compared to traditional glass blocks. Custom panel sizings are available to fit our final specifications, so is customizeable clear openings.

Maison de Verre, Pierre Chareau, 1932
Ports 1961 Shanghai, UUfie, 2015
Iteration 1: Building Façade with Glass Blocks
Iterationi 2: Building Façade with Kalwall Verti-Kal™
Mezzanine Balcony View
Lobby Amphitheater Seating
Main Lobby View
Mezzanine Level

Context

The Architecture Annex at University of Illinois Urbana Champaign stands as a testament to the rich history of the institution, yet its aging infrastructure is noticeable. The outdated facilities and inefficient layouts is time for a transformative renovation.

Original Building Section View

04 Annex Intervention

Original Building West Elevation

Challenge

The intervention proposes a comprehensive moderinization aimed at not only to revitalize the physical space but also providing students with an optimized learning environment. While ideas such as creating coffee shops and gyms were considered, a more useful addition was chosen: a studio that provides students with equal opportunity to interact with their supervisors. The cascading studio seating allows students in the back to have an unobstructed view of the instructor and any presentations.

First Floor Plan

Process

From taking measurements of the entire building, floorplans and elevation drawings were sketched, then translated into AutoCAD. These plans were then transfered to Revit to build the 3D model. Window and brick layouts were designed digitally to reflect the real nature of the building.

Drawings

Branching off from pre-existing plans of the Annex, the extension of a new studio and lecture hall can be seen in the floorplan. Sections are added to illustrate the interior space and the connection to the existing office spaces.

Exterior View, South East Corner. 9am

Renders

Utilizing TwinMotion, the existing Revit model is rendered into a realistic demonstration of the design intervention. The site was also calibrated to fit realistic sun paths and the surrounding environment

Interior First Floor View, 12pm

Interior Second Floor View, 4pm

Day and night scenes were visualized to display the space adaptability to human interaction throughout the day. Curtain windows allows daylight to shine throughout the day, while luminaires with up-lighting help contribute to the room's vertical lighting at night.

Interior Second Floor View, 8pm

Physical Model

05Library of Things

The Lawrence Avenue Culinary Exchange is a library showcasing a diverse collection of cookware from cultures around the world. Spanning an entire city block, the building offers ample space to house thousands of pots, pans, and culturally specific kitchenware. It also includes dedicated cooking areas where visitors can test the equipment and explore various cooking techniques.

In the day, the space transforms into a vibrant storefront, inviting chefs to experiment with new recipes, engage with the community, and gather feedback. This dynamic environment fosters creativity and encourages interaction with the public, promoting both culinary exploration and local business.

Isaac Tu, Nicholas Rudolph

Site & Floorplans

Floor

Given a site that stretches longitudinally, we decided to utilize a repetitive structure that brings rhythm to the interior which also draws a self-imposed grid layout. Some truss components are filled in to seperate space while some are left hollow to enable a connection within the grid.

Ground Floor:

Features an open layout with display spaces showcasing cookware of all cultures, an interactive zone where visitors can loan kitchenware. A central communal channel creates seamless circulation, additionally accommodates live cooking demonstrations and even pop-up markets which fosters interaction between cooks and the public. Features such as a reception and sitting area allows visitors comfortability, while the focus of shelving, cooking, and dining areas are in the center of the plan.

Second Floor:

Concentrates on culinary education, experimentation, storage, and maintenance. It includes rows of cooking stations equipped for workshops and recipe development. The floor is divided in two to achieve openness that was introduced on the ground floor, but also tied together by two linking passarelles

Ground Floor
Second

Second Floor Shading System

Grasshopper Animation Shading Systems:

Utilizing the Kangaroo plug-in for Grasshopper, I developed a gravity-realistic shading system that is fully parametric and capable of expanding or contracting dynamically. Designed to adapt to sunpath and seasonal variations, the system provides shading on the second floor during the summer for thermal comfort while allowing increased sunlight exposure during the winter to enhance natural lighting and warmth.

Ground Floor Curtain System

Grasshopper Animation Curtain Systems:

The northeast section of the ground floor features three designated lots for mobile food vendors. Featuring bi-fold awning windows, the space opens during the day, allowing vendors to serve customers directly from a sheltered area. At night, the windows securely close, ensuring safety and protection against harsh weather.

North and West Façade

A brise soleil on the second-floor façade can reduce solar heat gain by shading the interior while still allowing natural light to filter through. This passive cooling strategy improves energy efficiency and enhances occupant comfort by minimizing glare and overheating. Additionally, it adds a dynamic architectural element, creating visual interest and reinforcing the building's temperature efficiency.

Day Time Interior Illustration

Night Time Exterior Illustration

Transverse Section Perspective

Legend

Floor 1:

1-2 Egress

2-4 Entrance

4-6 Cooking and Storage

6-11 Transformable Cooking Space

Floor 2

1-2 Egress

2-4 Experimentation Space

4-7 Storage

7-11 Cooking Space

Longitudinal Section Perspective

Cooking Station Storage Exploded Section

06Exquisite Corpse High-Rise

Context

Blending the metabolism style with an industrial design that emphasizes exposed structural systems, this high-rise was conceptualized for 511 W. Kinzie St., Chicago, Illinois. My team envisioned the building as a recreational center designed to serve the local community. Located on a site that has remained an empty parking lot for decades, this project aims to revitalize the area into a vibrant hub of activity. The addition of this recreational center is intended to strengthen community bonds and enhance the quality of life for nearby residents. Physical Model

Exquisite Corpse, an art technique pioneered by the Surrealists, involves collaboratively assembling images to create new and unexpected forms. Inspired by this approach, we began our project with balsa wood and paper sketch models, iterating through multiple versions before photographing and digitally scanning them. These scans served as the basis for exploring and collaging diverse shapes and forms, culminating in unique "kebab" pieces that were conceptually "skewered" together to inform the overall structure of our skyscraper. Two dedicated vertical volumes for elevators were put in place, given ADA requirements where buildings with over three stories and 3000 square foot per floor require these systems.

Photo Collage to Massing Model Process
Grasshopper Lunchbox Script

Structural Populating

Using the Grasshopper Lunchbox plug-in for Rhino, we generated structural components within these volumes, specifying a predetermined number of horizontal and vertical members. The design process also included experimenting with various truss configurations to highlight the rhythm of the building and its layered design.

Grasshopper-generated Structural Form

07 Co-housing Development

This project examines the role of daylight in co-housing environments, integrating outdoor circulation and shared spaces to enhance natural illumination, energy efficiency, and communal well-being.

A terraced balcony façade allows more daylight exposure for each unit, while providing semi-private outdoor space, and public circulation for people to enjoy the communal qualities of a co-housing residency.

Form Analysis

Outdoor Space: Circulation

Indoor Space: Public/Private Massing Model

08Kankakee Gizmo

Context

Using a number of model-making techniques, this project showcases the emergence of efficient, functional, and innovative "Gizmo" architecture

As we exlore these methods, we create forms that can be translated into buildings. The model on the left employs the Slicer tool in Fusion360, which parametrically generates layers and sections for any solid volume. These sections are laser-cut and assembled into a grid-like interlocking structure

The model on the right demonstrates woodworking techniques, featuring a sculptural form that appears as two wood pieces elegantly intertwined.

Site Rendering

Design Notes

Site

Located along the Kankakee River in Illinois, USA, the project proposes an innovative design that fosters human interaction with the natural environment . The Lakeside Sanctuary draws inspiration from modularity and self-sustaining systems, culminating in a design that reflects the essence of Gizmo-style architecture.

Kankakee River holds ecological importance as a wildlife refuge in the Mid-west, therefore fiting the design priorities for environmental conservation The site is designed to minimize ecological damage, balancing urban development with the preservation of the surrounding environment.

Oriented southwest, the structure capitalizes on the Kankakee River’s consistently strong winds. An aerodynamic "nose" that can have the modular openings sealed close with caps aligns with prevailing wind directions, optimizing turbine performance and ensuring stability during high winds.

The structure features a waffle-grid roof equipped with three wind turbines and highly efficient solar panels, enabling complete energy self-sufficiency. Its modular roof design allows residents to customize and expand the system, such as adding a rainwater collection system for enhanced sustainability and function.

Exploded Assembly View
Top Perspective View
North Side Section View
West Side Section View
Waterfall
DUMBO, NYC

09

Sketches & Model-making

Vase with Engraving
Bottle with Peaches
Junior Studio Interior Lighting Charcoal Drawing

Micron Pen Drawings

Erlanger House Drawings and Model

Margaret Esherick House Physical Model
Erlanger House Physical Model
Alwyn Court detail
DUMBO, NYC
7th Ave, NYC
Broadway, NYC
Alwyn Court, NYC
The Oculus detail
The Oculus, NYC
Milwaukee Art Museum detail
Milwaukee Art Museum, Milwlaukee

Photographing the works of Santiago Calatrava

Photography Portfolio: isaactu.myportfolio.com

Milwaukee Art Museum, Milwlaukee

Thank you!

Isaac Tu

Year : 2025

https://www.linkedin.com/in/isaac-tu-601756211/

Turn static files into dynamic content formats.

Create a flipbook
Issuu converts static files into: digital portfolios, online yearbooks, online catalogs, digital photo albums and more. Sign up and create your flipbook.