Skip to main content

Agronic uutuudet ja tarjouksia

Page 1

Laajin valikoima kotimaisia lietevaunuja

Vaunun m3 10-12 m3 17-20 m3 17-30 m3 17-30 m3

Jousitus - Parabeelijousitus Hydraulijousitus Hydraulijousitus

Akselit 1-akselinen 2-akselinen 2- tai 3-akselinen 2- tai 3-akselinen Vaihtolavasäiliöitä kuorma-autojen ja erilaisten perävaunujen päälle.

Rapuohjaus - Lisävaruste - Vakio

AGRONIC HS-Series

Nopea ja turvallinen tiellä

Lietevaunussa on matala painopiste ja alasäiliö, jolloin painonjakautuma on optimaalinen. Vaunun säiliössä on suuret loiskelevyt, jolloin huojuntaa on vähemmän. Laadukkaat akselistot ja renkaat. Markkinoiden edistyksellisin, patentoitu pakko-ohjaus. Air-järjestelmän avulla on saatu pieni vierintävastus ja tukeva ajotuntuma.

Tehokas ja täsmällinen pellolla

Varustettu suurilla renkaiden kääntökulmilla, mikä tekee niistä erittäin ketteriä. Multausta voi suorittaa myös kaarteissa, ja alasäiliön ansiosta aisapaino säilyy tasaisena kuorman loppuun saakka. Lisäksi Agronicin lietevaunuissa on markkinoiden matalin painopiste, mikä parantaa vakautta. Air-järjestelmä tuplaa renkaiden pinta-alan, ja proportionaalinen hydrauliikka yhdessä tarkan virtausmittauksen kanssa varmistaa täsmällisen toiminnan.

Luotettava ja pitkäikäinen hankinta

Agronic on lietevaunujen valmistajana edelläkävijä jo vuodesta 2001. Vaunuissa on Lakattu maalipinta. Kunnnollinen pintakäsittely sekä sisällä että päällä varmistaa vaunun kestävyyden. Järeät ja reilusti mitoitetut ADR-akselistot suurilla jarruilla. Varaosat ovat saatavilla edullisesti suoraan tehtaalta. Agronicin tuotteilla on erinomainen jälleenmyyntiarvo.

AGRONIC S-Series

Enemmän kuutioita päivässä

Agronic lietevaunussa on avarat putkistot ja tehokkaimmin silppuavat pumput. Vaunussa on nopea täyttö kohtuullisella hydrauliikan tuotolla. Tasapainoitettu, tukevasti laakeroitu sekä moninkertaisesti tiivistetty viisilapainen tyhjennyspumppu sekä suurempi siirto-ajonopeus ja ketteryys päisteissä.

AGRONIC HXA ll

AGRONIC T-Series

AGRONIC LIETEVAUNUT
XS-sarja S-sarja HS-sarja HXA-sarja T-sarja

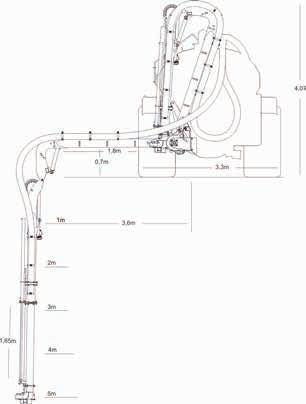
Tehokkaat ja ulottuvat pumppukuormaimet

Sivukiinnitteinen kuormain

Teleskooppipuomistolla tai ilman. Saatavilla myös siirtopumppausvarustuksella. Pumpun tuotto on valittavissa 5,5–10,0 m3/min välillä. Asennettavissa myös muihin merkkeihin.

Rapuohjaus pitää pellot kasvukunnossa

Rapuohjausjärjestelmällä vaunu voidaan ohjata kulkemaan eri jälkiä kuin traktori, jolloin maan tiivistyminen vähenee merkittävästi. Rapuohjauksella vaunua voidaan ajaa sivuttain päisteissä, pitää traktori kauempana ojan reunasta ja estää raiteiden muodostumista.

Agronic air -system puolittaa pintapaineen

Agronic air -system tuo suuren edun, kun siirrytään maantieltä pellolle. Matalampien paineiden ansiosta renkaiden pinta-ala kaksinkertaistuu, jolloin pintapaine puolittuu eikä maantiivistymistä tapahdu pellolla. Tämä johtaa parempaan satoon.

Air-systemin avulla et joudu turvautumaan kompromisseihin vaan maantiellä voidaan ajaa oikeilla paineilla. Kunnon paineilla saavutetaan parempi rullaavuus ja pienempi vetovoiman tarve.

Hyvillä rengaspaineilla säästöä tulee myös traktorin voimansiirrossa, polttoaineen sekä renkaiden kulutuksessa. Myös turvallisuus paranee kun yhdistelmää on helpompi ajaa ja hallita maantiellä.

Keskikiinnitteinen kuormain

Agronicin kuormaimessa on markkinoiden paras liikerata. Kuormaimeen on saatavissa lisävarusteena kolmas nivel sekä siirtopumppausvarustus. Kolmannen nivelen ansiosta kuormain sopii jopa 0,7x 0,7 m aukosta kaivoon. Pumpun tuotto on valittavissa 8–10 m3/min välillä.

Laskelmat perustuvat mittauksiin Agronic HXA ll 20 m3 vaunu kaikilla varusteilla kuormattuna, kokonaispaino n. 31 000 kg.

Paine 3 bar, kosketuspinta/pyörä: Leveys 705 mm, Kuvion pituus 390 mm. 6 kpl pyörän kosketuspinta-ala 1,65 m2

Paine 0,8 bar, kosketuspinta/ pyörä: Leveys 750 mm, kuvion pituus 700 mm. 6 kpl pyörän

AGRONIC LIETEVAUNUJEN VARUSTEITA
kosketuspinta-ala 3,15 m2

Laaja valikoima kotimaisia multaimia

Suomalaisille pelloille suunnitellut multaimet pääsevät kääntymään ja kallistumaan vaunusta riippumatta, joten työnjälki pysyy hyvänä myös kaarteissa sekä rapuohjatun vaunun kanssa.

TSR-sarjassa on vakiona uusi HD-terä vaihdettavilla teräpaloilla, joka takaa pitkän käyttöiän ja erinomaisen työjäljen.

Silppuava avara jakaja

Kuvassa uusi entistä tehokkaampi TSR-sarjan jakaja. TSR-sarjan läpäisy jopa 7.5 m3/min.

AGRONIC MULTAIMET
AGRONIC AG AGRONIC TSR AGRONIC JVM AG-sarja JVM-sarja TSR-sarja Työleveys 6.4 – 8 m 12 - 15 m 9 - 15 m Riviväli 20 cm 30 cm 23 / 30 cm Tuloletkun sisä Ø 127 mm 127 mm 150 mm Levitinletkun sisä Ø 50 mm 50 mm 50 mm Hydraulinen kivitasku Vakiona Vakiona Vakiona Jakajat Yksi Yksi Yksi tai kaksi

Tehokkain kivenraivauskone, valmista kerta-ajolla

Agronic Rock Tornadossa on kolme roottoria, jotka nostavat kivet jopa muokkauskerroksen alta. Ajon jälkeen työnjälki on tasainen ja suora koko työleveydeltä, myös keskeltä. Pinta on heti kylvettävissä.

Paras hyötysuhde mekaanisella voimansiirrolla

Voimaa siirretään järeillä nivelakseleilla ja rullaketjuilla. Ylikuormasuojaus on toteutettu neljällä levykytkimellä. Mekaanisen voimansiirron myötä roottoreiden pyörimisvoima on suuri ja roottorit kykenevät nostamaan kiviä myös muokkauskerroksen alta.

Tule tutustumaan ja koeajamaan!

Kantava telipyörästö

Tasainen kulku ja hyvä kantavuus, jolloin työsyvyys pysyy tasaisena.

Rengaskoko 500- 710/45R22,5

Kestävä, pienet huoltokustannukset

Koneen pohja, karhottimet ja kivisäiliö on valmistettu kulutusteräksestä.

Kolakuljetimen ansiosta ei synny hakkaavaa kuormitusta runkoon, seulalle ja kivisäiliöön. Ei myöskään luistavia ja kuluvia hihnoja.

Katso Demo Tour

Rock Tornado aikataulut: Facebook / Agronic

TARJOUS! 600/50R22,5 renkaat veloituksetta!

RT 550

Paino kg 4900

Työleveys cm 550

Työsyvyys cm 0-10

Kivikoko cm 3-50

Säiliön tilavuus m3 2

Tyhjennyskorkeus cm 250

Rengaskoko alkaen 500/60R22,5 telipyörästö

Jarrut etupyörissä Vakio

Tehontarve kW/hv 75/100

Kolakuljetin ja jousitettu pitkä seula

Säiliö saadaan aina täyteen, koska se täytetään yläkautta. Kiviä ei heitetä vaan ne siirretään säiliöön päältä. Kivet myös puhdistuvat paremmin. Jousitus estää kiviä kiilautumasta, seula pääsee väistämään.

AGRONIC KIVENRAIVAUSKONE

Paalaimet pohjolan olosuhteisiin

Kiinteäkammioinen ammattilaisen pyöröpaalain

Paalaimessa yhdistyvät helppokäyttöisyys, suorituskyky sekä toimintavarmuus kaikissa olosuhteissa. Suuri sullojan halkaisija ja 25 silpputerää.

Midipaalain hevosen heinäntekoon

Yllättävän tehokas: leveä noukin, tehokas sulloja ja järeillä rullilla varustettu paalikammio. Laadukasta hevosen tai poron heinää lyhyelläkin poutajaksolla. Midipaalin tilavuus on n. 1/3 suuresta pyöröpaalista. Heinä tai rehu säilyy hyvänä pienemmälläkin kulutuksella. Paalikoko 85x 90cm, tilavuus n.550 litraa. Paalit sopivat kapeistakin ovista ja ovat pyöriteltävissä käsin. Helppokäyttöinen suomenkielinen käyttölaite, integroitu kamera ja paalinkääntäjä vakiona.

AGRONIC PYÖRÖ- JA YHDISTELMÄPAALAIMET AGRONIC AMS pyöröpaalain
MidiFix ll AMS AMC Paino kg 2620 3270 5300 Telamäärä 14 18 18 Työleveys cm. 170 210 210 Terämäärä 7 25 25 Sidonta verkko verkko verkko/muovi Paalikoko cm 85x90 120x130 120x130 Rengaskoko 500/50-17 560/45R22,5 alk.500/50/17 AGRONIC MidiFix ll midipaalain

Agronic Multibalerit sopivat lähes kaikkien hienojakoisten materiaalien pyöröpaalaukseen

Agronic Multibaler XL on markkinoiden tehokkain paalain esimerkiksi tarkkuussilputun tuorerehun korjuuseen –muovisidottu tarkkuussilputtu paali säilyy erinomaisesti ja on helposti käytettävissä ruokinnasssa.

NonStop paalausta pellolla tai varastopaikalla

Tarkkuusilpututut materiaalit: heinä, olki, maissi. litistevilja, turve, multa, puutarhajäte... vain mielikuvitus on rajana!

AGRONIC MULTIBALER -YHDISTELMÄPAALAIMET
MB 820 MB1220 XL Paino kg 3650 6800 10600 Sidonta verkko/muovi verkko/muovi verkko/muovi Käärintä mm 2x500 2x 750 2x750 Paalikoko cm 85x80-90 100x100-120 120x100-115 Paalin tilavuus m3 0,48-0,54 0,79-1,13 1,25 Rengaskoko 295/60-15 500/50-17 560/60R22,5 Tehontarve min.kW 52 70 100 Oma hydrauliikka On On On
paaliin
Hienojakoiset materiaalit

Suomen olosuhteisiin tehty

yhdistelmäpaalain

Tehokas noukin, 25 terää, suuri sulloja ja avattava sullojan pohja tehokkaaseen rehuntekoon. Kompakti koko, järeä rakenne, suuret vyörenkaat ja epäsymmetrinen telipyörästö takaavat työn onnistumisen pellon pintaa vahingoittamatta, myös märkänä syksynä.

Kunnon takuu ja huolenpito myös kaupanteon jälkeen

Valmistajana pystymme tarjoamaan sesonkiaikoina 24/7 tuen, huollon ja varaosat. Päävaraosavarasto ja varaosamyymälä sijaitsevat Haapavedellä, ammatilaisemme tuntevat koneen, eikä osia tarvitse tilata ulkomailta.

Veloitukseton käyttöopastus, toimiva huolto: käytettävissä ovat sekä Agronic Oy:n huolto että Hankkijan sopimushuoltajat.

AGRONIC AMC YHDISTELMÄPAALAIN
AGRONIC AMC pyöröpaalain AMC Paino kg 5300 Telamäärä 18 Työleveys cm. 210 Terämäärä 25 Sidonta verkko/muovi Paalikoko cm 120x130 Rengaskoko alk.500/50/17

Tehdasasenteinen kotimainen PDH-10

-säilöntäainejärjestelmä

Pumppuyksikkö on itsesäätyvä, sisältäen tarkan virtausanturin, jonka perusteella elektroniikka säätää tuottoa. Säilöntäaine ruiskutetaan suoraan paalikammioon, tai halutessasi noukkimen takaosaan. Noukin ja traktorin takaosa säästyvät sumulta ja säilöntäaine on varmasti siellä, missä pitääkin – paalissa.

Valmistamme pullotelineitä suoraan AMC paalaimeen, sekä yleiskäyttöisiä etukuormaaja/ etunostolaitekiinnitteisiä kahdelle 200 l tynnyrille.

Suomenkielinen käyttölaite

Sisältää kaiken tarvittavan:

• Paalaimen hallinnan, säilöntäainejärjestelmän ohjauksen ja kattavat muistipaikat.

• Paalin tiukkuudelle on portaaton säätö.

• Noukkimen korkeudelle pikavalinnat.

• Näyttöön integroitu kamera on vakiovaruste.

Sitoo paalit muovilla tai verkolla!

Meillä on kokemusta muovisidonnasta jo vuodesta 2009, joten tiedämme, kuinka muovisidonnnasta tehdään luotettava ja helppokäyttöinen.

Muovin edut ovat kiistattomat: tärkeimpänä parantunut rehunlaatu, paalin avaamisen helppous ruokintaan ja kierrätys ilman verkon ja muovin lajittelua. TARJOUS! Uuden paalaimen ostajalle

PDH-järjestelmä
veloituksetta!

Kolme mallia karhottimia - kaikkiin olosuhteisiin

Agronic karhottimet tekevät heinänkorjuusta helppoa ja tehokasta. Heinä siirtyy piikkien päällä, jolloin epäpuhtaudet jäävät maahan. Epäpuhtauksien siirtyminen karheeseen minimoituu, eikä kone nosta kiviä tai puno heinää kierteelle. Tasainen ja ilmava karhe kuivuu nopeasti ja paaleista ja kuormista tulee tasalaatuisia.

Säästää aikaa ja aika on rahaa

Yhdellä ajokerralla rehu paaliin tai kuormaan. Yksi henkilö voi hoitaa korjuun kauempaakin ilman turhaa maantieajoa. Suurempi karhe, ajonopeutta voidaan laskea ja korjuukoneen turha kuormitus vähenee.

KARHOTTIMET
AGRONIC
Agronic WR600 Evo ja WR700 ovat kytkettävissä soviteosin myös traktorin taakse. Molemmat sovitteet voivat olla kiinnitettynä yhtäaikaa.
Eteen tai taakse
AGRONIC
500 karhotin AGRONIC
AGRONIC
700 karhotin WR 500 WR 600 Evo WR 700 Paino kg 395 840 1100 Työleveys max 4.7 m 6.1 m 7.4 m Karheen leveys max 1.5 m 2.15 m 1.84 m Piikkejä 2 x 16 2 x 32 2 x 40
WR
WR 600 Evo karhotin
WR

Agronic koneet nopeaan toimitukseen Hankkijalta

Agronic esittelykoneet tehtaalta

Agronic WR 700 etukarhotin vm.-23 , hinta 14.650,Agronic AMS silppuava 25 teräinen paalain, PDH-10, vm.-22, hinta 35.000,-

Muunnossarja kiekkomultaimesta

veitsimultaimeksi

Sarja on täysin ruuvikiinnitteinen ja hitsaamista tai muita toimia ei tarvita. Sarja on varustettu uudella HD terällä, jossa on vaihdettava teräpala. Sisältää osat.

• Kiinnityslevyt jousivantaille

• Jousivantaat

• Teräpalat eli veitset

• Suuttimet

• Suuttimen kiinnityspannat

• 30 metriä 50mm levittimen letkua

• Pultit, mutterit jne. kiinnitystarvikkeet

Muutossarja vanhempiin lattajousivantaalla varustettuihin Agronic AG 8000 kiekkomultaimiin vm. 2006-2012 Hinta sarjalle: 4700,Tuotekoodi: 0066222

Muutossarja uudempiin tuplanavalla ja kääntyvällä Vantaalla oleviin Agronic AG 8000 kiekkomultaimiin, vm. 2011-2023. Hinta sarjalle: 4900,-

Kaikki hinnat alv 0%

Agronic lietevaunut

Agronic HXA ll, rapu- ja pakko-ohjaus, keskipumppukuormain,air rengaspaineensäätöjärjestelmä, Agronic TSR12000 veitsimultain.

Agronic S20, rapu- ja pakko-ohjaus, keskipumppukuormain, Agronic TSR12000, ajotietokone.

Agronic S20, sivupumppukuormain teleskoopilla, Agronic TSR 9000 veitsimultain, ajotietokone.

Agronic S17, sivupumppukuormin

Agronic JVM12 veitsimultain, ajotietokone.

Agronic paalaimet

Agronic AMC, muovisidonta, 560 renkaat,pdh-10 säilöntäainejärjestelmä, vaaka, kosteusmittaus.

Agronic AMC, pdh-10 -säilöntäainejärjestelmä, 560 renkaat

Agronic karhottimet

Agronic WR500 etukarhotin

Agronic WR600 etu-/ takakarhotin

HANKKIJALTA NOPEASTI

Tilaa huolto ja varaosat nyt – maksa vasta kesällä heinäkuun lopussa ilman korkoa ja kuluja. Tarjous voimassa 30.4. saakka.

Haumet PKL- 2 Pro paalinkantolaite

2.900,-

Kahden 120- 160 cm paalin keräämiseen pellolta. Pyöreät muodot ja laakeroidut rullat eivät riko muovia. Paalien maksimipaino 1500 kg.

Meiltä myös huoltotyöt

Teemme huoltotyöt ammattitaidolla tehtaalla tai tilallasi käyttäen alkuperäisiä

Agronic-varaosia.

Keltec paalileikkuri 5.713,-

Se paras paalileikkuri, leikkaa alta ja muovinpitopihti on ylhäällä. Vakiona Euro- sovitteet. Saatavilla myös pikakiinnitteinen kauha helppoon appeen tekoon.

Nyt huoltosarja veloituksetta rajoitettuun erään uusia koneita.

Agronic 143S 4WD

29.400,-

Kompakti maastokelponen nelivetoinen rehunjakovaunu. Sopii pyöröpaaleille sekä rehukakuille.

3-sylinterinen Kohler diesel, 26,5 hv. Hydrauliikan tuotto 40+22 l/min, joten siirtoajo ja paalien jako tapahtuvat nopeasti.

Vakiovarusteena lohkolämmitin ja työvalot.

Kysy meiltä tai Hankkijan konemyyjältäsi

Agronic Konemyynti

myynti@agronic.fi puh. 044 401 7888

Agronic Varaosat

varaosat@agronic.fi puh. 044 401 7890

Agronic Huolto

huolto@agronic.fi puh. 040 584 3621

agronic.fi

Kaikki hinnat alv 0%

Turn static files into dynamic content formats.

Create a flipbook
Agronic uutuudet ja tarjouksia by Suomalainen_Maaseutu - Issuu