Full-Service F&B Retail Playbook
          
    
    
    
    F&B RETAIL PLAYBOOK TABLE OF CONTENTS 2 Playbook Overview 03 Property Adjacencies 06 Planning Fundamentals Introduction Scalable Concept Definitions Renderings Lobby Zones 13 04 05 09 07 Planning Fundamentals 45 Planning Fundamentals 28 16 Design Fundamentals 48 Design Fundamentals 31 Design Fundamentals 17 Entry & Interior Views 49 Entry & Interior Views 32 Entry & Interior Views 20 Lighting 52 Lighting 36 Lighting Compact Market 12 Full-Size Market 44 Mid-Size Market 27 22 54 38 26 58 42 43 59 Elevations Elevations Elevations Kitchen Plans & Equipment Schedule Food Service Equipment Elevation Planograms Food Service Equipment Elevation Planograms Kitchen Plans & Equipment Schedule Kitchen Plans & Equipment Schedule Planning Fundamentals 61 64 Design Fundamentals 65 Entry & Interior Views 70 Lighting Staffed Market 60 72 79 82 Elevations Food Service Equipment Elevation Planograms Kitchen Plans & Equipment Schedule
        
    Introduction 04 Scalable Concept Definitions 05 Playbook Overview
        
    Introduction
          What is the F&B Retail Market Concept?
          The F&B Retail Market Concept is a 24-hour market for full-service properties with premium food and beverage offerings. An intuitive guest experience and flow allows these markets to be unstaffed. An elevated coffee experience is a key component of the program. Healthy and locally-sourced products are featured throughout the market.
          A set of guidelines used to determine the ideal market layout and to outline design strategies. This playbook is...
          The design solution. The market should adopt the design narrative of each property. This playbook is not...
          F&B RETAIL PLAYBOOK PLAYBOOK OVERVIEW 4
        
              
              
            
            Scalable Concept Definitions
          The number of keys, available sq. ft., traffic flow, and estimated peak number of guests per hour should be analyzed with the Hilton Design and F&B teams to determine the appropriate market size. There are three size options:
          Compact Market
          207 sq. ft. with adjacent
          50 sq. ft. storage space
          Mid-Size Market
          300 sq. ft. with adjacent
          50 sq. ft. storage space
          Full-Size Market
          395 sq. ft. with adjacent
          50 sq. ft. storage space
          Once the market size is determined, refer to the Compact Market guidelines (beginning on Page 12), Mid-Size Market guidelines (beginning on Page 27) or Full-Size Market guidelines (beginning on Page 44).
          The Playbook provides planning diagrams and plans for two Mid-Size Market configurations: “3-Sided” and “Corner.” One ideal configuration is illustrated for the Compact and Full-Size Market.
          
    F&B RETAIL PLAYBOOK PLAYBOOK OVERVIEW 5
        
    Lobby Zones 07 Renderings 09
        Property Adjacencies
        
              
              
            
            Lobby Zones
          There are several key adjacencies to be considered when identifying the location of the market within the hotel property, as well as determining the appropriate market size.
          See the following page for guidance around three key adjacencies that should be considered.
          F&B RETAIL PLAYBOOK PROPERTY ADJACENCIES 7
        Lobby Lobby Bar Hotel Entry Elevators Front Desk Market Market Storage
        LEGEND
        
              
              
            
            Market Location
          Key Adjacencies
          Key Adjacency #1
          The market should be located directly adjacent to the front desk so that team members can assist guests with the self-payment process when needed. Team member assistance is required for all alcohol purchases, so this adjacency is critical to keep the flow of guests moving. In addition, this adjacency provides social control for loss prevention.
          Key Adjacency #2
          Nearby storage space must be available to allow for quick and efficient restocking of items. See the Equipment Schedule for a full list of recommended Market Storage food service equipment.
          Key Adjacency #3
          When the market is located adjacent to the Lobby Bar, consider visibility into the market to prevent the market from becoming a visual distraction from the bar experience. Consider the orientation of the market entrance in relation to the front desk and the overall lobby experience.
          F&B RETAIL PLAYBOOK PROPERTY ADJACENCIES 8
        LEGEND Lobby Lobby Bar Hotel Entry Elevators Front Desk Market Market Storage Lobby Lobby Bar Hotel Entry Elevators Front Desk Market Market Storage Lobby Lobby Bar Hotel Entry Elevators Front Desk Market Market Storage
        
    F&B RETAIL PLAYBOOK PROPERTY ADJACENCIES 9
        
    F&B RETAIL PLAYBOOK PROPERTY ADJACENCIES 10
        
    F&B RETAIL PLAYBOOK PROPERTY ADJACENCIES 11
        
    Entry & Interior Views 17 Design Fundamentals 16 Planning Fundamentals 13 Compact Market Elevations Kitchen Plans & Equipment Schedule Lighting 20 22 26
        
              
              
            
            Compact Market
          
              
              
            
            Planning Fundamentals
          The subsequent pages provide detailed guidance around planning fundamentals by each area of the space, as detailed in the diagram to the right.
          The size of the compact market is 207 sq. ft. with an adjacent 50 sq. ft. storage space.
          
    F&B RETAIL PLAYBOOK COMPACT MARKET 207 SQ. FT. WITH ADJACENT 50 SQ. FT. STORAGE SPACE 13 REFRIGERATOR PAYMENT KIOSK ALCOHOL COFFEE & ESPRESSO STATION FREESTANDING MERCHANDISE MICROWAVE FROZEN DRY GOODS DRY GOODS DRY GOODS HEALTH & BEAUTY
        ENTRY ENTRY SIGNAGE LEGEND
        CONDIMENTS + TRASH ESPRESSO MACHINE CUP DISPENSER 1 2 3 4 6 5 7 8 9
        Coffee & Espresso
          The Coffee & Espresso station is the focal point, conveying a premium beverage experience. Locate the dry goods display along the queuing area to maximize guest browsing. Create an intuitive guest flow for the coffee program by co-locating cup and ice dispensers adjacent to the coffee equipment, condiments, and refuse.
          Refrigeration
          All refrigerated displays should be adjacent to one another to facilitate guest flow. Complimentary dry goods integrated between refrigerators provide ample space for guests to comfortably open refrigerator and freezer doors.
          Health & Beauty
          Conveniently locate Health & Beauty products at the entry for guests looking for sundry items. This area provides an opportunity to be thoughtful and supportive of the guest experience, while also providing flexibility for the future.
          Microwave
          Locate the under-counter microwave between the refrigerator and refuse area to allow guests to easily heat up food items and then discard of packaging.
          
    F&B RETAIL PLAYBOOK COMPACT MARKET 207 SQ. FT. WITH ADJACENT 50 SQ. FT. STORAGE SPACE 14
        ENTRY ENTRY HEAL TH & BE AU TY SIGNAGE PLANNING FUNDAMENTALS LEGEND DR Y GOODS CONDIMENTS + TRASH ESPRESSO MACHINE CUP DISPENSER REFRIGERATOR MICROWAVE COFFEE + ESPRESSO STATION CONDIMENTS + TRASH
        1 2
        3 4 COFFEE & ESPRESSO STATION REFRIGERATOR FRO ZEN
        Alcohol
          Co-locate refrigerated and ambient alcohol displays with frozen desserts. Alcohol displays need to be adjacent to the entry and front desk so that team members can monitor these items and also assist with alcohol purchases.
          Signage
          The blade sign should indicate the market location to guests when they are not at the front desk. Additional signage at the coffee counter highlights featured local roasters.
          Self-Payment
          Locate the self-payment station near the entry and front desk, which allows for front desk team members to easily assist.
          Freestanding Display
          Utilize freestanding displays at the center of the market to highlight local and healthy premium items and to provide a sense of offering upon arrival.
          Premium Items
          Locate premium, impulse items directly adjacent to the payment station.
          
    F&B RETAIL PLAYBOOK COMPACT MARKET 207 SQ. FT. WITH ADJACENT 50 SQ. FT. STORAGE SPACE 15
        ENTRY SIGNAGE ENTRY FREESTANDING MERCHANDISE PLANNING FUNDAMENTALS LEGEND 5 6 7 8 9 AL COHOL FRO ZEN DR Y GOOD S PA YMENT KIOS K DR Y GOOD S PA YMENT KIOS K
        
              
              
            
            Design Fundamentals
          Space Requirements
          The space requirement is 207 sq. ft. for the market and 50 sq. ft. for the supplementary storage area. A secondary storage area will be needed adjacent to the market that includes a double-door pre-chill cooler for grab and go back up so that all beverages are cold, as well as shelves and racks for products. See the Kitchen Equipment Schedule and Cutbook.
          Millwork Design
          Purposeful millwork should be used throughout to keep display shelves organized and to make food service equipment feel intentional and integrated into the overall design.
          Floor Plan: Compact Market
          Featured Finishes
          Products should be the focal point of the market. Neutral finishes serve as the backdrop to the market with key finishes used to highlight the coffee and payment areas.
          Architectural Lighting
          The use of minimalistic architectural lighting keeps the focus on the product display. Lighting design should be used to illuminate key zones and products.
          Floor Finish
          The floor finish provides an opportunity to use a pattern that provides visual interest and grounds the market when the guests are not present so that the space never feels empty.
          Circulation
          Areas that can become congested, including coffee and self-pay stations should provide generous circulation for multiple users at once.
          F&B RETAIL PLAYBOOK COMPACT MARKET 207 SQ. FT. WITH ADJACENT 50 SQ. FT. STORAGE SPACE 16
        ELEVATION MARKER LEGEND # 3D VIEW MARKER 1 1 '8 " 20'-0" 5 -0" M N 5 -0" M N 5 '0 " M I N ESPRESSO MACHINE CONDIMENTS + TRASH FREESTANDING MERCH ICE DISP CUP DISP MICROWAVE COMPACT 207 sq ft D R Y G O O D S D R Y G O O D S H E A L T H & B E A U T Y P A Y M E N T K I O S K R E F A L C ( A M B I E N T B E L O W ) REFRIGERATOR D R Y G O O D S F R O Z E N 18 12 20 16 21 17 19
        
    1 Floor Tiles
          Use patterned floor tiles to provide interest and ground the market when the guests are not present so that the space never feels empty.
          Use narrative-driven artwork or material with dimension and texture on the coffee wall to create an attention grabbing backdrop to the market.
          Utilize the curves of the mobile tables to soften the overall aesthetic. Vary heights to create hierarchy and keep the base open to allow maximum visibility into the market.
          Market Signage Section
          Use an optional blade sign at the market corner when needed to maximize the visibility of the market from the main hotel circulation paths.
          Use minimalistic architectural lighting to keep products as the focal point.
          Thoughtfully use millwork to surround equipment and make these items feel integrated into the overall design.
          F&B RETAIL PLAYBOOK COMPACT MARKET 207 SQ. FT. WITH ADJACENT 50 SQ. FT. STORAGE SPACE 17 Entry View 1 2 3 4 6 5
        Tables
        2
        Lighting
        3
        Wall Decor Section
        4
        Diagram Key Millwork
        6
        5
        Refuse Bins
          Conceal trash and recycling bins under the counter. Locate countertop openings tightly to the microwave to maximize counter space available for coffee condiments and retail.
          
    Use color on the undercounter cabinets to add visual interest. Balance the addition of color with patterns and textures used throughout the market.
          Retail Risers
          Use risers at the rear of the coffee counter for the additional coffee program, products, and narrative driven product display.
          Millwork Design
          Using strategic millwork design to frame kitchen equipment provides an integrated and sophisticated appearance. Provide a louvered base on the refrigeration to meet the venting requirement. Louver the design to align with the design narrative.
          Use
          Utilize clear lips at the edge of shelves and acrylic organizers to keep the product display neat and tidy.
          F&B RETAIL PLAYBOOK COMPACT MARKET 207 SQ. FT. WITH ADJACENT 50 SQ. FT. STORAGE SPACE 18 Interior View 6 5 1 2 3 4 1
        2
        3 Cabinet Finish
        4 Shelf
        Organizers and Lips
        6 Soffit
        Finish at Perimeter
        a textured finish that adds warmth and interest to the market without detracting from the merchandise. 5
        Diagram Key
        
    1 Utensils at Payment Kiosk
          Integrate utensil dispensers into the lower counter below the transaction surface, which allows guests to conveniently take them as they depart. The millwork panel on the rear of the utensil dispenser should be pulled forward to prevent the collection of utensils and refuse.
          2 Alcohol Display Strategies
          Use a variety of display methods for ambient wine to create an elevated display. The top display should highlight wine offerings with labels highly visible. The middle tier should display half bottles. The lower tier should display full wine bottles.
          Lockable Alcohol Display
          Provide lockable, glass pocket doors on the ambient alcohol display. The doors are locked when alcohol is not available. Include signage on the doors notifying guests when products are available for purchase.
          F&B RETAIL PLAYBOOK COMPACT MARKET 207 SQ. FT. WITH ADJACENT 50 SQ. FT. STORAGE SPACE 19 1 2 3
        3
        INTERIOR VIEW
        Diagram Key
          
              
              
            
            Lighting Design
          Ceiling Height
          The minimum ceiling height for a comfortable retail experience is 8’-0”.
          Color Temperature
          The color temperature of all fixtures and equipment lighting should be between 2700K and 3000K.
          Color Rendering Index
          The CRI of all fixtures should be 90 or higher.
          Circuits
          All circuits should be on dimmers and controlled separately.
          Diagram Key
          1 Recessed Trim Channel System (B, C1, C2)
          Illuminates coffee program and ambient retail displays
          Use component fixtures to illuminate the dry goods, ambient alcohol, and coffee program. The beam angle is adjustable in the field (15-50 degree range).
          2
          Recessed Perimeter Wall Wash with Regressed Lens (E)
          Grazes featured wall finishes
          A minimum 1/2” regress should be used. Use between 400 and 600 lumens per linear foot. The wall wash should be optic and asymmetric.
          COMPACT
          3
          Recessed Adjustable Downlights (A)
          General illumination and highlighting of freestanding merchandise
          Use a wide flood light (40 degree). Use 15W fitting if no glare accessories are used. Use 23W fitting if the hex cell louvers or similar glare control accessories are used. Angle fixtures should be used as needed to illuminate mobile freestanding merchandise below.
          Tape Light Under Countertop Edge (D)
          Use 200 or 300 lumens per linear foot with a 120 degree spread. Identify the location for the remote driver to ensure access is provided. 4
          Illuminates Health & Beauty drawers
          F&B RETAIL PLAYBOOK COMPACT MARKET 207 SQ. FT. WITH ADJACENT 50 SQ. FT. STORAGE SPACE 20
        A A A A E E A A 4 -0" - 5 0" OC TYP 4050 O C T Y P 18"-30" TYP 1 8 "3 0 " T Y P 18"-30" TYP 7 -0" 7 -0" 8 -0" MIN 7'-0" B B C2 C2 D C1
        1 2 3 4
        RCP
        
              
              
            
            Architectural Lighting
          Basis of Design
          These fixtures are intended as a basis of design. Specify fixtures to meet the budget and design needs of each property.
          Diagram Key
          Type C1 - WAC Strut
          Stealth Silo - Angled
          
    Type B - WAC Strut
          Stealth Wall Wash
          
    Type C2 - WAC Strut
          Stealth Silo - Downlight
          
    Type D - Kelvix
          Uniform Static White (Indoor) Tape Light w/ mounting channel CH-013-C mounted under countertop edge to illuminate drawers
          
    Type E - Lumenwerx
          VIA 3 Recessed Perimeter Wall Wash w/ Regressed Lens
          
    
    F&B RETAIL PLAYBOOK COMPACT MARKET 207 SQ. FT. WITH ADJACENT 50 SQ. FT. STORAGE SPACE 21
        C O R E a r c h i t e c t u r e + d e s i g n n c 1 0 1 0 w s c o n s n a v e n w s u i e 4 0 5 w a s h n g t o n d c 2 0 0 0 7 2 0 2 4 6 6 6 1 1 6 c o r e d c c o m @ c o r e d c C o m p a c t R C P H l t o n W o r d w i d e I n c H i l t o n M a r k e t A A A A E E A A 4 -0 - 5 0 OC TYP 4050 O C T Y P 18 -30 TYP 1 83 0 T Y P 18 -30 TYP 7 -0 7 -0 8 -0 M N 7 -0 B B C2 C2 D C1 COMPACT 6 5 1 2 3 4
        Type A - WAC Volta 4.5” Adjustable Downlight 4 6 5
        1 3 2 RCP
        
              
              
            
            Entry Elevation
          Diagram Key
          1 Freestanding Merchandise
          Vary the heights of the FF&E tables and nest them to maximize the display space. Balance the density of fixtures and visibility into the market.
          Prominent Coffee Wall
          Use narrative-driven artwork or finish material with dimension and texture on the coffee wall as it acts as a prominent signage element. 2
          Blade Sign
          Use a sign at the corner as it captures the attention of guests in the main hotel lobby circulation. 3 Market Exterior
          The wall finish at the market exterior should align with the property design narrative. A subtle finish allows the market beyond to be the focal point.
          F&B RETAIL PLAYBOOK COMPACT MARKET 207 SQ. FT. WITH ADJACENT 50 SQ. FT. STORAGE SPACE 22 ±0" Med um Market ±0" Med um Market +12 -0" Sma l Market +12 -0" Smal Marke 21 0 " 1 '8 " Elevation: Compact Market Entry 1 2 3 4
        4
        
              
              
            
            Coffee Counter
          Elevation
          Elevation: Coffee Counter
          Diagram Key
          1 Microwave
          Locate the microwave under the counter to free up counter space. Elevate the equipment as close to the countertop above to maintain comfortable operating height.
          Retail at Coffee
          Display complimentary retail such as simple, organized tea caddies above the cup dispensers to facilitate guest browsing.
          2
          Refrigeration
          If the space allows, increase the display using (2) 3’-0” wide double-door refrigerators.
          Prominent Coffee Wall
          Use narrative-driven artwork or finish material with dimension and texture on the coffee wall, as it acts as the primary signage element. 3
          5
          Cup Dispensers
          Incorporate the cup dispensers into millwork above the counter. Set back the cup dispensers from the counter edge to prevent cups from protruding into the guest path. Use one size cup for hot and cold beverages.
          Countertop
          The finish material should be durable, while also thoughtful and elevated in appearance to create a premium coffee experience. Consider using a darker finish to conceal coffee stains if appropriate for the design narrative. 6
          F&B RETAIL PLAYBOOK COMPACT MARKET 207 SQ. FT. WITH ADJACENT 50 SQ. FT. STORAGE SPACE 23
        C O R E a r c h i t e c t u r e + d e s g n i n c 1 0 1 0 w i s c o n s n a v e n w s u t e 4 0 5 w a s h i n g o n d c 2 0 0 0 7 2 0 2 4 6 6 6 1 1 6 c o r e d c c o m @ c o r e d c C o m p a c t E l e v a t i o n s H i t o n W o r d w i d e , I n c H i l t o n M a r k e t 60" M N - SEE EQUIP SCHED + CUTBOOK 5 -10 1/2" 2 -7 1/2" 2 '1 0 " A D A C O U N T E R H T 1 0 M N Sca e 1/2" = 1 -0" 1 Building Elevation 6 5 1 2 3 4
        4
        Dry Goods and Health & Beauty
          Elevation
          Elevation: Dry Goods and Health & Beauty Retail
          Diagram Key
          1 Elevate Retail Display
          Elevate the display a minimum height of 10” from the finished floor for a better perception of cleanliness and to optimize visibility of these products.
          Dry Goods Display Dimensions
          The optimal depth of dry goods shelves is 11” to 12” deep. The height between shelves should be kept to 12” maximum to prevent the addition of merchandisers.
          4
          Visual Break at Retail
          Use a wall finish that coordinates with the soffit above and provides a visual break from the product display.
          Health & Beauty Drawers
          The glass fronts for drawers maximize product visibility. The drawer front should have an opening approximately 1/4 of the overall drawer height for added visibility.
          Dry Goods Display Strategies
          The adjustable shelving allows for dynamic and flexible displays. Utilize angled shelves where appropriate for retail strategy.
          F&B RETAIL PLAYBOOK COMPACT MARKET 207 SQ. FT. WITH ADJACENT 50 SQ. FT. STORAGE SPACE 24
        C O R E a r c h t e c t u r e + d e s g n i n c 1 0 1 0 w s c o n s n a v e n w s u t e 4 0 5 w a s h n g t o n d c 2 0 0 0 7 2 0 2 4 6 6 6 1 1 6 c o r e d c c o m @ c o r e d c 2 2 0 2 8 C o m p a c t E l e v a t i o n s H l t o n W o r d w i d e , I n c H i l t o n M a r k e t © 2 0 2 2 C O R E a c h t e c t u e d e s g n n c P r o e c t N u m b e r P i n t e d 3 / 2 4 / 2 P B 6 1 0 " M I N 1 T Y P 1 '0 " M A X T Y P 30 " 5 '6 " P R M A R Y B R O W S I N G Z O N E Sca e: 1 2" = 1 -0" 1 Building Elevation 5 1 2 3 4
        2
        3
        5
        
              
              
            
            Payment Kiosk &
          Retail Elevation
          
    Diagram Key
          Create a niche below the counter to store bags that guests can easily access during their transaction process.
          Elevate the alcohol refrigerator to achieve one datum line above that is consistent with the double-door refrigerator.
          Elevate the freezer to provide a more premium browsing experience with complimentary products displayed above and below.
          Use a wall finish that creates a clear, designated area for guests to intuitively guide them through the market to the payment area.
          Complimentary Displays
          Display ambient drinks and dry goods that compliment adjacent refrigerated items.
          Display premium products adjacent to the payment kiosk where guests will queue.
          F&B RETAIL PLAYBOOK COMPACT MARKET 207 SQ. FT. WITH ADJACENT 50 SQ. FT. STORAGE SPACE 25
        ±0" Medium Market ±0" Medium Market +12'-0" Small Market +12'-0" Small Market 21 0 " A D A C O U N T E R H T 6 5 1 2 3 4 7 1
        Bag Display
        Payment Kiosk Aures Mini Komet 2 Feature Wall Finish
        3 Premium Product Display
        4 Alcohol Display
        5 Frozen Desserts
        6
        7
        Elevation:
        Payment Kiosk and Retail
        
              
              
            
            Kitchen Plans & Equipment Schedule
          
    Equipment Floor Plan
          F&B RETAIL PLAYBOOK COMPACT MARKET 207 SQ. FT. WITH ADJACENT 50 SQ. FT. STORAGE SPACE 26
        12 113 1 FREESTANDING MERCH DRY GOODS DRY GOODS HEALTH & BEAUTY CONDIMENT & TRASH PAYMENT KIOSK 10 11 BEVERAGE 7 GRAB & GO 6 114 DATE: SCALE: PROJECT NAME:
        Item Qty. Source Description
        Kitchen
        
    Entry & Interior Views 32 Design Fundamentals 31 Planning Fundamentals 28 Mid-Size Market Elevations Kitchen Plans & Equipment Schedule Food Service Equipment Elevations Lighting 36 38 38 43
        
              
              
            
            Mid-Size Market
          
              
              
            
            Planning Fundamentals
          The subsequent pages provide detailed guidance around planning fundamentals by each area of the space, as detailed in the diagram to the right.
          The size of the mid-size market is 300 sq. ft. with an adjacent 50 sq. ft. storage space.
          
    28 F&B RETAIL PLAYBOOK MID-SIZE MARKET 300 SQ. FT. WITH ADJACENT 50 SQ. FT. STORAGE SPACE REFRIGERATOR FROZEN PAYMENT KIOSK ALCOHOL COFFEE & ESPRESSO STATION FREESTANDING MERCHANDISE MICROWAVE DRY GOODS DRY GOODS HEALTH & BEAUTY DRY GOODS SIGNAGE REFRIGERATOR FROZEN PAYMENT KIOSK ALCOHOL COFFEE & ESPRESSO STATION FREESTANDING MERCHANDISE MICROWAVE DRY GOODS DRY GOODS DRY GOODS HEALTH & BEAUTY SIGNAGE LEGEND 3-Sided Market Corner Market ENTRY ENTR Y ENTRY ENTRY 1 1 2 2 3 3 4 4 6 6 7 7 8 8 9 9 CONDIMENTS TRASH DRIP COFFEE ESPRESSO MACHINE ICE DISPENSER CUP DISPENSER CONDIMENTS + TRASH DRIP COFFEE ESPRESSO MACHINE ICE DISPENSER CUP DISPENSER
        5 5
        
    Coffee & Espresso
          The Coffee & Espresso station is the focal point, conveying a premium beverage experience. Locate the dry goods display along the queuing area to maximize guest browsing. Create an intuitive guest flow for the coffee program by co-locating cup and ice dispensers adjacent to the coffee equipment, condiments, and refuse.
          Refrigeration
          All refrigerated displays should be adjacent to one another to facilitate guest flow. Complimentary dry goods integrated between refrigerators provide ample space for guests to comfortably open refrigerator and freezer doors. 3
          Health & Beauty
          Conveniently locate Health & Beauty products at the entry for guests looking for sundry items. This area provides an opportunity to be thoughtful and supportive of the guest experience, while also providing flexibility for the future.
          Microwave
          Locate the under-counter microwave between the refrigerator and refuse area to allow guests to easily heat up food items and then discard of packaging.
          
    29 F&B RETAIL PLAYBOOK MID-SIZE MARKET 300 SQ. FT. WITH ADJACENT 50 SQ. FT. STORAGE SPACE REFRIGERATOR D R Y GOODS PLANNING FUNDAMENTALS
        ENTRY ENTRY HEAL TH & BE AU TY SIGNAGE LEGEND DR Y GOODS CONDIMENTS + TRASH ESPRESSO MACHINE CUP DISPENSER
        1
        2
        REFRIGERATOR MICROWAVE COFFEE + ESPRESSO STATION CONDIMENTS + TRASH 4
        
    Alcohol
          Co-locate refrigerated and ambient alcohol displays with frozen desserts. Alcohol displays need to be adjacent to the entry and front desk so that team members can monitor these items and also assist with alcohol purchases.
          Signage
          The blade sign should indicate the market location to guests when they are not at the front desk. Additional signage at the coffee counter highlights featured local roasters.
          Self-Payment
          Locate the self-payment station near the entry and front desk, which allows for front desk team members to easily assist.
          Freestanding Display
          Utilize freestanding displays at the center of the market to highlight local and healthy premium items and to provide a sense of offering upon arrival.
          Premium Items
          Locate premium, impulse items directly adjacent to the payment station.
          
    30 F&B RETAIL PLAYBOOK MID-SIZE MARKET 300 SQ. FT. WITH ADJACENT 50 SQ. FT. STORAGE SPACE SIGNAGE ENTRY ENTRY FREESTANDING MERCHANDISE P A YMENT KIOSK D R Y GOODS P A YMENT KIOSK PLANNING FUNDAMENTALS LEGEND
        5
        6 7
        8 9
        Floor Plan: 3-Sided Small Market
          3-Sided Small Market Floor Plan
          
              
              
            
            Design Fundamentals
          Space Requirements
          The space requirement is 300 sq. ft. for the market and 50 sq. ft. for the supplementary storage area. A secondary storage area will be needed adjacent to the market that includes a double-door pre-chill cooler for grab and go back up so that all beverages are cold, as well as shelves and racks for products. See the Kitchen Equipment Schedule and Cutbook.
          Millwork Design
          Purposeful millwork should be used throughout to keep the display shelves organized and to make food service equipment feel intentional and integrated into the overall design.
          Featured Finishes
          Products should be the focal point of the market. Neutral finishes are to serve as the backdrop to the market with key finishes used to highlight the coffee and payment areas.
          Architectural Lighting
          The use of minimalistic architectural lighting keeps the focus on the product display. Lighting design should be used to illuminate key zones and products.
          Floor Finish
          The floor finish provides an opportunity to use a pattern that provides visual interest and grounds the market when the guests are not present so that the space never feels empty.
          Circulation
          Areas that can become congested, including coffee and self-pay station should provide generous circulation for multiple users at once.
          Floor Plan: Corner Small Market
          31 F&B RETAIL PLAYBOOK MID-SIZE MARKET 300 SQ. FT. WITH ADJACENT 50 SQ. FT. STORAGE SPACE
        CORE architecture + design, inc. 1010 wisconsin ave nw, suite 405 washington, dc 20007 202.466.6116 coredc.com @coredc 22028 Small Market Floor Plans Hilton Wordwide, Inc. Hilton Market ©2022 CORE architecture + design, inc. Project Number Printed 12/20/22 2 15'-0" 22'-2" 5'-0" MIN 5'-0"MIN 5'-0" MIN ESPRESSO MACHINE DRIP COFFEE CONDIMENTS + TRASH MICROWAVE DRY GOODS PAYMENT KIOSK FREESTANDING MERCH DRY GOODS + ALCOHOL ICE DISP. CUP DISP. REF REFRIGERATOR DRY GOODS HEALTH & BEAUTY 300 sq ft FROZEN ALC. 15'-0" 22'-2" 5'-0" MIN 5'-0" MIN 5'-0" MIN ESPRESSO MACHINE DRIP COFFEE CONDIMENTS + TRASH MICROWAVE FREESTANDING MERCH ICE DISP. CUP DISP. REF DRY GOODS + ALCOHOL 300 sq ft DRY GOODS DRY GOODS HEALTH & BEAUTY PAYMENT KIOSK FROZEN ALC. REFRIGERATOR Scale: 1/4" = 1'-0" 2 Corner
        Plan Scale: 1/4" = 1'-0" 1
        Small Market Floor
        CORE architecture + design, inc. 1010 wisconsin ave nw, suite 405 washington, dc 20007 202.466.6116 coredc.com @coredc 22028 Small Market Floor Plans Hilton Wordwide, Inc. Hilton Market ©2022 CORE architecture + design, inc. Project Number Printed 12/20/22 2 15'-0" 22'-2" 5'-0" MIN 5'-0"MIN 5'-0" MIN ESPRESSO MACHINE DRIP COFFEE CONDIMENTS + TRASH MICROWAVE DRY GOODS PAYMENT KIOSK FREESTANDING MERCH DRY GOODS + ALCOHOL ICE DISP. CUP DISP. REF REFRIGERATOR DRY GOODS HEALTH & BEAUTY 300 sq ft FROZEN ALC. 15'-0" 22'-2" 5'-0" MIN 5'-0" MIN 5'-0" MIN ESPRESSO MACHINE DRIP COFFEE CONDIMENTS + TRASH MICROWAVE FREESTANDING MERCH ICE DISP. CUP DISP. REF DRY GOODS + ALCOHOL 300 sq ft DRY GOODS DRY GOODS HEALTH & BEAUTY PAYMENT KIOSK FROZEN ALC. REFRIGERATOR Scale: 1/4" = 1'-0" 2 Corner Small Market Floor Plan Scale: 1/4" = 1'-0" 1 3-Sided Small Market Floor Plan 33 37 35 32 ELEVATION MARKER (PAGE #) LEGEND 26 # 3D VIEW MARKER (PAGE #) 28 34 36
        
    Diagram Key
          1 Floor Tiles
          Use patterned floor tile to provide interest and ground the market when the guests are not present so that the space never feels empty.
          Tables
          Utilize the curves of the mobile tables to soften the overall aesthetic. Vary heights to create hierarchy and keep the base open to allow maximum visibility into the market.
          Market Signage
          Use narrative-driven artwork or material with dimension and texture at the coffee wall to create an attention grabbing backdrop to the market.
          Use an optional blade sign at the market corner when needed to maximize the visibility of the market from the main hotel circulation paths.
          Use minimalistic architectural lighting to keep products as the focal point.
          Thoughtfully use millwork to surround equipment and make these items feel integrated into the overall design.
          32 F&B RETAIL PLAYBOOK MID-SIZE MARKET 300 SQ. FT. WITH ADJACENT 50 SQ. FT. STORAGE SPACE 3-Sided Entry View 6 5 1 2 3 4
        2
        Lighting
        3
        Wall Decor
        4
        Millwork
        6
        5
        
    Diagram Key
          1
          Floor Tiles
          Use patterned floor tile to provide interest and ground the market when the guests are not present so that the space never feels empty.
          Wall Decor Section
          Use narrative-driven artwork or material with dimension and texture at the coffee wall to create an attention grabbing backdrop to the market.
          Tables
          Utilize the curves of the mobile tables to soften the overall aesthetic. Vary heights to create hierarchy and keep the base open to allow maximum visibility into the market.
          Market Signage Section
          Use an optional blade sign at the market corner when needed to maximize the visibility of the market from the main hotel circulation paths.
          Lighting
          Use minimalistic architectural lighting to keep products as the focal point.
          Millwork
          Thoughtfully use millwork to surround equipment and make these items feel integrated into the overall design.
          33 F&B RETAIL PLAYBOOK MID-SIZE MARKET 300 SQ. FT. WITH ADJACENT 50 SQ. FT. STORAGE SPACE
        6 5 1 2 3 4
        Corner Entry View
        2
        3
        4
        6
        5
        Diagram Key
          Refuse Bins
          Conceal trash and recycling bins under the counter. Locate countertop openings tightly to the microwave to maximize counter space available for coffee condiments and retail.
          
    Retail Risers
          Use risers at the rear of the coffee counter for the additional coffee program, products and narrative driven product display.
          Soffit Finish at Perimeter
          Use color on the undercounter cabinets to add visual interest. Balance addition of color with patterns and textures used throughout the market.
          Use a textured finish that adds warmth and interest to the market without detracting from the merchandise.
          Millwork Design
          Using strategic millwork design to frame kitchen equipment provides an integrated and sophisticated appearance. Provide a louvered base on the refrigeration to meet venting requirement. Louver the design to align with the design narrative.
          Shelf Organizers and Lips
          Utilize clear lips at the edge of shelves and acrylic organizers to keep the product display neat and tidy.
          34 F&B RETAIL PLAYBOOK MID-SIZE MARKET 300 SQ. FT. WITH ADJACENT 50 SQ. FT. STORAGE SPACE
        6 5 1 2 3 4
        Interior View
        1
        2
        3 Cabinet
        Finish
        4
        6
        5
        1 Utensils at Payment Kiosk
          Integrate utensil dispensers into the lower counter below transaction surface, which allows guests to conveniently take them as they depart. The millwork panel at the rear of the utensil dispensers should be pulled forward to prevent the collection of utensils and refuse.
          
    2 Alcohol Display Strategies
          Use a variety of display methods for ambient wine to create an elevated display. The top display should highlight wine offerings with labels highly visible. The middle tier should display half bottles. The lower tier should display full wine bottles.
          Lockable Alcohol Display
          Provide lockable, glass pocket doors on the ambient alcohol display. The doors are locked when alcohol is not available. Include signage on the doors notifying guests when products are available for purchase.
          35 F&B RETAIL PLAYBOOK MID-SIZE MARKET 300 SQ. FT. WITH ADJACENT 50 SQ. FT. STORAGE SPACE 1 2 3
        3
        INTERIOR VIEW
        Diagram Key
          
              
              
            
            Lighting Design
          Ceiling Height
          The minimum ceiling height for a comfortable retail experience is 8’-0”.
          Color Temperature
          The color temperature of all fixtures and equipment lighting should be between 2700K and 3000K.
          Color Rendering Index
          The CRI of all fixtures should be 90 or higher.
          Circuits
          All circuits should be on dimmers and controlled separately.
          Diagram Key
          1 Recessed Trim Channel System (B, C1, C2)
          Illuminates coffee program and ambient retail displays
          Use component fixtures to illuminate the dry goods, ambient alcohol, and coffee program. The beam angle is adjustable in the field (15-50 degree range).
          Recessed Perimeter Wall Wash with Regressed Lens (E)
          Grazes featured wall finishes
          A minimum 1/2” regress should be used. Use between 400 and 600 lumens per linear foot. The wall wash should be optic and asymmetric. 2
          Recessed Adjustable Downlights (A)
          Use a wide flood light (40 degree). Use 15W fitting if no glare accessories are used. Use 23W fitting if the hex cell louvers or similar glare control accessories are used. Angle fixtures should be used as needed to illuminate mobile freestanding merchandise below. 3
          General illumination and highlighting of freestanding merchandise
          Tape Light Under Countertop Edge (D)
          Illuminates Health & Beauty drawers
          Use 200 or 300 lumens per linear foot. 120 degree spread. Identify the location for the remote driver to ensure access is provided.
          36 F&B RETAIL PLAYBOOK MID-SIZE MARKET 300 SQ. FT. WITH ADJACENT 50 SQ. FT. STORAGE SPACE
        CORE architecture + design, inc 1010 wiscons n ave nw su te 405 washing on, dc 20007 202 466 6116 coredc com @coredc Test Fit RCPs H lton Wordw de, Inc Hi ton Market A A A A A A E E 4 '0 "5 '0 " O C T Y P 4 -0" - 5 -0" OC TYP 18"-30" TYP 18"-30" TYP 1 83 0 T Y P 8 -0" MIN 7 -0" 7 -0" 7 -0" B B C1 C2 C2 D C1 BLADE S GN A A A E 4 -0" - 5'40 "50 " O C T Y P 18"-30" TYP 7 7'-0" C2 C1 Sca e: 1/4" = 1 -0" 1 Small Market Sca e: 1/4" = 1 -0" 2 Medium Market SMALL MARKET LIGHT NG FIXTURES TYPE B STEALTH WALL WASH TYPE C: STEALTH SILO TYPE C1 STEALTH S LO (DOWNLIGHT) RCP: 3-Sided Market 1 2 3 4
        4
        
              
              
            
            Architectural Lighting
          Basis of Design
          These fixtures are intended as a basis of design. Specify fixtures to meet the budget and design needs of each property.
          Diagram Key
          Type C1 - WAC Strut
          Stealth Silo - Angled
          
    Type B - WAC Strut
          Stealth Wall Wash
          
    RCP: 3-Sided Market
          Type C2 - WAC Strut Stealth Silo - Downlight
          
    Type D - Kelvix
          Uniform Static White (Indoor) Tape Light w/ mounting channel CH-013-C mounted under countertop edge to illuminate drawers
          
    
    
    37 F&B RETAIL PLAYBOOK MID-SIZE MARKET 300 SQ. FT. WITH ADJACENT 50 SQ. FT. STORAGE SPACE CORE arch ecture + des gn nc 1010 w scon n ave nw su e 405 wash ng on dc 0007 202 466 6116 co edc com @co edc Test Fit RCPs H on Wo dw de nc Hi on Marke ©2022 CORE a ch Pro ec N A A A A A A E E 4050 O C T Y P 4 -0 - 5 -0 OC TY 18"-30 TY 18 -30 TY 1 83 0 T Y P 8 -0 M N 7 -0 7 -0 7 -0 B B C1 C2 C2 D C1 B ADE S GN A A A A A A E E A A 4 -0 - 5 -0" O C YP 4050 O C T Y P 18 -30 TY 1 83 0 T Y P 18 -30 YP 8 -0 M N 7 -0" 7 -0" 7 -0 B C1 C2 B C1 D BLADE S GN Sca e 1/4" = 1 -0" 1 Small Market Sca e: 1 4 = 1 -0" 2 Medium Market SMALL MARKET L GHT NG F XTURES TYPE B STEALTH WALL WASH TYPE C STEALTH S LO TYPE C1 STEALTH S LO DOWNL GHT) 6 5 1 2 3 4
        Type E - Lumenwerx VIA 3 Recessed Perimeter Wall Wash
        Regressed Lens
        w/
        Volta 4.5” Adjustable Downlight 4 6 5
        Type A - WAC
        1 3 2
        
              
              
            
            Entry Elevation
          Elevation: 3-Sided Small Market Entry
          Diagram Key
          1 Freestanding Merchandise
          Vary the heights of the FF&E tables and nest them to maximize the display space. Balance the density of fixtures and visibility into the market.
          Prominent Coffee Wall
          Use narrative-driven artwork or finish material with dimension and texture on the coffee wall as it acts as a prominent signage element.
          Blade Sign
          Use a sign at the corner as it captures the attention of guests in the main hotel lobby circulation.
          The wall finish at the market exterior should align with the property design narrative. A subtle finish allows the market beyond to be the focal point.
          38 F&B RETAIL PLAYBOOK MID-SIZE MARKET 300 SQ. FT. WITH ADJACENT 50 SQ. FT. STORAGE SPACE
        CORE a ch ectu e + des gn nc 1010 w co s n ve nw u 405 w sh g on c 20 07 202 66 6116 o ed com @co ed 22028 Elevations - Small Market H on Wo dw de, nc H ton Ma ke ©20 2 CORE a ch ec u e + des gn nc P o c Numb P ed 3 4 23 6 21 0 24 18 Sca e: 1 2 = 1 -0 1 Exterior Elevation 1 2 3 4
        2
        3
        Market Exterior
        4
        Coffee Counter
          Elevation
          Elevation: Coffee Counter
          Diagram Key
          1 Microwave
          Locate the microwave under the counter to free up counter space. Elevate the equipment as close to the countertop above to maintain comfortable operating height.
          Retail at Coffee
          Display complimentary retail such as simple, organized tea caddies above the cup dispensers to facilitate guest browsing. 5
          Refrigeration
          If the space allows, increase the display using (2) 3’-0” wide double-door refrigerators. 2
          Cup Dispensers
          Incorporate the cup dispensers into millwork above the counter. Set back the cup dispensers from the counter edge to prevent cups from protruding into the guest path. Use one size cup for hot and cold beverages.
          Prominent Coffee Wall
          Use narrative-driven artwork or finish material with dimension and texture at the coffee wall, as it acts as the primary signage element.
          Countertop
          The finish material should be durable, while also thoughtful and elevated in appearance to create a premium coffee experience. Consider using a darker finish to conceal coffee stains, if appropriate for the design narrative.
          Coffee Signage
          Highlight local roaster and premium coffee with a marquee sign. Coordinate the location and size of the sign with the operation of the coffee equipment below. 4
          39 F&B RETAIL PLAYBOOK MID-SIZE MARKET 300 SQ. FT. WITH ADJACENT 50 SQ. FT. STORAGE SPACE
        C O R E a r c h i t e c t u r e + d e s i g n n c 1 0 1 0 w i s c o n s n a v e n w s u i e 4 0 5 w a s h n g o n d c 2 0 0 0 7 2 0 2 4 6 6 6 1 1 6 c o r e d c c o m @ c o r e d c 2 2 0 2 8 E l e v a t i o n sS m a l l M a r k e t H i t o n W o r d w d e I n c H i l t o n M a r k e t © 2 0 2 2 C O R E a r c h t e c t u r e + d e s g n n c P r o e c t N u m b e P r n t e d 3 / 2 4 / 2 3 4 2 '1 0 " A D A C O U N T E R H T 6 -8" 4 -0" M N 60" M N - SEE EQU P SCHED + CUTBOOK 1 0 M N 21 0 A D A C O U N T E R H T Scale: 1/2" = 1 -0 1 Coffee Counter Elevation Sca e 1/2" = 1 -0" 2 Frozen and Alcohol Elevation 6 5 1 2 3 4 7
        3
        6
        7
        
              
              
            
            Dry Goods and Health & Beauty Elevation
          Elevation: Dry Goods and Health & Beauty Retail
          Diagram Key
          1 Elevate Retail Display
          Elevate the display a minimum height of 10” from the finished floor for a better perception of cleanliness and to optimize visibility of these products.
          Dry Goods Display
          Dimensions
          The optimal depth of dry goods shelves is between 11” to 12” deep. The height between shelves should be kept to 12” maximum to prevent the addition of merchandisers.
          Visual Break at Retail
          Use a wall finish that coordinates with the soffit above and provides a visual break from the product display.
          Health & Beauty Drawers
          The glass fronts for drawers maximize product visibility. The drawer front should have an opening approximately 1/4 of the overall drawer height for added visibility.
          Dry Goods Display
          Strategies
          The adjustable shelving allows for dynamic and flexible displays. Utilize angled shelves where appropriate for retail strategy.
          40 F&B RETAIL PLAYBOOK MID-SIZE MARKET 300 SQ. FT. WITH ADJACENT 50 SQ. FT. STORAGE SPACE
        CORE arch ecture + des gn, nc 1010 w cons n ave nw su e 405 wash ng on dc 20007 202 466 6116 co edc com @co edc 22028 Elevations - Small Market H l on Wo dwide nc H l on Marke ©2022 CORE a ch ec u e + des gn nc P o ec Numbe P n ed 3 24 23 5 1 0 M N 3 '0 " 5 '6 " 1 " T Y P 10 M A X T Y P P R I M A R Y B R O W S I N G Z O N E Sca e: 1 2" = 1 -0 1 Dry Goods Elevation 5 1 2 3 4
        2
        3
        4
        5
        
              
              
            
            Payment Kiosk &
          Retail Elevation
          
    Diagram Key
          Create a niche below the counter to store bags that guests can easily access during their transaction process.
          Elevate the alcohol refrigerator to achieve one datum line above that is consistent with the double-door refrigerator.
          Elevate the freezer to provide a more premium browsing experience with complimentary products displayed above and below.
          Use a wall finish that creates a clear, designated area for guests to intuitively guide them through the market to the payment area.
          Display ambient drinks and dry goods that compliment adjacent refrigerated items.
          Display premium products adjacent to the payment kiosk where guests will queue.
          41 F&B RETAIL PLAYBOOK MID-SIZE MARKET 300 SQ. FT. WITH ADJACENT 50 SQ. FT. STORAGE SPACE
        2 A D A C 1 0 " M N 21 0 " A D A C O U N T E R H T Sca e: 1 2" = 1 -0" 1 Coffee Counter Elevation Sca e 1/2" = 1 -0" 2 Frozen and Alcohol Elevation 6 5 1 2 3 4 7
        1 Bag Display
        Payment Kiosk Aures
        2 Feature Wall Finish
        Mini Komet
        3 Premium Product Display
        4 Alcohol Display
        5 Frozen Desserts
        6
        Complimentary Displays
        7
        Elevation: Payment Kiosk and Retail
        Elevation: Payment Kiosk and Retail
          
    
    Elevation 2 -a
          SCALE AS NOTED 1/2" = 1'-0" 1
          
              
              
            
            EQUIPMENT ELEVATIONS
          Elevation: Coffee Counter
          42 F&B RETAIL PLAYBOOK MID-SIZE MARKET 300 SQ. FT. WITH ADJACENT 50 SQ. FT. STORAGE SPACE
        Food Service
        DRAWN: H I L T O N M A R K E T
        Equipment Elevations
        Kitchen Equipment Floor Plan: 3-Sided Market
          
    Kitchen Equipment Floor Plan: Corner Market
          43 F&B RETAIL PLAYBOOK MID-SIZE MARKET 300 SQ. FT. WITH ADJACENT 50 SQ. FT. STORAGE SPACE
        9 10 11 12 5 2 1 6 FREESTANDING MERCH POS DRY GOODS DRY GOODS GRAB & GO CONDIMENT & TRASH BEVERAGE DRY GOODS HEALTH & BEAUTY 7 PROJECT #: DRAWN: Author 1/4" = 1'-0" SMALL MARKET EQUIPMENT FLOOR PLAN 7 9 10 11 12 5 2 1 6 FREESTANDING MERCH DRY GOODS DRY GOODS GRAB & GO BEVERAGE DRY GOODS HEALTH & BEAUTY CONDIMENT & TRASH PAYMENT KIOSK DATE: PROJECT NAME: H I L T O N M A 1/4" = 1'-0" SMALL MARKET
        Kitchen Plans & Equipment Schedule
        Item Qty. Source Description
        
    Entry and Interior Views 49 Design Fundamentals 48 Planning Fundamentals 45 Full-Size Market Elevations Lighting 52 54 Kitchen Plans & Equipment Schedule Food Service Equipment Elevations 59 58
        
              
              
            
            Full-Size Market
          
              
              
            
            Planning Fundamentals
          The subsequent pages provide detailed guidance around planning fundamentals by each area of the space, as detailed in the diagram to the right.
          The size of the full-size market is 395 sq. ft. with an adjacent 50 sq. ft. storage space.
          
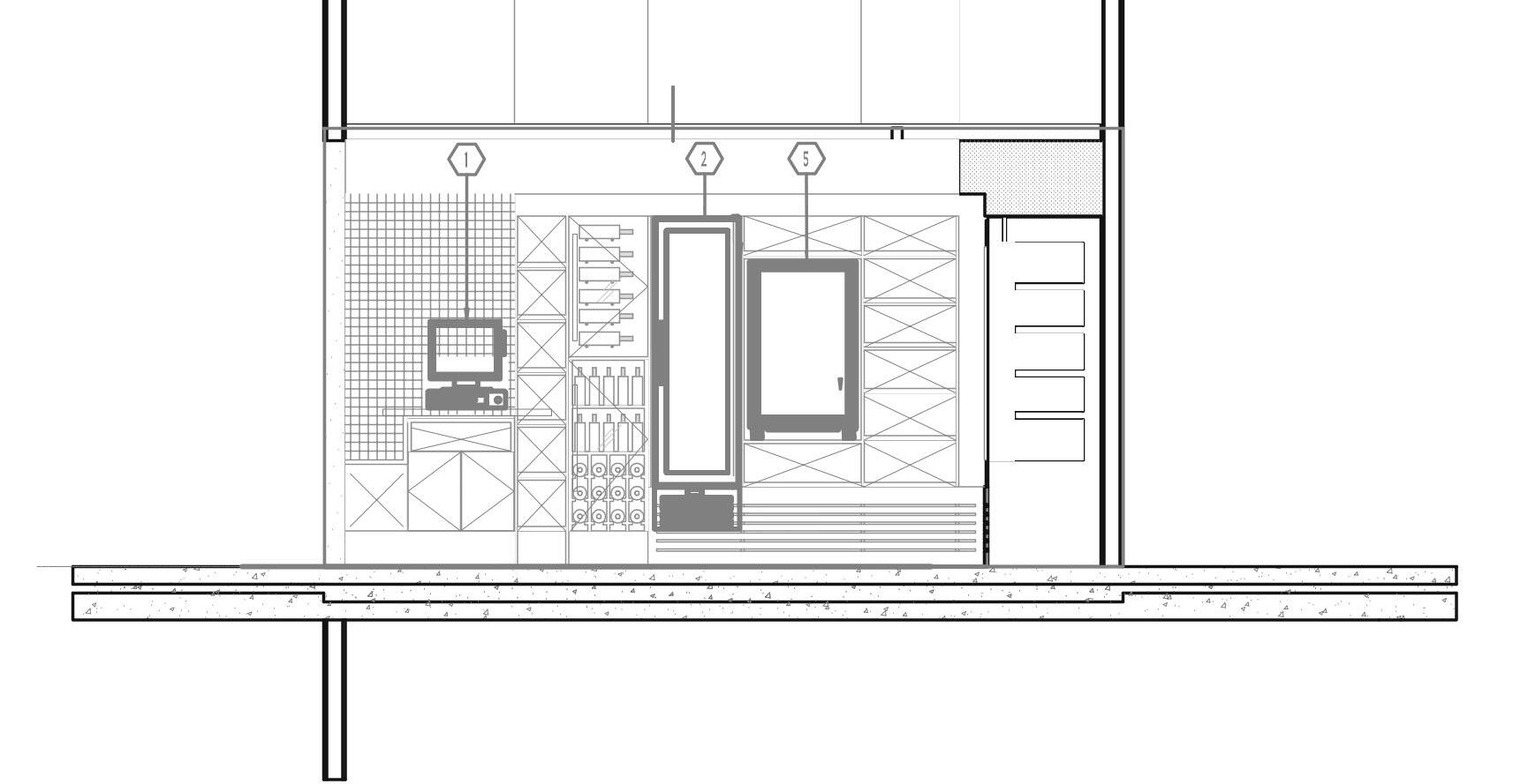
    45 F&B RETAIL PLAYBOOK FULL-SIZE MARKET 395 SQ. FT. WITH ADJACENT 50 SQ. FT. STORAGE SPACE FREESTANDING MERCHANDISE HEALTH & BEAUTY FROZEN REFRIGERATOR PAYMENT KIOSK ALCOHOL COFFEE & ESPRESSO STATION MICROWAVE DRY GOODS DRY GOODS SIGNAGE ENTRY ENTRY ENTR Y LEGEND 1 2 3 4 6 7 8 9 CONDIMENTS + TRASH DRIP COFFEE ESPRESSO MACHINE ICE DISPENSER CUP DISPENSER
        5
        1
          Coffee & Espresso
          The Coffee & Espresso station is the focal point, conveying a premium beverage experience. Locate the dry goods display along the queuing area to maximize guest browsing. Create an intuitive guest flow for the coffee program by co-locating cup and ice dispensers adjacent to the coffee equipment, condiments, and refuse.
          2
          Health & Beauty
          Conveniently locate Health & Beauty products at the entry for guests looking for sundry items. This area provides an opportunity to be thoughtful and supportive of the guest experience, while also providing flexibility for the future.
          3 Microwave
          Refrigeration
          All refrigerated displays should be adjacent to one another to facilitate guest flow. Complimentary dry goods integrated between refrigerators provide ample space for guests to comfortably open refrigerator and freezer doors.
          4
          Locate the under-counter microwave between the refrigerator and refuse area to allow guests to easily heat up food items and then discard of packaging.
          
    46 F&B RETAIL PLAYBOOK FULL-SIZE MARKET 395 SQ. FT. WITH ADJACENT 50 SQ. FT. STORAGE SPACE ENTRY PLANNING FUNDAMENTALS COFFEE + ESPRESSO STATION CONDIMENTS + TRASH ENTRY CONDIMENTS + TRASH ESPRESSO MACHINE CUP DISPENSER
        LEGEND HEAL TH & BE AU TY COFFEE & ESPRESSO STATION HEAL TH & BE AU TY FRO ZEN REFRIGERA TO R FRO ZEN REFRIGERA TO R COFFEE & ESPRESSO STATION MICROWAVE DRY GOODS
        Co-locate refrigerated and ambient alcohol displays with frozen desserts. Alcohol displays need to be adjacent to the entry and front desk so that team members can monitor these items and also assist with alcohol purchases.
          Signage
          The blade sign should indicate the market location to guests when they are not at the front desk. Additional signage at the coffee counter highlights featured local roasters.
          Self-Payment
          Locate the self-payment station near the entry and front desk, which allows for front desk team members to easily assist.
          Freestanding Display
          Utilize freestanding displays at the center of the market to highlight local and healthy premium items and to provide a sense of offering upon arrival.
          Items
          Locate premium, impulse items directly adjacent to the payment station.
          
    47 F&B RETAIL PLAYBOOK FULL-SIZE MARKET 395 SQ. FT. WITH ADJACENT 50 SQ. FT. STORAGE SPACE ENTR Y ENTRY FREESTANDING MERCHANDISE FREESTANDING MERCHANDISE SIGNAGE PLANNING FUNDAMENTALS Alcohol
        5
        Premium
        6 7
        8 9 LEGEND FRO ZEN AL COHOL PA YMENT KIOS K PA YMENT KIOS K DR Y GOOD S
        Floor Plan: Full-Size Market
          
              
              
            
            Design Fundamentals
          Space Requirements
          The space requirement is 395 sq. ft. for the market and 50 sq. ft. for the supplementary storage area. A secondary storage area will be needed adjacent to the market that includes a double-door pre-chill cooler for grab and go back up so that all beverages are cold, as well as shelves and racks for products. See the Kitchen Equipment Schedule and Cutbook.
          Millwork Design
          Purposeful millwork should be used throughout to keep display shelves organized and to make food service equipment feel intentional and integrated into the overall design.
          Featured Finishes
          Products should be the focal point of the market. Neutral finishes serve as the backdrop to the market with key finishes used to highlight the coffee and payment areas.
          Architectural Lighting
          The use of minimalistic architectural lighting keeps the focus on the product display. Lighting design should be used to illuminate key zones and products.
          Floor Finish
          The floor finish provides an opportunity to use a pattern that provides visual interest and grounds the market when the guests are not present so that the space never feels empty.
          Circulation
          Areas that can become congested, including coffee and self-pay station should provide generous circulation for multiple users at once.
          48 F&B RETAIL PLAYBOOK FULL-SIZE MARKET 395 SQ. FT. WITH ADJACENT 50 SQ. FT. STORAGE SPACE 1'-11" 20'-2" 20'-9" 5'-0" MIN 5'-0" MIN 5'-0" MIN MICROWAVE DRY GOODS & ALCOHOL DRY GOODS PAYMENT KIOSK FREESTANDING MERCH ESPRESSO MACHINE DRIP COFFEE CONDIMENTS + TRASH ICE DISP. CUP DISP. REF REF DRY GOODS HEALTH & BEAUTY AND LOCAL COFFEE SIGNAGE 395 sq ft FROZEN ALC. Scale: 1/4" = 1'-0" 1 3-Sided Small Market Bubble Diagram ELEVATION MARKER (PAGE #) LEGEND # 3D VIEW MARKER (PAGE #) 48 47 51 49 46 50 42
        
    Diagram Key
          1 Floor Tiles
          Use patterned floor tile to provide interest and ground the market when the guests are not present so that the space never feels empty. Tables
          Utilize the curves on the mobile tables to soften the overall aesthetic. Vary heights to create hierarchy and keep the base open to allow maximum visibility into the market.
          Market Signage Section
          Use an optional blade sign at the market corner when needed to maximize the visibility of the market from the main hotel circulation paths.
          Wall Decor Section
          Use narrative-driven artwork or material with dimension and texture at the coffee wall to create an attention grabbing backdrop to the market.
          Use minimalistic architectural lighting to keep products as the focal point.
          Thoughtfully use millwork to surround equipment and make these items feel integrated into the overall design.
          49 F&B RETAIL PLAYBOOK FULL-SIZE MARKET 395 SQ. FT. WITH ADJACENT 50 SQ. FT. STORAGE SPACE Entry View 6 5 1 2 3 4
        2 Lighting
        3
        4
        Millwork
        6
        5
        
    Diagram Key 1 Refuse Bins
          Conceal trash and recycling bins under the counter. Locate countertop openings tightly to the microwave to maximize counter space available for coffee condiments and retail.
          Finish
          Use color on the undercounter cabinets to add visual interest. Balance addition of color with patterns and textures used throughout the market.
          Retail Risers
          Use risers at the rear of the coffee counter for the additional coffee program, products, and narrative driven product display.
          Soffit Finish at Perimeter
          Use a textured finish that adds warmth and interest to the market without detracting from the merchandise.
          Millwork Design
          Using strategic millwork design to frame kitchen equipment provides an integrated and sophisticated appearance. Provide a louvered base on the refrigeration to meet the venting requirement. Louver the design to align with the design narrative.
          Shelf Organizers and Lips
          Utilize clear lips at the edge of shelves and acrylic organizers to keep the product display neat and tidy.
          50 F&B RETAIL PLAYBOOK FULL-SIZE MARKET 395 SQ. FT. WITH ADJACENT 50 SQ. FT. STORAGE SPACE Interior View 6 5 1 2 3 4
        2
        3 Cabinet
        4
        6
        5
        Diagram Key
          1
          Utensils at Payment Kiosk
          Integrate utensil dispensers into the lower counter below the transaction surface, which allows guests to conveniently take them as they depart. The millwork panel on the rear of the utensil dispenser should be pulled forward to prevent the collection of utensils and refuse.
          
    2 Alcohol Display Strategies
          Use a variety of display methods for ambient wine to create an elevated display. The top display should highlight wine offerings with labels highly visible. The middle tier should display half bottles. The lower tier should display full wine bottles.
          Lockable Alcohol Display
          Provide lockable, glass pocket doors at the ambient alcohol display. The doors are locked when alcohol is not available. Include signage at doors notifying guests when products are available for purchase.
          51 F&B RETAIL PLAYBOOK FULL-SIZE MARKET 395 SQ. FT. WITH ADJACENT 50 SQ. FT. STORAGE SPACE
        1 2 3
        Interior View
        3
        
              
              
            
            Lighting Design
          Ceiling Height
          The minimum ceiling height for a comfortable retail experience is 8’-0”.
          Color Temperature
          The color temperature of all fixtures and equipment lighting should be between 2700K and 3000K.
          Color Rendering Index
          The CRI of all fixtures should be 90 or higher.
          Circuits
          All circuits should be on dimmers and controlled separately.
          Small Market
          Diagram Key
          1 Recessed Trim Channel System (B, C1, C2)
          Illuminates coffee program and ambient retail displays
          Use component fixtures to illuminate the dry goods, ambient alcohol, and coffee program. The beam angle is adjustable in the field (15-50 degree range).
          Medium Market
          A minimum 1/2” regress should be used. Use between 400 and 600 lumens per linear foot. The wall wash should be optic and asymmetric. 2
          Recessed Perimeter Wall Wash with Regressed Lens (E)
          Grazes featured wall finishes
          Recessed Adjustable Downlights (A)
          General illumination and highlighting of freestanding merchandise
          Use a wide flood light (40 degree). Use 15W fitting if no glare accessories are used. Use 23W fitting if the hex cell louvers or similar glare control accessories are used. Angle fixtures should be used as needed to illuminate mobile freestanding merchandise below.
          Tape Light Under Countertop Edge (D)
          Illuminates Health & Beauty drawers
          Use 200 or 300 lumens per linear foot with a 120 degree spread. Identify the location for the remote driver to ensure access is provided.
          52 F&B RETAIL PLAYBOOK FULL-SIZE MARKET 395 SQ. FT. WITH ADJACENT 50 SQ. FT. STORAGE SPACE
        3
        4
        rch tecture + des gn, nc ns n ave nw su e 405 n dc 20007 16 coredc com @coredc 22028 Test Fit RCPs Hi on Wordwide, Inc Hi ton Market ©2022 CORE a ch ectu e + des gn nc Pro ec Number Pr n ed 3 24 23 SD.9 A A A A A A E E 4050 O C T Y P 4 -0" - 5 -0" OC TYP 18"-30" TYP 18"-30" TYP 1 83 0 T Y P 8 -0 M N 7 -0" 7 -0 7 -0 B B C1 C2 C2 D C1 BLADE S GN A A A A A A E E A A 4 -0" - 5 -0" O C TYP 40 "50 " O C T Y P 18"-30" TYP 1 83 0 T Y P 18 -30" TYP 8 -0 M N 7 -0" 7 -0" 7 -0" B C1 C2 B C1 D BLADE S GN Scale: 1/4" = 1 -0" 1
        Sca e: 1/4" = 1 -0" 2
        SMALL MARKET L GHTING FIXTURES: TYPE B STEALTH WALL WASH TYPE C: STEALTH S LO TYPE C1 STEALTH S LO DOWNLIGHT) MEDIUM MARKET L GHT F XTURES: TYPE D: STEALTH WALL WASH TYPE C: STEALTH S LO TYPE C1 STEALTH S LO DOWNLIGHT RCP 1 2 3 4
        
              
              
            
            Architectural Lighting
          Basis of Design
          These fixtures are intended as a basis of design. Specify fixtures to meet the budget and design needs of each property.
          Diagram Key
          Type C1 - WAC Strut Stealth Silo - Angled
          
    Type B - WAC Strut Stealth
          
    
    Type D - Kelvix
          
    
    
    53 F&B RETAIL PLAYBOOK FULL-SIZE MARKET 395 SQ. FT. WITH ADJACENT 50 SQ. FT. STORAGE SPACE
        Type
        VIA 3 Recessed
        Wall Wash w/
        Lens
        E - Lumenwerx
        Perimeter
        Regressed
        Type C2 - WAC Strut Stealth Silo - Downlight
        Wall Wash
        Type A - WAC Volta 4.5” Adjustable Downlight 4 6 5
        Uniform Static White (Indoor) Tape Light w/ mounting channel CH-013-C mounted under countertop edge to illuminate drawers
        1 3 2 CORE arch ec u e + des gn nc 1 10 w c ns n a e w s e 05 wa h g o d 20 07 2 2 4 6 6 16 o ed om @c ed 2028 Test Fit RCPs H on Wo dw de Inc H on Ma ket ©202 CORE a h ec e + e gn n P e Numbe P n d 3 24 3 SD.9 A A A A A A E E 4050 O C T Y P 4 -0 - 5 -0 O Y 18 -30 T P 8 -30 Y 1 83 0 T Y P 8 -0 M 7 -0 7 -0 7 -0 B B C C2 C2 D C1 B ADE S GN A A A A A A E E A A -0 - 5 -0 O T P 4050 18 -30 Y 1 83 0 T Y P 18 -30 T P 8 -0 N 7 -0 7 -0 7 -0 B C1 C2 B C1 D BL DE S GN Sca e: 1 4" = 1 -0 1 Small Market Sca e 1 4" = 1 -0 2 Medium Market SMA L MARKET L GHT NG F XTURES TYPE B STEALTH WALL WASH TYPE C STEALTH S LO TYPE C STEALTH S LO DOWNL GHT MED UM MARKET L GHT F XTURES TYPE D STEALTH WALL WASH TYPE C STEALTH S LO TYPE C STEALTH S LO DOWNL GHT 6 5 1 2 3 4
        RCP
        
              
              
            
            Entry Elevation
          Elevation: Market Entry
          Diagram Key
          1 Freestanding Merchandise
          Vary the heights of the FF&E tables and nest them to maximize the display space. Balance the density of fixtures and visibility into the market.
          Prominent Coffee Wall
          Use narrative-driven artwork or finish material with dimension and texture at the coffee wall as it acts as primary signage element.
          Use a sign at the corner as it captures the attention of guests in main hotel lobby circulation.
          The wall finish at market exterior should align with the property design narrative. A subtle finish allows the market beyond to be the focal point.
          54 F&B RETAIL PLAYBOOK FULL-SIZE MARKET 395 SQ. FT. WITH ADJACENT 50 SQ. FT. STORAGE SPACE
        C O R E a r c h t e c t u r e + d e s i g n n c 1 0 1 0 w s c o n s n a v e n w s u e 4 0 5 h g d 2 0 0 0 7 2 0 2 4 6 6 6 1 1 6 c o r e d c c o m @ c o e d c 2 2 0 2 E l e v a t i o n sM e d i u m M a r k e t H t o n W o r d w i d e n c H i t o n M a r k e t © 2 0 2 2 C O R E a c h e c u e d e s g n n c P r o e c t N u m b e r P r n e d 3 / 2 4 2 1 1 Sca e: 1 2 = 1 -0" 1 Exterior Elevation 1 2 3 4
        2 Blade
        Sign
        3 Market Exterior
        4
        
              
              
            
            Coffee Counter
          Elevation
          Elevation: Coffee Counter
          Diagram Key
          1 Microwave
          Locate the microwave under the counter to free up counter space. Elevate the equipment as close to the countertop above to maintain comfortable operating height.
          Retail at Coffee
          Display complimentary retail such as simple, organized tea caddies above the cup dispensers to facilitate guest browsing.
          Display ambient drinks and dry goods that compliment adjacent refrigerated items. 2
          Complimentary Displays
          Prominent Coffee Wall
          Use narrative-driven artwork or finish material with dimension and texture at the coffee wall, as it acts as the primary signage element.
          Cup Dispensers
          Incorporate the cup dispensers into millwork above the counter. Set back the cup dispensers from the counter edge to prevent cups from protruding into the guest path. Use one size cup for hot and cold beverages.
          Countertop
          The finish material should be durable, while also thoughtful and elevated in appearance to create a premium coffee experience. Consider using a darker finish to conceal coffee stains, if appropriate for the design narrative.
          55 F&B RETAIL PLAYBOOK FULL-SIZE MARKET 395 SQ. FT. WITH ADJACENT 50 SQ. FT. STORAGE SPACE
        C O R E a r c h i t e c t u r e + d e s g n i n c 1 0 1 0 w s c o n s n a v e n w s u t e 4 0 5 w a s h n g t o n d c 2 0 0 0 7 2 0 2 4 6 6 6 1 1 6 c o r e d c c o m @ c o r e d c 2 2 0 2 8 E l e v a t i o n sM e d i u m M a r k e t H i t o n W o r d w i d e I n c H i l t o n M a r k e t © 2 0 2 2 C O R E a r c h e c t u e + d e s g n n c P r o e c N u m b e r P r n e d 3 2 4 / 2 3 9 21 0 A D A C O U N T E R H T 6 -6" 4 -0" M N 21 0 A D A C O U N T E R H T Sca e: 1 2" = 1 -0" 1 Coffee Counter Elevation Sca e: 1 2" = 1 -0" 2 Frozen and Alcohol Elevation 6 5 1 2 3 4
        3
        6
        5
        4
        Dry Goods and Health & Beauty
          Elevate Retail Display
          Elevate the display a minimum height of 10” from the finished floor for a better perception of cleanliness and to optimize visibility of these products.
          The optimal depth of dry goods shelves is 11” to 12” deep. The height between shelves should be kept to 12” maximum to prevent the addition of merchandisers.
          Dry Goods and Health & Beauty Retail
          The adjustable shelving allows for dynamic and flexible displays. Utilize angled shelves where appropriate for retail strategy.
          Health & Beauty Drawers
          The glass fronts for drawers maximize product visibility. The drawer front should have an opening approximately 1/4 of the overall drawer height for added visibility.
          56 F&B RETAIL PLAYBOOK FULL-SIZE MARKET 395 SQ. FT. WITH ADJACENT 50 SQ. FT. STORAGE SPACE
        1 0 " M I N 3 '0 " 5 '6 " P R I M A R Y B R O W S I N G Z O N E Sca e: 1 2" = 1 -0" 1 Dry Goods Elevation 1 2 3 4
        4
        Elevation
        Diagram Key
        1
        Dry
        Goods Display Dimensions
        2 Dry Goods Display Strategies
        3 Elevation:
        
              
              
            
            Payment Kiosk & Retail Elevation
          
    Elevate the alcohol refrigerator to achieve one datum line above that is consistent with the double-door refrigerator.
          Elevate the freezer to provide a more premium browsing experience with complimentary products displayed above and below.
          Elevation: Payment Kiosk and Retail
          a wall finish that creates a clear, designated area for guests to intuitively guide them through the market to the payment area.
          Refrigeration
          Use (2) 3’-0” wide double-door refrigerators.
          57 F&B RETAIL PLAYBOOK FULL-SIZE MARKET 395 SQ. FT. WITH ADJACENT 50 SQ. FT. STORAGE SPACE
        C O R E a r c h t e c t u r e + d e s g n i n c 1 0 1 0 w s c o n s n a v e n w s u e 4 0 5 a s h n g t o n d c 2 0 0 0 7 2 0 2 4 6 6 6 1 1 6 c o r e d c c o m @ c o r e d c E l e v a t i o n sM e d i u m M a r k e t H l t o n W o r d w i d e I n c H i t o n M a r k e t 21 0 A D A C O U N T E R H T 21 0 A D A C O U N T E R H T Sca e 1 2 = 1 -0 1 Coffee Counter Elevation Sca e 1 2 = 1 -0 2 Frozen and Alcohol Elevation 6 5 1 2 3 4 7 Diagram
        1 Bag Display Create
        Payment Kiosk Aures Mini Komet 2 Feature Wall Finish
        3 Premium Product Display
        4 Alcohol Display
        Key
        a niche below the counter to store bags that guests can easily access during their transaction process.
        Use
        Display premium products adjacent to the payment kiosk where guests will queue.
        5 Frozen Desserts
        6
        7
        
    Elevation: Payment Kiosk and Retail
          
    1/2" = 1'-0" E l e v a t i on 1 - a
          EQUIPMENT ELEVATIONS
          SCALE AS NOTED
          Elevation: Coffee Counter
          58 F&B RETAIL PLAYBOOK FULL-SIZE MARKET 395 SQ. FT. WITH ADJACENT 50 SQ. FT. STORAGE SPACE
        Food Service
        H I L T O N M A R K E T
        Equipment Elevations
        
              
              
            
            Kitchen Plans & Equipment Schedule
          
    Equipment Floor Plan
          59 F&B RETAIL PLAYBOOK FULL-SIZE MARKET 395 SQ. FT. WITH ADJACENT 50 SQ. FT. STORAGE SPACE
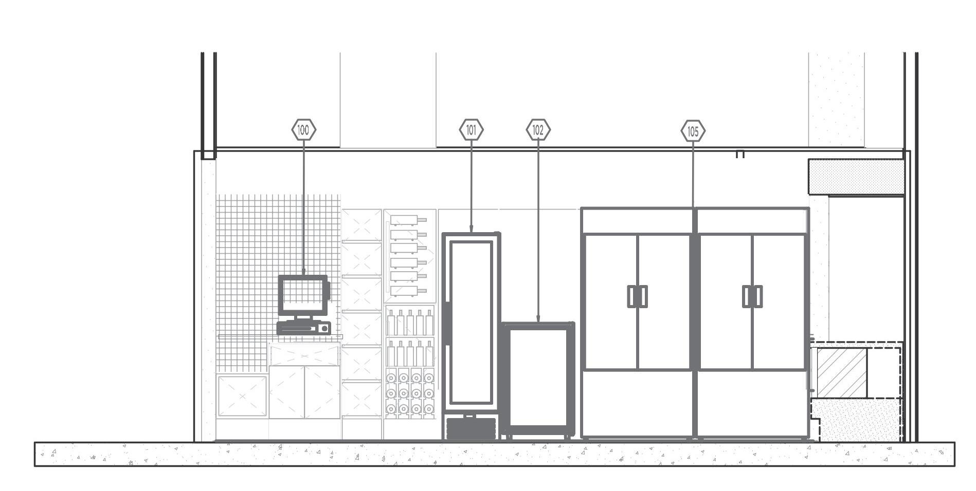
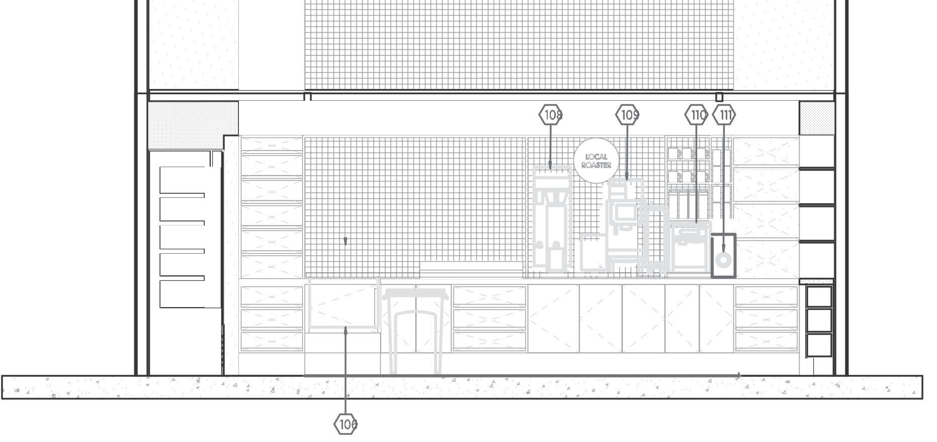
        100 101 102 105 106 108 109 110 111 PAYMENT KIOSK DRY GOODS BEVERAGE CONDIMENT & TRASH DRY GOODS GRAB & GO DRY GOODS FREESTANDING MERCH DATE: SCALE: SHEET #: PROJECT NAME: PROJECT #: DRAWN: 1/4" = 1'-0" FS-1 FS 101-E Q H
        FLOOR PLAN 1/4" = 1'-0" MEDIUM MARKET Kitchen
        Item Qty. Source Description
        EQUIPMENT
        
    Entry and Interior Views 65 Design Fundamentals 64 Planning Fundamentals 61 Staffed Market Elevations Lighting 70 72 Kitchen Plans & Equipment Schedule Food Service Equipment Elevations 82 79
        
              
              
            
            Staffed Market
          
              
              
            
            Planning Fundamentals
          The subsequent pages provide detailed guidance around planning fundamentals by each area of the space, as detailed in the diagram to the right.
          The size of the full-size market is 860 sq. ft. with an adjacent 200 sq. ft. back of house kitchen space.
          
    61 F&B RETAIL PLAYBOOK STAFFED MARKET 860 SQ. FT. WITH ADJACENT 200 SQ. FT. BOH KITCHEN S I G N A G E COFFEE + ESPRESSO STAT ON FREESTAND NG MERCH COFFEE + ESPRESSO STAT ON COND MENTS + TRASH BOH K TCHEN PAYMENT K OSK DRY GOODS FROZEN ALC REFR GERATOR DRY GOODS HEALTH & BEAUTY 8 1 2 4 3 9 5 6 7 10 LEGEND
        HILTON
        UPDATE
        TO
        GRAPHICS
        
    Coffee & Espresso
          The Coffee & Espresso counter is the focal point, conveying a premium food and beverage experience. Locate the dry goods and refrigerated display along the queuing area to maximize guest browsing. Create an intuitive guest flow for the coffee program by locating the coffee pickup, condiments, and refuse adjacent to the counter.
          
    Alcohol
          Co-locate refrigerated and ambient alcohol displays with frozen desserts. Alcohol displays need to be adjacent to the entry and front desk so that team members can monitor these items and also assist with alcohol purchases.
          Condiments
          Double-sided condiment station with integrated trash and recycling bins maximizes the number of users to keep guests flowing through the space. Condiments should be organized in a thoughtful and elevated manner.
          Premium Items
          Locate premium, impulse items directly adjacent to the payment station.
          
    62 F&B RETAIL PLAYBOOK STAFFED MARKET 860 SQ. FT. WITH ADJACENT 200 SQ. FT. BOH KITCHEN PLANNING FUNDAMENTALS ENTRY DR Y GOODS CONDIMENTS + TRASH ESPRESSO MACHINE CUP DISPENSER
        1 DRY GOODS MIC ROWAVE REFRIGE R A T OR COFFEE + ESPRESSO STATION CONDIMENTS + TRASH
        3 4 ENTRY
        2
        D R Y GOODS P A YMENT KIOSK
        LEGEND HILTON TO UPDATE GRAPHICS
        Self-Payment
          Locate the self-payment station near the entry and front desk, which allows for front desk team members to easily assist.
          Health & Beauty
          Conveniently locate Health & Beauty products at the entry for guests looking for sundry items. This area provides an opportunity to be thoughtful and supportive of the guest experience, while also providing flexibility for the future.
          Signage
          The blade sign should indicate the market location to guests when they are not at the front desk. Additional signage at the coffee counter highlights featured local roasters.
          Freestanding Display
          Utilize freestanding displays at the center of the market to highlight local and healthy premium items and to provide a sense of offering upon arrival.
          Refrigeration
          All refrigerated displays should be adjacent to one another to facilitate guest flow. A wide aisle between the refrigerators and freestanding displays in the center provides ample space for guests to comfortably open refrigerator and freezer doors.
          Kitchen
          Locate the BOH kitchen adjacent to the coffee counter for efficient product replenishment.
          
    63 F&B RETAIL PLAYBOOK STAFFED MARKET 860 SQ. FT. WITH ADJACENT 200 SQ. FT. BOH KITCHEN LEGEND P A YMENT KIOSK
        5
        ENTR Y FREESTANDING MERCHANDISE SIGNAGE 6 FREESTANDING MERCHANDISE
        7 ENTRY HEA L TH & BE A U T Y
        8 9 F R O ZEN REFRIGE R A T OR
        F R O ZEN REFRIGE R A T OR BOH
        10 PLANNING FUNDAMENTALS HILTON TO UPDATE GRAPHICS
        
              
              
            
            Design Fundamentals
          Space Requirements
          The space requirement is 860 sq. ft. for the market and 200 sq. ft. for the supplementary back of house kitchen area. The back of house area will be needed adjacent to the market that includes prep equipment, shelves, and racks for products. See the Kitchen Equipment Schedule and Cutbook.
          Architectural Lighting
          The use of minimalistic architectural lighting keeps the focus on the product display. Lighting design should be used to illuminate key zones and products.
          Millwork Design
          Purposeful millwork should be used throughout to keep display shelves organized and to make food service equipment feel intentional and integrated into the overall design.
          Floor Finish
          The floor finish provides an opportunity to use a pattern that provides visual interest and grounds the market when the guests are not present so that the space never feels empty.
          Featured Finishes
          Products should be the focal point of the market. Neutral finishes serve as the backdrop to the market with key finishes used to highlight the coffee and payment areas.
          Circulation
          Areas that can become congested, including coffee pickup, condiments, and self-pay station should provide generous circulation for multiple users at once.
          64 F&B RETAIL PLAYBOOK STAFFED MARKET 860 SQ. FT. WITH ADJACENT 200 SQ. FT. BOH KITCHEN ELEVATION MARKER (PAGE #) LEGEND # 3D VIEW MARKER (PAGE #)
        Floor Plan: Staffed Market 76 74 72 73 75 67 66 69 68 65 CORE arch tecture + des gn nc 1010 w s ons ave nw s e 405 wa h ng n dc 20 07 202 46 6116 co edc om @co ed 23046 Floor Plan H ton Wo dw de Inc H ton Ma ke ©20 4 CORE a ch ec u e + d s gn nc Pr ec Numbe P n e 4 5 24 PB 2 F O H 859 sq t 40 24 33 -7" 2 41 1 40 27 -0" 41 -5" 9 -3" 7 -0" 5 -0" 6 -0 18 " B O H 201 sq f DRY GOODS PAYMENT K OSK COND MENTS + TRASH 60" REF HEALTH & BEAUTY AND LOCAL 60" REF FOOD CASE B A R I S T A BOH COFFEE PICK-UP 6 SHELVES AT 7 -9 L 4 SHELVES AT 5 -10 L DRY GOODS Proposed Area S W N G G A T E 6 SHELVES AT 1 -5 L Grab and Go Gues s Co fee Gues s FOOD CASE 2 54 " FROZEN ALC 77 78
        Diagram Key
          
    Floor Tiles
          Use patterned floor tile to provide interest and ground the market when the guests are not present so that the space never feels empty.
          Market Signage Section
          Use an optional blade sign at the market corner when needed to maximize the visibility of the market from the main hotel circulation paths.
          Utilize the curves on the mobile tables to soften the overall aesthetic. Vary heights to create hierarchy and keep the base open to allow maximum visibility into the market.
          Wall Decor Section
          Use narrative-driven artwork or material with dimension and texture at the coffee wall to create an attention grabbing backdrop to the market.
          Lighting
          Use minimalistic architectural lighting to keep products as the focal point.
          Millwork
          Thoughtfully use millwork to surround equipment and make these items feel integrated into the overall design.
          65 F&B RETAIL PLAYBOOK STAFFED MARKET 860 SQ. FT. WITH ADJACENT 200 SQ. FT. BOH KITCHEN
        Entry View
        6 5 1 2 3 4
        2
        Tables
        3
        6
        5 1 4
        
              
              
            
            Interior View
          
    Diagram Key
          Millwork
          Utilize a millwork finish at the coffee counter with a visual texture to provide prominence to this area. 1 2 Food
          Display Cases
          Lower the height of the counter at the food display cases to allow guests visibility of feature finish or artwork and team members beyond.
          Coffee Equipment Shield
          Use a semi-transparent finish at the sneezeguard to conceal taller coffee equipment from guests’ view.
          Carry lobby wall finish into the market to create a purposeful transition between the two areas.
          Use narrative-driven artwork or material with dimension and texture at the coffee wall to create an attention grabbing backdrop to the market.
          66 F&B RETAIL PLAYBOOK STAFFED MARKET 860 SQ. FT. WITH ADJACENT 200 SQ. FT. BOH KITCHEN
        Wall
        Decor Section
        5
        3 Exterior Finish Section
        5 1 2 3 4 4
        
              
              
            
            Interior View
          
    Diagram Key
          1 2 Soffit Finish at Perimeter
          Use a textured finish that adds warmth and interest to the market without detracting from the merchandise.
          Shelf Organizers and Lips
          Utilize clear lips at the edge of shelves and acrylic organizers to keep the product display neat and tidy.
          67 F&B RETAIL PLAYBOOK STAFFED MARKET 860 SQ. FT. WITH ADJACENT 200 SQ. FT. BOH KITCHEN
        1 2
        
              
              
            
            Interior View
          
    1 Millwork Design
          Using strategic millwork design to frame kitchen equipment provides an integrated and sophisticated appearance. Provide a louvered base on the refrigeration to meet the venting requirement. Louver the design to align with the design narrative.
          5 Soffit Finish at Perimeter
          Use a textured finish that adds warmth and interest to the market without detracting from the merchandise.
          Refuse Bins
          Conceal trash and recycling bins under the counter.
          Alcohol Display Strategies
          Use a variety of display methods for ambient wine to create an elevated display. The top display should highlight wine offerings with labels highly visible. The middle tier should display half bottles. The lower tier should display full wine bottles.
          Shelf Organizers and Lips
          Utilize clear lips at the edge of shelves and acrylic organizers to keep the product display neat and tidy.
          Utensils at Payment Kiosk
          Integrate utensil dispensers into the lower counter below the transaction surface, which allows guests to conveniently take them as they depart. The millwork pane on the rear of the utensil dispenser should be pulled forward to prevent the collection of utensils and refuse.
          Provide lockable, glass pocket doors at the ambient alcohol display. The doors are locked when alcohol is not available. Include signage at doors notifying guests when products are available for purchase.
          Cabinet Finish
          Use color on the under counter cabinets to add visual interest. Balance the addition of color with patterns and textures used throughout the market.
          68 F&B RETAIL PLAYBOOK STAFFED MARKET 860 SQ. FT. WITH ADJACENT 200 SQ. FT. BOH KITCHEN
        Diagram
        6 7 8 2
        Key
        3 Lockable Alcohol
        Display
        4
        6
        8 7
        5 1 2 3 4
        
              
              
            
            Interior View
          Diagram Key
          
    Market Finish Section
          Carry market wall finish along the exterior of wall to draw attention to the space.
          Condiment Station
          Utilize a millwork finish at the condiment station with a visual texture that matches the coffee counter.
          Coffee Equipment Shield
          Use a semi-transparent finish at the sneezeguard to conceal taller coffee equipment from guests’ view.
          Exterior Finish Section
          Carry lobby wall finish into the market to create a purposeful transition between the two areas.
          Wall Decor Section
          Use narrative-driven artwork or material with dimension and texture at the coffee wall to create an attention grabbing backdrop to the market.
          69 F&B RETAIL PLAYBOOK STAFFED MARKET 860 SQ. FT. WITH ADJACENT 200 SQ. FT. BOH KITCHEN
        3
        1 2 3 4 5 2 1 4 5
        
              
              
            
            Lighting Design
          Ceiling Height
          The recommended ceiling height for a comfortable retail experience is 9’-0”.
          Color Temperature
          The color temperature of all fixtures and equipment lighting should be between 2700K and 3000K.
          Color Rendering Index
          The CRI of all fixtures should be 90 or higher.
          All circuits should be on dimmers and controlled separately.
          Diagram Key
          1 Recessed Trim Channel System (B, C1, C2)
          Illuminates coffee program and ambient retail displays
          Use component fixtures to illuminate the dry goods, ambient alcohol, and coffee program. The beam angle is adjustable in the field (15-50 degree range).
          Recessed Perimeter Wall Wash with Regressed Lens (E)
          Grazes featured wall finishes
          A minimum 1/2” regress should be used. Use between 400 and 600 lumens per linear foot. The wall wash should be optic and asymmetric.
          Recessed Adjustable Downlights (A)
          General illumination and highlighting of freestanding merchandise
          Use a wide flood light (40 degree). Use 15W fitting if no glare accessories are used. Use 23W fitting if the hex cell louvers or similar glare control accessories are used. Angle fixtures should be used as needed to illuminate mobile freestanding merchandise below.
          Tape Light Under Countertop Edge (D)
          Illuminates Health & Beauty drawers
          Use 200 or 300 lumens per linear foot with a 120 degree spread. Identify the location for the remote driver to ensure access is provided.
          70 F&B RETAIL PLAYBOOK STAFFED MARKET 860 SQ. FT. WITH ADJACENT 200 SQ. FT. BOH KITCHEN E A A A A A A A A A A A A A A A A A A A F F F F A A A A E 1 83 0 T Y P 40 "50 " O C T Y P 4 -0 - 5 -0 O C TYP 1 83 0 T Y P 7 -0 7 -0" 9 -0 8 -0 M N C2 B B C1 B L A D E S G N C1 C1 D M E N U O P P O R T U N I T Y
        2
        3
        4
        RCP
        Circuits
        1 2 3 4
        
              
              
            
            Architectural Lighting
          Basis of Design
          These fixtures are intended as a basis of design. Specify fixtures to meet the budget and design needs of each property.
          Diagram Key
          Type C1 - WAC Strut
          Stealth Silo - Angled
          
    Type B - WAC Strut
          Stealth Wall Wash
          
    Type C2 - WAC Strut
          Stealth Silo - Downlight
          
    Type D - Kelvix
          Uniform Static White (Indoor) Tape Light w/ mounting channel CH-013-C mounted under countertop edge to illuminate drawers
          
    Type E - Lumenwerx VIA
          
    Type A - WAC
          
    71 F&B RETAIL PLAYBOOK STAFFED MARKET 860 SQ. FT. WITH ADJACENT 200 SQ. FT. BOH KITCHEN C O R E a r c h e c u e d e s g n n c a h n g o n d 2 0 0 0 7 2 0 2 4 6 6 6 1 1 6 d @ d R C P H W d d I H i o n M a r k e P P E A A A A A A A A A A A A A A A A A A A F F F F A A A A E 1 83 0 Y P 4050 O C Y P 4 -0 -1 83 0 T P 7 -08 -0 M C B B C1 S G N C1 C D M E N U O P P O R T U N T Y
        3
        Wall
        Lens
        Recessed Perimeter
        Wash w/ Regressed
        Volta
        Adjustable Downlight
        6 5
        4.5”
        4
        1 3 2 6 5 3
        RCP 2 4 1
        
              
              
            
            Entry Elevation
          Diagram Key
          Freestanding Merchandise
          Vary the heights of the FF&E tables and nest them to maximize the display space. Balance the density of fixtures and visibility into the market.
          Prominent Coffee Wall
          Use narrative-driven artwork or finish material with dimension and texture at the coffee wall as it acts as primary signage element.
          Use a sign at the corner as it captures the attention of guests in main hotel lobby circulation.
          The wall finish at the market exterior should align with the property design narrative. A subtle finish allows the market beyond to be the focal point.
          72 F&B RETAIL PLAYBOOK STAFFED MARKET 860 SQ. FT. WITH ADJACENT 200 SQ. FT. BOH KITCHEN 1 0 M I N 21 0 " A D A C O U N T E R H T 18 24 " 21 0 120" M N SEE EQU P SCHED + CUTBOOK NITY 30 36 8 40 23 21 0 A D A C O U N T E R H T hol and Payment Kiosks Sca e 1/2 = 1 -0 2 Elevation @ Front Entry Sca e 1/2" 1 -0" 4 Elevation @ Side Entry Elevation: Market Entry
        1 2 3 4
        2
        Blade Sign
        3 Market Exterior
        4 1
        
              
              
            
            Coffee Counter
          Elevation
          Diagram Key
          1 Millwork
          Utilize a millwork finish at the coffee counter with a visual texture to provide prominence to this area.
          Food Display Cases
          Lower the height of the counter at the food display cases to allow guests visibility of feature finish or artwork and team members beyond.
          Prominent Coffee Wall
          Use narrative-driven artwork or finish material with dimension and texture at the coffee wall, as it acts as the primary signage element.
          Countertop
          The finish material should be durable, while also thoughtful and elevated in appearance to create a premium coffee experience. Consider using a darker finish to conceal coffee stains, if appropriate for the design narrative.
          Coffee Equipment Shield
          Use a semi-transparent finish at the sneezeguard to conceal taller coffee equipment from guests’ view.
          Exterior Finish Section
          Carry lobby wall finish into the market to create a purposeful transition between the two areas.
          Team Member Swing Door
          The team member swing door should have a consistent millwork finish with the adjacent front coffee counter. The use of an integral base aligns further aligns the adjacent finishes.
          73 F&B RETAIL PLAYBOOK STAFFED MARKET 860 SQ. FT. WITH ADJACENT 200 SQ. FT. BOH KITCHEN
        6
        5
        3 1 0 M N 1 0 M N 56 30 " 1 " T Y P 10 T Y P 120" M N SEE EQU P SCHED CUTBOOK P R M A R Y B R O W S I N G Z O N E MENU OPPORTUN TY 30 36 8 40 23 " Sca e 1 2" = 1 -0 1 Elevation @ Condiments, Frozen, Alcohol and Payment Kiosks Sca e 1 2" = 1 -0 2 Elevation @ Front Sca e 1 2" 1 -0 5 Elevation
        Dry Goods,
        Sca e 1 2 = 1 -0 3 Elevation @ Counter 4 Elevation: Coffee Counter 5 4 3
        @ Refrigeration,
        and Health & Beauty
        2
        4 1 2 6 7
        7
        
              
              
            
            Dry Goods, Health & Beauty, and Refrigeration
          Elevation
          1 Elevate Retail Display
          Elevate the display a minimum height of 10” from the finished floor for a better perception of cleanliness and to optimize visibility of these products.
          Dry Goods Display Dimensions
          The optimal depth of dry goods shelves is 11” to 12” deep. The height between shelves should be kept to 12” maximum to prevent the addition of merchandisers.
          Dry Goods Display Strategies
          The adjustable shelving allows for dynamic and flexible displays. Utilize angled shelves where appropriate for retail strategy.
          4 Health & Beauty Drawers
          The glass fronts for drawers maximize product visibility. The drawer front should have an opening approximately 1/4 of the overall drawer height for added visibility.
          Use (2) 5’-0” wide double-door refrigerators.
          74 F&B RETAIL PLAYBOOK STAFFED MARKET 860 SQ. FT. WITH ADJACENT 200 SQ. FT. BOH KITCHEN
        2
        3 CORE arch tecture + des gn, nc 1010 w scons n ave nw su e 405 wash ngton dc 20007 202 466 6116 coredc com @coredc Elevations H lton Worldw de, Inc Hilton Market 1 0 M N 56 30 " 1 T Y P 10 T Y P 120 M N SE EQU SCHE + UTBOOK P R M A R Y B R O W S N G Z O N E BOH K TCHEN 30 36 8 " 40 " 23 Sca e 1 2 1 -0 5 E evation @ Refrigeration, Dry Goods, and Health & Beauty Sca e 1 2 1 -0 3 E evation @ Counter S a e 1 2 1 -0 4 Elevation @ Side Entry Sca e 1 2 1 -0 7 Front Counter - Rear Elevation Elevation:
        5
        Dry Goods and Health & Beauty Retail
        Refrigeration
        3 4 1 5
        2
        Diagram Key
        
              
              
            
            Refrigeration, Dry Goods, and Health & Beauty
          
    Display
          Create a niche below the counter to store bags that guests can easily access during their transaction process.
          Payment Kiosk
          Aures Mini Komet
          Display
          Elevate the alcohol refrigerator to achieve one datum line above that is consistent with the double-door refrigerator.
          Elevate the freezer to provide a more premium browsing experience with complimentary products displayed above and below.
          Feature Wall Finish
          Use a wall finish that creates a clear, designated area for guests to intuitively guide them through the market to the payment area. Premium Product Display
          Display premium products adjacent to the payment kiosk where guests will queue.
          75 F&B RETAIL PLAYBOOK STAFFED MARKET 860 SQ. FT. WITH ADJACENT 200 SQ. FT. BOH KITCHEN Elevation: Refrigeration, Dry Goods, and Health & Beauty 1 2 3 6 -0 1 0 M I N 21 0 A D A C O U N T E R H T 21 0 A D A C O U N T E R H T 120" M N SEE EQU P SCHED + CUTBOOK MENU OPPORTUN TY 30 36 8 40 23 " Sca e 1 2 = 1 -0 1 Elevation @ Condiments, Frozen, Alcohol and Payment Kiosks Sca e: 1 2 = 1 -0 2 Elevation @ Front Entry Sca e 1 2 = 1 -0 3 Elevation @ Counter Sca e: 1 4 Elev
        Bag
        Elevation
        Alcohol
        6 Frozen Desserts
        5 6
        4 2 3 1 5 4
        Diagram Key
        
              
              
            
            Side Entry
          Elevation
          Diagram Key Market Finish Section
          Utilize a millwork finish at the coffee counter with a visual texture to provide prominence to this area.
          Coffee Equipment Shield
          Use a semi-transparent finish at the sneezeguard to conceal taller coffee equipment from guests’ view. Millwork
          Carry market finish along extension of wall to draw attention to the space.
          76 F&B RETAIL PLAYBOOK STAFFED MARKET 860 SQ. FT. WITH ADJACENT 200 SQ. FT. BOH KITCHEN
        23046 Elevations H l on Wor dwide Inc Hilton Market ©2024 CORE a ch tec u e + des gn nc Pro ect Number Pr n ed 4 12 24 PB.4 1 0 M N 21 0 A D A C O U N T E R H T 18 24 21 0 56 30 120 M S E QU CHE CU BO K P R M A R Y B R O W S N G Z O N E BOH K TCHEN 30 36 8 21 0 36 36 yment Kiosks S a 1 2 -0 2 Elevation @ Front Entry & Beauty Sca e 1 2 1 - 4 E evation @ Side Entry Sc e 2 1 -0 6 Back Counter E evation S a e 1 2 1 -0 Front Counter - Rear Elevation Elevation: Side Entry 2 1 3
        2 3 1 1
        
              
              
            
            Back Counter
          The finish material should be durable while also thoughtful and elevated in appearance to create a premium coffee experience. Consider using a darker finish to conceal coffee stains if appropriate for the design narrative.
          Under Counter Millwork
          Digital menu board allows for flexibility. Coordinate screen size with equipment below.
          77 F&B RETAIL PLAYBOOK STAFFED MARKET 860 SQ. FT. WITH ADJACENT 200 SQ. FT. BOH KITCHEN
        Menu
        Elevation
        Board
        4
        3 Countertop
        Utilize a durable neutral plastic laminate finish for under counter millwork. 23046 Elevations H lton Worldwide, Inc. Hilton Market ©2024 CORE arch tecture + design inc Pro ect Number Printed 4/12/24 PB.4 BOH K TCHEN 36 Sca e 1 2" = 1 -0" 4 Elevation @ Side Entry Sca e: 1 2 = 1 -0 6 Back Counter Elevation Elevation: Back Counter 1 2 3 5 Market and Lobby Transition Consider purposeful transition between market and lobby wall finishes. 2 Wall Tile Section Carry wall tile behind under counter equipment. 1 5 Diagram Key 4
        
              
              
            
            Front Counter
          
              
              
            
            Rear Elevation
          78 F&B RETAIL PLAYBOOK STAFFED MARKET 860 SQ. FT. WITH ADJACENT 200 SQ. FT. BOH KITCHEN CORE architecture + design, inc 1010 wisconsin ave nw, sui e 405 wash ngton, dc 20007 202 466 6116 coredc com @coredc
        Elevations H lton Worldwide, Inc.
        1 Sca e 1 2" = 1 -0 5 Elevation @ Refrigeration, Dry Goods, and Health & Beauty Sca e: 1 2 = 1 -0 7 Front Counter - Rear Elevation
        Hilton Market
          a durable plastic laminate in a neutral finish for under counter millwork. Wall Finish Beyond Food Service Equipment Utilize a durable wall finish beyond food service equipment, such as FRP. 2 2 Elevation: Front Counter Rear Diagram Key 1 1
        Under Counter Millwork Utilize
        
              
              
            
            Food Service
          
              
              
            
            Equipment Elevations
          Elevation: Back of House
          EQUIPMENT ELEVATIONS
          Back Counter
          EQUIPMENT ELEVATIONS
          79 F&B RETAIL PLAYBOOK STAFFED MARKET 860 SQ. FT. WITH ADJACENT 200 SQ. FT. BOH KITCHEN
        Elevation:
        1 2 5 6 5.1 8.1 8 9 10 11 15 DATE: SCALE: SHEET #: PROJECT NAME: PROJECT DRAWN: 1/2" = 1'-0" 02/27/24 FS 701-EV EGM H I L T O N S T A F F E D M A R K E T
        1/2"
        BACK - OF - HOUSE 26 25 27 28 29 31 32 35 31 DATE: SCALE: SHEET #: PROJECT NAME: PROJECT #: DRAWN: 1/2" = 1'-0" 02/27/24 FS 702-EV EGM H I L T O N S T A F F E D M A R K E T
        SCALE AS NOTED
        = 1'-0"
        SCALE AS NOTED 1/2" = 1'-0" BACK BAR1
        
              
              
            
            Food Service
          
              
              
            
            Equipment Elevations
          Elevation: Front Counter-Rear
          EQUIPMENT ELEVATIONS
          SCALE AS NOTED 1/2" = 1'-0" FRONT BAR
          
    Refrigeration
          80 F&B RETAIL PLAYBOOK STAFFED MARKET 860 SQ. FT. WITH ADJACENT 200 SQ. FT. BOH KITCHEN
        Elevation:
        38 40 42 42 46 47 41 40.1 39 43 43 DATE: SCALE: SHEET #: PROJECT NAME: PROJECT #: DRAWN: 1/2" = 1'-0" 02/27/24 FS 703-EV EGM H I L T O N S T A F F E D M A R K E T
        50 50 DATE: PROJECT NAME: PROJECT #: DRAWN: 02/27/24 EGM H I L T O N S T A F F E D M A R K E T EQUIPMENT ELEVATIONS 1/2" = 1'-0" HEALTH & BEAUTY
        
              
              
            
            Food Service
          
              
              
            
            Equipment Elevations
          
    Elevation: Condiments, Freezer, and Alcohol
          1/2" = 1'-0" PAYMENT KIOSK
          SCALE AS
          81 F&B RETAIL PLAYBOOK STAFFED MARKET 860 SQ. FT. WITH ADJACENT 200 SQ. FT. BOH KITCHEN
        51 52 55 55 53 53 DATE: SCALE: SHEET PROJECT NAME: F EQUIPMENT ELEVATIONS
        NOTED
        
              
              
            
            Kitchen Plans & Equipment Schedule
          
    Qty. Source Description
          11 TRAULSEN REFRIGERATOR, REACH-IN
          21 TRAULSEN FREEZER, REACH-IN
          31 SPARE NUMBERSPARE NUMBER
          41 SPARE NUMBERSPARE NUMBER
          51 HOSHIZAKI ICE MAKER, CUBE-STYLE
          5.11 EVERPURE WATER FILTER ASSEMBLY
          61 FOLLETT ICE BIN FOR ICE MACHINES
          6.11 SAN JAMAR ICE SCOOP HOLDER
          71 IMC TEDDY FLOOR TROUGH
          81 CONTINENTAL REFRIGERATED COUNTER, SANDWICH, SALAD UNIT
          8.11 FABRICATOR WALL SHELF
          91 IMC TEDDY HAND SINK
          (OWN)9.11 BY OWNER SOAP & TOWEL DISPENSER
          101 FABRICATOR THREE COMPARTMENT POT SINK
          111 FABRICATOR WALL SHELF W/ POT RACK
          121 SPARE NUMBERSPARE NUMBER
          131 SPARE NUMBERSPARE NUMBER
          141 SPARE NUMBERSPARE NUMBER
          (OWN)151 ECOLAB DISHWASHER, UNDERCOUNTER
          161 METRO SECURITY UNIT
          172 METRO STEM CASTER CART
          181 SPARE NUMBERSPARE NUMBER
          191 SPARE NUMBERSPARE NUMBER
          201 SPARE NUMBERSPARE NUMBER
          211 SPARE NUMBERSPARE NUMBER
          221 SPARE NUMBERSPARE NUMBER
          231 SPARE NUMBERSPARE NUMBER
          241 SPARE NUMBERSPARE NUMBER
          251 CONTINENTAL REFRIGERATOR, UNDERCOUNTER, REACH-IN.
          261 HATCO TOASTER, POP-UP
          271 TURBOCHEF COMBI-OVEN
          281 BK RESOURCESICE BIN / ICE CADDY, MOBILE (VEND)291 FETCO COFFEE BREWER
          29.11 EVERPURE WATER FILTRATION SYSTEM
          301 FABRICATOR URN TROUGH (VEND)312 FETCO THERMAL DISPENSER
          321 OMNITEMP HAND SINK W/ SOAP & TOWEL DISPENSER
          
              
              
            
            EQUIPMENT SCHEDULE
          331 SPARE NUMBERSPARE NUMBER
          341 SPARE NUMBERSPARE NUMBER
          351 CONTINENTAL REFRIGERATOR, UNDERCOUNTER, REACH-IN.
          361 ESPRESSO PARTSSIDE SPRAY RINSER
          371 FISHER DIPPERWELL
          381 FABRICATOR DUMP SINK
          391 CONTINENTAL REFRIGERATOR, UNDERCOUNTER, REACH-IN. (VEND)401 EVERSYS ESPRESSO CAPPUCCINO MACHINE
          11 TRAULSEN REFRIGERATOR, REACH-IN
          STAFFED MARKETKitchen Equipment Floor Plan
          1/4" = 1'-0"
          TRAULSEN FREEZER, REACH-IN
          SPARE NUMBERSPARE NUMBER
          SPARE NUMBERSPARE
          EQUIPMENT FLOOR PLAN
          SPARE NUMBERSPARE NUMBER
          40.11 EVERPURE WATER FILTER ASSEMBLY
          SAN JAMAR CUP DISPENSERS, IN-COUNTER (OWN)422 BY OWNER POS - CASH REGISTER (OWN)432 BY OWNER POS - PRINTER 441 SPARE NUMBERSPARE NUMBER
          481 SPARE NUMBERSPARE NUMBER 491 SPARE NUMBERSPARE NUMBER
          REACH-IN GLASS SWING
          
    82 F&B RETAIL PLAYBOOK STAFFED MARKET 860 SQ. FT. WITH ADJACENT 200 SQ. FT. BOH KITCHEN
        EQUIPMENT SCHEDULE ***PROCUREMENT (E/M/R)
        (NIKEC) (OTHER) (SMWRS) PR ITEM QTY SOURCE DESCRIPTION
        (E/S/R)
        PR ITE 40.11 411 (OWN)422 (OWN)432 441 451 461STRUCTURAL 471STRUCTURAL 481 491 502 511 521 532 541 (OWN)552 A F F E D M A R K E T
        ***PROCUREMENT LEGEND*** CODE DESCRIPT ON PR ITEM QTY SOURCE DESCRIPTION
        41
        NUMBER 51 HOSHIZAKI ICE MAKER, CUBE-STYLE 5.11 EVERPURE WATER FILTER ASSEMBLY 61 FOLLETT ICE BIN FOR ICE MACHINES 6.11 SAN JAMAR ICE SCOOP HOLDER 71 IMC TEDDY FLOOR TROUGH 81 CONTINENTAL REFRIGERATED COUNTER, SANDWICH, SALAD UNIT 8.11 FABRICATOR WALL SHELF 91 IMC TEDDY HAND SINK (OWN)9.11 BY OWNER SOAP
        DISPENSER 101
        111
        121
        131
        141
        NUMBER (OWN)151 ECOLAB DISHWASHER, UNDERCOUNTER 161 METRO SECURITY UNIT 172 METRO STEM CASTER CART 181 SPARE NUMBERSPARE NUMBER 191 SPARE NUMBERSPARE NUMBER PR ITEM QTY SOURCE DESCRIPTION
        21
        31
        & TOWEL
        FABRICATOR THREE COMPARTMENT POT SINK
        FABRICATOR WALL SHELF W/ POT RACK
        SPARE NUMBERSPARE NUMBER
        SPARE NUMBERSPARE
        451
        461STRUCTURAL
        CASE, NON-REFRIGERATED, SLIDE IN COUNTER 471STRUCTURAL
        CASE, REFRIGERATED, SLIDE IN COUNTER
        411
        SPARE NUMBERSPARE NUMBER
        CONCEPTSDISPLAY
        CONCEPTSDISPLAY
        DOOR REFRIGERATOR 532 FABRICATOR KNOCK BOX 541 SPARE NUMBERSPARE NUMBER (OWN)552 BY OWNER POS - PRE CHECK REGISTER Item
        BARISTA COFFEE PICK-UP SWING GATE CONDIMENTS + TRASH FROZEN ALC. DRY GOODS PAYMENT KIOSK HEALTH & BEAUTY AND LOCAL DRY GOODS FREESTANDING MERCH R F ICE 500 LBS DW R R R R R R 55 55 52 51 AMBIENT R 50 50 47 46 43 42 43 42 41 40.1 40 39 38 37 36 25 27 26 28 29 30 31 35 32 29.1 1 2 5 6 7 5.1 8 9 10 11 15 16 17 8.1 FS 701EV 1 FS 703EV 1 FS 704EV FS 705EV 1 TC 53 FS 702EV 1 DATE: SCALE: SHEET #: PROJECT NAME: PROJECT #: DRAWN: 1/4" = 1'-0" 02/28/24 FS 101-EQ EGM H I L T O N S T A F F E D M A R K E T
        502 GTI MERCHANDISER, GRAB & GO 511 TRUE REFRIGERATOR, MERCHANDISER, COUNTERTOP 521 TRUE
        This playbook is intended to be a guideline only, for the implementation of individual designs specific to a property. User accepts responsibility to identify and make all required revisions or corrections necessary for the specific site. All changes, revisions and the development of the subsequent plans will be the “User’s” responsibility. By acceptance of this electronic media and the files it contains, the user agrees, to the fullest extent of the law; to indemnify and hold CORE architecture + design, inc. harmless from any damage, liability or cost, including but not limited to reasonable attorney’s fees and cost of defense; arising from any inferences made from these files or from any reuse of the files and data.
          
    $2,565.50
          $11,618.61
          $99,700.78
          Acceptance: Date: Printed Name: 03/03/2023 Budget (NOT A BID DOCUMENT) Project: Hilton Market Prototype ‐ Medium Item Qty Description Sell Total 100 1 ea POS ‐ CASH REGISTER <By Owner> 101 1 ea REACH‐IN REFRIGERATOR $5,694.15 102 1 ea COUNTER FREEZER $5,938.85 103 1 ea SPARE NUMBER <Spare> 104 1 ea SPARE NUMBER <Spare> 105 2 ea REFRIGERATED MERCHANDISER $25,273.80 106 1 ea MICROWAVE OVEN $493.05 107 1 ea SPARE NUMBER <Spare> 108 1 ea COFFEE BREWER $1,503.66 109 1 ea ESPRESSO/ COFFEE MAKER $21,214.03 110 1 ea ICE MACHINE & DISPENSER, NUGGET STYLE $5,030.25 111 1 ea DISPOSABLE CUP DISPENSER $98.04 BOH‐1 1 ea REACH‐IN REFRIGERATOR $10,129.70 BOH‐2 1 ea REACH‐IN FREEZER $9,278.12 BOH‐3 1 ea DUNNAGE RACK $170.43 BOH‐4 5 ea SHELVING, WITH METAL FRAME $692.59 Merchandise $85,516.67 Freight
        Installation
        Total
        Project Grand Total: $99,700.78 Sell $5,694.15 $5,938.85 $12,636.90 $493.05 $1,503.66 $21,214.03 $5,030.25 $98.04 $10,129.70 $9,278.12 $170.43 $138.52 Hilton Market Prototype ‐ Medium Ini al: ______ Page 1 of 1
        
    $10,412.93
          $88,343.96
          Acceptance: Date: Printed Name: 03/03/2023 Budget (NOT A BID DOCUMENT) Project: Hilton Market Prototype ‐ Small Item Qty Description Sell Total 1 1 ea POS ‐ CASH REGISTER <By Owner> 2 1 ea REACH‐IN REFRIGERATOR $5,694.00 3 1 ea SPARE NUMBER <Spare> 4 1 ea SPARE NUMBER <Spare> 5 1 ea COUNTER FREEZER $5,939.00 6 1 ea REFRIGERATED MERCHANDISER $15,415.00 7 1 ea MICROWAVE OVEN $493.00 8 1 ea SPARE NUMBER <Spare> 9 1 ea COFFEE BREWER $1,504.00 10 1 ea ESPRESSO/ COFFEE MAKER $21,214.20 11 1 ea ICE MACHINE & DISPENSER, NUGGET STYLE $5,030.00 12 1 ea DISPOSABLE CUP DISPENSER $98.00 BOH‐1 1 ea REACH‐IN REFRIGERATOR $10,130.00 BOH‐2 1 ea REACH‐IN FREEZER $9,278.00 BOH‐3 1 ea DUNNAGE RACK $170.00 BOH‐4 5 ea SHELVING, WITH METAL FRAME $696.00 Merchandise $75,661.20 Freight
        Installation
        Total
        Project Grand Total: $88,343.96 Sell $5,694.00 $5,939.00 $15,415.00 $493.00 $1,504.00 $21,214.20 $5,030.00 $98.00 $10,130.00 $9,278.00 $170.00 $139.20 Hilton Market Prototype ‐ Small Ini al: ______ Page 1 of 1
        $2,269.83
        
    HILTON MARKET 913 A West Street, Annapolis, Maryland 21401 410.263.1200 www.nextstepdesign.com (NOT FOR BID OR CONSTRUCTION USE) P RELIMINARY FOOD SERVICE EQUIPMENT SPECIFICATIONS FEBRUARY 24, 2023
        (NOT FOR BID OR CONSTRUCTION USE)
          P RELIMINARY FOOD SERVICE EQUIPMENT SPECIFICATIONS
          FEBRUARY 24, 2023
          HILTON
        MARKET
        CONTENTS:
          
              
              
            
            HILTON MARKET
          MINI PLAN VIEWS
          EQUIPMENT SCHEDULE
          MANUFACTURER’S EQUIPMENT SPECIFICATION SHEETS
          100 101 102 105 106 108 109 110 111 PAYMENT KIOSK DRY GOODS BEVERAGE CONDIMENT
        TRASH DRY GOODS
        &
        GRAB & GO DRY GOODS FREESTANDING MERCH
        9 10 11 12 5 2 1 6 FREESTANDING MERCH PAYMENT KIOSK DRY GOODS DRY GOODS GRAB & GO CONDIMENT & TRASH BEVERAGE DRY GOODS HEALTH & BEAUTY 7
        7 9 10 11 12 5 2 1 6 FREESTANDING MERCH DRY GOODS DRY GOODS GRAB & GO BEVERAGE DRY
        HEALTH
        CONDIMENT
        PAYMENT
        GOODS
        & BEAUTY
        & TRASH
        KIOSK
        
              
              
            
            HILTON MARKET
          EQUIPMENT SCHEDULE
          
    02/24/2023 2608 E uipment ist From: NEXT STEP DESIGN uis argas 913 A West St. Annapolis, MD 21401 (410)263‐1200 Project: Hilton Market Prototype Jo e erence Num er: 2450 Item ty De ription 1 1 ea POS ‐ CASH REGISTER 2 1 ea REACH‐IN REFRIGERATOR 3 1 ea SPARE NUMBER <Spare> 4 1 ea SPARE NUMBER <Spare> 5 1 ea COUNTER FREEZER 6 1 ea REFRIGERATED MERCHANDISER 6 1 ea REFRIGERATED MERCHANDISER 7 1 ea MICROWAVE OVEN 8 1 ea SPARE NUMBER <Spare> 9 1 ea COFFEE BREWER 10 1 ea ESPRESSO/ COFFEE MAKER 11 1 ea ICE MACHINE & DISPENSER, NUGGET STYLE 12 1 ea DISPOSABLE CUP DISPENSER 100 1 ea POS ‐ CASH REGISTER 101 1 ea REACH‐IN REFRIGERATOR 102 1 ea COUNTER FREEZER 103 1 ea SPARE NUMBER <Spare> 104 1 ea SPARE NUMBER <Spare> 105 1 ea REFRIGERATED MERCHANDISER 105 2 ea REFRIGERATED MERCHANDISER 106 1 ea MICROWAVE OVEN 107 1 ea SPARE NUMBER <Spare> 108 1 ea COFFEE BREWER 109 1 ea ESPRESSO/ COFFEE MAKER 110 1 ea ICE MACHINE & DISPENSER, NUGGET STYLE 111 1 ea DISPOSABLE CUP DISPENSER Hilton Market Prototype Page 1 of 2
        BOH‐1 1 ea REACH‐IN REFRIGERATOR
          BOH‐2 1 ea REACH‐IN FREEZER
          BOH‐3 1 ea DUNNAGE RACK
          BOH‐4 5 ea SHELVING, WITH METAL FRAME
          Item ty De ription
        NE T STEP DESIGN 02/24/2023 Hilton Market Prototype Page 2 of 2
        
              
              
            
            HILTON MARKET
          MANUFACTURER’S EQUIPMENT SPECIFICATION SHEETS
          T H I S I T E M I S : P O S- C A S H R E G I ST E R SP A R E N U M B E R M I L L W O R K C U ST O M F A B RI C A T E D / N S F E X I ST I N G W H E R E S H O W N R E L O C A T E D M O D I F I E D N . I . K . E . C . B Y : O W N E R S U P P L I E R / V E N D O R O T H E RS R E M A R K S : Own CASH Item 1 Hilton Market Prototype NEXT STEP DESIGN Page: 1
        Project Name: Location:
          2001 East Terra Lane • O’Fallon, Missouri 63366-4434 • (636)240-2400
          Fax (636)272-2408 • Toll Free (800)325-6152 • Intl Fax# (001)636-272-7546
          Parts Dept. (800)424-TRUE • Parts Dept. Fax# (636)272-9471 • www.truemfg.com
          Model:
          T-Series®:
          
    ROUGH-IN DATA
          T-11G-HC~FGD01
           True’s glass door reach-in’s are designed with enduring quality that protects your long term investment.
           Designed using the highest quality materials and components to provide the user with colder product temperatures, lower utility costs, exceptional food safety and the best value in today’s food service marketplace.
           Factory engineered, self-contained, capillary tube system using environmentally friendly R290 hydro carbon refrigerant that has zero (0) ozone depletion potential (ODP), & three (3) global warming potential (GWP).
           High capacity, factory balanced refrigeration system that maintains cabinet temperatures of 33°F to 38°F (.5°C to 3.3°C) for the best in food preservation.
           Stainless steel front. The nest stainless available with higher tensile strength for fewer dents and scratches.
           Energy e cient, “Low-E”, double pane thermal glass door.
           LED interior lighting provides more even lighting throughout the cabinet. Safety shielded.
           Adjustable, heavy duty PVC coated shelves.
           Positive seal self-closing door. Lifetime guaranteed door hinges and torsion type closure system.
          Bottom mounted units feature:
           ”No stoop” lower shelf.
           Storage on top of cabinet.
           Compressor performs in coolest, most grease free area of kitchen.
           Easily accessible condenser coil for cleaning.
          Speci cations subject to change without notice. Chart dimensions rounded up to the nearest 1 8" (millimeters rounded up to next whole number).
          † Depth does not include 1 5⁄8 " (42 mm) for door handle. † Depth does not include 1" (26mm) for rear bumper.
          * Height does not include ½ " (13mm) for castors.
          
    Item #: Qty: Model #: AIA # SIS # TRUE MANUFACTURING CO., INC. U.S.A. FOODSERVICE DIVISION
        Printed in U.S.A. APPROVALS: AVAILABLE AT: 7/20
        T-11G-HC~FGD01
        Glass Swing Door Refrigerator with Hydrocarbon Refrigerant~Framed Glass Door Version 01
        Reach-In
        Model Doors Shelves Cabinet Dimensions (inches) (mm) HP Voltage Amps NEMA Config. Cord Length (total ft.) (total m) Crated Weight (lbs.) (kg) W D† H* T-11G-HC~FGD01 1 3 19 ¼ 21 ¼ 70 3⁄8 1⁄10 115/60/1 1.6 5-15P 9 220 487 539 1786 1⁄10 220-240V/50-60Hz 0.8 2.74 100
        INNOVATION MADE WITH IN THE USA True M g. ‐ General Foodser ice T‐11G‐HC FGD01 Item 2 Hilton Market Prototype NEXT STEP DESIGN Page: 2
        T-Series®:
          DESIGN
          •	 True’s commitment to using the highest quality materials and oversized refrigeration systems provides the user with colder product temperatures, lower utility costs, exceptional food safety and the best value in today’s food service marketplace.
          REFRIGERATION SYSTEM
          •	 Factory engineered, self-contained, capillary tube system using environmentally friendly R290 hydro carbon refrigerant that has zero (0) ozone depletion potential (ODP), & three (3) global warming potential (GWP).
          •	 High capacity, factory balanced refrigeration system that maintains cabinet temperatures of 33°F to 38°F (.5°C to 3.3°C) for the best in food preservation.
          •	 State of the art, electronically commutated evaporator and condenser fan motors. ECM motors operate at higher peak e ciencies and move a more consistent volume of air which produces less heat, reduces energy consumption and provides greater motor reliability.
          •	 Bottom mounted condensing unit positioned for easy maintenance. Compressor runs in coolest and most grease free area of the kitchen. Allows for storage area on top of unit.
          CABINET CONSTRUCTION
          •	 Exterior - Stainless steel front. Anodized quality aluminum ends. Corrosion resistant GalFan coated steel back.
          •	 Interior - attractive, NSF approved, clear coated aluminum liner. Stainless steel oor with coved corners.
          •	 Insulation - entire cabinet structure is foamed-in-place using a high density, polyurethane insulation that has zero ozone depletion potential (ODP) and zero global warming potential (GWP).
          •	 Welded, heavy duty steel frame rail, black powder coated for corrosion protection.
          •	 Base rail tted with leg levelers (legs not available).
          DOOR
          •	 “Low-E”, double pane thermal glass assembly with extruded aluminum frame.
          •	 Door tted with 15" (381 mm) long extruded aluminum handle.
          •	 Positive seal self-closing door. Lifetime guaranteed door hinges and torsion type closure system.
          •	 Magnetic door gasket of one piece construction, removable without tools for ease of cleaning.
          SHELVING
          •	 Three (3) adjustable, heavy duty PVC coated wire shelves 20 13⁄16 "L x 17"D (529 mm x 432 mm). Four (4) chrome plated shelf clips included per shelf.
          •	 Shelf support pilasters made of same material as cabinet interior; shelves are adjustable on ½ " (13 mm) increments.
          LIGHTING
          •	 LED interior lighting provides more even lighting throughout the cabinet. Safety shielded.
          MODEL FEATURES
          •	 Evaporator is epoxy coated to eliminate the potential of corrosion.
          •	 Exterior temperature display on grill.
          •	 NSF/ANSI Standard 7 compliant for open food product.
          ELECTRICAL
          •	 Unit completely pre-wired at factory and ready for nal connection to a 115/60/1 phase, 15 amp dedicated outlet. Cord and plug set included.
          OPTIONAL FEATURES/ACCESSORIES
          Upcharge and lead times may apply.
          ❑ 2 ½ " (64 mm) castors.
          ❑ Additional shelves.
          1/23/20
          METRIC DIMENSIONS ROUNDED UP TO THE NEAREST WHOLE MILLIMETER SPECIFICATIONS SUBJECT TO CHANGE WITHOUT NOTICE
        STANDARD FEATURES Model:
        KCL TRUE MANUFACTURING CO., INC. 2001 East Terra Lane • O’Fallon, Missouri 63366-4434 • (636)240-2400 • Fax (636)272-2408 • Toll Free (800)325-6152 • Intl. Fax# (001)636-272-7546 • www.truemfg.com 70 25/32" 1798mm 70 5/16" 1786mm 19 5/32" 487mm 1/2" 12mm 2" 51mm 1" 26mm 21 3/16" 538mm 23 13/16" 605mm 1 19/32" 41mm 39 3/8" 1000mm 17 1/16" 433mm
        PLAN VIEW
        T-11G-HC~FGD01
        T-11G-HC~FGD01
        Reach-In Glass Swing Door Refrigerator with Hydrocarbon Refrigerant~Framed Glass Door Version 01 Model Elevation Right Plan 3D Back T-11G-HC~FGD01
        (U.S.A. and Canada only) True M g. ‐ General Foodser ice T‐11G‐HC FGD01 Item 2 Hilton Market Prototype NEXT STEP DESIGN Page: 3
        
              
              
            
            THIS ITEM IS: SPARE
          NUMBER
          SPARE NUMBER
          MILLWORK
          CUSTOM FABRICATED/NSF
          EXISTING WHERE SHOWN
          RELOCATED MODIFIED
          N.I.K.E.C. BY: OWNER
          SUPPLIER / VENDOR
          OTHERS
          REMARKS:
          Spare SN Item 3 Hilton Market Prototype NEXT STEP DESIGN Page: 4
        
              
              
            
            THIS ITEM IS: SPARE
          NUMBER
          SPARE NUMBER
          MILLWORK
          CUSTOM FABRICATED/NSF
          EXISTING WHERE SHOWN
          RELOCATED MODIFIED
          N.I.K.E.C. BY: OWNER
          SUPPLIER / VENDOR
          OTHERS
          REMARKS:
          Spare SN Item 4 Hilton Market Prototype NEXT STEP DESIGN Page: 5
        2001 East Terra Lane • O’Fallon, Missouri 63366-4434 • (636)240-2400
          Fax (636)272-2408 • Toll Free (800)325-6152 • Intl Fax# (001)636-272-7546
          Parts Dept. (800)424-TRUE • Parts Dept. Fax# (636)272-9471 • www.truemfg.com
          Model:
          
    Project Name: Location:
          GDM-07F-HC~TSL01
           The world’s #1 manufacturer of glass door merchandisers.
           Designed using the highest quality materials and components to provide the user with an attractive, point of purchase merchandiser that brilliantly displays frozen food and ice cream, resulting in high impulse sales.
           Factory engineered, self-contained, capillary tube system using environmentally friendly R290 hydro carbon refrigerant that has zero (0) ozone depletion potential (ODP), & three (3) global warming potential (GWP).
           High capacity, factory balanced refrigeration system that maintains -10°F (-23.3°C) temperatures. Ideal for both frozen foods and ice cream.
           Exterior - non-peel or chip white powder coated cold rolled steel; durable and permanent.
           Interior - attractive, NSF approved, white aluminum interior liner with stainless steel oor.
           Self closing door. Positive seal, torsion type closure system.
           Triple pane thermal glass door assembly with mitered plastic channel frame.
           LED interior lighting provides more even lighting throughout the cabinet. Safety shielded.
           Entire cabinet structure is foamedin-place using a high density, polyurethane insulation that has zero ozone depletion potential (ODP) and zero global warming potential (GWP).
          ROUGH-IN DATA
          Speci cations subject to change without notice. Chart dimensions rounded up to the nearest 1 8" (millimeters rounded up to next whole number).
          
    Item #: Qty: Model #: AIA # SIS # TRUE MANUFACTURING CO., INC. U.S.A. FOODSERVICE DIVISION
        Printed in U.S.A. APPROVALS: AVAILABLE AT: GDM-07F-HC~TSL01
        Swing Door Freezer with Hydrocarbon Refrigerant~True Standard Look Version 01
        Glass Door Merchandiser:
        Model Doors Shelves Cabinet Dimensions (inches) (mm) HP Voltage Amps NEMA Config. Cord Length (total ft.) (total m) Crated Weight (lbs.) (kg) W D† H GDM-07F-HC~TSL01 1 3 24 1⁄8 24 5⁄8 39 7⁄8 ¼ 115/60/1 2.9 5-15P 9 195 613 626 1013 N/A N/A 2.74 89
        system mechanical components. INNOVATION MADE WITH IN THE USA 8/19 True M g. ‐ General Foodser ice GDM‐07F‐HC TS 01 Item 5 Hilton Market Prototype NEXT STEP DESIGN Page: 6
        † Depth does not include 1 5⁄8 " (42 mm) for door handle. Depth does not include ½ " (13 mm) for
        DESIGN
          •	 True’s commitment to using the highest quality materials and oversized refrigeration systems provides the user with colder product temperatures, and lower utility costs in an attractive merchandiser that brilliantly displays frozen food and ice cream.
          REFRIGERATION SYSTEM
          •	 Factory engineered, self-contained, capillary tube system using environmentally friendly R290 hydrocarbon refrigerant that has zero (0) ozone depletion potential (ODP), & three (3) global warming potential (GWP).
          •	 High capacity, factory balanced refrigeration system that maintains -10°F (-23.3°C) temperatures. Ideal for both frozen foods and ice cream.
          •	 State of the art, electronically commutated evaporator and condenser fan motors. ECM motors operate at higher peak e ciencies and move a more consistent volume of air which produces less heat, reduces energy consumption and provides greater motor reliability.
          •	 Automatic defrost system time-initiated, time-terminated.
          CABINET CONSTRUCTION
          •	 Exterior - non-peel or chip white powder coated cold rolled steel; durable and permanent.
          •	 Interior - attractive, NSF approved, white aluminum liner with stainless steel oor.
          •	 Insulation - entire cabinet structure is foamed-in-place using a high density, polyurethane insulation that has zero ozone depletion potential (ODP) and zero global warming potential (GWP).
          •	 Cabinet tted with 2 ½ ” (64 mm) legs.
          •	 Door sign decal. Variety of decal options available.
          DOOR
          •	 Triple pane thermal insulated glass door assembly with mitered plastic channel frame.
          •	 Door tted with 12” (305 mm) long extruded handle.
          •	 Self closing door. Positive seal, torsion type closure system.
          •	 Magnetic door gasket of one piece construction, removable without tools for ease of cleaning.
          SHELVING
          •	 Three (3) adjustable, heavy duty PVC coated wire shelves; two 19 11⁄16 ”L x 16”D (501 mm x 406 mm). One (1) bottom shelf dimension is 19 11⁄16 ”L x 11 3⁄32 ”D (501 mm x 282 mm). Four (4) chrome plated shelf clips included per shelf.
          •	 Shelf support pilasters made of same material as cabinet interior; shelves are adjustable on ½ ” (13 mm) increments.
          LIGHTING
          •	 LED interior lighting provides more even lighting throughout the cabinet. Safety shielded.
          MODEL FEATURES
          •	 Evaporator is epoxy coated to eliminate the potential of corrosion.
          •	 See our website www.truemfg.com for latest color and decal o erings.
          •	 Backguard and oor rack ensure optimum air ow.
          •	 Complies with NSF/ANSI Standard 7 for the storage and/or display of packaged or bottled product.
          ELECTRICAL
          •	 Unit completely pre-wired at factory and ready for nal connection to a 115/60/1 phase, 15 amp dedicated outlet. Cord and plug set included.
          OPTIONAL FEATURES/ACCESSORIES
          Upcharge and lead times may apply.
          ❑ 4" (102mm) legs.
          ❑ Black exterior.
          ❑ Stainless steel exterior.
          ❑ Additional shelving.
          ❑ Novelty baskets.
          Three year warranty on all parts and labor and an additional 2 year warranty on compressor. (U.S.A. only)
          STANDARD
        Model: METRIC DIMENSIONS ROUNDED UP TO THE NEAREST WHOLE MILLIMETER SPECIFICATIONS SUBJECT TO CHANGE WITHOUT NOTICE PLAN VIEW KCL TRUE MANUFACTURING CO., INC. 2001 East Terra Lane • O’Fallon, Missouri 63366-4434 • (636)240-2400 • Fax (636)272-2408 • Toll Free (800)325-6152 • Intl. Fax# (001)636-272-7546 • www.truemfg.com Model Elevation Right Plan 3D Back GDM-07F-HC~TSL01 GDM-07F-HC~TSL01
        Swing
        24 1/32" 610mm 39 25/32" 1010mm 5/32" 4mm 24 17/32" 623mm 15/32" 12mm 1 19/32" 41mm 26 19/32" 676mm 24 27/32" 631mm 46 13/16" 1189mm
        FEATURES
        Glass Door Merchandiser:
        Door Freezer with Hydrocarbon Refrigerant~True Standard Look Version 01
        R
        GDM-07-HC~TSL01 BLK
          WARRANTY
        True M g. ‐ General Foodser ice GDM‐07F‐HC TS 01 Item 5 Hilton Market Prototype NEXT STEP DESIGN Page: 7
        
    
    
    
    
    
    Grab & Go Merchandiser Features:
          •Multi-Deck available in 3 versions:
          Regular Standard Depth
          Slim Narrow Depth
          Heated (Regular & Slim Depth)
          Xtra View (Regular & Slim Depth)
          •Offered in various size confgurations
          •Ventilated cooling system, with 2 classes of temperatures for Dairy Products and for Meat and Poultry
          •Interior area & Shelving Design:
          Standard White or Stainless Steel
          •Glass or Solid Side Panels
          •Rear Pass Through Door Option to enable easy loading where location allows
          •Electronic Digital Control
          •Heavy Duty Casters Standard
          •LED Lights Standard on all Shelves
          •Adjustable Shelves Standard - Flat or Angles Option
          •Pull Down Night Curtain Standard
          35 Trade Zone Court Ronkonkoma, NY 11779 www.gtidesigns.com Phon e 631.981.2100 Fax 631.981.3509 CustomerService@gtidesigns.com
        United GTI Designs UX S ‐1562 Item 6 Hilton Market Prototype NEXT STEP DESIGN Page: 8
        United / Technical Specifications
          DISPLAY CASES
          
    35 Trade Zone Court Ronkonkoma, NY 11779 www.gtidesigns.com Phon e 631.981.2100 Fax 631.981.3509 CustomerService@gtidesigns.com All technical data, pictures and drawings contained in this document are not binding on the manufacturer, nor can the manufacturer be held liable for any modifcation of the machine, in part or in whole. Xtra View - REGULAR Xtra UNITED XTRA VIEW UNITED 75.8”(1925mm) 31.5”(800mm) 75.8”(1925mm) 24”(612mm) 45.75”(1162mm) 14” 21”(533mm) Xtra View - REGULAR UNITED XTRA UNITED 31.5”(800mm) 75.8”(1925mm) 24”(612mm) 45.75”(1162mm) 14” 21”(533mm) 14”(358mm) 45.75”(1162mm) Xtra View - REGULAR UNITED XTRA UNITED 31.5”(800mm) 75.8”(1925mm) 24”(612mm) 45.75”(1162mm) 14” 21”(533mm) mm) 14”(358mm) 45.75”(1162mm) mm) Heat ew - REGULAR Xtra View - SLIM UNITED XTRA VIEW UNITED 24.4”(620mm) 75.8”(1925mm) .5”(800mm) 24”(612mm) 45.75”(1162mm) 10” 14” 14”(353mm) 21”(533mm) 75.9”(1927mm) Xtra View - SLIM UNITED XTRA VIEW UNITED 24.4”(620mm) 75.8”(1925mm) 24”(612mm) 46”(1167mm) 10” 14”(353mm) 22.6”(574mm) 47.25”(1200mm) REGULAR Xtra View - SLIM UNITED XTRA VIEW UNITED 24.4” (620mm) 75.8” (1925mm) 24” (612mm) 46” (1167mm) 10” 14” (353mm) 22.6”(574mm) 47.25”(1200mm)
        SANITATION LISTED
        Width(
        Depth Height (with
        casters) Electrical Requirements Xtra View Slim Dairy & Beverages Meat & Poultry GTI Designs UX S ‐1562 Item 6 Hilton Market Prototype NEXT STEP DESIGN Page: 9
        Type Model
        (w/side panels)
        3”
        2001 East Terra Lane • O’Fallon, Missouri 63366-4434 • (636)240-2400
          Fax (636)272-2408 • Toll Free (800)325-6152 • Intl Fax# (001)636-272-7546
          Parts Dept. (800)424-TRUE • Parts Dept. Fax# (636)272-9471 • www.truemfg.com
          Model:
          
    Project Name: Location:
          FLM-54~TSL01
           The world’s #1 manufacturer of glass door merchandisers.
           Factory engineered, self-contained, capillary tube system using environmentally friendly R290 hydro carbon refrigerant that has zero (0) ozone depletion potential (ODP), & three (3) global warming potential (GWP).
           High capacity, factory balanced, refrigeration system holds 33°F to 38°F (.5°C to 3.3°C) for best food preservation in extreme conditions.
           Exterior - non-peel or chip black powder coated cold rolled steel ends with black aluminum cabinet top and back; durable and permanent.
           Interior - attractive, white aluminum interior liner with stainless steel oor.
           Double pane thermal insulated glass swing doors with black powder coated frames.
           Full length doors for maximum product capacity.
           Self closing doors. Positive seal, torsion type closure system.
           LED interior lighting provides more even lighting throughout the cabinet. Safety shielded.
           Entire cabinet structure is foamed-inplace using a high density, polyurethane insulation that has zero ozone depletion potential (ODP) and zero global warming potential (GWP).
          Bottom mounted units feature:
           ”No stoop” lower shelf to maximize product visibility.
           Storage on top of cabinet.
           Easily accessible condenser coil for cleaning.
          ROUGH-IN DATA
          
    Speci cations subject to change without notice. Chart dimensions rounded up to the nearest 1 8" (millimeters rounded up to next whole number).
          Item #: Qty: Model #: AIA # SIS # TRUE MANUFACTURING CO., INC. U.S.A. FOODSERVICE DIVISION
        Printed in U.S.A. APPROVALS: AVAILABLE AT: FLM-54~TSL01 Full
        Swing Door Refrigerator with Hydrocarbon Refrigerant~True Standard
        Length Merchandiser:
        Look Version 01
        Model Doors Shelves Cabinet Dimensions (inches) (mm) HP Voltage Amps NEMA Config. Cord Length (total ft.) (total m) Crated Weight (lbs.) (kg) W D† H FLM-54~TSL01 2 8 53 7⁄8 30 3⁄8 79 ½ 115/60/1 6.3 5-15P 9 625 1369 772 2007 N/A N/A 2.74 284
        mm) for door handles. INNOVATION MADE WITH IN THE USA 10/21 True M g. ‐ General Foodser ice F M‐54 TS 01 Item 6 Hilton Market Prototype NEXT STEP DESIGN Page: 10
        † Depth does not include 1 5⁄8 " (42
        
              
              
            
            Full Length Merchandiser:
          STANDARD FEATURES
          DESIGN
          •	 True’s commitment to using the highest quality materials and oversized refrigeration systems provides the user with colder product temperatures, and lower utility costs in an attractive merchandiser that brilliantly displays packaged food and beverages.
          REFRIGERATION SYSTEM
          •	 Factory engineered, self-contained, capillary tube system using environmentally friendly R290 hydrocarbon refrigerant that has zero (0) ozone depletion potential (ODP), & three (3) global warming potential (GWP).
          •	 High capacity, factory balanced refrigeration system that maintains cabinet temperatures of 33°F to 38°F (.5°C to 3.3°C) for the best in food preservation.
          •	 State of the art, electronically commutated evaporator and condenser fan motors. ECM motors operate at higher peak e ciencies and move a more consistent volume of air which produces less heat, reduces energy consumption and provides greater motor reliability.
          •	 Bottom mounted condensing unit positioned for easy maintenance. “No stoop” lower shelf maximizes visibility by raising merchandised product to higher level.
          CABINET CONSTRUCTION
          •	 Exterior - non-peel or chip black powder coated cold rolled steel ends with black aluminum cabinet top and back; durable and permanent.
          •	 Interior - attractive, white aluminum liner with stainless steel oor.
          •	 Insulation - entire cabinet structure is foamedin-place using a high density, polyurethane insulation that has zero ozone depletion potential (ODP) and zero global warming potential (GWP).
          •	 Welded, heavy duty steel frame rail, black powder coated for corrosion protection.
          •	 Frame rail tted with leg levelers.
          DOORS
          •	 Double pane thermal insulated glass swing doors with black powder coated frames.
          •	 Door sign decal. Variety of decal options available.
          •	 Each door tted with 12” (305 mm) long extruded handle.
          •	 Self closing doors. Positive seal, torsion type closure system.
          •	 Magnetic door gaskets of one piece construction, removable without tools for ease of cleaning.
          SHELVING
          •	 Eight (8) adjustable, solid white powder coated cantilever shelves, adjustable for up to 15° tilt in 5° increments. Two (2) white PVC coated wire oor racks.
          •	 Shelves are 24 ½ "L X 21"D (623mm x 534 mm). Floor racks are 22 5 8 "L X 20 ½ "D (575mm x 591mm)
          LIGHTING
          •	 Convenient clean-out drain built in cabinet oor.
          •	 NSF/ANSI Standard 7 compliant for open food product.
          ELECTRICAL
          •	 Unit completely pre-wired at factory and ready for nal connection to a 115/60/1 phase, 15 amp dedicated outlet. Cord and plug set included.
          OPTIONAL FEATURES/ACCESSORIES
          Upcharge and lead times may apply.
          ❑ White exterior.
          ❑ Stainless steel exterior.
          ❑ Black aluminum interior liner with black shelving.
          ❑ Clear aluminum interior liner.
          ❑ Stainless steel interior liner.
          ❑ All left hinge doors.
          ❑ All right hinge doors.
          ❑ Wired cantilever shelves.
          ❑ Barrel locks - located in grill assembly (requires one per door)
          FLM-54/54F~TSL01
          ❑ Additional shelves.
          ❑ Product ID strips on shelves and oor racks.
          •	 LED interior lighting provides more even lighting throughout the cabinet. Safety shielded.
          MODEL FEATURES
          •	 Evaporator is epoxy coated to eliminate the potential of corrosion.
          •	 See our website www.truemfg.com for latest color and sign o erings.
          Model: METRIC DIMENSIONS ROUNDED UP TO THE NEAREST WHOLE MILLIMETER SPECIFICATIONS SUBJECT TO CHANGE WITHOUT NOTICE PLAN VIEW KCL TRUE MANUFACTURING CO., INC. 2001 East Terra Lane • O’Fallon, Missouri 63366-4434 • (636)240-2400 • Fax (636)272-2408 • Toll Free (800)325-6152 • Intl. Fax# (001)636-272-7546 • www.truemfg.com FLM-54~TSL01
        Swing
        Model Elevation Right Plan 3D Back FLM-54~TSL01 53 7/8" 1368mm 78 15/16" 2005mm 31 23/32" 806mm 30 5/16" 770mm 54 11/16" 1389mm
        Door Refrigerator with Hydrocarbon Refrigerant~True Standard Look Version 01
        R 53 7/8" 1368mm 78 15/16" 2005mm 54 11/16" 1389mm R
        (U.S.A. and Canada only)
        True M g. ‐ General Foodser ice F M‐54 TS 01 Item 6 Hilton Market Prototype NEXT STEP DESIGN Page: 11
        
    
              
              
            
            MHOTR242B
          
    Product Features:
          24" width
          Range hood function
          Versatile ventilation options
          Large capacity
          Window included
          Under cabinet LED lighting
          Auto cook
          Kids meal heating option
          17.5" x 24" x 17" (H x W x D)
          24" wide over-the-range microwave in black with digital controls, for ducted or recirculating (ductless) use
          Highlights:
          24" wide over-the-range microwave brings new convenience to small kitchens
          Range hood can function with a vertical duct, horizontal duct, or for recirculating operation
          Ten power levels and multi-stage heating ensure the perfect cooking conditions for a variety of meals
          Smartly sized for full service use in smaller kitchens
          Under-cabinet ventilation with a high/low setting
          This unit can be set up with a vertical duct, horizontal duct, or for recirculating operation
          1.4. cu.ft. interior provides ample room for heating & cooking small or large dishes
          Small window lets you keep watch of your cooking
          Range hood includes two bulbs for convenient illumination of the cooking zone
          Cooking setting that lets you choose from pizza, potatoes, popcorn, beverages, cheese, ice cream, butter, meats, veggies, and reheat
          Designed for easy reheating of common children's meals, with settings specifically for nuggets, hot dogs, fries, and frozen sandwiches
          Timed cooking Touch controls for easy heating of foods and beverages (up to 99 minutes)
          
    
    SUMMIT APPLIANCE DIVISION, FELIX STORCH, INC. | ISO 9001:2015 Certified 770 Garrison Avenue Bronx, NY 10474 USA TEL 718-893-3900 FAX 844-478-8799 info@summitappliance.com www.summitappliance.com Summit MHOT 242B Item 7 Hilton Market Prototype NEXT STEP DESIGN Page: 12
        
    Overview
          Height of Cabinet
          (44 cm) Width
          Width with Door Open
          (61 cm)
          (63 cm)
          (43 cm) Depth with door at 90°
          (98 cm)
          
    
    
    
    MHOTR242B Specifications:
        17.5"
        24.0"
        24.75"
        38.75"
        Capacity 1.4
        Cabinet Black US Electrical Safety UL Canadian Electrical Safety ULC Amps 13.5
        115
        AC/60
        Weight 51.0 lbs. (23 kg)
        Weight 61.0 lbs.
        kg)
        Depth 17.0"
        Door Black
        Voltage/Frequency
        V
        Hz
        Shipping
        (28
        90
        UPC 761101076041 Microwave Type Over-the-Range Wattage 1000.0 Controls Digital Digital Display Yes Turntable Yes Turntable Diameter 12.75"
        Interior Height 10.0"
        Interior Width 14.5"
        cm) Interior Depth 14.38"
        cm) SUMMIT APPLIANCE DIVISION, FELIX STORCH, INC. | ISO 9001:2015 Certified 770 Garrison Avenue Bronx, NY 10474 USA TEL 718-893-3900 FAX 844-478-8799 info@summitappliance.com www.summitappliance.com Summit MHOT 242B Item 7 Hilton Market Prototype NEXT STEP DESIGN Page: 13
        Parts & Labor Warranty
        Days
        (32 cm)
        (25 cm)
        (37
        (37
        
              
              
            
            THIS ITEM IS: SPARE
          NUMBER
          SPARE NUMBER
          MILLWORK
          CUSTOM FABRICATED/NSF
          EXISTING WHERE SHOWN
          RELOCATED MODIFIED
          N.I.K.E.C. BY: OWNER
          SUPPLIER / VENDOR
          OTHERS
          REMARKS:
          Spare Item 8 Hilton Market Prototype NEXT STEP DESIGN Page: 14
        
    FETCO CBS‐1151‐ (E115151) Item 9 Hilton Market Prototype NEXT STEP DESIGN Page: 15
        
    FETCO CBS‐1151‐ (E115151) Item 9 Hilton Market Prototype NEXT STEP DESIGN Page: 16
        
    FETCO CBS‐1151‐ (E115151) Item 9 Hilton Market Prototype NEXT STEP DESIGN Page: 17
        
    FETCO CBS‐1151‐ (E115151) Item 9 Hilton Market Prototype NEXT STEP DESIGN Page: 18
        
    FETCO CBS‐1151‐ (E115151) Item 9 Hilton Market Prototype NEXT STEP DESIGN Page: 19
        
    FETCO CBS‐1151‐ (E115151) Item 9 Hilton Market Prototype NEXT STEP DESIGN Page: 20
        
    FETCO CBS‐1151‐ (E115151) Item 9 Hilton Market Prototype NEXT STEP DESIGN Page: 21
        
    FETCO CBS‐1151‐ (E115151) Item 9 Hilton Market Prototype NEXT STEP DESIGN Page: 22
        
    
    
    
    
    
    
    
    
    
    
    
    
    
    
    
    
    
    
    
    
    
    
    
    
    
    
    
    
    
    
    
    
    
    
    
    
    
    
    
    
    
    
    
    
    
    
    
    
    
    
    
    Franke Co ee Systems A600FM Item 10 Hilton Market Prototype NEXT STEP DESIGN Page: 23
        
    
    
    
    
    
    
    
    
    
    
    
    
    
    
    
    
    
    
    
    Franke Co ee Systems A600FM Item 10 Hilton Market Prototype NEXT STEP DESIGN Page: 24
        
    
    Shown with optional base stand
          NOTE: For use in applications with greater than 5 mg/l but less than 400 mg/l total dissolved solids in water and less than 200 mg/l hardness (either naturally occurring or treated with reverse osmosis or other TDS reducing technology).
          Not recommended for use with softened water.
          
    Model configurations
          7 Series ice and water dispenser
          Chewblet® ice machine
          Features
          Compact size, only 17.62" (44.8 cm) tall to fit on counters under standard cabinets
          7 lb (3.2 kg) ice storage capacity
          Integral air-cooled ice machine with up to 125 lb (56.7 kg) daily production of popular Chewblet ice
          - designed to serve up to 50 people (201 servings per 9 hr day1)
          - soft, chewable, compressed nugget ice is preferred over cubes2
          - environmentally responsible R134a refrigerant with zero ozone depletion potential
          - energy saving sleep mode
          - quiet production without noisy harvest cycles
          - meets the Consortium for Energy E ciency (CEE) Tier 2 specifications for highly e cient ice machines
          Durable, attractive dispenser
          - modern styling, stainless steel exterior with accent trim
          - dispense-activated soft blue light illuminates point-of-use
          - easy-to-clean, removable 20 oz (591 ml) drip tray
          Designed with sanitation in mind
          - Agion® silver-based antimicrobial product protection of key ice and water contact components 3
          - capacitive touch controls eliminate direct contact with ice
          Installation
          - comes fully assembled
          - two easy connections – electric and water
          - drainless design allows dispenser to be placed anywhere a water line can be run and eliminates the cost of a drain installation
          Warranty
          - 2 years parts and labor, 5 years compressor parts
          - optional extended third year warranty (item# 00960732)
          Accessories
          Touchless SensorSAFE™ dispensing kit, user installed on new and existing models, refer to form# 8815 for additional details.
          SafeCLEAN Plus™ ice machine cleaner, refer to form# 8295
          4.00" (10.16 cm) leg kit for CI - countertop models (item# 00956300)
          6.00" (15.24 cm) leg kit for base stand (item# 00956318)
          Drip tray drain kit for countertop models (includes 4.00" (10.16 cm) legs) (item# 00981977)
          (3.2 kg)
          For freestanding models
          7CI100A-NW-CF-ST-00
          Optional base stand to convert countertop models to freestanding 00956292
          ¹ Internal filter is a 5 micron particle and carbon filter.
          Drip tray drain kit for countertop models used with base stand accessory (does not include 4.00" (10.16 cm) legs) (item# 00956375)
          Filter cartridge, replacement 5 micron particle/carbon (item# 00968107) For additional water treatment and other accessories, refer to form# 4025
          801 Church Lane | Easton, PA 18040, USA 1.800.523.9361 | 1.610.252.7301 | follettice.com
        Ice storage capacity Configuration Filter ¹ Item number
        7 lb
        countertop ice and water no filter 7CI100A-IW-NF-ST-00 internal 7CI100A-IW-CF-ST-00 countertop ice-only no filter 7CI100A-NW-NF-ST-00 internal
        Folle 7CI100A‐NW‐CF‐ST‐00 Item 11 Hilton Market Prototype NEXT STEP DESIGN Page: 26
        Specification
          Ice storage capacity
          W1 Width
          D1 Depth
          7 lb (3.2 kg)
          14.62" (37.1 cm)
          22.12" (56.2 cm)
          H1 Height, countertop models 17.62" (44.8 cm)
          H2 Height, with optional base stand 42.00" (106.7 cm)
          H3 Height, optional base stand 24.50" (62.2 cm)
          H4 Dispense height clearance 8.50" (21.59 cm)
          Ventilation clearance
          Service clearance
          C1 115 V/60/1 electrical
          3.00" (7.62 cm) on each side
          3.00" (7.62 cm) behind and on each side
          5 amps, 0.26 kW
          Connect to dedicated 15 amp circuit, fuse or breaker.
          8' (2.4 m) cord w/ NEMA 5-15 90º plug.
          C2 Water inlet 1/4" push-in
          Air temperature 50 -100 F (10 - 38 C)
          Water temperature 40 - 90 F (4 - 32 C)
          Water pressure 10 - 70 psi (69 - 482 kpa)
          Ice production at 70 F (21 C) air and 50 F (10 C) water
          Ice production at 90 F (32 C) air and 70 F (21 C) water
          Energy consumption
          90 F (32 C) air and 70 F (21 C) water
          Heat rejection
          Water consumption
          Approximate net weight –countertop models
          Approximate shipping weight –countertop models
          Approximate net weight –optional base stand
          Approximate shipping weight –optional base stand
          125 lb (56.7 kg)
          100 lb (45.4 kg)
          6.9 kWh per 100 lb (45.4 kg) ice
          1700 BTU/hr
          12 gal (45.4 L) of potable water per 100 lb (45.4 kg) of ice
          74 lb (34 kg)
          87 lb (40 kg)
          24 lb (11 kg)
          42 lb (19 kg)
          NOTE: Intended for commercial use only. Follett can’t guarantee freight carrier’s ability to deliver to residential locations. Follett service providers may not be bonded to perform on-site warranty repairs in certain areas.
          SHORT FORM SPECIFICATION: (Choose one) ____ Ice and water or ____ ice-only dispenser to be Follett automatic load in countertop configuration, with 7 lb (3.2 kg) of storage. Environmentally responsible R134a ice machine to be air-cooled. Ice machine to produce approximately 125 lb (56.7 kg) of Chewblet compressed nugget ice at air temperature of 70 F (21 C) and water temperature of 50 F (10 C). Ice machine to be equipped with printed circuit board and diagnostics to allow simplified servicing and with capacitive touch user interface. Storage area to be insulated with CARB compliant non-HFC foam. 8' (2.4 m) cord and NEMA 5-15 90º plug provided. 115 V/60/1. NSF and ETL listed. For use in applications with greater than 5 mg/l but less than 400 mg/l total dissolved solids in water and less than 200 mg/l hardness (either naturally occurring or treated with reverse osmosis or other TDS reducing technology).
          
              
              
            
            Dimensional drawing
          ¹ 4 oz (118 ml) of ice per cup in a 12 oz (355 ml) cup.
          ² Independent third party studies. Contact Follett for details.
          ³ Disclaimer: Antimicrobial protection is limited to the treated components and does not treat water or ice.
          Agion is a registered trademark of Sciessent LLC.
          SAFECLEAN PLUS and SENSORSAFE are trademarks of Follett Products, LLC.
          CHEWBLET and FOLLETT are registered trademarks of Follett Products, LLC, registered in the US.
          Follett reserves the right to change specifications at any time without obligation. Certifications may vary depending on country of origin.
          7
        801 Church Lane | Easton, PA 18040, USA 1.800.523.9361 | 1.610.252.7301 | follettice.com 3725-202209 | © Follett Products, LLC
        Series ice and water dispenser
        C1 C2 H4 W1 H1 H2 H3 D1 G L2 L1 2.98" (7.57 cm) 2.40" (6.10 cm) air intake 10.74" (27.3 cm) 10.82" (27.5 cm)
        Folle 7CI100A‐NW‐CF‐ST‐00 Item 11 Hilton Market Prototype NEXT STEP DESIGN Page: 27
        
              
              
            
            PRECISION ADJUSTMENT DISPENSING FLEXIBILITY
          DISPENSE-RITE
          ADJ SERIES IN-COUNTER ADJUSTABLE CUP DISPENSERS
          DISPENSE-RITE ADJ Series cup dispensers feature quality stainless steel construction with a quick release mounting collar. These dispensers utilize an
          
    The ADJ-1 is designed to accommodate 4 oz. to 12 oz. paper, plastic or foam cups with rim diameters ranging in size from 2 1⁄2 ”–31⁄2 ”. The ADJ-1 model requires a small 4” hole cut-out and is ideal for many retrofit applications. The ADJ-1.50 is designed to accommodate 8 oz. to 24 oz. paper, plastic or foam cups with rim diameters ranging in size from 3”–3 7⁄8 ”. The ADJ-1.50 model requires a 4 1⁄2” hole cut-out.
          The ADJ-2 is our most popular cup dispenser. This is a One-Size-Fits-All model that offers maximum dispensing flexibility. This unit is designed to accommodate a variety of 8 oz. to 44 oz. paper, plastic or foam cups with rim diameters ranging in size from 3”–4 5⁄8 ”. This model comes in two under counter lengths: 22” or 19”. The ADJ-2 models require a 5 1⁄4 ” hole cut-out.
          The ADJ-3 is the ideal dispenser for Jumbo-Size drink cups and deli containers. This dispenser is designed to accommodate 44 oz. to 64 oz. paper, plastic or foam cups with rim diameters ranging in size from 4 1⁄2 ”–5 1⁄4 ”. The ADJ-3 model requires a larger 5 3⁄4 ” hole cut-out.
          
    1.800.772.2877 18 STAINLESS STEEL CONSTRUCTION ADJ SERIES IN-COUNTER ADJUSTABLE CUP DISPENSERS
        MOUNTING HOLE CUT OUT RING BEZEL DIAMETER
        Cup Rim Under Ring Mounting Model Diameter Counter Bezel Hole Number Range Length Diameter Cut-Out ADJ-1 21⁄2”–31⁄2” 22” 53⁄8” 4” ADJ-1.50 3”–37⁄8” 22” 55⁄8” 41⁄2” ADJ-2 3”–45⁄8” 22” 67⁄8” 51⁄4” ADJ-2S 3”–45⁄8” 19” 67⁄8” 51⁄4” ADJ-3 41⁄2”–51⁄4” 22” 73⁄8” 53⁄4”
        Dispense‐ ite ADJ‐2S Item 12 Hilton Market Prototype NEXT STEP DESIGN Page: 28
        
              
              
            
            IN-COUNTER ADJUSTABLE CUP DISPENSERS
          ADJ-1 AND ADJ-1.50 SLIM-LINE CUP DISPENSERS
          The ADJ-1 is designed to accommodate 4 oz. to 12 oz. paper, plastic or foam cups with rim diameters ranging in size from 2 1⁄2 ”–3 1⁄2 ”. The ADJ-1.50 is designed to accommodate 8 oz. to 24 oz. paper, plastic or foam cups with rim diameters ranging in size from 3”–3 7⁄8 ”.
          
    
    ADJ-2 AND ADJ-2S ONE-SIZE-FITS-ALL CUP DISPENSERS
          These dispensers are designed to accommodate a variety of 8 oz. to 44 oz. paper, plastic or foam cups with rim diameters ranging in size from 3”–4 5⁄8 ”.
          
    
    ADJ-3 JUMBO-SIZE CUP DISPENSERS
          This dispenser is designed to accommodate 44 oz. to 64 oz. paper, plastic or foam cups with rim diameters ranging in size from 4 1⁄2 ”–5 1⁄4 ”.
          
    
    : Position : Spring
          Foam Cups : Any Position : F Spring
          Paper Cups : Horizontal : F Spring
          Plastic Cups : Horizontal : F Spring
          Paper Cups : Angled : P Spring
          Plastic Cups : Angled : P Spring
          Paper Cups : Vertical : P Spring
          Plastic Cups : Vertical : P Spring
          Dispensers ship with both the “F” and “P” compression springs. Single spring models are available; see price list for additional information.
          Stainless ring bezels are standard on all models. Optional gloss black powder coated ring bezels are available for ADJ-2 Series cup dispensers.
          
    Dimensions H x W x D 91⁄8” x 73⁄4” x 4
          
    The optional UCMB-2 stainless steel under counter bracket mounts to any flat surface or wire shelf creating a face plate to mount an ADJ-2 cup dispenser. Maximum counter lip is 15⁄8 ”.
          
              
              
            
            STAINLESS STEEL CONSTRUCTION
          fax 847.753.9648 19 www.dispense-rite.com
        TION
        ADJ SERIES
        • ADJ-2 and ADJ-2S models Color Ring Bezels Under Counter Bracket Spring Configurations One-Size-Fits-All 8 oz. to 44 oz. 22” UNDER COUNTER LENGTH ADJ-1.50 8 oz. to 24 oz. 4 oz. to 12 oz. 44 oz. to 64 oz. 19” UNDER COUNTER LENGTH ADJ-2S One-Size-Fits-All 8 oz. to 44 oz.
        Dispense‐ ite ADJ‐2S Item 12 Hilton Market Prototype NEXT STEP DESIGN Page: 29
        T H I S I T E M I S : P O S- C A S H R E G I ST E R SP A R E N U M B E R M I L L W O R K C U ST O M F A B RI C A T E D / N S F E X I ST I N G W H E R E S H O W N R E L O C A T E D M O D I F I E D N . I . K . E . C . B Y : O W N E R S U P P L I E R / V E N D O R O T H E RS R E M A R K S : Own CASH Item 100 Hilton Market Prototype NEXT STEP DESIGN Page: 30
        Project Name: Location:
          2001 East Terra Lane • O’Fallon, Missouri 63366-4434 • (636)240-2400
          Fax (636)272-2408 • Toll Free (800)325-6152 • Intl Fax# (001)636-272-7546
          Parts Dept. (800)424-TRUE • Parts Dept. Fax# (636)272-9471 • www.truemfg.com
          Model:
          T-Series®:
          
    ROUGH-IN DATA
          T-11G-HC~FGD01
           True’s glass door reach-in’s are designed with enduring quality that protects your long term investment.
           Designed using the highest quality materials and components to provide the user with colder product temperatures, lower utility costs, exceptional food safety and the best value in today’s food service marketplace.
           Factory engineered, self-contained, capillary tube system using environmentally friendly R290 hydro carbon refrigerant that has zero (0) ozone depletion potential (ODP), & three (3) global warming potential (GWP).
           High capacity, factory balanced refrigeration system that maintains cabinet temperatures of 33°F to 38°F (.5°C to 3.3°C) for the best in food preservation.
           Stainless steel front. The nest stainless available with higher tensile strength for fewer dents and scratches.
           Energy e cient, “Low-E”, double pane thermal glass door.
           LED interior lighting provides more even lighting throughout the cabinet. Safety shielded.
           Adjustable, heavy duty PVC coated shelves.
           Positive seal self-closing door. Lifetime guaranteed door hinges and torsion type closure system.
          Bottom mounted units feature:
           ”No stoop” lower shelf.
           Storage on top of cabinet.
           Compressor performs in coolest, most grease free area of kitchen.
           Easily accessible condenser coil for cleaning.
          Speci cations subject to change without notice. Chart dimensions rounded up to the nearest 1 8" (millimeters rounded up to next whole number).
          † Depth does not include 1 5⁄8 " (42 mm) for door handle. † Depth does not include 1" (26mm) for rear bumper.
          * Height does not include ½ " (13mm) for castors.
          
    Item #: Qty: Model #: AIA # SIS # TRUE MANUFACTURING CO., INC. U.S.A. FOODSERVICE DIVISION
        Printed in U.S.A. APPROVALS: AVAILABLE AT: 7/20
        T-11G-HC~FGD01
        Glass Swing Door Refrigerator with Hydrocarbon Refrigerant~Framed Glass Door Version 01
        Reach-In
        Model Doors Shelves Cabinet Dimensions (inches) (mm) HP Voltage Amps NEMA Config. Cord Length (total ft.) (total m) Crated Weight (lbs.) (kg) W D† H* T-11G-HC~FGD01 1 3 19 ¼ 21 ¼ 70 3⁄8 1⁄10 115/60/1 1.6 5-15P 9 220 487 539 1786 1⁄10 220-240V/50-60Hz 0.8 2.74 100
        INNOVATION MADE WITH IN THE USA True M g. ‐ General Foodser ice T‐11G‐HC FGD01 Item 101 Hilton Market Prototype NEXT STEP DESIGN Page: 31
        T-Series®:
          DESIGN
          •	 True’s commitment to using the highest quality materials and oversized refrigeration systems provides the user with colder product temperatures, lower utility costs, exceptional food safety and the best value in today’s food service marketplace.
          REFRIGERATION SYSTEM
          •	 Factory engineered, self-contained, capillary tube system using environmentally friendly R290 hydro carbon refrigerant that has zero (0) ozone depletion potential (ODP), & three (3) global warming potential (GWP).
          •	 High capacity, factory balanced refrigeration system that maintains cabinet temperatures of 33°F to 38°F (.5°C to 3.3°C) for the best in food preservation.
          •	 State of the art, electronically commutated evaporator and condenser fan motors. ECM motors operate at higher peak e ciencies and move a more consistent volume of air which produces less heat, reduces energy consumption and provides greater motor reliability.
          •	 Bottom mounted condensing unit positioned for easy maintenance. Compressor runs in coolest and most grease free area of the kitchen. Allows for storage area on top of unit.
          CABINET CONSTRUCTION
          •	 Exterior - Stainless steel front. Anodized quality aluminum ends. Corrosion resistant GalFan coated steel back.
          •	 Interior - attractive, NSF approved, clear coated aluminum liner. Stainless steel oor with coved corners.
          •	 Insulation - entire cabinet structure is foamed-in-place using a high density, polyurethane insulation that has zero ozone depletion potential (ODP) and zero global warming potential (GWP).
          •	 Welded, heavy duty steel frame rail, black powder coated for corrosion protection.
          •	 Base rail tted with leg levelers (legs not available).
          DOOR
          •	 “Low-E”, double pane thermal glass assembly with extruded aluminum frame.
          •	 Door tted with 15" (381 mm) long extruded aluminum handle.
          •	 Positive seal self-closing door. Lifetime guaranteed door hinges and torsion type closure system.
          •	 Magnetic door gasket of one piece construction, removable without tools for ease of cleaning.
          SHELVING
          •	 Three (3) adjustable, heavy duty PVC coated wire shelves 20 13⁄16 "L x 17"D (529 mm x 432 mm). Four (4) chrome plated shelf clips included per shelf.
          •	 Shelf support pilasters made of same material as cabinet interior; shelves are adjustable on ½ " (13 mm) increments.
          LIGHTING
          •	 LED interior lighting provides more even lighting throughout the cabinet. Safety shielded.
          MODEL FEATURES
          •	 Evaporator is epoxy coated to eliminate the potential of corrosion.
          •	 Exterior temperature display on grill.
          •	 NSF/ANSI Standard 7 compliant for open food product.
          ELECTRICAL
          •	 Unit completely pre-wired at factory and ready for nal connection to a 115/60/1 phase, 15 amp dedicated outlet. Cord and plug set included.
          OPTIONAL FEATURES/ACCESSORIES
          Upcharge and lead times may apply.
          ❑ 2 ½ " (64 mm) castors.
          ❑ Additional shelves.
          1/23/20
          METRIC DIMENSIONS ROUNDED UP TO THE NEAREST WHOLE MILLIMETER SPECIFICATIONS SUBJECT TO CHANGE WITHOUT NOTICE
        STANDARD FEATURES Model:
        KCL TRUE MANUFACTURING CO., INC. 2001 East Terra Lane • O’Fallon, Missouri 63366-4434 • (636)240-2400 • Fax (636)272-2408 • Toll Free (800)325-6152 • Intl. Fax# (001)636-272-7546 • www.truemfg.com 70 25/32" 1798mm 70 5/16" 1786mm 19 5/32" 487mm 1/2" 12mm 2" 51mm 1" 26mm 21 3/16" 538mm 23 13/16" 605mm 1 19/32" 41mm 39 3/8" 1000mm 17 1/16" 433mm
        PLAN VIEW
        T-11G-HC~FGD01
        T-11G-HC~FGD01
        Reach-In Glass Swing Door Refrigerator with Hydrocarbon Refrigerant~Framed Glass Door Version 01 Model Elevation Right Plan 3D Back T-11G-HC~FGD01
        (U.S.A. and Canada only) True M g. ‐ General Foodser ice T‐11G‐HC FGD01 Item 101 Hilton Market Prototype NEXT STEP DESIGN Page: 32
        2001 East Terra Lane • O’Fallon, Missouri 63366-4434 • (636)240-2400
          Fax (636)272-2408 • Toll Free (800)325-6152 • Intl Fax# (001)636-272-7546
          Parts Dept. (800)424-TRUE • Parts Dept. Fax# (636)272-9471 • www.truemfg.com
          Model:
          
    Project Name: Location:
          GDM-07F-HC~TSL01
           The world’s #1 manufacturer of glass door merchandisers.
           Designed using the highest quality materials and components to provide the user with an attractive, point of purchase merchandiser that brilliantly displays frozen food and ice cream, resulting in high impulse sales.
           Factory engineered, self-contained, capillary tube system using environmentally friendly R290 hydro carbon refrigerant that has zero (0) ozone depletion potential (ODP), & three (3) global warming potential (GWP).
           High capacity, factory balanced refrigeration system that maintains -10°F (-23.3°C) temperatures. Ideal for both frozen foods and ice cream.
           Exterior - non-peel or chip white powder coated cold rolled steel; durable and permanent.
           Interior - attractive, NSF approved, white aluminum interior liner with stainless steel oor.
           Self closing door. Positive seal, torsion type closure system.
           Triple pane thermal glass door assembly with mitered plastic channel frame.
           LED interior lighting provides more even lighting throughout the cabinet. Safety shielded.
           Entire cabinet structure is foamedin-place using a high density, polyurethane insulation that has zero ozone depletion potential (ODP) and zero global warming potential (GWP).
          ROUGH-IN DATA
          Speci cations subject to change without notice. Chart dimensions rounded up to the nearest 1 8" (millimeters rounded up to next whole number).
          
    Item #: Qty: Model #: AIA # SIS # TRUE MANUFACTURING CO., INC. U.S.A. FOODSERVICE DIVISION
        Printed in U.S.A. APPROVALS: AVAILABLE AT: GDM-07F-HC~TSL01
        Swing Door Freezer with Hydrocarbon Refrigerant~True Standard Look Version 01
        Glass Door Merchandiser:
        Model Doors Shelves Cabinet Dimensions (inches) (mm) HP Voltage Amps NEMA Config. Cord Length (total ft.) (total m) Crated Weight (lbs.) (kg) W D† H GDM-07F-HC~TSL01 1 3 24 1⁄8 24 5⁄8 39 7⁄8 ¼ 115/60/1 2.9 5-15P 9 195 613 626 1013 N/A N/A 2.74 89
        system mechanical components. INNOVATION MADE WITH IN THE USA 8/19 True M g. ‐ General Foodser ice GDM‐07F‐HC TS 01 Item 102 Hilton Market Prototype NEXT STEP DESIGN Page: 33
        † Depth does not include 1 5⁄8 " (42 mm) for door handle. Depth does not include ½ " (13 mm) for
        DESIGN
          •	 True’s commitment to using the highest quality materials and oversized refrigeration systems provides the user with colder product temperatures, and lower utility costs in an attractive merchandiser that brilliantly displays frozen food and ice cream.
          REFRIGERATION SYSTEM
          •	 Factory engineered, self-contained, capillary tube system using environmentally friendly R290 hydrocarbon refrigerant that has zero (0) ozone depletion potential (ODP), & three (3) global warming potential (GWP).
          •	 High capacity, factory balanced refrigeration system that maintains -10°F (-23.3°C) temperatures. Ideal for both frozen foods and ice cream.
          •	 State of the art, electronically commutated evaporator and condenser fan motors. ECM motors operate at higher peak e ciencies and move a more consistent volume of air which produces less heat, reduces energy consumption and provides greater motor reliability.
          •	 Automatic defrost system time-initiated, time-terminated.
          CABINET CONSTRUCTION
          •	 Exterior - non-peel or chip white powder coated cold rolled steel; durable and permanent.
          •	 Interior - attractive, NSF approved, white aluminum liner with stainless steel oor.
          •	 Insulation - entire cabinet structure is foamed-in-place using a high density, polyurethane insulation that has zero ozone depletion potential (ODP) and zero global warming potential (GWP).
          •	 Cabinet tted with 2 ½ ” (64 mm) legs.
          •	 Door sign decal. Variety of decal options available.
          DOOR
          •	 Triple pane thermal insulated glass door assembly with mitered plastic channel frame.
          •	 Door tted with 12” (305 mm) long extruded handle.
          •	 Self closing door. Positive seal, torsion type closure system.
          •	 Magnetic door gasket of one piece construction, removable without tools for ease of cleaning.
          SHELVING
          •	 Three (3) adjustable, heavy duty PVC coated wire shelves; two 19 11⁄16 ”L x 16”D (501 mm x 406 mm). One (1) bottom shelf dimension is 19 11⁄16 ”L x 11 3⁄32 ”D (501 mm x 282 mm). Four (4) chrome plated shelf clips included per shelf.
          •	 Shelf support pilasters made of same material as cabinet interior; shelves are adjustable on ½ ” (13 mm) increments.
          LIGHTING
          •	 LED interior lighting provides more even lighting throughout the cabinet. Safety shielded.
          MODEL FEATURES
          •	 Evaporator is epoxy coated to eliminate the potential of corrosion.
          •	 See our website www.truemfg.com for latest color and decal o erings.
          •	 Backguard and oor rack ensure optimum air ow.
          •	 Complies with NSF/ANSI Standard 7 for the storage and/or display of packaged or bottled product.
          ELECTRICAL
          •	 Unit completely pre-wired at factory and ready for nal connection to a 115/60/1 phase, 15 amp dedicated outlet. Cord and plug set included.
          OPTIONAL FEATURES/ACCESSORIES
          Upcharge and lead times may apply.
          ❑ 4" (102mm) legs.
          ❑ Black exterior.
          ❑ Stainless steel exterior.
          ❑ Additional shelving.
          ❑ Novelty baskets.
          Three year warranty on all parts and labor and an additional 2 year warranty on compressor. (U.S.A. only)
          STANDARD
        Model: METRIC DIMENSIONS ROUNDED UP TO THE NEAREST WHOLE MILLIMETER SPECIFICATIONS SUBJECT TO CHANGE WITHOUT NOTICE PLAN VIEW KCL TRUE MANUFACTURING CO., INC. 2001 East Terra Lane • O’Fallon, Missouri 63366-4434 • (636)240-2400 • Fax (636)272-2408 • Toll Free (800)325-6152 • Intl. Fax# (001)636-272-7546 • www.truemfg.com Model Elevation Right Plan 3D Back GDM-07F-HC~TSL01 GDM-07F-HC~TSL01
        Swing
        24 1/32" 610mm 39 25/32" 1010mm 5/32" 4mm 24 17/32" 623mm 15/32" 12mm 1 19/32" 41mm 26 19/32" 676mm 24 27/32" 631mm 46 13/16" 1189mm
        FEATURES
        Glass Door Merchandiser:
        Door Freezer with Hydrocarbon Refrigerant~True Standard Look Version 01
        R
        GDM-07-HC~TSL01 BLK
          WARRANTY
        True M g. ‐ General Foodser ice GDM‐07F‐HC TS 01 Item 102 Hilton Market Prototype NEXT STEP DESIGN Page: 34
        
              
              
            
            THIS ITEM IS: SPARE
          NUMBER
          SPARE NUMBER
          MILLWORK
          CUSTOM FABRICATED/NSF
          EXISTING WHERE SHOWN
          RELOCATED MODIFIED
          N.I.K.E.C. BY: OWNER
          SUPPLIER / VENDOR
          OTHERS
          REMARKS:
          Spare SN Item 103 Hilton Market Prototype NEXT STEP DESIGN Page: 35
        
              
              
            
            THIS ITEM IS: SPARE
          NUMBER
          SPARE NUMBER
          MILLWORK
          CUSTOM FABRICATED/NSF
          EXISTING WHERE SHOWN
          RELOCATED MODIFIED
          N.I.K.E.C. BY: OWNER
          SUPPLIER / VENDOR
          OTHERS
          REMARKS:
          Spare SN Item 104 Hilton Market Prototype NEXT STEP DESIGN Page: 36
        †
          2001 East Terra Lane • O’Fallon, Missouri 63366-4434 • (636)240-2400 Fax (636)272-2408 • Toll Free (800)325-6152 • Intl Fax# (001)636-272-7546 Parts Dept. (800)424-TRUE • Parts Dept. Fax# (636)272-9471 • www.truemfg.com
          Project Name: Location:
          
    FLM-81~TSL01
           The world’s #1 manufacturer of glass door merchandisers.
           Factory engineered, self-contained, capillary tube system using environmentally friendly R290 hydro carbon refrigerant that has zero (0) ozone depletion potential (ODP), & three (3) global warming potential (GWP).
           High capacity, factory balanced, refrigeration system holds 33°F to 38°F (.5°C to 3.3°C) for best food preservation in extreme conditions.
           Exterior - non-peel or chip black powder coated cold rolled steel ends with black aluminum cabinet top and back; durable and permanent.
           Interior - attractive, white aluminum interior liner with stainless steel oor.
           Double pane thermal insulated glass swing doors. Black powder coated.
           Full length doors for maximum product capacity.
           Self closing doors. Positive seal, torsion type closure system.
           LED interior lighting provides more even lighting throughout the cabinet. Safety shielded.
           Entire cabinet structure is foamed-inplace using a high density, polyurethane insulation that has zero ozone depletion potential (ODP) and zero global warming potential (GWP).
          Bottom mounted units feature
           ”No stoop” lower shelf to maximize product visibility.
           Storage on top of cabinet.
           Easily accessible condenser coil for cleaning.
          ROUGH-IN DATA
          
    Speci cations subject to change without notice. Chart dimensions rounded up to the nearest 1 8" (millimeters rounded up to next whole number).
          Model:
        Item #: Qty: Model #: AIA # SIS #
        Printed in U.S.A. APPROVALS: AVAILABLE AT: TRUE MANUFACTURING CO., INC. U.S.A. FOODSERVICE DIVISION FLM-81~TSL01 INNOVATION MADE WITH IN THE USA Full Length Merchandiser: Swing Door Refrigerator with Hydrocarbon Refrigerant~True Standard
        01
        Look Version
        Model Doors Shelves Cabinet Dimensions (inches) (mm) HP Voltage Amps NEMA Config. Cord Length (total ft.) (total m) Crated Weight (lbs.) (kg) W D† H FLM-81~TSL01 3 12 80 ¾ 30 3⁄8 79 ¾ 115/60/1 6.3 5-15P 9 810 2051 772 2007 N/A N/A 2.74 368
        Depth does not include 1 5⁄8 " (42 mm) for door handles. 10/21 True M g. ‐ General Foodser ice F M‐81 TS 01 Item 105 Hilton Market Prototype NEXT STEP DESIGN Page: 37
        DESIGN
          •	 True’s commitment to using the highest quality materials and oversized refrigeration systems provides the user with colder product temperatures, and lower utility costs in an attractive merchandiser that brilliantly displays packaged food and beverages.
          REFRIGERATION SYSTEM
          •	 Factory engineered, self-contained, capillary tube system using environmentally friendly R290 hydrocarbon refrigerant that has zero (0) ozone depletion potential (ODP), & three (3) global warming potential (GWP).
          •	 High capacity, factory balanced refrigeration system that maintains cabinet temperatures of 33°F to 38°F (.5°C to 3.3°C) for the best in food preservation.
          •	 State of the art, electronically commutated evaporator and condenser fan motors. ECM motors operate at higher peak e ciencies and move a more consistent volume of air which produces less heat, reduces energy consumption and provides greater motor reliability.
          •	 Bottom mounted condensing unit positioned for easy maintenance. “No stoop” lower shelf maximizes visibility by raising merchandised product to higher level.
          CABINET CONSTRUCTION
          •	 Exterior - non-peel or chip black powder coated cold rolled steel ends with black aluminum cabinet top and back; durable and permanent.
          •	 Interior - attractive, white aluminum liner with stainless steel oor.
          •	 Insulation - entire cabinet structure is foamedin-place using a high density, polyurethane insulation that has zero ozone depletion potential (ODP) and zero global warming potential (GWP).
          •	 Welded, heavy duty steel frame rail, black powder coated for corrosion protection.
          •	 Frame rail tted with leg levelers.
          DOORS
          •	 Double pane thermal insulated glass swing doors with black powder coated frames.
          •	 Door sign decal. Variety of decal options available.
          •	 Each door tted with 12” (305 mm) long extruded handle.
          •	 Self closing doors. Positive seal, torsion type closure system.
          •	 Magnetic door gaskets of one piece construction, removable without tools for ease of cleaning.
          SHELVING
          •	 Twelve (12) adjustable, solid white powder coated cantilever shelves, adjustable for up to 15° tilt in 5° increments. Three (3) white PVC coated wire oor racks.
          •	 Shelves are 24 ½ "L X 21"D (623mm x 534 mm). Floor racks are 22 5 8 "L X 20 ½ "D (575mm x 591mm)
          LIGHTING
          •	 LED interior lighting provides more even lighting throughout the cabinet. Safety shielded.
          MODEL FEATURES
          •	 Evaporator is epoxy coated to eliminate the potential of corrosion.
          •	 See our website www.truemfg.com for latest color and sign o erings.
          •	 Convenient clean-out drain built in cabinet oor.
          •	 NSF/ANSI Standard 7 compliant for open food product.
          ELECTRICAL
          •	 Unit completely pre-wired at factory and ready for nal connection to a 115/60/1 phase, 15 amp dedicated outlet. Cord and plug set included.
          OPTIONAL FEATURES/ACCESSORIES
          Upcharge and lead times may apply.
          ❑ White exterior.
          ❑ Stainless steel exterior.
          ❑ Black aluminum interior liner with black shelving.
          ❑ Clear aluminum interior liner.
          ❑ Stainless steel interior liner.
          ❑ All left hinge doors.
          ❑ All right hinge doors.
          ❑ Wired cantilever shelves.
          ❑ Barrel locks - located in grill assembly (requires one per door)
          ❑ Additional shelves.
          ❑ Product ID strips on shelves and oor racks.
          ❑ TrueFlex bottle organizers available with Wired cantilever shelf option.
          Model: METRIC DIMENSIONS ROUNDED UP TO THE NEAREST WHOLE MILLIMETER SPECIFICATIONS SUBJECT TO CHANGE WITHOUT NOTICE PLAN VIEW KCL TRUE MANUFACTURING CO., INC. 2001 East Terra Lane • O’Fallon, Missouri 63366-4434 • (636)240-2400 • Fax (636)272-2408 • Toll Free (800)325-6152 • Intl. Fax# (001)636-272-7546 • www.truemfg.com FLM-81~TSL01
        Swing
        Model Elevation Right Plan 3D Back FLM-81~TSL01 80 3/4" 2051mm 78 15/16" 2005mm 31 23/32" 806mm 30 5/16" 770mm 54 11/16" 1389mm
        R 80 3/4" 2051mm 78 15/16" 2005mm 54 11/16" 1389mm FLM- R (U.S.A. and Canada only)
        STANDARD FEATURES
        Full Length Merchandiser:
        Door Refrigerator with Hydrocarbon Refrigerant~True Standard Look Version 01
        FLM- 1/ 1F~TSL01
        True M g. ‐ General Foodser ice F M‐81 TS 01 Item 105 Hilton Market Prototype NEXT STEP DESIGN Page: 38
        
    
    
    
    
    
    Grab & Go Merchandiser Features:
          •Multi-Deck available in 3 versions:
          Regular Standard Depth
          Slim Narrow Depth
          Heated (Regular & Slim Depth)
          Xtra View (Regular & Slim Depth)
          •Offered in various size confgurations
          •Ventilated cooling system, with 2 classes of temperatures for Dairy Products and for Meat and Poultry
          •Interior area & Shelving Design:
          Standard White or Stainless Steel
          •Glass or Solid Side Panels
          •Rear Pass Through Door Option to enable easy loading where location allows
          •Electronic Digital Control
          •Heavy Duty Casters Standard
          •LED Lights Standard on all Shelves
          •Adjustable Shelves Standard - Flat or Angles Option
          •Pull Down Night Curtain Standard
          35 Trade Zone Court Ronkonkoma, NY 11779 www.gtidesigns.com Phon e 631.981.2100 Fax 631.981.3509 CustomerService@gtidesigns.com
        United GTI Designs UX S ‐937 Item 105 Hilton Market Prototype NEXT STEP DESIGN Page: 39
        
    35 Trade Zone Court Ronkonkoma, NY 11779 www.gtidesigns.com Phon e 631.981.2100 Fax 631.981.3509 CustomerService@gtidesigns.com All technical data, pictures and drawings contained in this document are not binding on the manufacturer, nor can the manufacturer be held liable for any modifcation of the machine, in part or in whole. Xtra View - REGULAR Xtra UNITED XTRA VIEW UNITED 75.8”(1925mm) 31.5”(800mm) 75.8”(1925mm) 24”(612mm) 45.75”(1162mm) 14” 21”(533mm) Xtra View - REGULAR UNITED XTRA UNITED 31.5”(800mm) 75.8”(1925mm) 24”(612mm) 45.75”(1162mm) 14” 21”(533mm) 14”(358mm) 45.75”(1162mm) Xtra View - REGULAR UNITED XTRA UNITED 31.5”(800mm) 75.8”(1925mm) 24”(612mm) 45.75”(1162mm) 14” 21”(533mm) 0mm) 14”(358mm) 45.75”(1162mm) 3mm) He ew - REGULAR Xtra View - SLIM UNITED XTRA VIEW UNITED 24.4”(620mm) 75.8”(1925mm) 1.5”(800mm) 24”(612mm) 45.75”(1162mm) 10” 14” 14”(353mm) 21”(533mm) 75.9”(1927mm) Xtra View - SLIM UNITED XTRA VIEW UNITED 24.4”(620mm) 75.8”(1925mm) 24”(612mm) 46”(1167mm) 10” 14”(353mm) 22.6”(574mm) 47.25”(1200mm) REGULAR Xtra View - SLIM UNITED XTRA VIEW UNITED 24.4” (620mm) 75.8” (1925mm) 24” (612mm) 46” (1167mm) 10” 14” (353mm)
        Technical Specifications SANITATION LISTED
        United /
        Type Model Width( (w/side panels) Depth Height (with 3” casters) Electrical Requirements Xtra View Slim Dairy & Beverages Meat & Poultry GTI Designs UX S ‐937 Item 105 Hilton Market Prototype NEXT STEP DESIGN Page: 40
        DISPLAY CASES
        
    
              
              
            
            MHOTR242B
          
    Product Features:
          24" width
          Range hood function
          Versatile ventilation options
          Large capacity
          Window included
          Under cabinet LED lighting
          Auto cook
          Kids meal heating option
          17.5" x 24" x 17" (H x W x D)
          24" wide over-the-range microwave in black with digital controls, for ducted or recirculating (ductless) use
          Highlights:
          24" wide over-the-range microwave brings new convenience to small kitchens
          Range hood can function with a vertical duct, horizontal duct, or for recirculating operation
          Ten power levels and multi-stage heating ensure the perfect cooking conditions for a variety of meals
          Smartly sized for full service use in smaller kitchens
          Under-cabinet ventilation with a high/low setting
          This unit can be set up with a vertical duct, horizontal duct, or for recirculating operation
          1.4. cu.ft. interior provides ample room for heating & cooking small or large dishes
          Small window lets you keep watch of your cooking
          Range hood includes two bulbs for convenient illumination of the cooking zone
          Cooking setting that lets you choose from pizza, potatoes, popcorn, beverages, cheese, ice cream, butter, meats, veggies, and reheat
          Designed for easy reheating of common children's meals, with settings specifically for nuggets, hot dogs, fries, and frozen sandwiches
          Timed cooking Touch controls for easy heating of foods and beverages (up to 99 minutes)
          
    
    SUMMIT APPLIANCE DIVISION, FELIX STORCH, INC. | ISO 9001:2015 Certified 770 Garrison Avenue Bronx, NY 10474 USA TEL 718-893-3900 FAX 844-478-8799 info@summitappliance.com www.summitappliance.com Summit MHOT 242B Item 106 Hilton Market Prototype NEXT STEP DESIGN Page: 41
        
    Overview
          Height of Cabinet
          (44 cm) Width
          Width with Door Open
          (61 cm)
          (63 cm)
          (43 cm) Depth with door at 90°
          (98 cm)
          
    
    
    
    MHOTR242B Specifications:
        17.5"
        24.0"
        24.75"
        38.75"
        Capacity 1.4
        Cabinet Black US Electrical Safety UL Canadian Electrical Safety ULC Amps 13.5
        115
        AC/60
        Weight 51.0 lbs. (23 kg)
        Weight 61.0 lbs.
        kg)
        Depth 17.0"
        Door Black
        Voltage/Frequency
        V
        Hz
        Shipping
        (28
        90
        UPC 761101076041 Microwave Type Over-the-Range Wattage 1000.0 Controls Digital Digital Display Yes Turntable Yes Turntable Diameter 12.75"
        Interior Height 10.0"
        Interior Width 14.5"
        cm) Interior Depth 14.38"
        cm) SUMMIT APPLIANCE DIVISION, FELIX STORCH, INC. | ISO 9001:2015 Certified 770 Garrison Avenue Bronx, NY 10474 USA TEL 718-893-3900 FAX 844-478-8799 info@summitappliance.com www.summitappliance.com Summit MHOT 242B Item 106 Hilton Market Prototype NEXT STEP DESIGN Page: 42
        Parts & Labor Warranty
        Days
        (32 cm)
        (25 cm)
        (37
        (37
        
              
              
            
            THIS ITEM IS: SPARE
          NUMBER
          SPARE NUMBER
          MILLWORK
          CUSTOM FABRICATED/NSF
          EXISTING WHERE SHOWN
          RELOCATED MODIFIED
          N.I.K.E.C. BY: OWNER
          SUPPLIER / VENDOR
          OTHERS
          REMARKS:
          Spare SN Item 107 Hilton Market Prototype NEXT STEP DESIGN Page: 43
        
    FETCO CBS‐1151‐ (E115151) Item 108 Hilton Market Prototype NEXT STEP DESIGN Page: 44
        
    FETCO CBS‐1151‐ (E115151) Item 108 Hilton Market Prototype NEXT STEP DESIGN Page: 45
        
    FETCO CBS‐1151‐ (E115151) Item 108 Hilton Market Prototype NEXT STEP DESIGN Page: 46
        
    FETCO CBS‐1151‐ (E115151) Item 108 Hilton Market Prototype NEXT STEP DESIGN Page: 47
        
    FETCO CBS‐1151‐ (E115151) Item 108 Hilton Market Prototype NEXT STEP DESIGN Page: 48
        
    FETCO CBS‐1151‐ (E115151) Item 108 Hilton Market Prototype NEXT STEP DESIGN Page: 49
        
    FETCO CBS‐1151‐ (E115151) Item 108 Hilton Market Prototype NEXT STEP DESIGN Page: 50
        
    FETCO CBS‐1151‐ (E115151) Item 108
        Market Prototype NEXT STEP DESIGN Page: 51
        Hilton
        
    
    
    
    
    
    
    
    
    
    
    
    
    
    
    
    
    
    
    
    
    
    
    
    
    
    
    
    
    
    
    
    
    
    
    
    
    
    
    
    
    
    
    
    
    
    
    
    
    
    
    
    Franke Co ee Systems A600FM Item 109 Hilton Market Prototype NEXT STEP DESIGN Page: 52
        
    
    
    
    
    
    
    
    
    
    
    
    
    
    
    
    
    
    
    
    Franke Co ee Systems A600FM Item 109 Hilton Market Prototype NEXT STEP DESIGN Page: 53
        
    
    Shown with optional base stand
          NOTE: For use in applications with greater than 5 mg/l but less than 400 mg/l total dissolved solids in water and less than 200 mg/l hardness (either naturally occurring or treated with reverse osmosis or other TDS reducing technology).
          Not recommended for use with softened water.
          
    Model configurations
          7 lb (3.2 kg) countertop ice and water
          For freestanding models
          7CI100A-NW-CF-ST-00
          Optional base stand to convert countertop models to freestanding 00956292
          ¹ Internal filter is a 5 micron particle and carbon filter.
          7 Series ice and water dispenser
          Chewblet® ice machine
          Features
          Compact size, only 17.62" (44.8 cm) tall to fit on counters under standard cabinets
          7 lb (3.2 kg) ice storage capacity
          Integral air-cooled ice machine with up to 125 lb (56.7 kg) daily production of popular Chewblet ice
          - designed to serve up to 50 people (201 servings per 9 hr day1)
          - soft, chewable, compressed nugget ice is preferred over cubes2
          - environmentally responsible R134a refrigerant with zero ozone depletion potential
          - energy saving sleep mode
          - quiet production without noisy harvest cycles
          - meets the Consortium for Energy E ciency (CEE) Tier 2 specifications for highly e cient ice machines
          Durable, attractive dispenser
          - modern styling, stainless steel exterior with accent trim
          - dispense-activated soft blue light illuminates point-of-use
          - easy-to-clean, removable 20 oz (591 ml) drip tray
          Designed with sanitation in mind
          - Agion® silver-based antimicrobial product protection of key ice and water contact components 3
          - capacitive touch controls eliminate direct contact with ice
          Installation
          - comes fully assembled
          - two easy connections – electric and water
          - drainless design allows dispenser to be placed anywhere a water line can be run and eliminates the cost of a drain installation
          Warranty
          - 2 years parts and labor, 5 years compressor parts
          - optional extended third year warranty (item# 00960732)
          Accessories
          Touchless SensorSAFE™ dispensing kit, user installed on new and existing models, refer to form# 8815 for additional details.
          SafeCLEAN Plus™ ice machine cleaner, refer to form# 8295
          4.00" (10.16 cm) leg kit for CI - countertop models (item# 00956300)
          6.00" (15.24 cm) leg kit for base stand (item# 00956318)
          Drip tray drain kit for countertop models (includes 4.00" (10.16 cm) legs) (item# 00981977)
          Drip tray drain kit for countertop models used with base stand accessory (does not include 4.00" (10.16 cm) legs) (item# 00956375)
          Filter cartridge, replacement 5 micron particle/carbon (item# 00968107) For additional water treatment and other accessories, refer to form# 4025
          801 Church Lane | Easton, PA 18040, USA 1.800.523.9361 | 1.610.252.7301 | follettice.com
        Ice storage capacity Configuration Filter ¹ Item number
        filter
        no
        7CI100A-IW-NF-ST-00 internal 7CI100A-IW-CF-ST-00 countertop ice-only no filter 7CI100A-NW-NF-ST-00 internal
        Folle 7CI100A‐NW‐CF‐ST‐00 Item 110 Hilton Market Prototype NEXT STEP DESIGN Page: 55
        Specification
          Ice storage capacity
          W1 Width
          D1 Depth
          7 lb (3.2 kg)
          14.62" (37.1 cm)
          22.12" (56.2 cm)
          H1 Height, countertop models 17.62" (44.8 cm)
          H2 Height, with optional base stand 42.00" (106.7 cm)
          H3 Height, optional base stand 24.50" (62.2 cm)
          H4 Dispense height clearance 8.50" (21.59 cm)
          Ventilation clearance
          Service clearance
          C1 115 V/60/1 electrical
          3.00" (7.62 cm) on each side
          3.00" (7.62 cm) behind and on each side
          5 amps, 0.26 kW
          Connect to dedicated 15 amp circuit, fuse or breaker.
          8' (2.4 m) cord w/ NEMA 5-15 90º plug.
          C2 Water inlet 1/4" push-in
          Air temperature 50 -100 F (10 - 38 C)
          Water temperature 40 - 90 F (4 - 32 C)
          Water pressure 10 - 70 psi (69 - 482 kpa)
          Ice production at 70 F (21 C) air and 50 F (10 C) water
          Ice production at 90 F (32 C) air and 70 F (21 C) water
          Energy consumption
          90 F (32 C) air and 70 F (21 C) water
          Heat rejection
          Water consumption
          Approximate net weight –countertop models
          Approximate shipping weight –countertop models
          Approximate net weight –optional base stand
          Approximate shipping weight –optional base stand
          125 lb (56.7 kg)
          100 lb (45.4 kg)
          6.9 kWh per 100 lb (45.4 kg) ice
          1700 BTU/hr
          12 gal (45.4 L) of potable water per 100 lb (45.4 kg) of ice
          74 lb (34 kg)
          87 lb (40 kg)
          24 lb (11 kg)
          42 lb (19 kg)
          NOTE: Intended for commercial use only. Follett can’t guarantee freight carrier’s ability to deliver to residential locations. Follett service providers may not be bonded to perform on-site warranty repairs in certain areas.
          SHORT FORM SPECIFICATION: (Choose one) ____ Ice and water or ____ ice-only dispenser to be Follett automatic load in countertop configuration, with 7 lb (3.2 kg) of storage. Environmentally responsible R134a ice machine to be air-cooled. Ice machine to produce approximately 125 lb (56.7 kg) of Chewblet compressed nugget ice at air temperature of 70 F (21 C) and water temperature of 50 F (10 C). Ice machine to be equipped with printed circuit board and diagnostics to allow simplified servicing and with capacitive touch user interface. Storage area to be insulated with CARB compliant non-HFC foam. 8' (2.4 m) cord and NEMA 5-15 90º plug provided. 115 V/60/1. NSF and ETL listed. For use in applications with greater than 5 mg/l but less than 400 mg/l total dissolved solids in water and less than 200 mg/l hardness (either naturally occurring or treated with reverse osmosis or other TDS reducing technology).
          
              
              
            
            Dimensional drawing
          ¹ 4 oz (118 ml) of ice per cup in a 12 oz (355 ml) cup.
          ² Independent third party studies. Contact Follett for details.
          ³ Disclaimer: Antimicrobial protection is limited to the treated components and does not treat water or ice.
          Agion is a registered trademark of Sciessent LLC.
          SAFECLEAN PLUS and SENSORSAFE are trademarks of Follett Products, LLC.
          CHEWBLET and FOLLETT are registered trademarks of Follett Products, LLC, registered in the US.
          Follett reserves the right to change specifications at any time without obligation. Certifications may vary depending on country of origin.
          7
        801 Church Lane | Easton, PA 18040, USA 1.800.523.9361 | 1.610.252.7301 | follettice.com 3725-202209 | © Follett Products, LLC
        Series ice and water dispenser
        C1 C2 H4 W1 H1 H2 H3 D1 G L2 L1 2.98" (7.57 cm) 2.40" (6.10 cm) air intake 10.74" (27.3 cm) 10.82" (27.5 cm)
        Folle 7CI100A‐NW‐CF‐ST‐00 Item 110 Hilton Market Prototype NEXT STEP DESIGN Page: 56
        
              
              
            
            PRECISION ADJUSTMENT DISPENSING FLEXIBILITY
          DISPENSE-RITE
          ADJ SERIES IN-COUNTER ADJUSTABLE CUP DISPENSERS
          DISPENSE-RITE ADJ Series cup dispensers feature quality stainless steel construction with a quick release mounting collar. These dispensers utilize an
          
    The ADJ-1 is designed to accommodate 4 oz. to 12 oz. paper, plastic or foam cups with rim diameters ranging in size from 2 1⁄2 ”–31⁄2 ”. The ADJ-1 model requires a small 4” hole cut-out and is ideal for many retrofit applications. The ADJ-1.50 is designed to accommodate 8 oz. to 24 oz. paper, plastic or foam cups with rim diameters ranging in size from 3”–3 7⁄8 ”. The ADJ-1.50 model requires a 4 1⁄2” hole cut-out.
          The ADJ-2 is our most popular cup dispenser. This is a One-Size-Fits-All model that offers maximum dispensing flexibility. This unit is designed to accommodate a variety of 8 oz. to 44 oz. paper, plastic or foam cups with rim diameters ranging in size from 3”–4 5⁄8 ”. This model comes in two under counter lengths: 22” or 19”. The ADJ-2 models require a 5 1⁄4 ” hole cut-out.
          The ADJ-3 is the ideal dispenser for Jumbo-Size drink cups and deli containers. This dispenser is designed to accommodate 44 oz. to 64 oz. paper, plastic or foam cups with rim diameters ranging in size from 4 1⁄2 ”–5 1⁄4 ”. The ADJ-3 model requires a larger 5 3⁄4 ” hole cut-out.
          
    1.800.772.2877 18 STAINLESS STEEL CONSTRUCTION ADJ SERIES IN-COUNTER ADJUSTABLE CUP DISPENSERS
        MOUNTING HOLE CUT OUT RING BEZEL DIAMETER
        Cup Rim Under Ring Mounting Model Diameter Counter Bezel Hole Number Range Length Diameter Cut-Out ADJ-1 21⁄2”–31⁄2” 22” 53⁄8” 4” ADJ-1.50 3”–37⁄8” 22” 55⁄8” 41⁄2” ADJ-2 3”–45⁄8” 22” 67⁄8” 51⁄4” ADJ-2S 3”–45⁄8” 19” 67⁄8” 51⁄4” ADJ-3 41⁄2”–51⁄4” 22” 73⁄8” 53⁄4”
        Dispense‐ ite ADJ‐2S Item 111 Hilton Market Prototype NEXT STEP DESIGN Page: 57
        
              
              
            
            IN-COUNTER ADJUSTABLE CUP DISPENSERS
          ADJ-1 AND ADJ-1.50 SLIM-LINE CUP DISPENSERS
          The ADJ-1 is designed to accommodate 4 oz. to 12 oz. paper, plastic or foam cups with rim diameters ranging in size from 2 1⁄2 ”–3 1⁄2 ”. The ADJ-1.50 is designed to accommodate 8 oz. to 24 oz. paper, plastic or foam cups with rim diameters ranging in size from 3”–3 7⁄8 ”.
          
    
    ADJ-2 AND ADJ-2S ONE-SIZE-FITS-ALL CUP DISPENSERS
          These dispensers are designed to accommodate a variety of 8 oz. to 44 oz. paper, plastic or foam cups with rim diameters ranging in size from 3”–4 5⁄8 ”.
          
    
    ADJ-3 JUMBO-SIZE CUP DISPENSERS
          This dispenser is designed to accommodate 44 oz. to 64 oz. paper, plastic or foam cups with rim diameters ranging in size from 4 1⁄2 ”–5 1⁄4 ”.
          
    
    : Position : Spring
          Foam Cups : Any Position : F Spring
          Paper Cups : Horizontal : F Spring
          Plastic Cups : Horizontal : F Spring
          Paper Cups : Angled : P Spring
          Plastic Cups : Angled : P Spring
          Paper Cups : Vertical : P Spring
          Plastic Cups : Vertical : P Spring
          Dispensers ship with both the “F” and “P” compression springs. Single spring models are available; see price list for additional information.
          Stainless ring bezels are standard on all models. Optional gloss black powder coated ring bezels are available for ADJ-2 Series cup dispensers.
          
    Dimensions H x W x D 91⁄8” x 73⁄4” x 4
          
    The optional UCMB-2 stainless steel under counter bracket mounts to any flat surface or wire shelf creating a face plate to mount an ADJ-2 cup dispenser. Maximum counter lip is 15⁄8 ”.
          
              
              
            
            STAINLESS STEEL CONSTRUCTION
          fax 847.753.9648 19 www.dispense-rite.com
        TION
        ADJ SERIES
        • ADJ-2 and ADJ-2S models Color Ring Bezels Under Counter Bracket Spring Configurations One-Size-Fits-All 8 oz. to 44 oz. 22” UNDER COUNTER LENGTH ADJ-1.50 8 oz. to 24 oz. 4 oz. to 12 oz. 44 oz. to 64 oz. 19” UNDER COUNTER LENGTH ADJ-2S One-Size-Fits-All 8 oz. to 44 oz.
        Dispense‐ ite ADJ‐2S Item 111 Hilton Market Prototype NEXT STEP DESIGN Page: 58
        
    
    
    
    
    
    
    
    
    G-SERIES
          2-Section Refrigerator Reach-In
          Self-Contained Solid Door(s)
          
    
    
    
    
    
    
    STANDARD PRODUCT FEATURES
          • High Performance, Energy Effcient Refrigeration System
          
    • Reliable Microprocessor Control With LED Temperature Display
          • Evaporator Coil Outside Food Zone Provides More Usable Space
          • Load-Sure Guard Prevents Problems From Improper Loading
          • Durable All Metal Construction
          • Stainless Steel Front & Doors, Anodized Aluminum Sides & Interior
          • Full or Half Height Door Models with a Variety of Hinging Confgurations
          • Long Life EZ-Clean Door Gaskets
          • Three (3) Epoxy Coated Shelves Per Section (factory installed)
          • Easy to Maintain Front Facing Condenser Coil
          • 6" High Locking Casters
          • Guaranteed for Life Door Handles & Hinges
          • 3-Year Parts & Labor Warranty
          • 2-Years Additional Compressor Parts Warranty
          ACCESSORIES & OPTIONS (*feld installed)
          ◘ Tray Slides for 18" x 26" Sheet Pans*
          ◘ Tray Slides for 12" x 20" Food Pans*
          ◘ Tray Slides for 14" x 18" Sheet Pans*
          ◘ Tray Slides for 18" x 26, 12" x 20" & 14" x 18" Pans*
          ◘ Additional Shelves*
          AVAILABLE CONFIGURATIONS
          Half-Height Door Models Hinging
          G20000 Left/Right
          G20001 Right/Left
          G20002 Right/Right
          G20003 Left/Left
          Full-Height Door Models Hinging
          G20010 Left/Right
          G20011 Right/Left
          G20012 Right/Right
          G20013 Left/Left
          ◘ 6" High Legs*
          ◘ Lower Height Casters*
          *Please refer to form number TR35872 for precise kit details. See
          Approved by______________________________________ Date___________ Approved by______________________________________ Date__________
        Printed in U.S.A. Traulsen • 4401 Blue Mound Road Fort Worth, TX 76106 • 1-800-825-8220 • www.traulsen.com TR36023 (11-17-21) DEALERS CHOICE G-SERIES COMMERCIAL REFRIGERATIO N Project AIA # SIS # Item #
        Quantity C.S.I. Section 114000
        back page
        Many models are ENERGY STAR® listed. Please refer to www.energystar.gov to view the most up-to-date product listing and performance data. This unit is listed to the applicable UL, CSA and NSF Standards by an approved NRTL. Consult the factory or unit's data plate for approval information. Traulsen G20000 Item BOH‐1 Hilton Market Prototype NEXT STEP DESIGN Page: 59
        for tray slide versatility chart.
        
    
    
    
    
    
    
    
    
    MODELS
          Half Height Door Models: G20000, G20001, G20002, G20003
          
    
    CLICK TRANSFER For KCL CADalog Website
          
    
    G-SERIES
        G20000 Item BOH‐1 Hilton Market Prototype NEXT STEP DESIGN Page: 60
        Traulsen
          MODELS
          Full Height Door Models: G20010, G20011, G20012, G20013
          
    2-Section Refrigerator Reach-In Self-Contained Solid Door(s)
          
    TRANSFER For KCL CADalog Website
          
    
    G-SERIES
        G-SERIES
        CLICK
        G20000 Item BOH‐1 Hilton Market Prototype NEXT STEP DESIGN Page: 61
        Traulsen
          
    
    
    
    
    
    
    
    
    MODELS
          Half Height Door Models: G20000, G20001, G20002, G20003
          Full Height Door Models: G20010, G20011, G20012, G20013
          NOTES:
          1. Net Capacity cu. ft. = Half Height Door | Full Height Door models.
          2. Height shown when mounted on standard 6" high casters.
          3. Figure shown refects the area of standard shelf compliment.
          4. MDEC = Maximum Daily Energy Consumption
          5. Based on a 90°F ambient and 20°F evaporator.
          
    
    
    2-Section Refrigerator Reach-In Self-Contained Solid Door(s)
          EQUIPMENT SPECIFICATIONS
          CONSTRUCTION, HARDWARE, INSULATION
          Cabinet exterior front, louver assembly and door(s) are constructed of heavy gauge stainless steel. Cabinet sides (including returns), interior and door liners are constructed of anodized aluminum. The exterior cabinet top, back and bottom are constructed of heavy gauge galvanized steel. A set of four (4) 6" high locking casters are included. Doors are equipped with a gasket protecting, raised metal door pan, cylinder locks, and guaranteed for life self-closing cam-lift hinges with a stay open feature at 120 degrees. Hinges include a concealed switch to automatically activate the interior LED lighting. Guaranteed for life, metal work fow door handles are mounted horizontally over recess in door which limits protrusion into aisle ways. Gasket profle and durable long life material simplify cleaning and increase overall gasket life. Anti-condensate heaters are located behind each door opening. Both the cabinet and door(s) are insulated with an average of 2" thick high density, non-CFC, 100% foamed in place polyurethane.
          SELF-CONTAINED REFRIGERATION SYSTEM
          A top mounted, self-contained, balanced refrigeration system using environmentally friendly, non-flammable R-450A refrigerant is conveniently located behind the one piece louver assembly. It features an easy to clean front facing condenser, thermostatic expansion valve metering device, air-cooled hermetic compressor, large, high humidity evaporator coil located outside the food zone and a top mounted non-electric condensate evaporator. A 9’ cord and plug is provided. Standard operating temperature is 34° to 38°F.
          CONTROL
          The easy to use water resistant microprocessor control is supplied standard. It includes a 3-Digit LED Display, and a Fahrenheit or Celsius Temperature Scale Display Capability.
          INTERIOR ARRANGEMENTS
          Standard interior arrangements include three (3) epoxy coated steel wire shelves per section, mounted on shelf pins, installed at the factory. Shelves are full-width, and do not have any large gaps between them requiring the use of “bridge” or “junior shelves.” Recommended load limit per shelf should not exceed 225 lbs.
          DOMESTIC WARRANTY
          Both a three year parts and labor warranty and an additional two year compressor parts warranty (for a total of fve on selfcontained models) are provided standard
          
    
    
    G-SERIES
        CONTINUED PRODUCT DEVELOPMENT MAY NECESSITATE SPECIFICATION CHANGES WITHOUT NOTICE. TR36023 (11-17-21) Traulsen • 4401 Blue Mound Road Fort Worth, TX 76106 • 1-800-825-8220 • www.traulsen.com Printed in U.S.A.
        MODELS G200_ _
        Net Capacity cu. ft.1 45.89 (1300 l) | 46.02 (1303 l) L x D x H - Overall in.2 521⁄8 (132.4 cm) x 35 (88.8 cm) x 837⁄16 (211.9 cm) Depth - over body in. 32 (81.3 cm) Depth - door open 90° in. 575⁄8 (146.3 cm) Clear half-door W x H in. 211⁄8 (53.6 cm) x 271⁄2 (69.9 cm) Clear full-door W x H in. 211⁄8 (53.6 cm) x 575⁄8 (146.3 cm) No. Standard Shelves 6 Shelf Area sq. ft. 3 34.6 (3.21 sq m) ELECTRICAL DATA Voltage | Plug 115/60/1 | NEMA 5-15P (attached) Feed wires with ground 3 Full Load Amperes | MDEC4 7.4 | 3.48 kWh/Day REFRIGERATION DATA Refrigerant R-450A Refrigerant Charge Amount 16 oz (453.6 g) BTU/HR | H.P.5 2240 | 1/3 HP Required Clearance 12" Above SHIPPING DATA L x D x H Crated in. 62 (158 cm) x 42(107 cm) x 85 (216 cm) Volume Crated cu. ft. 128 (3625 l) Uncrated | Crated Weight lbs. 450 (204 kg) | 480 (218 kg)
        DIMENSIONAL DATA
        • Upper Half Height Door1 • Lower Half Height Door2 OPTIONAL ACCESSORY TRAY SLIDE VERSATILITY CHART TRAY SLIDE DRAWINGS TRAY SLIDE OFFERING #1 (1) 18” x26” or (2) 14”x18” #4 (Rod Type) (1) 18” x26” Universal (1) 18” x26” or (2) 14”x18” or (2) 12”x20” #1 EZ-Change (1) 18” x26” or (2) 14”x18” Universal EZ-Change (1) 18” x26” or (2) 14”x18” or (2) 12”x20” HD Universal EZ-Change (1) 18” x26” or (2) 14”x18” or (2) 12”x20” SPACING CAPACITY DOOR SIZE 2” 28 Pairs Full Door & 13 Half 3” 19 Pairs Full Door & 09 Half 4” 14 Pairs Full Door & 07 Half 5” 11 Pairs Full Door & 05 Half 1 1/2” 38 Pairs Full Door (2 Pair) 1 1/2” 18 Pairs Half Door (1 Pair) 4” 14 Pairs Full Door & 06 Half1 4” 14 Pairs Full Door & 07 Half2 5” 11 Pairs Full Door & 05 Half 6” 09 Pairs Full Door & 04 Half 2” 26 Pairs Full Door & 12 Half 4” 13 Pairs Full Door & 06 Half 2 1/4” 22 Pairs Full Door & 11 Half 4 1/2” 11 Pairs Full Door & 05 Half 4 1/2” 11 Pairs Full Door & 05 Half 9” 05 Pairs Full Door & 02 Half Traulsen G20000 Item BOH‐1 Hilton Market Prototype NEXT STEP DESIGN Page: 62
        
    
    
    
    
    
    
    
    
    G-SERIES
          1-Section Freezer Reach-In Self-Contained Solid Door(s)
          
    
    
    
    
    
    
    AVAILABLE CONFIGURATIONS
          Half-Height Door Models Hinging
          G12000 Right
          G12001 Left
          Full-Height Door Models Hinging
          G12010 Right
          G12011 Left
          Quantity C.S.I. Section 114000
          STANDARD PRODUCT FEATURES
          • High Performance, Energy Effcient Refrigeration System
          
    • Reliable Microprocessor Control With LED Temperature Display
          • Evaporator Coil Outside Food Zone Provides More Usable Space
          • Load-Sure Guard Prevents Problems From Improper Loading
          • Durable All-Metal Construction
          • Stainless Steel Front & Doors, Anodized Aluminum Sides & Interior
          • Full or Half Height Door Models with a Variety of Hinging Confgurations
          • Long Life EZ-Clean Door Gasket(s)
          • Three (3) Epoxy Coated Shelves Per Section (factory installed)
          • Easy to Maintain Front Facing Condenser Coil
          • 6" High Locking Casters
          • Guaranteed for Life Door Handles & Hinges
          • 3-Year Parts & Labor Warranty
          • 2-Years Additional Compressor Parts Warranty
          ACCESSORIES
          &
          OPTIONS
          (*feld installed)
          ◘ Tray Slides for 18" x 26" Sheet Pans*
          ◘ Tray Slides for 12" x 20" Food Pans*
          ◘ Tray Slides for 14" x 18" Sheet Pans*
          ◘ Tray Slides for 18" x 26, 12" x 20" & 14" x 18" Pans*
          ◘ Additional Shelves*
          ◘ 6" High Legs*
          ◘ Lower Height Casters*
          *Please refer to form number TR35872 for precise kit details. See back page for tray slide versatility chart.
          Approved by______________________________________ Date___________ Approved by______________________________________ Date__________
        Printed in U.S.A. Traulsen • 4401 Blue Mound Road Fort Worth, TX 76106 • 1-800-825-8220 • www.traulsen.com TR36022 (11-17-21) DEALERS CHOICE G-SERIES COMMERCIAL REFRIGERATIO N Project AIA # SIS #
        Item #
        Many
        This
        applicable UL,
        and
        approved
        Consult
        approval information. Traulsen G12000 Item BOH‐2 Hilton Market Prototype NEXT STEP DESIGN Page: 63
        models are ENERGY STAR® listed. Please refer to www.energystar.gov to view the most up-to-date product listing and performance data.
        unit is listed to the
        CSA
        NSF Standards by an
        NRTL.
        the factory or unit's data plate for
        
    
    
    
    
    
    
    
    
    MODELS
          Half Height Door Models: G12000, G12001
          
    
    CLICK TRANSFER For KCL CADalog Website
          
    
    G-SERIES
        Traulsen G12000 Item BOH‐2 Hilton Market Prototype NEXT STEP DESIGN Page: 64
        1-Section Freezer Reach-In Self-Contained Solid Door(s)
          MODELS
          Full Height Door Models: G12010, G12011
          
    
    CLICK TRANSFER For KCL CADalog Website
          
    
    G-SERIES
        G-SERIES
        G12000 Item BOH‐2 Hilton Market Prototype NEXT STEP DESIGN Page: 65
        Traulsen
          
    
    
    
    
    
    
    
    
    MODELS
          Half Height Door Models: G12000, G12001
          Full Height Door Models: G12010, G12011
          ambient and -20°F evaporator.
          
    
    
    1-Section Freezer Reach-In Self-Contained Solid Door(s)
          EQUIPMENT SPECIFICATIONS
          CONSTRUCTION, HARDWARE, INSULATION
          Cabinet exterior front, louver assembly and door(s) are constructed of heavy gauge stainless steel. Cabinet sides (including returns), interior and door liners are constructed of anodized aluminum. The exterior cabinet top, back and bottom are constructed of heavy gauge galvanized steel. A set of four (4) 6" high locking casters are included. Doors are equipped with a gasket protecting, raised metal door pan, cylinder locks, and guaranteed for life self-closing cam-lift hinges with a stay open feature at 120 degrees. Hinges include a concealed switch to automatically activate the interior LED lighting. Guaranteed for life, metal work fow door handles are mounted horizontally over recess in door which limits protrusion into aisle ways. Gasket profle and durable long life material simplify cleaning and increase overall gasket life. Anti condensate heaters are located behind each door opening. Both the cabinet and door(s) are insulated with an average of 2" thick high density, non-CFC, 100% foamed in place polyurethane.
          SELF-CONTAINED REFRIGERATION SYSTEM
          A top mounted, self-contained, balanced refrigeration system using environmentally friendly, non-fammable R-448A refrigerant is conveniently located behind the one piece louver assembly. It features an easy to clean front facing condenser, thermostatic expansion valve metering device, air-cooled hermetic compressor, large, high humidity evaporator coil located outside the food zone and a top mounted non-electric condensate evaporator. A 9 cord and plug is provided. Standard operating temperature is 0 to -5°F and can be adjusted to operate as low as -10°F in a 90°F or less ambient.
          CONTROL
          The easy to use water resistant microprocessor control is supplied standard. It includes a 3-Digit LED Display, and a Fahrenheit or Celsius Temperature Scale Display Capability.
          INTERIOR ARRANGEMENTS
          Standard interior arrangements include three (3) epoxy coated steel wire shelves, mounted on shelf pins, installed at the factory. Recommended load limit per shelf should not exceed 225 lbs.
          DOMESTIC WARRANTY
          Both a three year parts and labor warranty and an additional two year compressor parts warranty (for a total of fve on self-contained models) are provided standard
          
    
    
    G-SERIES
        CONTINUED PRODUCT DEVELOPMENT MAY NECESSITATE SPECIFICATION CHANGES WITHOUT NOTICE. TR36022 (11-17-21) Traulsen • 4401 Blue Mound Road Fort Worth, TX 76106 • 1-800-825-8220 • www.traulsen.com Printed in U.S.A.
        MODELS G120_ _ DIMENSIONAL DATA Net Capacity cu. ft.1 23.37 (661.8 l) | 23.43 (663.5 l) L x D x H - Overall in.2 297⁄8 (75.9 cm) x 35 (88.8 cm) x 837⁄16 (211.9 cm) Depth - over body in. 32 (81.3 cm) Depth - door open 90° in. 575⁄8 (146.3 cm) Clear half-door W x H in. 211⁄8 (53.6 cm) x 271⁄2 (69.9 cm) Clear full-door W x H in. 211⁄8 (53.6 cm) x 575⁄8 (146.3 cm) No. Standard Shelves 3 Shelf Area sq. ft. 3 18.8 (1.75 sq m) ELECTRICAL DATA Voltage | Plug 115/60/1 | NEMA 5-15P (attached) Feed wires with ground 3 Full Load Amperes | MDEC4 9.7 | 6.20 kWh/Day REFRIGERATION DATA Refrigerant R-448A Refrigerant Charge oz. 14 (396.9 g) BTU/HR | H.P.5 1500| 1/2 HP Required Clearance 12" Above SHIPPING DATA L x D x H Crated in. 48 (122 cm) x 42 (107 cm) x 85 (216 cm) Volume Crated cu. ft. 99 (2803 l)
        NOTES: 1. Net Capacity cu. ft. = Half Height Door | Full Height Door models. 2. Height shown when mounted on standard 6" high casters. 3. Figure shown refects the area of standard shelf compliment. 4. MDEC = Maximum Daily Energy Consumption 5. Based on a 90°F
        • Upper Half Height Door1 • Lower Half Height Door2 OPTIONAL ACCESSORY TRAY SLIDE VERSATILITY CHART TRAY SLIDE DRAWINGS TRAY SLIDE OFFERING #1 (1) 18” x26” or (2) 14”x18” #4 (Rod Type) (1) 18” x26” Universal (1) 18” x26” or (2) 14”x18” or (2) 12”x20” #1 EZ-Change (1) 18” x26” or (2) 14”x18” Universal EZ-Change (1) 18” x26” or (2) 14”x18” or (2) 12”x20” HD Universal EZ-Change (1) 18” x26” or (2) 14”x18” or (2) 12”x20” SPACING CAPACITY DOOR SIZE 2” 28 Pairs Full Door & 13 Half 3” 19 Pairs Full Door & 09 Half 4” 14 Pairs Full Door & 07 Half 5” 11 Pairs Full Door & 05 Half 1 1/2” 38 Pairs Full Door (2 Pair) 1 1/2” 18 Pairs Half Door (1 Pair) 4” 14 Pairs Full Door & 06 Half1 4” 14 Pairs Full Door & 07 Half2 5” 11 Pairs Full Door & 05 Half 6” 09 Pairs Full Door & 04 Half 2” 26 Pairs Full Door & 12 Half 4” 13 Pairs Full Door & 06 Half 2 1/4” 22 Pairs Full Door & 11 Half 4 1/2” 11 Pairs Full Door & 05 Half 4 1/2” 11 Pairs Full Door & 05 Half 9” 05 Pairs Full Door & 02 Half Traulsen G12000 Item BOH‐2 Hilton Market Prototype NEXT STEP DESIGN Page: 66
        
    
    
    
    
    
    
    
    
    
    
    
    
    
    New Age 2051 Item BOH‐3 Hilton Market Prototype NEXT STEP DESIGN Page: 67
        MetroMax Q® Polymer / Wire Shelving
          Quick-to-adjust, corrosion resistant shelving constructed of removable polymer open grid shelf mats, wire shelf frames, and corner releases. Shelf frames and steel posts have an epoxy coating over an electroplated substrate. Shelves offer a 20 year warranty against rust and corrosion. Polymer posts are rust proof. Microban® antimicrobial product protection is built into the shelf mats and posts. Shelf has a rigid four-sided frame with center truss(es). Robust corner provides complete 360° capture of the wedge and post for added stability. Stationary units have maximum capacity of 2,000 lbs. (907kg) evenly distributed. Mobile units (with stem casters) offer a maximum total unit load of 900 lbs. (408kg). Units assemble easily — shelves mount on four onepiece wedges along grooved, numbered posts and adjust on 1" (25mm) increments.
          • Forever Strong: Proven corner connection and four-sided shelf frame with center truss(es) assures stability and strength in stationary, mobile, and high-density track shelving confgurations.
          800 lbs. (363kg) per shelf for lengths of 24" to 48" (610 to 1219mm) 600 lbs. (272kg) per shelf for lengths of 54" (1372mm) or longer
          Stationary unit: 2000lbs (907kg) evenly distributed.
          Mobile unit (with stem casters): Up to 900lbs. (408kg).
          Multiply the caster load rating by 3 to determine actual rating.
          • Long life Rust Resistance: Shelves offer a 20 year limited corrosion warranty and are combined with rust proof polymer posts.
          • Easy to Clean and Maintain: Polymer mats can be easily removed and cleaned in a sink or commercial washer / dish machine.
          • Microban® Antimicrobial Product Protection is built into the shelf mats and posts to inhibit the growth of bacteria, mold, mildew, and fungus that cause odors and product degradation. Microban product protection keeps the product “cleaner between cleanings”.
          • Quick-to-Adjust: Patented corner release allows shelves to be adjusted without tools. Simply fip each corner release, relocate the wedge connectors on the posts, and reposition the shelf. Quickly adjust shelves to reclaim wasted vertical space.
          •	Effcient Use of Space: Shelves adjust on 1" (25mm) increments along the post to maximize the use of available vertical space.
          • Fast, Easy Assembly: Shelves are ready to use right out of the box. One-piece wedges securely attach to the posts. Raised beads on the back of each wedge snap into grooves on the post. Window on wedge aligns with numbers on the post to locate the desired shelf position. Shelf mounts on four wedges, A unit can be assembled without tools in minutes.
          • Interchangeable: Part of the MetroMax platform, MetroMax Q shelves are compatible on the same shelving units with MetroMax i and MetroMax 4 shelves.
          • Open Grid and Solid Mat Options: MetroMax Q is available with open grid mats. Open grid shelves promote air circulation and light penetration. If a solid shelf is required, MetroMax i or MetroMax 4 solid shelves may be added to the MetroMax Q unit.
          • NSF Listed for all environments.
          • Optional Accessories are on spec sheet 9.25.
          Material Specifcations:
          • Shelf Mats: Injection-molded polypropylene with exclusive built-in Microban® antimicrobial product protection.
          • Shelf frames: Steel with electroplated substrate and highly durable, abrasion-resistant epoxy fnish.
          • Epoxy-coated posts: Steel with electroplated substrate and highly durable, abrasion-resistant epoxy fnish. Epoxy fnish has built-in Microban antimicrobial product protection. The adjustable foot is reinforced nylon.
          • Temperature range: -20°F (-29°C) to 125°F (52°C) continuous use, with intermittent exposure to 200°F (93°C) for cleaning.
          *MICROBAN® and the MICROBAN® symbol are registered trademarks of the Microban® Products Company, Huntersville, NC. Microban® product protection does not by itself protect a user from food borne illness. Product must be routinely cleaned.
          
    
    
    
    
    Item # Job Item Job L02-178 Printed in U.S.A. 6/22 Information and specifcations are subject to change without notice. Please confrm at time of order. Copyright © 2022 InterMetro Industries Corp. InterMetro Industries Corporation North Washington Street, Wilkes-Barre, PA 18705 Product Information. U.S. and Canada: 1.800.992.1776 Outside U.S. and Canada: www.metro.com/contactus All Metro Catalog Sheets are available on our website: www.metro.com 9.21 MetroMax Q ® Polymer / Wire Shelving
        Quick-toAdjust
          Removable shelf mats
          CLEAN D E NGIS Metro MQ2442G Item BOH‐4 Hilton Market Prototype NEXT STEP DESIGN Page: 68
        
              
              
            
            MetroMax Q® POLYMER / WIRE SHELVING
          Standard Interchangeable Shelves
          Part number includes shelf with removable mats and one bag of wedges
          Heavy-Duty Dunnage Shelves
          • Weight capacity per shelf evenly distributed: 1,200 lbs. (544kg) on shelves up to and including 48" (1219mm) long; 900 lbs. (408kg) for shelves 54" (1370mm) and longer.
          • Dunnage shelves must be used on shelving units with four posts.
          Rust Proof Polymer Posts - Lifetime warranty against rust.
          Stationary - with leveling foot
          MX13P 0.5 0.2 13 370 143/16 360
          MX27P 0.9 0.4 27 685 283/16 716
          MX33P 1.0 0.5 33 875 343/16 868
          MX54P 1.6 0.7 54 1370 543/16 1376
          MX63P 1.8 0.8 63 1585 623/16 1580
          MX74P 2.3 1.0 74 1690 743/16 1884
          MX86P 2.5 1.4 86 2195 863/16 2189
          Shelf Depth 14fl (356mm) 18fl (457mm) 21fl (533mm) 24fl (610mm)
          Maximum Post Height Allowable
          Stationary 63fl (1600mm) 86fl (2184mm) 86fl (2184mm) 86fl (2184mm) Mobile 54fl (1372mm) 74fl (1880mm) 74fl (1880mm) 86fl (2184mm)
          Note: 14” deep stationary shelving taller than 63” must be properly fastened to foor or the wall.
          Mobile - for stem casters
          685 283/16 716 MX33UP 1.0 0.5 33 875 343/16 868 MX54UP 1.6 0.7 54 1370 543/16 1376
          MX63UP 1.8 0.8 63 1585 623/16 1580
          MX70UP 2.0 0.9 70 1778 69 3/16 1757
          MX74UP 2.3 1.0 74 1690 743/16 1884
          MX86UP 3.0 1.4 86 2195 863/16 2189
          Epoxy Coated Steel Posts - For heavy-duty mobile applications. 15 year limited rust warranty.
          Stationary - with leveling foot
          No. (lbs.) (kg) (in.) (mm) (in.) (mm)
          MQ13PE 1.0 0.5 13 370 143/16 360
          MQ27PE 2.0 0.9 27 685 283/16 716
          MQ33PE 2.5 1.1 33 875 343/16 868
          MQ54PE 4.0 1.8 54 1370 543/16 1376
          MQ63PE 4.5 2.0 63 1585 623/16 1580
          MQ74PE 5.5 2.5 74 1690 743/16 1884
          MQ86PE 6.5 2.9 86 2195 863/16 2189
          Mobile - for stem casters
          
    
    MQ13UPE 1.0 0.5 13 370 14 3/16 360
          MQ27UPE
          
    
    Shelf Wedge Connector: Reinforced nylon. Replacement MetroMax Q Wedges Cat. No. MQ9985 (Bag of 4)
          
    Job
        9.21 MetroMax Q ® Polymer / Wire Shelving Approx.
        Polymer
        Model
        Nominal Actual
        Pkd. Wt. Height Height
        Approx. Nominal Actual Polymer Pkd. Wt. Height Height Model No. (lbs.) (kg) (in.) (mm) (in.) (mm)
        0.2 13 370 143
        360
        27
        MX13UP 0.5
        /16
        MX27PE 2.0 0.9
        Epoxy-Coated Approx. Nominal Actual Steel Pkd. Wt. Height Height Model No. (lbs.)
        (kg) (in.) (mm) (in.) (mm)
        Epoxy-Coated Approx. Nominal Actual Steel Pkd. Wt. Height Height Model No. (lbs.)
        (in.) (mm) (in.) (mm)
        (kg)
        2.0 0.9 27 685 28 3/16 716 MQ33UPE 2.5 1.1 33 875 34 3/16 868 MQ54UPE 4.0 1.8 54 1370 54 3/16 1376 MQ63UPE 4.5 2.0 63 1585 62 3/16 1580 MQ70UPE 2.0 0.9 70 1778 69 3/16 1757 MQ74UPE 5.5 2.5 74 1690 74 3/16 1884 MQ86UPE 6.5 2.9 86 2195 86 3/16 2189
        x4
        steel post
        Mobile Mobile
        Polymer post Epoxy-coated
        Stationary Stationary
        Nominal Approx. Grid Mat Width Length Pkd. Wt. Model No. (in.) (mm) (in.) (mm) (lbs.) (kg)
        Metro MQ2442G Item BOH‐4 Hilton Market Prototype NEXT STEP DESIGN Page: 69
        MetroMax Q® Polymer / Wire Shelving
          Quick-to-adjust, corrosion resistant shelving constructed of removable polymer open grid shelf mats, wire shelf frames, and corner releases. Shelf frames and steel posts have an epoxy coating over an electroplated substrate. Shelves offer a 20 year warranty against rust and corrosion. Polymer posts are rust proof. Microban® antimicrobial product protection is built into the shelf mats and posts. Shelf has a rigid four-sided frame with center truss(es). Robust corner provides complete 360° capture of the wedge and post for added stability. Stationary units have maximum capacity of 2,000 lbs. (907kg) evenly distributed. Mobile units (with stem casters) offer a maximum total unit load of 900 lbs. (408kg). Units assemble easily — shelves mount on four onepiece wedges along grooved, numbered posts and adjust on 1" (25mm) increments.
          • Forever Strong: Proven corner connection and four-sided shelf frame with center truss(es) assures stability and strength in stationary, mobile, and high-density track shelving confgurations.
          800 lbs. (363kg) per shelf for lengths of 24" to 48" (610 to 1219mm) 600 lbs. (272kg) per shelf for lengths of 54" (1372mm) or longer
          Stationary unit: 2000lbs (907kg) evenly distributed.
          Mobile unit (with stem casters): Up to 900lbs. (408kg).
          Multiply the caster load rating by 3 to determine actual rating.
          • Long life Rust Resistance: Shelves offer a 20 year limited corrosion warranty and are combined with rust proof polymer posts.
          • Easy to Clean and Maintain: Polymer mats can be easily removed and cleaned in a sink or commercial washer / dish machine.
          • Microban® Antimicrobial Product Protection is built into the shelf mats and posts to inhibit the growth of bacteria, mold, mildew, and fungus that cause odors and product degradation. Microban product protection keeps the product “cleaner between cleanings”.
          • Quick-to-Adjust: Patented corner release allows shelves to be adjusted without tools. Simply fip each corner release, relocate the wedge connectors on the posts, and reposition the shelf. Quickly adjust shelves to reclaim wasted vertical space.
          •	Effcient Use of Space: Shelves adjust on 1" (25mm) increments along the post to maximize the use of available vertical space.
          • Fast, Easy Assembly: Shelves are ready to use right out of the box. One-piece wedges securely attach to the posts. Raised beads on the back of each wedge snap into grooves on the post. Window on wedge aligns with numbers on the post to locate the desired shelf position. Shelf mounts on four wedges, A unit can be assembled without tools in minutes.
          • Interchangeable: Part of the MetroMax platform, MetroMax Q shelves are compatible on the same shelving units with MetroMax i and MetroMax 4 shelves.
          • Open Grid and Solid Mat Options: MetroMax Q is available with open grid mats. Open grid shelves promote air circulation and light penetration. If a solid shelf is required, MetroMax i or MetroMax 4 solid shelves may be added to the MetroMax Q unit.
          • NSF Listed for all environments.
          • Optional Accessories are on spec sheet 9.25.
          Material Specifcations:
          • Shelf Mats: Injection-molded polypropylene with exclusive built-in Microban® antimicrobial product protection.
          • Shelf frames: Steel with electroplated substrate and highly durable, abrasion-resistant epoxy fnish.
          • Epoxy-coated posts: Steel with electroplated substrate and highly durable, abrasion-resistant epoxy fnish. Epoxy fnish has built-in Microban antimicrobial product protection. The adjustable foot is reinforced nylon.
          • Temperature range: -20°F (-29°C) to 125°F (52°C) continuous use, with intermittent exposure to 200°F (93°C) for cleaning.
          *MICROBAN® and the MICROBAN® symbol are registered trademarks of the Microban® Products Company, Huntersville, NC. Microban® product protection does not by itself protect a user from food borne illness. Product must be routinely cleaned.
          
    
    
    
    
    Item # Job Item Job L02-178 Printed in U.S.A. 6/22 Information and specifcations are subject to change without notice. Please confrm at time of order. Copyright © 2022 InterMetro Industries Corp. InterMetro Industries Corporation North Washington Street, Wilkes-Barre, PA 18705 Product Information. U.S. and Canada: 1.800.992.1776 Outside U.S. and Canada: www.metro.com/contactus All Metro Catalog Sheets are available on our website: www.metro.com 9.21 MetroMax Q ® Polymer / Wire Shelving
        Quick-toAdjust
          Removable shelf mats
          CLEAN D E NGIS Metro MQ86PE Item BOH‐4 Hilton Market Prototype NEXT STEP DESIGN Page: 70
        
              
              
            
            MetroMax Q® POLYMER / WIRE SHELVING
          Standard Interchangeable Shelves
          Part number includes shelf with removable mats and one bag of wedges
          Heavy-Duty Dunnage Shelves
          • Weight capacity per shelf evenly distributed: 1,200 lbs. (544kg) on shelves up to and including 48" (1219mm) long; 900 lbs. (408kg) for shelves 54" (1370mm) and longer.
          • Dunnage shelves must be used on shelving units with four posts.
          Rust Proof Polymer Posts - Lifetime warranty against rust.
          Stationary - with leveling foot
          MX13P 0.5 0.2 13 370 143/16 360
          MX27P 0.9 0.4 27 685 283/16 716
          MX33P 1.0 0.5 33 875 343/16 868
          MX54P 1.6 0.7 54 1370 543/16 1376
          MX63P 1.8 0.8 63 1585 623/16 1580
          MX74P 2.3 1.0 74 1690 743/16 1884
          MX86P 2.5 1.4 86 2195 863/16 2189
          Shelf Depth 14fl (356mm) 18fl (457mm) 21fl (533mm) 24fl (610mm)
          Maximum Post Height Allowable
          Stationary 63fl (1600mm) 86fl (2184mm) 86fl (2184mm) 86fl (2184mm) Mobile 54fl (1372mm) 74fl (1880mm) 74fl (1880mm) 86fl (2184mm)
          Note: 14” deep stationary shelving taller than 63” must be properly fastened to foor or the wall.
          Mobile - for stem casters
          685 283/16 716 MX33UP 1.0 0.5 33 875 343/16 868 MX54UP 1.6 0.7 54 1370 543/16 1376
          MX63UP 1.8 0.8 63 1585 623/16 1580
          MX70UP 2.0 0.9 70 1778 69 3/16 1757
          MX74UP 2.3 1.0 74 1690 743/16 1884
          MX86UP 3.0 1.4 86 2195 863/16 2189
          Epoxy Coated Steel Posts - For heavy-duty mobile applications. 15 year limited rust warranty.
          Stationary - with leveling foot
          No. (lbs.) (kg) (in.) (mm) (in.) (mm)
          MQ13PE 1.0 0.5 13 370 143/16 360
          MQ27PE 2.0 0.9 27 685 283/16 716
          MQ33PE 2.5 1.1 33 875 343/16 868
          MQ54PE 4.0 1.8 54 1370 543/16 1376
          MQ63PE 4.5 2.0 63 1585 623/16 1580
          MQ74PE 5.5 2.5 74 1690 743/16 1884
          MQ86PE 6.5 2.9 86 2195 863/16 2189
          Mobile - for stem casters
          
    
    MQ13UPE 1.0 0.5 13 370 14 3/16 360
          MQ27UPE
          
    
    Shelf Wedge Connector: Reinforced nylon. Replacement MetroMax Q Wedges Cat. No. MQ9985 (Bag of 4)
          
    Job
        9.21 MetroMax Q ® Polymer / Wire Shelving Approx.
        Polymer
        Model
        Nominal Actual
        Pkd. Wt. Height Height
        Approx. Nominal Actual Polymer Pkd. Wt. Height Height Model No. (lbs.) (kg) (in.) (mm) (in.) (mm)
        0.2 13 370 143
        360
        27
        MX13UP 0.5
        /16
        MX27PE 2.0 0.9
        Epoxy-Coated Approx. Nominal Actual Steel Pkd. Wt. Height Height Model No. (lbs.)
        (kg) (in.) (mm) (in.) (mm)
        Epoxy-Coated Approx. Nominal Actual Steel Pkd. Wt. Height Height Model No. (lbs.)
        (in.) (mm) (in.) (mm)
        (kg)
        2.0 0.9 27 685 28 3/16 716 MQ33UPE 2.5 1.1 33 875 34 3/16 868 MQ54UPE 4.0 1.8 54 1370 54 3/16 1376 MQ63UPE 4.5 2.0 63 1585 62 3/16 1580 MQ70UPE 2.0 0.9 70 1778 69 3/16 1757 MQ74UPE 5.5 2.5 74 1690 74 3/16 1884 MQ86UPE 6.5 2.9 86 2195 86 3/16 2189
        x4
        steel post
        Mobile Mobile
        Polymer post Epoxy-coated
        Stationary Stationary
        Nominal Approx. Grid Mat Width Length Pkd. Wt. Model No. (in.) (mm) (in.) (mm) (lbs.) (kg)
        Metro MQ86PE Item BOH‐4 Hilton Market Prototype NEXT STEP DESIGN Page: 71
        Project Name: Location:
          2001 East Terra Lane • O’Fallon, Missouri 63366-4434 • (636)240-2400
          Fax (636)272-2408 • Toll Free (800)325-6152 • Intl Fax# (001)636-272-7546
          Parts Dept. (800)424-TRUE • Parts Dept. Fax# (636)272-9471 • www.truemfg.com
          Model:
          Glass Door Merchandiser:
          
    ROUGH-IN DATA
           The world’s #1 manufacturer of glass door merchandisers.
           True’s commitment to using the highest quality materials and oversized refrigeration systems provides the user with colder product temperatures, and lower utility costs in an attractive merchandiser that brilliantly displays packaged food and beverages.
           Designed for convenient access, fast service, and attractive display.
           Factory engineered, self-contained, capillary tube system using environmentally friendly R290 hydro carbon refrigerant that has zero (0) ozone depletion potential (ODP), & three (3) global warming potential (GWP).
           High capacity, factory balanced refrigeration system that maintains cabinet temperatures of 33°F to 38°F (.5°C to 3.3°C) for the best in food preservation.
           Exterior - gleaming stainless steel for those who appreciate the value of stainless.
           Interior - attractive, NSF approved, white aluminum interior liner with stainless steel oor.
           Self closing door. Positive seal, torsion type closure system.
           “Low-E”, double pane thermal insulated glass door assembly with mitered plastic channel frame. The latest in energy e cient technology.
           LED interior lighting provides more even lighting throughout the cabinet. Safety shielded.
           Entire cabinet structure is foamed-inplace using a high density, polyurethane insulation that has zero ozone depletion potential (ODP) and zero global warming potential (GWP).
          Speci cations subject to change without notice. Chart dimensions rounded up to the nearest 1 8" (millimeters rounded up to next whole number).
          † Depth does not include 1 5⁄8 " (42 mm) for door handle. Depth does not include ½ " (13 mm) for system mechanical components. ▲ Plug type varies by country.
          
    Item #: Qty: Model #: AIA # SIS # TRUE MANUFACTURING CO., INC. U.S.A. FOODSERVICE DIVISION
        Printed in U.S.A. APPROVALS: AVAILABLE AT: GDM-07-S-HC~TSL01
        Swing Door Counter-Top Stainless Steel Refrigerator with Hydrocarbon Refrigerant~True Standard Look Version 01 GDM-07-S-HC~TSL01 Model Doors Shelves Cabinet Dimensions (inches) (mm) HP Voltage Amps NEMA Config. Cord Length (total ft.) (total m) Crated Weight (lbs.) (kg) L D† H GDM-07-S-HC~TSL01 1 3 24 1⁄8 24 5⁄8 39 7⁄8 1⁄6 115/60/1 1.9 5-15P 9 TBD 613 626 1013 1⁄6 230-240/50/1 1.1 ▲ 2.74 TBD
        INNOVATION MADE WITH IN THE USA 7/18
        Glass Door Merchandiser:
          DESIGN
          •	 True’s commitment to using the highest quality materials and oversized refrigeration systems provides the user with colder product temperatures, and lower utility costs in an attractive merchandiser that brilliantly displays packaged food and beverages.
          REFRIGERATION SYSTEM
          •	 Factory engineered, self-contained, capillary tube system using environmentally friendly R290 hydrocarbon refrigerant that has zero (0) ozone depletion potential (ODP), & three (3) global warming potential (GWP).
          •	 High capacity, factory balanced refrigeration system that maintains cabinet temperatures of 33°F to 38°F (.5°C to 3.3°C) for the best in food preservation.
          •	 State of the art, electronically commutated evaporator and condenser fan motors. ECM motors operate at higher peak e ciencies and move a more consistent volume of air which produces less heat, reduces energy consumption and provides greater motor reliability.
          CABINET CONSTRUCTION
          •	 Exterior - gleaming stainless steel for those who appreciate the value of stainless.
          PLAN VIEW
          WARRANTY
          T ree ear warrant on all parts and la or and an additional 2 ear warrant on compressor. (U.S.A. onl )
          •	 Interior - attractive, NSF approved, white aluminum liner with stainless steel oor.
          •	 Insulation - entire cabinet structure is foamed-in-place using a high density, polyurethane insulation that has zero ozone depletion potential (ODP) and zero global warming potential (GWP).
          •	 Cabinet tted with 2 ½ ” (64 mm) legs.
          •	 Door sign decal. Variety of decal options available.
          DOOR
          •	 “Low-E”, double pane thermal insulated glass door assembly with mitered plastic channel frame. The latest in energy e cient technology.
          •	 Door tted with 12” (305 mm) long extruded handle.
          •	 Self closing door. Positive seal, torsion type closure system.
          •	 Magnetic door gasket of one piece construction, removable without tools for ease of cleaning.
          SHELVING
          •	 Three (3) adjustable, heavy duty PVC coated wire shelves; two 19 11⁄16 ”L x 17”D (501 mm x 432 mm) and one (1) 19 11⁄16 ”L x 16 ½ ”D (501 mm x 420 mm). Four (4) chrome plated shelf clips included per shelf.
          LIGHTING
          •	 LED interior lighting provides more even lighting throughout the cabinet. Safety shielded.
          MODEL FEATURES
          •	 Evaporator is epoxy coated to eliminate the potential of corrosion.
          •	 See our website www.truemfg.com for latest color and decal o erings.
          •	 Listed under NSF/ANSI Standard 7 for the storage and/or display of packaged or bottled product.
          ELECTRICAL
          •	 Unit completely pre-wired at factory and ready for nal connection to a 115/60/1 phase, 15 amp dedicated outlet. Cord and plug set included.
          OPTIONAL FEATURES/ACCESSORIES
          Upc arge and lead times ma appl .
          ❑ 230 - 240V / 50 Hz.
          ❑ Red wine thermostat.
          ❑ White wine thermostat.
          ❑ Chocolate thermostat.
          GDM-07-HC~TSL01 BLK
          •	 Shelf support pilasters made of same material as cabinet interior; shelves are adjustable on ½ ” (13 mm) increments.
          ❑ Barrel lock (factory installed).
          ❑ Additional shelving.
          ❑ 1 ¼ ” (32 mm) pricing strips.
          Model: METRI DIME SIO S ROU DED UP TO T E EAREST OLE MILLIMETER SPE IFI ATIO S SU E T TO A E IT OUT OTI E
        STANDARD FEATURES
        KCL TRUE MANUFACTURING CO., INC. 2001 East Terra Lane • O’Fallon, Missouri 63366-4434 • (636)240-2400 • Fax (636)272-2408 • Toll Free (800)325-6152 • Intl. Fax# (001)636-272-7546 • www.truemfg.com Model Ele ation Rig t Plan 3D ac DM-07-S- TSL01 24 1/32" 610mm 39 25/32" 1010mm 5/32" 4mm 24 17/32" 623mm 15/32" 12mm 1 19/32" 41mm 26 19/32" 676mm 24 27/32" 631mm 46 13/16" 1189mm
        R GDM-07-S-HC~TSL01
        Swing Door Counter-Top Stainless Steel Refrigerator with Hydrocarbon Refrigerant~True Standard Look Version 01
        
    
              
              
            
            SCFU386
          
    Product Features:
          Commercially approved
          Factory installed lock
          Self-closing door
          LED lighting
          Glass door
          Removable shelves
          Adjustable thermostat
          Manual defrost
          Designed to operate at 0ºF
          24.5" x 23.38" x 20.63" (H x W x D)
          Countertop commercial freezer with self-closing door; replaces SCFU385
          Highlights:
          Commercially listed for use in foodservice establishments
          Self-closing door is ideal for busy commercial settings
          Glass door offers full display to boost impulse sales
          ETL-S listed to NSF standards for commercial use
          Keyed security for a secure interior
          Ideal for busy commercial settings, where customers and staff don't always have the chance to ensure the door is closed
          Switchable light illuminates whole interior
          Provides a full display of stored contents
          Two wire shelves included
          Rear mounted to prevent accidental adjustments
          Static cooling system for improved temperature stability
          Temperature range: -4 to 5ºF
          
    
    SUMMIT APPLIANCE DIVISION, FELIX STORCH, INC. | ISO 9001:2015 Certified 770 Garrison Avenue Bronx, NY 10474 USA TEL 718-893-3900 FAX 844-478-8799 info@summitappliance.com www.summitappliance.com
        
    
              
              
            
            SCFU386 Specifications:
          Overview
          Height of Cabinet
          24.0" (61 cm)
          Height to Hinge Cap 24.5" (62 cm)
          Width 23.38" (59 cm)
          Depth 20.63" (52 cm)
          Depth with door at 90° 42.0" (107 cm)
          Capacity 2.0 cu.ft. (57 L)
          Defrost Type Manual
          Door Glass
          Cabinet Gray
          US Electrical Safety ETL
          Canadian Electrical Safety ETL-C
          Sanitation ETL-S
          Amps 4.0
          Voltage/Frequency
          Weight
          Shipping Weight
          lbs. (43 kg)
          Parts & Labor Warranty 1 Year
          Compressor Warranty 5 Years
          Freezer
          Door Swing RHD
          Reversible No
          Interior Height
          Interior Width
          (46 cm)
          (48 cm)
          Interior Depth 15.38" (39 cm)
          Shelf Type Wire
          Shelf Qty 2
          Adjustable Shelves Yes
          Thermostat Type Dial
          Interior Light Yes
          Fan Type Interior
          Range -4 to 5°F
          
    
    
    
    115 V AC/60 Hz
        83.0
        lbs. (38 kg)
        95.0
        18.0"
        18.75"
        Refrigerant Type R134a Refrigerant Amount 3.18 oz. High Side PSI 280.0 Low Side PSI 90.0
        Step Height 8.25" (21 cm)
        Step Width 18.75"
        cm)
        Temperature
        SUMMIT APPLIANCE DIVISION, FELIX STORCH, INC. | ISO 9001:2015 Certified 770 Garrison Avenue Bronx, NY 10474 USA TEL 718-893-3900 FAX 844-478-8799 info@summitappliance.com www.summitappliance.com
        Compressor
        Compressor
        (48
        Compressor Step Depth 7.0" (18 cm)