Stephanie Smith Portfolio 2023

Page 1

moonrise, 35 mm film photograph
stephanie smith landscape architect
aloe sun pen & watercolor
contents 1 about 2 santa claus lane 3 barrel creek 4 armitos 5 barry st 6 mt madonna 7 personal works

contact

stephsmith10@gmail.com

949.463.7131

experience

associate landscape designer RRM Design Group

San Luis Obispo, CA

landscape designer IO Design Collaborative

Ogden, UT

intern San Luis Obispo Botanical Garden

San Luis Obispo, CA

florist Poly Plant Shop

San Luis Obispo, CA

volunteer The Ecology Center

San Juan Capistrano, CA

intern Native Soil Gardens

Laguna Beach, CA

education

bachelor of landscape architecture

California Polytechnic State University, San Luis Obispo, CA

sustainable environments minor

California Polytechnic State University, San Luis Obispo, CA associates in natural sciences

Saddleback College, Mission Viejo, CA

Dana Hills High School, Dana Point, CA

licenses & certifications

landscape architects’ professional license

State of California

LEED green associate

permacuture design certification

The Ecology Center, San Juan Capistrano, CA

skills

Jan 2019 - Jul 2022

Aug 2018 - Dec 2018

Spring 2018

Sept 2017 - Dec 2018

Spring 2015

Spring 2014

June 2018

June 2018

May 2015

May 2010

April 2023

October 2018

August 2015

AutoCAD & Civil 3D, Land FX, Adobe Photoshop, Illustrator & InDesign, Bluebeam, Lumion, Sketchup

Communication, organization, team collaboration, efficient project management, independent time management, creative problem solving, plant identification, and thoughtful ecological design

professional goals

green urban infill, development, and infrastructure, water management and ecological restoration, accessibility, play, and youth impact

about

rock glow, 35 mm film

1
salvia pen & watercolor

santa claus lane

project stats

design role

streetscape

Carpinteria, CA concept design and rendering through construction documents

public client

description

Santa Clause lane right of way improvements included coordination with the county of Santa Barbara as well as the California Department of Transportation. The project provided a new bike/pedestrian path, an official railroad crossing, increased parking in angled spaces, a public restroom, multiple pedestrian street crossings with bulb-outs, and a roundabout where the street meets the southbound 101 freeway on-ramp. Local businesses were consulted to preserve existing amenities and character trees. Landscape planting within the project needed to be sand and salt tolerant on the beachfront, while blending into the coastal character.

streetscape rendering - perspective 1

perspective 1 view

landscape construction plans paving inspiration at restrooms planting palette streetscape rendering - perspective 2
2
perspective 2 view

barrel creek

project stats

design role

mixed-use development

Templeton, CA concept design, entitlements, monument signage, wayfinding and comprehensive private client signage plan, tree inventory and protection plan

description

Barrel Creek is a mixed-use development inspired by the local wine and beer region, with a focus on creating an activated outdoor space surrounded by retail, a boutique hotel, as well as single and multi-family housing. Special design considerations included preservation of a county-designated historic oak tree and protection and water quality management of an existing stream.

concept development and iterations

preliminary tree protection

inspiration

BARREL
USE
LANDSCAPE SITE INSPIRATION L4
CREEK MIXED
BARREL CREEK MIXED-USE
BARREL CREEK MIXED
USE LANDSCAPE SITE INSPIRATION
1/8” = 1’-0” (24X36 SHEET)
BARREL CREEK MIXED-USE imagery and concept rendering

conceptual landscape design

BARREL CREEK MIXED USE CONCEPTUAL BARREL CREEK MIXED-USE

LANDSCAPE CONCEPTUAL SITE PLAN NORTH

ATASCADERO, CA

1. 2. 3. 4. 5. 6. 7. 8. 9. 10. 11. 12. 13. 14. 15. KEY HOTEL SHEET L2 SEE ENLARGEMENT A2 B2 A1 A4 A3 A5 LOT 8 LOT 25 LOT 19 LOT 18 LOT 17 LOT 16 LOT 15 LOT 14 LOT 13 LOT 12 LOT 11 LOT 10 LOT 9 LOT 24 LOT 23 LOT 22 LOT 21 LOT 20 LOT 6 LOT 7 LOT 5 LOT 4 LOT 3 LOT 2 LOT 1 ROAD B ROAD A HWY 101 Del Rio Road San Ramon Road ROAD A ROADC B1 APT. C1 APT. C2 APT. C3 APT. C4 5 8 4 10 10 12 11 6 6 6 14 13 7 2 2 2 4 15 3 1 1 9 9
0 feet 40 1" = 80' 20 60 1. Monument Signage 2. Entry Landscape 3. Single Family Lots 4. Bioretention Basin 5. Multi-family Bldgs. C1-C4 6. Specialty Paving 7. Permeable Paving 8. Trash Enclosure 9. Existing Seasonal Creek 10. Culvert and Headwalls 11. Water Tower/Signage 12. Pedestrian Access/Speed Table 13. Pedestrian Crossing 14. Roundabout 15. Covered Solar Carport (20 spaces) KEY HOTEL SHEET L2 SEE ENLARGEMENT A2 B2 A1 A4 A3 A5 LOT LOT 25 LOT 19 ROAD B ROAD A HWY 101 ROAD A ROADC B1 APT. C1 APT. C2 APT. C3 APT. C4 5 8 4 10 10 12 11 6 6 7 2 2 4 15 1 1 1” = 80’ 0’ 80’ 160’ 240’ FEET 9 9 L1 CONCEPTUAL LANDSCAPE PLAN 1515-02-LP19 JUNE 10, 2021 MIXED-USE L1 1515-02-LP19 JUNE 17, 2021 GPA/REZONE/PD OVERLAY & VTTM 1/8” = 1’-0” (24X36 SHEET) 0 4 8 16 1/16” = 1’-0” (12X18 SHEET) CONCEPTUAL SITE PLAN 1. Monument Signage 2. Entry Landscape 3. Single Family Lots 4. Bioretention Basin 5. Multi-family Bldgs. C1-C4 6. Specialty Paving 7. Permeable Paving 8. Trash Enclosure 9. Existing Seasonal Creek 10. Culvert and Headwalls KEY ENLARGEMENT 1. Monument Signage 2. Entry Landscape 3. Single Family Lots 4. Bioretention Basin 5. Multi-family Bldgs. C1-C4 6. Specialty Paving 7. Permeable Paving 8. Trash Enclosure 9. Existing Seasonal Creek 10. Culvert and Headwalls 11. Water Tower/Signage 12. Pedestrian Access/Speed Table 13. Pedestrian Crossing 14. Roundabout 15. Covered Solar Carport (20 spaces) KEY HOTEL SHEET L2 SEE ENLARGEMENT A2 B2 A3 A5 HWY 101 11 6 7
3

armitos

community garden & pollinator habitat

project stats role

Goleta, CA concept design through construction documents and bidding

public client

description

Armitos Community Garden project includes improvements to an existing playground, regrading of the site to create a community garden with a gathering space, and planting areas dedicated to education about local pollinators. Special attention was taken in replanting native riparian habitat in conjuction with a class 1 bike path connecting to nearby neighborhood parks and communities.

conceptual landscape design

final overall concept

product and materials imagery

concept development of central gathering space
4

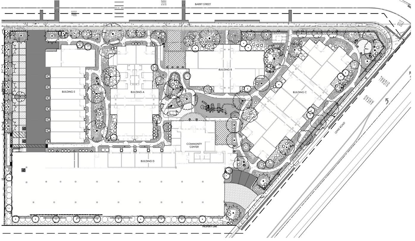
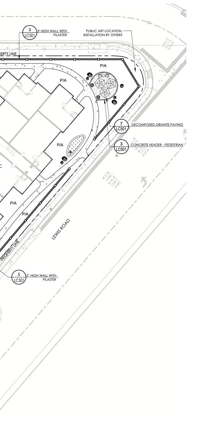
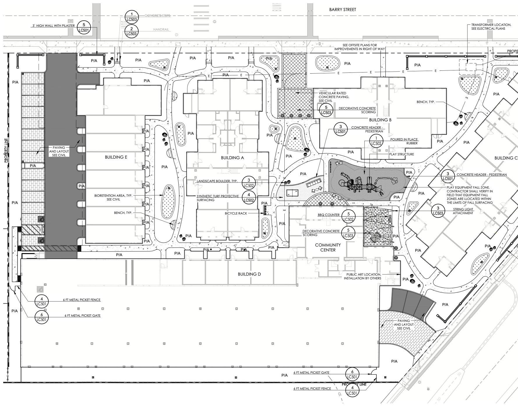
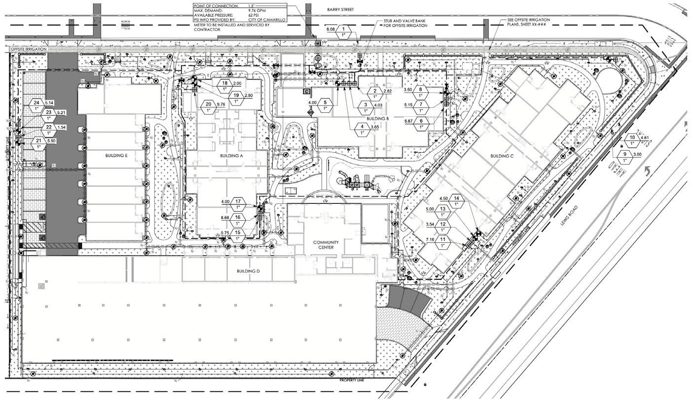
barry st

description

Barry Street is a non-profit housing development addressing low and very low income and disabled housing needs. This project assisted in addressing a housing crisis in an especially inflated market region on the Central Coast of California. A collaborative in-house design team consisted of civil engineering, landscape architecture, planning, and architecture.

concept development of central amenities

90% landscape construction plan

conceptual rendering

conceptual landscape plan

90% landscape planting plan

90% landscape irrigation plan

TREES SUCH AS: BOTANICAL NAME COMMON NAME CHORISIA SPECIOSA SILK FLOSS TREE CUPRESSUS SEMPERVIRENS `GLAUCA` ITALIAN CYPRESS ERIOBOTRYA DEFLEXA BRONZE LOQUAT MELALEUCA QUINQUENERVIA PINUS CANARIENSIS CANARY ISLAND PINE QUERCUS AGRIFOLIA COAST LIVE OAK ULMUS PARVIFOLIA CHINESE ELM SHRUBS SUCH AS: BOTANICAL NAME COMMON NAME AEONIUM X `PSEUDOTABULIFORME` GREEN PLATTERS AEONIUM ANIGOZANTHOS X `BUSH GOLD` KANGAROO PAW ARCTOSTAPHYLOS DENSIFLORA `HOWARD MCMINN` HOWARD MCMINN MANZANITA ARTEMISIA CALIFORNICA `CANYON GREY` PROSTRATE CALIFORNIA SAGEBRUSH BOUGAINVILLEA X `SAN DIEGO RED` BOUGAINVILLEA PLANT SCHEDULE ^ ^ ^ ^ ^ BARRY STREET LEWISROAD CA-34 CARISSA MACROCARPA NATAL PLUM CHONDROPETALUM TECTORUM `EL CAMPO` CAPE RUSH DENDROMECON RIGIDA BUSH POPPY EPILOBIUM CALIFORNICUM CALIFORNIA FUCHSIA EUPHORBIA CHARACIAS EVERGREEN SPURGE FURCRAEA FOETIDA `MEDIOPICTA` MAURITIUS HEMP KNIPHOFIA X `ICE QUEEN` ICE QUEENTORCH LILY LOROPETALUM CHINENSE GREEN LOROPETALUM LUPINUS ALBIFRONS BUSH LUPINE MUHLENBERGIA CAPILLARIS PINK MUHLY GRASS PEROVSKIA ATRIPLICIFOLIA RUSSIAN SAGE PHORMIUM TENAX `SURFER` NEW ZEALAND FLAX PHORMIUM X `WILDWOOD` NEW ZEALAND FLAX RHAMNUS CALIFORNICA `EVE CASE` CALIFORNIA COFFEEBERRY XANTHORRHOEA PREISSII AUSTRALIAN GRASS TREE YUCCA FILAMENTOSA `COLOR GUARD` ADAM`S NEEDLE BIOSWALE SHRUBS BOTANICAL NAME COMMON NAME SUCH AS: ACHILLEA MILLEFOLIUM COMMON YARROW CAREX BARBERAE SANTA BARBARA SEDGE MUHLENBERGIA RIGENS DEER GRASS GROUND COVERS BOTANICAL NAME COMMON NAME SUCH AS: CEANOTHUS GRISEUS HORIZONTALIS CARMEL CREEPER GAZANIA SPLENDENS GAZANIA SESLERIA X `GREENLEE HYBRID` GREENLEE MOOR GRASS VINCA MINOR COMMON PERIWINKLE PLANTING DESIGN CRITERIA THE PLANT PALETTE IS COMPRISED OF PLANT MATERIAL AND TREES KNOWN TO THRIVE IN THE LOCAL CLIMATE AND SOIL CONDITIONS. THIS PLANT PALETTE COUPLED WITH THE IRRIGATION SYSTEM DESCRIBED, HAS BEEN DESIGNED TO MEET OR EXCEED THE STATE AND LOCAL STANDARDS FOR WATER CONSERVATION THROUGH WATER EFFICIENT LANDSCAPE IRRIGATION DESIGN. LOW WATER SHRUBS AND GROUNDCOVERS COMPRISE THE MAJORITY OF THE TOTAL LANDSCAPED AREA. THIS PLAN WILL COMPLY WITH MUNICIPAL CODE REQUIREMENTS AND STATE WATER EFFICIENT LANDSCAPE ORDINANCES (MWELO). IRRIGATION DESIGN CRITERIA THE IRRIGATION DESIGN WILL COMPLY WITH THE LOCAL AND THE STATE WATER CONSERVATION REQUIREMENTS. THE WATER CONSERVATION METHOD FOR NEW ORNAMENTAL LANDSCAPE PLANT MATERIAL HAS VERY LOW TO MODERATE WATER USE. A WEATHER SENSING, 'SMART CONTROLLER' WILL BE USED TO MONITOR THE IRRIGATION WATER AND MANAGE DAILY WATER CONSUMPTION TO THE MINIMUM REQUIREMENTS FOR EACH HYDROZONE. ALL TREES, SHRUBS, AND GROUNDCOVER AREAS WILL BE IRRIGATED ON SEPARATE HYDROZONES SO THAT ONCE ESTABLISHED, WATER CAN BE REGULATED IN A MORE EFFICIENT MANNER. TREES WILL BE IRRIGATED BY BUBBLERS. ALL ORNAMENTAL PLANTING WILL RECEIVE DRIP IRRIGATION OR OTHER HIGHLY EFFICIENT IRRIGATION. N O R T H 0 feet 40 1" = 20' 20 60 80 2800 Barry Street Affordable Housing Development 2800 Barry Street, Camarillo, California 93010 8/25/2020 RRM Design Group WATER USE CALCULATIONS: L-1 LANDSCAPE CONCEPT PLAN CONCEPTUAL PLANT SCHEDULE BUILDING D BUILDING A BUILDING TOT LOT COMMUNITY CENTER TEEN CENTER (DECORATIVE PAVING) PARKING GARAGE BIORETENTION AREA, TYP. SEE CIVIL BIORETENTION AREA, TYP. SEE CIVIL SEE CIVIL TRANSFORMER (OPTIONAL LOCATION) 3' WALL, TYP. TO MATCH ARCHITECTURE. PILASTERS ALLOWED TO EXCEED 3' MAX. HEIGHT 3'WALL, TYP. TO MATCH ARCHITECTURE PILASTERS ALLOWED TO EXCEED 3' MAX. HEIGHT (DECORATIVE PAVING) PUBLIC ART INSTALLATION SEE CIVIL SCREENED (OPTIONAL LOCATION) SCREENED (TENTATIVE LOCATION) PEDESTRIAN ACCESS, TYP. PLANTING IN THIS AREA TO (TRASH AND FIRE ACCESS DECORATIVE PAVING)
5

mt madonna

project stats

design role

county park

Watsonville, CA concept design, wayfinding and interpretive guidelines, grant application public client assistance, 35% construction documents

description

Mt Madonna is a 4000 acre public park located in the redwood and oak studded hills of northern California. A comprehensive master plan document guiding park interpretive programs and wayfinding was developed for this project. New park features included a visitor center and high use zone (to include interpretive features, natural play areas, demonstration garden, wayfinding hub, and picnic areas), hiking trails and bike pathways, and siting an additional campground. Renovations to existing park amenities included road realignment, signage and wayfinding, and revisioning group campsites for expanded uses.

conceptual design, entry monument 35% construction detail, entry monument

conceptual design, high use zone enlargement plan

35% construction documents, high use zone enlargement plan

design process

SCALE 1” = 60’ TANOAK TANOAKROAD N:\0001\0050-03-RC19-Mt. Madonna-County-Park-Master-Plan-Implementation-Plan\Landscape-Architecture\Task Site Planning\Subt ask D.3 Expansion of Tan Oak Day Use Area\AutoCAD\D3.1-Alt 2-0050-03-RC19.dwg, D3.2, Sep 24, 2021 3:26pm, sasmith PROJECT MANAGER DRAWN BY PROJECT NUMBER CHECKED BY SHEET SEPTEMBER 29, 2021 0050-03-RC19 DATE NO. REVISION DATE SUBTASK D.3EXPANSION OF TAN OAK DAY USE AREA MT. MADONNA COUNTY PARK LEGEND NOTES EXISTING CONDITIONS EXISTING ROADWAY/ TRAIL TO BE REMOVED PROPOSED ROADWAY IMPROVEMENTS, SEE SUBTASK D.2 PROPOSED FENCE TO LIMIT VEHICULAR ACCESS PROPOSED 5' WIDE TRAIL PROPOSED CONCRETE WALKWAY PROPOSED WILDPLAY AREA FOR CHILDREN AGES 2-5 PROPOSED INTERPRETIVE TRAILS REVEGETATION AREA (EXISTING TREES TO REMAIN) PROPOSED SELF-PAY TICKETING KIOSK 1. SEE SUBTASK D.6 FOR PROPOSED VISITOR CENTER ARCHITECTURAL CONCEPT 2. INCLUDES 2 PARKING STALLS NEAR THE EXISTING BATHROOM FOR MAINTENANCE STAFF, RANGER, AND EMERGENCY USE ONLY 3. SITE ACCESSIBILITY REQUIREMENTS HAVE BEEN CONSIDERED FOR THIS CONCEPTUAL EXERCISE AND WILL BE FURTHER REFINED IN SUBSEQUENT SUBMITTALS 4. SALVAGED TIMBER FROM THE PARKS NATURAL RESOURCE PROGRAM SHALL BE INCORPORATED INTO THE PROPOSED IMPROVEMENTS AS FEASIBLE D3.2 DESIGN ALTERNATIVE 2 AM SS AM TRAIL TANOAK HILLTOPTRAIL TANOAKROAD N:\0001\0050-03-RC19-Mt. Madonna-County-Park-Master-Plan-Implementation-Plan\Landscape-Architecture\Task D Site Planning\Subt rrmdesign.com 3765 LEGEND NOTES 0 feet 80 1"=40' 40 120 EXISTING CONDITIONS EXISTING ROADWAY/ TRAIL TO BE REMOVED PROPOSED ROADWAY IMPROVEMENTS, SEE SUBTASK D.2 PROPOSED FENCE TO LIMIT VEHICULAR ACCESS PROPOSED 5' WIDE TRAIL PROPOSED 12' WIDE TRAIL PROPOSED CONCRETE WALKWAY PROPOSED WILDPLAY AREA FOR CHILDREN AGES 2-5 PROPOSED INTERPRETIVE TRAILS REVEGETATION AREA (EXISTING TREES TO REMAIN) PROPOSED SELF-PAY TICKETING KIOSK PROPOSED WAYFINDING SIGN LOCATION 1. SEE SUBTASK D.6 FOR PROPOSED VISITOR CENTER ARCHITECTURAL CONCEPT 2. INCLUDES 2 PARKING STALLS NEAR THE EXISTING BATHROOM FOR MAINTENANCE STAFF, RANGER, AND EMERGENCY USE ONLY 3. SITE ACCESSIBILITY REQUIREMENTS HAVE BEEN CONSIDERED FOR THIS CONCEPTUAL EXERCISE AND WILL BE FURTHER REFINED IN SUBSEQUENT SUBMITTALS 4. SALVAGED TIMBER FROM THE PARKS NATURAL RESOURCE PROGRAM SHALL BE INCORPORATED INTO THE PROPOSED IMPROVEMENTS AS FEASIBLE
TANOAKROAD DayUseParking 42 Stalls POLE LINE RD N:\0001\0050-03-RC19-Mt. Madonna-County-Park-Master-Plan-Implementation-Plan\Landscape-Architecture\Task D Site Planning\Subt ask D.3 Expansion of Tan Oak Day Use Area\AutoCAD\D3.1-Alt 2-0050-03-RC19.dwg, D3.2, Sep 24, 2021 3:26pm, sasmith PROJECT MANAGER DRAWN BY PROJECT NUMBER CHECKED BY SHEET SEPTEMBER 29, 2021 0050-03-RC19 DATE NO. REVISION DATE SUBTASK D.3EXPANSION OF TAN OAK DAY USE AREA MT. MADONNA COUNTY PARK LEGEND 0 feet 80 1"=40' 40 120 EXISTING CONDITIONS EXISTING ROADWAY/ TRAIL TO BE REMOVED PROPOSED ROADWAY IMPROVEMENTS, SEE SUBTASK D.2 PROPOSED FENCE TO LIMIT VEHICULAR ACCESS PROPOSED 5' WIDE TRAIL PROPOSED 12' WIDE TRAIL REPURPOSE EXISTING ROADWAY FOR PEDESTRIAN/SERVICE VEHICLE USE PROPOSED CROSSWALK PROPOSED INTERPRETIVE TRAILS REVEGETATION AREA (EXISTING TREES TO REMAIN) PROPOSED SELF-PAY TICKETING KIOSK PROPOSED WAYFINDING SIGN LOCATION PROPOSED PICNIC AREA SITE ACCESSIBILITY REQUIREMENTS HAVE BEEN CONSIDERED FOR THIS CONCEPTUAL EXERCISE AND WILL BE FURTHER REFINED IN SUBSEQUENT SUBMITTALS 4. SALVAGED TIMBER FROM THE PARKS NATURAL RESOURCE PROGRAM SHALL BE INCORPORATED INTO THE PROPOSED IMPROVEMENTS AS FEASIBLE D3.2 DESIGN ALTERNATIVE 2 AM SS AM #0050-03-RC19 SEPTEMBER 9, 2021 CONCEPT SUMMARY •PLAY AREAS ARE MORE CENTRALLY LOCATED, ACTIVATING THE AMENITIES CLOSEST TO THE VISITOR CENTER •NEW AMPHITHEATRE TAKES ADVANTAGE OF NATURAL TOPOGRAPHY •ADDITIONAL PARKING WITH NEW PAY STATION KIOSK, EXPANDED PICNIC AREAS SCALE 1” = 60’ D.3 EXPANSION OF TAN OAK DAY USE AREA - ALTERNATIVE CONCEPT 2 TANOAK N:\0001\0050-03-RC19-Mt. Madonna-County-Park-Master-Plan-Implementation-Plan\Landscape-Architecture\Task Site Planning\Subt ask D.3 Expansion Tan Oak Day Use Area\AutoCAD\D3.1-Alt 2-0050-03-RC19.dwg, D3.2, Sep 24, 2021 3:26pm, sasmith PROJECT MANAGER PROJECT NUMBER SHEET SEPTEMBER 29, 2021 0050-03-RC19 DATE NO. REVISION SUBTASK D.3EXPANSION OF TAN OAK DAY USE AREA MT. MADONNA COUNTY PARK LEGEND NOTES 0 feet 80 1"=40' 40 120 EXISTING CONDITIONS EXISTING ROADWAY/ TRAIL TO BE REMOVED PROPOSED ROADWAY IMPROVEMENTS, SEE SUBTASK D.2 PROPOSED FENCE TO LIMIT VEHICULAR ACCESS PROPOSED 5' WIDE TRAIL PROPOSED 12' WIDE TRAIL REPURPOSE EXISTING ROADWAY FOR PEDESTRIAN/SERVICE VEHICLE USE PROPOSED CROSSWALK PROPOSED CONCRETE WALKWAY PROPOSED WILDPLAY AREA FOR CHILDREN AGES 2-5 PROPOSED INTERPRETIVE TRAILS REVEGETATION AREA (EXISTING TREES TO REMAIN) PROPOSED SELF-PAY TICKETING KIOSK PROPOSED WAYFINDING SIGN LOCATION PROPOSED PICNIC AREA 1. SEE SUBTASK D.6 FOR PROPOSED VISITOR CENTER ARCHITECTURAL CONCEPT 2. INCLUDES 2 PARKING STALLS NEAR THE EXISTING BATHROOM FOR MAINTENANCE STAFF, RANGER, AND EMERGENCY USE ONLY 3. SITE ACCESSIBILITY REQUIREMENTS HAVE BEEN CONSIDERED FOR THIS CONCEPTUAL EXERCISE AND WILL BE FURTHER REFINED IN SUBSEQUENT SUBMITTALS 4. SALVAGED TIMBER FROM THE PARKS NATURAL RESOURCE PROGRAM SHALL BE INCORPORATED INTO THE PROPOSED IMPROVEMENTS AS FEASIBLE D3.2 DESIGN ALTERNATIVE 2 AM SS AM TRAIL TANOAK N:\0001\0050-03-RC19-Mt. Madonna-County-Park-Master-Plan-Implementation-Plan\Landscape-Architecture\Task Site Planning\Subt PROJECT MANAGER PROJECT NUMBER SHEET SEPTEMBER 29, 2021 0050-03-RC19 DATE rrmdesign.com | (805) 543-1794 3765 S. Higuera, San Luis Obispo, CA 93401 SUBTASK D.3EXPANSION OF TAN OAK DAY USE AREA MT. MADONNA COUNTY PARK LEGEND NOTES 0 feet 80 1"=40' 40 120 EXISTING CONDITIONS EXISTING ROADWAY/ TRAIL TO BE REMOVED PROPOSED ROADWAY IMPROVEMENTS, SEE SUBTASK D.2 PROPOSED FENCE TO LIMIT VEHICULAR ACCESS PROPOSED 5' WIDE TRAIL PROPOSED 12' WIDE TRAIL REPURPOSE EXISTING ROADWAY FOR PEDESTRIAN/SERVICE VEHICLE USE PROPOSED CROSSWALK PROPOSED CONCRETE WALKWAY PROPOSED WILDPLAY AREA FOR CHILDREN AGES 2-5 PROPOSED INTERPRETIVE TRAILS REVEGETATION AREA (EXISTING TREES TO REMAIN) PROPOSED SELF-PAY TICKETING KIOSK PROPOSED WAYFINDING SIGN LOCATION PROPOSED PICNIC AREA 1. SEE SUBTASK D.6 FOR PROPOSED VISITOR CENTER ARCHITECTURAL CONCEPT 2. INCLUDES 2 PARKING STALLS NEAR THE EXISTING BATHROOM FOR MAINTENANCE STAFF, RANGER, AND EMERGENCY USE ONLY 3. SITE ACCESSIBILITY REQUIREMENTS HAVE BEEN CONSIDERED FOR THIS CONCEPTUAL EXERCISE AND WILL BE FURTHER REFINED IN SUBSEQUENT SUBMITTALS 4. SALVAGED TIMBER FROM THE PARKS NATURAL RESOURCE PROGRAM SHALL BE INCORPORATED INTO THE PROPOSED IMPROVEMENTS AS FEASIBLE D3.2 DESIGN ALTERNATIVE 2 AM SS AM TANOAKROAD DayUseParking N:\0001\0050-03-RC19-Mt. Madonna-County-Park-Master-Plan-Implementation-Plan\Landscape-Architecture\Task D Site Planning\Subt ask D.3 Expansion of Tan Oak Day Use Area\AutoCAD\D3.1-Alt 2-0050-03-RC19.dwg, D3.2, Sep 24, 2021 3:26pm, sasmith DRAWN BY PROJECT NUMBER CHECKED BY SEPTEMBER 29, 2021 0050-03-RC19 DATE DATE LEGEND 0 feet 80 1"=40' 40 120 EXISTING CONDITIONS EXISTING ROADWAY/ TRAIL TO BE REMOVED PROPOSED ROADWAY IMPROVEMENTS, SEE SUBTASK D.2 PROPOSED FENCE TO LIMIT VEHICULAR ACCESS PROPOSED 5' WIDE TRAIL PROPOSED 12' WIDE TRAIL REPURPOSE EXISTING ROADWAY FOR PEDESTRIAN/SERVICE VEHICLE USE PROPOSED CROSSWALK PROPOSED INTERPRETIVE TRAILS REVEGETATION AREA (EXISTING TREES TO REMAIN) PROPOSED SELF-PAY TICKETING KIOSK PROPOSED WAYFINDING SIGN LOCATION PROPOSED PICNIC AREA 3. SITE ACCESSIBILITY REQUIREMENTS HAVE BEEN CONSIDERED FOR THIS CONCEPTUAL EXERCISE AND BE FURTHER REFINED IN SUBSEQUENT SUBMITTALS 4. SALVAGED TIMBER FROM THE PARKS NATURAL RESOURCE PROGRAM SHALL BE INCORPORATED INTO THE PROPOSED IMPROVEMENTS AS FEASIBLE D3.2 DESIGN ALTERNATIVE 2 AM MOUNT MADONNA PARK #0050-03-RC19 SEPTEMBER 9, 2021 CONCEPT SUMMARY •PLAY AREAS ARE MORE CENTRALLY LOCATED, ACTIVATING THE AMENITIES CLOSEST TO THE VISITOR CENTER •NEW AMPHITHEATRE TAKES ADVANTAGE OF NATURAL TOPOGRAPHY •ADDITIONAL PARKING WITH NEW PAY STATION KIOSK, EXPANDED PICNIC AREAS SCALE 1” = 60’ D.3 EXPANSION OF TAN OAK DAY USE AREA - ALTERNATIVE CONCEPT 2 TRAIL TANOAK TANOAKACCESSTRAIL TANOAKROAD Old Deer Pen Shelter Trailhead DayUseParking 42 Stalls POLELINERD BLUE SPRINGS TRAIL MEADOW TRAIL Visitor Center (E) Restroom MANZANITA GROUP CAMP SEE SUBTASK D.5 Amphitheatre Fog Catcher POLE LINE RD ADA Parking 2 Stalls Ranger Parking 2 Stalls Bus Loading N:\0001\0050-03-RC19-Mt. Madonna-County-Park-Master-Plan-Implementation-Plan\Landscape-Architecture\Task Site Planning\Subt ask D.3 Expansion Tan Oak Day Use Area\AutoCAD\D3.1-Alt 2-0050-03-RC19.dwg, D3.2, Sep 24, 2021 3:26pm, sasmith DRAWN BY PROJECT NUMBER CHECKED BY SEPTEMBER 29, 2021 0050-03-RC19 NO. REVISION DATE SUBTASK D.3EXPANSION OF TAN OAK DAY USE AREA MT. MADONNA COUNTY PARK LEGEND NOTES feet 80 1"=40' 40 120 EXISTING CONDITIONS EXISTING ROADWAY/ TRAIL TO BE REMOVED PROPOSED ROADWAY IMPROVEMENTS, SEE SUBTASK D.2 PROPOSED FENCE TO LIMIT VEHICULAR ACCESS PROPOSED 5' WIDE TRAIL PROPOSED 12' WIDE TRAIL REPURPOSE EXISTING ROADWAY FOR PEDESTRIAN/SERVICE VEHICLE USE PROPOSED CROSSWALK PROPOSED CONCRETE WALKWAY PROPOSED WILDPLAY AREA FOR CHILDREN AGES 2-5 PROPOSED INTERPRETIVE TRAILS REVEGETATION AREA (EXISTING TREES TO REMAIN) PROPOSED SELF-PAY TICKETING KIOSK PROPOSED WAYFINDING SIGN LOCATION PROPOSED PICNIC AREA 1. SEE SUBTASK D.6 FOR PROPOSED VISITOR CENTER ARCHITECTURAL CONCEPT 2. INCLUDES 2 PARKING STALLS NEAR THE EXISTING BATHROOM FOR MAINTENANCE STAFF, RANGER, AND EMERGENCY USE ONLY 3. SITE ACCESSIBILITY REQUIREMENTS HAVE BEEN CONSIDERED FOR THIS CONCEPTUAL EXERCISE AND WILL BE FURTHER REFINED IN SUBSEQUENT SUBMITTALS 4. SALVAGED TIMBER FROM THE PARKS NATURAL RESOURCE PROGRAM SHALL BE INCORPORATED INTO THE PROPOSED IMPROVEMENTS AS FEASIBLE D3.2 DESIGN ALTERNATIVE 2 SS AM TRAIL TANOAK HILLTOPTRAIL TANOAKROAD Old Deer Pen Shelter Trailhead DayUseParking 42 Stalls POLELINERD BLUE SPRINGS TRAIL MEADOW TRAIL Visitor Center (E) Restroom MANZANITA GROUP CAMP SEE SUBTASK D.5 Amphitheatre Fog Catcher POLE LINE RD ADA Parking 2 Stalls Ranger Parking 2 Stalls Bus Loading N:\0001\0050-03-RC19-Mt. Madonna-County-Park-Master-Plan-Implementation-Plan\Landscape-Architecture\Task Site Planning\Subt ask D.3 Expansion Tan Oak Day Use Area\AutoCAD\D3.1-Alt 2-0050-03-RC19.dwg, D3.2, Sep 24, 2021 3:26pm, sasmith PROJECT MANAGER DRAWN BY PROJECT NUMBER CHECKED BY SHEET SEPTEMBER 29, 2021 0050-03-RC19 DATE rrmdesign.com | (805) 543-1794 3765 S. Higuera, San Luis Obispo, CA 93401 SUBTASK D.3EXPANSION OF TAN OAK DAY USE AREA MT. MADONNA COUNTY PARK LEGEND NOTES 0 feet 80 1"=40' 40 120 EXISTING CONDITIONS EXISTING ROADWAY/ TRAIL TO BE REMOVED PROPOSED ROADWAY IMPROVEMENTS, SEE SUBTASK D.2 PROPOSED FENCE TO LIMIT VEHICULAR ACCESS PROPOSED 5' WIDE TRAIL PROPOSED 12' WIDE TRAIL EXISTING ROADWAY FOR PEDESTRIAN/SERVICE VEHICLE USE PROPOSED CROSSWALK PROPOSED CONCRETE WALKWAY PROPOSED WILDPLAY AREA FOR CHILDREN AGES 2-5 PROPOSED INTERPRETIVE TRAILS REVEGETATION AREA (EXISTING TREES TO REMAIN) PROPOSED SELF-PAY TICKETING KIOSK PROPOSED WAYFINDING SIGN LOCATION PROPOSED PICNIC AREA 1. SEE SUBTASK D.6 FOR PROPOSED VISITOR CENTER ARCHITECTURAL CONCEPT 2. INCLUDES 2 PARKING STALLS NEAR THE EXISTING BATHROOM FOR MAINTENANCE STAFF, RANGER, AND EMERGENCY USE ONLY 3. SITE ACCESSIBILITY REQUIREMENTS HAVE BEEN CONSIDERED FOR THIS CONCEPTUAL EXERCISE AND WILL BE FURTHER REFINED IN SUBSEQUENT SUBMITTALS 4. SALVAGED TIMBER FROM THE PARKS NATURAL RESOURCE PROGRAM SHALL BE INCORPORATED INTO THE PROPOSED IMPROVEMENTS AS FEASIBLE D3.2 DESIGN ALTERNATIVE 2 AM SS TRAIL TANOAK TANOAKACCESSTRAIL HILLTOPTRAIL TANOAKROAD Old Deer Pen Shelter Trailhead DayUseParking 42 Stalls POLELINERD BLUE SPRINGS TRAIL MEADOW TRAIL Visitor Center (E) Restroom MANZANITA GROUP CAMP SEE SUBTASK D.5 Amphitheatre Fog Catcher POLE LINE RD ADA Parking 2 Stalls Ranger Parking 2 Stalls Bus Loading N:\0001\0050-03-RC19-Mt. Madonna-County-Park-Master-Plan-Implementation-Plan\Landscape-Architecture\Task Site Planning\Subt ask D.3 Expansion of Tan Oak Day Use Area\AutoCAD\D3.1-Alt 2-0050-03-RC19.dwg, D3.2, Sep 24, 2021 3:26pm, sasmith PROJECT MANAGER PROJECT NUMBER SHEET SEPTEMBER 29, 2021 0050-03-RC19 DATE NO. REVISION DATE SUBTASK D.3EXPANSION OF TAN OAK DAY USE AREA MT. MADONNA COUNTY PARK LEGEND NOTES 0 feet 80 1"=40' 40 120 EXISTING CONDITIONS EXISTING ROADWAY/ TRAIL TO BE REMOVED PROPOSED ROADWAY IMPROVEMENTS, SEE SUBTASK D.2 PROPOSED FENCE TO LIMIT VEHICULAR ACCESS PROPOSED 5' WIDE TRAIL PROPOSED 12' WIDE TRAIL REPURPOSE EXISTING ROADWAY FOR PEDESTRIAN/SERVICE VEHICLE USE PROPOSED CROSSWALK PROPOSED CONCRETE WALKWAY PROPOSED WILDPLAY AREA FOR CHILDREN AGES 2-5 PROPOSED INTERPRETIVE TRAILS REVEGETATION AREA (EXISTING TREES TO REMAIN) PROPOSED SELF-PAY TICKETING KIOSK PROPOSED WAYFINDING SIGN LOCATION PROPOSED PICNIC AREA 1. SEE SUBTASK D.6 FOR PROPOSED VISITOR CENTER ARCHITECTURAL CONCEPT 2. INCLUDES 2 PARKING STALLS NEAR THE EXISTING BATHROOM FOR MAINTENANCE STAFF, RANGER, AND EMERGENCY USE ONLY 3. SITE ACCESSIBILITY REQUIREMENTS HAVE BEEN CONSIDERED FOR THIS CONCEPTUAL EXERCISE AND WILL BE FURTHER REFINED IN SUBSEQUENT SUBMITTALS 4. SALVAGED TIMBER FROM THE PARKS NATURAL RESOURCE PROGRAM SHALL BE INCORPORATED INTO THE PROPOSED IMPROVEMENTS AS FEASIBLE D3.2 DESIGN ALTERNATIVE 2 AM SS MOUNT MADONNA PARK SEPTEMBER 9, 2021 CONCEPT SUMMARY •PLAY AREAS ARE MORE CENTRALLY LOCATED, ACTIVATING THE AMENITIES CLOSEST TO THE VISITOR CENTER •NEW AMPHITHEATRE TAKES ADVANTAGE OF NATURAL TOPOGRAPHY •ADDITIONAL PARKING WITH NEW PAY STATION KIOSK, EXPANDED PICNIC AREAS
TANOAKACCESSTRAIL
6

personal works

farmers’ flowers 35 mm film

columbine, 35 mm film

clevelandii pen and watercolor

evening dunes, 35 mm film sister in red, 35 mm film el sur grande, 35 mm film superkilen, 35 mm film

creative pursuits

drawing & painting

My passion for creative expression was ignited by my grandfather, a painter in his spare time, and I quickly found that I was also most comfortable expressing myself through a paintbrush. I continue to draw inspiration for my work from a deep-rooted connection with the natural word and its beauty.

analog photography

In 2019 I picked up an old Minoltaand never looked back. I have since brought it along on all of my adventures, from every day explorations on the Central Coast to long distance ventures visiting family in Copenhagen, and backpacking around southeast Asia for five months. These images are a few favorites selected from a vast collection.

angkor wat, 35 mm film bangkok streets, 35 mm film village kids near dalat, 35 mm film sukhothai elephants, 35 mm film cafe in kampot, cambodia, 35 mm film chiang mai homestay, pen drawing
7

design process

smith
stephanie
949.463.7131
the ridge, 35 mm film three stacks and a rock pen and watercolor

Turn static files into dynamic content formats.

Create a flipbook
Issuu converts static files into: digital portfolios, online yearbooks, online catalogs, digital photo albums and more. Sign up and create your flipbook.