

Contemporary design, luxurious comfort

![]()








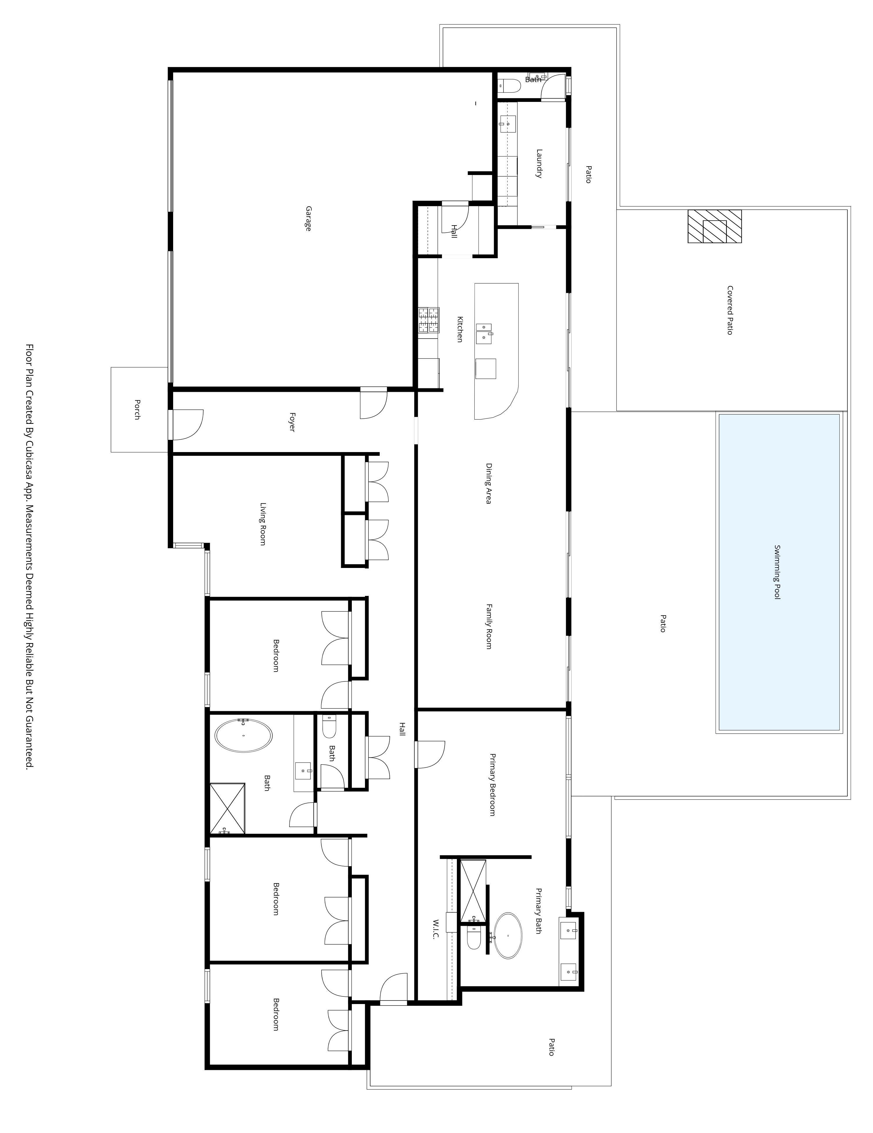
Architecturally designed and built by Berg Design with 25 squares (approx.) of living and a 7.7-star energy rating, this design incorporates all principles of effective solar passive design, cross-ventilation, and thermal mass. Clean lines, natural light and swathes of glass all wrapped around a landscaped, fragrant pool courtyard provide the ultimate in sophisticated country living.
Central to the home is the beautiful open plan kitchen, living and dining areas which are meticulously finished. Beautiful polished concrete floors with hydronic heating, coupled with huge north facing glass doors allowing natural light and warmth as well, creates a lovely ambiance to entertain or relax whilst enjoying full view of the large inground mineral saltwater pool.
The kitchen boasts custom built, formed and poured in-situ concrete benchtops, Bosch appliances and matte finish 2 Pac cabinetry and connects effortlessly to the outdoor pool and entertainment area with open fireplace. For quite times, retire to the dedicated second lounge for time away from the main living space.
Four bedrooms accommodate the home whilst the main bedroom features a large walk in wardrobe with beautiful ensuite with bath as well as its own sliding doors to the courtyard and pool. A separate study provides those working from home, or the studious, a dedicated space to work. Additional functionality is provided with a large laundry, and separate powder room.
Triple garaging and positioned on approximately 1000 sqm of land with extra side access, the property certainly allows for both families seeking a high-quality family home and downsizers who require a property with storage for toys or caravans.
CONSTRUCTION
• Masonry block veneer with Austral Designer Series blocks & breeze block features
• James Hardie Scyon Axon cladding to roof gables & eave bulkhead
• Western Red Cedar timber cladding to feature walls & fitted over flush-fit garage sectional doors
• Colorbond matte finish Klip-lok concealed fix roofing
• Engineer designed treated pine timber roof truss system & wall frames
• 2700mm (9ft) ceilings with square setting throughout
• Minimal exposure polished concrete floors throughout entry, kitchen, laundry, powder, meals, family, passage
• Premium Italian ceramic tiles to wet areas and Premium wool carpet to sitting room & bedrooms
THERMAL PERFORMANCE
• 7.7-star energy rating
• Architectural design incorporating all principles of effective solar passive design, cross-ventilation & thermal mass
• Anticon 50mm foil backed insulation blanket beneath roof sheets
• R6.0 insulation batts to ceiling, R2.5 insulation batts to all external walls & sound screen batts to selected internal walls
• Powder-coated aluminium windows with Viridian Sanctuary Lightbridge high performance double glazing throughout
HEATING, COOLING & APPLIANCES
• Gas fired hydronic in-floor heating with high-efficiency boiler
• Braemar Superstealth, industry leading evaporative cooling system
• Continuous flow gas instantaneous hot water
• Bosch 900mm gas cooktop & concealed rangehood, wall oven tower with Bosch Pyrolytic oven & Combi-oven, Bosch integrated dishwasher
• Custom-built, formed & poured insitu concrete benchtops to kitchen
• 2 Pac, matte finish cabinets with finger pull drawers
• Soft close and / or push to open hardware throughout home
• Solid Vic. Ash timber vanity unit to ensuite & bathroom
• Large undercover alfresco with built-in fireplace
• 9.0m solar heated, mineral saltwater swimming pool
• Fully landscaped gardens
• Automated irrigation system with zoning to front & rear yard
ADDRESS: ADDRESS: 39 Alpine Street, Thurgoona
For Sale: Contact Agent
Land Size: 977m2 (approx.)




