LIVE CASE STUDY 01 NATIONAL INSTITUTE OF MEDICAL SCIENCES(NIMS),




DEPARTMENTS
GENERAL MEDICINE
PSYCHIATRY
RESPIRATORY MEDICINE
DERMATOLOGY
PAEDIATRICS
ANESTHESIOLOGY
RADIO DIAGNOSIS
GENERAL SURGERY
ORTHOPEDICS
OTORHINOLARYNGOLOGY
OBSTETRICS & GYNECOLOGY
OPHTHALMOLOGY
CARDIOLOGY
MEDICAL GASTROLOGY
NEURO SURGERY
UROLOGY
NEPHROLOGY
SURGICAL ONCOLOGY
SURGICAL GASTROENTEROLOGY
ENDOCRINOLOGY













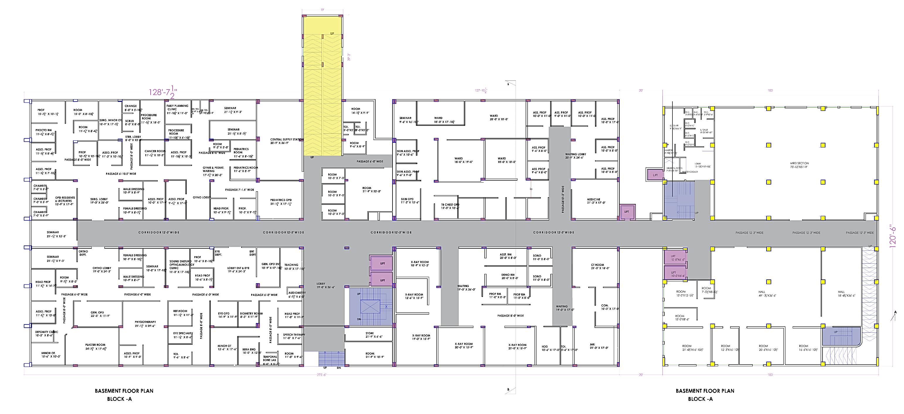
BASEMENT FLOOR
BASEMENT CONSISTS MOST OF THE GENERAL OPD’S AND OPRTHOPEDICS OPD, GENERAL SERGERY OPD, GYNECOLOGY OPD, NEONQTOLOGY OPD, ENT OPD, OPTHAMOLOGY OPD, PHYSIOTHERAPY OPD, PSCHIATRY OPD, RESPIRATORY MEDICINE OPD, SKIN AND V D OPD
BASEMENT FLOOR ALSO CONSISTS THE SAMPLE COLLECTION ROOM X-RAY ROOM, USG CT, MRI SCAN MRD
THE WIDTH OF THE CORRIDOR IS 3 73 METERS CERAMIC TILES ARE USED INSIDE THE HOSPITAL BASEMENT FLOOR ALSO CONSISTS THE MEDICAL RECORDS DEPARTMENT
GROUND FLOOR
MAIN LOBBY
EMERGENCY LOBBY
PHARMACY
GENERAL OPD’s
GROUND FLOOR ALSO CONSISTS MICU,SICU,BICU AND OT’S FOR CRITICAL CASES ALONG WITH CENTRAL LABORATORY THE SEVERITY OF A EMERGENCY CASE IS DEVIDED IN TO 3 CATEGORIES OR TRIAGESSRED,YELLOW AND GREEN WITH RED BEING MOST CRITICAL AND GREEN BEING LEAST CRITICAL CASE THE WIDTH OF THE EMERGENCY CORRIDOR IS 17’3” OR 5257 8 MM AND OF OPD CORRIDOR IS 3 73 METERS
CERAMIC TILES ARE USED INSIDE THE HOSPITAL GROUND FLOOR ALSO CONTAINS THE BHAMASHAH OFFICE, PHARMACY , CANTEEN AND OPTICAL SHOP






























