Retail Project- Versace

Page 1

SHAMS ALI 12/13/2022

INTERIORS 3: RETAIL DESN 36529

SHAHNAZ SAMUEL

Versace history

Gianni Versace, founded in 1978 in Milan, is one of the top international fashion design businesses and a global icon of Italian luxury. It creates, manufactures, distributes, and sells fashion and lifestyle items such as haute couture, prêt-àporter, accessories, jewelry, watches, eyewear, fragrances, and home furnishings, all of which sport the Medusa emblem. Versace today represents its past with powerful and courageous designs, while targeting a new global audience, thus solidifying Versace's role in current culture. (Versace, 2022)

V E R S A C E I N T E R I O R S 3 : R E T A I L INFO

Brand Values

"A MANIFESTO OF VERSACE VALUES: A WINNING FORMULA FOR A MODERN GENERATION, THE VERSACE VALUES PROCLAIM VICTORY, CONSCIOUSNESS, UNITY, POSITIVITY, DIVERSITY, ADVENTURE AND INTEGRITY - IDEALS AT THE HEART OF VERSACE." (VERSACE, 2022)

GIANNI VERSACE & DONATELLA VERSACE DONATELLA VERSACE & HER SUPERMODELS

old versace versace today

p a t t e r n s m i n i m a l I T A L I A N g o l d s Inspirations Inspirations

DESIGN CONCEPT

Luxury fashion, in its own way, altered the world. Versace is a brand that is not only unique in its element selection but also brilliant when it comes to promoting its collections and forging high-profile partnerships. Versace is connected with being aggressive, seductive, and forceful, as well as sexy yet elegant. I chose to do a combination of the past and present where it captures the history of Versace, from its originality and authenticity in designing to its distinctive modern look today

SQUARE ONE SHOPPING CENTER

WOMENSWEAR

SECOND FLOOR

VERSACE

CRU2-414

Bubble DIAGRAM

in accordance to appendex A

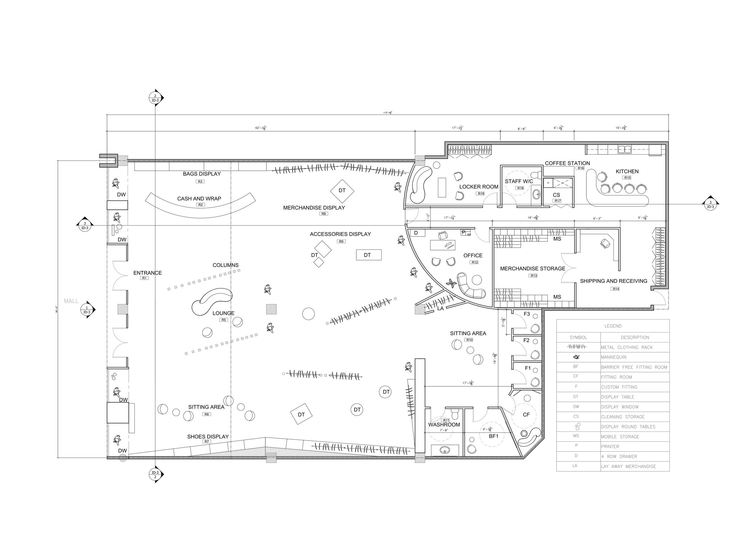
FLOOR PLAN

REFLECTED CEILING PLAN

LIGHT REFERENCE IN ACOORDANCE TO APPENDEX B

storefront ELEVATION

latitudinal ELEVATION

longitudinal ELEVATION

wallpaper

cashier island design

carpet

lounge chairs

wallpaper change rooms' wall

wall tiles

chandelier back of the house furniture
materialBOARD
C
floor plan rendered MATERIAL REFERENCE IN ACOORDANCE TO APPENDEX

MATERIAL REFERENCE IN ACOORDANCE TO APPENDEX C

renderedLATITUDINAL ELEVATION

renderedLONGITUDINAL ELEVATION

MATERIAL REFERENCE IN ACOORDANCE TO APPENDEX C

close-upLONGITUDINAL ELEVATION

MATERIAL REFERENCE IN ACOORDANCE TO APPENDEX C

renderedSTOREFRONT ELEVATION

MATERIAL REFERENCE IN ACOORDANCE TO APPENDEX C

storefront prespectiveVIEWS

interior prespectiveVIEWS

APPENDIXA

dj e

APPENDIXB lightingSCHEDULE

APPENDIXC materialitySCHEDULE

REFERENCES

LuxuryAbode. (n.d.). Versace - the brand story. Luxury Abode. Retrieved December 13, 2022, from https://www.luxuryabode.com/blog/versace--the-brandstory/artid73#:~:text=Luxury%20Fashion%20revolutionized%20the%20world,and%20powerful%2C%20Sexy%20yet%20elegant.

Versace Company Profile: Official website. Versace. (n.d.). Retrieved December 13, 2022, from https://www.versace.com/international/en/about-us/company-profile.html

Turn static files into dynamic content formats.

Create a flipbook
Issuu converts static files into: digital portfolios, online yearbooks, online catalogs, digital photo albums and more. Sign up and create your flipbook.
Retail Project- Versace by sshxms - Issuu