Jesse Meadows Listing Presentation

Page 1

JESSE MEADOWS REALTOR

PRESENTATION FOR

Robert & Elaine Molnar
102 John Pott Drive
Williamsburg,VA 23188

ABOUT Jesse Meadows

JESSE MEADOWS, REALTOR

757.784.8847 | JesseMeadows@SRMFRE.com

Along with her successful track record as a realtor, Jesse brings over a decade of sales and marketing experience, managing m ultimillion-dollar clients and developing marketing campaigns that yielded results. Her background in direct-mail marketing, digital advertising and social media marketing provides her the edge needed to market and sell homes quickly and for top dollar.

Jesse also has a strong interest in building & new construction and has made many connections with local builders in the area . Personally, she has recently flipped a property and is now undertaking a major renovation adding 1,500 sqft to an existing home and completely reworking the floorplan.

Originally from Maine, Jesse relocated to Virginia to attend VCU, earning a Bachelor of Science degree in Mass Communications with a concentration in Public Relations. Her husband was born & raised in Williamsburg and that’s what brought them back to the area.When she’s not working, you can find her & her husband taking their dog Finn for a hike, boating on the Chickahominy River or working on their newest construction project.

AWARDS & EXPERIENCE

SRMF Gold Award forSales Volume &Units Sold 2022

Champions Club (AllQuarters) 2021, 2022

Rookie of the Year 2020

Presidents Club (BoostBranding) 2016, 2017, 2018, 2019

Salesperson of the Year(BoostBranding) 2017 & 2018

PROFESSIONAL ORGANIZATIONS

WilliamsburgAssociation of Realtors

Richmond Association of Realtors

Real Estate Information Network

National Association of Realtors

THE COMPANY

SHAHEEN, RUTH , MARTIN & FONVILLE

Shaheen, Ruth, Martin & Fonville was founded by four Managing Brokers, Scott Shaheen, Scott Ruth, John Martin, and Mahood Fonville, that wanted to make a difference and get back to the basics of selling local Real Estate. Their focus was on staying relevant and being ahead of the power curve when it comes to technology, marketing, and training in the Residential RealEstate Arena. "We want our agents to be the best when it comes to representing our clients and working with other Brokers, and three words that best describes our team are Supportive, Ethical, & Professional. " as stated by John Martin. When asked why he wanted to start his own company Scott Shaheen said, “We wanted to create a culture and brand that was going to be local! Everything is going back to the roots and being local and home grown”

The company has coverage in the Williamsburg, Greater Richmond, Hampton Roads, and the Wintergreen markets. To date we have over 187 experienced agents and selectively growing each day. The firm also has a Luxury component that specializes in Estates, Higher-End and Historic Homes, Land, and Waterfront properties.

When asked why makes your company different than other Real Estate Firms, Scott Ruth said, "The agents themselves in our office are the best trained in the industry. With 4 brokers that are available daily with a combined 80 years of experience is unique and not something you will find in another firm. By being practicing broker/owners, we can relate firsthand to the needs of agents, problem solving, and what is needed to help agents be successful."

When asked about the company’s core values, Mahood Fonville said, "I believe the core value of Shaheen, Ruth, Martin & Fonville is “The Golden Rule” of life and to treat others as you would like to be treated. In addition, and equally important, is having a balance in your life with your Faith, Family, and Work. Without a balance you will not be happy or successful personally or professionally." Lastly, as stated by Scott Ruth, “We couldn’t be happier with our move and the response from the community has been amazing!”

Visit our site at www.SRMFRE.com for information about each of the owners, agents, the firm, and our properties.

THE COMPANY

Aerials & VIEWS

County TAX RECORD Data

COUNTY TAX RECORDS - Map

ADDRESS TAX RECORDS & GIS REPORT

ADDRESS TAX RECORDS & GIS REPORT

COMPARABLE SALES & ACTIVE LISTINGS

Subject Property

ADDRESS TAX RECORDS & GIS REPORT

Subject Property 20% Above & Below Subject Lot Size With Similar Assessed Value on Land Highest Sales & Sq. Ft. on Premium Lots

SALES AND LISTINGS

SALES AND LISTINGS

SALES AND LISTINGS

SRMF, REAL ESTATE - Marketing team

The SRMF Marketing Team handles all the creative and marketing needs of the agents and the company, as well as performs administrativeduties in their respective home office location.

LENI PRICE RIDGE OFFICE MELANIE BANTON BON AIR OFFICE NATALIE DEKKER GROVE OFFICE JENNA HUMPHREYS WILLIAMSBURG OFFICE SUSAN RICHARDSON IRVINGTON OFFICE

SRMF, REAL ESTATE LAND & LOTs

11M MonthlyVisits

LAND.COM NETWORK STATS

7x More traffic than all other land sites combined

LAND.COM

Great way to promote your land, homes w/ land, waterfront, equestrian and historical property listings!

6.5M MonthlyUnique Visitors

• SRMF has Signature Level Package as a top tier firm on Land.com. This will give us access to millions of buyers and sellers through the largest and most effective rural real estate marketplaces.

• Listings are marketed on 3 websites: Lands of America, Land and Farm, LandWatch and Land Magazine

LAND.COM

SRMF, REAL ESTATE Social Media MARKETING

MAILCHIMP WeeklyMailChimpE-Mail Blastto7000+ EasternVirginiaAgents
SRMF
Listing syndication – ZILLOW & REALTOR.COM

Listing syndication

SELECTED AS A top richmond realtor by virginia living magazine 2021

~ LuxuryRealEstate.com offers access to the most multi-million-dollar properties. ~

Membership, firms and brokers must list and sell in the top 10 percent of their market and demonstrate expertise in the marketing and sale of luxury properties.

With the guidance of the Board of Regents (Regents.com), the governing body of Luxury Real Estate, our network represents the best in the business."

"Who'sWho in Luxury Real Estate is a compendium of the finest residential real estate firms from around the world.”
Brian Losh,

OUR BRAND

We do extensive Branding for our firm. Our clients love it and our signs are among the best in the business. Our agents and clients get behind our logo and drive to get more exposure for our clients.

SRMF, REAL ESTATE - LOCAL RESOURCE TOOLS & MARKETING

MOBILE SYNDICATION

HomeSearch Feature SRMF MobileSite

VOTED BEST REAL ESTATE FIRM IN CENTRAL VIRGINIA –2018, 2019, 2020 & 2021

We were voted as the Best Real Estate Firm by readers of Virginia Living Magazine for three straight years!

ADDITIONAL SERVICES PROVIDED

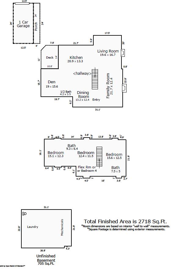
APPRAISER MEASURED

REAL ESTATE PHOTOGRAPHY

HDR Photography

Our photographers use state of the art equipment and advanced post-production processes to produce brilliant photos. Photographs are delivered in web-friendly sizes and full-size HD images.

Turn static files into dynamic content formats.

Create a flipbook
Issuu converts static files into: digital portfolios, online yearbooks, online catalogs, digital photo albums and more. Sign up and create your flipbook.
Jesse Meadows Listing Presentation by Shaheen, Ruth, Martin & Fonville Real Estate - Issuu