Product datasheet AP3 Duits

Page 1


AP2-50_NOP

Material:

• Stahl S235JR

• Edelstahl V2A und V4A

Oberflächenveredelung:

• Roh

• Feuerverzinkung

• Pulverbeschichtung

• gebeizt

Abmessungen:

• Länge max.3000mm

• Minimum Höhe 1e Kantung: 17mm

• Minimum bei 2 Kantungen: 25-17mm

• Minimum bei 3 Kantungen: 45-25-17mm

Rutschklasse:

• AP 2-50 NOP Staal, verzinkt

• AP 2-50 NOP Edelstahl, gebeizt

Anwendung:

• Stufe

• Podest Stufe

• Mehrere Profilen zusammenschweißen als Rost .

• Leitersprossen

AP2-30_MAW

Material:

• Stahl S235JR

• Edelstahl V2A und V4A

Oberflächenveredelung:

• Roh

• Feuerverzinkung

• Pulverbeschichtung

• gebeizt

Abmessungen:

• Länge max.3000mm

• Minimum Höhe 1e Kantung: 17mm

• Minimum bei 2 Kantungen: 25-17mm

• Minimum bei 3 Kantungen: 45-25-17mm

Rutschklasse:

• AP 2-30 ZAW Staal, verzinkt

• AP 2-30 ZAW RVS, gebeizt R13

Anwendung:

• Stufe

• Podest Stufe

• Mehrere Profilen zusammenschweißen als Rost .

• Leitersprossen

R11

Material:

• Stahl S235JR

AP2-30_ZAW

(gleich wie MAW aber jetzt ohne wasserlöcher)

• Edelstahl V2A und V4A

Oberflächenveredelung:

• Roh

• Feuerverzinkung

• Pulverbeschichtung

• gebeizt

Abmessungen:

• Länge max.3000mm

• Minimum Höhe 1e Kantung: 17mm

• Minimum bei 2 Kantungen: 25-17mm

• Minimum bei 3 Kantungen: 45-25-17mm

Rutschklasse:

• AP 2-30 ZAW Staal, verzinkt

R11

• AP 2-30 ZAW RVS, gebeizt R13

Anwendung:

• Stufe

• Podest Stufe

• Mehrere Profilen zusammenschweißen als Rost .

• Leitersprossen

AP2-30_VMA

Material:

• Stahl S235JR

• Edelstahl V2A und V4A

Oberflächenveredelung:

• Roh

• Feuerverzinkung

• Pulverbeschichtung

• gebeizt

Abmessungen:

• Länge max.3000mm

• Minimum Höhe 1e Kantung: 17mm

• Minimum bei 2 Kantungen: 25-17mm

• Minimum bei 3 Kantungen: 45-25-17mm

Rutschklasse:

• AP 2-30 VMA Staal, verzinkt

• AP 2-30 VMA RVS, gebeizt R13

Anwendung:

• Stufe

• Podest Stufe

• Mehrere Profilen zusammenschweißen als Rost .

• Leitersprossen

• Safety Lochung (kleine Löcher)

R11

Material:

• Stahl S235JR

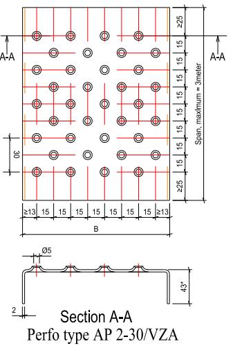
AP2-30_VZA

(gleich wie VMA aber jetzt ohne wasserlöcher)

• Edelstahl V2A und V4A

Oberflächenveredelung:

• Roh

• Feuerverzinkung

• Pulverbeschichtung

• gebeizt

Abmessungen:

• Länge max.3000mm

• Minimum Höhe 1e Kantung: 17mm

• Minimum bei 2 Kantungen: 25-17mm

• Minimum bei 3 Kantungen: 45-25-17mm

Rutschklasse:

• AP 2-30 VMA Staal, verzinkt

R11

• AP 2-30 VMA RVS, gebeizt R13

Anwendung:

• Stufe

• Podest Stufe

• Mehrere Profilen zusammenschweißen als Rost .

• Leitersprossen

• Safety Lochung (kleine Löcher)

Turn static files into dynamic content formats.

Create a flipbook
Issuu converts static files into: digital portfolios, online yearbooks, online catalogs, digital photo albums and more. Sign up and create your flipbook.
Product datasheet AP3 Duits by SPRICH AG - Issuu