
8 minute read
DI MARIA CARBONE
from Tsport 341
Vercelli Riqualificazione dell’impianto natatorio “Le Piscine” con nuova copertura telescopica
di Maria Carbone
Advertisement
L’intervento consiste nella realizzazione della nuova copertura telescopica della vasca nuoto preesistente con la formazione di un nuovo corpo servizi a supporto della vasca attività. Le opere si inseriscono in un più ampio programma di riqualificazione dell’Impianto Natatorio denominato “Le Piscine” che ne prevede il completamento con vasche esterne, strutturate funzionalmente ad uso stagionale, attualmente in fase di cantierizzazione.
Nella delineazione della morfologia dell’intervento (organizzazione spaziale dell’area, orientamento degli ambiti), si sono privilegiati alcuni aspetti prioritari: -funzionalità (percorsi utenti/mezzi di servizio/soccorso); -salvaguardia del verde esistente, massima integrazione nel sottosistema ambientale e mitigazione per qualità di materiali, emergenze, cromie; -accessibilità all’area (accesso utenti, infrastrutture); -sicurezza; -razionalità. Gli interventi che rientrano all’interno di un programma più ampio di riqualificazione dell’intero impianto natatorio (progetto di completamento con nuove vasche stagionali all’aperto) comprendono la copertura della vasca nuoto esistente, la dismissione della vasca tuffi (adibita a nuovo locale tecnico trattamento acqua piscina con nuova vasca di compenso) e la realizzazione di un fabbricato per accogliere gli spazi di servizio e supporto.
In particolare il progetto si è attuato con l’esecuzione dei seguenti interventi. - Ridefinizione morfologica della vasca nuoto esistente con adeguamento dimensionale alle norme FIN-FINA mediante il restringimento e adeguamento della lunghezza con allungamento della testata per la formazione di una nuova vasca di forma rettangolare di dimensioni 25,03 x 12,5 m. omologabile FIN.
Con il restringimento della vasca sui lati lunghi si sono venute a formare due intercapedini laterali che ospiteranno le nuove linee dell’impianto di trattamento acqua. Le pareti della nuova vasca sono costituite da muri in c.a. che sostengono anche il nuovo solaio delle intercapedini, e sul quale è stata posizionata la canalina di sfioro del tipo alla finlandese, prefabbricata metallica in acciaio inox con bordo ceramico. La vasca è stata impermeabilizzata e rivestita con esecuzione di ciclo applicativo a base di resine poliuretaniche con finitura in polietere isocianato bicomponente alifatico per piscine con tracciature a norma FIN-FINA. Sono state posizionate scalette in acciaio inox AISI 316 con gradino di sicurezza per l’accesso in vasca.
Il ricircolo dell’acqua di vasca è garantito dalla nuova rete di distribuzione con nuove immissioni dal fondo e dallo sfioro continuo sui lati lunghi.
Il progetto ha previsto inoltre la formazione di una nuova vasca di compenso funzionalmente collocata all’interno della vasca tuffi preesistente che è stata dismessa e trasformata in locale tecnico di trattamento acqua. - Formazione della nuova spiaggia pavimentata su vespaio aerato ottenuto con elementi modulari tipo igloo poggiati sulla caldana in calcestruzzo esistente.
Sono stati posati pannelli di isolamento, eseguito il getto del sottofondo e la finitura con rivestimento in piastrelle ceramiche antisdrucciolo,






lavabili. Sul perimetro della spiaggia sono posizionate le canaline di raccolta dell’acqua di lavaggio. - Copertura della vasca con soluzione telescopica, costituita da archi e baraccature di testata in legno lamellare con tamponamenti in policarbonato alveolare altamente prestazionali con trattamento antiabbagliamento.
La copertura è costituita da 4 settori (i 2 centrali scorrono ciascuno sui 2 laterali fissi). Gli archi sono impostati con sistema a piastre su cordoli di fondazione in calcestruzzo armato con binario di scorrimento in acciaio inox. - Realizzazione del corpo spogliatoi/servizi costituito da hall con ufficio e servizi igienici, spogliatoi utenti e istruttori, infermeria.
Al di sotto del corpo servizi la vasca tuffi dismessa ospita i locali tecnici di trattamento acqua con accesso dall’esterno del fabbricato attraverso scala metallica. Sulla copertura piana del fabbricato servizi sono posizionate le 2 UTA a servizio dell’ambiente vasca e del corpo servizi.
Le strutture in elevazione ed i solai del corpo servizi sono stati realizzati con “sistema semiprefabbricato” in cemento armato e pannelli di
EPS, che garantisce ottime proprietà meccaniche e termiche. È stato realizzato un vespaio aerato con elementi modulari tipo igloo e getto di completamento armato con posa di isolante, sottofondo, e la finitura in piastrelle ceramiche di idoneo grado antisdrucciolo rapportato alla destinazione d’uso dei locali. Le partizioni interne sono state realizzate a secco con telai zincati, pannellature in cartongesso ed isolante interposto. Le pareti dei locali sono rifinite con piastrelle ceramiche e tinteggiatura in relazione alla destinazione d’uso dei locali e conformemente alle norme di igiene. Tutti i locali del corpo servizi sono controsoffittati: al di sopra del controsoffitto si distribuiscono i canali della termoventilazione, mentre gli impianti elettrici sono con tipologia esterna “a vista”. Le porte interne e le partizioni tra servizi igienici e tra i singoli posti doccia sono in laminato stratificato HPL. Le porte ed i serramenti esterni sono realizzati con telaio in pvc prestazionale a taglio termico e specchiature in vetrocamera antisfondamento. Ai locali tecnici del trattamento acqua, ricavati all’interno della ex vasca tuffi dismessa, si accede attraverso una scala metallica. È stato ricavato all’interno un piccolo locale per lo stoccaggio dei prodotti chimici direttamente aerato sul
cavedio di accesso, oltre alla vasca di compenso delimitata con nuovi muri in c.a. Due cunicoli tecnici collegano il locale tecnico alle intercapedini della vasca attività, in modo tale da garantire l’ispezionabilità della vasca e garantire l’attività manutentiva. - Realizzazione di un ambito tecnico per la centrale termica alimentata a gas per l’alimentazione delle UTA, dello scambiatore vasca e la produzione di ACS con accumulo. - Sistemazioni esterne.
Le aree di pertinenza in adiacenza al fabbricato sono rifinite con marciapiede in cemento scopato. È stata demolita la vecchia tribuna esterna in affaccio alla vasca scoperta ed è stato realizzato un solarium a prato verde con impianto di irrigazione prevista oltre alla realizzazione del nuovo accesso carraio e pedonale su via Baratto.
Completamento
L’intervento di riqualificazione dell’Impianto Natatorio “Centro Nuoto” sarà completato con l’attuazione del Progetto di Completamento, attualmente in fase di cantierizzazione, che prevede la realizzazione di nuove vasche esterne, strutturate funzionalmente ad uso stagionale e per attività
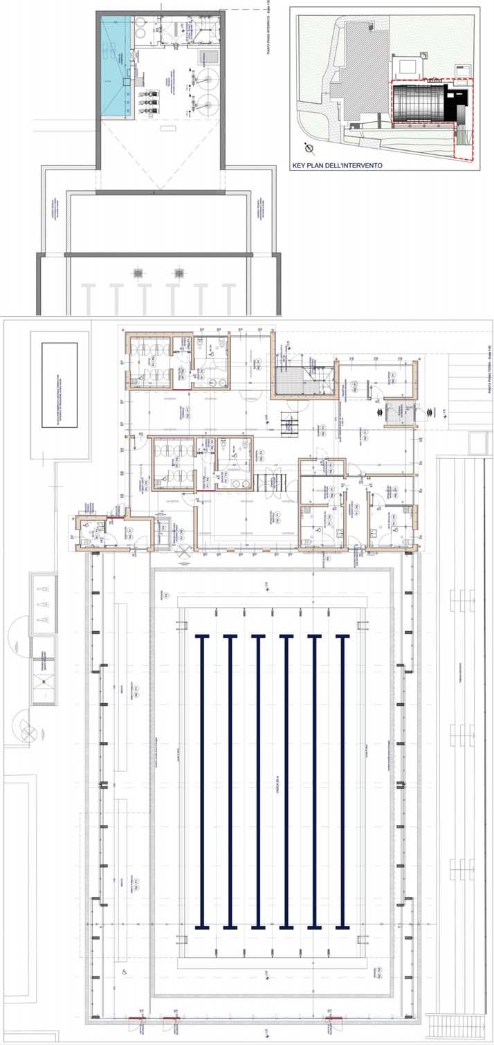
Nella pagina a sinistra, pianta di progetto del piano terra. In alto, in piccolo, collocazione planimetrica. In questa pagina, dall’alto: sezione longitudinale; in scala più piccola, prospetto nord (a copertura chiusa); sezione trasversale; prospetto sud (a copertura aperta); prospetto est. On the left page, project plan of the ground floor. Above, in small scale, planimetric location. On this page, from top: longitudinal section; on a smaller scale, north elevation (closed roof); cross section; south elevation (open roof); east elevation.
acquatiche natatorie all’aperto. Gli interventi in progetto, prevedono: la demolizione del fabbricato esistente, ormai non più recuperabile dal punto di vista strutturale, con la conservazione della vasca nuoto da 25 m che sarà oggetto di completa riqualificazione, la realizzazione di una nuova vasca ricreativa scoperta e la realizzazione di nuovi blocchi spogliatoi stagionali con copertura leggera compresa la realizzazione di nuovi locali tecnici per le vasche stagionali e le sistemazioni delle aree di pertinenza a solarium verde. Il Nuovo Impianto Natatorio “Centro Nuoto” così strutturato con la riqualificazione dell’ambito all’aperto, funzionalmente integrato all’adiacente piscina comunale con copertura telescopica presenterà un’offerta completa del servizio natatorio sportivo e ricreativo per la Città di Vercelli e non solo.
Swimming centres Vercelli: redevelopment of the swimming facility with a new telescopic cover
The project consists in the construction of a roof over the existing swimming pool with the formation of a new service area to support the activity pool.
In outlining the morphology of the intervention (spatial organisation of the area, orientation of the areas), priority was given to a number of primary aspects: functionality (paths for users/service vehicles/rescue); preservation of the existing green areas, maximum integration in the environmental subsystem and mitigation by quality of materials, emergencies, colours; accessibility to the area (user access, infrastructures); safety; rationality.
The works, which are part of a wider programme of redevelopment of the entire swimming facility, include the covering of the existing swimming pool, the decommissioning of the diving pool (used as a new technical room for pool water treatment with a new compensation tank) and the construction of a building to house the service and support areas.
The redevelopment will be completed with the implementation of the Completion Project, currently in the construction phase, which provides for the construction of new outdoor pools, functionally structured for seasonal use and for outdoor swimming activities.
The New " Centro Nuoto" Swimming Facility, thus structured with the redevelopment of the outdoor area, functionally integrated with the adjacent municipal swimming pool with telescopic cover, will present a complete range of sports and recreational swimming services for the City of Vercelli and beyond.








Riqualificazione dell’impianto natatorio “Centro Nuoto” sita in Via Baratto a Vercelli.
Committente: Amministrazione Comunale di Vercelli, Settore Opere Pubbliche
Progettazione, Direzione Lavori, CSE: Studio SdiA Architetto Paolo Pettene & Partners STP Srl, arch. Nicolò Calabrese, NIER Ingegneria Spa
Fine lavori: settembre 2021 Attrezzature vasca e arredi spogliatoi: Patentverwag Italia
A sinistra, dall’alto: esterno con la copertura chiusa; lo stesso con la copertura parzialmente aperta; la copertura dall’interno. In questa pagina, in alto il totem d’ingresso e, a destra, gli arredi degli spogliatoi; sotto, la vasca. Nella foto in b/n, l’architetto Pettene durante la Direzione Lavori. Left, from top: outside with the covering closed; the same with the covering partially open; the covering from inside. On this page, top: the entrance totem pole and, right, the changing room furnishings; below, the pool. In the b/w photo on the right, the architect Pettene during works management.

