
School Board Meeting
South Fayette Twp School District
May 27, 2025






May 27, 2025
NORTH-VIEW W CAMPUS S PERSPECTIVE
New w K-2 2 Primar y School l (Design Phase)
1.K-2 Phase 1 Geotechnical Investigation Proposal from CEC to Board
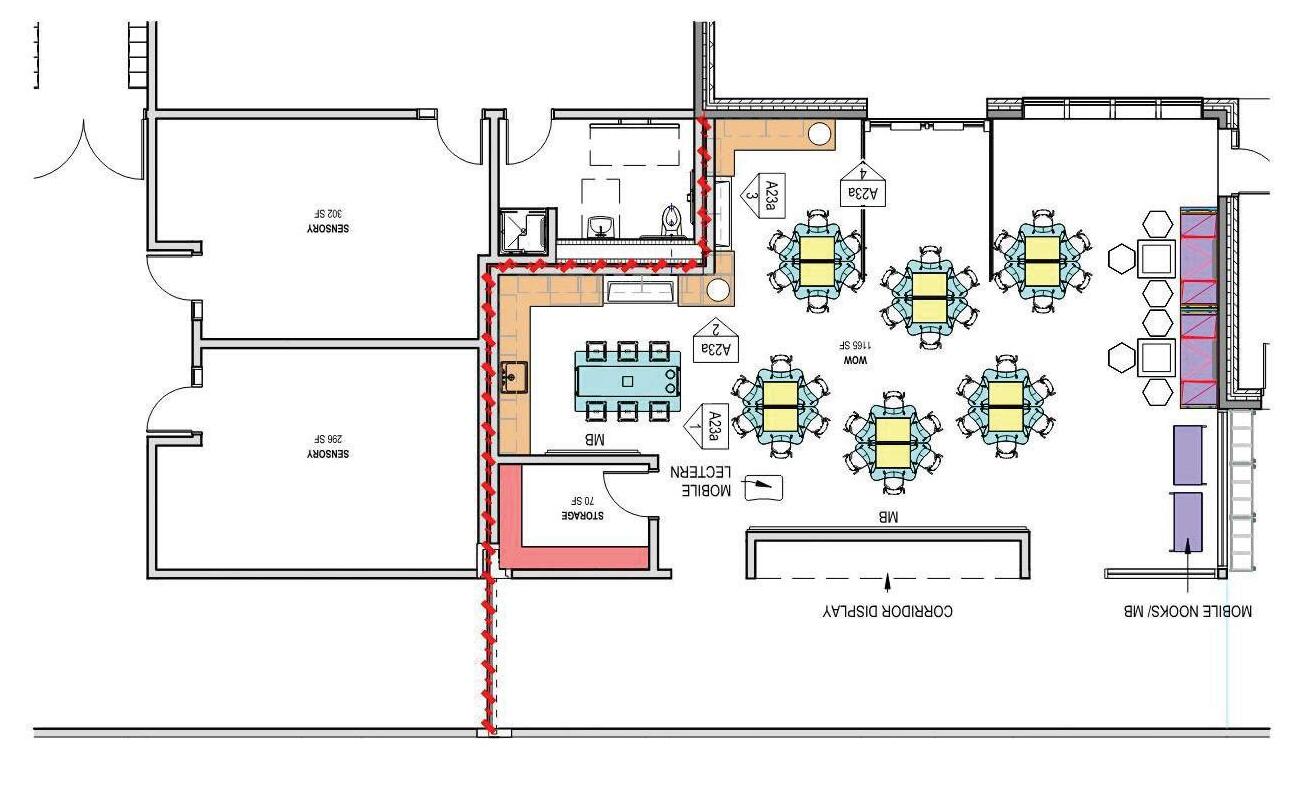
2.Plan revisions based upon staff input continue.
3.Meetings since last Board Workshop:
April 23rd –Art, PE, and Media Center
May 5th –Learning Lab, Courtyard and Playground
May 9th –Music/Arts Alive, LGI, and Kitchen
4.Forthcoming Meetings:
1.May 23rd: DD Floor Plan Review and follow up faculty meetings
2.May 28th: Final DD faculty meetings
3.Preliminary Planning Meeting with Township for Land Development
5.Schedule:
1.Complete Design Development August 29th, 2025
1.NPDES and Land Development applications submitted at this time (4-6 month review)
2.Complete Construction Documents December 15th, 2026
3.Bidding January –February 2026 dependent on County/DEP Approval Timeline
4.Construction Start Spring 2026 thru August 2028 (28 months for building occupancy)
South
INTERMEDIATE SCHOOL
LOADING
LOWER LEVEL KINDERGARTEN SIDE ENTRY
PLAYGROUND AREA
BUSSING ENTRY
FUTURE ADDITION
ENTRY
FUTURE ADDITION
MIDDLE LEVEL
FIRST GRADE
FUTURE ADDITION
UPPER LEVEL
SECOND GRADE
FUTURE ADDITION