Cedral® Lap and Click Weatherboard cladding


An affordable, versatile weatherboard solution that provides a high quality, low maintenance exterior for any building. Available in a variety of colours.
Bespoke trims made to order
Build with confidence
![]()


An affordable, versatile weatherboard solution that provides a high quality, low maintenance exterior for any building. Available in a variety of colours.
Bespoke trims made to order
Build with confidence
Cedral® offers a versatile, high-strength, A2 fire-rated fibre cement weatherboard system. Fibre cement cladding is a durable, low-maintenance and cost-effective alternative to traditional wooden panels.
Cedral® Lap is installed in a traditional shiplap style. The resulting façade has deep shadow lines, for that iconic weatherboard look.

Code: EW1WB-C**
Dimensions: 3600mm x 190mm x 10mm
Weight per board: 11.2kg
Fixings per board: 7
Boards per m²: 1.75 (add 5-10% wastage allowance)
Visible surface: 160mm
Colours: 21 colours available from stock
Textures: Woodgrain only.
Adding additional boards for window reveals (depending on the depth of the reveal) and 5-10% allowance for wastage is advised.



Cedral® Click is a tongue and groove system with a flush finish that can be installed both horizontally and vertically, giving building exteriors a more contemporary appearance.

Code (Woodgrain): EC1WB-C**
Code (Smooth): EC1WBS-C**
Dimensions: 3600mm x 186mm x 12mm
Weight per board: 12.2kg
Fixings per board: 7
Boards per m²: 1.64 (add 5-10% wastage allowance)
Visible surface: 174mm
Colours: 16 Woodgrain colours and 5 Smooth colours available from stock
Textures: Woodgrain and Smooth




All 21 colours of Cedral® Lap and the 16 standard Cedral® Click colours are held in stock at Southern Sheeting.

■ Cedral® Click Woodgrain held from stock













● Cedral® Click Smooth held from stock








Please note this chart is to be used as a colour reference guide only. Printer or screen display setting can vary and so we recommend choosing a colour based on a physical sample piece.
The trims for both Lap and Click cladding systems are colour matched with a hard-wearing powder-coat finish.
It is integral that aluminium trims are fitted before the boards are installed. Please refer to the installation guide for more information. Powder-coated trims are supplied in a clear, protective film. Please ensure that this is removed prior to installation.




2.5m long, 30mm x 40mm
2.5m long, 30mm x 50mm
2.5m long, 30mm x 70mm
2.5m long, 30mm x 100mm
2.5m long, 30mm x 40mm
2.5m long, 30mm x 50mm
EW1IM50-BK
Used to cap off battens at the top and bottom of all openings, including above and below windows and doors. The mesh prevents insects or rodents accessing the ventilated cavity behind the boards while still allowing for vital airflow.
Code: EW1SP30-C**
Length: 3m
Available from stock in 21 colours
Used to create a kick-out with the first lap board fitted horizontally on the bottom run. Also used on door and window heads.

Code: EW1ECSY31-C**
Length: 3m
Available from stock in 21 colours
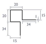
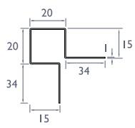
Used vertically on 90° external corners of a building, where the boards are lapped either side of the corner.




Code: EW1ECASY31-C**
Length 3m
Available from stock in 21 colours
Used internally with a colour-matched clip-on external piece.
Reduces installation time as edges are covered, negating need for neat cuts or touch-up paint.
Code: EW1IC25-C**
Length 3m
Available from stock in 21 colours
Used vertically on the internal corners of a building.
Code: EW1EP26-C**
Length 3m
Available from stock in 21 colours
Used to create a neat end for boards to abut. This trim is designed to sit on top of a timber batten and in some installations can leave it exposed and visible. Other options are available. Please contact our Sales team for advice on alternative solutions.
Code: EW1CP15-C**
Length 3m
Available from stock in 21 colours
Used around the edge of a window reveal board, where the board meets the window. Can also be used horizontally to cover the cut edge of a board along the top run, near the eaves line.





Code: EC1SP
Length 3m
Available only in plain aluminium finish
Used horizontally at the beginning of the run to support the first cladding board.

Code: EC1VSP EC1VSP-BK
Length 3m
Available in 2 colours - plain aluminium finish and black
Used horizontally beneath a run of vertically installed boards to provide support and an edge to disperse at the beginning of the run to support the first cladding board.

Code: EC1EC-C**
Length 3m
Available from stock in 16 colours
Used on the external corners of a building as well as window and door reveals.

Code: EC1IC-C**
Length 3m
Available from stock in 16 colours
Used vertically on the internal corners of a building.



Code: EW1TP-C**
Size: 500ml

Code: EC1LP-C**
Length 3m
Available from stock in 16 colours
Used across the head of a window.
Code: EW1CP15-C**
Length 3m
Available from stock in 16 colours
Used with Click boards as a stop end abutment trim. Can also be used around the edge of a window reveal board, where the board meets the window or along a top run of boards to cover a cut edge at the eaves.
Code
EW1CLADTAPE-50
Cladtape self-adhesive tape should be used to protect timber battens used when installing weatherboard cladding.
Code: EW1SCREW-C**
Available from stock in 21 colours
Used to paint the cut edges and small imperfections. Not advised for covering large areas on the face of the boards.


Available from stock in 21 colours 38mm long colour matched wood screw. Used along the top run of boards, round windows and on bridge lap vertical installs. Requires cladding to be pre-drilled.

Code: EW1SCREW
Dimensions: 4.2mm x 45mm long
Quantity: 200no. Allow 7 fixings per plank.


Code: EC1CLSCR
Box Qty: 250
Hidden fix clip for use with Cedral® Click. Recommended allowance 7 clips per 3.6m long board. (Clip & Rivet also available for metal support applications).
Code EW1TENMAT
Dimensions: 6 mm × 75 mm × 1000 mm
A rigid high expansion intumescent strip encased in aluminium foil. Designed for use with both Click and Lap systems within cavities up to 50mm deep.

sizes
165mm (4 teeth) 20mm bore size
190mm (6 teeth) 30mm bore size
216mm (6 teeth) 30mm bore size
235mm (6 teeth) 30mm bore size
FA1PROFBLADE165
FA1PROFBLADE190
FA1PROFBLADE216
FA1PROFBLADE235
A saw blade with polycrystalline diamond (PCD) teeth that cuts effortlessly through fibre cement cladding board products.
PCD saw blades are a significant upgrade on tungsten carbide tipped (TCT) blades. They last 50 times longer and provide a cleaner cut through fragile surfaces and can cut up to three times faster while creating less dust.

South East
Hill Place Farm, Turners Hill Road, East Grinstead, West Sussex RH19 4LX
Tel: 01342 315 300
Blade size
100mm long, 1.2mm thick (pack of 3)
Code
FA1PROFJIG100
• Jigsaw blades for cutting fibre cement and plaster
• Made from Tungsten Carbide
• Long lasting material designed to make intricate cuts in hardwearing materials
Saint Hill Farm Business Park, West Hoathly Road, East Grinstead, West Sussex RH19 4NG
Tel: 01342 315 300
Unit 4a and 4b
Wymeswold Business Quarter, Burton Lane, Wymeswold, Leicestershire LE12 5BS
Tel: 01509 380 283