REVISTA CASAS TEC 218







![]()







Casa Áureo es un espacio que se vive hacia el interior, que se abre para dar la bienvenida a la luz y reflejar sus trazos claros y sencillos para convertirla en un refugio de armonía y paz.

Casa Áureo es la quinta Casa del Tec en Valle Poniente, en el municipio de Santa Catarina, uno de los más jóvenes de Nuevo León y parte del área metropolitana de Monterrey. Santa Catarina ha sumado a su esencia industrial los mejores servicios educativos, de salud, seguridad y de esparcimiento en colonias como Cordillera Residencial, un complejo diseñado bajo el concepto de urbanismo inteligente , una nueva forma de planificación y desarrollo que se centra en restablecer la calidad de vida urbana reflejada en pequeñas comunidades, donde se cuenta con todo lo necesario a pocos pasos.
La décimo séptima Casa de Autor, es obra del Arq. Elías Rizo y el Taller Elías Rizo Arquitectos con base en Guadalajara, México. Esta es la segunda obra en la que contamos con su talento. La primera fue Casa Fiordo , Residencia del 209º Tradicional Sorteo Tec. La nueva Casa del Tec cuenta con interiorismo de la Arq. Cristina Grappin y el Estudio Cristina Grappin.
Casa Áureo es un proyecto donde la arquitectura se convierte en una experiencia sensorial y emocional. Concebida como un refugio íntimo, esta vivienda invita a sus habitantes a establecer una conexión profunda con su entorno y consigo mismos.
Desde 2013 Sorteos Tec ha cumplido los sueños de más de dos mil jóvenes con talento y compromiso social del Programa Líderes del Mañana reuniendo los fondos para las becas del 100%, para que cada año, alrededor de 200 pueden estudiar una carrera profesional en el Tecnológico de Monterrey transformando no solo su vida, sino las de las comunidades donde viven.
Por eso decimos que en Sorteos Tec ganas cuando recibes, ganas más cuando das.
Av. Cordillera #17
(entre Av. Francisco Villa y Calle Central) Col. Cordillera Residencial C.P.



La décimo séptima Casa de Autor, es obra del Arq. Elías Rizo y el Taller Elías Rizo Arquitectos con base en Guadalajara, México. Esta es la segunda obra en la que contamos con su talento. La primera fue Casa Fiordo, Residencia del 209º Tradicional Sorteo Tec.
ARQ. ELÍAS RIZO “ “
......LaArquitectura esnuestrasegundapiel, fundamentalparalavida yarmoníadelserhumano, eselrefugiodelalma. .......
Elías Rizo (México, D.F., 1967) es Arquitecto por el Instituto Tecnológico y de Estudios Superiores de Occidente (I.T.E.S.O,1992) en Guadalajara, Jalisco, México. Como estudiante, obtuvo la Mención de honor en el “International Student Competition” - Monument and Counterpoint, por el RIBA (Royal Institute of British Architects) en Inglaterra (1991). Tiene dos posgrados por la Universitat Politècnica de Catalunya (UPC, 1995 y 1996) en Barcelona, España – “Chicago, Urban Translations” y “Les Nous Instruments de L´Arquitctura” y un Master por la misma universidad – “La Gran Escala”.
En 1996 funda el Taller Elías Rizo Arquitectos en Guadalajara, México. De 1999 a 2004 se integró a la academia; primero como profesor del taller El Diseño del Mueble en el Instituto Tecnológico de Estudios Superiores de Occidente (ITESO) y luego como Profesor de Diseño en el Tecnológico de Monterrey, en Guadalajara, México.
Su trabajo ha sido publicado en diversas revistas y libros de arquitectura. Actualmente el despacho desarrolla proyectos en varias ciudades del país.
Para el Taller Elías Rizo Arquitectos (https://www.eliasrizo.com)todo se resume en una idea sencilla: crear espacios bellos que permitan que la vida de sus clientes sea mejor. La arquitectura no sólo da la eternidad y el cobijo, sino que es una segunda piel, la burbuja dentro
de la cual transcurre la vida de quienes habitan un espacio. Está siempre presente y da lecciones, pero sobre todo, da fantasías.
Quienes forman parte del Taller Elías Rizo Arquitectos proceden de educaciones diversas y tienen aptitudes y limitaciones varias; sin embargo, están claros de que pertenecen y provocan la cultura de nuestro momento y contexto. A su vez, creen que su trabajo es una pequeña contribución –constante e inevitable- a la fisonomía de los sitios donde intervienen.
Asumen esa responsabilidad con agudeza, y entendiendo, aprendiendo y proponiendo a pesar de los riesgos. Elías Rizo considera que nada se consigue sin riesgo, pero su compromiso es con el que habita; con el que se introduce al espacio y lo hace suyo. Con el que vive lo bello y lo siniestro de la arquitectura. El Taller Elías Rizo Arquitectos y su equipo trabaja convencido de encontrar en la arquitectura el camino para que, como en los cuentos, los sueños se vuelvan realidad.
Cordillera Residencial
Casa Áureo es la quinta Casa del Tec en Cordillera Residencial, en Valle Poniente. Está ubicada en el municipio de Santa Catarina, uno de los más jóvenes de Nuevo León y parte del área metropolitana de Monterrey en donde se han creado desarrollos que se integran a la naturaleza haciéndola parte fundamental de la vida de los habitantes bajo el concepto de urbanismo inteligente, una nueva forma de planificación que se centra en restablecer la calidad de vida urbana reflejada en pequeñas comunidades, donde se cuenta con todo lo necesario a pocos pasos.



Residencia en Nuevo León
valor total

El primer premio del 218º Tradicional Sorteo Tec es Casa Áureo. Con un valor total de $72,500,000 incluye un automóvil Tesla Model Y eléctrico y un automóvil Mercedes Benz CLA 200 MH automático; cheque de caja bancario por $1,072,489.59, cheque para derechos, impuestos y gastos de entrega, así como el valor de la escrituración y el seguro.
El proyecto se erige en 565.48m² en tres niveles que se distribuyen en un bloque monolítico que responde a las características del terreno y el clima de este municipio de Nuevo León.
La sobriedad de sus formas y la paleta monocromática confieren a la casa un carácter atemporal. Las fachadas, resguardadas por celosías y postigos de acero, filtran la luz natural, creando un juego de luces y sombras a lo largo del día. Estos elementos no solo proporcionan privacidad, sino que también establecen un diálogo sutil con el entorno, invitando a la reflexión y a la introspección.
Al adentrarnos en la casa, somos recibidos por una sensación de calma y equilibrio. Los materiales naturales cuidadosamente seleccionados, como el granito steel grey , la duela de ingeniería italiana y el mármol tundra grey , dialogan entre sí, generando un espacio que responde a una búsqueda de autenticidad, calidez y elegancia.
La distribución espacial ha sido diseñada para favorecer la convivencia y el descanso. Los espacios fluyen unos hacia otros, creando una sensación de continuidad y amplitud.
La planta baja, comienza con una cochera cubierta para tres autos con acceso familiar y acceso principal, hacia un vestíbulo; un baño de visitas y bastonero. Siguen la salacomedor con terraza, cocina con despensa, y un cuarto de servicio con baño completo, así como medio baño en pasillo lateral y el área de alberca.
En planta alta se encuentra la estancia familiar, recámara principal con baño, vestidor y terraza descubierta, así como espacio para blancos; también las dos recámaras

secundarias con baño, vestidor y terraza cubierta cada una, y lavandería y patio de servicio descubierto.
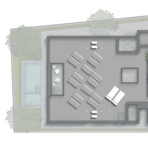
Casa Áureo cuenta con un Roof Top o terraza descubierta con sala y fire pit , jacuzzi y asador que ofrecen un rincón para la contemplación y el encuentro social.
Cada espacio de esta casa ha sido concebido como un lienzo en blanco, listo para ser habitado y personalizado por sus habitantes. La arquitectura, en este sentido, se convierte en un marco que permite a cada individuo expresar su propia identidad y sensibilidad.
Buscando respetar el entorno y medio ambiente, la vegetación decorativa es endémica. Esto logra crear una armonía entre todos los acabados y selección de colores y texturas.
Todos los muebles fijos han sido diseñados por el Taller Elías Rizo Arquitectos y se complementan con una propuesta de interiorismo de la Arq. Cristina Grappin (autora de Casa Nido , residencia del 215º Tradicional Sorteo Tec) con muebles y decoración en tonos de tierra en los que predomina la madera, jarrones artesanales y arte.
Casa Áureo es el resultado de una búsqueda de la belleza y la armonía en la arquitectura. La elección de cada detalle, desde la disposición de los espacios hasta la selección de los materiales, responde a la intención de crear un ambiente que invite a la contemplación y al bienestar.
Así, Casa Áureo es una casa de trazos claros y sencillos, y un refugio de armonía y de paz para sus habitantes.
565.48 m2
De construcción en tres plantas
$72,500,000
Valor Total
Incluye:
• Residencia con valor de $64,312,310.41 (incluye escrituración y seguro)
• Un automóvil Tesla Model Y eléctrico 2025 y un automóvil Mercedes
Benz CLA 200 MH automático 2025, con valor en conjunto de $2,040,200.00
• Cheque de caja bancario por $1,072,489.59
• Cheque para derechos, impuestos y gastos de entrega por $5,075,000.00



Ingreso
Vestíbulo
Baño
Patio
Despensa
Cocina
Comedor
Estancia
Asador
Terraza
Alberca
Máquina alberca
Servicios
Baño
Cuarto eléctrico
Boilers




Blancos
Recámara principal
Baño principal
Vestidor principal
Terraza
Recámara 1
Baño
Vestidor
Recámara 2
Baño
Vestidor
FamilyRoom
Terraza
Lavandería
Patio de servicio




















Tesla Model Y Eléctrico
Más información: https://www.tesla.com/es_mx/modely
https://www.mercedes-benz.com.mx/
Imágenesydescripciónparapropósitosinformativos.Lascaracterísticasdelautodelpremiopuedenvariar.

Casa Áureo es una casa con espacios estratégicamente diseñados para utilizar la luz y la ventilación natural de manera óptima. Pero también utiliza la mejor tecnología para complementar la comodidad de sus habitantes contribuyendo al cuidado del planeta y de sus finanzas.
Cámara en entrada principal que se puede monitorear desde la pantalla táctil de la casa y vía celular (preparación para 12 cámaras más).
Preparación para conectar hasta siete televisiones de alta definición de manera simultánea.
Preparaciones en algunas áreas para intercomunicación y conmutador telefónico; incluye timbre y pantalla en cocina para su operación.
Cuatro antenas de Wifi, con preparaciones extras para siete antenas más que le dé a toda la casa cobertura de internet inalámbrico.
Administra de manera simultánea e individualmente las seis zonas de audio que componen la casa, ofreciendo la posibilidad de escuchar diferentes tipos de música en cada área, a diferentes volúmenes.
Sistema de control de luces de toda la casa -excepto de recámaras secundarias y áreas de servicio-, con las que se pueden crear escenas de iluminación predeterminadas; control desde la pantalla táctil y teléfonos móviles o tabletas.

ElprogramadelTecnológicodeMonterrey paradetonarelcambio,lamovilidadsocial ylatrascendenciaesposibleconelapoyo ylagenerosidaddelasociedadatravés de Sorteos Tec.
Estamos convencidos de que una de las mejores vías para lograr que México florezca es la educación.
A través de experiencias educativas formamos personas que se convierten en agentes de cambio de sus comunidades; responsables de su propia vida, y conscientes de que su actuar puede apoyar la transformación de los demás. Personas íntegras, visionarias, comprometidas y participativas; talentosas, capaces, con visión global y espíritu emprendedor en todos los ámbitos en los que interactúan. Por ello, nuestra Visión es “Liderazgo, innovaciónyemprendimientoparaelflorecimiento humano”.
En el Tecnológico de Monterrey, sabemos que el potencial de liderazgo no depende de raza, credo o familia, y que la diversidad nos enriquece a todos.
Por ello, en el marco de su 70 aniversario, se creó el Programa Líderes del Mañana, un esfuerzo colectivo sin precedentes en nuestra comunidad, que apuesta por la capacidad de trabajar en equipo y con generosidad por la transformación de la sociedad, para ofrecer oportunidades educativas de la más alta calidad al talento más sobresaliente.
A través de nuestro sorteo universitario, Sorteos Tec, hemos establecido un puente con la sociedad para reunir los fondos con los que cada año, es posible darle una carrera profesional a alrededor de 200 jóvenes que pueden estudiar con una beca del 100% de colegiatura.
A 11 años de su creación, esas oportunidades se han convertido en más de 2,000 historias extraordinarias de lucha, progreso y transformación. Historias con un efecto multiplicador que han cumplido el sueño de transformar vidas de las y los jóvenes, de sus familias, de sus comunidades y del país.
Impulsar a México es posible con un trabajo coordinado de todos los actores de la sociedad. Lo demostramos y por eso, dimos un paso más para extender el Programa a países hermanos planteando la idea de construir una red sólida de jóvenes líderes sociales en Latinoamérica.
ProgramaLíderesdelMañana
2,141 Líderes Del Mañana
1,194 Egresados
947 Estudiantes
Por eso en Sorteos Tec decimos que “Ganas cuando recibes, pero ganas más, cuando das”. Lo vemos día a día en la sonrisa de cada uno de las y los jóvenes que han echado a volar sus sueños gracias al trabajo conjunto y la generosidad de millones de corazones que apoyan la educación.
Aún quedan muchos sueños más por cumplir. Por eso, te invitamos a seguir participando con Sorteos Tec. Cada boleto de nuestro sorteo universitario representa una oportunidad de transformar vidas: la de cientos de jóvenes y la de cada uno de nosotros.
¡Lo mejor está por venir!

Para nosotros es un honor tener por segunda vez la confianza de Sorteos Tec para apoyar el Programa Líderes del Mañana del Tecnológico de Monterrey Es un encargo tan lleno de significado para mí y todo el equipo del Taller Elías Rizo Arquitectos. ARQ. ELÍAS RIZO “ “
Conoce más sobre el Programa Líderes del Mañana y las historias de nuestros estudiantes en: https://ideresdelmanana.itesm.mx/
$8,500,000
valor total

Cheque de caja bancario
Consiste en un cheque de caja bancario con valor neto de $7,905,000 más cheque por $595,000 para pago de derechos, impuestos y gastos de entrega.
3º PREMIO
$3,500,000 valor total

Cheque de caja bancario
Consiste en un cheque de caja bancario con valor neto de $3,255,000 más cheque por $245,000 para pago de derechos, impuestos y gastos de entrega.

BMW iX3
Eléctrico
El BMW iX3 se muestra más deportivo que nunca. Los elementos aerodinámicos y los detalles en azul ponen de relieve la naturaleza eléctrica del motor. Con una autonomía de hasta 292 hp y un consumo eléctricoapartirdekWh/100km19.3esperfecto paracualquiertrayecto.Acelerade0a100km/hen6.9s
Más información: https://www.bmw.com.mx/
Mercedes Benz GLC 300
Automático
Audi Q5
Automático
El Audi Q5 cuenta un diseño elegante y dinámico que te sorprenderá incluso cuando no se encuentra en movimiento. Equipado con un motor de 3.0 L con potencia de 354 Hp, suspensión deportiva, tracción integral quattro y transmisión Tiptronicde8velocidades.Acelerade0a100km/hen4.9s
Más información: https://www.audi.com.mx/

Estos premios corresponden a marcas registradas que no son propiedad de Sorteos Tec. No se pretende aprovechar el prestigio de las mismas y se descarta cualquier fin de lucro o publicidad. Imágenes y descripción para propósitos informativos. Las características aquí descritas para los autos pueden variar.

El Mercedes Benz GLC 300 es un vehículo con carácter inconfundible que recrea un exterior elegante y dinámico. Destaca por su deportividad, techo corredizo panorámico, luces traseras LED de dos piezas y llantas de gran tamaño. Consumocombinadode12.68km/l,asistentepersonal con inteligencia artificial MBUX 2.0, Keyless GO y 5modosdemanejo.Acelerade0a100km/hen6.2s
Más información: https://www.mercedes-benz.com.mx/

Audi A4
Automático
El Audi A4 es sinónimo de deportividad, emoción y Prestigio. Cuenta con tecnología de vanguardia, diseño emocionante, deportividad y dinamismo que proporcionan placer de conducción y gran espacio interior. Cuenta con sistemas de asistencia al conductor opcionales Acelera de 0 a 100 km/h en 7.3 s
Más información: https://www.audi.com.mx/

Mercedes Benz CLA 200 MH
Automático
Una postura agresiva y líneas aerodinámicas definen una carrocería versátil y deportiva. La cabina premium ultramoderna es espaciosa y de vanguardia. Cada detalle de su cuerpo pulido por el viento refleja la tecnología que lleva dentro. Acelera de 0 a 100 km/h en 8.0 s
Más información: https://www.mercedes-benz.com.mx/
9º AL 11,028º
9º al 48º
40 premios con valor total de $100,000 c/u en cheque
49º al 128º
80 premios con valor total de $20,000 c/u en cheque
129º al 328º
200 premios con valor total de $5,000 c/u en cheque
329º al 1,028º
700 premios con valor total de $2,500 c/u en cheque
1,029º al 11,028º
10,000 premios consistentes en certificados con valor total de $1,300 c/u aplicables en productos (boletos) vigentes de Sorteos Tec


Boleto: $1,300
Emisión 250,000 boletos
Permiso SEGOB: 20240263PS06
Celebración: 21 de junio de 2025, 9:30 a.m.

¡Compra ya tus boletos+Digital!
- En Sorteos Tec: www.sorteostec.org
- Con tu Colaborador y por la app Colaboro+
- En nuestro Call Center: al 81 1515 3030
Y págalos como prefieras:
- Con tarjeta de débito o crédito (aplica meses sin intereses)
-Por transferencia interbancaria -En efectivo por Oxxo Pay
- Con puntos BBVA o de Sorteos Tec
Casas Tec es una publicación de Enseñanza e Investigación Superior A.C. (EISAC) con dirección en Ricardo Covarrubias #1804, Col. Narvarte, C.P. 64830 en Monterrey, N.L. Edición Digital disponible en el sitio de Sorteos Tec en www.sorteostec.org y en la App Colaboro+.
Todos los Derechos Reservados a EISAC. Se prohíbe la reproducción total o parcial de este documento por cualquier medio y a cualquier persona y actividad ajenas a EISAC, sin previo y expreso consentimiento por escrito de esta asociación.
La revista contiene los premios del 218º Tradicional Sorteo Tec. Los 11,028 premios se entregarán de acuerdo con las especificaciones señaladas en el permiso autorizado por la Secretaría de Gobernación correspondiente al presente Sorteo.
Celebración del Sorteo: 21 de junio de 2025, 9:30 a.m. Mecánica del Sorteo: Formación de números a través de ánforas. Los premios del 1º al 8º se obtendrán mediante la formación de números, para la que se utilizará una mesa con 5 ánforas metálicas unidas entre sí por un eje horizontal. En la primera ánfora de la mesa se colocarán 25 esferas grabadas del 00 al 24 y en cada una de las ánforas restantes se colocarán 10 esferas grabadas del 0 al 9. Una vez colocadas todas las esferas en sus ánforas correspondientes, se harán girar y de cada una de ellas saldrá una esfera. El número formado por la lectura de izquierda a derecha de las cifras de las cinco esferas de la mesa formará el número ganador. Con esta mecánica se obtendrán 8 números, uno para cada uno de los 8 primeros premios. Los premios del 9º al 1,028º se obtendrán por un sistema informático; y para los premios del 1,029° al 3,528º; del 3,529º al 6,028; del 6,029º al 8,528º; y del 8,529º al 11,028º que son los premios por terminación, se utilizará una mesa con cinco ánforas metálicas unidas entre sí por un eje horizontal, de las cuales se llenarán solo dos. En cada una de ellas se colocarán diez esferas, grabadas del 0 al 9; que una vez colocadas en las ánforas, se harán girar para obtener dos esferas; el número formado por la lectura de izquierda a derecha será el número ganador, y todos los boletos cuyos dos últimos dígitos coincidan con el mismo, serán los boletos premiados. Con esta mecánica se obtendrán 4 números uno para cada rango. Los números ganadores se podrán conocer el 22 de junio de 2025 en www.sorteostec.org, App Sorteos Tec y App Colaboro+ o en el 81-1515-3030. Cualquier medio impreso o digital de publicación de resultados deberá ser plenamente validado por EISAC. Vigencia del permiso y de la promoción: 22 de octubre de 2024 al 21 de junio de 2025.
Todas las fotografías de la Residencia primer premio del Tradicional Sorteo Tec para la edición del 218º Tradicional Sorteo Tec, son propiedad de EISAC y fueron tomadas por Design Photography Masters. The Raws (https://www.theraws.mx/). Las imágenes en los premios no necesariamente corresponden con las características y colores de los premios que se entregan.
Los premios incluyen impuestos, derechos y gastos de entrega. Para los premios que causen retención de impuestos, el valor total del premio señalado incluye el 1% de impuesto federal y el impuesto estatal correspondiente (6% máximo) conforme a lo establecido en las leyes y demás disposiciones legales vigentes. Los ganadores de estos premios recibirán al momento de cobrarlos, el valor neto que corresponda a la resta entre el valor total del premio y las retenciones aplicables. La constancia de retención (CFDI) correspondiente será entregada en las oficinas de Sorteos Tec en el país.
Nuestros Aliados
Gracias a nuestros aliados y proveedores. Su apoyo hace posible la casa del primer premio del Tradicional Sortero Tec. Juntos transformamos la vida de cientos de jóvenes del Programa Líderes del Mañana del Tecnológico de Monterrey.
















































































































Tradicional Sorteo Tec
Con Sorteos Tec Ganas cuando recibes, ganas más cuando das.
Búscanos como Sorteos Tec en: www.sorteostec.org







