Skip to main content

2023 Architecture Portfolio

Page 1

SOPHIA AVERZA

2 0 2
i o
3 P o r t f o l

DESIGN SENSE/ CURATION

Through observation and iteration of graphics, I can determine the best expression of certain sensibilities. With an art background and graphic design passion, within architecture, I am seasoned to explore the effects of creations, experiment with physical elements, and control sensory inputs to determine what does and does not work to discover and evoke the desired experience.

POSTER PROCESS/PRODUCT MANAGEMENT
TECHNICAL RESEARCH
Final Revit Building Recreation Board First Revit Building Recreation Board

POSTER PROCESS/PRODUCT MANAGEMENT TECHNICAL RESEARCH

REVIT BUILDING RECREATION

The semester-long Case Study Project will provide each student with the opportunity to model an existing project, utilizing the skills obtained during the course. This project was based on MacKay-Lyons Sweetapple Architects' Two Hulls House in Nova Scotia, Canada.

THOUGHT PROCESS

Design thinking is a non-linear iterative process that teams use to understand users, challenge assumptions, redefine problems, and create innovative solutions to prototype and test, involving empathizing, defining, ideating, prototyping, and testing. This is a non-linear process to achieve the desired output. My process typically involves sketching ideas as they come and forcing myself to think about a project differently.

POSTER PROCESS/PRODUCT MANAGEMENT TECHNICAL RESEARCH
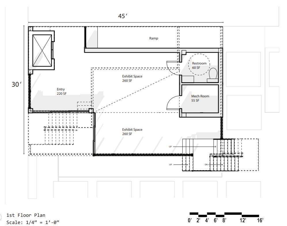
Precedent Analysis to Gallery Space Process

POSTER PROCESS/PRODUCT MANAGEMENT TECHNICAL RESEARCH

GARDEN DESIGN PROCESS

From a full massing model, the assignment required students to use a subtractive process to create a garden in an existing urban environment. Using a kit of parts , I add and subtract elements creating iterations to orchestrate a meditative and ceremonious experience. My project's concept was 'Perching Over the Divide.

POSTER PROCESS/PRODUCT MANAGEMENT TECHNICAL RESEARCH

GARDEN DESIGN

Designed a garden within an urban environment for rest, meditation, and contemplation. This project taught site analysis, concept development, spatial sequencing, wayfinding techniques, expansion and compression of spaces, spacemaking, landscape design, edges, and landmarks, promenade, and circulation.

TECHNICAL RESEARCH

PROCESS/PRODUCT MANAGEMENT

GALLERY SPACE PROCESS

This project utilizes a prescribed kit of parts to create a small art gallery building to be placed in the formerly mentioned garden. This art gallery connects to the garden s design concepts and is designed to house mostly 2D art pieces with some small sculptures. In each class, the projects had some form of alteration or a new iteration pushing new ideas.

POSTER

PROCESS/PRODUCT MANAGEMENT

TECHNICAL RESEARCH

GALLERY SPACE

The project taught the relationship between the site, garden, and gallery, interior experience, the relation between semi-public and public spaces architectural composition, creation of spaces and sequential events, structural framework, façade, and rooftop design.

POSTER

DIGITAL & PHYSICAL SKILLS

Proficiency in Adobe programs such as Illustrator and Photoshop. Adept in architectural programs such as SketchUp, Revit, Enscape, and Bluebeam Revu. Because of my art background, I am experienced in modeling, drawing, sketching, and painting.

POSTER PROCESS/PRODUCT MANAGEMENT
TECHNICAL RESEARCH Mondrian Synthesis

PROCESS/PRODUCT MANAGEMENT TECHNICAL RESEARCH

REVIT FAMILY

These three various original parametric families and structures shown include a bench, roof structure, and brick patterning.

ILLUSTRATOR/ PHOTOSHOP

This project analyzed the Gardens at Hadrian s Villa in Trivoli, Italy. These Illustrator-made diagrams convey the abstract characteristics of the garden. The collage, made in photoshop, represents the character expressed in the garden.

POSTER

POSTER PROCESS/PRODUCT MANAGEMENT TECHNICAL RESEARCH

PHYSICAL/TECHNICAL MODELING

This project was a synthesis of a Mondrian painting where we had to analyze and create a 3D representation through a series of handmade and digital models and diagrams.

PAINTING/ SKETCHING

These personal projects were created through observation. The first painting is in acrylic of a childhood home. The second drawing was sketched from a still life and uses charcoal, pencil, graphite, and white colored pencil. The last project is an acrylic painting of a Canadian Cathedral.

INFORMATIVE DESIGN

Through the Bachelor of Arts degree, there have been more opportunities to treat architecture as a method of research to make more informed decisions in new designs. Although I have a design sensibility that focuses on the visual appeals of a project, research plays an equally important role to make analytic and rational decisions.

POSTER PROCESS/PRODUCT MANAGEMENT
Net Zero Architecture School
TECHNICAL RESEARCH

POSTER PROCESS/PRODUCT MANAGEMENT TECHNICAL RESEARCH

NET ZERO ARCHITECTURE SCHOOL

Using Insight software within Revit I was able to determine the passive and active strategies needed to transform UMD's existing architecture building to be net zero carbon.

WOODEN JOINERY RECONSTRUCTION IN NOTRE DAME CATHEDRAL

Explored medieval connections, joinery and modifications to the wooden trusses within Norte Dame Cathedral, so that researchers can further analyze the techniques originally used in the Norte Dame Cathedral to recreate them in its reconstruction as it has no documentation.

DIVERSE DC NEIGHBORHOOD PROFILE

For this urban studies project we researched Shaw and U Street neighborhoods in DC to understand their demographics resources, and inclusion. This project required site visits and speaking with local community members.

PRECONSTRUCTION BREAKDOWN

Construction management is a professional service that deploys specialized tools and techniques to manage the planning, design, and execution of a project from its initiation to completion. I have worked on projects when in their design phase, phases 1 and 2, and closeouts to learn the aspects of all portions of a project. Learned to define project scope, planning, risk management, organizing multiple activities, cost management, and scheduling.

POSTER PROCESS/PRODUCT MANAGEMENT
TECHNICAL RESEARCH
for Proposal Simulation
Request

POSTER PROCESS/PRODUCT MANAGEMENT TECHNICAL RESEARCH

REQUEST FOR PROPOSAL SIMULATION

This summer intern project at a construction management company simulates a response to an Owner’s solicitation for General Contracting services. This Request for Proposal included organizational charts, cost proposal, CPM scheduling, site logistics plan, and safety requirements/plan for a college's math and athletic complex.

Turn static files into dynamic content formats.

Create a flipbook