
3 minute read
Program and Form Generation

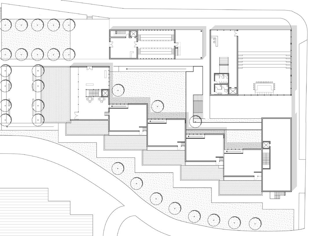
Interweave in Plan and Section
Advertisement

The plan is rigorously rationalized to create a rhythm of circulation--ramps and stairs, but more importantly, a rhythm of pond and garden. As visitors follow the promenade of the art gallery, the changing views of the artworks and nature always lead them to see, feel, and think.



Media
03
The Hearth
Historical Memorial of WengDing Village
Semper stated that throughout all phases of society, the hearth formed that sacred focus around which took order and shape. Likewise, the primitive hut in WengDing village also forms its socio-spatial order around the hearth. In Wa’s tradition, the master often seats closest to the most sacred ritual room and faces the hearth to welcome the visitors, while others sit around the hearth based on their social hierarchy. Until the destruction of the old village, the fire never died out in the hearth of Wa’s people. For them, the hearth is the heart of their daily life, the origin of their social hierarchy, and the soul of their religious ritual. However, when the fire raged through WengDing and brought this ancient village to destruction, I realized architecture could never beat against its transiency in time. What makes it eternal is never that thatched roof or wood columns, but its culture. When a civilization comes to an end, instead of pitying the past, we should document it not only through words but, more importantly, through space. Use architecture as a carrier to transcend its physical existence and to document the course of human culture.




Analysis of Wa House


The primitive hut in Weng Ding village forms its socio-spatial order around the Hearth. In Wa’s tradition, the master often sits closest to the most sacred ritual room and face to the Hearth to welcome the visitors; the male visitors sit at the upper area of the Hearth for reception and ritual ceremony; women and children sit at the lower area of the Hearth for preparing and having food.
Concept Diagram

Form Diagram



Inner and outer square


Four corners and corridors
Address the corners and circulation
Characterize with spatial language

Birth
To the Forest

To the forest, we see our god of nature who gave birth to us. Silently lying on this earth, she nurtured and protected us unreservedly. We have nothing in return, but our sacred hearts and devout souls, so we ask our sons and daughters to come to see the reflection of our mother nature but also ourselves as her sons and daughters.
To the Village



To the village, we see our thatched-roof houses rebuilt on this earth of trauma. We’d been lost in the materialistic world: our food was sold as commodities; our houses were opened as tourist attractions; our rituals were performed as daily entertainment. Haunted by the fire of that night, we rebuild our houses and beliefs on the charcoal.


To the Records
To the records, we look back to the history of our village. From the culture of primitivity to the invasion of modernity, it is a process of seeking for an equilibrium between the two societies, and we are all sea spray in the waves of history who witness, experience and live on with it, so we record them as media to remind and reflect.

Laminated glass skylight
Long-straw thatched roof
To the Hearth
To the hearth, we trace back to the origin and circle around it. We not only mourn for our loss but also praise for our glory. Gazing on the fire, we imagine scenes flashed back to that tranquil village, where our fathers built it with their hands and sweats and told us we build forever, just like the flames on the hearth burning forever.
Thatched roof
12”x6” wood beam
Plaster wall& wood cladding

12”x12” wood column Wood plank flooring
Concrete ground


04
Neo-Metabolism
Artisan Yards’ Housing Porposal
Located at the Artisan Yards, Atlanta GA, the project aims to create a housing solution for the growing population in the community and the existing residence. Experimenting with the idea of Metabolism, I imagine the building as an organism that can grow and adapt to changes. Therefore, if “Support” is part of the public domain, then “infill” becomes the basic living units or modules to which users can add value. With this user-centric perspective, what if we create a self-sustained building system, so the users can participate in building the modules in the incubation factory. Meanwhile, by building and inserting the residential units to the “support” on a larger time scale, the building will be able to control the influx of residents to mitigate potential gentrification. From a spatiotemporal aspect, the amount of space has been allocated to a certain amount of time. The rational allocation provides enough time for the old and new residents to adapt to the transformation of the building environment and cultural values. Ideally, by building upon the existing and constantly renewing, the building complex can reach a stage of dynamic equilibrium to respond to the self-growth and the growth of the adjacent urban fabric.



















