

PORTFOLIO SOFIA MEAGHER
2022-2024

Sofia Meagher
Third Year Student
Sofia.A.Meagher-1@ou.edu 210-364-6121
Digital Skills
Photoshop
Adobe Suites
SketchUp
Rhino
Boathouse
Revit
Mac and Windows
As a student studying architecture, I am trying to learn more about the world everyday by studying the way people use and inhabit spaces. My goals are to attain new skills, further my architectural understanding, and create designs



RENEGADE CLASSROOM
The purpose of this project was to design a stand-alone structure, open to the elements most of the time, but providing the possibility of closure to keep the interior furnishings and finishes protected. This project explored the entry sequence and separation of public and private spaces. The first open space in the classroom opens up to a courtyard connecting the restrooms and office/kitchen spaces.


Plan

Model from Above
Handcut



Section A
Section B


Elevation

BUG PROJECT
The concept for this project was to assign a habitat for the bug that you were assigned. Through research, each student should be able to design a habitat that would sustain their bug. First research about the bug was conducted and then sketches and drawings were made to show the make up of the bug. I designed a habitat that mimicked a leaf like structure that focused on the contrast of transparent v. opaque surfaces.






Axonometric Diagram

Hybrid Plan drawing


Model Images

Hand drawn board
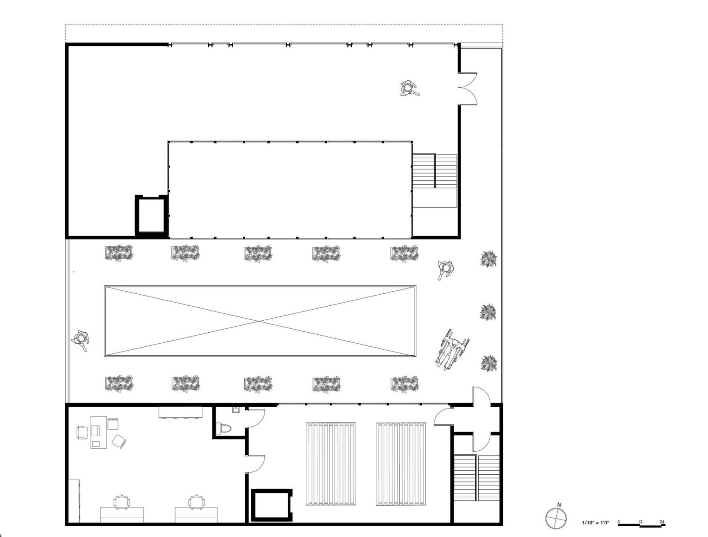
NORMAN EQUINE THERAPY CENTER
The purpose of this project was to design an all inclusive and accessible horse stable that accommodates a summer camp for children with disabilities. The project had to feature ramps, different grades of land, and a riding area. The horse space and human space is divided by a cement wall that meets with a glass panel. The human space is higher creating a moment where people can observe the horses, nature, and riders all at once. The visitors and riders enter on an elevated walkway that creates a resting point where they can observe everything at once. The path leads into the reception and then around to the stables. The horses and riders proceed down a ramp that runs underneath the elevated viewing point.


Floor plan

Hand made Model

Axonometric Drawings






AA 1/16” =

AB 1/8” =


Section
1’
Section
1’
Model Photos




NORMAN URBAN FARMING CENTER
The main concept of this project was to make a center where people can come and learn about different ways to farm. The viewer would be immersed in different parts of nature throughout the building. Each section of the building is separated by a series of parallel walls. These walls connect the greenhouse, outdoor cafe area and the hydroponic space. This natural flow creates an environment where the viewer can’t tell whether they are inside or outside. The circulation was designed initially using a parti diagram exercise and ultimately the design came together through assigning the program.


Shadow Diagram

Circulation Diagram

Solar Panel Diagram

Roof Axon Diagram

Floor Plan Level 1


B
Section A 1/16” = 1’
Section
1/8” = 1’



Renderings





Hand made Model



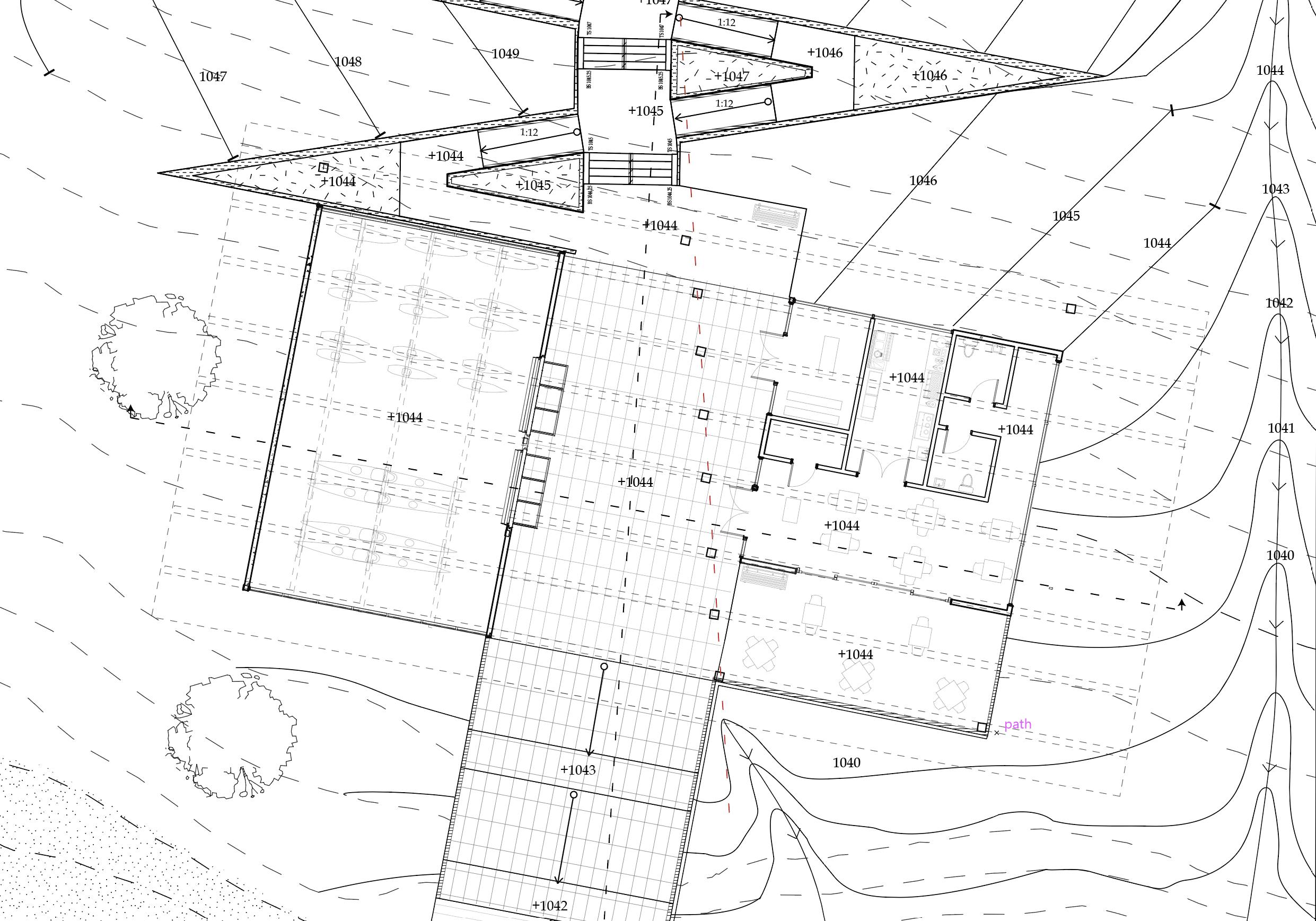
NORMAN BOAT HOUSE
The Lake Thunderbird Boat house explores two main concepts while battling the problem of accessing the building on a sloped site. Upon arriving at the site you are greeted with a pathway that braids down the slope, connecting pathways with terraced planters. There are central stairs leading down to the building and a winding ramp that intertwines with the stair landings. Once you arrive at the building, there are two separate functions connected by a gathering circulation space under one roof. The spaces connect in a way that viewers are able to see the boat storage and people walking down to the water. The central axis leads down to the water to a hinge connected dock. Looking back up from the water you are able to see the axial connection of the building and people gathering outside as well as the braiding landscape. This space allows for its guests to celebrate nature and wate activities.







Section A 1/8” = 1’
Section B 1/16” = 1’
Elevation from Dock
Elevation from Pathway

Exterior Render

Interior Boat Storage Render



THE SHIFT - ROME SEMESTER
The SHIFT explores the past and the present through grafting upon a preexisting building on the site. When entering the site, the viewer is taken through a journey that celebrates the past and the present. There are winding pathways that intersect each other, creating moments that overlap and blend together. The main road cutting through the space separated the public and private buildings in a gentle way. It winds through creating a new edge condition within the park. This edge defines the market stalls and other public spaces that change based on the visitor. Zig zagging further down the slope, the riverfront winds down the edge, interconnecting the landscape with the ramp system. Cutting down the slope, the ramp intertwines with different levels and an amphitheater. This idea of interconnections follows upwards to the structure grafted on top of the older clocktower building. The wrapping skin poses as a medium that meshes the connection between old and new. By grafting a modern building on top of an older one reminds the viewer of how much our environment has changed around us. The pathways tell a story to the viewer, causing them to pause and appreciate the hidden axial paths that cannot be accessed through a straight shot. The SHIFT is an oasis outside of the evolving city of Rome, that zig-zags through the past and the present creating an overlay of history.



Section D
Exterior Render of Overhang



Exterior Render of Balcony
Section C Section A

E

Section
Axonometric Diagram


Detailed Section

Interior Render












































































































