Sienna Residences at The Thompson, Austin TX

Page 1


fifth + Brazos design development presentation

r e s i d e n t i a l

(Fifth & Brazos, Austin, TX)

design philosophies

materiality // people

architectural gesture

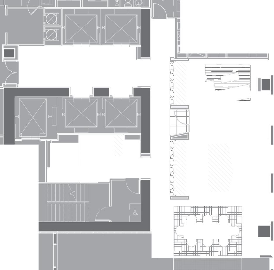
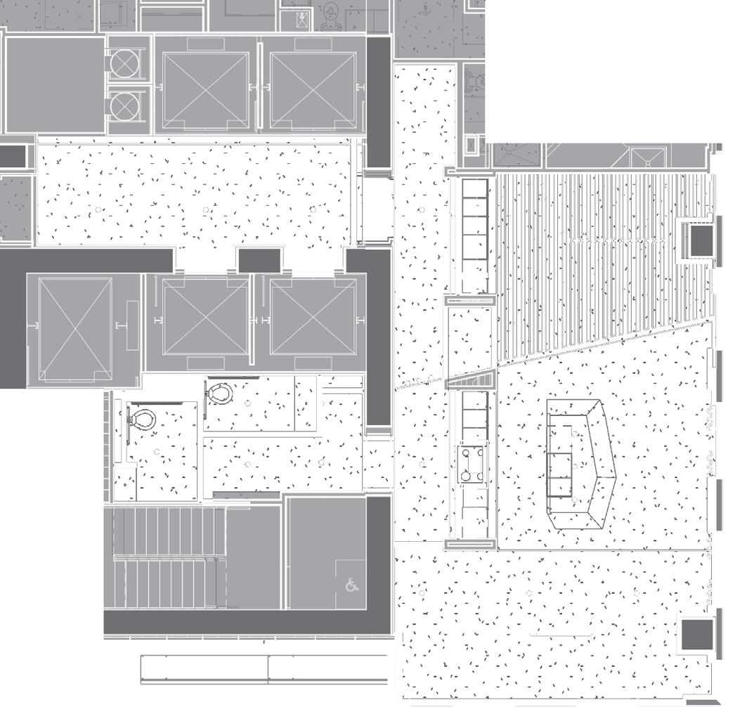
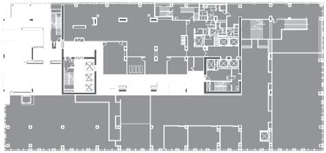
level 01 // lobby

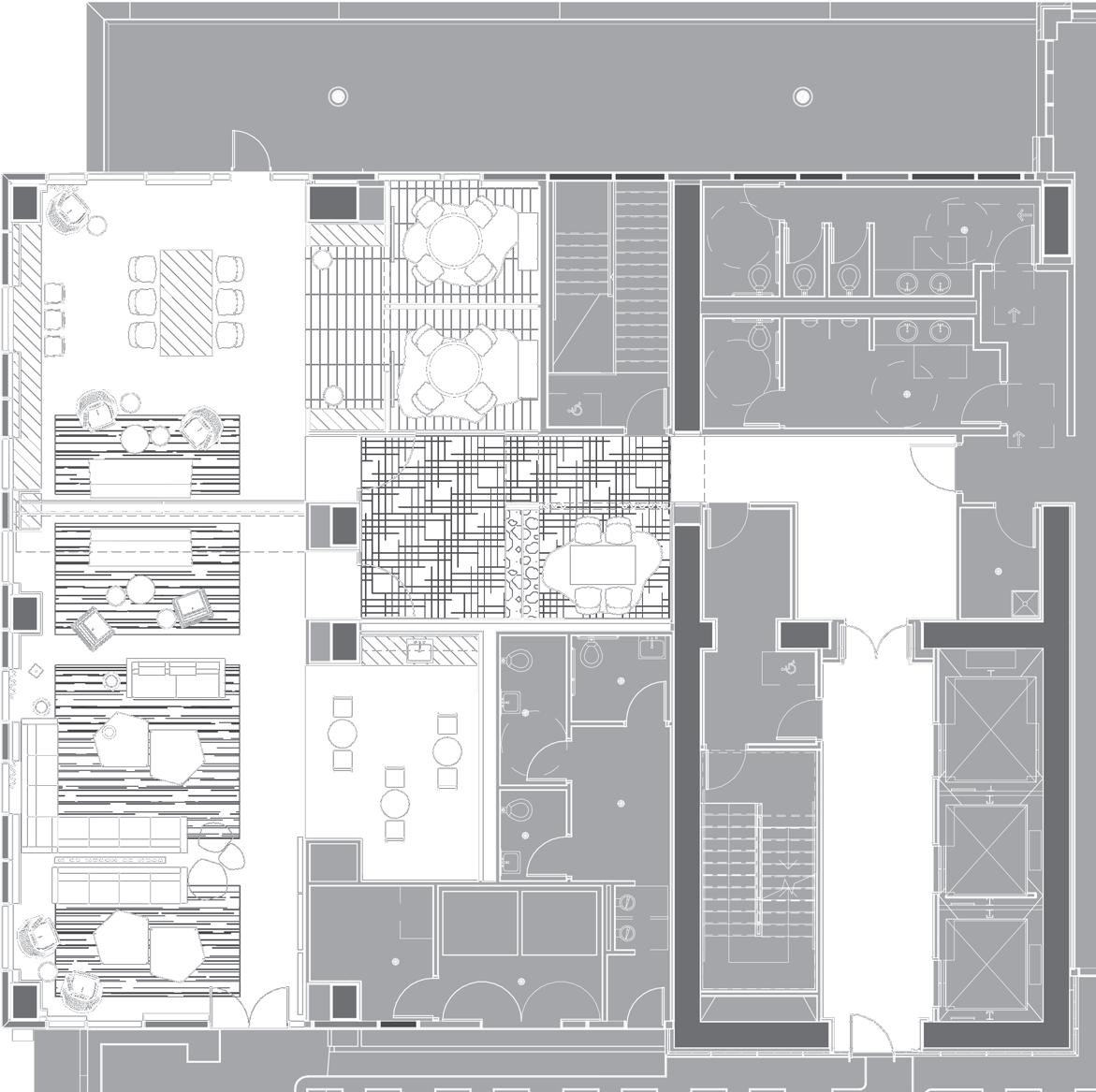
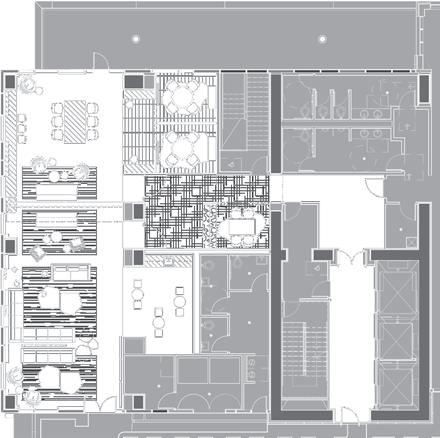
level 04 // amenity - music & business lounge

level 15 // amenity - kitchen & lounge

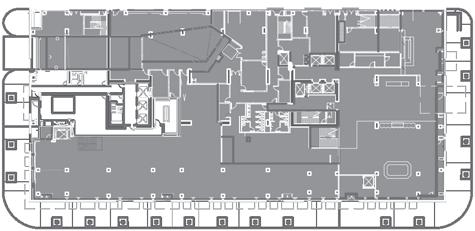
level 03 // leasing & management suite

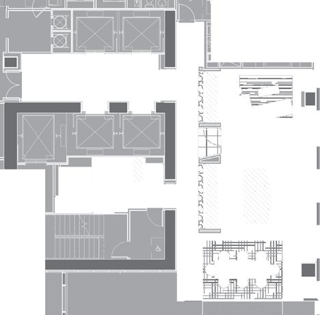
lower level 01 // dog run

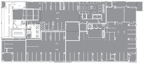
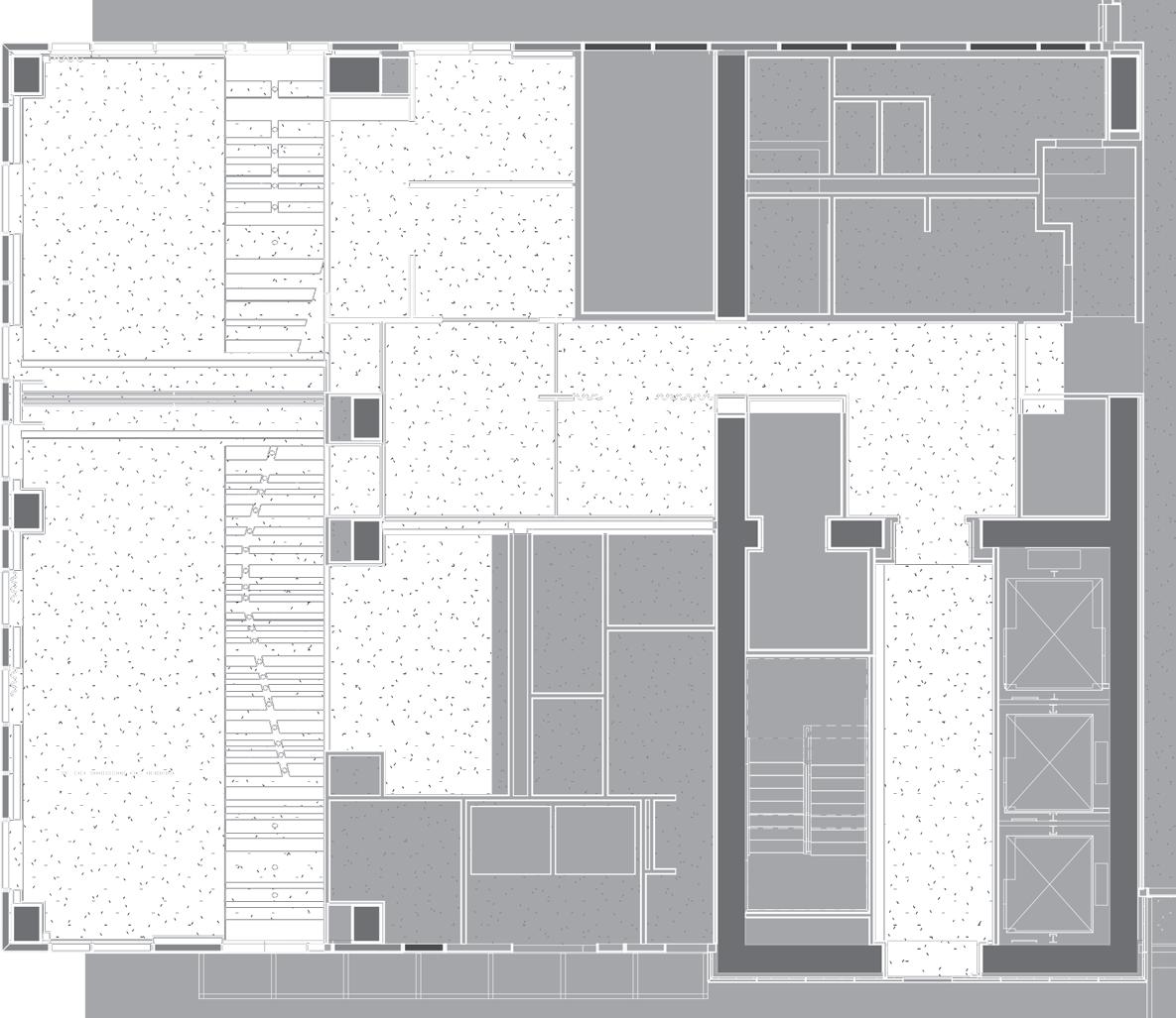
typical floors // units + corridors

architectural gestures / forms

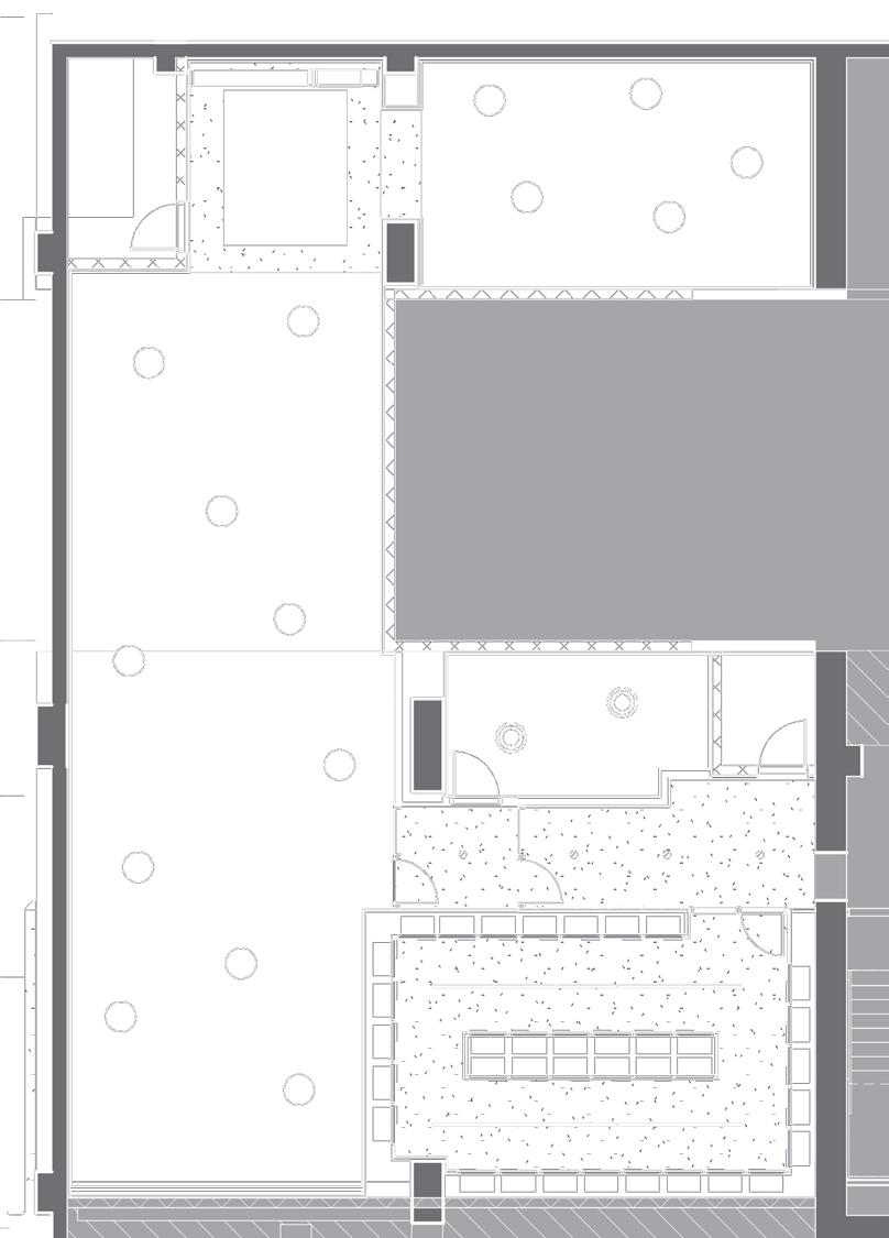
lobby reflected ceiling plan

level 04 - amenity - music & business lounge

level 04 amenity finish plan

level 04 amenity finish plan

level 04 amenity RCP

level 04 amenity furniture plan

level 04 amenity furniture plan

level 04 amenity furniture plan

level 04 amenity furniture plan

level 04 amenity furniture plan

level 04 amenity furniture plan

level 15 - amenity kitchen & lounge

level 15 lounge finish plan

level 15 lounge finish plan

concrete
charred wood antique bronze
cabinetry wood veeneer
open shelving wood veneer
backsplash tile

Amenity elevations

Amenity elevations

&

level 15 lounge RCP

leasing & management finish plan

leasing & management finish plan

leasing & management RCP

dog Run

dog run view

dog run RCP

(Fifth & Brazos, Austin, TX)

ELEVATORS

CORRIDORS

UNITS

FIXTURES & APPLIANCES

ELEVATION 1
ELEVATION 2
ELEVATOR CAB

typ. residential floor finish plan

typ. residential floor RCP

ACCENT PAINT

DROP CEILING PAINT

CYLINDER

SURFACE MOUNT LIGHT

corridor & unit entry

CORRIDOR END WALL UNIT ENTRY

PAINT GEN. CORRIDOR PAINT

CORRIDOR CARPET

typ. unit finish plan

QUARTZ COUNTER & KITCHEN CABINETS

KITCHEN BACKSPLASH

RESILIENT FLOORING

BATH CABINETS

QUARTZ COUNTER

TILE FLOORING & SHOWER SURROUND

BATHROOM ELEVATION

BATH VANITY SCONCE
VANITY FAUCET & SINK
SHOWER HEAD CABINET PULLS

unit kitchens

OPT A - UPGRADED APPLIANCES

OPT B - STANDARD APPLIANCES

KITCHEN FAUCET & SINK ISLAND PENDANT CABINET PULLS
GE MICROWAVE

standard unit appliances

GE MICROWAVE

thank you

Turn static files into dynamic content formats.

Create a flipbook
Issuu converts static files into: digital portfolios, online yearbooks, online catalogs, digital photo albums and more. Sign up and create your flipbook.
Sienna Residences at The Thompson, Austin TX by smita679 - Issuu