Klaipėdos miesto sav. - Klaipėdos energijos teritorijos konversija ir įveiklinimas

Page 1

KLAIPĖDOS ENERGIJOS TERITORIJOS

KONVERSIJA IR ĮVEIKLINIMAS

MAP ARCHITECTS

POLINA KALUGINA

MILDA URBONAVIČIŪTĖ

AUSTĖJA PAULIUKEVIČIŪTĖ

VILNIUS 2024

AIŠKINAMASIS RAŠTAS

PIRMAS ETAPAS

1. SUMMARY IN ENGLISH

2. PROJEKTO TIKSLAS, UŽDAVINIAI, DARBO SUDĖTIS

3. DARBO METODIKA

4. ESAMOS BŪKLĖS ANALIZĖ

5. TEISINĖS BAZĖS IR GALIOJANČIŲ REGLAMENTŲ ANALIZĖ

6. TERITORIJOS IR APYLINKIŲ ISTORINĖ RAIDA

7. TERITORIJOS IDENTITETAS

8. FUNKCINĖ, ERDVINĖ IR ARCHITEKTŪRINĖ IDĖJA, DARNIOS IR TVARIOS KONCEPCIJOS APRAŠYMAS

ANTRAS ETAPAS

1. TRANSPORTO IR PĖSČIŲJŲ SRAUTŲ SPRENDIMAI

2. PROJEKTUOJAMO PASTATO, PASTATŲ, PASTATO DALIES KONSTRUKCIJŲ, INŽINERINIŲ SISTEMŲ SPRENDINIŲ APRAŠYMAI IR PAGRINDIMAS. NAUDOJAMŲ IŠMANIŲJŲ TECHNOLOGIJŲ APRAŠYMAS

3. PROJEKTUOJAMO PASTATO, PASTATŲ, PASTATO DALIES PAGRINDINIAI RODIKLIAI, ENERGETINIAI IR KITI SKAIČIAVIMAI;

4. ŽALIŲJŲ (TVARIŲJŲ) SPRENDINIŲ, ATSINAUJINANČIŲ ENERGIJOS IŠTEKLIŲ PANAUDOJIMAS

5. PROJEKTO EKONOMINIAI RODIKLIAI, PLANUOJAMOS PRELIMINARIOS INVESTICIJOS;

6. PASIRINKTŲ RĖMĖJŲ SIŪLOMŲ PRODUKTŲ PANAUDOJIMO PROJEKTE APRAŠYMAS;

7. SUMAŽINTI PLANŠETAI.

GRAFINĖ MEDŽIAGA

1. SITUACIJOS SCHEMA SU PLATESNIO KONTEKSTO URBANISTINIŲ SĄLYGŲ ĮVERTINIMU

2. TERITORIJOS ESAMOS PADĖTIES PLANAS

3. VIZUALINIAI TERITORIJOS RYŠIAI

4. PASTATŲ FUNKCIJOS

5. ERDVIŲ IR PRIEIGŲ FUNKCIJOS

6. ŽALIOSIOS JUNGTYS

7. TERITORIJOS MEDŽIAGIŠKUMAS

8. PAVELDINĖS TERITORIJOS FUNKCIJOS

9. PAVELDINĖS TERITORIJOS FUNKCINIS ZONAVIMAS

10. RYTINĖS TERITORIJOS DALIES FUNKCINIS ZONAVIMAS

11. TERITORIJOS SPRENDINIO AKSONOMETRINIAI VAIZDAI

TURINYS

The territory under consideration is the territory of AB ,,Klaipėdas energija’’ located in the central part of the city of Klaipėda, where the building complex of the Klaipėda thermal power plant is located. The address of the territory is Danės g. 8. Due to the changes in the production processes, some of the structures in the territory have become unnecessary and occupy a strategically favorable area of the territory.

Although the complex of buildings located in the territory of Klaipėdos energija AB is included in the register of cultural heritage and the aim is to preserve it, some of the buildings in the territory are no longer operable. These days territory is closed to the public.

A detailed plan has been prepared and approved for the area, currently no works have started yet.

The analyzed territory is divided to three seperate plots. , in the western part, the Klaipėda City Municipality building, as well as residential apartment blocks, a kindergarten and a school are being designed. Area 2 is an area included in the cultural heritage register, dominated by public buildings, as well as administrative and commercial buildings. In the eastern part, business centers, apartment buildings, a swimming pool, a fitness center, commerce and warehouses for small ships are being designed.

The character of the territory is industrial, and the prevailing architectural trends in the city of Klaipėda are also taken into account. Earthy materials suitable for industrial style are used: bricks, rusted steel, wood, plaster. The buildings belonging to the Klaipėda power plant complex located in the territory are included in the register of cultural heritage.

This project aims to implement the Klaipėda energy territory and make it accessible to the public. The solutions proposed in the project are based on the analysis of the territory and meet the needs of local residents. The aim is to make this territory one of the main social and cultural hubs of Klaipėda.

1. SUMMARY IN ENGLISH

2.

Nagrinėjama teritorija yra Klaipėdos miesto centrinėje dalyje esanti AB,, Klaipėdos energijos ’ teritorija, kurioje yra Klaipėdos šiluminės elektrinės pastatų kompleksas. Teritorijos adresas yra Danės g. 8. Dėl pasikeitusių gamybos procesų dalis teritorijoje esnčių statinių tapo nereikalingi ir užimantys strategiškai palankų teritorijos plotą. Nors AB,,Klaipėdos energija’’ teritorijoje esantis pastatų kompleksas yra įtrauktas į kultūros paveldo registrą ir yra siekiama jį išsaugoti, dalis pastatų teritorijoje nebėra įveiksminami. Kolkas teritorija yra uždara visuomenei.

Teritorijai yra parengtas ir patvirtintas detalusis planas, šiuo metu jokie darbai dar nepradėti. Teritorija yra padalinta į tris atskirus sklypus.

Analizuojama teritorija suskaidoma 3 aiškias dalis, vakarinėje dalyje yra projektuojamas Klaipėdos miesto savivaldybės pastatas, taip pat gyvenamieji daugiabučiai kvartalai, darželis ir mokyla. 2 teritorija yra į kultūros paveldo registrą įtraukta teritorija, kurioje dominuoja visuomeniniai pastatai, taip pad administraciniai bei komercija. Rytinėje dalyje projektuojami verslo centrai, daugiabučiai gyvenamieji namai, baseinas, fitneso centras, komercija ir mažųjų laivų sandeliai.

Teritorijos charakteris industrinis, taip pat atsižvelgiama Klaipėdos mieste vyraujančias architektūros tendencijas. Naudojamos žemiškos medžiagos, tinkančios industriniam stiliui plytos, rūdintas plienas, medis, tinkas. Dais teritorijoje esančių pastatų priklausančių klaipėdos elektrinės kompleksui yra įtraukti į kultūros paveldo registrą. Šiuo projektu siekiama įveiksminti Klaipėdos energijos teritoriją ir padaryti ją prieinamą visuomenei. Projekte siūlomi sprendiniai pagrįsti teritorijos analize ir tenkina vietos gyventojų poreikius. Siekiama kad ši teritorija taptų vienu iš pagrindinių Klaipėdos socialinių ir kultūrinių mazgų.

4. ESAMOS BŪKLĖS ANALIZĖ

Šiuo metu teritorijos funkcija ribota. Prieigose išsidėstę pavieniai komerciniai objektai, gyvenamieji kvartalai. Teritorijos gretimybėse dominuoja naujamiesčio, senamiesčio, industrinio ir sodybinio užstatymo morfotipai. Šioje miesto dalyje itin trūksta traukos objektų. Teritorijos infrastruktūra nėra išvystyta, prieigos prie upės visuomenei yra neleistinos, trūksta vientisumo. Želdynų sistemos nėra, viešuoju transportu pasiekti teritoriją nėra galima. Statinių būklė teritorijoje prasta, dalis pastatų nėra naudojami. Pačiame sklype yra elektrinės pastatai ir jų priklausiniai, išilgai Danės gatvės yra veikiantys administraciniai pastatai, teritorijoje taip pat aptinkami pastatai dirbtuvėms, šiuo metu retsykiais naudojami teritorijoje dirbančių žmonių, bei vietinių menininkų sandėliavimui ar kūrybai. Teritorijoje taip pat trūksta ryšių su kita upės puse.

5. TEISINĖS BAZĖS IR GALIOJANČIŲ REGLAMENTŲ ANALIZĖ

MIESTO BENDRASIS PLANAS

6.17 SENOSIOS ELEKTRINĖS II

Visų pirma, vyko susipažinimas su darbo užduotimi ir apimtimi. Toliau buvo nagrinėjama teritorijos istorinė raida, esama situacija, teritorijų planavimo dokumentai, teritorijai parengta galimybių studija. Darbui pasitelktas ne tik kompiuteris, buvo eskizuojama tiek popieriuje, tiek maketuojant. Prieš projektuojant vyko susipažinimas su teritorija gyvai, padarytos fotofiksacijos, įvertintos vertingosios savybės, geriau susipažinta su teritorijos erdvėmis, identitetu, problematika. Projektuojant buvo pradėta nuo maketo, tūrinės erdvinės teritorijos kompozicijos, koncepcijos, po to kiekviena iš komandos narių detalizavo po vieną iš trijų teritorijos fragmentų.

STR 2.02.02:2004 „VISUOMENINĖS PASKIRTIES STATINIAI“

STR 2.02.01:2004 „GYVENAMIEJI PASTATAI“

STR 1.01.08:2002 „STATINIO STATYBOS RŪŠYS“

TERITORIJOS DETALUSIS PLANAS

LIETUVOS RESPUBLIKOS NEKILNOJAMOJO KULTŪROS PAVELDO APSAUGOS ĮSTATYMAS

REMTASI KULTŪROS PAVELDO REGISTRŲ CENTRO INFORMACIJA KPD.KVR

PROJEKTO
TIKSLAS, DARBO UŽDAVINIAI, SUDĖTIS
3. DARBO METODIKA

NAGRINĖJAMA TERITORIJA ~1780 METAIS

XVIII a. pradžioje Mėmelis (Memelfestung) tapo viena iš stipriausių Prūsijos tvirtovių, o miestas nuo 1701 m. tapo Prūsijos karalystės dalimi.

Nepaisant savo įtvirtinimų Septynerių metų karo metu Klaipėda 1757 m. buvo užimta Rusijos kariuomenės ir iki 1762 m. kartu su rytine Prūsijos dalimi buvo valdoma Rusijos. Nuo XVIII a. vidurio anglų pramonininkų ir prekybininkų dėka Klaipėda tapo didžiausiu regiono medienos eksporto uostu. 1782 m. Klaipėdoje gyveno 5559 gyventojai (V. Vileišis, 1935).

Napoleono karo su Prūsija metu, 1807–1808 Klaipėda tapo Prūsijos karaliaus Friedricho Wilhelmo III, karališkojo dvaro ir vyriausybės laikinąja rezidencija. Čia 1807 spalio 9 d. buvo pasirašytas vadinamasis Spalio ediktas, deklaravęs valstiečių išlaisvinimą nuo baudžiavos Prūsijos karalystėje. 1812 m. antroje pusėje, per Napoleono žygį į Rusiją, miestą trumpai valdė prancūzai.

Miesto augimą XIX a. stimuliavo daugiausia jūrinė prekyba bei medienos apdirbimas. Didžiausius mastus jūrinė prekyba pasiekdavo politinių įtampų metu, pvz., per Šlėzvigo-Holšteino konfliktą 1848–1849 m., arba Krymo karo metais (1853–1856 m.), kai prekybos per Klaipėdos uostą apimtys buvo rekordinės. Visgi, palyginus su kitais regiono miestais, Klaipėdos augimo tempai XIX amžiuje nebuvo itin ženklūs. 1825 m. mieste gyveno 8419, 1875 m. – 19801 žmogus.

Vienintele stambia įmone, įkurta Vokietijos imperijos laikotarpiu mieste, tapo celiuliozės ir popieriaus fabrikas, gamybą pradėjęs 1900 m. Kiti pramoniniai kompleksai: 1861 m. atidarytas dujų fabrikas, gaminęs dujas gatvių apšvietimui, 1869 m. įkurtas trąšų fabrikas (vėliau chemijos gamykla „Union“), gaminęs sieros rūgštį ir superfosfatą, 1900 m. pastatyta pirmoji miesto elektrinė, 1905 m. pradėjęs gamybą Luizės dvaro faneros fabrikas.

6. TERITORIJOS IR APYLINKIŲ
ISTORINĖ RAIDA

NAGRINĖJAMA TERITORIJA ~1916 METAIS

Pirmoji viešoji Klaipėdos elektrinė, 1900 m.XIX a. pabaigoje pramonės koncentravimas ir centralizavimas neaplenkė ir Klaipėdos: pramonės įmonės jungėsi bendroves, plėtėsi jų gamyba, gausėjo darbuotojų. Augo ir pats miestas. Tuo metu nutariama čia įrengti elektrinį tramvajų. Pirmąją liniją numatyta tiesti nuo geležinkelio stoties iki Smeltės rajono. Šios pagrindinės tramvajaus linijos kelio viduryje, Pauliaus gatvėje (AB „Baltija“ laivų statyklos teritorijoje), 1900 m. pastatyta Klaipėdos centrinė elektrinė. Jos elektros tiekimo tinklas apėmė tik pietinę miesto dalį bei Smiltynę.

Klaipėdos centrinė elektrinė statyta vien tik tramvajų tinklui maitinti, tačiau XX a. 2-ajame dešimtmetyje jai teko vis didesnis šviesos ir galios tiekėjos krūvis, todėl elektros energijos gamyba didėjo. To meto sąlygomis elektrinė buvo gana pajėgi ir iki pat 2-ojo dešimtmečio pabaigos įstengė patenkinti visus Klaipėdos miesto elektros energijos poreikius.

Klaipėdos krašto pramonė Pirmojo pasaulinio karo metais nenukentėjo, tačiau dėl žaliavų ir rinkų stokos dirbo ne visu pajėgumu. Prijungus Klaipėdą prie Lietuvos, jos pramonė ėmė sparčiai augti. Didelė dalis Lietuvos medžio apdirbimo pramonės buvo Klaipėdos krašte. Klaipėdos centrinė elektrinė buvo antroji viešoji centrinė elektrinė dabartinėje Lietuvoje. Ji padėjo plėtoti Klaipėdos miesto transporto sistemą, iki XX a. 3-iojo dešimtmečio vienintelė tiekė elektros energiją miestui apšviesti. Ji šiek tiek prisidėjo ir prie Klaipėdos smulkiųjų įmonių elektrifikavimo.

1929 m. Klaipėdos mieste, pradėjus veikti moderniai naujai elektrinei, senoji elektrinė tapo nebereikalinga, įrengimai demontuoti ir parduoti. Elektrinės pastato viena dalis perduota teatro dailininkams, kita – tramvajų ir kitokių mašinų remonto dirbtuvėms. Sovietmečiu šis statinys buvo pritaikytas „Baltijos“ laivų statyklos sporto salei.

1934 m. Klaipėdoje uždraudžiamas tramvajų eismas (kurį laiką dar veikė atšaka Smeltę), kuris trukdė klausytis radijo.

NAGRINĖJAMA TERITORIJA ~1942 METAIS

Klaipėdos krašto prijungimas prie Lietuvos buvo labai reikšmingas respublikos ūkiui. Per Klaipėdos uostą vyko apie 70-80 % viso Lietuvos eksporto ir importo. Čia 1938 m. buvo 13 % Lietuvos pramonės įmonių. Besivystantis Klaipėdos ūkinis ir kultūrinis gyvenimas reikalavo atitinkamai plėsti energetinę bazę. Naują šiluminę elektrinę numatyta statyti prie Dangės upės, miesto šiaurės rytų dalyje. Parinkta vieta buvo patogi ir statybai, ir būsimam elektrinės eksploatavimui: tiesiai į statybos aikštelę upe buvo galima atplukdyti statybines medžiagas, įrengimus, o jau eksploatuojant – kurą. aikštelę ėjo ir miesto pramonės geležinkelio atšaka. Be to, čia pat buvo gėlo maitinimo ir aušinimo vandens, nereikėjo statyti didelių, brangių vandens ėmimo ir išleidimo kanalų.

1928 m. birželio 7 d. prasidėjo naujosios elektrinės statyba. 2,5 ha plote buvo sukalta 20 tūkst. ilginių metrų medinių polių. Buvo pastatyta katilinė, mašinų salė, cirkuliacinio vandens siurblių ir maitinimo vandens valymo įrenginių patalpa, uždara elektros skirstykla, kontora, sandėliai, buitinės patalpos, valdymo pultas ir kaminas. 88,7 m aukščio kamino statyba tokiame drėgname grunte to meto sąlygomis buvo neeilinis dalykas.

Baigiantis Antrajam pasauliniam karui vokiečiai įsakė didesnes elektrines demontuoti ir išgabenti Vokietiją. Dalį įrenginių vokiečiai demontavo ir išvežė iš Klaipėdos elektrinės. 1945 m. sausio mėn. buvo susprogdinti abu elektrinės kaminai. Vienas kaminas griūdamas sutraiškė katilų bunkerius bei dalį mašinų salės stogo. Tai sustabdė elektrinės darbą.

NAGRINĖJAMA TERITORIJA DABAR

Nagrinėjama teritorija užima apie 9,5 ha ploto. Ją sudaro penki žemės sklypai. Teritorijoje vis dar veikia šiluminė Klaipėdos elektrinė, kurios gamybinė funkcija pažingsniui perkeliama kitą miesto dalį, toliau nuo miesto centro, tačiau planuojama palikti administraciją. Kadangi teritorija nebefunkcionuoja pilnai, jos dalys, ypatingai rytinė, pasižymi apleistumu ir neveiklumu. Kita teritorijos ypatybė – iš rytų ribojantis intensyvaus automobilių eismo tiltas, uždarantis teritoriją. Ypatingas teritorijos bruožas, kad ji veikė ir iki šiol veikia kaip uždara ir eiliniam žmogui neprieinama teritorija, o konversijos tikslas yra ją atverti visuomenei. Nagrinėjamos teritorijos vertingosios savybės – šiluminės elektrinės pagrindinis pastatas su visais elektros gamybos įrenginiais ir Klaipėdos bauhauzo pastatai greta jo, taip pat, kaip gamybinei teritorijai, itin humaniškos erdvės tarp pastatų, kuriose eksponuojami net meno kūriniai. Teritorija yra šalia Dangės upės, išsidėsčiusi vienoje miesto patraukliausių teritorijų, potencialių aktyviam visuomeniniam naudojimui. Palei upę auga įspūdinga liepų alėja. Vis dar yra išlikusios seniau veikusio geležinkelio bėgių linijos. Teritorija atpažįstama miesto panoramose dėl elektrinės kamino, kuris siekia net 122metrų aukštį.

RAIDA
TERITORIJOS IR APYLINKIŲ ISTORINĖ

7. TERITORIJOS IDENTITETAS

INDUSTRINIO CHARAKTERIO PASTATAI

INŽINERINIAI ĮRENGINIAI LIKĘ TERITORIJOJE

KAMINAS KAIP DOMINANTĖ SVARBI MIESTO MASTU

SAUGOMI INDUSTRINIAI PASTATAI SU VERTINGOMIS ARCHITEKTŪRINĖMIS DETALĖMIS

TERITORIJOS PADĖTIS - DAN(G)ĖS KRANTINĖ

IŠILGAI KRANTINĖS ESANČOS MEDŽIŲ ALĖJOS.

ŽALIOS VIDINĖS ERDVĖS

MIESTO KONCEPCIJOS SCHEMA

MĖMĖLIO MIESTAS

PADANGĖ

KLAIPĖDOS SENAMIESTIS

Idėja tokia, kad nagrinėjama teritorija aktyvuoja Dangės upę, kurios erdvinį koridorių siūloma formuoti ir ryškinti, įveiksminti kaip vieną Klaipėdos identiteto formančių. Klaipėdos energijos konvertuojama teritorija sudaro vieningos šachmatų principo sistemos su Klaipėdos Senamiesčiu ir Mėmelio miestu užuomazga, siūloma plėtoti ir toliau į rytus. Pačios teritorijos koncepcija remiasi mikroschemos principu: anksčiau joje kaip mikroschema iš vieno nuo kito priklausančių elementų veikė Klaipėdos energijos šiluminė elektrinė, dabar – siūloma kurti teritoriją-mikroschemą, kuri skirta žmonių kasdieniam gyvenimui, kur susipina paslaugų, pramogų, darbo, poilsio, gyvenamoji funkcijos, mišrios ir įvairios urbanistinės viešosios erdvės, funkciniai ir vizualiniai ryšiai.

TERITORIJOS KONCEPCIJOS SCHEMA

SENAMIESTINĖ STRUKTŪRA

Visa teritorija skaidoma į trijų charakterių teritorinius segmentus, kurių idėjas padiktavo skirtingi aspektai. Vakariniam segmentui užstatymo idėją padiktavo Klaipėdos Senamiesčio erdvinė struktūra, siekta pratęsti Senamiesčio žmogiškojo mastelio jausmą, architektūrinę išraišką, erdvių tipologiją ir Klaipėdos energijos teritorijoje, tęsiant toliau šachmatinio judėjimo apie Dangės upę mintį. Pastatai čia atsukti statmenai upės vagai, siekiaant kurti matomumą į upės erdvę. Viduriniojo segmento idėją padiktavo priklausomybė kultūros paveldui, siekta išsaugoti visus pastatus atverti jų vertingąsias savybes, konstrukcijas, per ryškių plytų apdailą siekta pabrėžti pastatų reikšmę teritorijoje. Šiame segmente taip pat saugomi ir eksponuojami tokie elementai kaip vamzdžių trasos, pridedantys teritorijai industrinio charakterio ir jaukumo. Rytinio segmento idėją padiktavo geležinkelio bėgių ir esamo cisternų, “stilobatų” ir kitų pastatų užstatymo struktūra. Geležinkelio bėgių vietoje kuriami funkciniai ryšiai, dviračių ir pėsčiųjų takai, stilobato vietoje - kvartalas, padiktavęs likusių kvartalų tipą. Cisternų vietos taip pat pažymimos dėliojant jose pastatų tūrius.

8. FUNKCINĖ, ERDVINĖ IR ARCHITEKTŪRINĖ IDĖJA, DARNIOS IR TVARIOS KON- CEPCIJOS APRAŠYMAS
BĖGIŲ STRUKTŪRA
KULTŪROS PAVELDAS

1. TRANSPORTO, PĖSČIŲJŲ TAKŲ SPRENDIMAI

Teritoriją siūloma skirti pėstiesiems ir dviračiams. Automobiliams laikyti projektuojamos požeminės automobilių stovėjimo aikštelės. Dviračių ir pėsčiųjų judėjimui siūlomas pritaikyti metalinių konstrukcijų tiltas, iki šiol laikęs šilumos tinklų vamzdžius. Danės gatve į teritoriją gali atvykti lankytojai viešuoju transportu, o Dangės upe į priaplauką atplaukti mažieji laivai.

2.

Konstrukcijos : kp pastatuose - esamos mūro, gyvenamieji su komercija ir administraciniai projektuojami iš gelžbetonio, mūro, mediateka/biblioteka numatoma iš clt konstrukcijų.

Pastatuose numatomos inžinerinės sistemos turi atitikti lietuvoje galiojančius įstatymus. projekte siekiama remtis tvarios statybos principais ir sumažinti kuo daugiau co2 emisijų. taip siekiama mažinti poveikį aplinkai ir tuo pačiu mažinti eksploatacijos išlaidas. Pritaikant tvarius sprendimus gerėja gyvenimo kokybė, išauga nekilonamojo turto vertė, taip pat akcentuojamas ir ekonominis efektyvumas bei prisitaikymas prie klimato kaitos.

Galimas statinių plotas pagal DP suplanuotą funkciją (remtasi ,,Bauland’’ analize) :

Gyvenamoji funkcija : 47 059 kv.m

Komercinė funkcija 16 634 kv.m

Želdynai ir bendro naudojimo erdvė : 19 029 kv.m

Maksimalus vystomų statinių plotas 63 693 kv.m

Teritorijoje projektuojamuose pastatuose numatomos saulės panelės, lietaus surinkimas ir pernaudojimas, taip pat mažesnį co2 pėdsaką paliekančių medžiagų panaudojimas. Vienas iš tvarios architektūros požymių – medienos panaudojimas. Tvari architektūra yra lengvai pastatoma iš ekologiškų medžiagų ir be pėdsakų perstatoma, ar be didesnių pokyčių gali stovėti daugelį metų ir gali būti pritaikoma vis kitai funkcijai.

5. PROJEKTO EKONOMINIAI RODIKLIAI, PLANUOJAMOS PRELIMINARIOS INVESTICIJOS

Projektuojami : gyvenamieji kvartalai su komercija, visuomeninės paskirties pastatai, administraciniai pastatai, paslaugų objektai, mokymosi įstaigos, įveiksminamas rekonstruojamas, restauruojamas kultūros paveldas. Atsižvelgiant į tai jog bus atliekami ne tik griovimo darbai, bet ir didelio masto statyba, panaudojant skirtingas medžiagas. Taip pat siekiant tvarių sprendimų ateityje pradinės investicijos išauga. Įskaitant griovimo, projektavimo kainą, medžiagų kainą apytiksliai numatoma teritorijai reikalinga investicijų suma 60-70mln. eurų.

PROJEKTUOJAMO
PASTATO DALIES KONSTRUKCIJŲ, INŽINERINIŲ SISTEMŲ
APRAŠYMAI IR PAGRINDIMAS. NAUDO- JAMŲ IŠMANIŲJŲ TECHNOLOGIJŲ APRAŠYMAS 3. PROJEKTUOJAMO PASTATO, PASTATŲ, PASTATO DALIES PAGRINDINIAI RO- DIKLIAI, ENERGETINIAI IR KITI SKAIČIAVIMAI; 4. ŽALIŲJŲ (TVARIŲJŲ SPRENDINIŲ, ATSINAUJINANČIŲ ENERGIJOS IŠTEKLIŲ PANAUDOJIMAS
PASTATO, PASTATŲ,
SPRENDINIŲ

TRINKELIŲ DANGA PASTATŲ PRIEIGOSE

* KARTU NAUDOJAMI IR VEJOS BEI GATVĖS BORTELIAI

PĖSČIŲJŲ

TAKAI

BAUMIT

KADANGI TERITORIJOJE YRA PASTATŲ REIKALAUJANČIŲ ATIDŽIOS PRIEŽIŪROS ATLI-

EKANT JŲ RESTAURACIJĄ IR REKONSTRUKCIJĄ NAUDOJAMA RENOVACIJOS LINIJA.

PASTATŲ FASADAMS, ANT KURIŲ NENUMATOMAS KLINKERIS AR PALIEKAMOS ATVIROS PLYTOS - NAUDOJAMAS DEKORATYVINIS TINKAS BEI ŠILTINIMO MEDŽIAGOS.

TERITORIJOJE NUMATOMA DIDELĖ DALIS MŪRINIŲ PASTATŲ. TAM NAUDOJAMA BAU-

MIT MŪRO MIŠINIŲ LINIJA.

ŽALIOS PRIEIGOS

ANTŽEMINIAI

PARKINGAI

PERCUSSION PLAY - OUTDOOR MUSICAL INSTRUMENTS

LAUKO ERDVĖMS KULTŪROS PAVELDO PASTATŲ PRIEIGOSE NUMATOMAS KOMPLEKTAS SEPTET ENSEMBLE, SU TEMBRAIS NUO ŽEMO C3 PER 4 PILNAS OKTAVAS IKI AUKŠTO C7. NUMATOMA ERDVĖMS ATGAIVINTI, NE TIK VIZUALIAI, BET IR KITAIS SENSORINIAIS BŪDAIS.

6. PASIRINKTŲ RĖMĖJŲ
APRAŠYMAS
SIŪLOMŲ PRODUKTŲ PANAUDOJIMO PROJEKTE

RĖMĖJŲ SIŪLOMŲ PRODUKTŲ PANAUDOJIMO PROJEKTE

BIPA.

ATSIŽVELGIANT Į TERITORIJOS MASTĄ IR JOS FUNKCIJŲ ĮVAIROVĘ BIPA SIŪLOMAS PASLAUGŲ

SPEKTRAS TINKA KIEKVIENAI TERITORIJAI SKIRTINGAIS ASPEKTAIS. VIENOSE ZONOSE NUMATOMOS LAIPYKLĖLĖS IR KT. ŽAIDIMŲ AIKŠTELĖS, AKTYVESNĖSE SPORTO ĮRENGINIAI. AUTO-

MOBILIŲ STOVĖJIMO AIKŠTELĖS NUMATOMOS POŽEMINIAME LYGYJE, JOMS GALI BŪTI NAU-

DOJAMA PLATI PREKIŲ PASIŪLA PRADEDANT NUO RATŲ ATMUŠĖJŲ IR BAIGIANT ŽENKLAIS BEI INFORMACINĖMIS LENTELĖMIS.

INDUSTRINIO

CHARAKTERIO ŠVIESTU-

VAI ADMINISTRACINĖSE

PATALPOSE.

UAB “BY&N” — įmonė dirbanti LED apšvietimo srityje (prekės ženklas LEDlife) nuo 2013 metų.

KADANGI TERITORIJOJE PROJEKTUOJAMI ĮVAIRIŲ TIPOLOGIJŲ PASTATAI, NUMATOMA BY&N PROUKCIJA YRA TINKAMA IR APIMANTI APŠVIETIMO SPRENDIMUS ADMINISTRACINĖMS, KOMERCINĖMS, AUKŠTOMS PATALPOMS, TAIP PAT ĮRENGIAMAS IR LAUKO APŠVIETIMAS, PRITAIKANT SKIRTINGUS SPRENDIMUS ENERGIJOS HUB’O TERITORIJOJE IR GRETA DAUGIABUČIŲ PASTATŲ, KOMERICINIŲ PATALPŲ. TAIP PAT TERITORIJOS APŠVIETIMAS.

EVAKUACINIAI ŠVIESTUVAI. SKIRTINGOSE TERITORIJOS DALYSE.

GAMYBINIAI ŠVIESTUVAI DIRBTUVIŲ IR VALČIŲ SAUGYKLŲ PATALPOSE. TAIP PAT PATALPOMS AUKŠTOMIS LUBOMIS.

TIKKURILA

• Atitinka statybinių medžiagų mažos emisijos klasę M1 (patvirtinta Suomijos statybos informacijos fondo (RTS). Ši klasė užtikrina geresnę patalpų oro kokybę. Dėl ypač mažo LOJ kiekio ši danga leidžia sukurti sveikatai palankią aplinką ligoninėse, mokyklose ir dienos centruose.

• Geras atsparumas dilimui.

• Pailgėjimas nutrūkstant sudaro 60 proc.

• Geras atsparumas smūgiams.

• Savaime išsilyginanti, dengiama dantytąja arba reguliuojama plienine mentele.

• Skirta naujoms bei senoms mechaniškai bei chemiškai veikiamoms betoninėms ir asfaltinėms pramoninių patalpų, sandėlių, remonto dirbtuvių, perdirbimo bei popieriaus gamybos cechų ir koridorių grindims.

Naudojama projektuojamose valčių saugyklose, esamuose dirbtuvių komplekso pastatuose.

Taip pat dėl mažos emisijų klasės M1 numatomas požeminėse automobilių stovėjimo aikštelėse.

PARKO ŠVIESTUVAI, NUMATOMI UPĖS PROMENADOJE IR TERITORIJOJE.

CLT bilbiotekoje/mediatekoje projektuojamoje teritorijos šiaurėje vidurinėje jos dalyje mediniams fasadų sprendimams naudojams Valtti Plus Kesto. Ilgaamžė medienos dažyvė su modifikuotu akriliniu rišikliu, suteikianti gerą apsaugą nuo UV spindulių. Sudaro pusiau matinę vandeniui nelaidžią apsauginę plėvelę. Saugo medieną nuo atmosferos poveikio, lėtina drėgmės ir saulės spindulių daromą poveikį.

PASIRINKTŲ
APRAŠYMAS

MAPEI

Mapei yra pasaulinė kompanija, gaminanti statybines medžiagas ir yra pagrindinė klijų ir kitų statybinės chemijos produktų, naudojamų statybos srityje, gamintoja.

ARTECHNIKA. SAUGOS TECHNOLOGIJOS

OBJEKTE NAUDOJAMA PASTATŲ APSAUGOS NUO GAISRO ĮRANGA. PASIRINKTAS GAMINTOJAS ,, ARITECH (Carrier)’’

Naudojamas gaminys : Mapecoat TNS URBAN - dviračių takų danga.

Naudojamas gaminys : Mapefloor PU SD - pėsčiųjų takų danga.

SCHOMBURG .

Senų pastatų rekonstrukcija, renovacija ir modernizavimas pastaraisiais metais įgavo daugiau dėmesio. Svarbiausias nuolatinio pastato išsaugojimo aspektas yra apsauga nuo didėjančio drėgnumo.

NAUDOJAMI KULTŪROS PAVELDO IR KT. IŠSAUGOMIEMS PASTATAMS.

HIDROIZOLIAVIMAS IR RESTAURACIJA

PASIRINKTŲ
APRAŠYMAS
RĖMĖJŲ SIŪLOMŲ PRODUKTŲ PANAUDOJIMO PROJEKTE

BAREMA RYTAI

Lietuvos rinkoje viena iš pirmųjų pradėjo gaminti ir prekiauti visų rūšių žaliuzėmis, kurios montuojamos iš lauko pusės (lauko apsauga nuo saulės), apsauginėmis žaliuzėmis, fasadinėmis žaliuzėmis, horizontaliomis žaliuzėmis, stacionariomis žaliuzėmis, terasinėmis markizėms, žiemos sodų markizėmis, vertikaliosiomis markizėmis.

OBJEKTE NAUDOJAMOS SAULĖS KONTROLĖS SISTEMOS. TAIP PAT ŠVOK ĮRENGINIŲ UŽDENGIMAS IR STOGELIAI.

SCHNEIDER ELECTRIC SPACELOGIC KNX namų automatikos ir tretinio pastatų valdymo sprendimai, skirtus maksimaliai padidinti lankstumą, komfortą, saugumą ir pelningumą, ypač naujiems pastatams.

POWERLOGIC™ Belaidis energijos jutiklis. kompaktiškas ir lengvai montuojamas 1 klasės belaidžio ryšio energijos jutiklis, kuris stebi ir matuoja energiją ir galią realiuoju laiku. Sukurta naujiems arba esamiems įrenginiams gyvenamųjų, smulkaus verslo ir komercinių pastatų segmentuose,

„PowerTag“ siunčia įspėjimus įvykus elektros trukdžiams, todėl dabar namų savininkai gali mėgautis ramybe, o įmonių savininkai gali tikėtis veiklos efektyvumo ir veikimo laiko.

ENEFIT

Didžiausios Baltijos šalyse elektros energijos gamybos ir prekybos įmonių grupės „Eesti Energia“ antrinė bendrovė.

Numatomos elektromobilių įkrovimo stotelės požeminėse stovėjimo aikštelėse.

Ekologiškas sprendimas, bet ir naudinga investicija savivaldybėms, verslams ir organizacijoms. Tai praktiškas ir efektyvus būdas pritraukti klientus ir partnerius, telkti bendruomenę bei įgyvendinti tvarumo tikslus.

Ant pastatų stogų montuojamos saulės panelės. Pliusai : Mažesnės sąskaitos už elektrą, energetinė nepriklausomybė, Mažesnis CO2 pėdsakas, didesnis investicinis potencialas, galimybė pasinaudoti parama.

PASIRINKTŲ RĖMĖJŲ SIŪLOMŲ PRODUKTŲ
PROJEKTE APRAŠYMAS
PANAUDOJIMO

1. SITUACIJOS SCHEMA SU PLATESNIO

KONTEKSTO URBANISTINIŲ SĄLYGŲ

ĮVERTINIMU

NAGRINĖJAMA TERITORIJA

Klaipėda – trečias pagal gyventojų skaičių ir plotą

Lietuvos miestas, įsikūręs

Vakarų Lietuvoje, Pajūrio žemumoje, ties Kuršių marių ir Baltijos jūros santakos vieta.

Miestas taip pat yra Klaipėdos apskrities administracinis centras. Svarbiausias Vakarų Lietuvos pramonės centras,[3] kelių, geležinkelių ir jūrų transporto mazgas.

Istoriškai ir miesto planavimo atžvilgiu reikšminga teritorija. 1929 pastatytas kompleksas prie Danės upės. Greta Klaipėdos senamiesčio.

Naudojimo tipas G2, K1

Sklypo dydis 16 634 m²

Tankumas 0.4

Intensyvumas 1

Maksimalus statinių plotas 16 634 m²

Sklypo užstatymo plotas 6653.6 m²

Naudojimo tipas TI, PA, K1

Sklypo dydis 6249 m²

Tankumas 0.3

Intensyvumas 0.78

Maksimalus statinių plotas 4874.2 m²

Sklypo užstatymo plotas 1874.7 m²

2. TERITORIJOS ESAMOS PADĖTIES PLANAS

Naudojimo tipas G2, K1

Sklypo dydis 12 658 m²

Tankumas 0.7

Intensyvumas 1.44

Maksimalus statinių plotas 18 227.52 m²

Sklypo užstatymo plotas 8 860.6 m²

Naudojimo tipas G2, K1

Sklypo dydis 19 221 m²

Tankumas 0.4

Intensyvumas 1.5

Maksimalus statinių plotas 28 831.5 m²

Sklypo užstatymo plotas 7688.4 m²

SĄLYGŲ ĮVERTINIMU
1. SITUACIJOS SCHEMA SU PLATESNIO KONTEKSTO URBANISTINIŲ

3. VIZUALINIAI TERITORIJOS RYŠIAI

Teritorijoje užstatymo kryptys bei formos pasirinktos neatsitiktinai: kuriami vertingi apžvalgų į miestą ir Dangės upę vizualiniai ryšiai.

4. PASTATŲ FUNKCIJOS

Teritorijoje siūlomos skirtingos viena kitą papildančios funkcijos. Greta Danės skvero siūloma kurti Klaipėdos miesto savivaldybės administracijos pastatus, už jų- daugiabučių kvartalus su kiemais, ir viešomis prieigomis, elektrinės kaminą pritaikyti apžvalgai, o šalia kamino erdvės dėstyti gastronomijos paviljoną, pradinę mokyklą su vaikų darželiu. Dabartinėje katilinėje siūloma kurti modernaus meno centrą, šalia jo išsaugoti vamzdžių struktūras kaip erdvinį kompozicinį meninį elementą, elektrinės administracijos pastatus pritaikyti mediatekai / bibliotekai, o bauhauzo stiliaus nuostabius pastatėlius - meininkų dirbtuvėms, valčių saugykloms, co-working centrui. Rytinėje teritorijos dalyje siūlomi kvartalai su viešomis funkcijos pirmuosiuose aukštuose ir ofisais arba daugiabučiais - viršutiniuose. Už tilto, šalia mažųjų laivų prieplaukos siūloma kurti mažųjų laivų sandėlius.

5. ERDVIŲ IR PRIEIGŲ FUNKCIJOS

Kadangi koncepcija yra teritoriją kurti kaip Dangės upės erdvinį koridorių aktyvinančią teritoriją, svarbus mišrus ir įvairus lauko erdvių naudojimas. Teritorija veikia kaip ištisinė atvira urbanistinė viešoji erdvė, kurią sudaro mažesnės funkcinės zonos. Koncentruojamasi ne tik į krantinės kaip urbanistinės viešosios erdvės formavimą, bet ir į skersinius ryšius, upės prieigas, pastatų formuojamas erdves. Siūloma eksponuoti kuo daugiau Klaipėdos energijos teritorijos paveldo, konvertuoti ir pritaikyti erdvėse įvairius nebenaudojamus įrenginius ir taip kurti išskirtinio identiteto teritoriją.

Nors teritorijoje siūlomas gana tankus užstatymas, siūloma kurti želdynų tarpusavio žaliuosius ryšius. Siūloma žalinti krantinė, taio pat siūlomi du želdynai istorinėse vandens kanalų vietose, skaidantys teritoriją į tris zonas.

7.

TERITORIJOS MEDŽIAGIŠKUMAS

RAUDONOS PLYTOS / PAVELDINIAI PASTATAI/ DAUGIABUČIAI

RŪDINTO PLIENAS / CORTEN ELEMENTAI

* KP saugoma profiliuotos keraminių plytų mūro palangės ir viršlangiai

ŽALIAS STOGAS (ĮVAŽIAVIMAS Į POŽEMINĮ PARKINGĄ/ DAUGIABUČIAI SU EKSPLOATUOJAMAIS STOGAIS)

CLT/GLT KONSTRUKCIJOS MEDIS + STIKLAS (MEDIATEKA BIBLIOTEKA)

FIBROCEMENTO PLOKŠTĖS (DAUGIABUČIAI, MOKYKLA DARŽELIS))

MEDINĖ APDAILA (DAUGIABUČIAI, MOKYKLA DARŽELIS)

ŽALIOSIOS JUNGTYS
6.

7. PAVELDINĖS TERITORIJOS FUNKCIJOS

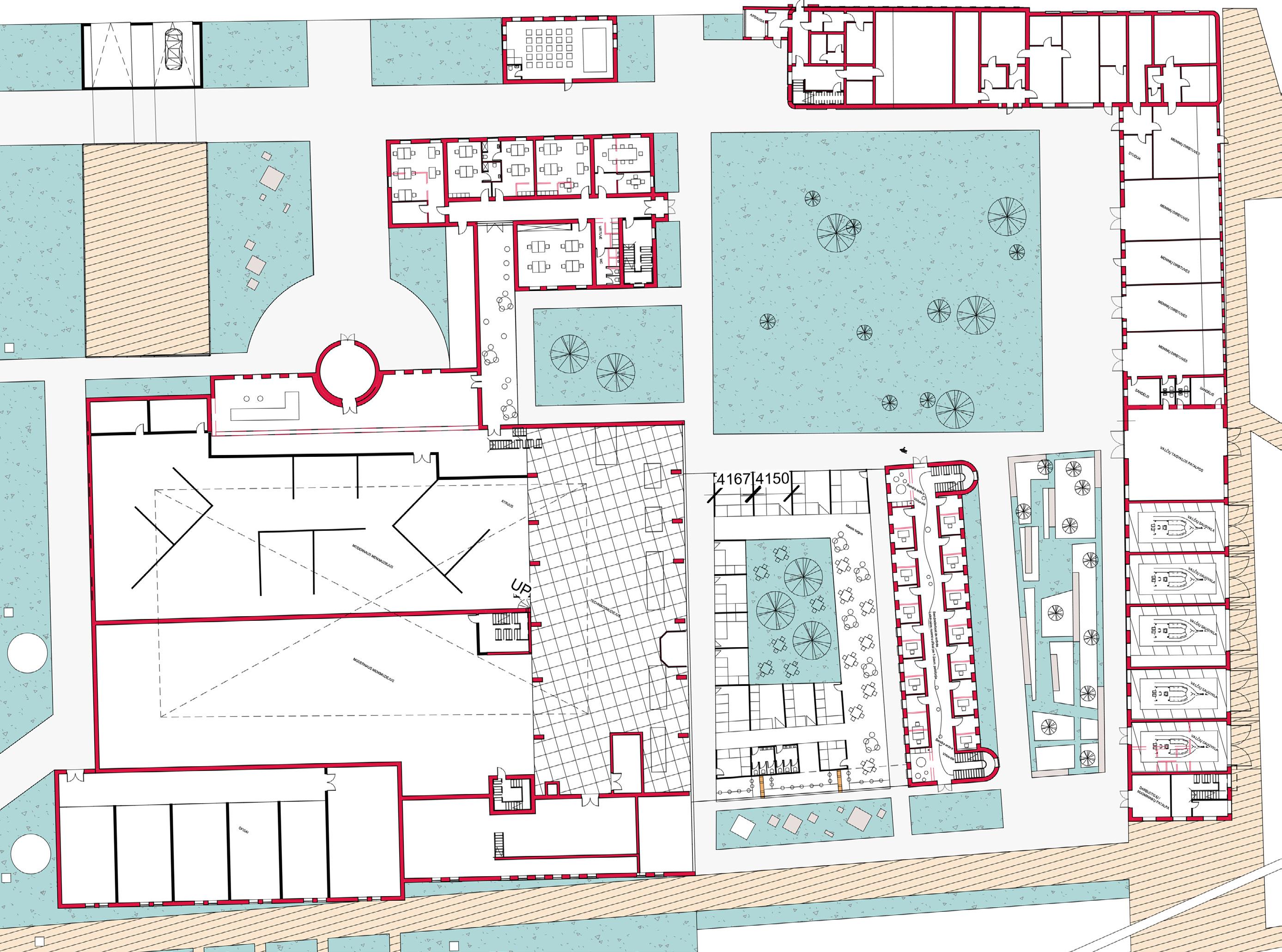
Teritorijoje ,,Klaipėdos šiluminės elektrinės pastatų kompleksas (kodas 25808)’’ planuojama įrengti modernaus meno centrą, klaipėdos technikos muziejų ir ofisus su atrijumi pagrindiniame (25811) pastate, numatoma jungtis tarp šio pastato ir kamino, kuris transformuojamas į vertikalų pažinimo centrą su apžvalgos tašku viršutinėje dalyje. Vakrinėje pastato dalyje yra nuamtomas energetikos parkas su šio parko administravimo pastatu. Paliekami teritorijoje esantys inžineriniai įrenginiai, vamzdynai. Tarp elektrinės pastato ir Klaipėdos šiluminės elektrinės pastatų komplekso skirstyklos (25812) po tarp jų esančia jungtimi numatomas maisto turgus, stiklinis tūris. Toks sprendimas priimtas siekiant aplikti matomumą tarp įėjimo teritoriją ir upės. Bauhaus stiliaus skirstykloje įrengiami laikinosios nuomos intravertiški ofisai - darbui po vieną. Pietinėje dalyje priešais pagridninio pastato fasadą projektuojami ekspoziciniai paviljonai skirti Klaipėdoje kuriančių menininkų ir čia reziduojančių svečių darbų ekspozicijai. Administracinis pastatas (25809) restauruojamas, lieka AB ,,Klaipėdos energijos’’ administracijai. Dirbtuvių pastatuose (25813) numatomos menininkų dirbtuvės (žemesnėje dalyje), kita dalis atitenka valčių saugykloms, patekimas jas numatomas atvedant vandenį link pastato šiuo metu teritorijoje išbetonuotą ir neįveiksmintą plotą. Teritorijoje numatomas pakeliamas pėsčiųjų tiltas po dabartine konstrukcija inžinerijoms. Konstrukcija išsaugoma. Numatomas amfiteatras, žaidimų aikštelės, erdvės bendruomenės susitikimams, sėdėjimo zonos, lauko biblioteka. Mediateka su biblioteka numatomi naujai projektuojamame mediniame ofise šiaurinėje dalyje greta įvažiavimo požeminį parkingą. Komplekso ūkinis pastatas (25810) tampa konferencijų erdve teritorijos pastatais besinaudojantiems asmenims.

8. PAVELDINĖS TERITORIJOS FUNKCINIS ZONAVIMAS

APŽVALGOS BOKŠTAS VERTIKALUS KLAIPĖDOS PAŽINIMO CENTRAS ENERGETIKOS PARKO TERITORIJOS DALIS ENERGETIKOS PARKO ADMINISTRAVIMAS MEDIATEKA BIBLIOTEKA AB ,,KLAIPĖDOS ENERGIJA’’ ADMINISTRACIJA OFISAI ĮVAŽIAVIMAS POŽEMINĘ AUTOMOBILIŲ STOVĖJIMO AIKŠTELĘ a MODERNAUS MENO CENTRAS KLAIPĖDOS TECHNIKOS MUZIEJUS 2a OFISAI SU ATRIJUMI CENTRE EKSPOZICINIAI PAVILJONAI LAUKO
PAKELIAMAS TILTAS PĖSTIESIEMS PO ESAMA KONSTRUKCIJA MAISTO TURGUS SU KAVINĖMIS VALČIŲ SAUGYKLOS MENININKŲ DIRBTUVĖS BAUHAUS CO-WORKING LAIKINOJI NUOMA
GALERIJOS
Skirstyklos 2a

RYTINĖS TERITORIJOS DALIES FUNKCINIS ZONAVIMAS

1 aukštas 2 aukštas

I

TERITORIJA II TERITORIJA

ŠALTINIAI

1. http://www.uostas.info/miestas/pasimatymai/pastataigatves/41-danges-krantines/306-klaipedos-energija-elektrine. html

2. Bauland AB “Klaipėdos Energija” teritorijos konversija. Galimybių studijos proceso ir rezultatų ataskaita.

3. Jan Gehl ,,Miestai žmonėms’’

4. Kultūros vertybių registras. https://kvr.kpd.lt/#/static-heritage-search

5. V. Puodžiūnas - Klaipėdos Energija (1929-2004)

III teritorija SUMAŽINTAS
PLANŠETAS

IŠMANUSIS MIESTAS X

VILNIUS 2024

Turn static files into dynamic content formats.

Create a flipbook
Issuu converts static files into: digital portfolios, online yearbooks, online catalogs, digital photo albums and more. Sign up and create your flipbook.