IM9 – Jurbarko Vytauto Didžiojo progimnazija (renovacija)

Page 1

VILNIAUS GEDIMINO TECHNIKOS UNIVERSITETAS ARCHITEKTŪROS FAKULTETAS

STRUCTUM ,,IŠMANUSIS MIESTAS IX”

Aiškinamasis raštas

VOG archi

JURBARKO VYTAUTO DIDŽIOJO

PROGIMNAZIJA RENOVACIJA

Vadovas:

Gabrielė Štraupaitė

Odeta Vaicikauskaitė

Vaida Vaitkevičiūtė

Studentės: prof. Sigitas Kuncevičius

03-04. ĮVADAS

05. PADĖTIS

06-07. ISTORIJOS RAIDA

08. GAMTINĖ SITUACIJA

09. RELJEFAS

10. SUSISIEKIMAS

11. PASTATŲ VERTINIMAS

12. ERDVIŲ VERTINIMAS

13. SUVESTINĖ ANALIZĖ

14. ISTORIJA

15. DABARTINĖ SITUACIJA

16-21. ANALOGŲ STUDIJA

22-25. ANALOGŲ ANALIZĖS

APIBENDRINIMAS

( NAUJA STATYBA)

26. ANALOGŲ IŠVADOS

27. TIKSLAI

28. KONCEPCIJA

29-31. SPRENDINIŲ AIŠKINIMAS

32-33. PASTATO VIZUALIZACIJOS

34-40. BRĖŽINIAI

41-42. PROGRAMA

43. REMĖJAI

TURINYS 2

The renovation project of Jurbarkas Vytautas Didysis Progymnasium aims to revitalize the existing school building, which was constructed in 1995, while preserving its architectural value and adapting it to modern learning needs. The renovated building will serve as the heart of the school, providing a bright, modern, and innovative space that promotes collaboration, creativity, and contemporary learning.

Through a comprehensive analysis of the site and its surroundings, as well as a review of relevant literature, a detailed program for both the outdoor and indoor spaces has been developed as the basis for the renovation proposal.

One of the key objectives of the project is to integrate nature through the concept of a green hill. By connecting the school center to a large green hill, a natural oasis will be created within the school premises. This hill will not only enhance the visual appeal of the school but also provide students with a unique learning environment to experiment, explore natural phenomena, and foster ecological consciousness. It will offer opportunities for ecological gardening lessons, nature-based activities, physical fitness, as well as adventure and self-expression.

In the design process, special attention will be given to achieving a harmonious synergy between architecture and natural elements. The aesthetics, architectural details, and the integration of plants will contribute to a sense of unity, inspiring students' perception, creativity, and a sense of pride in their school.

The ultimate goal of the renovation project is to create an exceptional and modern learning environment that meets high educational standards, fosters students' creativity and collaboration, and embraces the integration of nature.

3
SUMMARY:

Ugdymo įstaigų renovacija yra svarbi tema, kuri susijusi su atnaujinimo procesu, siekiant pagerinti mokyklų ir kitų ugdymo įstaigų būklę bei užtikrinti tinkamas mokymo sąlygas. Renovacija gali apimti tiek fizinę infrastruktūrą (pastatus, klases, laboratorijas), tiek ir technines sistemas (elektros, šildymo, ventiliacijos). Svarbiausias ugdymo įstaigų renovacijos proceso tikslas yra užtikrinti tinkamas mokymo ir mokymosi sąlygas visiems mokiniams ir pedagogams. Tai reiškia sukurti saugias, sveikas, funkcionalias ir šiuolaikiškas mokymo aplinkas, Jurbarko miesto, Vytauto Didžiojo progimnazijos pastatas, kuris pastatytas 1995 metais. Taip pat, visa likusi mokyklos neišnaudota teritoriją, kuria sieksime padaryti patrauklesne mo-

XX amžiaus mokyklos nebeatitinka šiuolaikinių, modernių ugdymo įstaigų standartų ir reikalavimų, todėl stengiamasi jas renovuoti. Šis procesas vyksta ne tik Lietuvoje, bet ir kitose pasaulio šalyse.

Pastaraisiais dešimtmečiais švietimo srityje padaryti dideli pokyčiai, siekiant gerinti išsilavinimo kokybę ir užtikrinti lygias galimybes visiems:

1. Specialiųjų poreikių mokinių įtraukimas: Buvo padaryta didelė pažanga siekiant užtikrinti, kad visi mokiniai, įskaitant specialiųjų poreikių turinčius mokinius, turėtų lygias galimybes gauti aukštos kokybės išsilavinimą. Buvo skatinama integracija, kai specialiųjų poreikių mokiniai lanko bendras klases, o taip pat įvesti individualūs ugdymo planai, specialieji mokykliniai patarėjai ir kitos priemonės, kad būtų tinkamai atsižvelgiama į kiekvieno mokinio poreikius.

2. Technologijų integracija: Sparčiai vystantis technologijoms, jos taip pat buvo integruojamos į švietimo sistemą. Skaitmeninės priemonės, kompiuterinės programos ir interneto prieiga tapo vis dažniau naudojamos mokymo procese. Tai suteikė mokiniams daugiau galimybių gauti informaciją, kurti ir bendrauti, taip pat palengvino mokytojų darbą ir plėtrą.

3. Aktyvus mokymasis ir kritinis mąstymas: Tradiciškai naudojamas "mokytojo centruotas" mokymo metodas buvo keičiamas link "mokinio centruoto" mokymo metodo. Akcentuojant mokinių aktyvų dalyvavimą, jų kritinio mąstymo ir problemų sprendimo gebėjimai yra lavinami. Skatinama kūrybiškumo ir inovacijų plėtra, siekiant parengti mokinius šiuolaikinio pasaulio iššūkiams.

4. Tarptautinis bendradarbiavimas: Švietimo sistemoje didžiulis dėmesys skiriamas tarptautiniam bendradarbiavimui ir mobilumui. Programos, tokios: kaip Erasmus+, leidžia mokiniams, studentams ir mokytojams patirti kitų šalių kultūrą, kalbą ir švietimo praktiką. Tai skatina įvairovę, tarpkultūrinį supratimą

Darbo uždaviniai:

Regeneruoti urbanistinį audinį bei renovuoti esamus pastatus, įvertinus istoriškai susiklosčiusią urbanistinę struktūrą, architektūros objektų vertes ir skirtingus socialinius užsakymus.

Darbo metodika:

Siekiant parengti kokybišką pasiūlymą, atlikta sklypo ir jo teritorijos analizė bei literatūros studija, kurios pagrindu sudaryta teritorijos ir vidinių patalpų programa, pritaikant šių dienų tendencijas ir reikalavimus ugdymo įstaigoms.

4

Jurbarko miestas yra pietvakarinėje Lietuvos dalyje, Nemuno dešiniajame krante Miestas yra Jurbarko rajono savivaldybėje, Jurbarko miesto seniūnijoje, gana nutolęs nuo didžiųjų Lietuvos miestų Jurbarko miesto seniūnija Jurbarko miesto dydis yra 14,31 m2 Artimiausia geležinkelio stotis yra Tauragėje Miesto nekerta labai svarbūs magistraliniai keliai. Nagrinėjama teritorija yra nutolusi nuo miesto centrinės dalies,aplink ją vyrauja gamtinė aplinka ir sodybinis užstatymas.

TAURAGĖS RAJONO SAVIVALDYBĖ PAGĖGIŲ SAVIVALDYBĖ ŠAKIŲ RAJONO SAVIVALDYBĖ RASEINIŲ RAJONO SAVIVALDYBĖ KAUNO RAJONO SAVIVALDYBĖ ŠIALĖS RAJONO SAVIVALDYBĖ ŠILUTĖS RAJONO SAVIVALDYBĖ KELMĖS RAJONO SAVIVALDYBĖ KĖDAINIŲ RAJONO SAVIVALDYBĖ RADVILIŠKIO RAJONO SAVIVALDYBĖ KAZLŲ RŪDOS SAVIVALDYBĖ VILKAVIŠKIO RAJONO SAVIVALDYBĖ Jurbarko miesto pasiekiamumas 10 km PADĖTIS KAUNAS RYGA PANEVĖŽYS ŠILUTĖ VILNIUS MARIJAMPOLĖ TAURAGĖ KLAIPĖDA PALANGA ŠIAULIAI 90 km 86km 160km 117km 254 km 180km 155km 97 km 42km 84km NEMUNAS JURBARKŲTVENKINYS CENTRINĖ MIESTO DALIS ĮKAUNĄ ĮKLAIPĖDĄ ĮŠAKIUS Į SKAUD VILĘ Į GIRDŽIUS 5

1611m. miesteliui suteikta magdeburginės savivaldos teisės, duotas herbas.

1613m. LDK žemėlapyje užfiksuotas Jurbarko ženklas.

1631m. dėl potvynių tiltams nustatytas mokestis; dvaras persikėlė į kitą vietą.

1642m. leista mieste apsigyventi žydams.

1650m. pastatyta sinagoga.

1710m. Prasidėjo badas ir maras.

1737m. Rusijos kariuomenė sudegino dalį miesto.

1741m. vėl atstatyta bažnyčia.

1768m. minimas Jurbarko ,,počtomeisteris”.

1776m. panaikintos magdeburginės teisės.

1792m. sugrąžintos magdeburginės teisės.

1795m. dėl padalijimo, miestas - Rusijos imperijoje.

XIX a.

1829m. per pavasario potvynį

apgadinti pastatai ir tiltas per Imsrę.

1853m. pastatyta muitinė.

1862m. potvynis užliejo miestą; miestas plėtėsi į šiaurę.

1865m. pastatyta cerkvė.

1502m. pradėta vadinti valsčiumi. 1540m. pirmą kartą pavadinta miestu; nurodymas įsteigti muitinę.

1540m. įrengta prekybvietė; naujoji miesto dalis netiko dėl gamtinės situacijos. 1545m. pastatyta bažnyčia.

1557m.

1570m. minimas Jurbarko uostas. 1577m. suteikta prekybinė privilegija. 1593m. dėl reformacijos miestas neteko bažnyčios.

1907m. pastatyta Švč. Trejybės bažnyčia- nauja miesto dominantė.

1906m. dėl nesilaikymo priešgaisrinių reikalavimų miestas degė.

1915m. miestas okupuotas vokiečių, degė.

1931m. pakeista Jurbarko miesto riba.

1939m. miestą užėmė Raudonoji armija.

1940m. gaisras nusiaubė Jurbarką.

1941m. sugriauta sinagoga; sušaudyti žydai.

6

SUTARTINIAI ŽYMĖJIMAI

Senoji miesto riba

Nagrinėjama teritorija

Keliai XV

Vandens telkiniai

Esamas užstatymas

Planuojamas užstatymas

Turgavietė

Dvaro teritorija

Bažnyčios jurisdikcija

Jurbarko miesto teritorijos plėtroje, mūsų nagrinėjamos teritorijos didžioji dalis į miesto teritoriją įtraukta XXa.

ISTORINĖ RAIDA
a. Jurbarkas
a.
XIX a. Jurbarkas XX a. pradž. Jurbarkas XX a. vid. Jurbarkas
XVI
Jurbarkas
7

Jurbarkųtvenkinys

SUTARTINIAI ŽYMĖJIMAI

Gatvės

Nagrinėjama teritorija

Esama miesto riba

Esami pastatai

Jurbarkotvenkinys

TEMINIAI ŽYMĖJIMAI

Nemunas

Memorialiniai želdynai Apsauginiai želdynai Parkai

Skverai/ žalios jungtys

Vandens telkiniai Miesto miškai

1. Jurbarko dvaro parkas

2. Vyrauto parkas

3. Mituvos miško parkas

4. Jaunimo parkas

5. Donelaičio gf. parkas

GAMTINĖ SITUACIJA M 1:20 000
Imsrė Mituva
1. 2.
5. 4. 3.
8
Jurbarko dvaro parkas

Miestas turi išraiškingą reljefą, žemiausios reljefo dalys susitelkusios tiek upėmis, o aukščiausios vietos yra šiaurinėje miesto dalyje.

Nagrinėjamoje teritorijoje nėra labai išraiškingo reljefo.

Didelė teritorijų dalis prie upių turi riziką būti užlietomis, tarp jų ir miesto senamiestis.

Potvynio metu vanduo mūsų nagrinėjamos teritorijos nepasiekia.

RELJEFAS M 1:20 000 SUTARTINIAI ŽYMĖJIMAI Gatvės Nagrinėjama teritorija Esami pastatai TEMINIAI ŽYMĖJIMAI 5 10 15 20 Esama miesto riba 25 30 35 40 45 50
Miesto
telkiniai
Reljefo aukštis virš jūros lygio:
miškai Vandens
Potvynis. 1937m. Raseinių g.
9

M 1:20 000

SUTARTINIAI ŽYMĖJIMAI

Miesto riba

Vandens telkiniai

Nagrinėjama teritorija TEMINIAI ŽYMĖJIMAI

C1 kategorijos gatvės

C2 kategorijos gatvės

D1 kategorijos gatvės

D2 kategorijos gatvės

Kitos gatvės

Viešojo transporto maršrutai

Viešojo transporto stotelės(+250 m)

Vandens kelias

Dviračių takai

Autobusų stotis

Prieplauka

Uostas

Jurbarko mieste nėra pakankamai išvystyta dviračių judėjimui skirta infrastruktūra, nors reljefas ir miesto dydis tam yra palankus.

Pro nagrinėjamą teritoriją nevažiuoja viešasis transportas ir, nors atstumai iki stotelių nėra dideli, mažesnies vaikams tai gali būti nepatogu.

SUSISIEKIMO SISTEMA
ĮKAUNĄ ĮŠAKIUS Į KLAIPĖDĄ Į SKAUD VILĘ Į GIRDŽIUS 10
SODYBINIS UŽSTATYMAS Ė V T A G APLEISTAS PASTATAS INŽINĖRINĖS INFRASTRUKTŪROS PASTATAI 5 6 7 4 9 10 11 11
12

SUTARTINIAI ŽYMĖJIMAI

Jurbarko miesto riba

Nagrinėjama teritorija

Gatvės

Vandens kelias

Pagrindinės miesto ašys Sklypai

Vandens telkiniai Želdynai

Socialinės infrastruktūros pastatai (dominantės) Pastatai

Centrinė miesto dalis

Vidurinė miesto dalis

Periferinė miesto dalis

IŠVADOS

Miesto kontekste:

- Jurbarkas yra pasidalinęs tarsi į dvi dalis: vieną dalį sudaro gamta, antrą urbanizuota miesto teritorija.

- Didžioji želdynų dalis vyrauja periferinėje miesto dalyje

- Viena iš pagrindinių miesto ašių kerta miesto centą.

Lokaliai (aplink nagrinėjamą teritoriją):

- Aplink nagrinėjamą teritorija dominuoja sodybinis užstatymas.

- Jurbarko Vytauto Didžiojo progimnaziją yra atskirai stovintis pastatas.

- Progimnazija ryškiai išsiskiria iš aplinkinio užstatymo savo aukštingumu ir dydžiu.

- Mokyklos teritorija yra greta upelio ir gamtinės aplinkos.

SUVESTINIS BRĖŽINYS M 1:20 000
13

Dabartinėje mokyklos vietoje prieš ją pastatant buvo gyventojų sklypai, Jurbarko rajono kooperatyvų sąjungos sandėliai ir kolūkinė turgavietė.

Pagal miesto kapitalinės statybos planą, mokyklos statyba prasidėjo 1989 m. liepą ir baigta 1995 m. rugpjūčio 31 d. Lietuvos Respublikos statybos ir urbanistikos ministerija leido priimti naudoti statomos mokyklos 3 aukštą su atskiru įėjimu.

1995 m. rugsėjo 1-osios šventė vyko aikštėje prie dabartinės mokyklos valgyklos.

Per rugsėjo mėnesį buvo užbaigti apdailos darbai pirmajame aukšte. Sporto salė dar nebuvo įrengta, todėl kūno kultūros pamokos vyko miesto stadione. Sporto salėje mokiniai pradėjo sportuoti 1996m.

1999m. atidarytas mokyklos stadionas, kuris atitinka tarptautinius standartus ir iki šiol yra vienas geriausių stadionų Lietuvoje.

Nuo 1995m. iki dabar mokyklos direktorius- Viljamas Bakšys.

1996 m. mokėsi 732 mokiniai- šiuo metu mokosi ~400.

1999 m. gegužės 19 d. sprendimu mokyklai suteiktas Vytauto Didžiojo vardas.

2010 m. įkurtas mokyklos muziejus „Mokyklos istorija ir dabartis“.

2011–2012 m. m. išleista XVI – paskutinioji – abiturientų laida.

ISTORIJA
14

Dabartinėje situacijoje progimnazija neturi bendros erdvės (holo). Tik įėjus į mokyklą mus pasitinka siena ir ilgi koridoriai, kurie susidarė dėl 45° pa vidinio stačiakampio, kuriame šiuo metu yra aktų, choreografijos ir spor salės.

fasadai

ug neišnaudotų potencialių e

Potencialios rekreacinės erdvės šiuo metu yra neišnaudotos ir užspau rūbinių.

2. Sporto erdvės neatitinka modernių standartų

Mokyklos fasadai atspindi XX amžiaus architektūrą. Vyrauja reguliarus langų sudalinimas.

5. Neišnaudoti stogai

Šiuo metu progimnazijoje yra sena mažoji sporto salė (scena) ir renuo sporto salė 15x28 m, be tribūnų

Progimnazijos pastatas turi daug aukščių perkritimų ir daug laisvo potencialaus neišnaudoto ploto ant stogų.

4. Neišraiškingi
15

JINPING PRADINĖS MOKYKLOS RENOVACIJA

ARCHITEKTAI: Atelier cnS

METAI: 2022

PLOTAS: 6110 m2

VIETA: Kinija

SITUACIJA PRIEŠ RENOVACIJĄ

Mokykla yra miesto centre. Nors senamiestis turi gilų istorinį pagrindą, jo nuolatinis judrumas taip pat sukėlė daug problemų mokyklai:

1. Perėjimo erdvę priešais mokyklą užstojo du gyvenamieji pastatai, todėl lįėjimas buvo neišraiškingas Tai ne tik darė neigiamą įtaką bendrai mokyklos išvaizdai, bet ir kėlė saugumo bei eismo problemų kompleksui, atvykstant ir išvykstant mokiniams.

Siekdami gerbti ir išlaikyti esamas sklypo ypatybes, architektai visapusiš sąlygų pranašumais ir kruopščiai atliko mikrorenovaciją pasitelkiant in Atliekant daugybę atnaujinimo darbų, optimizuojamos pagrindinės nepakankamai naudojamos teritorijos ir labai pagerinama aplinkos kokyb suteikia naujo gyvybingumo, bet ir atkuria jungtį tarp mokyklos ir parko

ĮVAIRUS GEOMETRINIO MOTYVO ATKARTOJIMAS

Dėmesys palaipsniui nukrypo nuo siekio išspręsti visas problemas iki Architektai kaip atspirties tašką pasirinko arkų motyvą. Vadovaujantis skirti prisitaikyti prie skirtingos aplinkos ir spręsti skirtingas problem įterpiami į esamą situaciją, atkuriant tvarką tarp pastatų ir parodydami teritorijoje

o pagrindinis perėjimas priklausė tik nuo lauko laiptų, todėl judėjimas tarp jų - labai nepatogus.

Įterpiant „adaptyvių“ blokų seriją, lauko erdvės atgaivinamos ir į komple patirtis. Arka prie įėjimo įrengta siekiant jį paversti įtraukesniu Stogeliai prieglobstį lauko veiklai ir sustiprinti uždarumo jausmą. Suprojektuoti pasiekiamumą ir išryškinti kopimo į kalnus patirtį Tarp žaliųjų erdvių studentams tyrinėti ir mokytis natūralioje aplinkoje Šie intarpai atlieka mokymosi erdvių funkcijas

omple udojam ilgą ą traktuojamas kaip automobilių stovėjimo aikštelė Esant prastam sporto aikštynų pasiekiamumui, tai rodo, kad pertraukos tarp užsiėmimų metu trūksta veiklos erdvių.

2
16

SHENZEN FUQIANG PRADINĖS MOKYKLOS KINIJOJE RENOVACIJA

ARCHITEKTAI: People’s Architecture Office

METAI: 2021

PLOTAS: 11190 m2

VIETA: Kinija

Naujasis mokyklos kompleksas padvigubina pradinio pastato dydį ir suteikia aukštos kokybės išsilavinimą bei naujovišką mokymąsi prieinamą daugia studentų. Projektas sujungia senus mokyklos pastatus, specialų STEAM švietimo pastatą ir naujas klases bei patalpas į vientisą visumą. Puikus Fuqiang mokyklos edukacinis paveldas išlieka, nes kompleksa atnaujinamas, kad atitiktų naujos kartos poreikius.

Siekiant įkvėpti smalsumą ir aistrą tyrinėti, mokykla sukurta remiantis „hibridinės erdvės “ idėja Erdvė atlieka „trečiojo mokytojo“ vaidmenį ir yra neatsiejama mokinio ugdymo dalis Įvairios programos ir veiklos yra sugretintos trimis aspektais, kad būtų pasiūlyti nauji ryšiai skirtinguose lygmenyse Pavyzdžiui, standartinės klasės, specialios klasės ir sporto laukai yra greta vienas kito, kad būtų palaikoma tarpdisciplininė sąveika. Pirmajame aukšte esančios bibliotekos studentai gali žiūrėti į spektaklius teatre ir užsiėmimus rūsio aukšto sporto salėje.

Sodai ant stogo, vidutinio dydžio kiemai ir nedidelės terasos yra skirtingos lauko mokymosi erdvės, kuriose galima rengti įvairaus dydžio susirinkimus ir tenkinti skirtingus mokymosi poreikius Plačios cirkuliacijos zonos ir laiptai, kurie kartu yra ir sėdimos vietos, yra neformalios erdvės, kuriose galima sutalpinti įvairias veiklas ir programas. Mažos sėdimos vietos taip pat yra integruotos į fasadą, kad studentams būtų suteikta individuali erdvė.

Šis dizainas padeda studentams mokytis, suteikdamas galimybę susisiekti su realiu pasauliu, susiejant studijas ir realaus gyvenimo patirtį Vidaus ir lauko erdvės susilieja viena į kitą ir yra traktuojamos kaip mokymosi erdvės Tai leidžia studentams palaikyti ryšį su lauke Želdynai yra integruoti į miestelį ir paskirstomi horizontaliai ir vertikaliai visoje mokykloje, kad mokiniai liktų arti gamtos ir mokytųsi iš jos.

17

PRADINĖS UŽSIENIO KALBŲ MOKYKLOS KINIJOJE RENOVACIJA

ARCHITEKTAI: Atelier cnS

METAI: 2021

PLOTAS: 19210 m2

VIETA: Kinija

Mokykla yra Longjiang mieste, Shunde. Mokyklą supa daugybė tankių kaimų, kurie yra tipiški ir simboliški Perlo upės deltoje. Mokyklai plėsti yra griežtai ribojamas žemės plotas, o pasiūlos ir paklausos prieštaravimas miestelyje yra labai ryškus Siekiant patenkinti augančius kokybiško ugdymo poreikius, renovacijos metu pavyksta pilnai išplėsti esamą sklypą kompleksui ir kiek įmanoma pagerinti erdvės išnaudojimą, kad būtų pakankamai erdvių lauko veiklai ir padidėtų sklasių skaičius nuo 22 iki 42.

Projektas yra Shunde, "Vandens mieste" , kur upių tinklas yra tankiai apsu pritaikė besitęsiančią ir ištisinę struktūrą erdvėse po sporto aikšte problemas Vidinės erdvės yra sugrupuotos kaip plaukiojančios salos, Kaip pagrindinis srautas, koridorius jungia ir „Studijų salą “ , ir „Veiklos s tekantis vanduo Be to, vidinės erdvės yra išdėstytos tam tikru k ekspozicijos zona, nukreipta į išorę, ir sukurti įvairias mikro erdves stude sienas, tapybos sienas, nedidelius podiumus ir knygų kampelius. Srau praturtina erdvių įvairovę po sporto aikštynu ir žymiai pagerina apšvietimo bei

Reprezentatyviose pastato vietose naudojamas natras fasadas, kad žmonėms būtų suteiktas lengvumo pojūtis.

Pakėlus sporto aikštę iki 4,65 m, apačioje sukuriamos lankstesnės erd patalpas ir erdves dideliems renginiams Pirmajame aukšte esantis 300 esanti sporto aikštelė vėliau tampa skirtingomis, bet viena kitą papildančiomis esančios sporto aikštelės pasiekiamumas yra sujungtas ištisiniais koridoriais ne tik išsprendžia prieinamumo tarp sporto aikštelių problemą, bet erdvėse.

18

SVETOZAR MARKOVIĆ MOKYKLOS SERBIJOJE REKONSTRUKCIJA

ARCHITEKTAI: a2arhitektura

METAI: 2017

PLOTAS: 1200 m2

VIETA: Serbija

Naujas, vieno aukšto, priestatas atnaujina esamą pradinės mokyklos pastato pajėgumą vienam aukštui esamose ribose. Naujos kokybės kūrimas, atsižvelgiant į esamą architektūrą, naudojant labai ribotą biudžetą. Naujai suprojektuota pastato dalis suprojektuota moderniai, maksimaliai gerbiant funkciją, formą ir esamo objekto medžiagiškumą.

Priestato architektūrinė ir urbanistinė koncepcija pasižymi kruopščiu esamos ir naujai projektuojamos dalies funkcijų ir formų superpozicija, kartu išsaugant jos identitetą ir pasiekiant naują architektūrinę vertę. Autoriai ypatingą dėmesį skyrė naujai projektuojamo tūrio derinimui su esamomis pastato estetinėmis ir struktūrinėmis savybėmis, siekiant funkcijos ir formos vienovės, atsižvelgiant į tai, kad naujai projektuojama pastato dalis aiškiai parodo šiuolaikinę architektūrinę išraiška.

Siekiant labiau pabrėžti naujai suprojektuotą pastato dalį, ši yra atskirta nuo esamos horizontalia detale išilgai per visą perimetrą, taip parodydamos aiškų architektų požiūrį į originalią architektūrinę raišką. Iš kitos pusės, vienintelė intervencija į esamą pastato dalį buvo atlikta dėl plytų apdailos, atsižvelgiant į kad laikui bėgant jis buvo nudažytas kelis kartus, paskutinį kartą tamsiai ruda, todėl originalios tekstūros ir spalvos grąžinti nebuvo įmanoma. Atsižvelgiant į tai ir į mokyklos padėtį ( ji yra šalia Neimaro parko), architektai nusprendė įvesti naują, ryškiai žalią toną.

Dviejų esamų pastato sparnų skerspjūvyje per esamą ir naujai suprojektuotą mokyklos struktūrą suformuojamas naujas atriumas. Tokiu būdu suteikiamas naujas dienos šviesos šaltinis, taip pat leidžiantis vertikaliai susisiekti per visą pastato konstrukciją (rūsys, pirmas aukštas, pirmas ir antras aukštas), jungiantis seną ir naują pastato dalis.

Tūris, kuriam priklauso biblioteka ir pirmas aukštas salė apdirbimu skiriasi nuo likusio darbo pastatą, įrengiant dvigubą fasadą, ir tokiu būdu jis leidžia maksimaliai patekti į dienos šviesą ir yra sukurtas erdvi ir stimuliuojanti erdvė studentams likti ir dirbti. Pirmasis fasadas, racionaliai apdirbtas, o antrasis pagamintas iš perforuotos plokštės, leidžia dalinį šėšeliavimą vidinėms patalpoms.

19

TARTU ANNELINNA GIMNAZIJOS ESTIJOJE RENOVACIJA

ARCHITEKTAI: Sirkel ja Mall

METAI: 2020

PLOTAS: 9050 m2

VIETA: ESTIJA

Tartu Annelinna gimnazija (TAG) yra didžiausia Tartu mokykla, kuri buvo baigta 1983 m., 2020 buvo renovuota ne tik mokyklos estetinė išraiška, tačiau kartu rekonstruotos vidaus erdvės, mokyklos aplinka.

Renovacijos metu Kauno prospekte 68 esančiame pastate rekonstruotos klasės, erdvi fojė ir bibliotekos zona, rūbinės, dailės ir technologijų kabinetai, sporto salės, kelios erdvės aplink pastatą, kur mokiniai gali leisti laiką pertraukų tarp pamokų metu, buvo pastatyti Atnaujintos mokyklos lauko erdvės suteikia mokiniams kuo daugiau galimybių judėti, o U formos mokyklos pastato kieme pastatyta scena su laipteliais ir laipiojimo bei slydimo aikštele priešais ją Kiemo teritorijoje taip pat buvo įrengta natūralios žolės futbolo aikštė su penkių metrų aukščio tvora.

20
užtikrina ekonomiškesnį pastato šildymą ir efektyvų vėdinimą.

mokyklos pastatas yra į pietvakarius, nutolęs, kad būtų

s vietai specifinį charakterį Šią savybę pabrėžia pastato do konstrukcijos detalumas.

rytus-vakarus Horizontali prieiga prie klasių yra nukreipta į skirtingais lygiais. Įėjimas yra tiesiai prieš esamą Studio Molière

fasado plokštės ir aptarnavimo patalpos yra aliuminio ugančiomis tekstilinėmis žaliuzėmis su automatiniu ir rankiniu aliuminio daugiasluoksnėmis plokštėmis, įtrauktomis į angas tiliniu tinkleliu.

KONTRASTAI TRAUKIA VIENAS KITĄ

XIX amžiaus bandymas atverti senąją jojimo mokyklą atsispindi naujajame mokyklos pastate Jis naudojamas pakartotinai ir pritaikytas šiuolaikiniu būdu Šis kontrastų panaudojimas – naudojant skirtingas technologijas, statybos metodus, medžiagas ir energijos technologijas – taip pat išreiškiamas per senojo pastato atspindį naujos mokyklos fasade. Šis efektas pasikeičia vos sutemus, kai mokyklos pastatas apšviečia senąją teatro studiją.

Atsižvelgiant į numatytų darbų metu atliktus konstrukcinius pakeitimus, pastato naudingieji plotai sumažėja Statybinės priemonės, apimančios ne tik griovimą, užtikrina ir padidina esamos konstrukcijos laikomąją galią. Rąstinių lubų pakeitimas latako lygyje į mišrias medines ir gelžbetonines perdangas padidina pastato erdvinį standumą ir užtikrina reikiamą priešgaisrinę apsaugą. Esant poreikiui, esamų perdangų lygyje bus įkomponuotos gelžbetoninės grotos, kurios sutvirtins kai kuriuos mūrinius stulpus.

Naujasis pastatas suprojektuotas kaip gelžbetoninis pastatas, kurio plokščios perdangos išklotos ant šratbetonio stulpų, o gelžbetoninės sienos – vertikalių prieigų lygyje

tvakarinės išorinės oridoriaus aip išsikišusios lubos.

21

O BJ EK TAS M ETAI PLO TAS

JINPING PRADINĖ

MOKYKLA 2022 61 1 0 KONTRASTAS RENOVACI JA

FROELICHER

GIMNAZIJA

PRANCŪZIJOJE

SHENZEN FUQIANG

PRADINĖ MOKYKLA

KINI JOJE

201 5 5440 PRISITAIKYMAS REKONSTRUKCI JA

• NAUJAS ANT SENO

• PRIESTATAI

• KEIČIASI ESTETINĖS SAVYBĖS

• NAUJAS ANT SENO

• KEIČIASI ESTETINĖS SAVYBĖS

• NAUJINAMI VERTIKAL ŪS RYŠIAI

2021 1 1 1 90 KONTRASTAS RENOVACI JA

• NAUJAS ANT SENO

• PRIESTATAI

• KEIČIASI ESTETINĖS SAVYBĖS

• ANTRAS FASADAS

• FASADAS PATENKA Į INTERJERĄ

• KURIAMOS BENDROSI OS ERDVĖS

• ATVERIAMA Į GAMTĄ

• ATNEŠAMA DAUGIAU ŠVIESOS

• NAUJINAMI VERTIKAL ŪS RYŠIAI

• KURIAMOS BENDROSI OS ERDVĖS

• ATVERIAMA Į GAMTĄ

• ATNEŠAMA DAUGIAU ŠVIESOS

VOKIEČIŲ

MOKYKLA PIETŲ KORĖJOJE

201 6 1 50 PRISITAIKYMAS REKONSTRUKCI JA

• KEIČIASI ESTETINĖS SAVYBĖS

RENOVACI JA • PRIESTATAS

• KEIČIASI ESTETINĖS SAVYBĖS

• NAUJINAMI VERTIKAL ŪS RYŠIAI

• KURIAMOS BENDROSI OS ERDVĖS

• ATNAUJINAMAS FUNK CIJŲ

IŠDĖSTYMAS

• NAUJINAMI VERTIKAL ŪS RYŠIAI

• KURIAMOS BENDROSI OS ERDVĖS

• ATNAUJINAMAS FUNK CIJŲ

• KONTRASTAS (NAUJAME PASTATE)

• PRIESTATAI

• KEIČIASI ESTETINĖS SAVYBĖS

• ANTRAS FASADAS

IŠDĖSTYMAS

• NAUJINAMI VERTIKAL ŪS RYŠIAI

• KEIČIAMAS KLASIŲ IŠDĖSTYMAS

SVETOZAR MARKOVIC MOKYKLOS

SERBI JOJE

201 7 1 200 PRISITAIKYMAS REKONSTRUKCI JA

• NAUJAS ANT SENO

• PRIESTATAS

• ANTRAS FASADAS

• KEIČIAMAS KLASIŲ IŠDĖSTYMAS

• KURIAMOS BENDROSI OS ERDVĖS

• ATNAUJINAMAS FUNK CIJŲ

IŠDĖSTYMAS

XINSHA PRADI NĖ

MOKYKLA KINIJOJE 2021 37000 KONTRASTAS RENOVACI JA

• NAUJAS ANT SENO

• PRIESTATAI

• KEIČIASI ESTETINĖS SAVYBĖS

• ATNAUJINAMAS FUNK CIJŲ

IŠDĖSTYMAS

• KURIAMOS BENDROSI OS ERDVĖS

• ATVERIAMA Į GAMTĄ

ANALOGŲ ANALIZĖS APIBENDRINIMAS
(
O M PO ZI CI NI AI
DAI Y PATY BĖS K AI P K I TO STRUK TŪRA ( M ETO DAS) K AI P K EI ČI AM A VI DAU S STRUK TŪRA
m²) K
M ETO
MOKYKLA PORTUGALIJOJE 201
VOKIEČIŲ
0 4500
• PRISITAIKYMAS (ESAMAM PASTATE)
PRADIN
U
SIENIO KALBŲ MOKYKLOS KINI JOJE 2022 1 921 0 KONTRASTAS RENOVACI
ĖS
Ž
JA
NAUJAS ANT SENO
22

TARTU ANNELINA GIMNAZIJA ESTIJO JE

GRANTO VIDURINĖ

MOKYKLA JAV

2020 9050 PRISITAIKYMAS RENOVACI JA

• KEIČIASI ESTETINĖS SAVYBĖS

• KURIAMOS BENDROSI OS ERDVĖS

• ATNEŠAMA DAUGIAU ŠVIESOS

• NAUJINAMA INFRASTRUKTŪRA

201 7 27220 PRISITAIKYMAS RENOVACI JA

• NAUJAS ANT SENO

• PRIESTATAI

NATHAN HALE

GIMNAZIJA RENOVACI JA

PRISITAIKYMAS RENOVACI JA

• NAUJAS ANT SENO

• FASADAS PATENKA Į INTERJERĄ

• KURIAMOS BENDROSI OS ERDVĖS

• ATNEŠAMA DAUGIAU ŠVIESOS

• IŠNAUDOJAMI VI DINIAI KIEMAI

• ATVERIAMA Į GAMTĄ

• KURIAMOS BENDROSI OS ERDVĖS

• ATNEŠAMA DAUGIAU ŠVIESOS

• ATNAUJINAMAS FUNK CIJŲ

IŠDĖSTYMAS

• STATOMAS NAUJAS KOMPLEKSAS SU DAUGIAU FUNKCIJŲ

• BUVUSI SALĖ PAVERČIAMA BENDRA MOKYKLOS ERDVE

• NEKEI ČIAMA

PRANCŪZŲ

GIMNAZIJA AUSTRIJOJE

201 6 3591 KONTRASTAS RENOVACI JA

• KEIČIASI ESTETINĖS SAVYBĖS

• ANTRAS FASADAS

• FASADAS PATENKA Į

INTERJERĄ

• KURIAMOS BENDROSI OS ERDVĖS

• ATNAUJINAMAS FUNK CIJŲ

IŠDĖSTYMAS

• NEKEI ČIAMA

LEONARDO DA

VINČI GIMNAZI JA

PRANCŪZIJOJE

201 7 34080

PRISITAIKYMAS

REKONSTRUKCI JA

• NAUJAS ANT SENO

• FASADAS PATENKA Į

INTERJERĄ

• ANTRAS FASADAS

• PRIESTATAS

• KURIAMOS BENDROSI OS ERDVĖS

• ATNEŠAMA DAUGIAU ŠVIESOS

• ATNAUJINAMAS FUNK CIJŲ

IŠDĖSTYMAS

• NEKEI ČIAMA

COURTLANDO GIMNAZIJA JAV

LICK-W IMERDING GIMNAZIJA JAV

201 9 1 71 31

PRISITAIKYMAS RENOVACI JA

• ANTRAS FASADAS

• PRIESTATAS

2020 4690

PRISITAIKYMAS RENOVACI JA

• NAUJAS ANT SENO

• KEIČIASI ESTETINĖS SAVYBĖS

• KURIAMOS BENDROSI OS ERDVĖS

• ATNEŠAMA DAUGIAU ŠVIESOS

• KURIAMOS BENDROSI OS ERDVĖS

• ATNEŠAMA DAUGIAU ŠVIESOS

• ATNAUJINAMAS FUNK CIJŲ

IŠDĖSTYMAS

• NEKEI ČIAMA

FUW EN PRADINĖ

MOKYKLA

KONTRASTAS REKONSTRUKCI JA

• NAUJAS ANT SENO

• KEIČIASI ESTETINĖS SAVYBĖS

• PRIESTATAS

• FASADAS PATENKA Į INTERJERĄ

• KURIAMOS BENDROSI OS ERDVĖS

• ATNEŠAMA DAUGIAU ŠVIESOS

• NAUJINAMI VERTIKAL ŪS RYŠIAI

• NEKEI ČIAMA

• NEKEI ČIAMA

23

ANALOGŲ ANALIZĖS APIBENDRINIMAS ( NAUJA STATYBA)

O BJ EK TAS M ETAI PLO TAS ( m²) SANTY K I S SU APLI N KA Y PATY BĖS

VILNIAUS BALSIŲ PROGIMNAZIJA 2006 1 1 400 KONTRASTAS NAUJA STATYBA

MOUNT SI HIGH

MOKYKLA

AKADEMIJOS

VIDURINĖ

MOKYKLA

201 9 360000 PRISITAIKYMAS NAUJA STATYBA

SPRENDI NI AI VI DAUS STRUK TŪRAI SPRENDI NI AI SPO RTO ERDVĖM S

• KURIAMOS DAUGIAFUKCĖS ERDVĖS

• ATNEŠAMA DAUG ŠVIESOS

• ATNEŠAMA DAUG ŠVIESOS

• KURIAMOS LANKŠČIOS ERDVĖS

• KURIAMOS ATVIROS LAUKO ERDVĖS

• VIDAUS SPORTO ERDVĖ

• SILPNAS RYŠIS SU IŠO RE

• MAŽAI NATŪRALIOS ŠVIESOS

TANGCEHENGO

UŽSIENIO KALBŲ PRADINĖ MOKYKLA

KINCANGO ŠIUOLAIKINĖ

IKIMOKYKLINĖ

ĮSTAIGA

201 7 41 98 KONTRASTAS NAUJA STATYBA

• VERTIKALŪS RYŠIAI

• EKSPLOATUOJAMI STOGAI

• KURIAMI VIDINIAI KIEMAI

• UŽDARA ERDVĖ

2022 23000 KONTRASTAS NAUJA STATYBA

• LAISVOS ERDVĖS

• ATVERIAMA Į GAMTĄ

• KURIAMOS DAUGIAFUKCĖS ERDVĖS

• NĖRA VIDAUS SALĖS RYŠIO SU IŠORE

• ATVIROS LAUKO ERDVĖS

2022 1 651 2 KONTRASTAS NAUJA STATYBA

• KURIAMI VIDINIAI KIEMAI

• KURIAMOS BENDROSI OS ERDVĖS

• KURIAMOS ATVIROS LAUKO ERDVĖS

YDALIR MOKYKLA 2020 8400 PRISITAIKYMAS NAUJA STATYBA

• ATVERIAMA Į GAMTĄ

• KURIAMOS TYLOS ZONOS

• KURIAMI ATVIRI VIDINI AI KIEMAI

• ATVIRA BENDRUOMENEI

QUZHOU HINHUA PRADINĖ MOKYKLA 2022 371 82 KONTRASTAS NAUJA STATYBA

AIKO MOKYKLA 2021 951 5 KONTRASTAS NAUJA STATYBA

• ATSKIRIAMA NUO APLINKOS

• STIPRRŪS SUSISIEKIM O RYŠIAI

• KURIAMI ATVIRI VIDINI AI KIEMAI

• INTEGRUOTA SU GAMTINE APLINKA

• ATNEŠAMA DAUG ŠVIESOS

• FUNKCIJŲ ATSKYRIMAS

• KURIAMOS ATVIROS LAUKO ERDVĖS

• NĖRA SPORTO ERDVIŲ

MOKYKLOS IR LAISVALAIKIO VEIKLOS CENTRAS

2020 3571 PRISITAIKYMAS NAUJA STATYBA

• EKSPLOATUOJAMI STOGAI

• KURIAMOS ATVIROS KLASĖS

• KURIAMI ATVIRI VIDINI AI KIEMAI

• ATNEŠAMA DAUG ŠVIESOS

• NĖRA RYŠIO SU IŠORE

• UŽDARA ERDVĖ

VIKTORIJOS PARKO AKADEMIJA 2022 8621 KONTRASTAS NAUJA STATYBA

• ATVERIAMA Į GAMTĄ

• ATNEŠAMA DAUG ŠVIESOS

• KURIAMOS ATVIROS LAUKO ERDVĖS

24

REINOLDI

BENDRO JO

LAVINIMO

MOKYKLA

SPORTO IR KLASIŲ

PAVILIONAS

2020 5300 PRISITAIKYMAS NAUJA STATYBA

• KURIAMOS LANKŠČIOS ERDVĖS

• KURIAMOS ATVIROS KLASĖS

• RYŠYS SU IŠORE

• NĖRA SPORTO ERDVIŲ

ŠV JURGIO

KOLEDŽO

GIMNAZIJA

201 7 9000 KONTRASTAS NAUJA STATYBA

• KURIAMOS DAUGIAFUKCĖS

ERDVĖS

• RYŠYS SU IŠORE

• LABAI STIPRUS RYŠY S SU IŠORE

• ATNEŠAMA DAUG ŠVIESOS

UBERLINGENO MIESTELIO

MOKYKLOS

SPORTO CENTRAS

? 7600 PRISITAIKYMAS NAUJA STATYBA

• EKSPLOATUOJAMI STOGAI

• KURIAMOS DAUGIAFUKCĖS

ERDVĖS

• MAŽAI NATŪRALIOS ŠVIESOS

• MAŽAS RYŠYS SU BENDRUOMENE

2020 5600 KONTRASTAS NAUJA STATYBA

• KURIAMOS DAUGIAFUKCĖS

ERDVĖS

• RYŠYS SU IŠORE

• LABAI STIPRUS RUŠIS SU IŠORE

• ATNEŠAMA DAUG ŠVIESOS

DULW ICH MOKYKLOS LABORATORIJA

201 6 4400 PRISITAIKYMAS PRIESTATAS

• KURIAMOS DAUGIAFUKCĖS

ERDVĖS

• ATNEŠAMA DAUG ŠVIESOS

• NĖRA SPORTO ERDVIŲ

INTRI NSIC MOKYKLA 201 4 PRISITAIKYMAS NAUJA STATYBA

• KURIAMOS DAUGIAFUKCĖS

ERDVĖS

• VERTIKALŪS RYŠIAI

• MAŽAI NATŪRALIOS ŠVIESOS

• NĖRA RYŠIO SU IŠORE

25

IŠVADOS IR PASTEBĖJIMAI

Siekiama atrasti jungčių ne tik horizontaliame lygmenyje tačiau ir tarp erdvių vertikaliai.

Didelis prioritetas skiriamas patogiam judėjimui patalpų viduje ir tarp kompleksų pastatų.

Pasitelkiant priestatus stengiamasi kurti tinkamą funkcinį scenarijų ir patogiau skirstyti judėjimo srautus pastato viduje

Siekiama tiek vidaus tiek išorės erdvių prieigas paversti įtraukiomis universalaus dizaino principais.

Daugiausiai pasitelkiama priestatų ir rekonstrukcijos principus siekia mokymuisi ir popamokiniam užimtumui

Esant galimybei yra siūlomos erdvės skirtos mokymuisi ar rekreacinėms kiemeliai, intarpai, terasos.

Akcentuojama galimybė kurti daugiafunkces patalpas ir suteikti prieigą nariams.

Prioritetizuojamos atviros bendros erdvės suburiančios mokinius.

Daugiausiai analoguose sutinkami sprendiniai atsižvelgia į lauko ir vidaus erdvių suliejimą, integraciją.

Akcentuojamas gamtos ir šviesos svarba vaikų savijautai ir gero mokymosi užtikrinimui.

Projektuose stengiamasi išgauti kiek įmanoma daugiau saulės šviesos šaltinių Atverti erdves į gamtinę aplinką.

Renovacijos atvejais dažniausiai gerbiama senoji architektūra, siekiama

Stengiamasi atkartoti arba imituoti originalų pastato medžiagiškumą.

SIekiant išryškinti ir pabrėžti pastato funkciją naudojmi drasūs išraiš ryškios spalvos.

Renovacijos ir rekonstrukcijos metu dažnai kreipiamas dėmesys į susidariusi kitas funkcijai aktualias porblemas, siekiama jas išspręsti.

Visada atsižvelgiama į esamą pastato kontekstą, siekiama arba prie jo pri

Pasitelkiant naujas technologijas pritaikomi fasado šiltinimo ir apdailos tik estetinę reikšmę, tačiau padidina energinį efektyvumą ir sumažina šildymo ar

ANALOGŲ ANALIZĖS
26

JURBARKO VYTAUTO DIDŽIOJO PROGIMNAZIJOS RENOVACIJOS

PROJEKTO TIKSLAI

ATNEŠTI ŠVIESĄ IR ERDVĘ

ATVERTI ERDVĘ Į GAMTĄ

TOBULINTI VIDAUS STRUKTŪRĄ

XX A. ARCHITEKTŪRAI SUTEIKTI ŠIUOLAIKINĘ

ARCHITEKTŪROS KOKYBĘ

27

Atnaujintas pastatas kaip mokyklos širdis: Esamas mokyklos pastatas, kuris buvo pastatytas 1995 metais, bus atnaujintas išsaugant jo architektūrinę vertę ir pritaikant jį šiuolaikiniams mokymosi poreikiams. Tai bus šviesi, moderni ir inovatyvi erdvė, skatinanti bendradarbiavimą, kūrybiškumą ir šiuolaikišką ugdymą.

Gamtos integracija per žalią kalną: Siekiant suteikti mokiniams ypatingą mokymosi aplinką, mokyklos centrą sujungiame su dideliu, žaliu kalnu. Kalnas tampa gamtos oaze mokyklos viduje, suteikiant galimybę eksperimentuoti, tyrinėti gamtos reiškinius ir puoselėti ekologinį sąmoningumą. Čia atsiranda vietos ekologinėms sodo ir gamtos pamokoms, fiziniam aktyvumui, taip pat nuotykių ir išraiškos galimybėms.

Sinergija tarp architektūros ir natūralių elementų: Renovyojant esamą pastatą ir integruojant gamtinę išraišką - kalną, sieksime sukurti sinergiją tarp mokyklos pastato ir natūralios aplinkos. Estetika, architektūros detalių ir augalų harmonija prisidės prie bendro vientisumo, kuris skatins mokinių žingeidumą, kūrybiškumą ir aktyvumą.

Dabar mokyklos viduryje įstatytas tūris su sporto, choreografijos ir renginių salėmis. Šis tūris užima potencialią erdvę mokyklos viduje, blokuoja šviesą ir vaizdą visuose aukštuose.

Siekiant atverti vaizdą ir šviesą sporto salės tūris yra pašalinamas, jo vietoje kuriamas didelis vidinis kiemas ir bendra vieša erdvė, kuri gali būti naudojama renginiams.

Pašalinus sporto funkciją iš pagrindinio mokyklos pastato atsiranda galimybė išplėsti fizinio ugdymo programą ir pasiūlyti ne tik didesnę, profesionalioms rungtynėms tinkamą sporto salę, tačiau ir mokomąjį baseiną.

Siekiant naujai atsiradusį tūrį sėkmingai įlieti į esamą struktūrą pasitelkiami gamtiniai motyvai. Kuriamas kalnas, kuris tolygiai išeidamas iš esamo mokyklos pastato jungia(kuria jungtį) visas bendras erdves su aplinkine gamta.

Esamo mokyklos tūrio išraiška išlaikoma ir vertinama, o naujo priestato moderni architektūra prideda architektūrinės vertės bendrai išraiškai.

Koncepcija
28

tvarkomos jų prieigos.

Renovuojant mokyklą yra koreguojamas jos išplanavimas, atsiranda daugiau bendrų erdvių, atnaujinamos klasės, įkuriama dailės mokykla. Prie mokyklos pastato yra pastatomas sporto centras. Sporto centre atsiranda šiuolaikinius reikalavimus atitinkanti sporto salė, taip pat mažoji salė pradinių klasių mokiniams. Įrengiamas 5 takelių baseinas. Sporto centras ir mokykla sujungiami per rūsį, kuriame įrengimos persirengimo patalpos.

Taip pat projekte yra įrengiami eksplotuojami stogai. Nuo mokyklos pusės kuriamos atviros erdvės su lauko klasėmis, amfiteatras, o į stadiono pusę įrengimos tribūnos.

Pagrindinis patekimas į sklypą projektuojamas Rytinėje sklypo dalyje, iš Vytauto Didžiojo gatvės, kuris yra skirtas patekimui į mokyklą. Šioje vietoje yra formuojami takai, bei ..Kiss and ride” sustojimo vieta, skirta

Dar vienas patekimas į sklypą yra projektuojamas Šiaurinėje sklypo dalyje, iš Mokyklos gatvės, kuris yra skirtas sporto centrui. Šioje vietoje yra projektuojama automobilių stovėjimo aikštelė sporto centro ar

Teritorija aplink stadiona yra sutvarkoma, yra integruoti dviračių bei pėščiųjų takai su poilsio zonomis, bei lauko stalo teniso stalais.

Šiaurinėje sklypo dalyje prie mokyklos yra projektuojamos saugios ir šiuolaikiškos vaikų žaidimų aikštelės. Rytinėje sklypo dalyje integruojamos pavėsinės poilsiui ir lauko klasių užsiėmimams.

Pietinėje sklypo dalyje prie mokykos, yra kuriama atvira erdvė skirta renginiams. Šioje vietoje įrengiamos poilsio zonos, suoliukai, bei prie įėjimo į skypą dviračių saugykla. Tarp mokyklos ir sporto centro yra kuriama lauko scena su atviru amfiteatru.

29
Esama situacija Projektuojama situacija

yra atviras, stogo nuolydis suformuotas būtent į jį, tam, kad būtų išspręstas vandens nutekėjimas. Surinktas vanduo vamzdžiais keliauja į rūsyje esančią techninę patalpą, kurioje įrengti rezervuarai, vandens rinkimui. Lietaus vanduo yra filtruojamas ir panaudojamas pastato eksplotaciniams poreikiams įgyvendinti, tokiems kaip san. mazgo vandens poreikiams patenk-

Mokyklos ir sporto centro erdvės projektuojamos taip, kad atitiktų visus saugos ir evakuacijos sprendinius, laikomasi pagrindinių gaisrinės saugos reikalavimų. Visuose pastatuose yra numatomos evakuacinės laiptinės, vietomis numatomi keliai išėjimui į lauką. Patalpų durys projektuojamos evokuacijos kryptimi. Vietomis įrengiamos priešgaisrinės durys ir langai. Laiptų maršų plotis visur yra ne mažesnis nei 1200mm neįskaitant turėklų. Laiptų nuolydis 1:2. Minimlus koridorių plotis- 1500m. Prie pastatų gaisrinės automobilis gali įvažiuoti iš Šiaurinės ir Rytinės sklypo dalių.

Atliekos yra šalinamos jas rūšiuojant. Šalia sklypo yra įrengti atskiri

Renovuojamoje mokykloje ypač didelis dėmesys yra skiriamas akustikai. Akustika mokykloje yra labai svarbi. Geras garso sklaidos ir absorbcijos lygis užtikrina geresnį mokymąsi, supratimą ir koncentraciją. Triukšmas gali sutrikdyti mokinių gebėjimą girdėti ir suprasti, todėl reikia tinkamai izoliuoti ir kontroliuoti garso sklaidą. Geri akustiniai sprendimai padeda sukurti palankią mokymosi aplinką ir yra ypač svarbūs specialiems poreikiams turintiems mokiniams. Bendrose erdvėse yra įrengiami garsą sugeriančios medinės akustinės sienelės, prie garso slopinimo taip pat prisideda minkšti baldų audiniai. Klasės įrengiamos taip, kad į jas ir iš jų garsas neįšsklistų.

Pastatas yra aprūpinamas šiluma prisijungiant prie centrinių Jurbarko

Renovuojama teritorija yra glaudžiai susijusi su apsupta gamta, kuri daro didelę įtaką sprendiniams. Projektuojant stengiamasi išnaudoti kuo daugiau gamtos išteklių, praturtinant natūralią aplinką. Sklypas yra apželdinamas skirtingų rūšių augalais. Žaidimų aikštelės, lauko klasės, poilsio zonos yra apsodinamos medžiai, kurie sukuria apsauga nuo perkaitimo, didelio vėjo. Ant mokyklos stogo yra įrengiama atsinaujinantis energijos šaltinis- saulės elektrinė. Sporto centro stogas yra pilnai apželdinamas, kuriamas kalno

Sklype stengiamasi naudojamos kuo natūralesnes medžiagas, medžio

Renovuojamame pastate yra įrengiai rezervuarai antriniams lietaus vandens

30

Pritaikymas specialiųjų poreikių žmonėms

Pastatas yra rekonstruojamas taip, kad būtų patogiai naudojamas ir prieinamas žmonės su negalia. Pritaikyti mokyklą neįgaliesiems yra svarbu užtikrinti visų mokinių lygiavertę prieigą prie švietimo. Tai apima tiek fizinę, tiek ir informacinę prieigą. Visuose aukštuose yra įrengiami liftai tiek mokyklos korpuse, tiek sporto centro. Projektuojami koridoriai- ne siauresni nei 500mm. Kiekviename aukšte yra įrengiami sanitariniai mazgai žmonėms su negalia, kurių durų plotis ne siauresnės nei 1m pločio, bei atsidaro evakuacijos kryptimi į patalpų išorę. Rusyje tarp sporto centro ir mokyklos įrengiama rampa. Visas spoto centro stogas nuo mokyklos kiemelio yra prieinamas neįgaliesiems, jiems suteikiamas judėjimas rampa, kurio nuolydis ne didesnis nei 8,3%. Sklype yra numatytos neįgaliųjų automobilių parkavimo vietos.

Atsižvelgiama taip pat ir į turintiems negalią dėl regos sutrikimo: įrengiamos norodos, kabinetų numeriai tinkamo didžio, taip pat tinkamu kontrastu pažymėti paviršiai (stiklinės durys, kontrastingomis juostomis pažymėti laiptai ir t. t.).

Projektuojant atsižvelgiama ir į negalią dėl klausos ir įvairiapusio raidos sutrikimo. Taktininės dangos, kurias liesdami a silpnaregiai savarankiškai gali susiorientuoti vidaus ar lauko erdvėje.

Taip pat yra numatoma saugi erdvė, sensoriniai kambariai kuriuose vaikai gali nusiramiti, pailsėti, saugiai atsigauti ir po kurio laiko grįžti į sau įprastą aplinką.

31
Pastato vizualizacijos 32
33 Pastato vizualizacijos
Sklypo planas 34
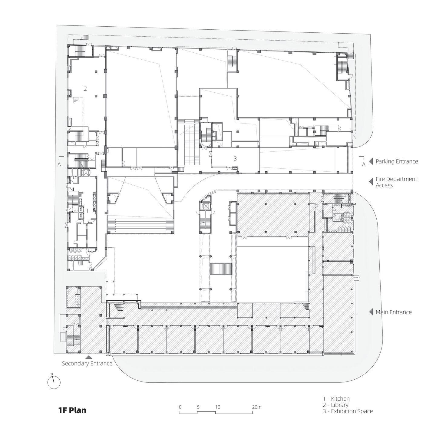
-1 aukšto planas 35 2 3 4 5 6 8 9 10 11 12 2 3 4 5 6 7 8 9 10 11 12 8% 8% 8% K A B C D E G F H J 2 2 0.01 0.02 0.03 0.04 0.05 0.06 0.07 0.14 0.10 0.08 0.11 0.12 0.13 0.09 0.15 0.16 0.17 0.18 0.19 0.20 0.21 0.22 0.23 0.24 0.56 0.57 0.58 0.60 0.59 0.25 0.26 0.27 0.28 0.29 0.30 0.31 0.32 0.33 0.34 0.35 0.36 0.37 0.38 0.39 0.40 0.41 0.44 0.42 0.43 0.46 0.45 0.47 0.50 0.48 0.49 0.55 0.54 0.53 0.52 0.51 -2.700 -3.600 -4.500 -4.500
1 aukšto planas 36 K A B C D E G F H J 2 3 4 5 6 8 9 10 11 12 2 3 4 5 6 8 9 10 11 12 1 1 2 2 +0.500 -4.500 ±0.000 +0.500 -0.700 1.01 1.02 1.03 1.04 1.05 1.07 1.06 1.08 1.14 1.09 1.12 1.13 1.10 1.11 1.15 1.16 1.18 1.20 1.21 1.22 1.24 1.25 1.26 1.27 1.29 1.30 1.31 1.32 1.34 1.33 1.35 1.36 1.37 1.38 1.39 1.40 1.41 1.42 1.43 1.44 1.45 1.46 1.47 1.48 1.49 1.50 1.51 1.17 1.28 1.19 1.23
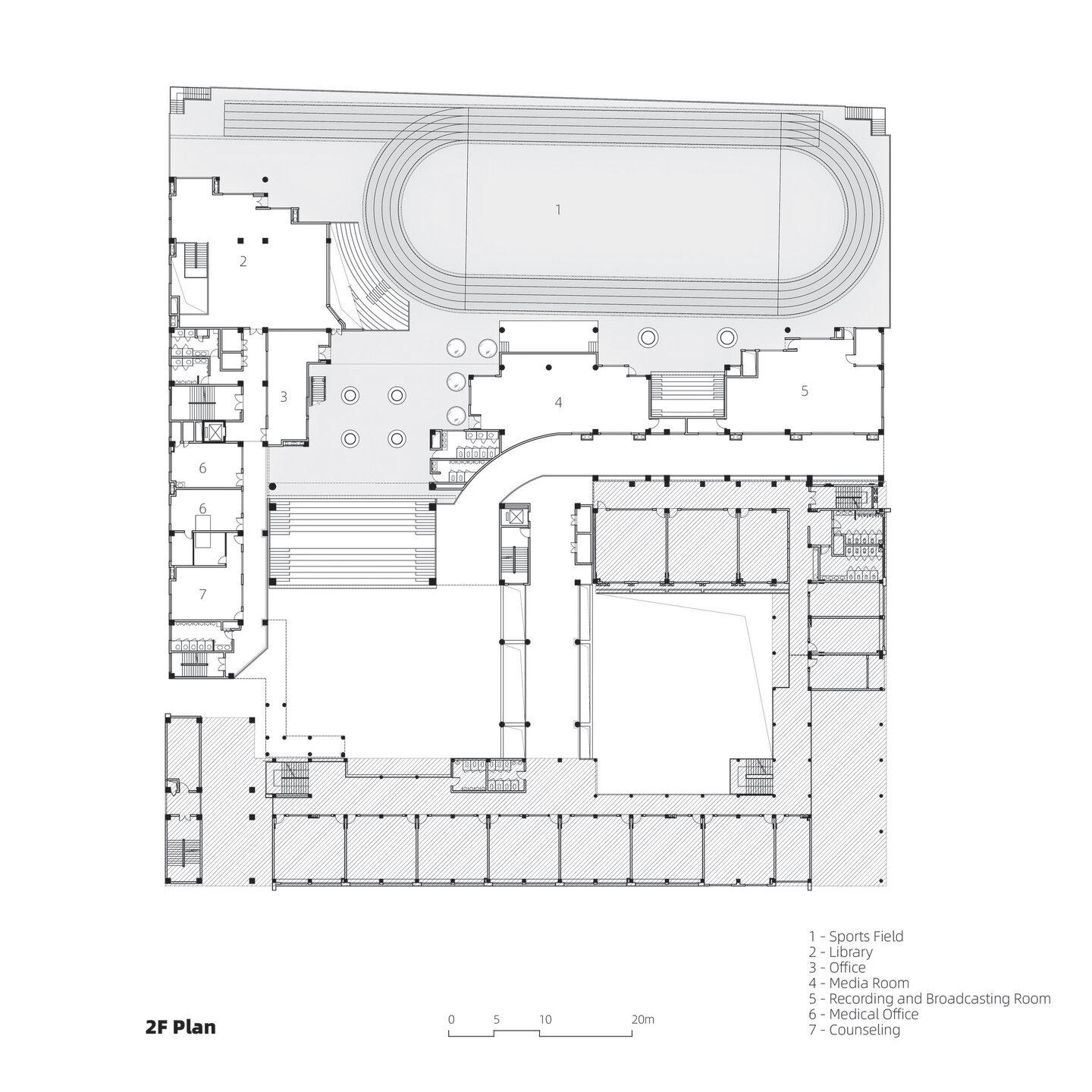
2 aukšto planas 37 2 3 4 6 7 8 9 10 11 12 K A B C D E G F H J 1 2 2 2 3 4 5 6 7 8 9 10 11 12 2.02 2.01 2.03 2.04 2.05 2.07 2.06 2.08 2.09 2.10 2.11 2.12 2.13 2.14 2.15 2.16 2.17 2.19 2.18 2.20 2.21 2.22 2.23 2.24 2.25 2.26 2.27
3 aukšto planas 38 2 3 4 5 6 7 8 9 10 11 12 K A B C D E G F H J 1 1 2 2 2 3 4 5 6 7 8 9 10 11 12 3.02 3.01 3.03 3.04 3.05 3.07 3.06 3.08 3.09 3.10 3.11 3.12 3.13 3.14 3.15 3.16 3.17 3.19 3.18 3.20 3.21 3.22 3.23 3.24 3.25 3.26 3.27
Stogo planas 39 K A B C D E G F H J 2 3 4 6 7 8 9 10 11 12 1 2 2 2 3 4 5 6 7 8 9 10 11 12
Pjūvis 2-2 40 Šiaurinis fasadas Pietinis fasadas +0,0 +9,1 +10,3 +4,5 -4,5 -5,80 -4,5 -2,3 +0,0 -2,7 +0,5 -0,7 ±0,0 +11,3 +7,10 +3,8 -3,60 Pjūvis 1-1 +7,1 +3,80 -2,7 +5,4 +2,1 -1,2 -0,7 +11,3 +3,4 +0,5 ±0,0 +3,8 +10,30
41 Programa 0.09 0.10 0.11 0.12 0.13 0.14 0.15 0.16 0.17 0.18 0.19 0.20 0.21 0.22 0.23 0.24 0.25 0.26 0.27 0.28 0.29 Baseino dušai Instruktoriaus persirengimo kambarys Instruktoriaus patalpa Inventorinė Techninė patalpa Baseinas Inventorinė Pagalbinė patalpa Inventorinė Trenerių patalpa Trenerių persirengimo kambarys Trenerių persirengimo kambarys Trenerių patalpa Techninė patalpa Sporto salė Koridorius Mažoji sporto salė Laiptinė Persirengimo kambarys Inventorinė Persirengimo kambarys 34,98 20,05 24,26 50,26 85,32 425,76 27,44 27,44 56,00 28,00 21,84 21,83 28,00 75,60 1 425,90 169,62 455,84 31,96 44,63 35,92 44,63 0.30 0.39 0.40 0.41 0.42 0.43 0.44 0.45 0.46 0.47 0.48 0.49 0.50 0.51 0.52 0.53 0.54 0.55 0.56 0.57 0.58 0.59 0.60 Inventorinė Persirengimo kambarys Persirengimo kambarys Persirengimo kambarys Pagalbinė patalpa Pagalbinė patalpa Pagalbinė patalpa Pagalbinė patalpa Pagalbinė patalpa Laiptinė Pagalbinė patalpa Pagalbinė patalpa Pagalbinė patalpa Pagalbinė patalpa Persirengimo kambarys Persirengimo kambarys Persirengimo kambarys Persirengimo kambarys Laiptinė Pagalbinė patalpa Pagalbinė patalpa Pagalbinė patalpa Šaudykla 35,92 47,50 50,59 50,21 26,04 33,78 49,55 32,70 32,50 33,07 64,21 23,21 45,82 95,26 51,39 51,05 51,39 51,39 15,00 16,65 14,97 65,28 116,67 Iš viso : 5217,42 A 1.09 1.10 1.11 1.12 1.13 1.14 1.15 1.16 1.17 1.18 1.19 1.20 1.21 1.22 1.23 1.24 1.25 1.26 Koridorius Konstrukcinių medžiagų (medžio) dirbtuvės Konstrukcinių medžiagų (metalo) dirbtuvės Siuvimo dirbtuvės Kūrybinės dirbtuvės FabLab Mokomoji virtuvė Virtuvės patalpos Valgykla Laiptinė San. mazgai Psichologo kabinetas Psichologo kabinetas Psichologo kabinetas Patalpa užsiėmimams grupėmis Socialinio darbuotojo kabinetas Socialinio darbuotojo kabinetas Socialinio darbuotojo kabinetas Konferencijų kabinetas m 2 1 9 6 4 41,80 0 230,35 163,84 68,62 67,15 67,15 67,12 85,68 347,60 415,34 31,62 33,99 12,09 12,05 11,98 26,62 12,60 11,81 12,69 34,66 1.27 Mokytojų kambarys 67,69 1.28 1.29 1.30 1.31 1.32 1.33 1.34 1.35 1.36 1.37 1.38 1.39 1.40 1.41 1.42 1.43 1.44 1.45 1.46 1.47 1.48 1.49 1.50 1.51 Bedros erdvės Direktoriaus pavaduotojos kabinetas Direktoriaus pavaduotojos kabinetas Direktoriaus pavaduotojos kabinetas Direktoriaus kabinetas Sekretorės kabinetas Raštinė Budinčiojo kabinetas Tambūras Visuomenės sveikatos specialisto priežiūros patalpa Biblioteka Kino/teatro klasė Muzikos klasė San. mazgai Laiptinė San. mazgai San. mazgai Pradinukų mokymo klasė Pradinukų mokymo klasė Užklasinio ugdymo klasė Pradinukų mokymo klasė Pradinukų mokymo klasė Laiptinė Rūbinė 1 626,40 12,74 11,39 11,73 19,42 14,18 51,38 7,55 8,83 7,61 199,19 73,57 68,71 31,87 30,97 26,25 22,21 48,93 48,84 64,77 50,30 48,29 30,02 209,47 Iš viso : 5163,51
1 AUKŠTO PATALPŲ EKSPLIKACIJA Nr Pavadinimas Plotas, m2
42 3.06 3.07 3.08 3.09 3.10 3.11 3.12 3 13 3.14 3 15 3.16 3.17 3.18 3.19 3.20 3.21 3.22 3.23 3.24 3.25 3.26 3.27 kabinetas Koridorius Kūrybinių dirbtuvių kabinetas Kūrybinių dirbtuvių kabinetas Specialiojo pedagogo kabinetas Kūrybinių dirbtuvių kabinetas Kūrybinių dirbtuvių kabinetas Kūrybinių dirbtuvių kabinetas Kūrybinių dirbtuvių kabinetas Kūrybinių dirbtuvių kabinetas Kūrybinių dirbtuvių kabinetas San. mazgai Laiptinė San. mazgai San. mazgai Chemijos kabinetas Fizikos kabinetas Laboratorijos kabinetas Gamtos mokslų kabinetas Gamtos mokslų kabinetas Laiptinė Bendroji erdvė 49,15 536,74 22,03 50,82 23,66 45,56 26,05 49,20 61,24 52,29 49,45 22,94 30,43 26,60 21,06 49,68 47,55 64,66 49,92 48,72 29,77 163,50 Iš viso : 1738,42 2.09 2.10 2.11 2.12 2.13 2.14 2.15 2.16 2.17 2.18 2.19 2.20 2.21 2.22 2.23 2.24 2.25 2.26 2.27 Mokymo klasė Logopedo kabinetas Mokymo klasė Logopedo kabinetas Mokymo klasė Mokymo klasė Mokymo klasė Mokymo klasė San. mazga Laiptinė San. mazga San. mazga Mokymo klasė Mokymo klasė Mokymo klasė Mokymo klasė Mokymo klasė Laiptinė Bendros erdvės 48,92 24,03 47,86 22,70 49,82 61,62 52,72 49,58 22,94 35,46 26,63 21,18 50,40 48,37 64,48 50,33 48,13 33,84 309,75 Iš viso :

Ant stogo įrengiama saulės elektrinė, kuri padeda sumažinti elektros išlaidas iki 90% , taip pat yra tvarios energijos šaltinis. Jos veikimas remiasi saulės šviesos energijos panaudojimu, kuris yra nesibaigiantis ir nekenksmingas aplinkai. Taip pat yra suteikiama galimybė ateityje įrengti elektromobilių įkrovimo stoteles.

Erdvėms kuriose trūksta natūralios saulės šviesos, yra naudojami Velux lygaus stiklo stogo langai. Tokie langai suteikia maksimalią dienos šviesą, turi puiku energijos efektyvumą, bei patrauklų dizainą. Taip pat įmontuojamos markizės pagrindinėje konstrukcijoje, tarp stiklo paketo ir išorinio stiklo, kurios netrukdo dienos šviesos patekimui, dizainui ir vaizdui.

Gaisro aptikimui patalpose naudojamas ARITECH adresuojamas 2000-osios serijos gaisro aptikimo ir signalizavimo sistemas (gamintojas Carrier Fire & Security). Naujam sporto centrui naudojamas 2X serijos sistema. Į abi siūlomas sistemas galima jungti tiek šilumos, tiek optinius dūmų detektorius, rankinius gaisro pavojaus mygtukus, o tai pat papildomus įėjimų/išėjimų modulius bei gęsinimo sistemos valdymo įrangą, leidžiančią be pagrindinės sistemos funkcijos – registruoti ir paskelbti gaisro pavojaus signalą – įrengti pastatų ventiliacijos, priešgaisrinių durų ir kitos pastato automatikos valdymą gaisro atveju. Kadangi aukštuminiuose pastatuose gaisro metu labai aktuali evakuacijos problema, naudojant laisvai programuojamą logiką, galima sudaryti evakuacijos kelių paskelbimo, gaisrinių durų blokavimo algoritmus, priklausančius nuo gaisro kilimo vietos, tuo būdų valdant evakuacijos metu atsirandančius žmonių srautus ir sumažinant iki minimumo galimas spūstis ir panikos kilimą.

Objektų vaizdo stebėjimo sistema naudojama Carrier Fire & Security, kas užtikrina sistemos vientisumą ir vaizdo stebėjimo sistemos aparatinės įrangos suderinamumą protokoliniame lygmenyje su išvardintomis saugos sistemomis bei įgalina panaudoti vieningą integruojančią valdymo ir vizualizacijos programinę įrangą Advisor Management.

Naujai projektuojamame sporto centre yra numatomos aliuminio konstrukcijos. Taip pat integruojama langų ir durų sistemos, kurios kombinuoja funkcionalumą, estetiką ir energijos efektyvumą.

Sporto centro fasade yra panaudojami aliuminiai fasadų dangteliai, kurie tvirtinasi priealiminių langų. Šie dangteliai atlieka estetinę funkciją fasadui – užtikrina išorės aliuminio fasado išskirtinumą ir padailina fasado konstrukcijas bei apsaugo pastatą nuo pernelyg intensyvių saulės spindulių. Aliuminiai fasadų dangteliai yra ilgaamžis sprendimas pastatui, nes gaminami iš patvaraus aliuminio, kuris tarnauja daug metų.

Visame baseino komplekse, sporto centro persirengimo patalpose yra naudojamos SCHOMBURG kompleksiniai siūlymai. Aukštos kokybės hidroizoliacija ir plytelių klijai užtikrina užtikrina sistemos atsparumą esant intensyviam vandens poveikiui.

Šviesa atlieka itin svarbų vaidmenį mokyklose, ji daro didelę įtaką mokymosi aplinkai. Biownlight yra apšvietimo sistema, naudojanti LED šviesos šaltinius, kurie imituoja natūralią dienos šviesos spektrą. Ši technologija gali turėti daugybę teigiamų poveikių mokymosi procesui, gali padidinti mokinių energiją, koncentraciją ir nuovargio mažėjimą. Tai gali padėti gerinti mokymosi rezultatus ir bendrą mokinių gerovę. Tad visame projekte naudojami išmanūs LED šviestuvai BIOWNLIGHT.

Lauko erdvėje yra numatomi inovatyvūs ir aukštos kokybės lauko muzikos instrumentai. Yra įrengiamos garsų instaliacijos, kurios sukuria muzikines įtraukiančias erdves. Tokių instrumentų pritaikymas mokyklos teritorijoje skatina muzikinį ugdymą, socialinę sąveiką ir malonumą per savo garsų ir ritmo instrumentus.

Projekte yra įrengiami nauji automatizuoti elektros sprendimai. Taikomi produktai, kurie gerina energijos efektyvumą, saugumą ir valdymą. Įrengiami nauji elektros skydeliai jų komponentai kurie užtikrina patikimą elektros energijos tiekimą mokyklos pastatuose. Tai apima srovės skaitiklius, apsauginius įrenginius, nuotolinio valdymo ir stebėsenos sistemas. Projekte taip pat numatomi energetikos valdymo sistemos, kurios leidžia stebėti ir valdyti elektros energijos vartojimą. Šios sistemos padeda identifikuoti energijos taupymo galimybes, optimizuoti energijos tiekimą ir sumažinti energijos sąnaudas.

Renovuojamo pastato stogas yra renovuojamas pasitelkiant TN ROOF BRM

CONCRETE FIX 01 sistemą, kuri yra tinkama mokyklos stogui. Naujai projektuojamam pastato stogui yra naudojama TN ROOF GREEN sistema, kuri yra skirta žaliam eksploatuojamam stogui.

Visi projektuojami takeliai yra pasirenkami iš betono mozaikos įmonės. Šios trinkelės yra išskirtinės dėl savo estetinio dizaino ir aukštos kokybės. Projektuojant takelius yra pasirinktos dvi skirtingos trinkielių rūšys, jas derinant prie esamos aplinkos. Taip pat yra integruojami borteliai, kurie ne tik suteikia estetinį akcentą, bet ir padeda apibrėžti takelio ribas ir užtikrinti tvirtumą. Borteliai derinami su pagrindinėmis trinkelių spalvomis.

Planuojant lauko erdves naudojamos Darom.lt reklamuojamos prekės, tokios kaip : dviračių saugojimui skirtos stoginės, interaktyvios lauko žaidimų aikštelės, lauko klasių stoginės bei poilsio zonų suoliukai.

Atnaujinant mokykos fasadą yra naudojamos Baumit medžiagos. Pasirenkamas natūralios spalvos fasado tinkas. Pasirinktas tinkas turi pralaidumo savybes,

43
kurios leidžia orui cirkuliuoti tarp pastato sienos ir tinko.

Turn static files into dynamic content formats.

Create a flipbook
Issuu converts static files into: digital portfolios, online yearbooks, online catalogs, digital photo albums and more. Sign up and create your flipbook.