Šiluva – Šiluvos daugiafunkcinis kompleksas piligrimams

Page 1

STRUCTUM ,,IŠMANUSIS MIESTAS 10“

BENDRUOMENINĖ ARCHITEKTŪRA: ŠILUVOS DAUGIAFUNKCIS KOMPLEKSAS PILIGRIMAMS

COMMUNAL ARCHITECTURE. MULTIFUNCTIONAL COMPLEX FOR PILGRIMS IN ŠILUVA

VILNIAUS GEDIMINO TECHNIKOS

UNIVERSITETAS

Architektūros fakultetas

V kurso studentė Diana Kirkliauskaitė Darbo vadovas: prof. Gintaras Čaikauskas

Aiškinamasis raštas

Vilnius, 2024

1.2.4

2 TURINYS PAVEIKSLŲSĄRAŠAS ................................................................................................................ 5 LENTELIŲ SĄRAŠAS 11 SUMMARY IN ENGLISH 12 ĮVADAS ................................................................................................................................. 14 DARBO TEMA 14 BENDRUOMENINĖARCHITEKTŪRA: ŠILUVOS DAUGIAFUNKCIS KOMPLEKSAS PILIGRIMAMS............ 14 TYRIMO OBJEKTAS.......................................................................................................................... 14 TYRIMO PROBLEMATIKA,AKTUALUMAS 14 DARBO UŽDAVINIAI......................................................................................................................... 15 DARBO METODIKA 15 1. TIRIAMOJI DALIS ...................................................................................................................... 16 1.1 PILIGRIMYSTĖ IR VISUOMENĖ 16 1.1.1 Sąvokų apibrėžtys 16 1.1.2 Tradicinės ir modernios piligrimystės palyginimas ............................................ 16 1.1.3 Piligrimystės ir paprastojo turizmo lyginimas 18 1.1.4 Piligriminių kelių prasmė / esmė, piligriminiai keliai Lietuvoje ........................ 19 1.1.5 Piligrimystės raida ir Lietuvos kontekstas .......................................................... 20 1.1.6 Šventųjų vietų rūšys............................................................................................ 21 1.1.7 Piligrimystės suvokimas skirtingose religijose ................................................... 22 1.1.8 Piligriminių kelionių apsistojimo vietos Lietuvoje 25 1.2 Santykis su religine architektūra ................................................................................... 27 1.2.1 Religiniai pastatai, kaip ženklai – orientyrai miesto urbanistinėje struktūroje 27 1.2.2 Šviesa 28 1.2.3 Vanduo 29
Minimalizmas 30 1.2.5 Vertikalumas..........................................................................................................................................................31 1.2.6 Gamta 32 1.2.7 Akustika 33 1.2.8 Simbolika................................................................................................................................................................34 1.3 Tiriamosios dalies išvados 35 1.4Analogų studija............................................................................................................................ 37 1.4.1 Szentkút piligrimų centras Vengrijoje 37 1.4.2. Røldal piligrimų centro idėjinis pasiūlymas Norvegijoje 41 1.4.3 Šv. Kotrynos Sienietės vienuolynas (Santa Catalina de Siena)........................... 45

2.3.1

3 1.4.4 Svečių namai privačiame sklype Zarasų rajone 50 1.4.5 Piligrimų namai Estijoje............................................................................................. 54 1.4.6 Analogų susisteminimas 59 1.4.7 Analogų analizės išvados 60 1.5 Meninis tyrimas........................................................................................................................... 61 1.5.1 Eksperimentinis tyrimas 63 1.5.3 Išvados........................................................................................................................ 68 2. DAUGIAASPEKTĖ VIETOS TYRIMŲANALIZĖ.................................................................... 69 2.1 Projekto vieta 69
Istorinė miestelio raida pagal a. Miškinį .............................................................................. 70 2.3 Judumas 73
Tarpmiestinis susisiekimas automobiliu..................................................................... 73
Dviračių trasos 74 2.3.3 Infrastruktūros būklė 75 2.4 Inžinerinė infrastruktūra....................................................................................................... 76 2.5 Gamtinis karkasas 77 2.5.1 Reljefas....................................................................................................................... 77 2.5.2 Reljefo išklotinės........................................................................................................ 78 2.6 Regioniniai parkai ir draustiniai........................................................................................... 79 2.7 Želdiniai................................................................................................................................ 81 2.8 Tradicinė žemaičių architektūra 82 2.8.1 Tradicinės žemaičių sodybos ir išplanavimo bruožai................................................. 82 2.8.2 Numas 83 2.8.3 Troba 83 2.8.4 Medžiaginiai ypatumai............................................................................................... 84 2.9 Saugomos kultūros paveldo teritorijos pagal KPD 85 2.9.1 KPD gretimybės.................................................................................................................................................86 2.10 Šiluvos identitetas............................................................................................................... 87 2.11 Svarbūs pastatai.................................................................................................................. 88 2.12 Svarbios viešosios erdvės................................................................................................... 89 2.13 Esamas užstatymas 90 2.14 Piligriminiai keliai.............................................................................................................. 91 2.15 Šiluvos miesto vaizdai iš paukščio skrydžio 92 2.16 Sklypo fotofiksacijos 95
Vietos analizės išvados..................................................................................................... 100
2.2
2.3.2
2.17

3.2.

3.6

4 3. PROJEKTINĖ DALIS 101 3.1 Urbanistinio tvarkymo variantai.................................................................................. 102 3.1.1 Pirmoji idėja: miesto vartai 103
Antroji idėja: žalias ratas 103
3.1.2
Architektūrinės formos paieškos................................................................................ 104 3.2.1 Pirmoji idėja: sena – nauja 104 3.2.2Antroji idėja: augimas..................................................................................... 105 3.3.3 Trečioji idėja: ašys .......................................................................................... 106 3.3 endra informacija 107
Projekto idėja............................................................................................................... 107
Kvartalo sutvarkymo siūlymas 110
3.4
3.5
Sklypo ir teritorijos sprendiniai................................................................................... 112 3.6.1 Judėjimas 112 3.6.2 Viešos erdvės 113 3.6.3 Dangos ............................................................................................................ 113 3.7 Funkciniai – planiniai sprendiniai 114 3.8 Architektūriniai sprendiniai......................................................................................... 117 3.9 Fasadų sprendiniai....................................................................................................... 117 3.10 Interjero sprendiniai .................................................................................................. 118
Konstrukciniai sprendiniai......................................................................................... 119 3.12 Detali projekto programa 120 3.13 Techniniai ekonominiai rodikliai............................................................................... 122 4. BENDROS IŠVADOS 123 LITERATŪROS IR ŠALTINIŲ SĄRAŠAS 128 NR. 1 MAKETO M 1:500 FOTOFIKSACIJOS NR. 2 SUMAŽINTAS PLANŠETAS
3.11

PAVEIKSLŲ SĄRAŠAS

1 pav. Šv. Jokūbo kelias Europoje. (Camino de Santiago) 19

2 pav. Camino Lituano piligrimų keliai. (Camino Lituano) 20

3 pav. Šv. Jokūbo keliai Lietuvoje. (Camino Lituano) 20

4 pav. Švč. M. Marijos su Kūdikiu paveikslas. (Kauno arkivyskupija, 2017)

5 pav. Islamo piligrimystės centras - Meka. Šaltinis en.wikipedia.org --------------------------------- 22

6 pav. Kumb Mela festivalis prie Gangos upės. (Singh, R.P.B., Haigh, M., 2015) 23

7 pav. Palapinių miestelis piligrimams šalia Kumbh miesto. (Singh, R.P.B., Haigh, M., 2015) 24

8 pav. Šventyklos kalnas su Jeruzalės šventykla - žydų piligriminiu centru. (Britannica, 2023) 24

9 pav. Vakarinė atraminė Jeruzalės šventykos siena - žymiausia piligriminio lankymo vieta. (Britannica, 2023)

10 pav. Kurtuvėnų parapijos namai. (Camino Lituano, 2023)

11 pav. XIX a. istorizmo laikotarpio Dautarų dvaras. (Camino Lituano, 2023)

12 pav. Salų dvaro kultūros ir laisvalaikio rezidencija. (Camino Lituano, 2023)

13 pav. Sunny nights kempingas Gataučiuose. (Camino Lituano, 2023)

14 pav. Panekelpių kaimo sodyba. (Camino Lituano, 2023)

15 pav. Gaižuvėlės nakvynės nameliai. (Camino Lituano, 2023)

16 pav. TadaoAndo vandens koplyčios vaizdas iš vidaus. (Zekkeijapan, 2019)

17 pav. Vandens koplyčios eksterjeras. (Zekkeijapan, 2019)

18 pav. Espinazo del Diablo apžvalgos taškas Meksikoje. (Archdaily, 2010)

19 pav. Cerro del Obispo apžvalgos aikštelė San Luis Potosi Meksikoje - vertikalus kraštovaizdžio panoramos akcentas. (Archdaily, 2012) 31

20 pav. Piligriminio kelio ženklas ant švč. mergelės marijos apsireiškimo koplyčios fasado. piligriminio kelio ženklas ant švč. mergelės marijos apsireiškimo koplyčios fasado.Autorės nuotrauka

21 pav. Šukutės kiauto (angl.k. scallop shell) ženkliukas akmeniniame grindinyje Šiluvoje priešais Švč. Mergelės MarijosApsireiškimo koplyčią.Autorės nuotrauka 34

22 pav. Pakelės kryžiai Raseiniuose Kęstučio gatvėje.Autorės nuotrauka 34

23 pav. Kryžiaus Kelias per Šiluvos šilą pradžios taškas.Autorės nuotrauka 34

24 pav. Szentkut piligrimų centras Vengrijoje, daugiafunkcis kompleksas. (Archdaily, 2015) 37

25 pav. Piligrimų centro sklypo planas. Sudaryta autorės pagal originalų brėžinį. 38

26 pav. Daugianfunkcio komplekso planas. Sudaryta autorės pagal originalų brėžinį 38

27 pav. Informacijos centro planas. Sudaryta autorės pagal originalų brėžinį------------------------- 39

28 pav. Daugiafunkcio komplekso lauko maitinimo erdvė su ažūrine fasado sienele. Sukuriamas jaukus šešėlių žaismas. (Archdaily, 2015) 39

5
21
25
25
25
26
26
26
26
29
29
31
34

29 pav. Daugiafunkcio komplekso medinių fasadų išraiška. (Archdaily, 2015)

30 pav. Informacijos centro vaizdas iš šlaito pusės. Architektūrinė išraiška atsiskleidžia draustinio pusėje. (Archdaily, 2015)

31 pav. Røldal piligrimų centro pasiūlymo maketas. (Archdaily, 2012)

32 pav. Situacijos schema. Sudaryta autorės

33 pav. Sklypo planas. Sudaryta autorės pagal originalų brėžinį. ---------------------------------------

34 pav. 3DAksonometrinis vaizdas rodantis planinę struktūrą. (Archdaily, 2012)

35 pav. Vaizdas į vidinį Santa Catalina de Siena vidinį kiemelį. (Archdaily, 2015)

36 pav. Vienuolyno lokacija Valensijos miesto atžvilgiu. Sudaryta autorės

37 pav. Vienuolyno lokacija rajono atžvilgiu. Sudaryta autorės

38 pav. Sklypo plano schema. Sudaryta autorės

39 pav. Vienuolyno aukšto plano funkcinis zonavimas. Sudaryta autorės pagal originalų brėžinį

40 pav. Pagrindinis vienuolyno fasadas iš reprezentacinės erdvės. (Archdaily, 2015)

41 pav. Vienuolyno galinio fasado vaizdas. (Archdaily, 2015)

42 pav. Vienuolyno lygios plokštumos ir langų propocijos ir dydžių santykis fasade. (Archdaily, 2015) 48

43 pav. Poilsio komplekso vaizdas iš viršaus lietuviško kraštovaizdžio panoramoje. (Heima, 2022) 50

44 pav. Situacijos schema. Sudaryta autorės 50

45 pav. Generalinis poilsio komplekso planas. Sudarytas autorės pagal originalų brėžinį 51

46 pav. Svečių namų funkcinis plano zonavimas. Sudaryta autorės pagal originalų brėžinį 51

47 pav. Svečių namų komplekso vaizdas iš viršaus į stogų konfigūraciją. (Heima, 2022) 52

48 pav. Medinės stogo apdailos ir geometrijos vaizdas iš vidaus. (Heima, 2022) 53

49 pav. Tekstūrų ir spalvų paletė interjere. (Heima, 2022) 53

50 pav. Svečių namų konstrukcinis 3D aksonometrinis vaizdas. (Heima, 2022) 53

51 pav. Pagrindinis piligrimų namų fasadas. (Archdaily, 2021) 54

52 pav. Vaizdas atvykstant į Vana-Vatseliina miestelį. Šaltinis: www.googlemaps.com 54

53 pav. Vaizdas išvykstant iš miestelio. Naujasis piligrimų centras maskuojamas masyviomis medžių lajomis. Šaltinis: www.googlemaps.com

54 pav. Generalinis komplekso planas. Sudaryta autorės pagal originalų brėžinį

55 pav. Antro aukšto funkcinis plano zonavimas šlaito viršuje. Sudaryta autorės pagal originalų

56 pav. Pirmo aukšto funkcinis plano zonavimas šlaito apačioje. Sudaryta autorės pagal originalų brėžinį

6
40
40
41
42
42
43
45
45
46
46
47
48
48
55
55
brėžinį
56
56

57 pav. Konstrukcinis pjūvis per pastatą ir pastato pozicionavimo principas šlaite. (Archdaily, 2021) 56

58 pav. Langų angų stilistinis ypatumas. (Archdaily, 2021)

57

59 pav. Eksterjero fasado Korteno apdaila. (Archdaily, 2021) 58

60 pav. Miegamosios erdvės interjeras. (Archdaily, 2021)

61 pav. Sanitarinio kambario interjeras. (Archdaily, 2021) ----------------------------------------------

58

58

62 pav. Židrijos Janušaitės druskos performansas Šiluvos aikštėje. Šaltinis: www. menopiligrimai.lt 61

63 pav.Eglės Einikytės–Narkervičienės instaliacija Prisilietimas. Dabar betoninė plytelė įkomponuota prie Šiluvos Švč. Mergelės MarijosApsireiškimo koplyčios grindinyje. Šaltinis: www. menopiligrimai.lt 61

64 pav. Interpretacinis maketas principui pavaizduoti.Autorės nuotraukos

62

65 pav. Druskos kristalai augantys taisyklinga kubo forma. 1 – linijinė, iš užaugusių kubo formos kristalų, susiformavusi struktūra; 2, 3 ir 4 – užauginta tobula kubo forma vandenyje. Autorės nuotraukos - 63

66 pav. Druskos kristalai augantys organiškomis formomis virš vandens ore. 1 – druskos keliavimas raišteliu; 2 ir 3 – druskos kauburėlių forma ir priartintas vaizdas; 2 ir 4 – druskos suformuoti organiški raštai ant indo briaunos.Autorės nuotraukos

64

67 pav. Druskos kristalų augimo procesas. 4 - užauginta struktūra; 5 - druskos kristalai užaugę tirpale, indo dugne ;6 - Formavimosi principas iš tiesių linijų į apaugusius kauburėlius.Autorės nuotraukos - 65

68 pav. Augimo procesas po 5-5.5 savaičių.Autorės nuotraukos

69 pav. Užaugintų struktūrų formos ir tipai. Autorės nuotraukos ir schemos

70 pav. Organiškas druskos kristalų augimo principas Nr. II. Autorės schema

71 pav. Geometrinis druskos kristalų augimo principas Nr. I.Autorės schema

72 pav. Sklypo lokacija miestelyje. Sudaryta autorės

73 pav. Šiluvos miesto padėtis Lietuvos atžvilgiu. Sudaryta autorės

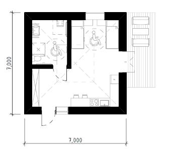
74 pav. Šiluvos miesto vystymosi schemos XV a. vid., XVII a. 7 dešimt. ir XVIII a. vid. Laikotarpiais. Sudaryta autorės pagal A. Miškinio schemas

75 pav. Vokiškas operatyvinis žemėlapis. Metai: 1912 (Lietuvos mokslų akademijos Vrublevskių biblioteka, 2016)

76 pav. Lietuviškas karinis topografinis žemėlapis buvo pagrindinis tarpukario Lietuvos topografinis žemėlapis. Metai: 1927-1940 (Lietuvos mokslų akademijos Vrublevskių biblioteka, 2016)

66

67

68

68

69

69

70

72

72

7

77 pav. Vokiškas topografinis žemėlapis „Karte des westlichen Rußlands“. Metai: 1914-1921 (Lietuvos mokslų akademijos Vrublevskių biblioteka, 2016)

78 pav. Istorinis Šiluvos miesto centras

79 pav. Šiluvos miestelio pasiekiamumas automobiliu. Sudaryta autorės

72

72

73

80 pav. Dviračių trasos išsidėstymas pro Šiluvą ir Lyduvėnus (Dviračių trasų žemėlapis, 2023 ) 74

81 pav. Dviračių trasos atkarpa Šiluvoje. Sudaryta autorės---------------------------------------------- 74

82 pav. Dviračių trasos atkarpa Šiluvoje. Sudaryta autorės

74

83 pav. Dviračių trasos ,,Miškais ir Vario kalnu" išsidėstymas (Dviračių trasų žemėlapis, 2023 ) - 74

84 pav. Planuojama pėsčiųjų ir dviračių takų plėtra pro Šiluvą. Planuojamas naujas dviračių ir pėsčiųjų takas iš Raseinių į Šiluvą. Tai leistų sujungti Raseinius ir Tytuvėnus pro Šiluvą. (Lietuvos automobilių kelių direkcija) - 75

85 pav. Ištrauka iš inžinerinių tinklų brėžinio. (Šiluvos miestelio teritorijos bendrasis planas. Sprendiniai, 2012)

86 pav. Ištrauka išArcgisApplication Lietuvos reljefo. (Lietuvos reljefas, 2012)

87 pav. 1. - vizualinis ryšys sklype su Šiluvos miestelio centru; 2.- vizualinis ryšys sklype su draustinio panorama. (Google Maps)

88 pav. Pjūvių per sklypo reljefą vietos. Sudaryta autorės

89 pav. Sklypo aukščių brėžinio ištrauka. Sudaryta autorės

90 pav. Pjūvis 1-1 per sklypą. Sudaryta autorės

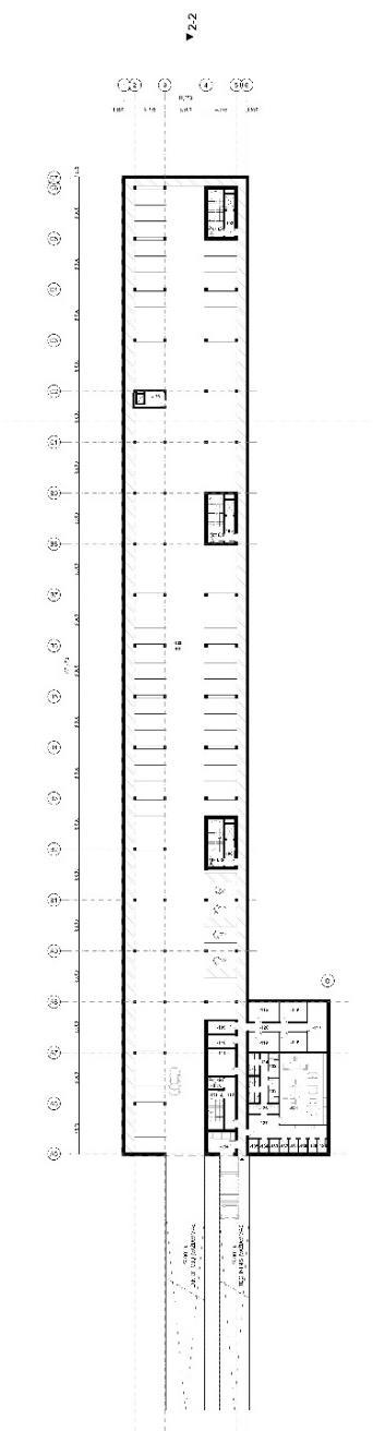
91 pav. Pjūvis 2-2 per sklypą. Sudaryta autorės

92 pav. Lietuvos zonavimas (Tradicinė Žemaičių architektūra. Pagalbinė priemonė projektuojant Žemaitijos nacionaliniame parke, 2009)

93 pav. Šiluvos miestelio padėtis regioniniame parke. (Valstybinė saugomų teritorijų tarnyba)

77

77

78

78

78

78

79

80

94 pav. Saugomų teritorijų išsidėstymas aplink Šiluvą. (Saugomų teritorijų valstybės kadastras )- 81

95 pav. Esamų želdinių būklė projektuojamame sklype. (Google Maps)

96 pav. Vaizdas į sklypą iš viršaus. (nuotrauka iš regia.lt)

81

81

97 pav. Lygiagretus projektavimas sklype (Bomblauskas, J., Burinskaitė, I., Žumbakienė, G., 2008) 82

98 pav. Laisvas projektavimas sklype (Bomblauskas, J., Burinskaitė, I., Žumbakienė, G., 2008) 82

99 pav. Numo ir trobos pastatų bruožai. Sudaryta autorės

83

100 pav. Tradiciniams žemaičių pastatams būdingi stogai. Sudaryta autorės 83

101 pav. Kultūros paveldo teritorijos Šiluvos mieste. (Kultūros vertybių registras)

102 pav. Antrojo pasaulinio karo Sovietų Sąjungos karių palaidojimo vieta. (Kultūros vertybių registras)

85

86

103 pav. Šiluvos miestelio istorinė dalis. Šaltinis: www.bernardinai.lt - 86

8
76

104 pav. Šiluvos identiteto schema. Sudaryta autorės 87

105 pav. Svarbiausių pastatų išsidėstymas mieste. Sudaryta autorės 88

106 pav. Svarbiausių viešųjų erdvių padėtis miestelio atžvilgiu. Sudaryta autorės 89

107 pav. Ištrauka iš esamo aukštingumo brėžinio. Šaltinis: www.raseiniai.lt 90

108 pav. Ištrauka iš Šiluvos miesto 2010 m. koncepcinio funkcinių prioritetų brėžinio. 90

109 pav. Piligriminių kelių schema. Sudaryta autorės pagal Šiluvos miesto paskelbtus maršrutus www.šiluva.lt tinklalapyje. 91

110 pav. Vaizdas iš paukščio skrydžio. Projektuojamo sklypo sąsajos su miestelio centru. Šaltinis:

www.baltic360.lt 92

111 pav. Vaizdas iš paukščio skrydžio į Šiluvos miestelio architektūrą. Šaltinis: www.baltic360.lt 92

112 pav. Vaizdas iš paukščio skrydžio. Turgaus aikštės padėtis miestelio atžvilgiu. Šaltinis:

www.baltic360.lt 93

113 pav. Vaizdas iš paukščio skrydžio. Gamtinių elementų padėtis miestelio atžvilgiu. Šaltinis: www.baltic360.lt 93

114 pav. Vaizdas iš paukščio skrydžio. Sklypo padėtis. Šaltinis: www.baltic360.lt 94

115 pav Sklypo esama būklė. Sudaryta autorės

116 pav. Sklypo esama būklė. Sudaryta

117 pav. Sklype esančių pastatų būklė. Sudaryta autorės

118 pav. Sklypo esama būklė. Sudaryta autorės

119 pav. Sklypo reljefo būklė. Sudaryta autorės

120 pav. Pastatų komplekso architektūrinės paieškos eskizai. Sudaryta autorės 101

121 pav. Suvestinis sklypo brėžinys. Sudarytas autorės 102

122 pav. Miesto vartų idėjos schema. Sudaryta autorės 103

123 pav. Žaliojo miesto rato – viešųjų erdvių idėja. Sudaryta autorės 103

124 pav. Sena – nauja idėjos 3D schema. Pažymėti pagrindiniai judėjimo srautai ir principinė eskizinė architektūrinė komplekso forma. Sudaryta autorės

104

125 pav. Augimo idėjos 3D schema. Pažymėti pagrindiniai judėjimo srautai ir principinė eskizinė architektūrinė komplekso forma. Sudaryta autorės

105

126 pav. Pirmasis augimo idėjos sklypo sutvarkymo variantas, kai visuomeninės paskirties pastatas numatomas arčiau Raseinių g., o gyvenamieji arčiau givenamųjų kvartalo pastatų. Sudaryta autorės 105

127 pav. Trečios idėjos 3D schema. Pažymėti pagrindiniai judėjimo srautai ir principinė eskizinė architektūrinė komplekso forma. Sudaryta autorės--------------------------------------------------106

9
95
autorės 96
97
98
99

128 pav. Pirmasis miesto mieste idėjos sklypo sutvarkymo variantas, kai visuomeninės paskirties pastatas numatomas arčiau Raseinių g., o gyvenamieji arčiau gyvenamųjų kvartalo pastatų.

129 pav. Koncepcinė idėjos schema. Sudaryta autorės 107

130 pav. Idėjos vystymas. Pastato orientacijos parinkimas. Sudaryta autorės

108

131 pav. Idėjos vystymas. Pastato dydžio, proporcijos sprendimas. Sudaryta autorės --------------108

132 pav. Idėjos vystymas. Patalpų ryšys su gamta. Sudaryta autorės

133 pav. Idėjos vystymas. Pastato architektūrinis atsakas reljefui. Sudaryta autorės

108

108

134 pav. Pastato vizualiniai ryšiai su gamta. Sudaryta autorės 109

135 pav. Trijų didžiausių salių išdėstymas pastate. Sudaryta autorės

136 pav. Gyvenamųjų namelių ir apžvalgos bokšto architektūrinė išraiška remiantis Tradicinės Žemaičių architektūros leidiniu. Sudaryta autorės

137 pav. Kvartalo situacijos planas. Sudaryta autorės

138 pav. Sklypo konfigūracijos pakeitimas. Sudaryta autorės

139 pav. Esama situacija (kairėje) ir siūlomas sprendinys (dešinėje). Sudaryta autorės

140 pav. Lankytojų (raudona punktyrinė linija) ir aptarnaujančio personalo (mėlyna punktyrinė linija) atvykimas. Sudaryta autorės

141 pav. Siūloma dviračių trasa. Sudaryta autorės 111

142 pav. Neįgaliųjų atvykimas. Sudaryta autorės

143 pav. Autobusų atvykimas. Sudaryta autorės

144 pav. Viešųjų erdvių pasiskirstymas sklype. Sudaryta autorės.Analogų šaltinis: Pinterest.com

145 pav. Naudojamų medžiagų tekstūros. Šaltinis: Pinterest.com 113

146 pav. Funkcinė pastato schema. Sudaryta autorės

147 pav. Požeminio ir pirmo aukštų planai. Sudaryta autorės

148 pav. Gyvenamųjų namelių transformavimo variantai. Sudaryta autorės 116

149 pav. Gyvenamojo namelio fasadų ir stogo apdaila. Sudaryta autorės 117

150 pav. Pagrindinio pastato fasadų apdaila. Sudaryta autorės 117

151 pav. Maitinimo salės interjero vizualizacija. Sudaryta autorės 118

152 pav. Maldų salės interjero vizualizacija. Sudaryta autorės 118

153 pav. Konstrukcinis apžvalgos bokšto pjūvis. Sudaryta autorės 119

154 pav. Apžvalgos bokšto aksonometrinis vaizdas. Sudaryta autorės 119

155 pav. Architektūrinis apžvalgos bokšto pjūvis. Sudaryta autorės ----------------------------------119

10
Sudaryta
106
autorės
109
109
110
110
111
111
112
112
113
114
116

LENTELIŲ SĄRAŠAS

1 lentelė. Tradicinės religinės ir modernios piligrimystės panašumų ir skirtumų palyginimas pagal

Dariaus Liutiko mokslinį darbą: ,,Moderni piligrimystė – skirtingų vertybių išraiška“.

2 lentelė. Analizuotų analogų susisteminimo lentelė.

3 lentelė. Automobilių stovėjimo vietų kiekio skaičiavimas požeminėje stovėjimo aikštelėje.

4 lentelė. Neįgaliųjų sėdimų vietų kiekio skaičiavimas salėse.

5 lentelė. Projektuojamo objekto programa.

6 lentelė. Projektuojamo objekto techniniai ekonominiai rodikliai.

11

SUMMARY IN ENGLISH

In the design of communityarchitecture,it isimportant totake intoaccount not only the very needs and expectations of the community for which it is being created, but also the surrounding architectural, natural, social context. Pilgrim communities are characterized by simplicity, communalism, the possession of a gathering place, a strong connection with sacred architecture, nature and the transcendental world. Therefore, the most relevant place of development in Lithuania for the project is the town of Šiluva, at the same time as a direct international gateway for pilgrimage communities around the world.

One of the main features of the projected area is its location. The projected area is not only strongly connected with the theme of the spirit of faith of the whole town, but also because of its position, on the outskirts of the town becomes the face of the whole town – the city gate. Also an important feature is the connection between the projected area and nature, since the territory offers excellent views of the Šiluva forest pine genetic reserve. Therefore, such a place is suitable for the creation of a pilgrimagecommunitycenter,because it isa quiet andnatural place,likeanintermediate stop near the most important purpose of the town's interest and pilgrimage trips – the Chapel of The Apparition and Basilica of the Nativity of the Blessed Virgin Mary.

However, in the aforementioned pilgrimage, not only the purpose of the trip is important, but also the motive of the trip itself is equally important. At the same time, it is spiritual selfknowledge, traveling through foreign lands in order to meet God, to talk to him, it is a journey during which we ourselves change, communicate with other people, go in nature, go in silence, look for answers to our own questions, solve our problems. Therefore, intermediate stops where we can stop, reflect and rest are an important point in the summation of our personal journey.

The projected complex is like a representation of the pilgrimage journey itself in the design. It includes a space for prayers to concentrate, a space for conferences – communication hall, maintaining a visual connection with nature in the catering space, meets the needs of the community and is open to foreign pilgrim communities, as it provides an opportunity to settle, has its own quiet internal public outdoor spaces and a representative space in front of the complex, responds to the relief in its architectural expression. Part of the artistic expression is supported by an artistic study that has been carried out, which emphasizes the natural aspect of the meaning of the naturally created structure of God. In this study, was created a structure of salt crystals, based on bible reading, where in Luke 14:34-35 is said that: “Salt is good; but ifthe salt has lost its flavor, how shall it be seasoned? It is neither fit for the land nor for the dunghill, but men throw it out. He who has ears to hear, let him hear!”.

12

This center is open to everyone: both individual travelers and groups of pilgrims, the needs of people with disabilities and their integration into the overall activities of the center are taken into account.

It is hoped that this project would respond to the features and needs of the pilgrimage community, strengthen the identity of the town of Šiluva, draw attention to people's perception of the inner world, and become a representative local object internationally.

13

ĮVADAS

Ryšys tarp religijos ir visuomenės yra vienas iš svarbiausių. Tūkstančiusmetų religija, turėjo didelę įtaką pačios visuomenės ir architektūros formavimuisi. Dabartiniais laikais tikėjimas savo svarbos neprarado ir yra vis dar aktualus kasdieniame mūsų gyvenime. Piligriminės kelionės, siekiančios senovės graikų civilizacijos laikus, dabar yra toks pat svarbus reiškinys visuomenėje kaip ir anksčiau. Žmonės traukia į tokias keliones dvasiniam savęs pažinimui, dėkingumui išreikšti arba fiziškai save išbandyti. Kelionė į šventas vietas dažnai užsibaigia sakralios architektūros aplankymu. Šių trijų elementų – religijos, bendruomenės ir architektūros – sąveika tampa tam tikra simboline ir dvasine patirtimi. Nepaisant šiuolaikinių pokyčių, piligrimystė egzistuoja kaip gyva tradicija, kuri daro įtaką tiek individualiai kelionei, tiek žmonių kolektyvui.

Šiame darbe dėmesys skiriamas piligrimų bendruomenės poreikių suvokimui, sakralių pastatų analizei, psichologiniam religinių erdvių poveikiui žmogaus būviui, inovatyvių projektavimo sprendimų paieškai.

Darbo tema

Bendruomeninė architektūra: Šiluvos daugiafunkcis kompleksas piligrimams

Tyrimo objektas

Tyrimo objektas – daugiafunkcės paskirties pastatai, tenkinantys tikinčiųjų bendruomenės fizinius ir dvasinius poreikius. Baigiamajame darbe analizuojama piligrimystės, kaip dvasinės žmogaus kelionės, samprata, tikinčiųjų bendruomenės ryšys su sakraliu pastatu ir jo vidinėmis erdvėmis, dvasinis žmonių poreikis turėti su tikėjimu susijusius pastatus, bendruomenės emocinis atsakas į sakralias, dvasines erdves.

Tyrimo problematika, aktualumas

Dabartiniais laikais žmonėms vis dažniau atsisukant į religiją ir grįžtant į tikėjimo kelią, piligrimystė tampa svarbiu savęs išbandymo ir pažinimo etapu. Taip pat kaip jau egzistuojančioms piligrimų bendruomenėms yra svarbu turėti savo vietą, kur būtų galima susitikti ar burtis. Todėl pagrindinė įžvelgiama problematika Lietuvos mastu yra tai, kad piligrimų bendruomenės neturi naujos statybos piligrimų centrų, orientuotų būtent tik į jų poreikius. Dažniausiai šioms bendruomenėms pritaikomi jau egzistuojantys pastatai konversijos ar rekonstrukcijos metu, kartais tik iš dalies atitinkantys keliamus bendruomenės reikalavimus. Tokios, orientuotos piligrimystei, tipologijos naujos statybos pastatų Lietuvoje nėra, kas sukelia nepatogumą ne tik vietos grupėms, bet ir atvykstantiems žmonėms iš užsienio ar kaimyninių šalių. Tokios tipologijos pastatai tarnauja juos naudojančioms grupėms, bet dažnai atsako ir į vietos identiteto paieškas.

14

Darbo tikslas

Susipažinti su piligrimystės sąvokomis, bruožais ir esminiais principais. Ištyrus ir apibendrinus atliktos analizės, analogų studijos rezultatus, pritaikyti juos projektuojant daugiafunkcį piligrimų centrą.

Darbo uždaviniai

1. Apžvelgti piligrimystės istorinę raidą, prasmę ir esmę, piligriminių kelių svarbą ir prasmę, palyginti piligrimystės sampratą su šiuolaikinio turizmo sąvoka, išanalizuoti piligrimystės sampratą kitose religijose;

2. Išanalizuoti religinės bendruomenės santykį su sakralia architektūra ir jos erdvėmis, aptarti, kokias emocijas jos sukelia;

3. Atrinkti ir išnagrinėti kokybiškus architektūrinius projektus, susijusius su religinės bendruomenės architektūra ar piligrimystės tematika;

4. Atlikti meninį tyrimą ir pritaikyti rezultatus praktinėje dalyje;

5. Atlikti pasirinktos vietos analizę;

6. Pateikti architektūrinį pasiūlymą, išsprendžiantį vietos problematiką ir atliepiantį nagrinėjamą temą.

Darbo metodika

Projekte pateikiama literatūros šaltinių apžvalga, meninio tyrimo procesas, vietos tyrimų analizė ir architektūrinio projektavimo eiga ir rezultatai. Temai išgryninti analizuojamos knygos, moksliniai straipsniai, internetiniai šaltiniai, pasitelkiamas interviu metodas.

15

1. TIRIAMOJI DALIS

1.1 PILIGRIMYSTĖ IR VISUOMENĖ

1.1.1 Sąvokų apibrėžtys

Bendruomenė – tai istoriškai susiformavusi grupė žmonių, susijusių tarp savęs gamybiniais santykiais; tai grupė, kuri turi glaudesnius ryšius tarp narių negu visuomenė; bendruomenę sudaro žmonių grupė, turinti bendras institucijas, formalią savivaldą, priklausanti didesniam socialiniam junginiui (Čiužas, 1988)

Religinė bendruomenė – asmenų grupė, siekianti įgyvendinti tos pačios religijos tikslus. (LR Religinių bendruomenių ir bendrijų įstatymas)

Piligrimystė – individuali arba kolektyvinė tikinčiųjų kelionė į šventą vietą arba tam tikrą

šventovę. Piligrimystė yra savanoriškas tikinčiųjų pasišventimo aktas, įgalinantis siekti glaudesnio ryšio su Dievu. Praktikuojama daugelio religijų, susijusi su tikėjimu, kad piligrimystė padeda įgyti

Dievo palankumo ir prisideda prie išganymo.

Piligriminė kelionė (lot. peregrinatio religiosa) – keliavimas, siekiant aplankyti vietas, turinčias religinę reikšmę. (Mokslo ir enciklopedijų leidybos centras)

Turizmas (pranc. tourisme < tour – kelionė), viena aktyvaus poilsio rūšių – laisvalaikio kelionės(nuovienosparosiki vieneriųmetų) išįprastosgyvenamosiosvietospoilsiniais,pažintiniais, pramoginiais, sveikatinimo, sporto, religiniais ir kitais tikslais. (Armaitienė, 2002)

1.1.2 Tradicinės ir modernios piligrimystės palyginimas

Gyvenant moderniais laikais piligrimystės samprata yra pasidalijusi į dvi dalis – tradicinę ir modernią piligrimystę. Tradicinė piligrimystė laikosi pradinių originalių kelionės tikslų - keliauti į vietas susijusias su religija, vedant dvasinio savęs pažinimo ir suartėjimo su Dievu, o antroji - keliauti į pasaulietines, sekuliarias vietas, atsižvelgiant į individualias žmogaus vertybes ir tikslus, nesureikšminant dvasinio aspekto. Tačiau kelionės rezultatas vis tiek išlieka konkreti lokacija.

Kadangi modernios piligrimystės samprata yra kilusi iš tradicinės, religinės piligrimystės, jos abi turi daug vienijančių ir išskiriančių bruožų. (Liutikas, 2009). Šie bruožai aptariami 1 lentelėje.

16

1 lentelė. Tradicinės ir modernios piligrimystės palyginimas. (Sudaryta autorės remiantis Liutiku, 2009)

Tradicinė religinė piligrimystė Moderni piligrimystė

• Motyvacija keliauti;

• Aiškus kelionės tikslas;

• Laisvalaikio praleidimas;

• Piniginiai aspektai;

• Didelių atstumų įveikimas;

Panašumai

Skirtumai

• Kelionės etapai – pasiruošimas, keliavimas, atvykimas, buvimas vietoje, grįžimas;

• Emocijos pasiekus kelionės tikslą;

• Įtraukti naujai suvoktas vertybes grįžus į kasdienybę;

• Unikali gyvenimiška patirtis.

Kelionės tikslas

Religinis, dvasinis

Individualus pagal gyvenimo būdą, pasaulietinis

Grupės dydis

Struktūruota, keleto arba didelė žmonių grupė

Labiau individuali, privati

Kelionės esmė

• Spręsti vidines, dvasines problemas;

• Suartėti su Dievu;

• Padėka Dievui už patirtas malones;

• Prašymas atgailos ir nuodėmių išpirkimas;

• Patirti nepatogumus, nepriteklių, iki kol pasiekiama lokacija.

• Fizinės kūno būklės išbandymas;

• Naujų vietų aplankymas;

• Asmeninis tobulėjimas;

• Populiarus laisvalaikio praleidimas.

Ritualai ir elgesys

Akcentuojamas bendras grupės elgesys, apibrėžti tradiciniai ritualai, simboliškumas

Kelionės pėsčiomis

Neapibrėžtas, laisvas, individualus, nevaržomas, pats individas jį pasirenka

Kelionės formos

Kelionės pėsčiomis, autotransportu, laivais, traukiniais

Kelionės vietos

Susijusios su religinėmis prasmėmis, lengvai apibrėžiamos, nėra daug

Gali būti individualios, kolektyvinės, sunkiai įvardijamos, daugybė

17

1.1.3 Piligrimystės ir paprastojo turizmo lyginimas

Religinės kelionės dažnai tapatinamos su turizmo samprata.Abi šios sąvokos apima bendrą tikslą – žmogaus fizinės ir dvasinės būklės atsinaujinimą dėl kasdien vykstančios rutinos. Abiem atvejais tai yra laikinas gyvenamosios vietos pakeitimas, keliavimas į naujas geografines lokacijas, naujų įspūdžių ir patirčių etapas.

Vis dėlto svarbu paminėti tai, kad šiuolaikinis turizmas labiau orientuotas į pramoginį ar pažintinį naujos vietos pobūdį, o tikroji tradicinės piligrimystės esmė susijusi su dvasiniais ir religiniais aspektais (Liutikas, 2006). Todėl turisto sąvoka apibrėžiama lengviau, paprasčiau – tai

žmogus, kuris laikinai pakeičia savo gyvenamąją vietą, keliauja pramoginiais ar pažintiniais tikslais sau patrauklioje vietoje.

Remiantis mokslininkų skirtumų tarp piligrimystės ir paprastojo turizmo aiškinimu, ryškėja pagrindiniai skirtumai:

• Turizme vyrauja smalsumo vedamas keliavimas, o piligrimystė vadovaujasi dvasinėmis nuorodomis ir labiau žiūri į tai, kaip atliekamą pareigą;

• Turizmas orientuojasi į materialų rezultatą, o piligrimystė – dvasinį;

• Turizme akcentuojama dabartis, būvis esamame laike, piligrimystėje – žiūrima į istoriją, mitus, ateities išpirkimą;

• Turizmas – dažnas eilinių atostogų pokrypis, o piligrimystė – ritualas, atliekamas tam tikrais gyvenimo ar bendruomenės sutartiniais momentais;

• Turizmas iškelia poilsio prioritetą, o piligriminėje kelionėje svarbus šventųjų pagerbimas, mažiau koncentruojamasi į asmeninius poreikius;

• Turizmas dažnai pasitelkiamas kaip išblaškymo 0nuo kasdienės rutinos metodas, piligriminio kelio metu labiau suintensyvėja kasdieniai aktualūs pojūčiai;

• Turistinėje kelionėje labiau koncentruojamasi į tikslo pasiekimą, galutinį tašką, miestų centrus, piligriminėje kelionėje – pasiekiamos miestų periferijos, aktualus kelionės procesas per visą laiką.

Galima būtų apibūdinti pačių žmonių nusiteikimą, kaip skirtingą pasaulėžiūrą propaguojančias bendruomenes. Turistai dažnai į keliones žiūri kaip į paviršutinišką ir smagią pramogą, skatinančią vartotojiškumą. O piligrimų bendruomenės siekia tyresnio ir išsamesnio suvokimo, jas veda bendras tikėjimas ir religija, tai būna nuoširdžiai savo tikėjimui atsidavusių žmonių bendruomenės, kurie nesitiki jokio materialaus atpildo, kaip tik dvasinio pakylėjimo. (Liutikas, 2006)

18

Stebint šių dienų tendencijas dažnai turizmas prilyginamas moderniai piligrimystei, tarsi religijos pakaitalas. Tačiau svarbu suvokti, kad kasdienio turizmo patiriami malonumai yra skirtinga patirtis nuo šventos kelionės siekiant dvasinio potyrio.

1.1.4 Piligriminių kelių prasmė / esmė, piligriminiai keliai Lietuvoje

Pasaulyje egzistuoja piligriminių kelių tinklas. Šv. Jokūbo kelias (isp. k. Camino de Santiago) – tai katalikų piligriminis kelias į Kompostelos Santjago katedrą, kuri yra Ispanijoje, kur tikima, jog yra palaidotas apaštalas Jokūbas (žr. 1 pav.). Tikima, kad palaikai buvo rasti 813 m. ir jie žymi piligrimystės kulto Šv. Jokūbo kelių pradžią, o XIII a. yra laikomas Šv. Jokūbo aukso amžiumi.

Populiariausiu ir tradiciškiausiu piligriminiu keliu laikomas Prancūzų kelias, kuriuo kasmet eina 60 % piligrimų. Nuo 1933 m. Šv. Jokūbo kelias įtrauktas į UNESCO Pasaulio paveldo sąrašą, tačiau

Lietuva į šį kelią įsijungė tiknuo 2016m. Lietuvoje šiopiligriminiokelioatšakosvadinamos Camino Lituano ir aptinkama vienuolika Šv. Apaštalo Jokūbo bažnyčių, kurios visos yra pažymėtos piligriminiams keliams būdinga simbolika – geltona kriauklele mėlyname fone. Sakoma, kad šis simbolis yra metafora, nes jo linijos vaizduoja skirtingus piligrimų iš viso pasaulio maršrutus, kurie vedaį vienątašką–Šventojo Jokūbo kapąSantjago de Komposteloje. Kriauklesgalima rastitarpinėse stotelėse, nukreipiančias piligrimus teisinga kryptimi. (Camino de Santiago)

1 pav. Šv. Jokūbo kelias Europoje. (Camino de Santiago)

Camino Lituano – pirmasis ir vienintelis 1000 km piligriminis kelias, paruoštas keliauti individualiomskelionėms,savarankiškai (žr.2pav.). JisjungiasiprieEuropostarptautinioŠv.Jokūbo keliųtinkloir driekiasi per visą Lietuvą. Šis kelias yra suskirstytas etapais, kurių yra net 21. Šis kelias sujungia visus etninius regionus ir yra nustatyti specifiniai keliai, kurie jungiasi prie pagrindinių piligriminių kelių, jog atokiau gyvenantys žmonės galėtų lengviau prisijungti. Svarbu suvokti, kad šis kelias yra ne tik fizinis, tačiau ir socialinis, kultūrinis, ekonominis reiškinys, prie kurio dažnai jungiasi ir vietinės bendruomenės. Šie keliautojai tampa kitų miestelių viešųjų vietų lankytojais, jie lanko bažnyčias, piliakalnius, pažintinius takus, apžvalgos bokštus ir kitas vietas. Camino Lituano

19

yra sukurtas ispaniškojo Camino de Santiago kelio pagrindu ir išvertus reikštų kelią per Lietuvą. Kiekviena šalis turi savo Camino de Santiago kelio versijas. (Camino Lituano)

2 pav. Camino Lituano piligrimų keliai. (Camino Lituano)

3 pav. Šv. Jokūbo keliai Lietuvoje. (Camino Lituano)

Šiluvos miestelis patenka į Kauno kelio atkarpą ir joje yra nužymėta kaip tarpinė Šv. Jokūbo kelio stotelė (žr. 3 pav.). Aplink Šiluvą yra įrašyti 8 skirtingų atstumų piligriminiai keliai. Nuo 8 iki 25 km. keliai, kuriuose siūloma bent 30 min. praleisti einant tyloje. „Kartais malda tampa tyli. Taiki bendrystė su Dievu gali tęstis ir be žodžių. […] Dievo akivaizdoje „rami širdis mano krūtinėj“. […]

Tyla paruošia mus naujam susitikimui su Dievu. Tyloje Dievo žodis gali pasiekti slapčiausias mūsų širdies kerteles. Tyloje mes nustojame slėpęsi nuo Dievo, ir Kristaus šviesa gali pasiekti, išgydyti ir perkeisti nettai,ko gėdijamės.“ (Taizé „Tylosvertė“,2005m.) Keliaujant ne tiksuartėjama suDievu, bet ir įsiklausoma ir apžvelgiama gamta, susipažįstama su kitų miesteliųidentitetu, aplankomi įvairūs šventi pastatai, bei kitos populiarios lokacijos, vedamos edukacinės programos, ekskursijos ir paskiriami poilsio laikai.

Tikroji ir originali piligriminių kelių prasmė – tai tarsi individuali asmens kelionė per gyvenimą, kartais asmeninio augimo ir tyrinėjimo kelionė, kartais koncentracija ir visas dvasinis žmogaus dėmesys į patį kelią, kuris, kaip tikima, nuves į susitikimą su Dievu. Šiuolaikiniais laikais

šių kelionių prasmė yra pakitusi, dažnai tai būna nuoroda ir į kažkokio materialaus atlygio siekimą, tiesiog paprastas siekis pažinti įvairius ritualus ar turistų išaukštintus objektus ar vietas, arba pasimėgavimas gamta, siekis ypatingos patirties. (Naujokaitis, 2022)

1.1.5 Piligrimystės raida ir Lietuvos kontekstas

Piligrimystės ištakos jau buvo žinomos ir senovės graikų civilizacijoje. Buvo keliaujama į įvairias šventyklas pasimelsti Dievui. Didžiausio dėmesio piligrimystė sulaukė viduramžiais, kai buvo tikima, jog tai garantuoja amžinąjį gyvenimą. Religinėms kelionėms netrukdė karai, žmones motyvavo tikėjimas šventaisiais. Tuo metu piligrimystė buvo nuodėmių išpirkimo, atgailos simbolis, kuriuo žmonės didžiai tikėjo. Vėliau XV a piligriminių kelionių sampratą pakeitė kelionės

20

panašesnės į paprastąjį turizmą, kuris suteikė daugiau malonumo ir pramogos, nei dvasinio svorio sielai.Apšvietos laikotarpiu tokias pramogines keliones keitė siekis pažinti, įgauti daugiau žinių apie pasaulį, žmonės vadinosi pasaulietiniais piligrimais, bandė suprasti senąjį pasaulį. O nuo XIX a. pabaigos iki pat XX a. pradžios atsirandantis modernus turizmas pakeitė senąjį kelionių suvokimą į paprastą laisvo laiko praleidimo idėją. (Smilgevičius, 2016)

Sunku apibrėžti tikslią piligriminių kelionių pradžią Lietuvoje, tačiau tikima, kad pirmieji

religiniai ėjimai jau vyko XVI a. pradžioje. Dar LDK laikais pirmąja piligrimine kelione laikytina kunigaikščioVytauto žmonosOnoskelionė,kai ji keliavoįVokiečiųOrdinovalstybęlankyti šventųjų relikvijų. XVII ir XVIII a. išplito religinės kelionės į šventąsias vietas, kuriose svarbiausiais buvo laikomi Dievo Motinos paveikslai, atvaizdai (žr. 4 pav.). Viena iš šių vietų buvo Šiluva, kai

1608 m. ten ant didelio akmens apsireiškė Švenčiausioji Mergelė Marija su kūdikėliu ant rankų ir ją pamatė gyvulius ganę kaimo piemenėliai (Kauno arkivyskupija, 2017) XIX a. pasiekiamas piligriminių kelionių aktualumas, žmonės leidžiasi į šias dvasines keliones fiziškai aptikti patį Dievą. Europoje vykstantys dažni Mergelės Marijos apsireiškimai dar labiau daro įtaką pradėti masinę piligriminių kelionių erą. Prie to prisideda 1917 m. Portugalijoje, Fatimoje trims vaikams apsireiškusi Dievo Motina. Todėl Lietuvoje prasideda pati gryniausia piligrimystės forma – kelionė į Kryžių kalną nuo XIX a. II pusės.

4 pav. Švč. M. Marijos su Kūdikiu paveikslas (Kauno arkivyskupija, 2017)

Sovietiniais laikais vykę draudimai keliauti į šventas vietas ne susilpnino, bet dar labiau sustiprino piligrimystės į jas tradiciją tautinėje savimonėje. Žmonijos tikėjimas ir motyvacija skatino nenutrauki kelionių ir organizuoti masines eisenas į pačią Šiluvą. Tuo metu tai buvo ne tik tikėjimo išraiška, bet ir masinis pasipriešinimo ženklas prieš okupaciją. (Baronienė, 2022)

1.1.6 Šventųjų vietų rūšys

Pasaulyje gausu įvairių šventų vietų į kurias traukia piligrimų bendruomenės. Jos gali būti skirstomos į tam tikras rūšis:

• vietos, susijusios su šventųjų garbinimu (Šiluva – Šilinės ir kt.);

• vietos, kuriose apsireiškė Šventoji dvasia (Šiluvos koplyčia prie bažnyčios – pripažinta oficialiai, Pušaloto bažnyčia, Gelvonų bažnyčia ir kt.);

• vietos, turinčios stebuklingų (dažnai gydomųjų) galių (Pivašiūnai – stebuklais garsėjantis Dievo Motinos su kūdikiu paveikslas,Aušros vartai Vilniuje ir kt.);

• vietos, susiję su religiniais įvykiais (Kryžių kalnas ir kt.)

21

Jos taip pat turi ir savo hierarchiją pasauliniu mastu ir gali būti tarptautinės, nacionalinės, regioninės ir vietinės (lokalios) reikšmės (Liutikas, 2009).

1.1.7 Piligrimystės suvokimas skirtingose religijose

Piligrimystė kitose religijose gali būti suvokiama skirtingai, turėti skirtingų kelionės tikslų ir siekti kitokiolygio dvasinioreikšmingumo. Toliauaptariami skirtingųreligijųpiligriminių kelionių tikslai ir prasmės.

Islamas. Hadžas – tai piligriminė musulmonų kelionė į šventąją Meką arba Kaabą, kurioje yra atliekamos religinės apeigos (žr. 5 pav.). Tai yra vienas iš penkių pagrindinių įsakymų, kurio kiekvienas musulmonas privalo laikytis. Šia kelione musulmonai pakartoja Pranašo Mahometo veiksmus, tarsi sekdami jo pėdomis. Pagrindiniai Hadžo – piligriminės kelionės tikslai ir vertybės: atnaujinti dvasinį įsipareigojimą savo Viešpačiui, asmeninis individualus poreikis, vidinė paieška, savęs atradimas, asmeninių nuodėmių atpirkimas, kelionės tikslo – užsibrėžtos lokacijos pasiekimas, asmeninė kelionė, asmeninis „augimas“, siekis užsitikrinti sveiką ir turiningą gyvenimą, paminėti pranašo Mahometo veiksmus. Piligrimai eina didelėmis grupėmis ir nakvoja Minoje. Mina, palapinių miestas, turi daugiau nei 100 000 palapinių su oro kondicionieriais, kurios suteikia laikiną apgyvendinimą piligrimams. Piligrimai visą dieną praleidžia melsdamiesi Minoje (The Islamic Hajj - Pilgrimage, 2007)

5 pav. Islamo piligrimystės centras - Meka. Šaltinis en.wikipedia.org

Hadžas yra tokia kelionė, kuri visada atliekama kolektyviai, grupėje. Dažniausiai susirenka beveik du milijonai piligrimų vienu metu vienoje vietoje. Hadžas iš tikrųjų yra sudarytas iš kelių etapų – mažų piligriminių kelionių, kurios turi savo atskirus pavadinimus. Pirmasis etapas – Tawaf, kuriame nuvykę piligrimai septynis kartus eina prieš laikrodžio rodyklę aplink šventovę. Didžiulės masės juda lėtai, kiekviena bando pabučiuoti ar paliesti juodą akmenį, pastatytą pietryčių kampe Antrasis etapas - Sa’y, kuriame po pirmojo etapo piligrimai atlieka bėgimo veiksmą, vyresnieji žmonės eina greitai septynis kartus pirmyn ir atgal Mekoje tarp Marvos ir Safos kalvų. Trečiasis etapas vadinamas Afarato lyguma, kai piligrimai keliauja į Afarato lygumą devintą mėnesio dieną

22

saule kylant. Piligrimai devintą mėnesio dieną praleidžia melsdamiesi ir medituodami, o baigiantis dienai laukia saulėlydžio ir šaukia: ,,Dievas yra didis!”. Ketvirtame etape – Muzdalifah – grįžta į Meką, pakeliui sustodami nakvynei Muzdalifah mieste, kur jie atsikrato visų nuoskaudų išsipasakodami kitiems, renka akmenukus sekančią juos mesti į tris stulpus netoli Minos, kelyje į Meką. Paskutiniuose trijuose etapuose – gyvūno paaukojimo, Rajm ir sugrįžimo į Meką – piligrimai grįžta atgal ir vėl septynis kartus apeina aplink šventovę ir renka Zamzan šulinio vandenį kelionei namo (The Islamic Hajj - Pilgrimage, 2007). Hinduizmas. Piligrimystė induizme, kaip ir kitose religijose, yra kelionės į vietas, kurios turi religinę galią ir vertę. Būtent induistų piligrimystės šaknys yra senovės šventraščiuose. Kumbh Mela – tai viena svarbiausių piligrimystės šakų induizme. Tai - pats didžiausias žmonių sąskrydis pasaulyjeirfestivalisvyksta keturiskartusperdvylika metų,olokacija kintatarpAllahabadoGangos, Jamunos ir mitinio Sarasvati upių santakoje (žr. 6 pav.). Milijonai žmonių susirinkę maudosi Gango upėje. Tai simbolizuoja nusižengimų ir nuodėmių atleidimą ir padeda pasiekti išganymą. Šventas panirimas šioje upėje prie Kumbh Mela laikomas dideliu nuopelnu ir išvalo kūną ir dvasią. Piligriminės kelionės tokie festivaliai laikomi atsidavimo Dievui aktu. Vieni induistai vykta į piligriminę kelionę, kad įvykdytų įžadą, kaip padėką Dievui už jo malones, kiti – kompensuoti blogo poelgio arba aukoti už mirusį giminaitį. Dažnai daugelis piligrimų namo parsineša mažus indelius su upės vandeniu, kurį laiko šventu (Practical Hindusim, 1998).

6 pav. Kumb Mela festivalis prie Gangos upės. (Singh, R.P.B., Haigh, M., 2015)

Svarbus aspektas yra žmonių buvimo Kumbh Mela trukmė. Nors festivalis trunka ilgiau nei du mėnesius, labai mažai piligrimų pasilieka visą šventę. Dalis Kumbh Mela grožio yra dalyvių įvairovė. Čia sutinkama daug žmonių – nuo pirmą kartą atvykstančių žmonių iki paprastų induistų piligrimų ir iki itin atsidavusių induistų sadhus. Įvairūs atsidavimo lygiai paprastai atitinka trukmę, kurią piligrimai stovyklaus festivalyje. Šis festivalis labai priklauso nuo kiekvieno gretimo miesto, kuris palaiko renginį. Miestas turi sutalpinti milijonus žmonių, keliaujančių į ir iš festivalio teritorijos (Singh, R.P.B., Haigh, M., 2015)

23

Piligrimai dažniausiai apsistoja stovyklose arba palapinių miesteliuose (žr. 7 pav.). Šalia Kumbh miesto yra įrengtas

tinkamas apgyvendinimas palapinėse, ten tinkamai aprūpinama maistu, higiena. Pilkų palapinių miestelis įsikuria vienam piligriminiam mėnesiui, o paskui išnyksta lyg niekada nebūtų egzistavęs.

7 pav. Palapinių miestelis piligrimams šalia Kumbh miesto. (Singh, R.P.B., Haigh, M., 2015)

Judaizmas. Judaizmo piligrimystė, kaip judėjimas į šventą centrą siekiant susitikimo su Dievu, yra tikėjimo esmė. Biblijos tekstas tiesiogiai kalba apie piligriminių kelioniųsvarbą ir dvasinį susijungimą su Dievu, einant tiek fizine, tiek dvasine prasme. Po Dovydo tradicijų įsigalėjimo

Jeruzalė, kaip religinis centras, tapo aukščiausiu ir visų kitų piligrimystės centrų buvo atsisakyta, o vadovaujantis vyraujančiu žydų pasakojimu apie karaliaus Saliamono inauguraciją Jeruzalės šventykla tapo svarbiausia ir gerbiama žydų piligrimystės vieta. Šventykla senovėje buvo nuolat atnaujinama, statomos atraminės sienos, dėl vykstančių karų, o vakarinė atraminė siena po didelio romėnų sutriuškinimo tapo žymiausia piligrimystės vieta (žr. 9 pav.).Vėliau šis objektas tapo svarbus miesto urbanistiniame tinkle ir yra vadinamas Šventyklos kalnu (žr. 8 pav.) (Luz, N., Collins-Kreiner, N., 2017).

8 pav. Šventyklos kalnas su Jeruzalės šventyklažydų piligriminiu centru. (Britannica, 2023)

Trys piligrimų šventės, hebrajiškai Shalosh Regalim, kurių metu Izraelio vyrai turi vykti į Jeruzalę aukoti šventykloje ir atnešti aukų iš savo ūkio. Šie festivaliai suteikia galimybę patvirtinti bendruomeninius įsipareigojimus su Dievu, stiprinti tautos kaip religinės bendruomenės identifikavimą ir įtvirtinti Jeruzalę kaip šventovę. Švenčių esmė – bendruomenės kūrimo patirtis.

24

Žydai dažniausiai apsistoja svečių namuose, taip pat yra aktyviai veikiantis vienuolynas

Jeruzalėje, skirtas Dievo Motinos de Siono seserims ir Chemin Neuf bendruomenei, todėl piligrimų namai labiau jaučiasi kaip ,,hospisas“ ar ,,pakelės namai“, o ne kaip viešbutis.

9 pav. Vakarinė atraminė Jeruzalės šventykos siena - žymiausia piligriminio lankymo vieta. (Britannica, 2023)

1.1.8 Piligriminių kelionių apsistojimo vietos Lietuvoje

Lietuvoje piligrimai apsistoja bendruomenių namuose, dvaruose, įvairiose sodybose, parapijų namuose, mokyklose, svečių namuose, piligrimų namuose, įvairiose stovyklavietėse, kempinguose, kartais net nameliuose medžiuose. Šie objektai būna išsidėstę piligriminių žygių maršrutuose, dažniausiai sutinkami lietuviško kaimo architektūros statiniai.

Pavyzdžiui, Žemaitijos regione galima apsistoti Dautarų dvare, Dautarų kaime, XIX a. laikotarpio istorizmo bruožų turinčiuose rūmuose (žr. 11 pav.). Keliaujant Kurtuvėnuose Parapijos piligrimų namai gali priimti mažesnes keliaujančiųjų grupes, savo architektūra atliepia Žemaitijos regiono kaimo architektūrą (žr. 10 pav.). Einant Aukštaitijos regione galima nakvoti

10 pav. Kurtuvėnų parapijos namai. (Camino Lituano, 2023)

Biržų kempinge. Rokiškio rajone egzistuoja išskirtinė klasicistinės architektūros Salų dvaro kultūros ir laisvalaikio rezidencija, kurią statė garsios italų giminės atstovai Morikoniai kartu su Bona Sforca, kuri gamtinėje aplinkoje leidžia

11 pav. XIX a. istorizmo laikotarpio Dautarų dvaras. (Camino Lituano, 2023)

25

visiškai atsipalaiduoti ir panirti į apmąstymus ir dvasines paieškas (žr. 12 pav.) (Camino Lituano, 2023)

Vis dėlto daugiausiai vyrauja įvairios kaimo sodybos, privačių gyventojų namai, kurių identitetas formuojamas remiantis lietuviško kaimo trobų architektūra. Tokią architektūrą reprezentuoja: nakvynės nameliai Gaižuvėlės sodyboje (žr. 15 pav.), Babtų seniūnijoje; Panekelpių kaime esančios

sodybos Radviliškio rajone (žr. 14 pav.); senoji Ruslių kaimo sodyba Pakruojo rajone; Palendrio Šv. Benedikto vienuolyno svečių namai Kelmės rajone; Sunny nights kempingo sodyba Gataučiuose (žr. 13 pav.) ir kiti.

12 pav. Salų dvaro kultūros ir laisvalaikio rezidencija (Camino Lituano, 2023)

13 pav. Sunny nights kempingas Gataučiuose. (Camino Lituano, 2023)

15 pav. Panekelpių kaimo sodyba. (Camino Lituano, 2023)

14 pav. Gaižuvėlės nakvynės nameliai. (Camino Lituano, 2023)

26

1.2 Santykis su religine architektūra

1.2.1 Religiniai pastatai, kaip ženklai – orientyrai miesto urbanistinėje struktūroje

Ryšys tarp religijos ir visuomenės yra vienas iš svarbiausių. Todėl vieni iš didžiausių ženklų mieste dažniausiai būna religinės paskirties objektai arba religinės bendruomenės sambūrio taškai. Tai ne tik savo funkcija išsiskiriantys pastatai, tačiau tai ir universalios pasaulio kalbos ženklai, kurią atpažįsta konkrečios religijos šalininkai. Miesto istorinių struktūrų raidos procesas visada buvo susijęs su savitu visuomeninių struktūrų formavimu. Per šimtmečius religiniai pastatai buvo neįkainojami socialiniame ir kultūriniame miesto gyvenime ir tarnavo kaip pagrindinis gyvenimo centras. Kartu su miesto plėtra keitėsi šių pastatų raiška, o technologinė pažanga padarė didelę įtaką formavimosi pobūdžiui. Kai kurios miesto erdvinės struktūros, dėl jas supančios aplinkos – religinio objekto, turi reprezentacinę – ženklinę funkciją. Tokiose erdvėse mes jaučiamės išskirtiniai, svarbūs ir privilegijuoti.Aiškiai galime išskirti tas miesto sritis, kurios yra pasaulietinės ir šventos.Aikštės ir gatvės susijusios su sakralinės architektūros objektais yra savaime užprogramuojamos sakraliam identitetui ir suteikia šioms erdvėms religinės reikšmės (Thomas, 1994) Sakrali architektūra turi svarbų vaidmenį kultūrinio paveldo fone, nes tai yra vienas svarbiausių kultūriniopaveldostruktūroskomponentų.Šventųjųgarbinimovietosišlieka akivaizdžiai pastebimos per šimtmečius, tampa liudininkėmis istorinių įvykių. Per savo architektūrinę išraišką ir urbanistinįintegralumą užtikrina lengvaisuvokiamąartimąerdvinį vientisumą.Tai ne tikreikšmingas ženklas istoriniame kontekste, tačiau gali daryti įtaką ekonominiu ir miesto populiarinimo atžvelgiu, siekiant pritraukti pasaulioturistų dėmesį.Nepriklausomai nuo vietos, tradicijųir kultūros,sakraliniai objektai dera urbanistinių struktūrų kontekste ir atlieka reikšmingą vaidmenį atvirame miesto kraštovaizdyje. Miesto panoramoje jie užpildo visumą, pabrėždami svarbių pastatų buvimo vieta ir kitų susijusių statinių lokacijas (Lynch, 1990)

Svarbu paminėti religinių objektų raiškos kaitą per laiką Meninės raiškos pokyčiai neaplenkia šių pastatų, kaip ir kitų miesto objektų susijusių su religiniais tikslais. Jie taip pat keičiasi, keičiasi meninės raiškos paieškos metodai, požiūris į tokios paskirties pastatus atsispindi ir pačioje architektūrinėje išraiškoje. Šiais laikais tokios paskirties pastatai tapo kuklesni, ramesnės raiškos, atsižvelgia į tikrąją dvasinę prasmę, kuri simbolizuoja paprastą gyvenimo būdą. Todėl svarbu pažinti modernią, daug aspektų apimančią sakralios bendruomenės architektūrą, kuri komponuoja įvairius elementus, kaip šviesą, akustiką, gamtinius elementus.

27

1.2.2 Šviesa

„Šviesa šviečia tamsoje, ir tamsa jos neužgožė.“ (Jn 1,5)

„Tavo žodis yra žibintas mano kojai ir šviesa mano takui.“ (Ps 119,105)

Šviesa yra kūrybinė priemonė, kuria siekiama suteikti erdvei metafizinėsdvasios ir kuri daro

„Šviesa šviečia tamsoje, ir tamsa jos neužgožė.“ (Jn 1,5)

įtaką jos žmonių emocinėms būsenoms Dažniausiai įtaką daro šviesos ir šešėlio sukuriami scenarijai erdvėse. Pasitelkiant šviesą siekiama į su religija susijusių pastatų charakterį įtraukti dieviškumo ir dvasingumo jausmą. Architektūros ir šviesos sąveika yra galinga, formuojanti gilesnę dvasingumo patirtį. Ji įraukia visą žmogų: kūną, dvasią ir emocijas. Šviesa architektūroje yra vienas iš elementų, kuris, be kitų komponentų, tokių kaip struktūra, erdvė, medžiagiškumas, spalvos ir kt., yra pateikiamas kaip atskiras elementas ir turi atlikti svarbų vaidmenį projektuojant. Apšvietimas vidinėse erdvėse ne tik suteikia komforto, bet ir turi įtakos erdvės dydžio suvokimui. Be šviesos nejaučiama forma, spalva ir tekstūra (Stegers, 2008)

„Tavo žodis yra žibintas mano kojai ir šviesa mano takui.“ (Ps 119,105)

„Šviesa šviečia tamsoje, ir tamsa jos neužgožė.“ (Jn 1,5)

„Tavo žodis yra žibintas mano kojai ir šviesa mano takui.“ (Ps 119,105)

Erdvėse, susijusiose su religija, vyrauja dvi pagrindinės šviesos rūšys:

a) Natūrali šviesa. Šiuolaikinės architektūros meistrai, tokie kaip Le Corbusier, Alvaras Aalto ir Louisas Kahnas, tikėjo, kad svarbu į dieviškas erdves įnešti natūralios šviesos. Natūrali šviesa yra nemokama ir neribota. Natūralioje šviesoje spalvos tikroviškos, objektų formos aiškios, erdvės gylio įspūdį suteikia skirtingi šviesos ir šešėlių santykiai. Šviesa leidžia mums apibrėžti, kas yra aplink mus dieną ir naktį: kintantį daiktų ar kūnų, kuriuos ji veikia, suvokimą ir erdvę, kurioje jie yra. Natūrali šviesa, pernešanti vidinę gyvybės energiją, laikoma gyvybės šaltiniu žemėje. Viena iš svarbiausių natūralios šviesos ypatybių yra jos transformacija per dieną, kurią sukuria judėjimo ir slinkimo padėtis skirtingu paros metu. Joks dirbtinis apšvietimas neprilygs natūralios šviesos sukeliamai emocijai (Stegers, 2008).

„Šviesa šviečia tamsoje, ir tamsa jos neužgožė.“ (Jn 1,5)

„Tavo žodis yra žibintas mano kojai ir šviesa mano takui.“ (Ps 119,105)

„Šviesa šviečia tamsoje, ir tamsa jos neužgožė.“ (Jn 1,5)

„Tavo žodis yra žibintas mano kojai ir šviesa mano takui.“ (Ps 119,105)

b) Dirbtinė šviesa. Tokia šviesa gali būti subtiliai integruota į pačią architektūrą. Kaip ir natūrali šviesa, dirbtinė šviesa gali turėti ir simbolinę reikšmę. Tamsoje dirbtinė šviesa gali būti naudojama norint sukurti erdvinį įspūdį arba kiek įmanoma imituoti dienos šviesą Svarbus dirbtinės šviesos kiekio reguliavimas vykstant įvairioms religinėms šventėms. Žmonės dažnai tikisi tam tikro apšvietimo skirtingu paros metu ir progomis religinėse erdvėse. Todėl pasitelkiant dirbtinę šviesą religinėse erdvėse yra kuriamos įvairios šviesos kombinacijos, kurios automatiškai gali keistis (Stegers, 2008)

„Šviesa šviečia tamsoje, ir tamsa jos neužgožė.“ (Jn 1,5)

„Tavo žodis yra žibintas mano kojai ir šviesa mano takui.“ (Ps 119,105)

„Šviesa šviečia tamsoje, ir tamsa jos neužgožė.“ (Jn 1,5)

„Tavo žodis yra žibintas mano kojai ir šviesa mano takui.“ (Ps 119,105)

„Šviesa šviečia tamsoje, ir tamsa jos neužgožė.“ (Jn 1,5)

„Tavo žodis yra žibintas mano kojai ir šviesa mano takui.“ (Ps 119,105)

28

1.2.3 Vanduo

„Kai eisi per vandenį, Aš būsiu su tavimi ir upės nepaskandins tavęs.

Kai eisi per ugnį, nesudegsi ir liepsna nesunaikins tavęs.“ (Iz 43,2)

„Kaip vanduo atspindi veidą, taip žmogaus širdis atspindi žmogų.“

(Pat 27,19)

Krikščioniškoje piligrimystėje vanduo turi daug simbolinių prasmių, jis naudojamas religinėse apeigose, dažnai vyrauja kaip esminis elementas Šv. Mergelės Marijos apsireiškimo vietose. Religijoje egzistuoja įvairių tipų vanduo - šventintas, neutralus, net blogas vanduo ir vyrauja įvairiais pavidalais - gali būti upės, lietaus, šaltinių. Jų panaudojimas priklauso nuo įvairių teologinių faktorių. Religinis vanduo gali gydyti, palaiminti, būti bendru šaltiniu derliui.

„Kai eisi per vandenį, Aš būsiu su tavimi ir upės nepaskandins tavęs.

Kai eisi per ugnį, nesudegsi ir liepsna nesunaikins tavęs.“ (Iz 43,2)

„Kaip vanduo atspindi veidą, taip žmogaus širdis atspindi žmogų.“

(Pat 27,19)

Žmogus yra dvasios, proto ir kūno derinys. Kaip žmogaus kūnui reikia maisto, jo protui ir sielai reikia ramybės. Dabartiniais laikais miestų ir mažų miestelių urbanistiniame tinkle vyraujant betoniniams paviršiams ir sintetinėms kietoms medžiagoms, žmogaus siela ir protas trokšta natūralumo ir gamtos. Vienas iš organinių elementų, suteikiančių žmogui psichologinį prieglobstįvanduo. Vandens judėjimas, jo sukuriamas garsas ir atspindžiai turi nemažą vaidmenį kuriant sakralias erdves. Vanduo žmogų veikia ne tik psichologiškai, tačiau tampa geras erdvės formantas, gali sujungti skirtingas erdves, pasireiškia kaip kraštovaizdžio dalies elementas, gali veikti kaip dominuojantis erdvės atributas ir papildyti pačią erdvę. (Geva, 2023)

„Kai eisi per vandenį, Aš būsiu su tavimi ir upės nepaskandins tavęs.

Kai eisi per ugnį, nesudegsi ir liepsna nesunaikins tavęs.“ (Iz 43,2)

„Kaip vanduo atspindi veidą, taip žmogaus širdis atspindi žmogų.“

(Pat 27,19)

„Kai eisi per vandenį, Aš būsiu su tavimi ir upės nepaskandins tavęs.

Kai eisi per ugnį, nesudegsi ir liepsna nesunaikins tavęs.“ (Iz 43,2)

„Kaip vanduo atspindi veidą, taip žmogaus širdis atspindi žmogų.“

(Pat 27,19)

Vanduo randa ypatingą vietą su religija susijusioje architektūroje. Vanduo savo savybėmis žmones veikia psichologiškai. Skystas, tylus, skaidrus pavidalas gali paveikti žmogaus elgesį, kviesti paliesti, žiūrėti, klausyti. Tai materija, kuri suteikia ramybę, susikaupimą, leidžia žmogui apmąstyti ir nuspręsti svarbiusgyvenimiškussprendimus. Sėkmingasreliginėsarchitektūrospavyzdys, kuriame vanduo panaudojamas kaip dalis sakralios erdvės nuotaikai formuoti yra japonų architekto Tadao Ando koplyčia ant vandens Japonijoje (žr. 16 pav.). Vanduo panaudojamas kaip dalis gamtinės struktūros, kuri įsikomponuoja į architektūrinį sprendinį (žr. 17 pav.). Tai yra paprastas, bet meistriškas priėjimas surandant balansą ir harmoniją tarp dirbtinio ir natūralaus, tarp ribotos erdvės ir begalybės. Vanduo, kaip gamtos ir Dievo kūrinys šioje koplyčioje yra ir religinio simbolio dalimi (Siddiq, 2008)

16 pav. Tadao Ando vandens koplyčios vaizdas iš vidaus.

(Zekkeijapan, 2019)

„Kai eisi per vandenį, Aš būsiu su tavimi ir upės nepaskandins tavęs.

Kai eisi per ugnį, nesudegsi ir liepsna nesunaikins tavęs.“ (Iz 43,2)

„Kaip vanduo atspindi veidą, taip žmogaus širdis atspindi žmogų.“

(Pat 27,19)

„Kai eisi per vandenį, Aš būsiu su tavimi ir upės nepaskandins tavęs.

Kai eisi per ugnį, nesudegsi ir liepsna nesunaikins tavęs.“ (Iz 43,2)

„Kaip vanduo atspindi veidą, taip žmogaus širdis atspindi žmogų.“

(Pat 27,19)

17 pav. Vandens koplyčios eksterjeras. (Zekkeijapan , 2019)

„Kai eisi per vandenį, Aš būsiu su tavimi ir upės nepaskandins tavęs.

Kai eisi per ugnį, nesudegsi ir liepsna nesunaikins tavęs.“ (Iz 43,2)

29

1.2.4 Minimalizmas

„Viešpats apsaugo paprastąjį; suvargęs buvau, o Jis

man padėjo.“ (Ps 116,6)

Technologinė pažanga ir siekis sumažinti vartotojiškumą šių laikų visuomenėje pakeitė vyravusį požiūrį ir į architektūrinę išraišką. Universalumo ir modulinės statybos banga gali kelti sunkumų bandant neprarasti identiteto ir tikrosios pastatų paskirties. Minimalizmo banga siekia kiek įmanoma racionaliau pateikti, supaprasti architektūrinę formą, kas yra palanku pramoninei gamybai ir pačio dizaino kūrimui. Kaip britų rašytojas ir architektas Peteris Murray teigia: „Minimalizmas apima architektūros supaprastinimą iki pagrindinių erdvės, šviesos ir masės savybių".

„Viešpats apsaugo paprastąjį; suvargęs buvau, o Jis

man padėjo.“ (Ps 116,6)

„Viešpats apsaugo paprastąjį; suvargęs buvau, o Jis

man padėjo.“ (Ps 116,6)

Kritikai teigia, kad minimalizmas architektūroje atsirado iš japonų tradicijų ir kultūros, ypač iš Zen filosofijos ir Haiku poezijos, nors paprastumo idėjos apraiškos yra būdingos ir kitoms kultūroms. Tokia japonų filosofija perteikia laisvės ir gyvenimo esmės idėjas (Vasilski, 2015) Paprastumas yra ne tik estetinė išraiška, tačiau ir moralinis suvokimas, siekiant pabrėžti medžiagų ir objektų kokybę. Anot kritiko Alano Colquhouno, minimalistinė architektūra yra orientuota į erdvės atvirumą ir tęstinumą, iki minimumo sumažinant detales, atmetant tradicines architektūros formas, eksperimentuojant su natūralia šviesa, baltais ar šviesiais paviršiais (Youssef, 2014). Pati tokios architektūros esmė priklauso nuo šviesos, formos, medžiagos detalumo, erdvės, vietos ir žmogaus suvokimo. Architektai, kuriantys minimalistines erdves, dažnai išsamiai žvelgia į dvasinį aspektą, į tai kas nematoma, siekia įsiklausyti į žmogų, pasitelkiant pačią erdvę, gamtą ir naudojamas medžiagas

„Viešpats apsaugo paprastąjį; suvargęs buvau, o Jis

man padėjo.“ (Ps 116,6)

„Viešpats apsaugo paprastąjį; suvargęs buvau, o Jis

man padėjo.“ (Ps 116,6)

„Viešpats apsaugo paprastąjį; suvargęs buvau, o Jis

man padėjo.“ (Ps 116,6)

Minimalistinis gyvenimo būdas yra vienas iš esminių dalykų piligrimystėje. Atsisakymas to, kas nereikalinga, priimant paprastumą ir būtinybę. Piligriminė architektūra turi atspindėti šio gyvenimo būdo ypatumus, tenkinti tik būtiniausius žmogiškuosius poreikius, taip pat liekant atpažįstama, neprarandant savo identiteto ir universalios pastato, kaip ženklo vertės. Paprastų formų naudojimas, monochrominių spalvų derinimas, supaprastintos linijos, lygių paviršių komponavimas keičia nusistovėjusias architektūrines tendencijas, kartu nuosaikiai ir skoningai neužgožiant pagrindinio kelionės tikslo – sakralinio pastato ar vietovės, kuri savaime suvokiama kaip labiausiai išsiskiriantis kelionės taškas, tiek dvasine, tiek fizine prasme.

„Viešpats apsaugo paprastąjį; suvargęs buvau, o Jis

man padėjo.“ (Ps 116,6)

„Viešpats apsaugo paprastąjį; suvargęs buvau, o Jis

man padėjo.“ (Ps 116,6)

30

1.2.5 Vertikalumas

„Viešpaties vardas-tvirtas bokštas, teisieji bėga į jį ir yra

saugūs “ (Pat 18,10)

Vertikalūs elementai per visą istoriją buvo naudojami reikšmingiems įvykiams paminėti ir tam tikriems erdvės taškams nustatyti. Aukštų vertikalių pastatų ar elementų esmė miesto urbanistinėje struktūroje yra formuoti žmonių suvokimo centrą mentaliniuose pasąmonės žemėlapiuose, padėti žmonėms orientuotis mieste, įsiminti vietas, kurti hierarchiją miesto kontekste (Alihodzic, R., Zupančič D., 2017). Taip pat svarbios žmonių emocijos stebint aukštus vertikalius objektus. Dažnai tai veikia dvejopai: arba objektas suteikia galimybę į aplinką pažvelgti iš viršaus, kitaip tariant patirtis įgyjama virš žemės paviršiaus, arba žvelgiama tik aukštyn ir patirtis įgyjama stovint ant žemės. Vertikaliomis struktūromis, darančiomis emocinį poveikį, laikomi apžvalgos ir bažnyčių bokštai, skulptūros, dažnai gotikos laikmečio bažnyčios architektūra (žr. 19 pav.) (Botham, 2020).

„Viešpaties vardas-tvirtas bokštas, teisieji bėga į jį ir yra saugūs.“ (Pat 18,10)

„Viešpaties vardas-tvirtas bokštas, teisieji bėga į jį ir yra

saugūs “ (Pat 18,10)

Vertikalumas yra svarbus mūsų bažnyčioms, skatinant pagarbos jausmą ir nukreipiant mūsų akis į dangų Vertikalumas dažniausiai išvystamas pagrindiniuose bažnyčių fasaduose. Teigiama, kad vertikalūs elementai dažnai tampa jungtimis tarp dangaus ir žemės. Tai yra viena iš priemonių sukurti transcendencijos jausmą (Stroik, 2019)

„Viešpaties vardas-tvirtas bokštas, teisieji bėga į jį ir yra

saugūs.“ (Pat 18,10)

Perkeltine prasme vertikalios struktūros liudija aukštesnę tikrovę, anapus kasdienybės, pakylėja žmogų nuo žemiškų dalykų ir rūpesčių, leidžia aiškiau girdėti balsus ir garsus arba pamatyti didesnį kontekstą. Religinės bendruomenės architektūra dažnai turi bokštą, kaip išskirtinį jų architektūrinės išraiškos bruožą. Tokio bokšto funkcija – sušaukti žmones į maldą ir užmegzti ryšį su apylinkėmis. Piligriminėse kelionėse gana dažna įrengti įvairias regyklas apžvelgti kraštovaizdžiui, paženklinti tarpinę stotelę kelyje (žr. 18 pav.).

„Viešpaties vardas-tvirtas bokštas, teisieji bėga į jį ir yra

saugūs “ (Pat 18,10)

19 pav. Cerro del Obispo apžvalgos aikštelė San Luis Potosi Meksikojevertikalus kraštovaizdžio panoramos akcentas. (Archdaily, 2012)

„Viešpaties vardas-tvirtas bokštas, teisieji bėga į jį ir yra

saugūs.“ (Pat 18,10)

„Viešpaties vardas-tvirtas bokštas, teisieji bėga į jį ir yra

saugūs “ (Pat 18,10)

18 pav. Espinazo del Diablo apžvalgos taškas Meksikoje. (Archdaily, 2010)

„Viešpaties vardas-tvirtas bokštas, teisieji bėga į jį ir yra

saugūs.“ (Pat 18,10)

31

1.2.6 Gamta

„Jo rankoje yra žemės gelmės ir Jam priklauso kalnų viršūnės. Jo yra

jūra, nes Jis ją sutvėrė, ir sausuma Jo rankų darbas.“ (Ps 95,4-5)

Piligriminėse kelionėse pats maršrutas, jo kraštovaizdis kartais būna svarbesnis nei pats kelionės tikslas. Maršruto vietos įgyja šventą prasmę ir tapatybę dėl kelionės tikslo. Keliaujant pavieniui maršrute aplankomosvietovėskartaisnesijaučiaitinsakraliosardvasiškaisusijusios, tačiau keliaujant grupėmis,dvasinispoveikisyra labiaupastebimas.Dažnaitaipnutinka dėl masiniožmonių susitelkimo vienoje vietoje, kartais vadinamo ,,judančiais šventais miestais“, kuris motyvuoja ir nuteikia žmogų keliauti į šventą vietą. Lietuvoje piligriminėse kelionėse aplankomi maži miesteliai, einama gamtoje, matomas lietuviškas kraštovaizdis, laukai, girios, žaliosios panoramos. Teigiama, jog ištisi gamtiniai peizažai turi Dievo įspaudą ir Dievas yra visos pasaulio gamtos, kuria mes grožimės, kūrėjas.

Pasikeitimai gamtiniuose maršrutuose dažnai vyksta dėl pačių žmonių ir atpažįstami pačiai kelionei reikalingose struktūrose,kelių tinkle irišsklaidytose poilsiovietųsistemose.Šie pasikeitimai atsiranda ir vystosi kartu su dalyvaujančiais žmonėmis ir vietovėmis. Kartais net kaimų ar gyvenviečių vieta stipriai priklauso nuo piligriminių kelionių maršruto ir judėjimo, į piligriminių kelionių gyvenimą integruojasi kaimų bendruomenės, keičiasi pats kraštovaizdis ( Bambi, G., Barbari, M., 2014) Piligriminiai keliai dažniausiai susideda iš kombinuoto derinio: linijinių ir plotinių objektų. Svarbi gera ir harmoninga gamtos ir žmogaus sukurtų objektų kompozicija, kadangi linijiniamejudėjimežmogausmatomasvaizdassuvokiamasskirtingai,neistatiškamevaizde,sustojus tarpinėje stotelėje ar prie tam tikro objekto (Shinde, 2021). Judant stebimo kraštovaizdžio vaizdai derinami su pačiu žmogaus judėjimu, kuriame susimaišo beveik visi žmogaus pojūčiai – regėjimas, klausa, lytėjimas, uoslė. Šią jungtį tarp apčiuopiamo (žmogaus ir kraštovaizdžio) ir neapčiuopiamo (žmogaus pojūčių) svarbu suvokti kaip vieną iš svarbiausių piligriminės kelionės aspektų. (Siddiq, 2008)

Religinė architektūra nuo gamtinės aplinkos yra neatsiejama. Žmogaus kontaktas su gamta, ypač su augmenija, turi teigiamą poveikį žmogaus fizinei ir psichologinei sveikatai, dažnai veikia kaip transcendentinė aplinka (Bermudez, 2015) Architektūra, kaip ir gamta, gali padėti sukurti transcendentalų ryšį tarp žmogaus ir Aukščiausiojo. Kaip ir gamta, architektūra geba geometriškai perteikti ir paversti erdves tokiomis vietomis, kuriose atsiribotume nuo visų kasdienių rūpesčių, rutinos, aukščiausia sakrali architektūra yra tarsi tiltas, perkeliantis mus į vidinę dvasinę sferą, susijungti su anapusiniu pasauliu, o tai yra svarbi piligriminių kelionių dalis ir neatsiejamas aspektas piligriminiuose objektuose (Bermudez, 2015).

32

1.2.7 Akustika

„Aš išgirdau iš dangaus garsą, tarsi daugybės vandenų

šniokštimą ir tarsi galingo griaustinio dundėjimą.

Garsas, kurį girdėjau, buvo tarytum arfininkų, skambinančių savo arfomis.“ (Apr 14,2)

Vienasiš esminių erdvės elementų - jos skleidžiamasgarsas. Dažniausia tikimasi, jogsakrali erdvė turės ypač gerą atgarsį. Dauguma bažnyčių turi kupolus, kurie ne tik simbolizuoja dangų ir Dievo namus, tačiau yra svarbūs akustiniai elementai erdvėje. Sakralios architektūros istorinėje raidoje aprašomi įvairūs funkciniai reikalavimai ir tai, kaip jie laikui bėgant buvo pritaikyti erdvėms, kurios buvo skirtos įvairioms funkcijoms: maldai, Šventojo Rašto skaitymui, pamokslams, Šventojo garbinimui ir kitoms. Kiekviena erdvė turi savo specifiką ir poreikį tinkamai akustikai išgauti. Pavyzdžiui, maldos erdvėms reikalinga tam tikra izoliacija ir apsauga nuo pašalinių garsų, Šventojo rašto skaitymui reikalingas tariamo žodžio aiškumas ir jo tinkamas išgirdimas, Dievo garbinimas vyksta garsiai giedant chorui, pritariant vargonams ar kitiems muzikos instrumentams. Sakralios architektūros akustinis suderinamumas erdvėse yra vienas iš sudėtingiausių uždavinių projektuojant panašias erdves. Garso šaltinio padėtis ir erdvės forma yra pagrindiniai veiksniai, lemiantys tarpusavyje susijusių erdvių akustinę sąveiką. Sugeriančių medžiagų naudojimas ne tik sumažina garso aidėjimo intensyvumą, bet ir gali išvengti garso energijos kaupimosi, dėl kurio gali atsirasti nepageidaujamų aido efektų. Antrinės erdvės, kurios ribojasi su pagrindine, turėtų turėti daugiau garso sugerties nei pagrindinė erdvė (Stegers, 2008).

Garsas piligrimystėje pasireiškia dainomis, pokalbiais, gamtos garsais, žingsniais. Piligrimystėje muzika vaidina svarbų vaidmenį pasakojant apie individualaus piligrimo ar kolektyvinės grupės keliones. Muzikos pasakojimas nusako kelią ir formuoja piligrimo pasaulėžiūrą ir suteikia ritualinę praktiką, lydinčią svarbias patirties akimirkas. Architektūros ir garso ryšys labai stiprus, kartais patys pastatai yra laikomi muzikos instrumentais garsui sklisti (Yilmaz, 2017) Kaip ir garsas, tyla svarbus aspektas piligrimystėje, nes tai būna svarbių apmąstymų laikotarpis, susikaupimo, rimties, minčių sukontroliavimo, savęs atradimo laikas. Architektūroje tokios erdvės gali padėti tai pasiekti per įvairius elementus: medžiagiškumą, erdvės mastelį, langų kiekį sienose, šviesą, gamtos panaudojimą, erdvės uždarumą ar atvirumą. (Mishra, J., Shrivastava, V., 2017)

33

1.2.8 Simbolika

Kiekviena bendruomenė turi savo simboliką, ženklus, kurie tarnauja kaip universali kalba visame pasaulyje. Vienas iš pagrindinių simbolių yra šukutės kiautas ( angl. k. scallop shell) (žr. 21 pav.). Šis ženklas kilęs iš vienos legendos apie apaštalą Jokūbą ir jo mirtį, kai jo ir jo mokinio kūnai po mirties buvo sudėti į valtį, kuri stebuklingu būdu atplukdyta į Ispanijos pakrantę (Linda Anne Taraldson, 1968). Teigiama, kad valtis buvo padengta šukučių kriauklėmis, todėl šis simbolis galiausiai buvo priimtas tarp piligrimų, keliaujančių į Santjago de Kompostelą. Šiais laikais šie

ženkliukai dedami beveik visur: ant bažnyčių fasadų, grindiniuose, kryžiuose, suvenyruose ir piligriminiuose keliuose, nužymėti teisingą ėjimo kryptį (žr. 20 pav.). Teigiama, kad geltonos atkarpos mėlyname fone vaizduoja piligrimo kelionę iš visų pasaulio kampelių ir susiliejančią prie Šventojo Jokūbo kapo Santjago de Komposteloje (Insiders travel, 2023).

Dar vienas svarbus ir Lietuvoje dažnai sutinkamas religinis simbolis yra koplytstulpiai – koplytėlė ant stulpo, namelis ar kitokia forma – stulpas su niša viršuje (žr. 22 pav.). Tai yra liaudies smulkiosios architektūros rūšis – mediniai arba memorialiniai paminklai. Jo viduje įdedami krikščioniškieji šventieji, kuo nišose dedama daugiau skulptūrėlių, tuo pačio koplytstulpio konfigūracija darosi sudėtingesnė, tarsi siekiama perpasakoti svarbiausius Dievo sūnaus kančios momentus. Lietuvoje daugiausiai jų randama Žemaitijos regione. Dažniausiai buvo statyti nuo XVII a. iki XX a. Mediniai koplytstulpiai būna 2-3 metrų aukščio, daryti iš medžio kamieno, gali būti įvairių skerspjūvių. Jų dekorui įtaką darė

21 pav. Šukutės kiauto (angl.k. scallop shell) ženkliukas akmeniniame grindinyje Šiluvoje priešais Švč. Mergelės Marijos Apsireiškimo koplyčią. Autorės nuotrauka

20 pav. Piligriminio kelio ženklas ant švč. mergelės marijos apsireiškimo koplyčios fasado. piligriminio kelio ženklas ant švč. mergelės marijos apsireiškimo koplyčios fasado. Autorės nuotrauka

23 pav. Kryžiaus Kelias per Šiluvos šilą pradžios taškas. Autorės nuotrauka

22 pav. Pakelės kryžiai Raseiniuose Kęstučio gatvėje.Autorės nuotrauka

34

profesionali architektūra. Mediniai koplytstulpiai yra dekoratyvūs, puošiami frontonai, sienelės, apvadai (žr. 23 pav.). Dažna jų stogelius užbaigti mediniais arba geležiniais kryželiais (Buračas, 1998) Koplytstulpiai piligrimystėje yra svarbūstuo,jogtai yra dalispiligriminiomaršruto, piligrimai keliaudami pėsčiomis prie jų meldžiasi praeina Kryžiaus kelio stotis. Toks kryžių ir koplytstulpių kelias yra pažymėtas ir Lietuvoje Raseinių rajone Raseiniai – Šiluva (Liutikas, 2014).

1.3 Tiriamosios dalies išvados

Šia literatūros šaltinių analize siekta susipažinti su piligrimystės sąvoka, bruožais ir svarba visuomenės gyvenime. Buvo atliktas piligrimystės, kaip dvasinės kelionės, ir turistinių kelionių palyginimas, išryškintos svarbiausios kelionių vertybės, tikslai, metodai, apžvelgtos šventųjų vietų rūšys, istorinė raida užsienio ir Lietuvos kontekste. Taip pat atskiras pažinimo laukas buvo išskirtas išnagrinėti, kaip žmogus jaučiasi sakraliose erdvėse, maldos namuose, išryškinti svarbiausi ir paveikiausi tokių erdvių elementai, per juos buvo siekiama pažvelgti į tai, kaip žmogus jaučiasi, kaip susijungia su Dievu.

Išvados:

• Didžiausiasskirtumastarppiligriminėsir turistinėskelionėsyra kelionėstikslasir vieta į kurią keliaujama;

• Tikroji ir originali piligriminių kelių prasmė – tai tarsi individuali asmens kelionė per gyvenimą, kartais asmeninio augimo ir tyrinėjimo kelionė, kartais koncentracija ir visas dvasinis žmogaus dėmesys į patį kelią, kuris, kaip tikima, nuves į susitikimą su Dievu;

• Piligrimystė kitose religijose gali būti suvokiama skirtingai, turėti skirtingų kelionės tikslų ir siekti kitokiolygio dvasinio reikšmingumo, tačiauvisada bus orientuota į dvasinį susijungimą su šventuoju ir šventąja vieta;

• Keliaujant Lietuvoje daugiausiai piligrimams tenka apsistoti įvairiose kaimo sodybose, privačių gyventojų namuose, kurių identitetas formuojamas remiantis lietuviško kaimo trobų architektūra;

• Piligrimystės ir gamtos santykis yra vienas ryškiausių;

• Vieni iš didžiausių ženklų mieste dažniausiai būna religinės paskirties objektai arba religinės bendruomenės sambūrio taškai;

• Šviesa architektūroje – kūrybinė priemonė, kuria siekiama suteikti erdvei metafizinės dvasios ir kuri daro įtaką jos žmonių emocinėms būsenoms;

• Vanduo turi stiprių sąsajų su religine architektūroje, nes per vandens savybes ir formą galima paveikti žmogaus psichologinį būvį, jį nuraminti, leisti jam susikaupti, susijungti su gamta dirbtinėje erdvėje;

35

• Minimalistinis piligrimų gyvenimo būdas ir požiūris į pasaulį leidžia minimaliomis priemonėmis sukurti monumentalią ir modernią architektūrą;

• Vertikalios struktūros liudija aukštesnę tikrovę, anapus kasdienybės, nukreipia žmogų nuo žemiškų dalykų ir rūpesčių, leidžia aiškiau girdėti balsus ir garsus arba pamatyti didesnį kontekstą;

• Žmogaus kontaktas su gamta, ypač su augmenija, turi teigiamą poveikį žmogaus fizinei ir psichologinei sveikatai, dažnai veikia kaip transcendentinė aplinka;

• Garsas ir tyla yra svarbūs aspektai piligrimystėje, nes tai būna svarbių apmąstymų laikotarpis, susikaupimo, rimties, minčių sukontroliavimo, savęs atradimo laikas, o visa tai galima perteikti architektūrinėje erdvėje.

36

1.4.1 Szentkút piligrimų centras

Vengrijoje

Architektai: Tamás Nagy

Plotas: 15523 kv. m.

Vieta: Vengrijos šiaurės rytų regionas

Metai: 2015

24 pav. Szentkut piligrimų centras Vengrijoje, daugiafunkcis kompleksas. (Archdaily, 2015)

A. Socialinis aspektas.

• A.1. – objekto paskirtis.

Szentkút piligrimų centras

• A.2. – socialinė svarba.

Šią lokaciją piligrimai lankojaubeveik 900metų dėl šalia esančių šventųjųvandensšaltinių. Dauguma žmonių tiki, jog šie šaltiniai yra stebuklingi. XVIII a. netoli šių šaltinių buvo pastatyta barokinė bažnyčia ir vienuolyno kompleksas. 2008 m. nuspręsta šią vietą plėsti, renovuoti istorinį architektūrinį palikimą ir plėsti šio komplekso programą statant naujus korpusus.

B. Urbanistinis aspektas.

• B.1. – objekto vieta urbanistiniame kontekste (funkcinės organizacijos aspektas).

Piligrimų centras įsikūręs miškingoje gamtinėje aplinkoje Mátraverebély miesto šiaurėje palei Szentkúti – patak upę.

• B.2. – objekto ryšio su aplinka pobūdis (kompozicinės organizacijos aspektas).

Piligrimų centras jautriai reaguoja į vyraujantį gamtinį kontekstą, į jį atsižvelgia tiek architektūrine išraiška, tiek komponavimu sklype.

C.Architektūriniai-meniniai aspektai

• C.1. – Objekto funkcinis sprendimas.

Dviejų naujų pastatų – informacijos centro ir daugiafunkcio korpuso su restoranu ir bendrabučio tipo kambariais – funkciniai ryšiai paremti racionalumu.

37
studija
1.4Analogų

• C.1.1. – generalinis planas.

Visas kompleksas apima 8 sklypus (žr. 25 [av.). Pirmiausia renovuota barokinė bažnyčia (1), vienuolynas (1), jų bendras vidinis kiemelis ir piligrimų nameliai (3). Vėliau įkurta atvira erdvė

renginiams (2), restoranas (5) kartu su bendrabučio tipo kambariai (6), informacijos centras (7), sutvarkytas landšaftas, slėnis (8). Pastatų lokacijai

įtaką darė išraiškingas kraštovaizdis ir esamas istorinis užstatymas (1).

• C.1.2. – pastato plano struktūra.

25 pav. Piligrimų centro sklypo planas. Sudaryta autorės pagal originalų brėžinį.

Daugiafunkciskorpusas.Vienoaukštobeveik 300m.ilgiopastatasišvienospusėsribojamas kalnų. Apželdintu stogu dengtas objektas talpina 200 piligrimų. Kambariai buvo projektuojami apgyvendinti po 8-14 žmonių vienu metu. Jų blokus jungia atviras prapučiamas koridorius dengtas mediniųlameliųapdaila. Restoranas yra pietinėje korpusodalyje kartusu didžiuojusanitariniųmazgų bloku (žr. 26 pav.).

Gyvenamieji kambariai

Restoranas San. mazgai

26 pav. Daugianfunkcio komplekso planas. Sudaryta autorės pagal originalų brėžinį

38

Informacijos centras. Reprezentacinis pastatas metaforiškai projektuotas tarp sakralios ir profaninės (pasaulietiškos) zonos riba. Architektūrinę formą diktuoja unikali vieta – šlaitas. Disko formos išpjovos plane simbolizuoja Dievo trūkumą. Žmones pasitinka kolonų eilė iš pusapvalės atvykimoaikštės.Pastatovidujeišdešinėsprojektuojamisanitariniųmazgųblokai,religiniųsuvenyrų parduotuvėlė, meno galerija ir informacijos centras kartu su konferencijų kambariu (žr. 27 pav.).

Parodų erdvė Parduotuvė

Info. centras Reprezentacinė erdvė

27 pav. Informacijos centro planas. Sudaryta autorės pagal originalų brėžinį

C2. – Objekto meninis sprendimas.

• c.2.1. – kompozicinio sprendimo ypatumai.

Architektai teigė, jog siekia eiti anoniminės architektūros keliu. Išraiškos paprastumas, medžiagų ir atlikimo kokybė bei tradicija ir naujovės derinamos su dvasingumu buvo pagrindinė naujų pastatų koncepcija.Abu pastatai turėjo tapti gamtos dalimi, bet tarp savęs skirtis architektūrine išraiška. Naujai projektuojami pastatai – informacijos centro ir daugiafunkcio korpuso su restoranu ir bendrabučio tipo kambariais – architektūrinė išraiška pateikiama skirtingai.

• c.2.2. – stiliniai ypatumai.

28 pav. Daugiafunkcio komplekso lauko maitinimo erdvė su ažūrine fasado sienele. Sukuriamas jaukus šešėlių žaismas. (Archdaily, 2015)

Šiauriniam daugiafunkciam korpusui pasirinktas sprendimas visas funkcijas sustumti po kalva, į žemę. Vienintelis dalykas, kurį lankytojai mato, yra begalinė medinė šešėlių konstrukcija (žr. 28 pav.)

39
San. mazgas San. mazgas

Informacinis centras pasižymi savo apskritų formų išpjovomis ir kolonų eile žvelgiant iš reprezentacinės atvykimo erdvės. Pastato forma plastiška, dinamiška.

• c.2.3. – semantiškumo, psichologinio veikimo aspektai, kita.

Gamtinė aplinka ir tapatinimasis su ja, išskirtinis kraštovaizdis sukuria ramią nuotaiką lankančiajam. Atvykusieji ne tik tenkina fizinius poreikius, tačiau gali visiškai susisieti su gamta, keliauti grupėmis, leisti laiką kartu.Autorių siekis Dieviškąją temą sieti su gamtine aplinka atsispindi architektūrinės išraiškos pateikime, bei kuriamoje erdvinėje atmosferoje.

C.3. – Objekto materialinė struktūra.

• c.3.1. – medžiaginis – konstrukcinis sprendimas (pastato konstruktyvinė sistema, pagrindinės statybinės ir apdailos medžiagos).

Informacijos centro apdaila moderni, šaltų, gamtai svetimų spalvų derinys – pilkas betonas, forma plastiška, nevengta ovalių organiškų iškarpų (žr. 30 pav.) , o daugiafunkcis centras – žemiškas, susiliejantis su gamta, dominuoja medinė apdaila, apželdintas stogas, forma – kampuota, zigzaginė (žr. 29 pav.).

29 pav. Daugiafunkcio komplekso medinių fasadų išraiška. (Archdaily, 2015)

30 pav. Informacijos centro vaizdas iš šlaito pusės. Architektūrinė išraiška atsiskleidžia draustinio pusėje. (Archdaily, 2015)

Pastatų konstrukciniai ypatumai – daugiafunkcio korpuso požeminės architektūros sprendimas užtikrinant pastato kokybišką funkcionalumą lankytojams.

• c.3.2. – inžinerinis – techninis aprūpinimas (įtakos architektūrinei kompozicijai aspektu).

Šio komplekso inžinerinis – techninis aprūpinimas pastato architektūrinei kompozicijai įtakos neturėjo.

40

1.4.2. Røldal piligrimų centro idėjinis pasiūlymas Norvegijoje

Architektai: LETH & GORI

Plotas: 1200 kv. m.

Vieta: Røldal kaimas Norvegijoje

Metai: 2011

A. Socialinis aspektas.

• A.1. – objekto paskirtis.

31 pav. Røldal piligrimų centro pasiūlymo maketas. (Archdaily, 2012)

Røldal piligrimų centro pasiūlymas Norvegijoje;

• A.2. – socialinė svarba.

Sukurti artimą jungtį tarp naujai projektuojamo pastato ir XIII a. esamos bažnyčios.

Piligrimų namai yra centras, kuriame galima susipažinti su unikalia Røldal istorija, gamta ir architektūra. Šie namai suteikia prieglobstį keliaujantiems piligrimams, suteikia erdves esamai bendruomenei – kunigams ir kitai bažnyčios administracijai.

B. Urbanistinis aspektas.

• B.1. – objekto vieta urbanistiniame kontekste (funkcinės organizacijos aspektas).

Piligrimų centras atsidurtų svarbioje Røldal pietinėje kaimo vietoje, prie Røldal Stave bažnyčios.

41

• B.2. – objekto ryšio su aplinka pobūdis (kompozicinėsorganizacijosaspektas).

Kadangi naujai projektuojamas pastatas yra kaimo tipo teritorijoje, kaimynystė pasižymi taškiniu užstatymu, į kurį siekiama atkreipti dėmesį pastato struktūroje projektuojant atviras ertmes, masyvumui smulkinti. Teritorija dėkinga savo išskirtine gamtine lokacija. Piligrimų centras projektuojamas prie vieno iš pagrindinių kaimo orientyrų - Røldal Stave bažnyčios (žr. 32 pav.)

C.Architektūriniai-meniniai aspektai

C.1. – Objekto funkcinis sprendimas.

• C.1.1. – generalinis planas.

32 pav. Situacijos schema. Sudaryta autorės

Naujasis piligrimų centras būtų dalis ir tęsinys esamos bažnyčios erdvinės struktūros, jis blokuojasi kartu su esamu bažnyčios sklypu ir sukuria nauja patekimą į bažnyčią remiantis naujomis erdvėmis (žr. 33 pav.).

33 pav. Sklypo planas. Sudaryta autorės pagal originalų brėžinį.

42

• C.1.2. – pastato plano struktūra.

Piligrimų centras apima daug įvairių funkcijų: administracinės paskirties patalpas, kavinę, parodų erdves, higienos patalpas – sanitarinius mazgus ir dušus, bažnyčios administracines patalpas, naują koplyčią, poilsio erdves su suoliukais, vandens kolonėlėmis, pagrindinę erdvę susirinkimams. Visos patalpos būtų suskirstytas tam tikrais įvairių geometrinių formų blokais ir jungtųsi per bendras viešąsias erdves. Visus blokus ir lauko erdves dengtų didelis masyvus stogas.

C2. – Objekto meninis sprendimas.

34 pav 3DAksonometrinis vaizdas rodantis planinę struktūrą (Archdaily, 2012)

• c.2.1. – kompozicinio sprendimo ypatumai.

Idėja – naują pastatą projektuoti kaip tęsinį esamos struktūros, glaustis prie esamos bažnyčios sienos, kad naujas dizainas natūraliai integruotųsi ir taptų neatsiejama viso komplekso dalimi. Vidinės erdvės dengiamos vienu masyviu stogu su ertmėmis dienos šviesai patekti. Visos erdvės gali laisvai jungtis tarpusavyje. Erdvių išdėstymas leidžia lanksčiai naudoti pastatą, kuriame telpa įvairios paskirties ir funkcijos (žr. 34 pav.)

• c.2.2. – stiliniai ypatumai.

Didžiausias stilinis piligriminio komplekso ypatumas – tai stambaus gabarito stogas, kuris dengia visas patalpas ir iš išorės turi savo laiptuotą išraišką. Tai tampa viso centro akcentu ir savo forma primena futuristinį stilių.

• c.2.3. – semantiškumo, psichologinio veikimo aspektai, kita.

Tiesioginė naujai projektuojamų erdvių sąsaja su stovinčia bažnyčia savaime programuoja sakralią nuotaiką. Autorių idėja erdves formuoti patalpų blokais ir galiausiai uždengti stogu suteikia

43

jaukumo, kadangi erdvės gaunasi įvairios, uždengtos, bet kartu dalis jų - prapučiamos. Taip pat matomas akivaizdus metodas, kai iš užspaustos, dengtos ir ribotos erdvės įžengiant į bažnyčios sklypą, pati erdvė atsiveria siekiant parodyti sakralaus pastato didingumą veikiant ne tik žmogaus vidines emocijas, tačiau pasitelkiant ir fizines priemones. Šiuo atveju piligrimams skirta architektūra pagrindžia vieną iš svarbiausių aspektų – nekonkuruoti ir neužgožti sakralaus pastato.

C.3. – Objekto materialinė struktūra.

• c.3.1. – medžiaginis – konstrukcinis sprendimas (pastato konstruktyvinė sistema, pagrindinės statybinės ir apdailos medžiagos).

Pastato viduje rodoma medinė apdaila siekiant prisiderinti prie stovinčios medinės bažnyčios. Medinė apdaila taip pat būdinga vietinė medžiaga leidžia integruotis į esamą urbanistinį kontekstą.

• c.3.2. – inžinerinis – techninis aprūpinimas (įtakos architektūrinei kompozicijai aspektu).

Šio komplekso inžinerinis – techninis aprūpinimas pastato architektūrinei kompozicijai įtakos neturėjo.

44

1.4.3 Šv. Kotrynos Sienietės vienuolynas

(Santa Catalina de Siena)

Architektai: Hernández architektai

Plotas: 15523 kv. m.

Vieta: Paterna rajonas į šiaurės vakarus nuo

Valensijos

Metai: 2014

A. Socialinis aspektas.

• A.1. – objekto paskirtis.

35 pav. Vaizdas į vidinį Santa Catalina de Siena vidinį kiemelį. (Archdaily, 2015)

Santa Catalina de Siena vienuolynas, skirtas Dominikonų vienuolių bendruomenei

• A.2. – socialinė svarba.

Vienuolynas buvo projektuotas Dominikonų vienuolių bendruomenei. Bendruomenę sudaro apie 30 vienuolių, todėl visas projektas yra kuriamas pagal jų norus ir poreikius. Architektai dirbo ir siekė pažinti šių vienuolių gyvenimo kasdienybę, rutiną, siekė suprasti jų darbą už vienuolyno ribų.

B. Urbanistinis aspektas.

• B.1. – objekto vieta urbanistiniame kontekste (funkcinės organizacijos aspektas).

Vienuolyno kompleksas yra Valensijos miesto šiaurės vakarinėje dalyje Ispanijoje prie privačių namų gyvenamojo rajono (žr. 36 pav.)

• B.2. – objekto ryšio su aplinka pobūdis (kompozicinės organizacijos aspektas).

Pastatas reaguoja į egzistuojančią aplinką.

Dėl vyraujančio gatvės ir prekybos centrų šurmulio visas sklypas yra aptvertas sunkia aklina tvora, pats

pastatas orientuojamas sklypo viduryje, centre

Pastatai orientuojami taip, jog viduje susiformuotų privatūs uždari vidiniai kiemeliai nuo išorės triukšmo (žr. 37 pav.).

Valensija

36 pav. Vienuolyno lokacija Valensijos miesto atžvilgiu. Sudaryta autorės

45

37 pav. Vienuolyno lokacija rajono atžvilgiu.

Sudaryta autorės

C.Architektūriniai-meniniai aspektai

C.1. – Objekto funkcinis sprendimas.

• C.1.1. – generalinis planas.

Vienuolynas yra prie aktyvios žiedinės sankryžos. Buvęs vienuolyno pastatas šiame sklype buvo orientuotas išilgai palei aktyvią gatvę priešais esantį prekybos centrą. Naujai projektuojamas pastatas suformuoja bendruomenei trūkstamą privatumą ir atriboja nuo gatvės šurmulio, projektuojami vidiniai kiemeliai.Visaskompleksasužima pusę kvartaloirturi įvažiavimą iššiaurinės dalies į požeminę stovėjimo aikštelę. Iš rytinė ir šiaurinės sklypo pusės kituose kvartaluose vyrauja

Želdynas

Želdynas Aptarnaujantis įvažiavimas

38 pav. Sklypo plano schema. Sudaryta autorės

Reprezentacinė erdvė

Pagrindinis įvažiavimas

46

gyvenamieji privatūs pastatai, iš vakarinės ir pietinės – komercinės paskirties objektai šalia savęs formuojantys dideles erdves. Vienuolyno kompleksą juosia tvora, kuri padeda slopinti aplinkinius garsus (žr. 38 pav.)

• C.1.2. – pastato plano struktūra.

Į kompleksą patenkama per reprezentacinį įėjimą iš vakarinės pusės. Visas kompleksas dalijamas pagal veiklas: naujas korpusas užpildomas gyvenamosios paskirties ir keliomis darbo patalpomis, didžiajame korpuse yra sakralinės erdvės ir kitos darbo ir administracinės patalpos, valgomasis. Aiškiai išskiriamas didžiojo korpuso vidinis kiemelis apjuosiant jį koridoriumi, suprojektuota daug išėjimų per vitrinas tiesiai į lauką (žr. 39 pav.)

Reprezentacinis įėjimas

Sakralios erdvės

39 pav. Vienuolyno aukšto plano funkcinis zonavimas. Sudaryta autorės pagal originalų brėžinį

Darbo erdvės

Gyvenamos patalpos

Kietos dangos vidinis kiemelis

Vidinis kiemelis

47

C2. – Objekto meninis sprendimas.

• c.2.1. – kompozicinio sprendimo ypatumai.

Pastatas projektuotas kaip modernus ir funkcionalus objektas, kuris

dalina erdvę į dvi aiškias dalis, kad atspindėtų skirtingas bendruomenės gyventojų veiklas ir poreikius (žr. 40 pav.)

• c.2.2. – stiliniai ypatumai.

Siaurų aukštų langų komponavimas lygioje pastato sienoje yra

40 pav. Pagrindinis vienuolyno fasadas iš reprezentacinės erdvės. (Archdaily, 2015)

šio komplekso stiliaus išskirtinumas Šviesiai pilkos betoninės fasado plokštės savo stambiais gabaritais kontrastuoja su parinktais siaurais tamsiais langais. Pagrindinis gatvės fasadas – tai stambių aukštų ir žemų plokštumų kompozicija, kurią sustiprina šaltų neutralių spalvų –baltos ir tamsiai pilkos - naudojimas.

• c.2.3. – semantiškumo, psichologinio veikimo aspektai, kita.

Nors vienuolynas yra gan intensyvioje vietoje mieste, bandoma išsaugoti komplekso gyventojų ramybė ir susikaupimas pasitelkiant pastato pozicionavimo sklype ir kompozicijos metodiką. Naudojama spalvų paletė rami, neišsišokanti, patalpos pripildytos natūralios dienos šviesos, visa tai padeda išlaikyti rimtį, teigiamai veikia gyventojų emocijas.

C.3. – Objekto materialinė struktūra.

• c.3.1. – medžiaginis – konstrukcinis sprendimas (pastato konstruktyvinė sistema, pagrindinės statybinės ir apdailos medžiagos).

42 pav. Vienuolyno lygios plokštumos ir langų propocijos ir dydžių santykis fasade. (Archdaily, 2015)

41 pav. Vienuolyno galinio fasado vaizdas. (Archdaily, 2015)

48

Pasirinktabaltaspalvakuriašvaraus,tyro,paprastoirnesenstančiopastatovaizdą.Skirtingas medžiagų naudojimas baltame interjero ir eksterjero fone leidžia atskirti privačias ir atviras erdves, išryškina svarbiausius akcentus. Naudojamas akmens, medžio ir pilkos betono apdailos, kurios derinamos kartu su baltos spalvos dažais. Didelį medžiagiškumo išskirtinumą pabrėžia pro dideles vitrinas ir langus sklindanti natūrali šviesa (žr. 41 pav.).

Tamsesnės pilkos spalvos plokštės su netaisyklingos briaunos tekstūra dedamos ant varpinės bokšto paviršių, kad būtų įrodyta jos svarba ir sukuriamas orientyras į gatvę. Bokšto paviršiaus vertikalų ritmą tęsia kai kurių fasadų languose įrengtos žaliuzės tipo metalinės langinės (žr. 42 pav.).

• c.3.2. – inžinerinis – techninis aprūpinimas (įtakos architektūrinei kompozicijai aspektu).

Šio komplekso inžinerinis – techninis aprūpinimas pastato architektūrinei kompozicijai įtakos neturėjo.

49

1.4.4 Svečių namai privačiame sklype

Zarasų rajone

Architektai: HEIMAarchitektai

Plotas: 150 kv. m.

Vieta: Zarasų rajonas, Lietuva

Metai: 2022

A. Socialinis aspektas.

• A.1. – objekto paskirtis.

43 pav. Poilsio komplekso vaizdas iš viršaus lietuviško kraštovaizdžio panoramoje. (Heima, 2022)

Poilsio paskirties komplekso dalis – svečių namai – Zarasų rajone.

• A.2. – socialinė svarba.

Poilsio paskirties projektas prisideda prie Zarasų rajono turizmo apgyvendinimo paslaugų vystymo ir plėtros, atnešaekonominę naudą irdaroįtakątolimesnei versloplėtrai. Dabartiniaislaikais miesto gyventojų yra labai vertinamas poilsis gamtoje, atitrūkimas nuo darbinės aplinkos arba darbas nuotoliu apsigyvenus kitoje vietoje, todėl šis projektas yra puiki alternatyva pasiūlyti trumpam išsikelti iš miesto aplinkos.

B. Urbanistinis aspektas.

• B.1. – objekto vieta urbanistiniame kontekste (funkcinės organizacijos aspektas).

Svečių namai įsikūrę Zarasų rajono savivaldybėje 15.6 km iki miesto centro, tarp Gudelių ir Šiaulių kaimų. Šalia yra Izito ežeras, pastatų kompleksas apsuptas visiškos gamtinės aplinkos, teritorija gan kalvota (žr. 44 pav.)

• B.2. – objekto ryšio su aplinka pobūdis (kompozicinės organizacijos aspektas).

Kompleksas yra atokiau nuo pagrindinės gatvės, objektas – gamtinės aplinkos dominantė, tačiau neužgožia pačio lietuviško kraštovaizdžio. Savo

44 pav. Situacijos schema. Sudaryta autorės

50
Preliminari vieta Zarasai

architektūrine išraiška pastatai išryškina gamtines panoramas, atsispindi Aukštaitijos etnografinio regiono liaudies architektūros bruožus.

C.Architektūriniai-meniniai aspektai

C.1. – Objekto funkcinis sprendimas.

• C.1.1. – generalinis planas.

Poilsio kompleksas susideda iš pavėsinės su baseinu (1), papildomo statinio (2) ir svečių namų (3). Patekimas į svečių namus projektuojamas iš vidinės kiemelio pusės, kurią suformuoja keturių tūrių – korpusų kompozicija (žr. 45 pav.).

Įvažiavimas automobiliu

Lauko baseinas

Vandens telkinys

45 pav. Generalinis poilsio komplekso planas. Sudarytas autorės pagal originalų brėžinį

• C.1.2. – pastato plano struktūra.

Svečių namų objektas komponuojamas iš keturių korpusų, kuriuose išsidėlioja visos reikalingos funkcijos. Visi korpusai yra vieno aukšto, turi išraiškingus keturšlaičius stogus, kuriuose suprojektuoti dideli stoglangiai patalpas aprūpina nuolatine natūralia šviesa. Komplekse išdėstomi

46 pav. Svečių namų funkcinis plano zonavimas. Sudaryta autorės pagal originalų brėžinį

51
1 2 3

trys miegamieji kambariai su savo atskirais sanitariniais mazgais, rūbinėmis. Ketvirtame korpuse yra maža virtuvėlė, bendra rūbinė, bendras sanitarinis mazgas, pagalbinė patalpa ir svetainė. Visus korpusus jungia stiklinė galerija. Svetainės zonai paliekama galimybė prasiplėsti į lauką, nes šalia glaudžiasi terasa (žr. 46 pav.)

C2. – Objekto meninis sprendimas.

• c.2.1. – kompozicinio sprendimo ypatumai.

Kompleksas susideda iš keturių tūrių kompozicijos. Architektūrinė išraiška ir kompozicija

yra statiška, kiekviename tūryje vyrauja asimetrija dėl skirtingų stogų pokrypių.

• c.2.2. – stiliniai ypatumai.

Pagrindinis svečių komplekso stiliaus ypatumas – šlaitiniai stogai.

Atliepiant Lietuvos kaimų architektūrą, architektai meistriškai perteikė pagrindines lietuviško kaimo architektūros tradicijas moderniomis priemonėmis. Vienas iš šių

stogų akcentų – projektuojami stoglangiai aukščiausioje stogo šlaitų susikirtimo dalyje

(žr. 47 pav.) Stoglangių vietos stogo plane

skiriasi, jų padėtimi seka stogo pokrypis.

Masyvūs keturšlaičiai stogai atliepia

47 pav. Svečių namų komplekso vaizdas iš viršaus į stogų konfigūraciją. (Heima, 2022)

lietuviško kaimo trobų siluetus, viduje leidžia sukurti erdvias modernias patalpas be lubų perdangų, palėpės neprojektuojamos.

• c.2.3. – semantiškumo, psichologinio veikimo aspektai, kita.

Kompleksas suprojektuotas gamtinėje aplinkoje, leidžia atsipalaiduoti, nurimti, pailsėti. Per trumpą apsistojimo laikotarpį pagerinama žmogaus gyvenimo kokybė, sveikata ir nuotaika. Pasiekiamas emocinis stabilumas, subalansuojamas žmogaus psichologinis būvis. Turint omenyje, jog piligrimystei yra svarbusmentalinis susijungimas su Dievu, šiame projektai tai aiškiai atsiskleistų per gamtinę aplinką. Ji stebima per didelius vitrininius langus, projekte išreiškiama didelė svarba susijungti su gamta tiek vizualiai, tiek per pasirinktas statybines medžiagas.

C.3. – Objekto materialinė struktūra.

52

• c.3.1. – medžiaginis – konstrukcinis sprendimas (pastato konstruktyvinė sistema, pagrindinės statybinės ir apdailos medžiagos).

Svečių namuose daugiausiai naudojamos natūralios, lietuviškos medžiagos – išorinės sienos turi medinę apdailą, o stogai dengti ąžuolinėmis

čerpėmis. Interjere gausu medinių detalių: baldai, konstrukciniai elementai, lubų apdaila.

Eksponuojama medžio tekstūra ir raštai, derinami su šiltos (šviesiai rudos) ir šaltos (juodos, pilkos) spalvų atspalviais (žr. 48 pav.). Naudojamas tinkas sienoms ir akmens masės paviršiai (žr. 49 pav.).

48 pav. Medinės stogo apdailos ir geometrijos vaizdas iš vidaus. (Heima, 2022)

Didžiausias dėmesys buvo skirtas pastatų korpusų stogų konstrukciniam sprendimui. Paruošta autorių schema rodo sudėtingą gegnių dėliojimo būdą ir paliktas vietas stoglangiams įterpti (žr. 50 pav.). Ąžuolinių čerpių danga tvirta, sunki, atspari drėgmei.

• c.3.2. – inžinerinis – techninis aprūpinimas (įtakos architektūrinei kompozicijai aspektu).

Šio komplekso inžinerinis – techninis aprūpinimas pastato architektūrinei kompozicijai įtakos neturėjo.

49 pav. Tekstūrų ir spalvų paletė interjere. (Heima, 2022)

50 pav. Svečių namų konstrukcinis 3D aksonometrinis vaizdas. (Heima, 2022)

53

1.4.5 Piligrimų namai Estijoje

Architektai: KAOS architektai

Plotas: 420 kv. m.

Vieta: Vastseliina, Estija

Metai: 2018

51 pav. Pagrindinis piligrimų namų fasadas. (Archdaily, 2021)

A. Socialinis aspektas.

• A.1. – objekto paskirtis.

Piligrimų namai Estijoje.

• A.2. – socialinė svarba.

Po 1353 m. įvykusio Mergelės Marijos apsireiškimo, ši lokacija tapo viena iš populiariausių piligriminių kelionių lankymo vieta. Piligrimų namai papildo viduramžių pilių kompleksą pietryčių Estijoje, skirtą viešamlankymui,suteikiagalimybę pažvelgtiįviduramžiųgyvenimąirsavirefleksijos galimybę.

B. Urbanistinis aspektas.

• B.1. – objekto vieta urbanistiniame kontekste (funkcinės organizacijos aspektas).

Piligrimų namai projektuoti Vana–Vastseliina miestelio rytuose palei Vastseliinos vyskupų pilies griuvėsius. Greta eina kelias į miestelį, kuriuo važiuojant į miestą piligrimų namai atsiveria savo didžiuoju fasadu, kur matosi abiejų aukštų lygiai. Kadangi piligrimų namų sklypas yra palei miestelio administracinę ribą, atokiau nuo centro, objektas tampa miestelio vartų simboliu rytuose (žr. 52 pav.).

54
52 pav. Vaizdas atvykstant į Vana-Vatseliina miestelį. Šaltinis: www.googlemaps.com

• B.2. – objekto ryšio su aplinka pobūdis (kompozicinės organizacijos aspektas).

Namas buvo pastatytas ant šlaito ir suprojektuotas taip, kad nebūtų užblokuotas vaizdas į tai, kas liko iš pilies. Pastatas vasaromis slepiasi už masyvių medžių lajų, tampa foninės architektūros pavyzdžiu (žr. 53 pav.).

C. Architektūriniai-meniniai aspektai

C.1. – Objekto funkcinis sprendimas.

• C.1.1. – generalinis planas.

Pastatas orientuojamas pagal esamą reljefą, atokiau nuo pilies griuvėsių, o dėl esančiošlaito pakrypsta nuo gatvės linijos. Esamas objektas ir naujas projektuojamas piligrimų centras visiškai uždaro gatvės triukšmą (žr. 54 pav.). Piligrimų centras turi du aukštus. Pagrindinis įėjimas į piligrimų centrą projektuojamas iš kiemo pusės, kitapus šlaito. Papildomi įėjimai projektuojami iš maitinimo zonos antrajame aukšte Įvažiavimas automobiliui neprojektuojamas, paliekamas esamas iš vakarinės sklypo pusės prie esamos kavinės ir muziejaus esamame pastate Sklype gausu medžių, kurie pridengia naująjį komplekso pastatą ir leidžia vizualiai atsiskleisti pilies griuvėsių estetikai.

• C.1.2. – pastato plano struktūra.

53 pav. Vaizdas išvykstant iš miestelio. Naujasis piligrimų centras maskuojamas masyviomis medžių lajomis. Šaltinis: www.googlemaps.com

Pilies griuvėsiai

Esamas pastatas

54 pav. Generalinis komplekso planas. Sudaryta autorės pagal originalų brėžinį

Piligrimų namuose per du aukštus išdėstomos įvairios funkcijos: maitinimo, parodų-edukacijos, sanitarinės, pagalbinės patalpos, nakvynės. Kadangi pastatas projektuotas ant šlaito, pirmasis aukštas traktuojamas šlaito apatinėje dalyje, antrasis aukštas yra pagrindinis aukštas pro kurį patenkama į piligrimų namus šlaito viršuje. Pirmajame aukšte patenkama į pastatą per bendrą susibūrimų patalpą. Šiame aukšte projektuojamos svarbiausios erdvės – sanitarinės ir apgyvendinimo. Žmonių srautai juda centriniu koridoriumi, pagalbinės patalpos dėliojamos šlaito pusėje, kur nereikalinga natūrali saulės šviesa (žr. 56 pav.). Antrajame aukšte iš lauko ateinančių žmonių srautus paskirsto per erdvų tambūrą prie kurio blokuojamos sanitarinės patalpos. Šiame aukšte planuojamos didesnės patalpos

55

be smulkesnio sudalinimo (žr. 55 pav.) Žemyn į pirmąjį aukštą patenkama iš maitinimo zonos. Pastate gausu smailių kampų, tačiau jie lengvai pritaikomi ir išnaudojami patalpose. Prie pastato vidaus erdvių derintos lauko erdvės – prie maitinimo zonos lauke įrengta terasa, kur galima pastatyti lauko staliukus šiltuoju sezonu, šalia pastato įrengti laipteliai, nusileidus šlaitu sklandžiai patekti į apatinį pirmąjį aukštą.

55 pav. Antro aukšto funkcinis plano zonavimas šlaito viršuje. Sudaryta autorės pagal originalų brėžinį

C2. – Objekto meninis sprendimas.

56 pav. Pirmo aukšto funkcinis plano zonavimas šlaito apačioje. Sudaryta autorės pagal originalų brėžinį

• c.2.1. – kompozicinio sprendimo ypatumai.

Pastato kompoziciniam pritaikymui labiausiai

įtaką darė egzistuojantis reljefas ir šlaitas ant kurio pastatas stovi. Pastatas statiškai įsmukęs į žemę, įėjimų pozicionavimas leidžia į pastatą patekti iš bet kurio lygio – tiek šlaito viršuje, tiek apatinėje dalyje (žr. 57 pav.)

• c.2.2. – stiliniai ypatumai.

57 pav. Konstrukcinis pjūvis per pastatą ir pastato pozicionavimo principas šlaite. (Archdaily, 2021)

56

Pastato eksterjere egzistuoja akivaizdus išskirtinumas – fasaduose esančių langų angų stilistika (žr. 58 pav.). Maži langai aklinose sienose turi sąsajų su ankstyvųjų pilių langų dydžiais ir proporcijomis fasaduose. Tačiau šiuo atveju tai perteikti pasirinktas modernus sprendimas – langų angų išorines palanges ekspresyviai geometrizuojant į 3D efekto trikampius.

58 pav. Langų angų stilistinis ypatumas. (Archdaily, 2021)

• c.2.3. – semantiškumo, psichologinio veikimo aspektai, kita.

Minimalistinis vidaus dizainas ir vientisas pastato eksterjeras suteikia elegantiškumo ir modernumo vaizdą. Akivaizdžiai perteikiamas piligrimystės pagrindinis bruožas – minimalistinio ir paprasto gyvenimo būdo charakteris, patalpas ir funkcijas pritaikant tik būtiniausiems fiziniams poreikiams.

C.3. – Objekto materialinė struktūra.

• c.3.1. – medžiaginis – konstrukcinis sprendimas (pastato konstruktyvinė sistema, pagrindinės statybinės ir apdailos medžiagos).

57

Pastate siekiama išeksponuoti viduramžių laikotarpį siejant su esama pilies tematika. Interjere vyrauja aukšti kambariai ir aukštos durys, išsiskirianti laiptų konfigūracija (žr. 61 pav.).

Projektuojamos slaptos nišos, grindims naudojamos plytos, sienos ir lubos paprastai tinkuojamos, interjere naudojamos natūralios medžiagos, kaip mediena, aptinkama įvairių liaudies raštų (žr. 60 pav.). Projektuojami maži langeliai aklinose sienose primena ankstyvąsias pilis. Pastato eksterjere, fasadams pasirinkta naudoti atmosferos pokyčiamsatspari medžiaga – Kortenas –savo raudonai rudu atspalviu susilieja su pilies raudonų plytų ir granito fonu, tačiau naują komplekso pastatą perteikia itin moderniai (žr. 59 pav.).

61 pav. Sanitarinio kambario interjeras. (Archdaily, 2021)

60 pav. Miegamosios erdvės interjeras. (Archdaily, 2021)

59 pav. Eksterjero fasado Korteno apdaila. (Archdaily, 2021)

• c.3.2. – inžinerinis – techninis aprūpinimas (įtakos architektūrinei kompozicijai aspektu).

Pastatas aprūpintas moderniomis ir energiją taupančiomis techninėmis sistemomis. Didelės įtakos pastato kompozicijai tai neturi, tačiau sunkumų aprūpinti namą energiją galėjo kilti dėl išraiškingo reljefo.

58

1.4.6Analogų susisteminimas

2 lentelė. Analizuotų analogų susisteminimo lentelė.

Nr. Nuotrauka

1.

Architektas Funkcija Metai Sąsajos su piligrimyste

Tamás Nagy

Piligrimų centras 2015

Per gamtą, architektūrines formas ir išraišką

Gamtinis / urbanistinis kontekstas

Gamtinis

Dominuojantis medžiagiškumas

Natūralus (mediena)

2. LETH & GORI

Piligrimų centras 2011

Per jungtį su sakraliu pastatu

Gamtinis / kaimo

Natūralus (mediena)

3. Hernández

architektai Vienuolynas 2014

Per pastatų kompoziciją, vidinių tylių erdvių kūrimą

Urbanistinis Tinkas, betonas

4. HEIMA

architektai

Svečių namai 2022

Per gamtą

Gamtinis / kaimo

Natūralus (mediena)

5. KAOS

architektai

Piligrimų centras 2018

Per gamtą, minimalizmą, perteikiamą tematiką

Gamtinis

Metalas, mediena

59

1.4.7Analogų analizės išvados

Analogų apžvalgai buvo pasirinkti nagrinėti įvairių tipologijų aukštos kokybės pavyzdžiai.

Kiekvieną analogą buvo siekiama išnagrinėti per žmogaus jausmų prizmę, siejant su piligrimine tematika.

Apibendrinant galima teigti, kad piligrimų centrai dažniausiai projektuojami gamtinėje aplinkoje atokiaunuo centrinių miestų vietų. Sąsajos su gamtine aplinka labai svarbios dėl tiesioginio susijungimo su Dievu. Buvimasgamtoje skatina transcendentinį būvį,kurisleidžia lengviaumintimis persikelti į anapusinį pasaulį. Dauguma piligriminiųcentrųatsiranda tose vietose,kurįvyko Mergelės Marijos apsireiškimas arba dėl kitų istorinių įvykių. Tokie centrai orientuojami patenkinti svarbiausius ir būtiniausius fizinius poreikius be pridėtinių nereikalingų funkcijų. Nagrinėjant piligriminių centrų analogus buvo reikalinga išsiaiškinti trumpalaikio apgyvendinimo specifikas, išaiškėjo vienos iš svarbiausių funkcijų - sanitarinės, tualetų ir dušų - įrengimas ne tik kambariams, bet ir kaip atskirų blokų komponavimas praeinantiems piligrimams.

Vienuolyno tipologija taip pat svarbi suvokimui, kadangi anksčiau piligriminės grupės apsistodavo vienuolynuose. Jų planinę struktūrą tinkama pritaikyti piligriminiams centrams, kuriems reikia priimti didesnes keliaujančiųjų grupes, juose pritaikytos maitinimo zonos pasirūpinti ilgiau apsistojančiomis grupėmis, o darbo, susirinkimų ir sakralios erdvės svarbios užimti žmones, kad jie galėtų kažką veikti.

Visuose analoguose buvo stengiamasi perteikti minimalistinį gyvenimo būdą, kuris yra būdingas piligrimystei. Atsisakoma visko, kad nereikalinga ir rūpinamasi tik būtiniausiais žmogiškaisiais poreikiais. Daugumoje analogų vyrauja ramios, neutralios spalvos, daugiausiai naudota natūrali statybinė ir apdailinė medžiaga – mediena. Todėl galima teigti, jog dauguma piligrimų centrų - tvarūs ir ekologiški dėl naudojamų medžiagų ir kuriamos geresnės gyvenimo kokybės. Medienos pritaikymas statybose yra vienas geriausių būdų mažinti energijos suvartojimą. Propaguojamas minimalistinis stilius taip pat turi teigiamą poveikį tvarumo atžvilgiu.

60

1.5 Meninis tyrimas

Meninis tyrimas buvo inspiruotas 2021 m. Šiluvos meno bienalės tema ,,Paliesta žemė“, menininkės Eglės Einikytės–Narkervičienės instaliacija Prisilietimas (žr. 63 pav.), menininkės Židrijos Janušaitės druskos performansu (žr. 62 pav.) bei Šventojo Rašto tezių skaitymu. Pasirinktos priemonėsbuvo vieniišpagrindiniųelementų, nuolat minimų Šv. Rašte –tai smėlis,vanduoir druska.

Iš Šv. Rašto apie druską:

„Jūs esate žemės druska. Jei druska netenka sūrumo, kuo gi ją reikėtų pasūdyti? Ji niekam netinka, ir belieka ją išberti žmonėms sumindžioti.“ (Mt 5,13)

Iš Šv. Rašto apie vandenį:

„Kai eisi per vandenį, Aš būsiu su tavimi ir upės nepaskandins tavęs. Kai eisi per ugnį, nesudegsi ir liepsna nesunaikins tavęs.“ (Iz 43,2)

„Kas mane tiki, kaip Raštas sako, iš jo vidaus plūs gyvojo vandens upės”. (Jn 7,38)

Iš Šv. Rašto apie žemę:

„Žemė, į kurią einate, yra kalnų ir slėnių šalis, kurią laisto dangaus lietus, Viešpats, jūsų Dievas, visada aprūpina ją, Jo akys stebi ją ištisus metus.“ ( Įst 11,8-14)

Iš Šv. Rašto apie druską:

Iš Šv. Rašto apie vandenį:

„Jūs esate žemės druska. Jei druska netenka sūrumo, kuo gi ją reikėtų pasūdyti? Ji niekam netinka, ir belieka ją išberti žmonėms sumindžioti.“ (Mt 5,13)

„Kai eisi per vandenį, Aš būsiu su tavimi ir upės nepaskandins tavęs. Kai eisi per ugnį, nesudegsi ir liepsna nesunaikins tavęs.“ (Iz 43,2)

63 pav.Eglės Einikytės–Narkervičienės instaliacija Prisilietimas. Dabar betoninė plytelė įkomponuota prie Šiluvos Švč. Mergelės MarijosApsireiškimo koplyčios grindinyje. Šaltinis: www.menopiligrimai.lt

„Kas mane tiki, kaip Raštas sako, iš jo vidaus plūs gyvojo vandens upės”. (Jn 7,38)

Iš Šv. Rašto apie žemę:

62 pav. Židrijos Janušaitės druskos performansas Šiluvos aikštėje. Šaltinis: www. menopiligrimai.lt

„Žemė, į kurią einate, yra kalnų ir slėnių šalis, kurią laisto dangaus lietus, Viešpats, jūsų Dievas, visada aprūpina ją, Jo akys stebi ją ištisus metus.“ ( Įst 11,8-14)

Tyrimo metu buvo atliktas maketas, kuriam buvo naudotos trys pagrindinės priemonės –smėlis, vanduoir druska. Pasitelkiant fizikines ir chemines medžiagų savybes, maketu buvo siekiama palikti ir užfiksuoti žmogaus prisilietimą ant žemės paviršiaus, pasitelkiant žmogaus emocijas ir gamtines stichijas (gravitaciją, vandens tekėjimą).

Iš Šv. Rašto apie druską:

„Jūs esate žemės druska. Jei druska netenka sūrumo, kuo gi ją reikėtų pasūdyti? Ji niekam netinka, ir belieka ją išberti žmonėms sumindžioti.“ (Mt 5,13)

Iš Šv. Rašto apie vandenį:

61

Darbo eiga. Kad smėlio smiltelės nejudėtų –žemės paviršius užsifiksuotų – buvo reikalinga jas surišti.

Druska tyrime veikė kaip rišantysis elementas. Druską ištirpdžius vandenyje ir vandenį užpylus arba tolygiai užpurškus ant smėlio, visą maketą reikėjo pakaitinti, kad vanduo išgaruotų, druska sustingtų ir smėlio paviršius sukietėtų. Išpūtus iš apačios esantį sausą smėlį susiformavo įdomios vidinės erdvės su neplanuotomis ertmėmis šviesai. „Jėzus vėl prabilo: Aš – pasaulio šviesa.

Kas seka manimi, nebevaikščios tamsoje, bet turės gyvenimo šviesą”. (Jn 8,12)

Atliekant bandymą ir vandenį pilant rankos mostu, iš emocijos, nesvarbu, kad ir kaip buvo stengtasi vandenį nukreipti tam tikra linkme, jis tekėjo nevaldomai, formavo padriką paviršių smėlyje. Tai tarsi įprasmina, įkūnija įvykusį apsireiškimą, nuskambėjusią žinią apie

Mergelės Marijos apsireiškimus, kuri pasklido nevaldomai burdama bendruomenes bendram religiniam tikslui.

Interpretuojant atliktą maketą (žr. 64 pav.), bandymą ir Šv. Rašto tezes, maketas simbolizuoja bendruomenės įspaudą žemėje, kaip nevaldomą ir neribojamą apsireiškimo žinios skleidimą ir bendruomenės vienijimąsi, tiesiogiai perteikia piligrimystės prasmę, kaip žmonių keliones žemės paviršiumi pėdsaką.

Druska – tai mes. (Židrija Janušaitė poemoje druskai)

64 pav. Interpretacinis maketas principui pavaizduoti.Autorės nuotraukos

62

1.5.1 Eksperimentinis tyrimas

Meninio tyrimo metu išryškėjus vienai sudėtinei medžiagai – druskai, eksperimentinio tyrimo metu buvo užsibrėžta užauginti druskos kristalų struktūras, kurios savo forma galėtų suteikti pradžią projektavimo etapui Dar kartą visas tiriamasis procesas buvo atiduotas gamtos procesams ir jos kūrybai, viskas buvo dokumentuota ir stebėta iš šalies. 4 savaičių rezultatas (žr. 65-66 pav.):

1 2 3 4

65 pav. Druskos kristalai augantys taisyklinga kubo forma. 1 – linijinė, iš užaugusių kubo formos kristalų, susiformavusi struktūra; 2, 3 ir 4 – užauginta tobula kubo forma vandenyje. Autorės nuotraukos

63

66 pav. Druskos kristalai augantys organiškomis formomis virš vandens ore. 1 – druskos keliavimas raišteliu; 2 ir 3 – druskos kauburėlių forma ir priartintas vaizdas; 2 ir 4 – druskos suformuoti organiški raštai ant indo briaunos.Autorės nuotraukos

Į druskos ir vandens mišinį buvo įleisti įvairūs objektai – siuvimo siūlai su metaliniais vinimis, raišteliai, mezgimo siūlai. Eksperimentinio tyrimo metu po beveik keturių savaičių buvo gauti dvejopi rezultatai: užauginta ir išgryninta tobuliausia geometrinė forma – kubas ir labai organiškos tarsi apaugusios kauburėlių struktūros. Pirmojoje nuotraukoje (žr. 65 pav.) matomos susiformavusios kubo formos linijinės struktūros ant plono siuvimo siūlo. Ši struktūra palaipsniui augo vandens tirpale vis pasipildydama toje pačioje atkarpoje. Organiškos kauburėlių struktūros formavosi ore, virš vandens paviršiaus ant storo raištelio, kuris dėl vandens nuolat buvo permirkęs ir struktūros lengviau augo ant jo, nei vandenyje (žr. 67-69 pav.).

64
1 2 3 4
65 1 2 3 4 5 6
67 pav. Druskos kristalų augimo procesas. 4 - užauginta struktūra; 5 - druskos kristalai užaugę tirpale, indo dugne ;6 - Formavimosi principas iš tiesių linijų į apaugusius kauburėlius.Autorės nuotraukos

68 pav.Augimo procesas po 5-5.5 savaičių.Autorės nuotraukos

66

69 pav. Užaugintų struktūrų formos ir tipai.Autorės nuotraukos ir schemos

67

1.5.3 Išvados

Pirmajame meninio tyrimo etape įrodoma, jog dvasinį ir emocinį ryšį tarp tikėjimo ir žmogaus galima perteikti materialiu pavidalu. Iš Šventojo Rašto pasirinkti trys elementai – smėlis (žemė), vanduo ir druska, kuriuos pasitelkiant sukuriamas organiškas maketas, kuris reprezentuoja ,,Paliestos žemės“ tematiką. Maketas simbolizuoja bendruomenės įspaudą žemėje, kaip nevaldomą ir neribojamą apsireiškimo žinios skleidimą ir bendruomenės vienijimąsi, leidžia interpretuoti piligrimystės prasmę, parodo bendruomenės įvietinimo ir lokalizavimo svarbą žemėje. Išgryninama druskos, kaip rišančiojo elementosvarba kompozicijoje, toliau ji pasitelkta eksperimentiniam tyrimui ir tolimesnėje projektavimo dalyje figūruoja kaip inspiracijos šaltinis

Eksperimentinio tyrimo metu vaizduojama, kad gamtos sukurti rezultatai gali būti esminiu atskaitos tašku projektavime. Pasitelkiant gamtines stichijas, galima sukurti inovatyvias ir originalias struktūras. Tyrimo metu buvo išgrynintos dvi augančios struktūros – taisyklinga geometrinė forma ir organiškoji Meninio tyrimo rezultatas yra išsiaiškinta druskos nauda žmogui – sausos druskos terapijos (haloterapija), galimybė gautas tekstūras ir raštus panaudoti interjere, apdailoje, rekreacinės paskirties erdvėse. Baigiamajame darbe vienas iš svarbiausių dalykų – socialinis temos aspektas. Interviu metu paaiškėjo pagrindiniai piligrimų bendruomenių poreikiai ir norai, buvo išsiaiškinta, kokių patalpų ir funkcijų gali reikėti projektuojamam piligrimų centrui. Aptarta bažnytinio meno ir jo egzistavimo religijoje svarba, šventųjų paveikslų konfigūravimas sakraliose erdvėse, grožio siekimas ir jo būtinybė kasdienybėje. Pokalbis įkvėpė tyrinėti išsamesnį tikėjimo suvokimą.

71 pav. Geometrinis druskos kristalų augimo principas Nr. I.Autorės schema

70 pav. Organiškas druskos kristalų augimo principas Nr. II. Autorės schema

68

2.

2.1 Projekto vieta

Bendruomenės ir piligrimystės tematika artima toms vietoms, kurios apima itin stiprią religinę dvasią.

Lietuvoje galima rasti tokią vietą, į kurią traukia

tūkstančiai piligrimų ir yra įvykęs Šv. Mergelės Marijos apsireiškimas – Šiluva.

Pasirinkta teritorija yra Šiluvos miestelyje, kuris

yra Raseinių rajono savivaldybės šiaurinėje dalyje.

Projektuojamas sklypas yra Šiluvos miestelio pietinėje dalyje, nuo Raseinių pusės tampa ,,miesto vartais“, pastebimas pats pirmas išvažiavus iš miško teritorijos.

Teritorija – apie 37 000 m2 ploto. Ją sudaro sklypas, 72 pav. Sklypo lokacija miestelyje. Sudaryta autorės

73 pav. Šiluvos miesto padėtis Lietuvos atžvilgiu. Sudaryta autorės

69
ANALIZĖ
DAUGIAASPEKTĖ VIETOS TYRIMŲ

priklausantis savivaldybei, ir laisva valstybinė žemė, kuri, esant poreikiui, taip pat gali būti panaudojama.

2.2 Istorinė miestelio raida pagal a. Miškinį

Iki XVI a. vid.

• Pirminė gyvenvietė kūrėsi dabartinio Šiluvos miestelio vietoje.

• Nėra nustatyta kada tiksliai Šiluvos miestelis pradėjo kurtis, bet XV a. pr. minimas nedidelis kaimas

vakarinėje Šiaulių – Raseinių prekybos kelio pusėje. Šiluvos miestelio atsiradimas dar siejamas su

Gelgaudų šeima turėjusia valdas – dvarą vietovėje, kurią vadino ,,Šilais arba Būda“. Petras Gelgaudas, Jurgio Gelgaudo sūnus, po tėvo mirties 1457 m. įsteigė ir aprūpino katalikų bažnyčią, kuri netrukus buvo pastatyta. Bažnyčia buvo statyta šalia gyvenvietės, arčiaužmonių. Bažnyčios lokacija buvo aukštesnėje gyvenvietės vietoje.

• XV a. vid. buvo tikėta, kad Šiluva jau buvo gausiai apgyvendinta, nes katalikų bažnyčios po 1413 m. Žemaičių krikšto buvo statomos,tose teritorijose,kur vyravodidesnėsbendruomenės.Kurtiskaimavietėms pradžią davė įsikūrę miško – Šilo – kirtėjai.

• XV a. pab. – XVI a. pr. Šiluvos gyvenvietė tapo miesteliu.

• Vienas reikšmingiausių įvykių – turgaus aikštės atsiradimas į vakarus nuo bažnyčios.

• Nuo XVI a. vid. iki XVII a. 8 dešimt.

• Turgaus aikštės forma ir dydis tampa panašių į LDK miestelių aikščių proporcijas. Aikštės padėtis darė įtaką miestelio plėtrai ir užstatymui.

• Šiuo laikotarpiuvyko Šiluvos smukimo periodas, nes XVI a. 3 dešimt. pradėjus plisti reformacijai, apie 1525 m. jos pasekėju tapo tuometinis Šiluvos dvaro ir miestelio savininkas. Tuo metu į rytus netoli

74 pav. Šiluvos miesto vystymosi schemos XV a. vid., XVII a. 7 dešimt. ir XVIII a. vid. Laikotarpiais. Sudaryta autorės pagal A. Miškinio schemas

70

miestelio buvopastatyta evangelikų reformatųmaldykla,o vėliausudeginta Šiluvoskatalikų bažnyčia. Miestelio reikšmė sumažėjo ir neigiamai atsiliepė ūkinei raidai. Didžioji žmonių gyvenimo dalis persikėlė į kitą centrą rytuose, senoji teritorija nebesiplėtė.

• 1663 m. pastatyta koplyčia Šiluvos vakarų pakraštyje, Lyduvėnų kelio pietų pusėje –Mergelės Marijos apsireiškimo vietoje. Bažnyčios ir koplyčios padėtis leido suformuoti kompozicijosašį,prie kuriosišsidėstė dauguma XVII a.miestelėnųsodybųsuvienaukščiais mediniais namais.

• Dėl 1669 m. vykusio susirėmimo tarp evangelikų reformatų ir katalikų, buvo priimtas sprendimas likviduoti reformatų bendruomenę, konfiskuoti žemes, palikti tik jų bažnyčią ir kleboniją.

Nuo XVII a. 8 dešimt. iki XVIII a. pab.

• Miestelį alino karai, badas ir maras, gyvenvietė nedidėjo.

• Religija įgavo didesnę svarbą, miestelis grįžo kataliko bažnyčios dėmesyje.

• Šiluvai gavus turgaus privilegiją, bandant ūkiškai ugdyti gyvenvietę, XVIII a. dalis šiaurinės teritorijos buvo užstatyta palei Šiaulėnų kelią, planuota kvadratinė turgaus aikštė apsupta sklypais. Turgaus aikštė tapo visos gyvenvietės centru, tai galėjo daryti įtaką ir gatvių tinklo raidai.

• 1760 m. pradėta statyti nauja mūrinė vėlyvojo baroko stiliaus bažnyčia. Nuo XVIII a. pab. iki I ir II Pasaulinių karų pabaigos

• XIX a. pr. miestelis plėtėsi į šiaurės rytus, buvo garsus prekymečio laikotarpiais, į miestelį suvažiuodavo daug pirklių, prekymečio metu buvo platinama draudžiama lietuviška spauda.

• Šiluvos miestelis per 1831 m. sukilimą buvo įvykių centre, ne kartą žygiavo sukilėlių būriai, stovyklavo pačiame miestelyje.

• Po sukilimų vyko kelių projektavimo darbai, tiesiami keliai ir plentai, Šiluva schematiškai buvo pažymėta viename iš topografinių planų. Nuolat buvo sudarinėjami miestelio planai, nors ir netikslūs. Planuose visada žymėtos turgaus ir priešais bažnyčią esančios aikštės, aplink turgaus aikštę žymėti taisyklingi sklypai, kuriuose daugiausiai negausiai gyvendavo žydai prekybininkai, subraižomi kiti miestelio gyventojų sklypai skirtingais laikotarpiais.

• Po 1863 m. sukilimo uždraudus lietuvišką spaudą, pradėtas perversmas švietimo įstaigose. Dėstyta rusų kalba, suvaržyta religinė miestelio veikla, atlaidai, bažnyčios veikla. Buvo numatyta statyti mūrinę cerkvę turgaus aikštėje, tačiau miestelio klebonas nupirko sklypą, jį aptvėrė ir pastatė Dievo Motinos skulptūrą. Vėliau po lietuviškos spaudos draudimo panaikinimo, įsteigta lietuviška parapinė mokykla, pastatytas medinis vieno aukšto pastatas į rytus nuo kapinių iš dalies gadino vyravusią kompozicinę ašį tarp koplyčios ir bažnyčios.

71

• Miestelį alino gaisrai, nukentėjo bažnyčia, degė jos stogas, vargonai, varpai. 1912 m. buvo nugriauta senoji

koplyčia ir pagal architekto A. Vivulskio projektą

pradėta statyti nauja, tačiau jos užbaigimui trukdė 1914 m. prasidėjęs I Pasaulinis karas, jo metu iš dalies apgriauta. Po karo gyventojų sumažėjo, tačiau pagyvėjo

ūkinis ir kultūrinis gyvenimas. 1924 m. baigta statyti koplyčia tapo reikšmingu miestelio panoramos

formantu, dominavo vakarinėje jo dalyje.Apie 1940 m. išpopuliarėjus atlaidams ir miesteliui jų metu pasitinkam apie 100 – 150 tūkst. žmonių, išryškėjo

pagrindinės miestelio problemos: Šiluva nebuvo pasirengusi priimti tiek turistų ir tikinčiųjų, trūko viešbučių, nakvynės namų, šventovių aplinka nebuvo sutvarkyta, nepuošni, kliudė ir tarp koplyčios ir bažnyčios stovintys gyvenamieji namai, kurie trukdė suformuoti aiškią kompozicinę ašį tarpusavyje ir užėmė svarbią vietą, kurioje galėjo būti bendra erdvė – aikštė. Vėliau apie 1939 m. buvo suteiktas leidimas gyvenamuosius namus, stovinčius tarp koplyčios ir bažnyčios, griauti ir atverti bendrą miestelio erdvę, praplatinti ir nukreipti egzistuojančius kelius aikštės riboms įtvirtinti.

• Šiluvos miestelio urbanistinė raida buvo nenuosekli, šokinėjanti. Tačiau miestelis vis tiek įgavo savitumo ir neeilinę charakteristiką, buvo suformuota pagrindinė kompozicinė ašis išlikusi iki šių laikų. (Miškinis, 2002)

76 pav. Lietuviškas karinis topografinis žemėlapis buvo pagrindinis tarpukario

Lietuvos topografinis

žemėlapis. Metai: 1927-1940 (Lietuvos mokslų akademijos Vrublevskių biblioteka, 2016)

75 pav. Vokiškas operatyvinis žemėlapis. Metai: 1912 (Lietuvos mokslų akademijos Vrublevskių biblioteka, 2016)

77 pav. Vokiškas topografinis žemėlapis „Karte des westlichen Rußlands“. Metai: 1914-1921 (Lietuvos mokslų akademijos Vrublevskių biblioteka, 2016)

78 pav. Istorinis Šiluvos miesto centras

72

2.3 Judumas

2.3.1 Tarpmiestinis susisiekimas automobiliu

Šiluvos miestelį galima pasiekti automobiliu. Šiluva – miestelis 19 km į šiaurę nuo Raseinių, 8 km į pietus nuo Tytuvėnų

79 pav. Šiluvos miestelio pasiekiamumas automobiliu. Sudaryta autorės

73

2.3.2 Dviračių trasos

Šiluvos mieste praeina dvi Tytuvėnų regioninio parko dviračių trasos. Abu keliai leidžia

išvysti regioniniame parke išsidėsčiusius traukos taškus – įvairius architektūrinius paminklus. Į

Šiluvosmiestą išTytuvėnųvedąkietosdangosdviračiųirpėsčiųjųtakas,kurisužsibaigia tiesEžerėlio gatve prie šiaurinio įvažiavimo į miestą. (Dviračių trasų žemėlapis, 2023 )

Pro Šiluvą ir Lyduvėnus (41 km)

Daugiau kaip pusę maršruto sudaro žvyrkelis, daugiau asfaltas. Reljefas gana lygus, tik reikia dukart nusileisti ir pakilti į Dubysos upės slėnį (aukščių skirtumas daugiau kaip 30 m ).

Nedidelė kelionės dalis vyks mišku. Keliaujant galima pamatyti Tytuvėnų bažnyčios ir vienuolyno ansamblį, Šiluvą, Žalpių akmenį su pėda, Lyduvėnų tiltą su Dubysos slėniu, Maironių koplytėlę su stebuklingu šaltiniu, Pagryžuvio piliakalnį ir dvaro sodybą.

80 pav. Dviračių trasos išsidėstymas pro Šiluvą ir Lyduvėnus (Dviračių trasų žemėlapis, 2023 )

Miškais ir Vario kalnu (35 km)

83 pav. Dviračių trasos ,,Miškais ir Vario kalnu" išsidėstymas (Dviračių trasų žemėlapis, 2023 )

81 pav. Dviračių trasos atkarpa Šiluvoje. Sudaryta autorės

82 pav. Dviračių trasos atkarpa Šiluvoje. Sudaryta autorės

74

Dalis kelio driekiasi miškais, o gražiausia kelio atkarpa vingiuoja labai vaizdingu kalvagūbriu, besidriekiančiu už Šiluvos. Didžioji dalis kelių geros būklės, gruntiniai, šiek tiek žvyrkelio ir 8 kilometrus asfalto. Peraukštėjimai nedideli ir nestatūs. Keliaujant galima pamatyti Šiaulelių piliakalnį, Šiluvą, Vičių kaimo skulptūras ir kita.

Planuojama nacionalinių pėsčiųjų ir dviračių takų plėtra

84 pav. Planuojama pėsčiųjų ir dviračių takų plėtra pro Šiluvą. Planuojamas naujas dviračių ir pėsčiųjų takas iš Raseinių į Šiluvą. Tai leistų sujungti Raseinius ir Tytuvėnus pro Šiluvą. (Lietuvos automobilių kelių direkcija)

Nacionalinių pėsčiųjų ir dviračių takų plėtros žemėlapyje pažymėta planuojama pėsčiųjų ir dviračių tako atkarpa, kuri sujungtų Tytuvėnus, Šiluvą ir Raseinius į bendrą dviračių ir pėsčiųjų takų tinklą. Naujas takas būtų beveik 16.50 km ilgio, sujungtų Šiluvos miestą su Raseiniais. Dabartinis dviračių ir pėsčiųjų 8.15 km takas eina tarp Tytuvėnų ir Šiluvos.

2.3.3 Infrastruktūros būklė

Šiluvos Bendrojo plano koncepcijos aiškinamajame rašte teigiama, kad esama miestelio susisiekimo sistema ir infrastruktūra yra palanki Šiluvos gyventojų aptarnavimui. Pabrėžiama, jog nepatogumui ir susisiekimo problemos iškyla atlaidų metu, bet tai yra trumpalaikiai renginiai, kurie nesudaro didesnės įtakos gyventojams ir tolimesni sprendiniai eismo reguliavimui nėra numatomi. Šie sprendiniai buvo numatyti prieš beveik daugiau nei dešimtiems metų laikotarpį, todėl dabartinėje situacijoje išlieka sąlyginiai.

Priešais projektuojamą sklypą yra Jono Pauliaus II-ojo nusileidimo aikštė, kurią ateityje yra numatyta paversti kemperių stovėjimo aikštele. Dabartinėje situacijoje ši aikštė atlaidų metu virsta automobilių stovėjimo aikštele.

75

2.4 Inžinerinė infrastruktūra

85 pav. Ištrauka iš inžinerinių tinklų brėžinio. (Šiluvos miestelio teritorijos bendrasis planas. Sprendiniai, 2012)

Projektuojamame sklype yra atvestos požeminės komunikacijos. Šalia yra esama aukštos įtampos elektros oro linija. Aplink ją

numatyta 10 kV įtampos elektros oro linijos apsaugos zona. Taip pat gretimame sklype yra transformatorinė. Užtikrinamas patogus

elektros prijungimas naujai prie projektuojamo pastato ir kitų statinių.

76

2.5 Gamtinis karkasas

2.5.1 Reljefas

86 pav. Ištrauka išArcgisApplication Lietuvos reljefo. (Lietuvos reljefas, 2012)

Šiluvosmiestelioreljefasnelygus,kalvotas.Projektuojamassklypasnusileidžiaįmiškopusę

apie 5 metrus, jame fiksuojamas aukštis virš jūros lygio – 154 m. Sklype galima išvysti gamtinę draustinio panoramą, matomas Šiluvos bazilikos stogas ir varpinių bokštai.

87 pav. 1. - vizualinis ryšys sklype su Šiluvos miestelio centru; 2.- vizualinis ryšys sklype su draustinio panorama. (Google Maps)

77

2.5.2 Reljefo išklotinės

89 pav. Sklypo aukščių brėžinio ištrauka. Sudaryta autorės

88 pav. Pjūvių per sklypo reljefą vietos. Sudaryta autorės

91 pav. Pjūvis 2-2 per esamą sklypą. Sudaryta autorės

90 pav. Pjūvis 1-1 per esamą sklypą. Sudaryta autorės

78

2.6 Regioniniai parkai ir draustiniai

Pasirinktas sklypas yra Žemaitijos etnografiniame regione, Tytuvėnų regioniniame parke. Žemaitijos regioninis parkas – tai saugoma teritorija, įsteigta 1991 m., siekiant išsaugoti nacionalinės svarbos kraštovaizdžio kompleksus, kultūrinį paveldą, reprezentuojančius Žemaitijos etnokultūrinės srities gamtos ir kultūros savitumus, užtikrinti subalansuotą gamtos išteklių naudojimą, atkūrimą, sudaryti sąlygas pažintiniam turizmui, moksliniams tyrimams ir aplinkos būklės stebėjimams. (Tradicinė Žemaičių architektūra. Pagalbinė priemonė projektuojant Žemaitijos nacionaliniame parke, 2009)

Pagal dr. Martyną Purviną, arch. Mariją Purvinienę, kurie išskyrė septynias zonas, atspindinčias Lietuvos kaimų tradicinės architektūros paveldo nevienodumą, Raseinių rajonas, kuriam priklauso Šiluva, buvo priskirtas prie IId zonos, kuri yra vadinama Senąją Žemaitija.

92 pav. Lietuvos zonavimas (Tradicinė Žemaičių architektūra. Pagalbinė priemonė projektuojant Žemaitijos nacionaliniame parke, 2009)

Kaip ir kiekvienas regioninis parkas turi savo reikalavimus į kuriuos įeina specifiniai reikalavimai naujai pastatų statybai parko teritorijoje. Pagrindiniai reikalavimai pagal Tytuvėnų Regioninio Parko tinklalapį:

1. Statiniai Tytuvėnų regioniniame parke projektuojami, statomi ar rekonstruojami, atsižvelgiant į tradicinės regiono architektūros pobūdį: formas, spalvas ir dydžius, formuoti rekreacinių ir gyvenamųjų vietovių estetinį vaizdą.

79

2. Pastatų statybai ir apdailai naudojamos tradicinės statybinės ir apdailos medžiagos (medis, akmuo, tinkas, kt. stogo dangai – čerpės, skarda, gontai, bituminės dangos).

Pastatųsienasrekomenduojama dažyti pilka,ruda,gelsva spalvomis;stogus – pilka,ruda arba žalia.

93 pav. Šiluvos miestelio padėtis regioniniame parke. (Valstybinė saugomų teritorijų tarnyba)

Tytuvėnų regioniniame parke saugomi 11 draustinių tarp kurių patenka Šiluvos urbanistinis draustinis ir Šiluvos miško pušies genetinis draustinis.

1. Šiluvos urbanistinis draustinis – saugoma istoriškai susiklosčiusi Šiluvos miestelio planinė ir erdvinė struktūra, Švč. Mergelės Marijos gimimo bazilikos kompleksas.

2. Šiluvos miško pušies genetinis draustinis – saugoma Šiluvos miško paprastosios pušies populiacijos genetinė įvairovė.

Projektuojant Žemaitijos etnografiniame regione būtina susipažinti su vietovės tradicine architektūra, į kurią patenka tradicinė kaimo architektūra, įvairūs statybos, apdailos, medžiagiškumo ypatumai.

80

94 pav. Saugomų teritorijų išsidėstymas aplink Šiluvą. (Saugomų teritorijų valstybės kadastras )

2.7 Želdiniai

Nagrinėjamame sklype gausu medžių – vaismedžių. Antrajame sklype, kuris yra aplink, medžių nėra – žemė dirbama, sėjama.

96 pav.

95 pav. Esamų želdinių būklė projektuojamame sklype. (Google Maps)

81
Vaizdas į sklypą iš viršaus. (nuotrauka iš regia.lt)

2.8 Tradicinė žemaičių architektūra

2.8.1 Tradicinės žemaičių sodybos ir išplanavimo bruožai

Žemaitijoje vyravo vienkiemiai. Sodybos kuriamos aukštesnėse ir sausesnėse vietovėse, beveikvisada aptvertostvora.Sodybose egzistavokeliųkiemųsistema,skirstomi geriirblogi kiemai. Gerieji kiemai kuriami atokaitoje, užuovėjoje, šalia sodinami ir puoselėjami gėlynai. Ūkinė dalis – su atskiru įvažiavimu. Sodybose pastatų būdavo daug, iki dešimties, įvairaus dydžio, paskirties. Pagal Etninės Kultūros Globos Tarybos sudarytą leidinį, Žemaitijos vienkiemių sodybas galima skirstyti į du tipus pagal pagrindinių pastatų – trobų – išdėstymą:

• pirmojo tipo sodybos, kurios pastatai stovi lygiagrečiai vienas kitam;

97 pav. Lygiagretus projektavimas sklype (Bomblauskas, J., Burinskaitė, I., Žumbakienė, G., 2008)

• antrojo tipo sodybos, kai pastatai stovi laisvai vienas kito atžvilgiu.

98 pav. Laisvas projektavimas sklype (Bomblauskas, J., Burinskaitė, I., Žumbakienė, G., 2008)

Sodybas sudarydavo daug pastatų. Pagrindinis gyvenamasis namas – numas, o vėliau troba. Ūkiniai pastatai – svirnas (klėtis), skirtas grūdams, maistui, dažniausiai svirnai Žemaitijoje buvo didesni nei kituose regionuose; tvartas, skirti laikyti gyvuliams; kluonas – didžiausias sodybos pastatas, skirtas klojimui (javams laikyti ar kulti), daržinė šiaudams, pirtis javams džiovinti ir t. t.; daržinė –derliui sudėti; rūsys(numalis) – pašarinėmsdaržovėmslaikyti, pastatasstatomasant žemės;

82

pirtis – nebuvo plačiai paplitęs sodybų statinys; ubladė – specialus mažas pastatėlis duonai kepti; galiausiai žardinė – tipiška, atvira pastogė linams, žirniams, šienui ir pašarams džiovinti ir laikyti.

2.8.2 Numas

Senuoju žemaičių gyvenamuoju namu laikytas namas – numas. Tai buvo neturtingų valstiečių būstas XV – XVI a. Žemi, nedideli namai su atvira ugniaviete viduje, kur valstiečių šeimos gyveno ir laikė kartu savo gyvulius, javus. Ugniakuras rasdavosi didžiausioje numo patalpoje, viduryje arba prie kurio nors kampo. Dūmai išeidavo pro angą stoge, vadinamą čiukuru. Pagrindinė patalpa nume būdavobe lubų.Būdingosplačiosstogoužuolaidos,kuriose laikyti įvairūsūkio įrankiai ir daiktai. Vėliau tokie numai XIX a. naudoti pašarui ruošti ir gyvuliams laikyti, o valstiečių šeimos gyveno šalia stovinčiuose pastatuose – trobose.

NUMAS

NUMAS

TROBA

99 pav. Numo ir trobos pastatų bruožai. Sudaryta autorės

2.8.3 Troba

Pagrindiniu gyvenamuoju pastatu Žemaitijoje yra laikoma troba. Tradicinė troba pasižymi masyvumu, neaukštomis sienomis, apkaltomis vertikaliomis lentomis, ilgu ir plačiu korpusu. Stogas masyvus, pusvalminės, kartais keturšlaitės formos, dažniausiai dengtas šiaudais, vėliau skiedromis arba gontais (medinėmis lentelėmis).

PUSVALMINIS STOGAS KETURŠLAITIS STOGAS

100 pav. Tradiciniams žemaičių pastatams būdingi stogai. Sudaryta autorės

83

Tokiųpastatųplaninė struktūra dažnai sudėtinga,susideda nuo5iki 15patalpų.Svarbiausios trobų patalpos: geroji priemenė, per kurią įvesdavo svečius, priimdavo piršlius; geroji troba –didžiausia trobos patalpa; alkierius – būna už gerosios trobos, skirtas svečiams apsistoti; blogoji priemenė – šeimos narių išėjimas į kiemą, tvartus; blogoji arba paprastoji troba, kurioje įkuriama virtuvė ir darbo kambario paskirtis; blogasis alkierius, skirtas laikyti maisto produktus, kartais įkuriamas vaikų kambarys; priešininkė – tai patalpa skirta senyvo amžiaus žmonėms, senjorams; kamara, skirtas pieno produktų laikymui.

2.8.4 Medžiaginiai ypatumai

Kaip ir visoje Lietuvoje, Žemaitijoje nuo seniausių laikų populiariausia statybinė medžiaga buvo medis. Mediena būdavo spygliuočių – pušies ir eglės – mediena. Ąžuolinė mediena naudoti saikingai, po langais, apatiniams sienojams. Pastatuose mediena buvo naudota daug kur – langams, durims gaminti, grindims kloti, stogų konstrukcijoms ir t.t. Degtas molis buvo naudojamas retai –čerpės stogams, plytos kaminams, krosnims.

Turgaus aikštės užstatymas

Vyraujanti autentiška išlikusi architektūra

84

2.9 Saugomos kultūros paveldo teritorijos pagal KPD

Šiluvos žydų senosios kapinės (kodas 20721)

Šiluvos Švč. Mergelės MarijosApsireiškimo koplyčios statinių kompleksas (kodas 31214)

Šiluvos senųjų kapinių ir Lietuvos partizanų užkasimo vietos ir kapų kompleksas (kodas 40172)

Knygnešio Kazimiero Roseno gimtoji sodyba (kodas 33081)

Šiluvos Šaulių namai (kodas 4433)

Projektuojamas sklypas

Švč. M. Marijos Gimimo bazilikos kompleksas (kodas 1583)

Šiluvos miestelio istorinė dalis (kodas 12631)

Antrojo pasaulinio karo Sovietų Sąjungos karių palaidojimo vieta (kodas 11122)

101 pav. Kultūros paveldo teritorijos Šiluvos mieste. (Kultūros vertybių registras)

85

2.9.1 KPD gretimybės

• Antrojo pasaulinio karo Sovietų Sąjungos karių palaidojimo vieta (kodas 11122)

Ištrauka iš KPD tinklalapio: ,,Palaidojimo vieta įsteigta 1954–1955 m., perkėlus žuvusių 1944 m. vasarą ir rudenį Sovietų Sąjungos karių palaikus iš aplinkinių kaimų.“

102 pav. Antrojo pasaulinio karo Sovietų Sąjungos karių palaidojimo vieta. (Kultūros vertybių registras)

• Šiluvos miestelio istorinė dalis (kodas 12631)

Ištrauka iš KPD tinklalapio: ,,Pasak bažnyčios šaltinių, 1608 ar 1612 metais piemenėliams Šiluvoje apsireiškė Švč. Mergelė Marija su kūdikėliu ant rankų. Žmonės ėmė keliauti į Šiluvą kaip piligrimai, rengiamos procesijos – tai buvo pirmoji Vatikano pripažinta Marijos apsireiškimo vieta Europoje. XVII a. Šiluva gavo prekymečio, o 1738 m. – turgaus privilegiją. 1627 m. čia pastatyta nauja Šiluvos bažnyčia, vėliau atnaujinta ir perstatyta. Dabartinė mūrinė bažnyčia pastatyta 1775 m., o 1924 m. buvo pastatyta 1903 m. garsaus skulptoriaus ir architekto Antano Vivulskio (1877–1919 m.) suprojektuota koplyčia.“

103 pav. Šiluvos miestelio istorinė dalis. Šaltinis: www.bernardinai.lt

86

2.10 Šiluvos identitetas

104 pav. Šiluvos identiteto schema. Sudaryta autorės

Analizuojant Šiluvos miesto charakterį, įžvelgta radialinio tipo struktūra. Šiluvos miestą supa želdynų ir dirbamų laukų juostos. Palikta dirbamų laukų, ūkio paskirties žemė sukuria atstumą tarp želdyno ir užstatytos urbanistinės teritorijos, leidžia apžvelgti draustinio panoramas esant miestelio ribose. Projektuojamas sklypas dabar yra dirbamųjų laukų ir miestelio užstatymo susikirtimo riboje. Tai leidžia užtikrinti gerą gamtinių panoramų apžvelgiamumą.

87

2.11 Svarbūs pastatai

105 pav. Svarbiausių pastatų išsidėstymas mieste. Sudaryta autorės

Šiluvoje vieniišsvarbiausiųpastatųyraišskiriami susiję sutikėjimuirpiligrimyste, švietimu ir susisiekimu su kitais miestais. Daugiausiai svarbiausių pastatų yra centrinėje miesto dalyje, palei pagrindines miesto gatves. Pagal pastatų lokacijas galima teigti, jog svarbia miesto gatve tampa Raseinių g., kadangi palei ją įvažiavus į miestą yra Šiluvos parapijos namai, Jono Pauliaus II–ojo namai, Švč. Mergelės Marijos Gimimo bazilika ir tarpmiestinių autobusų stoties pastatas. Palei Jono Pauliaus II-ojo gatvę rikiuojasi Švč. Mergelės MarijosApsireiškimo koplyčia, centrinė miesto aikštė ir kitapusjos – Piligrimųcentras, kuriame įsikūręsmuziejusirinformacijoscentras.Projektuojamame sklype atsiradęs visuomeninės paskirties statinys dar labiau išreikštų Raseinių gatvės svarbą ir pabrėžtų ją visame gatvės tinkle.

88

2.12 Svarbios viešosios erdvės

106 pav. Svarbiausių viešųjų erdvių padėtis miestelio atžvilgiu. Sudaryta autorės

Pagrindinės viešosios erdvės Šiluvos miestelyje yra keturios – buvusi turgaus aikštė, M. Jurgaičio aikštė, Jono Pauliaus II-ojo aikštė ir Šiluvos kapinės. Dažniausias šių viešųjų erdvių tipas –aikštė.

Priešais projektuojamą sklypą esanti Jono Pauliaus II-ojo nusileidimo aikštė ateityje numatoma kaipkemperiųaikštelėatvykstantiemspiligrimamsatlaidųmetu.Projektuojantviešąerdvę pasirinktame sklype svarbu atsižvelgti į tai, jog žmonių srautas ir judėjimas gali vykti ir iš kitapus kelio esančios stovėjimo aikštelės.

89

2.13 Esamas užstatymas

Dabartinės būklės apžvalgoje ir esamos būklės brėžiniuose, kuriuos pateikia tinklalapis, Šiluvos mieste vyrauja vieno aukšto ir vieno aukšto su mansarda tipo užstatymas. Daugiausiai jo paplitę vidurinėje miesto dalyje ir pakraščiuose. Centrinėje miesto dalyje yra dviejų aukštų ir dviejų aukštų su mansarda pastatai, aukštesni nei du aukštai pastatai ir išskiriamos dvi dominantės, –koplyčia ir bažnyčia – kurios abi siekia 40 m. aukštį.

Projektuojamame sklype dabar stovintys gyvenamieji pastatai yra vieno aukšto ir vieno aukšto su mansarda tipo statiniai.Aplink juosiančiam sklypui tipas nenustatytas, jam priskirta žemės ūkio paskirtis.

Pagal Šiluvos Bendrojo plano

koncepcijos brėžinį projektuojamos teritorijos sklypų užstatymo tipas keistųsi iš dalies. Abu sklypai skiriami mažo užstatymo intensyvumui.

Brėžinyje numatoma pasikeitusi sklypų struktūra, gatvių infrastruktūros

pakeitimas. Toliau siekiama išlaikyti

mažo miesto užstatymo morfologiją, pagal susiklosčiusio morfotipo užstatymo intensyvumo rodiklius

107 pav. Ištrauka iš esamo aukštingumo brėžinio. Šaltinis: www.raseiniai.lt

108 pav. Ištrauka iš Šiluvos miesto 2010 m. koncepcinio funkcinių prioritetų brėžinio.

90

2.14 Piligriminiai keliai

Į Šiluvos Šventovę galima keliauti aštuoniais piligriminiais keliais. Galima keliauti tiek dviračiu, tiek pėsčiomis. Visi maršrutai veda pro gamtą, miškus, kitas šventoves. Į šias piligrimines keliones gali įsitraukti visa šeima, vaikai, suaugę, bei senjorai. Kelionių metu kalbamos maldos, rekomenduojama bent pusvalandį praeiti tyloje, diskutuojama, dalinamasi tikėjimo patirtimi, apmąstomas Šventasis Raštas.

109 pav. Piligriminių kelių schema. Sudaryta autorės pagal Šiluvos miesto paskelbtus maršrutus www.šiluva.lt tinklalapyje.

91

2.15 Šiluvos miesto vaizdai iš paukščio skrydžio

110 pav. Vaizdas iš paukščio skrydžio. Projektuojamo sklypo sąsajos su miestelio centru. Šaltinis: www.baltic360.lt

Išprojektuojamosklypo aukščiausiotaškomatomi Švč.MergelėsMarijosGimimobazilikos stogas ir varpinių bokštai

111 pav. Vaizdas iš paukščio skrydžio į Šiluvos miestelio architektūrą. Šaltinis: www.baltic360.lt

Esami gyvenamieji pastatai daugiausiai šlaitinių stogų, mūriniai arba su medine lentų apdaila. Turgaus aikštės užstatyme randama išsaugoto autentiškumo, pastatų pamatai akmeniniai,

92

atidengti, fasadų apdaila medinė, vyrauja geltonos, pilkos ir rudos spalvų koloritas. Miestelyje pastatai vieno aukšto su mansarda arba vieno aukšto. Akivaizdžiai išsiskiria dominantės – bažnyčia ir koplyčia. Antroje kategorijoje pagal aukštingumą išsidėsto kiti visuomeniniai pastatai – piligrimų namai, muziejus, gimnazija ir kiti.

112 pav. Vaizdas iš paukščio skrydžio. Turgaus aikštės padėtis miestelio atžvilgiu. Šaltinis: www.baltic360.lt

113 pav. Vaizdas iš paukščio skrydžio. Gamtinių elementų padėtis miestelio atžvilgiu. Šaltinis: www.baltic360.lt

Šiluvos tyrelio telmologinis draustinis – saugoma natūrali Plekaičių pelkė su Europos Bendrijos žolių turtingų eglynų, vakarų taigos ir pelkinių miškų buveinėmis, pilkųjų gervių perimvietėmis.

93

114 pav. Vaizdas iš paukščio skrydžio. Sklypo padėtis. Šaltinis: www.baltic360.lt

Projektuojamas sklypas akivaizdžiai yra tarp urbanizuotos miestelio struktūros ir gamtinės aplinkos – dirbamųjų laukų irmiškingos teritorijos. Jo padėtis tarsi diktuoja ne tik miestelio įvaizdžio ir svečių pasitikimo vaizdą, bet ir jungties motyvą tarp dirbtinės ir organiškos gamtinės aplinkos.

94

2.16 Sklypo fotofiksacijos

Siekiant suvokti ir dar labiau susipažinti su projektuojama vietove, buvo atliktas vizualinis projektuojamo sklypo ir jame esančių pastatų būklės tyrimas.

95
115 pav. Sklypo esama būklė. Sudaryta autorės
96
116 pav. Sklypo esama būklė. Sudaryta autorės
97
117 pav. Sklype esančių pastatų būklė. Sudaryta autorės
98
118 pav. Sklypo esama būklė. Sudaryta autorės
99
119 pav. Sklypo reljefo būklė. Sudaryta autorės

2.17 Vietos analizės išvados

1. Atlikus vietos tyrimų analizę paaiškėjo, kad projektuojamas sklypas yra Žemaitijos etnografiniame regione, Tytuvėnų regioniniame parke. Tai yra saugoma teritorija, kuri turi savo reikalavimus į kuriuos įeina specifiniai nurodymai naujai pastatų statybai parko teritorijoje. Šie nurodymai apima architektūrinės išraiškos pateikimą.

2. Miesto atžvilgiu, sklypas yra svarbioje lokacijoje, prie įvažiavimo į miestelį iš Raseinių miesto pusės. Tai kartu svarbi vieta miestelio reprezentacijai. Sklypą iš vienos pusės riboja miestelis, iš kitos – dirbami laukai.

3. Projektuojamas sklypas yra nesutvarkytame ir urbanistiškai neišplėtotame kvartale, sklypų struktūra padrika,nesuformuota, bendro išvystymonesimato. Kadangi miestelisvystosi remiantis radialiniu principu, kvartalas ardo iš bendrą struktūrą.

4. Svarbu atsižvelgti į susiklosčiusį išraiškingą reljefą – šiaurinėje sklypo dalyje yra susiformavusi kalva. Projektuojant svarbu sureaguoti arba kitaip atliepti esamam reljefui.

5. Projektuojamą sklypą dalija pusiau per vidurį einanti gatvė, kuri ardo ir komplikuoja esamą struktūrą.

6. Šalia projektuojamo sklypo yra Kultūros paveldo departamento saugoma teritorija – Antrojo pasaulinio karo Sovietų Sąjungos karių palaidojimo vieta

7. Projektuojamas sklypas yra šalia Raseinių g., palei kurią išsidėstę svarbiausi miestelio pastatai ir erdvės. Piligriminiai žygiai ir kelionės vyksta Raseinių gatve, prie projektuojamo sklypo, todėl tai gali tapti tarpine stotele ir sustojimo vieta prieš pasiekiant svarbiausią kelionės tikslą - Šiluvos Švč. Mergelės MarijosApsireiškimo koplyčią.

100

3. PROJEKTINĖ DALIS

Piligrimų komplekso formos paieškos ir eskizai. Išryškintos trys projektavimo kryptys:

• Piligrimų komplekso ,,augimo“ koncepcija vadovaujantis meninio tyrimo procesu ir rezultatais;

• Senos tradicinės ir naujos architektūros harmonijos paieška;

• Metabolistinio piligrimų bendruomenės miesto mieste augančios struktūros kryptis.

120 pav. Pastatų komplekso architektūrinės paieškos eskizai. Sudaryta autorės

101

3.1 Urbanistinio tvarkymo variantai

Projektuojamas sklypas yra neišvystytame ir urbanistiškai nesuformuotame kvartale. Į šio kvartalo šiaurės vakarų pusę patenka Šiluvos urbanistinio draustinio teritorija. Prieš pradedant variantinę architektūrinės formos paiešką, pateikiami du variantai vietos sutvarkymui.

Sklypo kompoziciniame suvestiniame brėžinyje išryškinami svarbiausi taškai, jungtys, žmonių srautų judėjimo kryptys.

121 pav. Suvestinis sklypo brėžinys. Sudarytas autorės

102

3.1.1 Pirmoji idėja: miesto vartai

Šiame variante nesuformuotame kvartale

sprendžiama vystyti gyvenamųjų namų idėją, o kvartalo pakraštyje užbaigiant viešosios paskirties funkcija. Toks charakteris vyrauja kitapus Raseinių gatvės, todėl dvi viešosios erdvės – esama Jono Pauliaus II-ojo aikštė ir projektuojamo sklypo būsima viešoji erdvė reprezentuotų tiesioginę miesto vartų idėją. Dvi erdvės pasitiktų atvykstančius žmones į Šiluvą.

3.1.2 Antroji idėja: žalias ratas

Identifikavus Šiluvos miestelio vystymosi charakteristiką, kai viskas vystosi radialiniu būdu, sukuriamas viešųjų žaliųjų erdvių tinklas, kuris taip pat būtų vystomas radialiniu būdu. Žaliasis ratas apimtų ir sujungtų visas miesto viešąsias erdves bei užduotų pagrindą naujų kūrimuisi. Į šį tinklą būtų įtraukiamas projektuojamas sklypas, kuriame būtų vystoma viena iš žaliųjų erdvių. Projektuojamas kvartalas įgautų savitą charakterį, jis apimtų tris sklypus, kurie tarpusavyje sietųsi pėsčiųjų takais,žmoniųsrautais.Visaslikęs kvartalas sprendžiamas gyvenamųjų namų statyba. Šiame variante projektuojamas sklypas tampa urbanistiškai integralus, papildo bendrą miestelio struktūrą.

122 pav. Miesto vartų idėjos schema. Sudaryta autorės

123 pav. Žaliojo miesto rato – viešųjų erdvių idėja. Sudaryta autorės

103

3.2. Architektūrinės formos paieškos

3.2.1 Pirmoji idėja: sena – nauja

Šiame variante pateikiamas ryšys tarp naujos modernios požeminės ir senos etnografinės žemaičių architektūros derinys. Naujoji architektūra tarsi nusileidžia senajai ir tampa jos pagrindu, tiesiogine pakyla. Naujas modernus tūris yra įsmigęs į žemę, plastiškas, savo viduje formuoja viešąją erdvę. Stengiamasi perteikti tradicinių žemaičių sodybų charakterį, kai jų viduje formuojamas bendras kiemas. Šio kiemo viduje paliekami esami sklype stovintys pastatai, tarpusavyje kamerinėmis erdvėmis sprendžiamas žmonių srautų judėjimas ir paskirstymas. Nauja architektūra būtų minimalistinė, prisitaikytų prie reljefo, leistų išryškinti Šiluvos miestelio vyraujančią tradicinę architektūrą, kuri puikiai atskleidžia senuosius lietuviškos architektūros bruožus.

124 pav. Sena – nauja idėjos 3D schema. Pažymėti pagrindiniai judėjimo srautai ir principinė eskizinė architektūrinė komplekso forma. Sudaryta autorės

104

3.2.2 Antroji idėja: augimas

Šis variantas yra tiesioginis

meninio tyrimo interpretavimas pateikiant meninio tyrimo procesą, pagrindinį bruožą ir rezultatus.

Meninio tyrimo procese buvo išryškintas svarbiausias aspektas –augimo motyvas. Augimas įmanomas

tik ten, kur yra pakankamai vietos, nėra ribojančios aplinkos – objektas gali vystytis vertikaliai arba į šalis.

Kompleksas reprezentuoja tiesioginę užaugusių druskos kristalų kauburėlių

formą. Visas kompleksas vystomas

125 pav. Augimo idėjos 3D schema. Pažymėti pagrindiniai judėjimo srautai ir principinė eskizinė architektūrinė komplekso forma. Sudaryta autorės

kaip miestelis, su pavieniais apgyvendinimo nameliais ir vienu pagrindiniu – visuomeniniu pastatu. Žmonių srautai ir judėjimas vyksta kamerinėse erdvėse.

Pagrindinis vizualinis kampas išlieka įvažiuojant į miestą

nuo Raseinių pusės. Projektuojamas sklypas yra pirmasis, kurį pamatome įvažiavus. Pirmame variante pateikiama galimybė pirma išvysti apgyvendinimo namelius, šiek tiek masyvų visuomeninį pastatą užslepiant kvartalo viduje. Antrame variante pirmame plane regime visuomeninės paskirties pastatą, už kurio rikiuojasi apgyvendinimo nameliai ir integraliai užbaigia formuojamą kvartalą ir turi savo privatumo.

Apgyvendinimo nameliai

Visuomeninis daugiafunkcis pastatas

126 pav. Pirmasis augimo idėjos sklypo sutvarkymo variantas, kai visuomeninės paskirties pastatas numatomas arčiau Raseinių g., o gyvenamieji arčiau givenamųjų kvartalo pastatų. Sudaryta autorės

105

3.3.3 Trečioji idėja: ašys Šis variantas reprezentuoja meninio tyrimo principą. Kai yra užduodama pagrindinė augimo kryptis –ašis ir nuo jos atsišakoja kitos kryptys, kurios tiesiogiai suriša, sujungia dvi miestelio dalis – urbanizuotą miestelio teritoriją ir gamtinę zoną (dirbamuosius laukus, draustinį). Prisijungiančios mažosios ašys tarsi žmogaus rankų pirštai leidžia kvartalui susijungti su gamtine zona per vizualius ryšius, kamerines viešąsiaserdves.Šiame variante kuriamas tarsi uždaras bendruomenės miestelis, su atskira savo struktūra, su svarbiomis emocinėmis ir religinėmis erdvėmis.

127 pav. Trečios idėjos 3D schema. Pažymėti pagrindiniai judėjimo srautai ir principinė eskizinė architektūrinė komplekso forma. Sudaryta autorės

Apgyvendinimo nameliai

Visuomeninis daugiafunkcis pastatas

128 pav. Pirmasis miesto mieste idėjos sklypo sutvarkymo variantas, kai visuomeninės paskirties pastatas numatomas arčiau Raseinių g., o gyvenamieji arčiau gyvenamųjų kvartalo pastatų. Sudaryta autorės

106

3.3 Bendra informacija

Tolimesniam projektavimui ir vystymui pasirinkta trečioji idėja: ašys. Siūloma naujai

formuoti aplink sklypą esanti teritorija, jog būtų išvystyta tvarkinga urbanistinė kvartalo struktūra. Naujai projektuojamas sklypas yra Šiluvos miesto pietinėje dalyje, pietuose ribojasi su Tulpių gatve, o šiaurinėje dalyje su aplinkiniu naujai siūlomu užstatymu. Sklypas yra prie naujai siūlomos sankryžos įvažiuojant į miestelį.

Sklype projektuojamas daugiafunkcis piligrimų centras, kuris susideda iš vieno antžeminio ir vieno požeminio aukštų. Kompleksas reaguoja į esamą gamtinę situaciją – šlaitą šiaurinėje sklypo dalyje ir esamą aplinkinio užstatymo ribą. Projektuojama pastato nulinė altitudė – 154,00.

3.4 Projekto idėja

Pagrindinė projektuojamo objekto idėja – tiesioginė piligriminės kelionės reprezentacija.

Projektuojamas objektas apima pagrindinius piligriminės kelionės aspektus: ramias erdves būti su savo mintimis, bendrauti su Dievu, melstis; uždaras erdves bendrauti su kitais, susipažinti ir diskutuoti; skaidrias erdves apžvelgti supančią gamtinę aplinką, stiprinti erdvių vizualinį ryšį su gamta. Viską apjungia atlikto meninio tyrimo rezultatas - užauginta druskos kristalų struktūra, kaip natūraliai suformuota gamtinė Dievo struktūra.

129 pav. Koncepcinė idėjos schema. Sudaryta autorės

107

Šiuo kompleksu siekiama integruotis į supančią aplinką, tiek architektūrine, tiek urbanistine prasme ir išryškinant svarbiausius piligrimų bendruomenės veiklos aspektus.

• Projektuojant atsižvelgiama į miestelio kompozicinių ašių išsidėliojimą, vizualinį ryšį:

130 pav. Idėjos vystymas. Pastato orientacijos parinkimas. Sudaryta autorės

• Siekiant integruotis į esamą kontekstą, atsižvelgiama į supantį užstatymą ir jo mastelį, proporcijas:

131 pav. Idėjos vystymas. Pastato dydžio, proporcijos sprendimas. Sudaryta autorės

• Išreiškiama dominantė, stiprinanti vizualinį ryšį, kartu ženklinamas įvažiavimas į miestelį:

132 pav. Idėjos vystymas. Patalpų ryšys su gamta. Sudaryta autorės

• Pabrėžiamos kryptys, pastato architektūrine išraiška atliepiama esančiam reljefui:

133 pav. Idėjos vystymas. Pastato architektūrinis atsakas reljefui. Sudaryta autorės

Projektuojamas pastatas susideda iš trijų pagrindinių– ramios, bendravimo ir vizualiai atviros –erdvių. Objektas,dėlparinktosorientacijos,tampamiesto,,veidu“,svarbiuŠiluvosmiestelio reprezentaciniu simboliu. Ilgaspastatasišlaikoužstatymokryptį,ją išryškina, savoilgąja kraštine taip pasitikdamas atvažiuojančius svečius iš užmiesčio.

108

135 pav. Trijų didžiausių salių išdėstymas pastate. Sudaryta autorės

Viso komplekso pagrindiniu akcentu tampa skaidrus apžvalgos bokštas, integruotas į visą komplekso struktūrą. Jis pabrėžia lankytojų pagrindinio įėjimo vietą, stiprina vizualinį ryšį su gamta, leidžia apžvelgti Šiluvos miško pušies genetinį draustinį iš aukštesnio taško. Taip pat praplečia miestelio dominančių tinklą, tačiau jo neužgožia.

134 pav. Pastato vizualiniai ryšiai su gamta. Sudaryta autorės

Apžvalgos bokšto ir gyvenamųjų namelių architektūrinė išraiška siejama su tradicine žemaičiųgyvenamojonamošerdimi –kaminopatalpa.Troboskaminoerdvė yraitinišraiškinga,todėl ši į dangų siaurėjanti erdvinė forma yra naudojama kaip dvasinė tiesioginė sąsaja su Dievu

136 pav. Gyvenamųjų namelių ir apžvalgos bokšto architektūrinė išraiška remiantis Tradicinės Žemaičių architektūros leidiniu. Sudaryta autorės

109

3.5 Kvartalo sutvarkymo siūlymas

Kadangi pasirinkta teritorija yra urbanistiškai netolygiame ir nesutvarkytame kvartale, siūloma šį kvartalą ir patį sklypą modifikuoti į darnią ir racionaliai išpildytą teritoriją. Kvartalo vidų siūloma vystyti gyvenamųjų namų sklypais, prie jų privedant naują būtiną infrastruktūrą. Esamas sklypas (juoda punktyrinė linija) keistųsi į racionalios formos, patogų naudoti sklypą. Paliekama sklypo dalis kitapus gatvės veiktų kaip viešoji erdvė priešais naujai projektuojamą pastatą.

138 pav. Sklypo konfigūracijos pakeitimas. Sudaryta autorės

137 pav. Kvartalo situacijos planas. Sudaryta autorės

110

Taip pat siūloma perkelti egzistuojanti Tulpių gatvė į sklypo pietinę pusę, taip pratęsiant radialinęmiestostruktūrą,sukuriantmiestuireikalingąsankryžąpriešįvažiuojantįmiestelįtransporto srautų paskirstymui. Taip pat svarbu pabrėžti, kad sprendinys racionaliai padalija sklypą į proporcingas dalis, iškelia automobilių srautą iš sklypo vidaus ir palieka jį bendruomenės poreikiams taip sukuriant viešą erdvę – uždarą vidinį kiemelį, kuris suteikia jaukumo, privatumo ir ramybės nuotaiką. (žr. 139 pav.)

139 pav. Esama situacija (kairėje) ir siūlomas sprendinys (dešinėje). Sudaryta autorės

Lankytojų ir aptarnaujančio personalo privažiavimai yra rytinėje sklypo dalyje, tačiau atskirti dviem skirtingais pandusais (žr. 140 pav.)

140 pav. Lankytojų (raudona punktyrinė linija) ir aptarnaujančio personalo (mėlyna punktyrinė linija) atvykimas. Sudaryta autorės

Viso miesteliui patogios infrastruktūros plėtrai yra siūloma dviračių takų tinklo plėtra, dviračių takas sujungtų projektuojamą sklypą ir sujungtų atkarpas išTytuvėnų ir Raseinių miesto. (žr. 141 pav.)

141 pav. Siūloma dviračių trasa. Sudaryta autorės

111

3.6 Sklypo ir teritorijos sprendiniai

3.6.1 Judėjimas

Sklype automobilių judėjimas nukreipiamas rytinėje sklypo pusėje, ten patenkama į požeminę automobilių stovėjimo aikštelę,o kelios stovėjimo vietos yra projektuojamos išilgai naujos

Tulpių gatvės. Neįgaliųjų judėjimas išspręstas projektuojant pakilimo ir nusileidimo rampas išilgai pastatui prie pagrindinio pastato įėjimo. (žr. 142 pav.) Šalia įėjimo projektuojama neįgaliųjų trumpo sustojimoirišlaipinimovieta, kitosneįgaliųjųstovėjimovietosprojektuojamospožeminėjestovėjimo aikštelėje.Turistiniaiautobusaižmoniųgrupesgalipaleisti privežantsuprojektuotomisrampomisprie pagrindinio įėjimo, o jų stovėjimo vietos projektuojamos išilgai Tulpių gatvės (žr. 143 pav.). Aptarnaujančio personalo atvykimas ir techninis aptarnavimas planuojamas pastato rytinėje dalyje požeminėje stovėjimo aikštelėje. Papildomas aptarnaujančio personalo įėjimas planuojamas pastato šiaurinėje dalyje pirmame aukšte iš vidinio kiemelio taip atskiriant lankytojų ir administracinius įėjimus.

142 pav. Neįgaliųjų atvykimas. Sudaryta autorės

143 pav.Autobusų atvykimas. Sudaryta autorės

112

3.6.2 Viešos erdvės

Sklype viešosios erdvės spręstos trimis zonomis. Pirmoji zona yra šiaurinėje sklypo dalyje paliekant susiformavusį šlaitą jį terasuojant, sodinant medelius siekiant atsiriboti nuo saugomos KPD teritorijos, antrojo zona – formuojamas vidinis kiemelis, kuriame įkuriamas vaistažolių sodelis, trečioji zona – pietinėje sklypo dalyje priešais kompleksą projektuojama piligrimų alėja, kuri keičiantis metų laikams priešais pastatą sukurs vis kitokią nuotaiką. Pastato struktūroje šalia maitinimosalėssiūlomaįkurtiterasą,taipsuteikiantgalimybępastatokamerineserdvestransformuoti įvairiems metų laikams.

144 pav. Viešųjų erdvių pasiskirstymas sklype. Sudaryta autorės.Analogų šaltinis: Pinterest.com

3.6.3

Dangos

Sklype dangospaliekamosnatūralios –naudojama skalda,mediniai takeliai. Iki pastato veda miesto šaligatviai – betonotrinkelės,privedamiasfaltuoti privažiavimai.Visaisatvejaisatsižvelgiama į sklandų ir patogų neįgaliųjų judėjimą sklype. Likę sklypo plotai paliekami natūralūs, apželdinti krūmais, sėjama veja.

145 pav. Naudojamų medžiagų tekstūros. Šaltinis: Pinterest.com

113
1 3 2 1 2 3

3.7 Funkciniai – planiniai sprendiniai

Projektuojamą objektą sudaro dvi dalys: pagrindinis pastatas ir galerija. Pagrindinis pastatas susideda iš trijų korpusų – maldų, konferencijų ir maitinimo. Šios trys pagrindinės erdvės turi dvišlaičius stogus ir skiriasi savo architektūrine bei erdvine išraiška nuo viso komplekso.

Projektuojamo pastato patalpos hierarchizuojamos aukščiu – aukščiausiu išlieka apžvalgos bokštas, vidutinio aukštingumo – trys pagrindinės salės, mažiausio aukštingumo – gyvenamieji nameliai ir likusios papildomos patalpos.

146 pav. Funkcinė pastato schema. Sudaryta autorės

114

Požeminis aukštas

Požeminiame aukšte planuojamos techninės patalpos, vėdinimo kameros, virtuvės darbuotojų persirengimo ir poilsio kambariai, maisto prekių sandėliai.

Požeminė automobilių aikštelė turi 93 stovėjimo vietas, kurios visiškai aptarnauja tris pagrindines pirmo aukšto sales. Į požeminį aukštą automobiliai patenka pandusais, atskiriamas techninis ir lankytojų įvažiavimas Remiantis

Statybiniu techniniu reglamentu STR 2.06.04:2014 „Gatvės ir vietinės reikšmės keliai. Bendrieji reikalavimai“ apskaičiuotas automobilių stovėjimo vietų poreikis kiekvienai funkcijai atskirai.

Pirmas aukštas

Pirmajame aukšte planuojamos visos svarbiausios pastato patalpos – administracinės, konferencijų centro patalpos, papildomos susirinkimų patalpos, maldų salė, maitinimo salė su virtuve, registratūra, pagrindines sales aptarnaujančios sandėliavimo patalpos, sanitariniai mazgai.

Visi gyvenamieji nameliai pritaikyti neįgaliųjų poreikiams, pagal poreikį ir žmonių kiekį jie gali transformuotis į vienviečius, dviviečius, bei šeimos kambarius. Gyvenamieji nameliai būtų skirti ne tik apsistoti piligrimams atlaidų metu ar kitomis progomis, bet kartu spręstų komplekso sezoniškumo problemą, nameliuose galėtų apsistoti atvykstantys žmonės iš didmiesčių, bet kuriuo metų laikų, norintys dirbti nuotoliu ir gyventi gamtos apsuptyje. Remiantis Statybiniu techniniu reglamentu STR 2.03.01:2019 „Statinių prieinamumas“ apskaičiuotas neįgaliųjų vietų kiekis salėse kiekvienai funkcijai atskirai.

3 lentelė. Automobilių stovėjimo vietų kiekio skaičiavimas požeminėje stovėjimo aikštelėje.

4 lentelė. Neįgaliųjų sėdimų vietų kiekio skaičiavimas salėse.

115
116
147 pav. Gyvenamųjų namelių transformavimo variantai. Sudaryta autorės 148 pav. Požeminio ir pirmo aukštų planai. Sudaryta autorės

3.8 Architektūriniai sprendiniai

Pastatų architektūrinius sprendinius padiktavo supanti aplinka, etnografinis regionas, gamtinė situacija ir projekto lokacija miesto atžvilgiu. Architektūriniais komplekso akcentais laikoma apžvalgos bokšto integracija į pastato vidinę struktūrą, pagrindinio įėjimo išreiškimas dvejomis ilgomis nuožulniomis rampomis, galerijos konfigūracijos formuojamas atsakas į susiklosčiusį reljefą ir pagrindinio pastatoišlaikoma ir pabrėžiama užstatymo ašis.

3.9 Fasadų sprendiniai

Fasadų apdailai parenkamos natūralios medžiagos –medinės apdailos dailylentės. Tai leidžia darniai integruoti naują objektą į esamą aplinkinį užstatymą, išlaiko tradicinės žemaičių architektūros bruožus.

Vizualiniam ryšiui su gamta palaikyti viešosiose erdvėse planuojamos vitrinos, taip pat patalpose būtų užtikrintas natūralus apšvietimas. Siekiant, kad apžvalgos bokštas taptų neutraliu simboliu, neužgožiančiu Šiluvos miestelio dominančių, daromas skaidrus, ažūrinis.

149 pav. Gyvenamojo namelio fasadų ir stogo apdaila. Sudaryta autorės

150 pav. Pagrindinio pastato fasadų apdaila. Sudaryta autorės

117

3.10 Interjero sprendiniai

Viso komplekso interjeras pasižymi minimalizmu, natūralių medžiagų naudojimu. Pasirinkta naudoti neutralios betono pilkos ir medienos rudos spalvos apdailos. Tai suteikia modernumo, jaukumo ir paprastumo jausmą. Atsisakoma perdėtopuošnumo,dekoracijų,didžiausiasdėmesystelkiamas į erdvių formas, jos silueto akcentavimą. Maldų salėje visas dėmesys koncentruojamas į dangų, pasirinktas interjeras minimalistinis. Projektuojamas stoglangis tampa tiesiogine sąsaja su Dievu, pro jį į patalpą patenka dienos šviesa. Maitinimo salė atvira, šiltų atspalvių, išlaikomas vizualinis ryšys su gamta, vyrauja pilki betono paviršiai.

152 pav. Maldų salės interjero vizualizacija. Sudaryta autorės

151 pav. Maitinimo salės interjero vizualizacija. Sudaryta autorės

118

3.11 Konstrukciniai sprendiniai

Apžvalgos bokšto konstrukcija susideda iš dviejų sistemų: pirmojo metalinio karkaso laiptinės standumui ir antrojo karkaso stikliniam gaubtui.

Pastato išorės sienų plotis yra 500 mm, vidaus laikančiųjų sienų – 250 mm, vidaus pertvarų 120 mm. Laiptinės sienos gelžbetoninės

250 mm.

Visame komplekse stogai dengiami

153 pav. Konstrukcinis apžvalgos bokšto pjūvis. Sudaryta autorės

medinių lentelių danga. Tai yra autentiška, nuo seno vertinama statybos technologija. Ypatingos tokių stogų savybės: ilgaamžiškumas, patvarumas, ekologiškumas. Stogo dangai naudojama drebulės mediena, kuri yra atspari temperatūrų kaitai, drėgmei, pelėsiui, vabzdžiams, po ja nesusidaro kondensatas. Laikui bėgant, šios medienos stogo danga tvirtėja.

155 pav. Apžvalgos bokšto aksonometrinis vaizdas. Sudaryta autorės

154 pav. Architektūrinis apžvalgos bokšto pjūvis. Sudaryta autorės

119

3.12 Detali projekto programa

Komplekse projektuojamos svarbiausios patalpos:

1. Maldų salė;

2. Konferencijų salė bendruomenės susirinkimų, renginių poreikiui išpildyti;

3. Apgyvendinimas – transformuojami nameliai;

4. Maitinimas - nameliuose atskiros zonos ir viena bendra transformuojama maitinimo salė;

5. Apžvalgoselementas – vertikalusbokštelis,egzistuojantiskaip akcentas,užtikrinantisvizualių ryšių išsaugojimą;

6. San. mazgai neapsistojantiems lankytojams;

7. Rūbinė;

8. Kavos kambariai, poilsio kambariai, bendras didelis holas - po konferencijos;

9. Mažesni darbo kambariai – mažesnių grupelių susirinkimams;

10. Bendras parkas;

11. Vidiniame kiemelyje – transformuojama atvira arba uždengiama erdvė – sodelis;

12. Administracinės patalpos.

120

5 lentelė. Projektuojamo objekto programa

121

3.13 Techniniai ekonominiai rodikliai

6 lentelė. Projektuojamo objekto techniniai ekonominiai rodikliai.

PAVADINIMAS

Naujai tvarkomo sklypo plotas

Naujai tvarkomo sklypo užstatymo plotas

28 784, 72 m2

KIEKIS

20 121, 56 m2 (tik šiaurinė dalis)

Užstatymo tankumas 11 %

Užstatymo intensyvumas 0.22 (22 %)

• Gyvenamieji nameliai – 8,5 m;

Pastato aukštis

Pastato aukštų skaičius

Pastato bendras plotas

Pastato tūris

• Pagrindinis pastatas – 10 m;

• Apžvalgos bokštas – 44 m.

• Gyvenamieji nameliai – 1 aukštas;

• Pagrindinis pastatas – 1 požeminis, 1 antžeminis;

• Apžvalgos bokštas – 8 tarpinės aikštelės, 9 aukšto aikštelės.

• Požeminis aukštas – 3093,1 m2;

• Pirmas aukštas – 3202,2 m2; Iš viso: 6295,3 m2

• Gyvenamieji nameliai – (20 vnt.) 263,84 m3 x20=5276,8 m3;

• Pagrindinis pastatas – ~13 500 m3;

• Apžvalgos bokštas – 1732,94 m3

Stogai Šlaitiniai (2-iejų ir 4-ių šlaitų); neeksploatuojami

Automobilių vietų skaičius požeminėje aikštelėje 93

Automobilių vietų skaičius lauke

6 automobilių; 2 autobusų; 1 neįgaliojo išlaipinimo / sustojimo vieta.

122

4. BENDROS IŠVADOS

Bendruomeninės architektūros projektavime svarbu atsižvelgti ne tik į pačius bendruomenės, kuriai yra kuriama, poreikius ir lūkesčius, bet ir į supantį architektūrinį, gamtinį, socialinį kontekstą. Piligrimų bendruomenėms būdingas paprastumas, bendruomeniškumas, sambūrio vietos turėjimas, stipri sąsaja su sakralia architektūra, gamta ir transcendentiniu pasauliu. Todėl projektui aktualiausia vystymo vieta Lietuvoje yra Šiluvos miestelis, kartu kaip tiesioginiai tarptautiniai vartai viso pasaulio piligrimų bendruomenėms

Šiluvos miestelis aktualus visai Lietuvai dėl to, jog tai yra svarbus šalies piligrimystės centras, o kartu ir tarptautiniai vartai viso pasaulio tikintiesiems. Viena iš pagrindiniųprojektuojamos teritorijos ypatybių – jos lokacija. Projektuojama teritorija ne tik stipriai susijusi su viso miestelio tikėjimo dvasios tematika, bet kartu ir dėl savo padėties, miestelio pakraštyje tampa viso miestelio veidu – miesto vartais. Taip pat svarbus ypatumas yra ryšys tarp projektuojamos teritorijos ir gamtos, kadangi teritorijoje puikiai atsiveria Šiluvos miško pušies genetinio draustinio vaizdai. Todėl tokia vieta yra tinkama piligrimų bendruomenės centrui kurtis, nes tai rami, tyli ir gamtiška vieta, tarsi tarpinė stotelė netoli svarbiausių miestelio dominančių ir piligriminių kelionių tikslo – Šiluvos apsireiškimo koplyčios ir Šiluvos Švč. Mergelės Marijos Gimimo bazilikos.

Tačiau minėtoje piligriminėje kelionėje svarbu ne tik kelionės tikslas, bet tiek pat svarbus ir patskelionėsmotyvas.Tai kartu yra dvasinissavęspažinimas,keliavimaspersvetimasžemessiekiant sutikti Dievą, su juo kalbėti, tai kelionė, kurios metu mes patys keičiamės, bendraujame su kitais žmonėmis, einame gamtoje, einame tyloje, ieškome atsakymų į sau rūpimus klausimus, sprendžiame savo problemas. Todėl tarpinės stotelės, kuriose galime sustoti, apmąstyti ir pailsėti yra svarbus savo asmeninės kelionės apibendrinimo taškas.

Projektuojamas kompleksas yra tarsi pačios piligriminės kelionės atvaizdavimas projektavime. Jis apima maldų – susikaupimo erdvę, konferencijų – bendravimo erdvę, vizualaus ryšio su gamta palaikymą maitinimo erdvėje, tenkina bendruomenės poreikius ir yra atviras užsienio piligrimų bendruomenėms, kadangi suteikia galimybę apsigyventi, turi savo ramias vidines viešąsias lauko erdves bei reprezentacinę erdvę priešais kompleksą, savo architektūrine išraiška atliepia susiklosčiusiam reljefui. Dalį meninės išraiškos remia atliktas meninis tyrimas, kuriame pabrėžiamas gamtinis aspektas, kaip natūraliai sukurtos Dievo struktūros įprasminimas. Šis centras atviras visiems: tiek pavieniams keliautojams, tiek piligrimų grupėms, atsižvelgiama į neįgaliųjų poreikius ir jų integravimą į bendrą centro veiklą.

Tikimasi, kad šis projektasatlieptų piligrimų bendruomenės bruožus ir poreikius, sustiprintų Šiluvos miestelio identitetą, atkreiptų dėmesį į žmonių vidinio pasaulio suvokimą, taptų reprezentaciniu vietos objektu tarptautiniu mastu.

123

5. RĖMĖJAI

Vaizdo stebėjimo įranga viešosioms erdvėms ir pastatams: Bosch Remote Portal. Galimavaldytiprisijungus nuotoliu, yra integruotas erdvinis apšvietimas iki 30 m atstumo tamsiu paros metu.

Pastatų apsaugos nuo gaisroįranga:

OSID-DE (Dual Ended) Smoke Beam Detector.

ROMPOX®–DEKOSkaldosiržvyrorišiklis

Suriša skaldą ir ją tinkamai sutvirtina, sukuria patikimą, vizualiai patrauklų grindinio paviršių. Tinka ir viešosioms erdvėms: aikštėms ir parkams. Surišti akmens skaldos grindiniai tampa pralaidūs vandeniui ir lengvai prižiūrimi. Panaudojama parko ir vidinio kiemelio dangoms.

Aliumininiaifasadodangteliai

Nedidelės galios (9W) trijų briaunų dekoratyvinis šviestuvas skirtas apšviesti žaliąsias erdves parkuose, viešose poilsio aikštelėje, namų valdos sklypuose. Panaudojama projektuojamo parko ir vidiniokiemelioviešosioseerdvėse.

124

Mediena apdirbama remiantis šimtmečiais gyvuojančiajaponųtechnologija,,Yakisugi“. Tai visiškai natūralus būdas, padedantis išsaugoti medieną be chemikalų ir dažų. Deginta mediena yra ilgaamžiškesnė negu tradiciniu būdu apdirbta mediena. Dėl šios technologijos mediena tampa mažiau laidi vandeniui,ugniai,UVspinduliams,puvimui, įtrūkiams. Ši mediena naudojama visame kompleksevisiems pastatams.

WICTEC50HIaliuminiostikloprofiliai.

Jie naudojami gyvenamųjų namelių fasadųstiklinėmsdalims.

Sistemosplotis:50mm

Terminėizoliacija:Uf=0,65W/(m2K)

CityDesignmažojiarchitektūra -OBLIQUE KOLEKCIJA

Laukosuoliukaisudarytiiš apvaliųplieninių vamzdžių, suformuotų ir privirintų prie pagrindo plokščių. Visos metalinės dalys yracinkuotosirpadengtostermoreaktyviais poliesterio milteliais. Panaudojama projektuojamo parko ir vidinio kiemelio viešosioseerdvėse.

WICTEC 50 SG design aliuminio stiklo profiliai.

Jie naudojami komplekso pagrindinio pastatofasadųstiklinėmsdalims. Sistemosplotis:50mm

125

EVlinkProAC

Aukštopatikimumoišmaniįkrovimostotelė, užtikrinanti didesnį efektyvumą ir tvarumą

TrečiosioskartosEVlinkkintamosiossrovės įkroviklis užtikrina itin patikimą, lankstų ir tvarų išmanųjį įkrovimą su padidintu saugumu. Šios stotelės montuojamos kompleksopožeminiameaukšte.

Kompleksenaudojama:

BETOCRETE®-C Kristalinė betono hidroizoliacija su dviguba 2-in-1 technologija. Naudojama požeminio aukšto statybos procese.

• Viešųjų erdvių kėdės Itin funkcionalus sprendimas – automatizuotos žiūrovų kėdžiųsistemos,kuriossuteikiagalimybętransformuotisalęišsėdimosįstovimą;

• Akustinės plokštės. Patalpų akustinis komfortas formuojamas pasitelkiant mišrias medžiagaspaviršiųdengimui;

• Architektūrinisapšvietimas.Montuojamaapšvietimosistemosinstaliacijalauke

126

Kompleksenaudojama:

MAPECOAT TNS URBAN: sintetinės dervos pagrindu sukurta sistema dviračių ir pėsčiųjų takams bei miesto erdvėms

• Aukštasatsparumasslydimui;

• Atsparumastemperatūrųsvyravimams.

MAPEFLOOR PU SD: atspari poliuretano danga viešoms erdvėmslauke

• Danga pritaikyta miesto urbanistinėms zonoms tokiomskaipmiestoskverai,takai;

• Didelisatsparumasdruskoms,sulfatamsirkt.;

• Nesliduspaviršius

127

LITERATŪROS IR ŠALTINIŲ SĄRAŠAS

1. Bambi, G., Barbari, M. (2014). The European pilgrimage routes for promoting sustainable and quality tourism in rural areas. Italija: Firenze University Press.

2. Alihodzic, R., Zupančič D. (2017). The importance of vertical buildings in. Paimta 2023 m. gruodžio 3 d. iš https://www.researchgate.net/publication/323577948_The_importance_of_vertical_building s_in_perception_and_memorising_the_city

3. Archdaily. (2010). Lookout Point Espinazo del Diablo / HHFArchitects. Paimta 2023 m. lapkričio 9 d. iš https://www.archdaily.com/135507/lookout-point-espinazo-del-diablo-hhfarchitects?ad_source=search&ad_medium=projects_tab

4. Archdaily. (2012). Cerro del Obispo Lookout Point / Christ & Gantenbein. Paimta 2023 m. Lapkričio 9 d. iš https://www.archdaily.com/279966/cerro-del-obispo-lookout-point-christgantenbein?ad_source=search&ad_medium=projects_tab

5. Archdaily. (2012). Røldal Pilgrim Center Proposal. LETH & GORI. Paimta 2023 m. spalio 22 d. iš https://www.archdaily.com/211332/roldal-pilgrim-center-proposal-lethgori?ad_source=search&ad_medium=projects_tab&ad_source=search&ad_medium=search _result_all

6. Archdaily. (2015). Szentkút Pilgrim Center. Tamas Nagy. Paimta 2023 m. gruodžio 4 d. iš https://www.archdaily.com/775673/szentkut-pilgrim-center-tamas-nagy

7. Archdaily. (2015). Royal Monastery of Santa Catalina de Siena. Hernández Arquitectos. Paimta 2023 m. spalio 22 d. iš https://www.archdaily.com/603033/royal-monastery-of-santacatalina-de-siena-hernandez-arquitectos?ad_source=search&ad_medium=projects_tab

8. Archdaily. (2021). Pilgrims’House in Vastseliina. KAOSArchitects. Paimta 2023 m. gruodžio 15 d. iš https://www.archdaily.com/910243/pilgrims-house-in-vastseliina-kaosarchitects

9. Baronienė, D. (2022). Piligrimystė į Šiluvą – ir pasipriešinimas sovietmečio režimui. Paimta 2023 m. spalio 15 d. iš https://sekunde.lt/leidinys/sekunde/piligrimyste-i-siluva-irpasipriesinimas-sovietmecio-rezimui-2/

10. Bermudez, J. (2015). Transcendending architecture. Vašingtonas: The Catholic University of America Press.

11. Bomblauskas, J., Burinskaitė, I., Žumbakienė, G. (2008). Etninės kultūros globos tarnyba. Žemaitijos tradicinė kaimo architektūra. Nuskaityta iš http://www.archimede.lt/sites/default/files/puslapiai/1/zemaitijos_km_architektura.pdf

12. Botham, C. J. (2020). Verticality, Part VIII: God versus Ego. Paimta 2023 m. gruodžio 3 d. iš https://www.onverticality.com/blog/verticality-part-viii-god-versus-ego

128

13. Britannica. (2023). Temple of Jerusalem. Paimta 2023 m. spalio 6 d. iš https://www.britannica.com/topic/Temple-of-Jerusalem

14. Buračas, B. (1998). Kryždirbystė Lietuvoje. Vilnius: Valstybės žinios. Nuskaityta iš https://knyga.lietuvai.lt/wiki/Indeksas:Balys_Bura%C4%8Das._Kry%C5%BEdirbyst%C4% 97_Lietuvoje.pdf

15. Camino de Santiago. (be datos). Camino de Santiago Routes. Paimta 2023 m. spalio 10 iš https://santiago-compostela.net/

16. Camino Lituano. (be datos).About Camino Lituano. Paimta 2023 m. spalio 10 d. iš https://caminolituano.com/about-camino-lituano/

17. Camino Lituano. (2023). Nakvynės vietų gidas. Paimta 2023 m. gruodžio 3 d. iš https://caminolituano.com/wp-content/uploads/2023/06/CL-nakvyn%C4%97sviet%C5%B3-gidas-Zemaitija_23-06-27.pdf

18. Dviračių trasų žemėlapis. (2023 ). Nuskaityta iš https://www.google.com/maps/d/u/0/viewer?mid=1gZ-BStS4stpq8nKvj09h5xzsmoJrRcA&ll=55.55062666534154%2C23.22725290058596&z=12

19. Geva,A. (2023). Water and sacred architecture. Niujorkas: Routledge.

20. Heima. (2022). Guest house. Paimta 2023 m. gruodžio 4 d. iš https://heima.lt/lt/guest-house/

21. Yilmaz, N. (2017). Music and Human inArchitectural Space. Paimta 2023 m. lapkričio 19 d. iš https://www.academia.edu/33565702/MLITERATŪROS IR ŠALTINIŲ SĄRAŠAS

22. Valstybinė saugomų teritorijų tarnyba. Nuskaityta iš https://saugoma.lt/lt/

23. Bomblauskas, J., Burinskaitė, I., Žumbakienė, G. (2008). Etninės kultūros globos tarnyba. Žemaitijos tradicinė kaimo architektūra. Nuskaityta iš http://www.archimede.lt/sites/default/files/puslapiai/1/zemaitijos_km_architektura.pdf

24. Dviračių trasų žemėlapis. (2023 ). Nuskaityta iš https://www.google.com/maps/d/u/0/viewer?mid=1gZ-BStS4stpq8nKvj09h5xzsmoJrRcA&ll=55.55062666534154%2C23.22725290058596&z=12

25. Google Maps. (be datos). Nuskaityta iš https://www.google.com/maps/@54.6965247,25.245665,14z?entry=ttu

26. Kultūros vertybių registras. (be datos). Nuskaityta iš https://kvr.kpd.lt/#/static-heritagesearch

27. Lietuvos automobilių kelių direkcija. (be datos). Nacionalinių pėsčiųjų ir dviračių takų plėtros žemėlapis. Nuskaityta iš https://gis.ktvis.lt/webappbuilder/apps/65/

28. Lietuvos mokslų akademijos Vrublevskių biblioteka. (2016). Žemėlapių palyginimo aplikacija. Nuskaityta iš https://maps.mab.lt/topomaps1/

129

29. Lietuvos reljefas. (2012). ArcgisApplication. Nuskaityta iš https://www.arcgis.com/apps/webappviewer/index.html?id=d29c96b53bc740e38fb79f85327 53544&marker=453842.9999999994%2C6198091.999999996%2C2600%2C%2C%2C&m arkertemplate=%7B%22title%22%3A%22%22%2C%22x%22%3A453842.9999999994%2 C%22y%22%3A6198091.999999996%2C%22wk

30. Miškinis, A. (2002). Šiluva: istorinės urbanistinės raidos matmenys (iki 1940 m.). Nuskaityta iš https://etalpykla.lituanistika.lt/object/LT-LDB0001:J.04~2002~1367156500126/J.04~2002~1367156500126.pdf

31. Regia. (be datos). Nuskaityta iš https://regia.lt/map/regia2

32. Saugomų teritorijų valstybės kadastras . (be datos). Nuskaityta iš https://stvk.lt/map/23.2200/55.5315/15.6/%5B0,1,2,3,4,5,6,7,8,9,10,11,12,13,14,16,17,18,19 ,20,21,22,23,24,25,26,27,28,29,30,31,32,33,34,35,36,37,38,39,40,41,42,43,44,45,46,47,48,4 9,50,51,52

33. Šiluvos miestelio teritorijos bendrasis planas. Sprendiniai. (2012).

34. Tradicinė Žemaičių architektūra. Pagalbinė priemonė projektuojant Žemaitijos nacionaliniame parke. (2009). Žemaitijos parkas. Kaunas: Lututė.

35. Insiders travel. (2023). The Scallop Shell in Pilgrimage. Paimta 2023 m. spalio 22 d. iš https://insiderstravel.io/scallop-shell-symbol-pilgrimage/

36. Youssef, M. (2014). Language of minimalism in architecture. Paimta 2023 m. Lapkričio 19 d. iš

https://www.researchgate.net/publication/342511527_LANGUAGE_OF_MINIMALISM_I N_ARCHITECTURE

37. Kauno arkivyskupija. (2017). Šiluvos šventovė. Paimta 2023 m. spalio 19 d. iš https://www.kaunoarkivyskupija.lt/apie-siluva/

38. Kultūros vertybių registras. (be datos). Nuskaityta iš https://kvr.kpd.lt/#/static-heritagesearch

39. Lynch, K. (1990). Image of the city. The M.I.T. Press.

40. Linda Anne Taraldson. (1968). The shell as a symbolic design motif. Paimta 2023 m. spalio 22 d. iš https://shareok.org/bitstream/handle/11244/26271/Thesis-1968T176s.pdf;jsessionid=BD7CAEB8D9DDC7A22090D644900B7B05?sequence=1

41. as, D. (2006). Piligrimystė ir turizmas: panašumai ir skirtumai. 35-42. Nuskaityta iš https://mokslozurnalai.lmaleidykla.lt/publ/0235-7186/2006/2/35-43.pdf

42. Liutikas, D. (2009). Moderni piligrimystė – skirtingų vertybių išraiška. Nuskaityta iš http://www.litlogos.eu/L61/Logos_61_192_201_Liutikas.pdf

130

43. Liutikas, D. (2014). Religinių objektų Lietuvoje geografinių vietų analizė. Geografijos metraštis, p. 111-114. Paimta 2023 m. lapkričio 9 d. iš file:///C:/Users/Diana/Downloads/dokumen.tips_religini-objekt-lietuvoje-geografini-vietanaliz-teritorins-pltros.pdf

44. Lietuvos automobilių kelių direkcija. (be datos). Nacionalinių pėsčiųjų ir dviračių takų plėtros žemėlapis. Nuskaityta iš https://gis.ktvis.lt/webappbuilder/apps/65/

45. Lietuvos mokslų akademijos Vrublevskių biblioteka. (2016). Žemėlapių palyginimo aplikacija. Nuskaityta iš https://maps.mab.lt/topomaps1/

46. Lietuvos reljefas. (2012). ArcgisApplication. Nuskaityta iš https://www.arcgis.com/apps/webappviewer/index.html?id=d29c96b53bc740e38fb79f85327 53544&marker=453842.9999999994%2C6198091.999999996%2C2600%2C%2C%2C&m arkertemplate=%7B%22title%22%3A%22%22%2C%22x%22%3A453842.9999999994%2 C%22y%22%3A6198091.999999996%2C%22wk

47. Luz, N., Collins-Kreiner, N. (2017). Perspectives on Jewish Pilgrimage: Traditional and Contemporary Characteristics andAnalysis of the Field. Paimta 2023 m. lapkričio 18 d. iš https://www.academia.edu/8015349/Perspectives_on_Jewish_Pilgrimage_Traditional_and_ Contemporary_Characteristics_and_Analysis_of_the_Field

48. Mishra, J., Shrivastava, V. (2017). Silence of Architecture. Paimta 2023 m. lapkričio 19 d. iš https://www.researchgate.net/publication/370592167_Silence_of_Architecture

49. Naujokaitis, E. (2022). Katalikų tradicija. Katalikiška piligrimystė ir jos prasmė. Paimta 2023 m. spalio 20 d. iš https://katalikutradicija.lt/baznycia/katalikiska-piligrimyste-ir-josprasme

50. Practical Hindusim. (1998). Rituals, social practices, and institutions. Paimta 2023 m. lapkričio 18 d. iš https://www.britannica.com/topic/Hinduism/Pilgrimage

51. Saugomų teritorijų valstybės kadastras . (be datos). Nuskaityta iš https://stvk.lt/map/23.2200/55.5315/15.6/%5B0,1,2,3,4,5,6,7,8,9,10,11,12,13,14,16,17,18,19 ,20,21,22,23,24,25,26,27,28,29,30,31,32,33,34,35,36,37,38,39,40,41,42,43,44,45,46,47,48,4 9,50,51,52

52. Shinde, K. A. (2021). The environmental impacts of religious and spiritual. The Routledge Handbook of Religious and Spiritual Tourism Routledge.

53. Siddiq, A. (2008). Linking sacred place with nature: religious architecture of TadaoAndo and Ridwankamil. Paimta 2023 m. lapkričio 9 d. iš

https://www.researchgate.net/publication/335626848_LINKING_SACRED_PLACEWITH_ NATURE_RELIGIOUS_ARCHITECTURE_OF_TADAO_ANDO_AND_RIDWANKAMI L

131

54. Singh, R.P.B., Haigh, M. (2015). Hindu Pilgrimages: The Contemporary Scene. Paimta 2023 m. lapkričio 18 d. iš

https://www.researchgate.net/publication/283762877_Hindu_Pilgrimages_The_Contempora ry_Scene

55. Smilgevičius, K. (2016). Piligrimystės istorija. Samprata, raidos apžvalga ir reikšmė. Paimta 2023 m. spalio 20 d. iš https://artuma.lt/archyvas/rinktiniai/show/piligrimyste-samprataraidos-apzvalga-ir-reiksme

56. Stegers, R. (2008). Sacred buildings. Berlynas: Die Deutsche Nationalbibliothek.

57. Stroik, D. g. (2019). The articulation of the sacred. 92-95. Paimta 2023 m. lapkričio 19 d. iš https://www.researchgate.net/publication/332239947_The_articulation_of_the_sacred

58. Šiluvos miestelio teritorijos bendrasis planas. Sprendiniai. (2012).

59. The Islamic Hajj - Pilgrimage. (2007). Pilgrim's Journey Diagram. Paimta 2023 m. lapkričio 18 d. iš https://www.webpages.uidaho.edu/~rfrey/PDF/166/Islam/hajj.pdf

60. Thomas, J.A. (1994). Theory, Meaning and Experience in church architecture.

61. Vasilski, D. (2015). Minimalism in architecture as a cultural symbol of the times. Paimta 2023 m. lapkričio 19 d. iš https://miadraganavasilski.files.wordpress.com/2015/07/pdf9.pdf

62. Zekkeijapan. (2019). [The Breath-takingArchitecture of TadaoAndo] From the three churches to the Hill of the Buddha. Paimta 2023 m. lapkričio 9 d. iš https://zekkeijapan.com/article/index/1282/

63. Valstybinė saugomų teritorijų tarnyba. Nuskaityta iš https://saugoma.lt/lt/

132
133
NR. 1 MAKETO M 1:500 FOTOFIKSACIJOS
134
135
136
137
138 NR. 2 SUMAŽINTAS PLANŠETAS

Turn static files into dynamic content formats.

Create a flipbook
Issuu converts static files into: digital portfolios, online yearbooks, online catalogs, digital photo albums and more. Sign up and create your flipbook.