Thevidu Amaratunga - BSc(Hons) Architecture - Year 02 - 2022

Page 1

THEVIDU
BSc Architecture
AMARATUNGA PORTFOLIO 2022

Resume

BSc Year 02 Semester 01 01

Pre School and Daycare Center

BSc Year 02 Semester 01 09

Dutch Burgher Union of Ceylon

BSc Year 02 Semester 02 15

Student Hostel of SLIIT

BSc Year 01 Semester 02 24

Pottery Center

CONTENT i Thevidu Amaratunga 2022 Portfolio

My name is Thevidu, and I am 23 years old. I grew up alongside two younger siblings and went to royal college colombo for my A/Ls, and before that to D.S.Senanayake college colombo.

After my school years I spent a year worknight dialog axiata as a customer service agent before finally enrolling at SLIIT to study architecture.

My father was a teacher, and my mother is a doctor, under their guidance I spent my childhood within various extra curricular activities Years spent within sports and clubs I was also a scout and a cadet.

All these factors contributed to who I am today

2022 Portfolio Thevidu Amaratunga ii
ABOUT ME REFERENCES

EDUCATION

D S Senanayake college, colombo 07 (2006 – 2015)

Royal college, colombo 07. (2017 – 2018)

WORK EXPERIENCE

Dialog Axiata franchise, serandib As a customer service agent

ACHIEVEMENTS

iii Thevidu Amaratunga 2022 Portfolio

LANGUAGES

+ 94 777138490

138 D.S.Senanayake mawatha Panadura Sri Lanka https://www.behance.net/rkwork https://www.instagram.com/thevidu_amaratunga/

2022 Portfolio Thevidu Amaratunga iv RESUME
SOFTWARE SKILLS
PERSONAL SKILLS GENERAL
theviduramila@gmail.com All of Microsoft software AutoCAD Revit Sketchup Photoshop Illustrator Sinhala (mother tongue) English (secondary language)

Pre school design

Pre school and daycare center

Project type mixed use

Site Location Malabe - Sri Lanka

Duration Nov 2020 – May 2021

Software Used hand drawn

01 Thevidu Amaratunga 2022 Portfolio

PROJECT SUMMARY

A Pre-school and a Day care centre at SLIIT premises for the children of SLIIT staff and non-staff parents. This Design project required us to study the activity of a Pre-school and a Day care center, by understanding the user(s), its functional requirements, and to create a new Day care center with a Pre-school for 60 children of different age groups starting from age 1+ years The building design needed to reflect and enhance the identity of the institution while harmoniously blending with the surrounding context and creating a sense of place for the occupants of the Pre-school and the Day care center.

My proposed design aimed to create a day-care centre and preschool design which is extroverted to the natural landscape of the site, taking advantage of the site’s existing natural features (vegetation, hillock), which in turn would encourage the children to spend more of their time outdoors. To further encourage them to do so, designated activity spaces would be incorporated when designing the outdoor space. The site would have adequate access control in order to create a safe, more controlled environment for the children within the site premises allowing them to more independently explore and use said environment with minimal adult (teacher/caretaker) intervention

The project site’s access to significant vegetation and a serene natural environment presented an obvious advantage over the deficient outdoor spaces available for children, to engage in play and to explore, offered by nearby existing competitors. This gave way to my concept of fostering connections between child, environment, and play.

2022 Portfolio Thevidu Amaratunga 02
03 Thevidu amaratunga 2022 Portfolio
04 Thevidu amaratunga 2022 Portfolio
05 Thevidu amaratunga 2022 Portfolio
06 Thevidu amaratunga 2022 Portfolio
07 Thevidu amaratunga 2022 Portfolio
08 Thevidu amaratunga 2022 Portfolio

DUTCH

BURGHER UNION ADAPTIVE REUSE DESIGN PROJECT

Project type Adaptive reuse

Site Location colombo

Duration Nov 2020 – Jan 2021

Software Used hand drawn

09 Thevidu Amaratunga 2022 Portfolio

PROJECT SUMMARY

The Dutch Burgher Union of Ceylon, known commonly as the Dutch Burgher Union (DBU), is an organisation of Dutch Burghers in Sri Lanka. It was established on 18 January 1908 by Richard Gerald Anthonisz. In 1913, the union acquired land in Cinnamon Gardens on Buller's Road (now Bauddhaloka Mawatha) and Serpentine Road, where it constructed a two-storey building, which is still existing with Colonial Architecture The ground floor of the building contains a vestibule which leads to a large public room, with a sprung teak floor, which is the Governors’ Hall, is suitable for any type of function, such as seminars, conferences, concerts, dances, private parties and even weddings. This can be open out to the front garden and the courtyard in the middle of the building. A carved wooden staircase leads to the upper floor, which houses a billiard room, bar, card rooms, a drawing room and a reading room

The new wing containing a cafeteria on the ground floor and residential quarters for outstation members in the upper level and space at the rear of the building which was initially used for horses and carriages and subsequently for car parking.

The Dutch Burgher Union still operates in Colombo as a centre for social and community activities, while spaces are available to the hirer and cafeterias are open for public, providing a pleasant environment in the middle of the hustle and buzzle Colombo

2022 Portfolio Thevidu Amaratunga 10
11 Thevidu amaratunga 2022 Portfolio
12 Thevidu amaratunga 2022 Portfolio
13 Thevidu amaratunga 2022 Portfolio
14 Thevidu amaratunga 2022 Portfolio

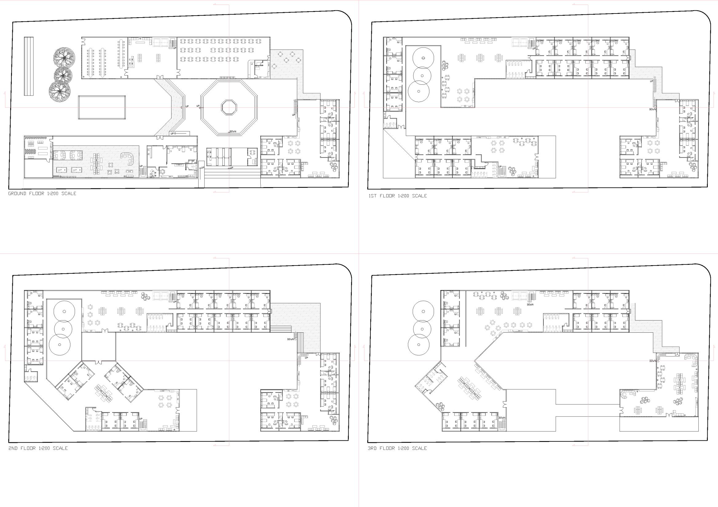
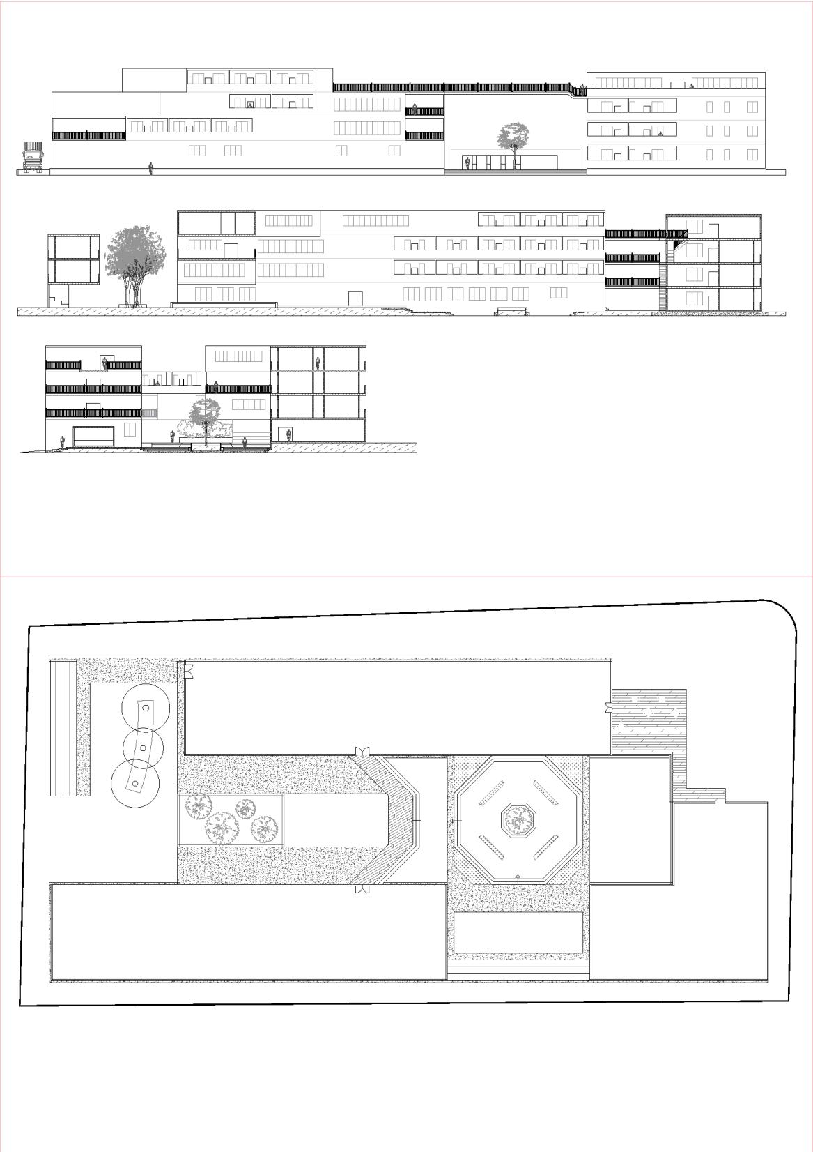
STUDENT HOSTEL FOR SLIIT

Multi-Storey Built Spaces and Community Living

Project type community living

Site Location malabe

Duration Nov 2020 – Jan 2021

Software Used AutoCAD Photoshop illustrator

15 Thevidu Amaratunga 2022 Portfolio

PROJECT SUMMARY

Student Hostels are an affordable option for students living away from home, it is a shared sociable lodging where students can rent a bed, usually a bunk bed in a dormitory with shared use of common spaces like Kitchens, study areas, washrooms, ect. Hostels can be single or multiple occupancy, mixed or segregated by sex. These accommodations facilitate students in their transition to independent living and provide an opportunity to socialize and study successfully within or nearby the Institute

The SLIIT, as among one of the largest non-state degrees awarding institutes is planning to provide residential undergraduate student accommodation which enhances the student experience by delivering high quality living, social and amenity space: improving the living and learning experience when in residence.

The Project is a multi-storey building design project where you will be designing a four storied (maximum) building for an occupancy type related to residential use for 150-200 students The building design will reflect and enhance the identity of the institution while harmoniously blending with the surrounding context while creating a sense of community for the occupants of the hostel.

2022 Portfolio Thevidu Amaratunga 16
17 Thevidu amaratunga 2022 Portfolio
18 Thevidu amaratunga 2022 Portfolio
19 Thevidu amaratunga 2022 Portfolio
20 Thevidu amaratunga 2022 Portfolio
21 Thevidu amaratunga 2022 Portfolio
22 Thevidu amaratunga 2022 Portfolio
23 Thevidu amaratunga 2022 Portfolio

POTTERY CENTER

Project type pottery center

Site Location Kaduwela

Duration Nov 2020 – Jan 2021

Software Used AutoCAD Photoshop illustrator Revit

24 Thevidu Amaratunga 2022 Portfolio

PROJECT SUMMARY

The pottery of Sri Lanka is one of the traditional small industries which has a very long history; with the evidence found in excavations from Anuradhapura and Ranchamadama, Embilipitiya the history of pottery in Sri Lanka goes back to the second century BC. Pottery has become unbroken tradition that was passed from one generation to other yet there is evidence for pottery imported from various places in the world That proves pottery items were one of the main goods which was traded in international trading in ancient Sri Lanka The main material that is used in Sri Lankan pottery industry is clay, there are few main clay types found within the country and most of the traditional pottery villages are found near these clay deposits. Nattandiya, Kegalle, Wariyapola, Dankotuwa, Kelaniya are some of them. Currently, the traditional pottery industry in Sri Lanka faces many challenges such as material scarcity and inadequate affordability There are some new techniques added, still most of the potters make their pots in a traditional way where this sector generates a low profit Therefore, many people who are involved in the pottery industry face many socio and economic problems. Lack of modern technology, the inefficiency of production, and the high rate of damages are some of the major problems they face.

Sri Lanka pottery industry is one of the small enterprises which require sufficient institutional support to identify problems and develop the industry And thereby raise the quality bar high for Sri Lanka pottery items in the world to expand further into export market

2022 Portfolio Thevidu Amaratunga 25
26 Thevidu amaratunga 2022 Portfolio
27 Thevidu amaratunga 2022 Portfolio
28 Thevidu amaratunga 2022 Portfolio
29 Thevidu amaratunga 2022 Portfolio

Turn static files into dynamic content formats.

Create a flipbook
Issuu converts static files into: digital portfolios, online yearbooks, online catalogs, digital photo albums and more. Sign up and create your flipbook.