Dinithi Warakagoda - MSc Architecture - Year 01 - 2022

Page 1

D M Warakagoda PORTFOLIO 2022 MSc Architecture

ABOUT ME

I am currently a postgraduate student of MSc Architecture program awarded by Liverpool John Moored University, UK. My passion for design and architecture grew towards basic design theories such as colour psychology, architectural sustainability and urban design perceptions. Undergraduate years were spent on experimenting with design theories on both design projects and researches I see myself as a person who is creative in the conceptualized design approaches and application on the knowledge gained through architectural practice I am always energetic and eager to learn new things. I am dependable, hardworking and always try to achieve the next target in my life.

REFERENCES

ARCHT. CHANNA HOROMBUWA

AIA(SL)1998, M.Sc.(Arch.), B.Sc.(BE)Hons

JNCH Architects, 136, Poorwarama Road, Colombo 05. Tel : +9411 309 3658, +9477 767 6789

Email: chajee@slt.lk

ARCHT. M L NUWAN HARENDRA PREMARATHNA

AIA(SL) 2006, M.Sc.(Arch.), B.Sc.(BE)Hons

Head of the Department / Senior Lecturer, Department of Architecture, General Sir John Kotelawala Defence University Southern Campus

Tel: +9411 243 3485, +9471 486 8676

E mail: nuwan.harendra@kdu.ac.lk

i Dinithi Maheeka 2022 Portfolio

CONTENT

Resume iii

MSc Year 01 Semester 01 01

Community Housing Project @ Wanathamulla

MSc Year 01 Semester 02 25

Interpretation Center @ Ranmasu Uyana

Specialist Study 59

Colour as a Timeless Aspect in Architecture

2022 Portfolio Dinith Maheeka ii

EDUCATION

MSc in Architecture (2021 2023) reading

Sri Lankan Institute of Information Technology (Awarded by Liverpool John Moores University, UK)

MSc in Management in Construction (2020 2021)

ESOFT College of Engineering & Technology (Awarded by Kingston University, London, UK)

BSc in Built Environment (2016 2018)

General Sir John Kotelawala Defence University, Southern Campus, Sri Lanka

G C E A/Ls & G C E O/L s (2002 2015)

Holy Cross College, Gampaha

WORK EXPERIENCE

Visiting Lecturer for Civil Engineering & QS Department at ESOFT College of Engineering & Technology (2021 )

Junior Consultant at KDU Southern Campus Construction while assisting in academic activities & research supervision for the Department of Architecture (2020 2021)

Intern at JNCH Architects (2019)

Freelancer Architectural designs (2019 )

LANGUAGES

English Sinhala

iii Dinithi Maheeka 2022 Portfolio
RESUME SOFTWARE SKILLS ACHIEVEMENTS dmnpcfinale@gmail.com + 94 777477908 No 49/11/E, Kirindiwela road, Yakkala dini_maheeka 2022 Portfolio Dinith Maheeka iv Gained Autodesk Certified User (ACU) Certification from Autodesk in 2019 Published a research paper on “An assessment of collective image of urban scape in the context of rapid development with reference to Maharagama” at 10th KDU International Research Conference in 2017 PERSONAL SKILLS COLLABORATION & COMMUNICATION DESIGN & CREATIVITY MANAGEMENT & ORGANIZED THINKING DETAIL ORIENTED INNOVATIVE PROBLEM SOLVING SKILLS

ARCHITECTURAL DESIGN PROJECT

COMMUNITY HOUSING PROJECT

Project type Housing Project

Site Location Wanathamulla, Colombo Sri Lanka

Duration Oct 2021 Dec 2021

Software AutoCAD, Sketchup, Lumion

Used
01 Dinithi Maheeka 2022 Portfolio

PROJECT SUMMARY

The project focus on developing the social city image of Wanathamulla area due to its present deteriorated image. Though the context lies in the heart of Colombo city, the neihgbourhood is known for slums and its people labeled as low class people who lives on drugs, theft and other illegal activities The society looks down upon people and since they lack privileges in the city My project will cater for middle income people who comes to Colombo hoping for job opportunities and a new beginning in their life needs affordable housing. According to the UDA master plan proposal along the Baseline road another 2 middle income housing projects are planned. Adhering to that my housing project will also go along with the plans trying to get more ways of context generated income for the betterment of the neighboring people Also bringing middle income people will be a positive influence on the lower incomes people and gradually resulting in a new social image raising economical conditions of all neihgbourhood people. This will result in redefining what housing means and through that the image of the city will be redefined as well. A new way of life will be formed as housing is inseparably tied to city’s DNA due to its, form, structure & density

Thus the project will act as an urban pocket with public amenities and landscaping to attract people and thereafter promote social interaction and better impact Hence the basic design idea is to promote social cohesiveness and a symbiotic relationship (a win win situation) for the neihgbourhood people as well as residents and the public crowd through nature and landscaping creating a humane environment in this housing project.

2022 Portfolio Dinith Maheeka 02

City centers to be developed with all the amenities, facilities and services within reach Shop houses and mini stalls for the residents of the area to level up context generated income

Baseline road to be extended to 6 lanes for BRT

Transport hub to be connected with BRT line, railway line, new proposed flyover and the boat circuit to intensify places around existing & projected public transportation routes

Borella junction Park, Ride & Station Plaza

Canal to be connected creating alleyways on either sides

MASTER PLAN

Neighboring context of the Baseline road to be developed as a mixed developed ribbon with housing projects for the middle incomers

Canal to be treated & broadened and used for transportation and recreation activities. Connection to the Dematagoda canal to be incorporated into walking paths towards the Kolonnawa marsh.

03 Dinithi Maheeka 2022 Portfolio

CONTEXTUAL ANALYSIS

SITE ANALYSIS

SITE

IMAGES
2022 Portfolio Dinith Maheeka 04

Looking for a place to call HOME which they can afford Unmet demands/ high density

Many high rises constructing are luxury type

To establish a strong social, cultural, economical ties with their host community to rebuild their lives and live in a dignified way

Already recognized by UDA for mixed development including housing for middle income people

Adhere to UDA proposals

DETERIORATED SOCIAL IMAGE

ENVIRONMENT BUILT NATURAL SOCIETY & COMMUNITY ECONOMY

HOUSING FOR MIDDLE INCOME PEOPLE

Working crowd moves into the city from outside of Colombo

MIDDLE CLASS WORKING CROWD

Low income

Looked down upon Lack privilege in the city Maintenance to expensive difficult to keep up

Slums & Illegal construction unsanitary

Pollution

No green cover

No privacy High density

Drug dealing & Illegal businesses

Theft, Vandalism, Violence

Money minded & Limited thinking

SOCIAL & CULTURAL

Density

Being labeled decrease in quality of life

ARCHITECTURAL, PLANNING & TECHNICAL ISSUES

BETTER IMPACT

Unforeseen effects of walk up buildings

Lack of open/shared spaces unforeseen effects of low cost designing

FINANCIAL ISSUES

Difficult to keep up with expensive

MANAGEMENT & OPERATIONAL ISSUES

Poor maintenance

Lack of responsibility

COLOMBO Education Facilities/ amenities Services Health Jobs Opportunities
05 Dinithi Maheeka 2022 Portfolio

A housing should be an ARCHETYPE for this new people who moved into the city in order to get comfortable and rebuilt their lives

Housing is an in separately tied to city’s DNA due to its, form, structure & density

2022 Portfolio Dinith Maheeka 06
A WAY OF LIFE Redefine the image of the city NEW SOCIAL IMAGE POSITIVE CHANGE FOR PEOPLE Sustainability Social cohesion Housing quality Cultural facilities Job opportunities Entrepreneurship Better impact More Influence Nature Participation Service centers Mini retail Shops/stalls 3 wheeler park Community common area Gathering spaces Open spaces Food stalls/kiosks Utility shops Community gardening Open gym Apartments Walking paths Live work units Fitness center More ways to earn Context generated income WANATHAMULLA CONTEXT Socio economic conditions Community cohesion Better quality of life for residents Denser but healthier Infrastructure & social equity Designing for resilience & sustainability SOLUTIONS SOCIAL DEVELOPMENT SOCIAL INTERACTION ARCHITECTURAL SOLUTION

CONCEPTUAL IMAGERY

DESIGN

07 Dinithi Maheeka 2022 Portfolio
APPROACH
2022 Portfolio Dinith Maheeka 08 BASELINE ROAD BASELINE RAILWAY STATION GROUND FLOOR PLAN MAIN ENTRANCE & CAR PORCH ATRIUM & MAIN LOBBY WATER FOUNTAIN & POOL PUBLIC PARKING SERVICE BLOCK & VEHICLE RAMP SERVICE CORE KIDS’ PLAY AREA, OPEN GYM & OPEN GREEN AREA PUBLIC AMENITIES COMMERCIAL & SERVICE AREA BASELINE ENTRANCE WITH FOOD STALLS TRANSFORMER ROOM, GENERATOR ROOM, PUMP HOUSE, LOADING BAY
09 Dinithi Maheeka 2022 Portfolio 2 BEDROOM APARTMENT 1 BEDROOM APARTMENT STUDIO BEDROOM APARTMENT MINI MARKET RESTAURANT PUBLIC AMENITIES OPEN GREEN SPACE & YOGA AREA 2 ND FLOOR PLAN PUBLIC PARKING INTERMEDIATE LOBBY AREA KIDS’ CARE CENTER 1 ST FLOOR PLAN PUBLIC PARKING COMMERCIAL AREA INFO CENTER PUBLIC AMENITIES PUBLIC FLOOR 3 RD FLOOR PLAN APARTMENT FLOOR 4 TH FLOOR PLAN APARTMENT FLOOR 5 TH FLOOR PLAN APARTMENT FLOOR OPEN AIR MINI BASKETBALL COURT BUILDING DESIGN

COMMUNITY GARDEN

GATHERING TH & 9 TH FLOOR PLAN FLOOR TH FLOOR PLAN FOR SOLAR PANELS

7 TH FLOOR PLAN

FIRE REFUGE FLOOR

2022 Portfolio Dinith Maheeka 10
COMMUNITY HALL
SPACE GYM COMMUNITY GARDEN 8
APARTMENT
10
ROOFTOP GROUNDS
APARTMENT UNITS

1. Community common garden area with rainwater harvesting

2. Solar panel ground area

3. Lift core & stairway

4. 7th floor gathering space steel space frame structure with glass facade Water tanks Solar panels

7. Plant troughs and planters for rain water harvesting Exhaust fan to force hot air out

9. Vegetative double skin to block direct sunlight

10. Steel frame attached to handrails

11. Iron mesh attached to steel frame to grow vegetation

12. Gypsum board pendant ceiling

13. Bridge connecting 2 accommodation towers supported with steel truss structure

14. Load bearing verticals creating an elemental entrance lobby & atrium

15. Water fountain & paddling pool

1

11 Dinithi Maheeka 2022 Portfolio
5.
6.
8.

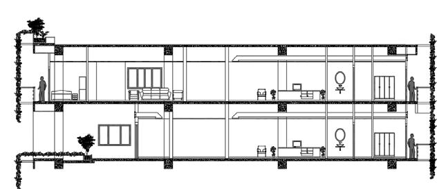
LONGITUDINAL SECTION

2022 Portfolio Dinith Maheeka 12 6 7 9 8 11 12 10 15 14 13 5 3 4 2

B A S E L I N E R O A D

13 Dinithi Maheeka 2022 Portfolio

LAYOUT Less no o apartment units on the front façade to reduce solar heart gain and arrangement promotes cross ventilation through the building

FENESTRATION ARRANGEMENT all windows to be opened to gain natural ventilation into the interior spaces

NATURAL VENTILATION building orientation to get the maximum out of natural wind flow

SHAPE reduce wind turbulence and minimum solar exposure on facades

MASSING accommodation towers distant from the busy & noisy main road

SUN PROTECTION OF THE BUILDING east & west facades to be covered with double skin a vegetative trellis

WATER FOUNTAIN & PADDLING POOL cool & purifies air which enters inside the building cooling the indoor spaces Heat will be loss through vertical air flow through the double skin

ORIENTATION south façade is the longest and faces to the sun path

PHOTOVOLTICS solar panels are positioned in the top most floor as a sustainable energy source Electricity gained through solar panels to be used in the public spaces and street lighting

COMMUNITY GARDENS encourages social & communal activities through gardens provided to grow their own fruits & vegetables to use and sell among residents

EXISTING VEGETATION to shade the landscape at the ground level open public area

PERMEABLE PAVING allows rainwater to drain & add to the underground water systems after filtration S U S T A I N A B L E P R A C T I C E S
BIOCLIMATIC DESIGN CONSIDERATIONS 2022 Portfolio Dinith Maheeka 14

URBAN HEAT ISLAND INTO CONSIDERATION

Vegetation to replace hard surfaces with low reflectivity Landscaping & vertical gardens reduce urban heat island effect by shading sunlight from hard surfaces. Green roofs also contribute too absorb solar heat reducing thermal mass LIGHT & VENTILATION

15 Dinithi Maheeka 2022 Portfolio
NATURAL
2022 Portfolio Dinith Maheeka 16
EXHAUST FAN DUCT WASTE WATER PIPELINE SEWER PIPELINE WATER SUPPLY LINE ELECTRICAL DUCT SERVICE DUCT PLANT TROUGHS PLUMBING DUCT HID UNDER PLANT TROUGH OPEN SPACE AREA IN BETWEEN APARTMENTS DOUBLE SKIN BUILDING STRUCTURE FACADE STRUCTURE 17 Dinithi Maheeka 2022 Portfolio
STRUCTURE & FAÇADE STUDY STEEL FRAME WITH IRON NET TIMBER PANELED DOOR STEEL FRAME CONNECTOR VEGETATIVE DOUBLE SKIN GYPSUM BOARD CEILING RCC SLAB ELECTRICAL DUCTS EXHAUST FAN DUCT FAIR FACED CONCRETE SERVICE DUCT OPEN SPACE PLANT TROUGHS STEEL HANDRAIL BALCONY AL DOOR WINDOW CEMENT CUT FLOOR VERTICAL DOUBLE SKIN 2022 Portfolio Dinith Maheeka 18
INTERIOR & LIGHTING STUDY 19 Dinithi Maheeka 2022 Portfolio

ARTIFICIAL LIGHTING

2022 Portfolio Dinith Maheeka 20
21 Dinithi Maheeka 2022 Portfolio
2022 Portfolio Dinith Maheeka 22 EXTERIOR FAÇADE MATERIALS
23 Dinithi Maheeka 2022 Portfolio
2022 Portfolio Dinith Maheeka 24

DESIGN FOR HERITAGE & CONSERVATION CENTER UYANA

Project Conservation Project

Site Location Ranmasu Uyana, Anuradhapura, Sri Lanka

Duration Apr 2021 Jun 2021

Software AutoCAD, Lumion

type
Used
Sketchup,
INTERPRETATION
@ RANMASU
25 Dinithi Maheeka 2022 Portfolio

PROJECT SUMMARY

The Sacred City of Anuradhapura is the cultural capital in Sri Lanka with unique rooted heritage. Founded in the 5th Century BC, it was developed into the 1st planned city and the 1st kingdom of Sri Lanka. The Sacred City of Anuradhapura including the Royal Park inscribed as a UNESCO World Heritage site under the criteria (ii), (iii) and (iv) since 1982. Gardens & bathing complexes were a main component for royalty’s sensual enjoyment The Royal Park stands as a noted example of garden architecture and irrigation excellence (pre Christian era) and falls under landscaping architecture of ancient Sri Lanka. The irrigation techniques have been designed to flow water from Tissa wewa through all of the ponds and then released into agricultural lands. According to UDA, at present Ranmasu Uyana falls under cultural/heritage land use in the Cultural Zone of the Anuradhapura City. Places with such cultural and historical values tend to enrich people’s lives which further leads on to deep send of appreciation, a connection to the past generations and a great inspiration to the present and future communities. These places and landscapes owns the experience of a great history creating an identity reflecting on the fact who we were and who we are within this great universe. Thus in this conservation project after observation of the garden needed conservation strategies were documented and proposed out with a master plan adhering to conservation charters Through observation, it was noted that though the past conservation attempts have been successful the lack of maintenance have caused to hinder and decay of the park. Thus, the main issue identified within the site was negligence of a heritage site with such aesthetic and engineering value that could lead to gradual value destruction of the place.

2022 Portfolio Dinith Maheeka 26
27 Dinithi Maheeka 2022 Portfolio TISSA WEWA PADDY FIELDS MAIN POND EXISTING PATHWAY ‘DIGU VIL’ STRUCTURES NORTHERN RUINS SMALL POND & RUINS SANITARY CENTER PUBLIC W/R CAR PARK ‘STAR GATE’ Dry & torrid zone 33 35 ° C + 5 ° C 1000 1500 mm CONTEXTUAL ANALYSIS
NORTHERN
2022 Portfolio Dinith Maheeka 28
RUINS ENTRY WAY TO NORTHERN RUINS DIGU VIL & OTHER WATER PONDS WATER CHANNELS EXISTING PATHWAY THROUGH THE GARDEN STAR GATE MAIN POND SMALL POND RUINS NEAR SMALL POND PADANAGHARA
29 Dinithi Maheeka 2022 Portfolio Inhabitants Pilgrims Tourists MASTER PLAN

SACRED ATAMASTHANA

URBAN DEVELOPMENT

WATER CHANNELS

HERITAGE SITE SHUTTLE BUS SERVICE ROUTE & MARK A CYCLING PATH

SOFT MOBILITY WITHIN THE SACRED CITY

ENTRANCE TO SACRED CITY TO BE HIGHLIGHTED AN INFORMATION CENTER TO BE ESTABLISHED

Presently the Royal Park falls under the Cultural Zone of the Anuradhapura city. Yet, in the UDA development plan for 2030, an interpretation center has been proposed to establish in the urban city limit (within the new urban regeneration area). But locating the interpretation center to share knowledge inside the Sacred area would be more effective and it could be recognized as one of the most crucial stops inside the Sacred City circular tour Preserving the area and creating a public park simultaneously calls for delicate measures within the site. Yet adhering with UDA proposals, leisure and recreational activities can be promoted to result in an activated space throughout the day by many user groups. Within the site, landscaping and accessibility with resting areas needs to be provided, and on the main entrance an interpretative center would distribute the knowledge on the heritage city and its elements along with professional help when required International cooperation through academics and campaigns and outdoor education facilities can be planned to educate and share with any visitor. Public amenities can be located on the entrance and exit of the park along with facilitating the Tissa wewa bund as a water promenade.

REVITALIZE THE RESERVOIR BUNDS AND MAIN AREAS TO BE ARRANGED AS WATERFRONT PROMENADE

SITE

2022 Portfolio Dinith Maheeka 30

CONCEPT

AWAKENING THE SENSES

31 Dinithi Maheeka 2022 Portfolio

CONSERVATION VALUE & POTENTIAL

Being able to locate inside a living heritage city, this site could be a teaching space center of learning. Interpretation of heritage and education play a key role in UNESCO designated sites, which in return have the potential to serve as learning sires to protect and enhance cultural and natural diversity for sustainable development. It is a chance to feel the responsibility to strengthen the overall understanding, appreciation and respect for cultural and natural heritage So then the site will be more than a place where objects are exhibited and conserved, but to bring out intercultural dialogues . This project will seek to cater equally for the functions of conservation, tourism, education and recreation. The overall purpose of the project would be Educating for sustainable development through heritage interpretation. It will be bring out what people have forgotten.

2022 Portfolio Dinith Maheeka 32

PROPOSED SITE PLAN

33 Dinithi Maheeka 2022 Portfolio 5 L

J I H D C B A

EF1 G23K4 X X 2022 Portfolio Dinith Maheeka 34
35 Dinithi Maheeka 2022 Portfolio 1 2 3 4 5 9 8 7 6 10 11 12 INTERPRETATION CENTER 1 FOYER 2 INTERACTIVE MULTIMEDIA CORNER 3 DISPLAY AREA 4 LECTURE SPACE 5 READING CORNER 6 RECEPTION + INFO CENTER 7 ARCHIVE 8 STAFF W/R 9 EXHIBITION SPACE (COURTYARD) 10 STAFF ENTRY 11 MANAGEMENT & STAFF ROOM 12 EXIT
2022 Portfolio Dinith Maheeka 36 ENTRANCE & DISPLAY AREA INTERACTIVE MULTIMEDIA CORNER LIBRARY & LECTURE SPACE
CAR PARK INTERPRETATION CENTER
37 Dinithi Maheeka 2022 Portfolio
ENTRANCE

PUBLIC W/R BLOCK

OPEN PAVILION

UNESCO SIGNAGE
2022 Portfolio Dinith Maheeka 38
39 Dinithi Maheeka 2022 Portfolio DURING DAY TOURS DURING NIGHT TOURS SMALL POND & RUINS
2022 Portfolio Dinith Maheeka 40 MAIN POND & RUINS
B I J 1 ENTRANCE THROUGH THE BRIDGE 2 SEATING 3 DISPLAY 4 DESCRIPTIVE WINDOWS EXTENDED BRIDGE 41 Dinithi Maheeka 2022 Portfolio
B 1 2 3 4 2022 Portfolio Dinith Maheeka 42
NORTHERN RUINS STAR GATE NORTHERN RUINS
43 Dinithi Maheeka 2022 Portfolio

PATHWAY THROUGH THE GARDEN

2022 Portfolio Dinith Maheeka 44
45 Dinithi Maheeka 2022 Portfolio 1 2 3 4 5 6 E 1. OPEN PAVILION 2. ENTRANCE TO THE CAFE 3. STORAGE AREA 4. CAFÉ SPACE 5. LOCAL HANDCRAFT MARKET AND GIFT SHOP 6. TIMBER DECKED FRAME C C CAFETERIA
CAFETERIA OPEN PAVILION
2022 Portfolio Dinith Maheeka 46
VIEWPOINT F

INTERPRETATION CENTER

DETAILED SECTION

A - A
47 Dinithi Maheeka 2022 Portfolio
2022 Portfolio Dinith Maheeka 48

Indirectly coming natural light diffused to the display and showcase area lighting and highlighting it

Ambient lighting for reception, library space and the lecture area

Track lighting to emphasize wall exhibits and info panels

INTERPRETATION CENTER

NATURAL & ARTIFICIAL LIGHTING

49 Dinithi Maheeka 2022 Portfolio

Natural lighting is controlled and allowed to enter the building through an indirect path

Front façade openings the entry door opened for natural lighting Task lighting to light up concrete exhibit pillars

2022 Portfolio Dinith Maheeka 50

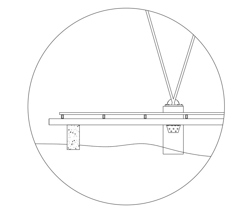
EXTENDED BRIDGE

GI bar handrail for better support

Light weight on shear

Pre cast

Concrete

51 Dinithi Maheeka 2022 Portfolio
pillars with general foundation on marshy land
shear walls
eco brick wall structure
walls DETAILED SECTION B - B

1’ x 1’ RCC columns to structurally support

8’ x 4’ ‘I’ bar filled with cylinder concrete work as a wall structure

Steel stairway finished with L angles and flat irons

Raft foundation to bear the watch tower on marsh

Angled 8” x 4” THK ‘I’ bar steel columns anchor bolted to concrete pillars

Timber deck from recycled/restored railway sleepers Timber deck supported by 4” x 2” box irons

Flat space framed roof by GI bars

Timber deck supported by 4” x 2” box irons

6’ x 3’ steel truss to support the entrance bridge

Timber deck supported by 6’ x 3’ ‘I’ bar beam bridge

2022 Portfolio Dinith Maheeka 52

CAFETARIA

STRUCTURAL COMPONENTS

Zn/ Al ROOFING SHEETS

HEAT & SOUNDPROOF LAYER

1 inch GI BOX BAR FLAT SPACE FRAMED ROOF STRUCTURE

4” x 2” ANGULAR BOX IRON COLUMNS CONNECTED TO SOLID PRE CAST CUBES KEPT ON THE GROUND SURFACE TO GIVE SUPPORT AS A ‘TAMPITA’ STRUCTURE

TIMBER DECK BY USED RAILWAY SLEEPERS

TIMBER DECK SUPPORTED BY 4” x 2” BOX IRON BARS

PRE CAST CONCRETE PILLARS JOINTED BY L ANGLED STEEL SUPPORTERS

53 Dinithi Maheeka 2022 Portfolio
2022 Portfolio Dinith Maheeka 54

CAFETARIA

55 Dinithi Maheeka 2022 Portfolio PRE CAST CONCRETE BEAM 6” x 3” PRE CAST CONCRETE BEAM 4” x 2” BOX IRONS TIMBER DECK SEATING DETAIL DETAILED SECTION C - C
2022 Portfolio Dinith Maheeka 56 L ANGLED STEEL SUPPORTER FLAT IRON WELDED SUPPORTER 2 inch GI BARS PRE CAST CONCRETE PILLAR PRE CAST JOINT BEAM TO COLUMN BY DOWEL PIN

VIEWPOINTS

57 Dinithi Maheeka 2022 Portfolio
2022 Portfolio Dinith Maheeka 58 1 inch GI BAR FLAT SPACE FRAMED ROOF SUPPORTS ROOFING TENSILE MATERIAL ¾” THK GI BAR HANDRAIL TIMBER DECK SPACE FRAME BY 4” x 2” BOX IRON BARS 6” x 3” STEEL BAR SUPPORTERS RCC CONCRETE MINI RETAINING WALLS TO GET SUPPORT FROM THE TANK BAND STRUCTURAL COMPONENTS

SPECIALIST STUDY

COLOUR AS A TIMELESS ASPECT IN ARCHITECTURE: PRESERVING TANGIBLE CULTURAL HERITAGE THROUGH COLOUR PERCEPTION IN THE BUILT ENVIRONMENTWITH SPECIAL REFERENCE TO KANDY CITY

59 Dinithi Maheeka 2022 Portfolio

CRITICAL ARGUMENT

The connection between man & colour brought forward the theory of Colour psychology which gradually impacted into architecture, built environment & urban design. Colour was used to give a sense of place, a meaning to the space creating an identity. Colour is a intangible element which represents the tangibles in the built fabric and thus can be considered as a highly contributing element that survives as a unifying thread in creating identity resembling historic features with a sense of time through the evolution of the city Therefore this study brings the question, if any particular colour that is rooted in the local context is to be changed, would the history and culture still be preserved? and how effective is colour in heritage preservation in modern times with new social developments? The study went through the objectives of exploring the relationship between colour and heritage preservation in built environment, investigating present day condition of a living heritage city in meeting with new social developments and brings out the rationale behind preservation conservation guidelines imposed by building planning authorities to propose a new guideline to preserve tangible cultural heritage through colour. As colour is a crucial factor for a city, it gives away the 'first impression' of a city its character to identify the city's history, culture & background and continuing on it will enhance the city's overall charisma and the image Thus the crucial point it to be made that if the traditional/cultural colour of the city to be damaged with time and other developments, the local culture will vanish with it and gradually the city will be without its culture. Thus it can be said that urban colourscape not only preserve culture & history, but has a great role in the future development of the city as well retaining the personality and character of the city.

2022 Portfolio Dinith Maheeka 60
61 Dinithi Maheeka 2022 Portfolio

PROPOSED GUIDELINE

2022 Portfolio Dinith Maheeka 62

Turn static files into dynamic content formats.

Create a flipbook
Issuu converts static files into: digital portfolios, online yearbooks, online catalogs, digital photo albums and more. Sign up and create your flipbook.