
1 minute read
NEESON CRIPPS ACADEMY
PHNOM PENH, CAMBODIA and exit. This building exhibits an oblique approach to user arrival, utilizing it’s angular composition to create multiple experiences of arrival. Vertical circulation via stairways is concentrated to the Southern foremost side of the building. Use of technology is limited due to the project’s budget, and is mostly reserved for mechanical systems applications.
Throughout the design of both the interior and exteriors of the building, predominant surfaces exhibit a common linear grid motif. The facade features a grid of curtain walls and louvers. These patterns are mimicked in the interior flooring and ceiling material selections: a square ceramic
Advertisement
Key
tile and a staggered layer of bamboo. This is demonstrated in the conceptualization of Figures 01-03. The materiality also celebrates the history and culture of the surrounding vernacular. Pictured on the right is a sculptral wall that portrays this technique.
Public Spaces Private Spaces Semi-Private Spaces Natural Light
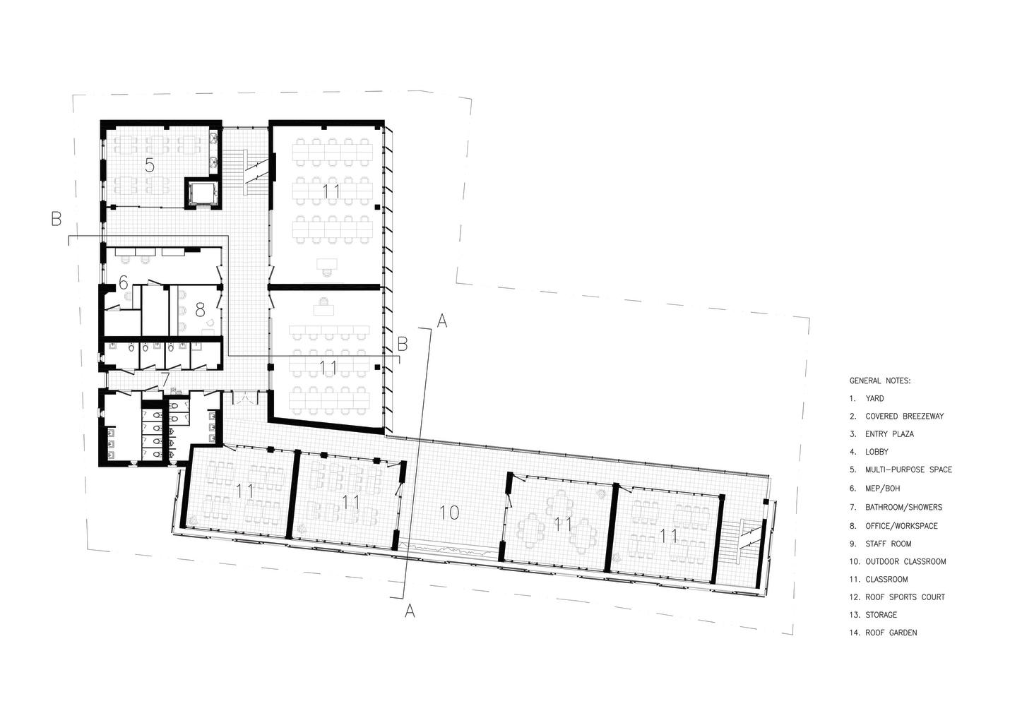
Public spaces make up approximately 10% of the building’s overall square footage. Semi-private spaces account for roughly 70% and private spaces account for 20% of the square footage. Public spaces are centralized within the building’s structure, while semi-private spaces make up the perimeter of the building. Private spaces are congregated together on the Eastern side, as shown in Diagram 02. Both private and semi-private spaces remain adjacent to public spaces in order to ensure ease of access. These patterns remain true, despite the change in floor levels.
Utilization of natural light is reserved for the most commonly used spaces such as circulatory halls and classrooms. Storage, utility rooms, and restrooms have limited natural light access to ensure privacy. As shown in Diagram 02, the majority of the classrooms within the facility face the cardinal direction in which most natural light is penetrated.

Furniture arrangement within the individual classrooms varies depending on the function of each room. However, there is a noticeable pattern towards clustered and linear arrangements within each room as shown respectively on point A and B of Diagram 02. General furniture selection is minimalistic in form and function and caters to the diverse user groups of the building.

This design of this facility follows a modular grid system for the organization of elements within the plan. This is shown in diagram 03. Both primary and secondary circulation of users emulates this grid pattern as well. Access to natural light and outdoor learning spaces are prioritized for every classroom space in order to promote a productive and healthy learning environment. These outdoor learning environments follow a pattern of dissection within the grid. This creates visual interest in the structural design, and helps to eliminate any notions of a “boxy” feel to the interiors.

DIAGRAM 03
KEY Grid Organization Green Spaces
Secondary Circulation
Primary Circulation