

Welcome to StoragePro
![]()


Welcome to StoragePro
We help set-up and expand new or existing self-store facilities, from supplying the containers to providing detailed business advice.



We tailor our services to your unique needs and goals –including offering finance options to ease the payment process.








Expert advice on best practice for your selfstore as we run three sites of our own

Introductions to industry partners for CCTV / Security / Software / Website building

Finance options over 3/4/5 years

Expert delivery from our hauliers using Hiab lorries
Specialised add-on advice – Grafo-therm paint / extra security locks /

Ongoing after-care and support services with a dedicated account manager


Initially you will speak with Charlotte Rainey, our Business Development Manager, and talk through your potential site and location.


Charlotte will visit your site to discuss the future of your self-storage business.
Advice will be given regarding pricing and the installation process once we have assessed the entrance/exit, ground condition and any other business plans you may have.




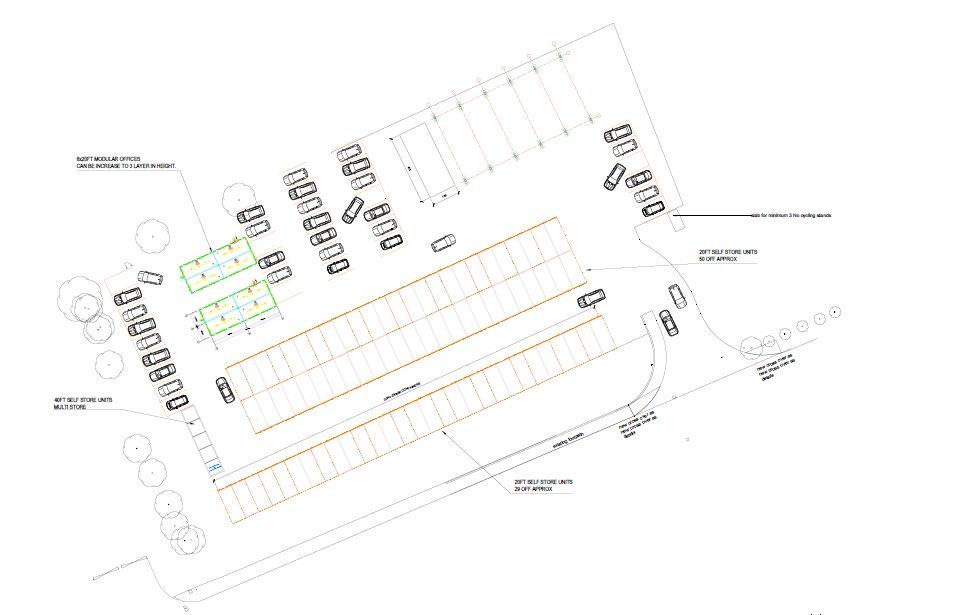
We’ll provide a quote for designing the land and if you wish to go ahead a CAD design will be created, giving you a possible blue-print of your site layout.
CAD design can include size of units, toilet blocks, one-way systems, parking, plus entrance and exit points.




Always our favourite part! Once the CAD is authorised and you are happy with the design, we can then begin the preparation and installation of your containers.

Whilst your site is being built, we will give you access to all our brilliant industry contacts so you can get the best security, website development and additional services to help maximise the profit on your self-store business.



We’re here to support you and help you grow!



You will have a dedicated account manager who will assist with any issues should they arise and any future maintenance such as repaints or repairs from our specialist mobile repairs team.




