







Silicon Engineering Consultants LLC is a CAD consulting company based in the USA that specializes in providing innovative and cost-effective engineering solutions to various industries, including architecture, construction, mechanical,andelectricalengineering.
With over a decade of experience in the field, Silicon Engineering Consultants LLC has established a reputation for delivering high-quality services in areas such as 2D drafting,3Dmodeling,BIM,andsimulation.
www.siliconconsultant.com
Thecompany'steamofexperiencedandcertifiedengineers anddesignersusestate-of-the-arttechnologyandtoolsto deliveraccurateandtimelysolutionsthatmeetclients'specific needs.SiliconEngineeringConsultantsLLCpridesitselfonits commitmenttoquality,integrity,andcustomersatisfaction.
www.siliconconsultant.com
Weaimtoprovidethebest standardservicesthatalignswith therequirementsofourpartners.
Wemaintainahigh-quality workflowanddeliveryprocesses thatarescrutinizedateveryphase.
www.siliconconsultant.com
Ourteamlooksforout-of-the-box ideastoprovideyouwith innovativeandcost-efficient solutions.
Wesolemnlybelieve-“The customerisalwaysright.”Westrive hardtohelpourpartnersstay aheadofthecompetition.
11,000+ ProjectCompleted
2,500+ HappyClients
180+ MembersInOurSuperheroTeam
"Gooddesignisalotlikeclearthinkingmade visual."
ShopDrawing isthinkingmadevisual.
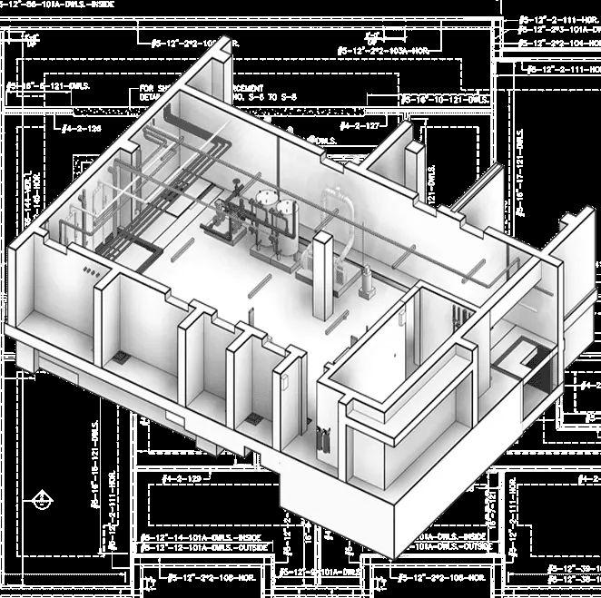
Shop drawings are an essential part of any construction project. They provide detailed illustrations and schematics of the constructioncomponents,helpingtoensure that the project is built to the desired specifications.
Shop drawings are essential in complex projects where the coordination of multiple disciplinesisrequired.Byusingshopdrawing solutions, project teams can identify potentialissuesbeforetheyoccur,leadingto faster and more efficient construction processes.
At Silicon Engineering Consultants LLC, we provide shop drawing solutions tailored to our client's needs, ensuring that every projectisbuilttothehigheststandards.
https://www.siliconconsultant.com/services/shop-drawing-service.html
Precast Detailing is the First Step while assembling a building using prefabricated components. In today's era, major AEC sectors are using these in every possibility becauseengineers,architects,designers,and contractorscanknowthecompletelife-cycle ofthebuilding.
Precast Detailing Services are efficient, effective, and highly practical methods of work in construction. With the help of this method,theconstructionrateofthebuilding becomes very competitive with the most usageofindustrialequipment.
https://www.siliconconsultant.com/services/pre-cast-panel-detailing.html
SteelDetailingistheproductionofdetailedplansand shopdrawingsforsteelfabricators,anditisaspecialist area for structural drafting. A steel detailer interprets structural drawings to gain a thorough working knowledgeoftheoveralldesignofabuilding.
They contain the specifications relating to shop drawings,includingmaterials,componentdimensions, and details relating to bolting, painting, and welding, andtheyprovidedetaileddesignsforthemanufacture of beams, columns, handrails, and much more for largesteelstructureslikebuildings,bridges,stadiums andmuchmore.
https://www.siliconconsultant.com/detailing-service/structural-steel-detailing-services.html
Rebar detailing creates detailed drawings and plans that specify the placement, size, and shape of reinforcing steel bars (rebar) used in concrete structures such as buildings,bridges,andhighways.
The process involves translating the design and engineering specifications into instructions that rebar fabricators and placers can use to construct the reinforced concretestructures.
https://www.siliconconsultant.com/services/rebar-detailing.html
BIMisnotjusta3Dmodel,it'sawayofworking.
BIM is an intelligent model-based process that provides insight to help you plan, design, construct, and manage buildings and infrastructuremoreefficiently.
BIM services refer to using Building Information
Modeling (BIM) technology to create a digital representation of a building or infrastructure project. These services include 3D modeling, clash detection, quantity takeoffs, cost estimation, scheduling, and construction sequencing.
BIM services improve collaboration, reduce errors, and increase efficiency in designing, constructing, and maintaining buildings and infrastructure.
https://www.siliconconsultant.com/services/building-information-modeling.html