Architectural Engineering - CAD And BIM

Page 1

Silicon Engineering Consultants LLC

https://www.siliconconsultant.com
Engineering CAD - BIM - 3D Visualizations Architectureshouldspeako itstimeandplacebut yearn ortimelessness
Architectural
https://www.siliconconsultant.com/services/architectural-engineering-services.html
Our agenda Our wide ran e o architectural CAD offerin About our company How we started our CAD journey Architectural Engineering The criticality o architecture in AEC Our Offerings Testimonials Honest endorsement o our services 3 4 1 2 https://www.siliconconsultant.com
Providin expeditious architectural CAD or over a decade. https://www.siliconconsultant.com
About our company
https://www.siliconconsultant.com
How we started our journey as a leadin CAD provider in the USA

About us

Silicon En ineerin Consultants LLC is a distin uished CAD en ineerin service provider with a lobal presence. We offer CAD and BIM solutions or a variety o en ineerin disciplines. Helpin architects, contractors, construction firms, and individuals to realize their projects expeditiously, efficiently, and cost-effectively. Initiated in early 2008 by a roup o en ineers, We have come a lon way in servin clients lobally. We offer a diverse ran e o CAD services like shop drawin s, detailin , and BIM or disciplines like MEP, Structural, Architectural, HVAC, and industrial complexes. Our team comprises over 150+ en ineers specializin in the Architectural, Structural, and MEP domains. We have served thousands o clients since our onset in the AEC industry. Our team comprises experienced and resh new talents that share a sin le vision o makin buildin construction as streamlined as possible. We serve our clients with utmost priority and consistently deliver the work at the promised time. We effectuate a simple vision o total customer satis action and strive to achieve this oal in every project.

https://www.siliconconsultant.com
10th Anniversary Our history 2008 EffectuationLate 2008 2009 Delivered 25 Projects 2018 2022 - ∞ More Than 1000+ Clients Served https://www.siliconconsultant.com

Mission

Our mission statement is to provide expeditious CAD | BIM solutions to the lobal AEC and manu acturin industry and help them create innovative desi n solutions or their buildin project. Develop a sustainable relationship with our clients that benefits both parties.

Our philosophy

Vision

Our Vision is to become the most trusted and efficient CAD | BIM services provider lobally, to cultivate a system where the clients are kept in the loop durin all the phases o the desi n process, and to be the best-o -the-best in our niche.

Values

We ollow a clear olden rule o inte rity and accountability with a touch o dili ence and perseverance. We promise our esteemed clients satis actory services with the discipline o providin expeditiously with no hidden a endas.

https://www.siliconconsultant.com
“To ive real service you must add somethin which cannot be bou ht or measured with money, and that is sincerity and inte rity.”
—Douglas Adams
serve all 50 states
the
https://www.siliconconsultant.com
Maple Grove, Minnesota Our location We
o
USA.

Architectural Engineering CAD Services

https://www.siliconconsultant.com/services/architectural-engineering-services.html
Thedetailin o abuildin systemmust unctionwell orthebuildin toperorm well.Theintroductiono computersin desi nin anddetailin buildin systems haschan edhowarchitecturaldratin andarchitect’sdrawin sarerealized today.TheCADDcanperormavarietyo complex unctionsthatexceed expectations.ItisevidentthatCADD increasesproductivityanddecreases humanerrorsinthe enerationo buildin drawin scomparedto conventionalmanualdratin . Architectural Engineering And Computer-Aided-Designs (CAD) https://www.siliconconsultant.com/services/architectural-engineering-services.html

Our Offerings

Landscape Architecture

plannin , desi nin , and mana in the built landscape structure

Interior Detailing

architectural interior desi n o various types, drawin s o doors, rails, elevations, and finish details

Exterior Detailing

Details o acade, roo , beams, ceilin , doors, stairs, elevations

Architectural Visualization

3D architectural renderin o schematic architectural desi ns.

Architectural BIM a power ul way to mana e your project's whole li ecycle throu h a sin le 3D BIM model

proficient architectural CAD drawin s - millwork shop drawin s, construction documents

https://www.siliconconsultant.com/services/architectural-engineering-services.html

2D CADD

Landscape Architecture

LandscapeArchitecturedealswiththe plannin ,desi nin ,andmana in o the builtlandscapestructure.Theprincipal intento landscapearchitecturedesi nis toprovideenvironmentally riendly techniques.Weprovidecomprehensive solutions orurbanlandscapearchitecture.

https://www.siliconconsultant.com/services/architectural-engineering-services.html

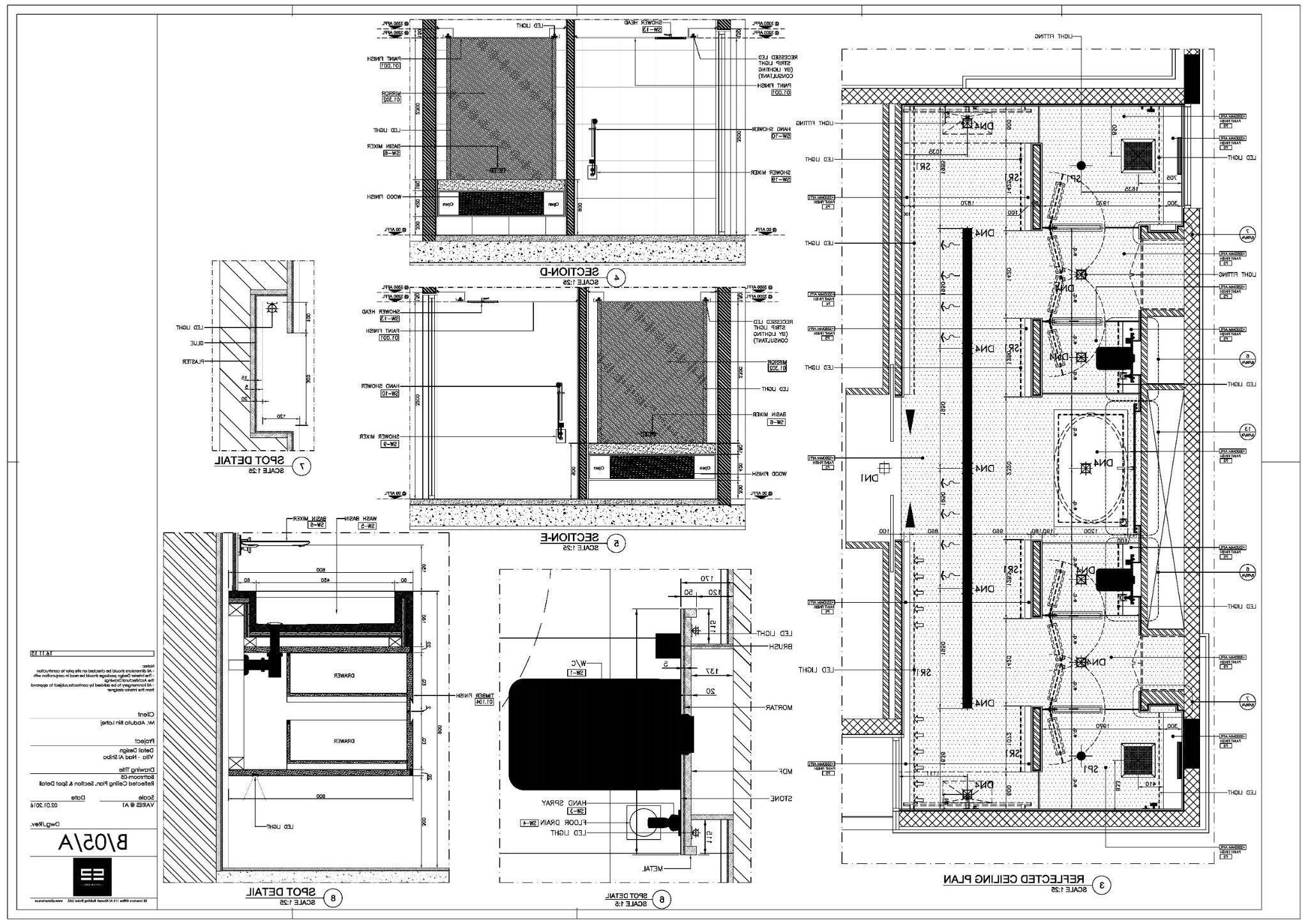
Interior Detailing

Interiordetailin istheseto drawin scontainin the detailsrelatedtotheinterioro thestructures, enerallydesi natedA-500sheetnumberinthe collectiono drawin s.Thesedrawin sincludedoors, rails,elevations,andfinishdetails.Inaddition,we provideproessionalarchitecturalinteriordesi no varioustypeslike–internationalstyleinteriordesi n, Geor ianstylehouseinterior,victorianhouseplans, andmore.Moreover,wealsoofferservicesin3D interiorvisualizationandwalkthrou h.

https://www.siliconconsultant.com/services/architectural-engineering-services.html

Exterior Detailing

Liketheinterior,exteriordetailin drawin soffer inormationonthebuildin systems'exteriorparts: acade,roo,beams,ceilin ,doors,stairs,elevations, andmore.Withtheamal amationo hi h-perormin CADDsotwareandourexperiencedarchitects,we offertop-notchexteriordetailin drawin s;these drawin sareotenparto theseto architectural drawin s.Furthermore,wealsoprovide3Dexterior renderin services.A3Dexteriormodelallowsclients tovisualizethebuildin systems’exterioreasily.

https://www.siliconconsultant.com/services/architectural-engineering-services.html

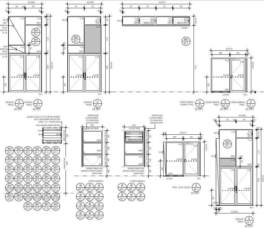
Architectural 2D CAD SiliconEn ineerin ConsultantsLLCpridesitsel on providin pra maticarchitecturedetailin solutionsto itsclients.Weareandwillbethebest-affordable providero CADD-relatedarchitecturalservices.Our antasticteamo experienceddetailers,architectural en ineers,andBIMmodelers acilitatestheproduction o hi hly-unctionaldesi ns. Existin conditionsdrawin Preliminaryfloorplans exteriorplansandinteriorplans Architecturaldrawin sets Drawin sandspecifications oractual construction https://www.siliconconsultant.com/services/architectural-engineering-services.html

Architectural Visualization

Wecreatea3Darchitecturalrenderin o schematic architecturaldesi ns.3Darchitecturalvisualization letsyouwalkaroundyourdesi ninareal-time three-dimensionalmodel.Architecturalrenderin enablesyoutomanipulatetheelementso theinterior andexterioro theproject orholisticanalysis.3D visualizationserviceshelpmiti atedesi nclashesand arecost-effective.Theycanalsobeaprecedencein themarketin o yourproject.

https://www.siliconconsultant.com/services/architectural-engineering-services.html

worth a thousand 2D drawings. A 3D architectural model is

Architectural BIM

ArchitecturalBIMserviceisapowerulwaytomana e yourproject'swholeliecyclethrou hasin le3DBIM model.The3DCADmodelsprovideaplethorao inormationabouttheproject'sschedulin , cost-estimatin ,mana ement,anddesi n development.Inaddition,BIMpromotescollaboration; stakeholderscanworkcollaborativelyonasin le modelwithareal-timeupdateo desi nrevisionsin https://www.siliconconsultant.com/services/architectural-engineering-services.html

We have been providing expeditious services with quick turnaround and competitive prices since 2008.

Our strengths

Loyalty

We are loyal to our clients and deliver with no hidden costs or a enda at quick turnaround times.

Reliability

Our workflows are reliable. We host a dedicated team o experienced en ineers and CAD pro essionals.

Efficiency

We are efficient in our work, never missin the deadlines and providin more than expected.

Commitment

We are committed to providin the most suitable solutions to our esteemed clients at the best competitive rates.

Customer testimonials

Silicon En ineerin is o ten a source o inspiration and hard work. It simplified our desi ns and vision and made the complicated process easy.

- Abbey Omar, USA

They helped me spectacularly. I can see exactly what is happenin in our project at any iven time.

- Samuel Dhanaraj, USA

Silicon En ineerin is a enuinely unique architectural en ineerin firm with a reasonable price and, believe it or not, a deli ht ul team to work with. Very impressive responses rom the directors, En ineers, Architects, and dra ters with excellent results and riendly support rom Silicon En ineerin .

- Praveen Gupta, USA

CREDITS: This presentation template was created by Slidesgo, including icons by Flaticon, infographics & images by Freepik Silicon En ineerin Consultants LLC 11670 Ft. Drive Suite 200, Maple Grove Minnesota, 55369, USA Thanks! Website: siliconconsultant.com Business eMail: in o@siliconconsultant.com Tel.: +1 763 270 8285

Turn static files into dynamic content formats.

Create a flipbook
Issuu converts static files into: digital portfolios, online yearbooks, online catalogs, digital photo albums and more. Sign up and create your flipbook.
Architectural Engineering - CAD And BIM by Silicon Engineering Consultants LLC - Issuu