The Sorrel- Home Site 20

Page 1

HOME SITE 20

1A CRAFTSMAN COTTAGE 2624 BUCKNER LANE

the
SORREL

EXTERIOR PAINT PALETTE

BODY FRONT DOOR

EGRET WHTE: SW 7570

DOVETAIL GRAY: SW 7018

TRICORN BLACK: SW 6258

TRIM
WINDOWS BLACK METAL
BLACK
BRICK TIMBERWOOD
ROOF

BEDS: 4 BATHS: 3.5 SQ. FT.: 2,567

BASE PRICE: $ 794,456

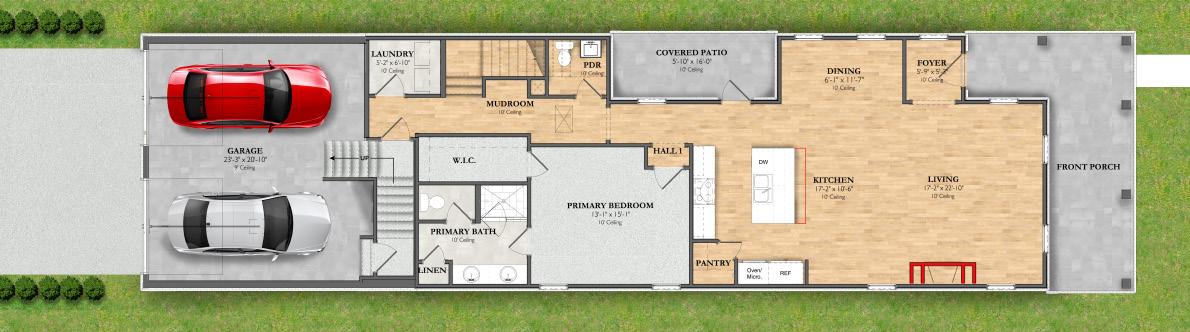
MAIN LEVEL INCLUDED OPTIONS Opaque Window Opaque Window INCLUDED OPTIONS SECOND LEVEL

INTERIOR selections

INTERIOR PAINT PALETTE

TRIM & CEILINGS

WALL COLOR 1

WALL COLOR 2: MUDROOM, POWDER, & FOYER

ACCENT: FIREPLACE & PRIMARY TREATMENT STAIN: MANTEL

FOYER

make a grand entrance

LIGHTING

ISLAND LIGHTING

COUNTERTOPS

GREYLAC
VICOSTONE

KITCHEN

*Actual layout varies. Not to scale. For representation and illustrative purposes only cafe a la home

CABINETS

PERIMETER

CABINETS

BACKSPLASH
FAUCET & SINK
HARDWARE
ISLAND
VESPER MATTE CALLISTO WHITE QUILL

APPLIANCES

chef approved

SINGLE WALL OVEN

MICROWAVE

DISHWASHER

30” GAS COOKTOP

COLONIAL PARK IN STERLING HAZE

PROMINENCE PLUS IN TIMELESS OAK

FLOORTE & CARPET

beautiful, fashionable, durable

LIVING ROOM

designed for family time

LIGHTING

DINING ROOM

good food & good times

PRIMARY BATHROOM refresh,

relax, repeat

VANITY LIGHT

CABINETS

SINK

FLOORING

SHOWER WALL

HARDWARE

COUNTERTOP MIRRORS

SHOWER FLOOR PLUMBING

CEILING FAN

PROMINENCE PLUS IN TIMELESS OAK

WALL TREATMENT IRON ORE: SW 7069

PRIMARY BEDROOM

end your day on the highest note

BATHROOM 2 bathroom the sequel

CABINETS

SINK

FLOORING

HARDWARE

COUNTERTOP

MIRROR PLUMBING VANITY LIGHT

CABINETS

SINK

HARDWARE

FLOORING

COUNTERTOP

MIRROR VANITY LIGHT PLUMBING

BATHROOM 3 bathroom the trilogy

POWDER ROOM

half the bath, all the style

PLUMBING

SINK

MIRROR VANITY LIGHT

FLOORING

LAUNDRY ROOM refresh

your look

BEDROOMS 2-4 & DEN

bedtime story central

BEDS 2-4

PROMINENCE PLUS IN TIMELESS OAK

IN

BED 2-4 & DEN

DEN
WWW.LIVEJUNELAKE.COM Actual community and homes may vary prior to or during construction. Signature Homes reserves the right to substitute materials and components of similar quality, and to change features, options, and architectural details without prior notice. Accordingly, neither these materials, nor any communication made or given in connection with these materials, may be deemed to constitute any representation of warranty, contract or guarantee or may otherwise be relied upon by any person or entity unless conveyed in written form.

Turn static files into dynamic content formats.

Create a flipbook
Issuu converts static files into: digital portfolios, online yearbooks, online catalogs, digital photo albums and more. Sign up and create your flipbook.
The Sorrel- Home Site 20 by Signature Homes - Issuu