Portfolio

Page 1

Architectural Designer

NIA Architects (Feb ‘23-Present)

Project Coordinator

& Partners Architects (June ‘21-Feb ‘23)

College of Architecture, University of Michigan (2019-21)

Junior Humphreys Taubman

NIA Architects /Chicago

Architectural Designer

The Regenerator, Go Green on Racine /Chicago, IL

Inner-City Muslim Action Network (IMAN) Clinic Expansion /Chicago, IL

Feb 2023 - Present Jue 2021 - Feb 2023

CAC Missing Middle Housing Exhibit, Chicago IL |

Come Home: Missing Middle Infill Housing presents innovative ways of reimagining Chicago’s single family home, two- and three-flat, rowhouse and six-flat typologies to better meet modern living. The exhibition highlighted the work of 42 firms from across North America that were invited to present their design solutions at the CAC, following an open call for proposals.

Role:

Architectural Designer

Actively worked in collaboration with Wei Yu Associates to iterate on floor plans, facade design ideas, and landscape design ideas - using Revit, Sketchup and Photoshop. Final printed exhibit was displayed at the Chicago Architecture Center in March 2023.

NIA Architects / February 2023 to present

The Regenerator, Chicago IL | Gorman & Co.

Vacant Elementary school being transformed into an affordable housing development in Chicago’s Englewood neighborhood.

Type: Adaptive Reuse - Housing + Healthcare

Role: Architectural Designer

Helped drive the project from design development, through construction and permit documentation, including the Planned Development Approval presentation. Responsibilities include preparing and modifying technical documents by utilizing building Information modeling and developing renderings, maps and drawings for presentations.

NIA Architects / February 2023 to present
concept render by NIA
W D W W D D D W W W W D D W W D W D W D W DN UP W D D DN GFI GFIGFI RH GFI RH 2S2S TRAVEL DISTANCE 38' - 9" TRAVEL DISTANCE 38' - 7" TRAVEL DISTANCE 48' - 3" TRAVEL DISTANCE 38' - 4" TRAVEL DISTANCE 34' - 11" TRAVEL DISTANCE 94' - 4" TRAVEL DISTANCE 42' - 4" TRAVEL DISTANCE 38' - 2" TRAVEL DISTANCE 38' - 2" TRAVEL DISTANCE 38' - 10" TRAVEL DISTANCE 39' - 2" TRAVEL DISTANCE 42' - 6" TRAVEL DISTANCE 38' - 7" TRAVEL DISTANCE 42' - 8" TRAVEL DISTANCE 37' - 4" TRAVEL DISTANCE 38' - 7" TRAVEL DISTANCE 37' - 9" TRAVEL DISTANCE 39' - 9" TRAVEL DISTANCE 103' - 3" 1 2 FEC FEC UNIT 1B-III 314 TYPE A-504 UNIT 1B-II 316 TYPE B UNIT 1B-I 318 TYPE B (CON) UNIT 1B-IIA 312 TYPE B UNIT 2B-II 310 TYPE B (HVI) UNIT 1B-II 308 TYPE B UNIT 1B-I 302 TYPE B UNIT 1B-II 304 TYPE B (CON) UNIT 1B-V 301 TYPE B UNIT 2B-IV 305 TYPE B (CON) UNIT 1B-IV 307 TYPE B UNIT 1B-IV 309 TYPE B UNIT 1B-IV 311 TYPE B UNIT 1B-IV 313 TYPE A (CON) UNIT 2B-III 315 TYPE B (CON) 62" MIN. 44" 62" UNIT 2B-I 306 TYPE A WEST STAIR EAST STAIR JANITOR CLOSET ELEC ELEV. EXIT ACCESS DIST. 136'-10" EXIT ACCESS DIST. 145'-9" IDF RM ROOM NAME, AREA & OCCUPANT CAPACITY 1-HOUR NEW WALL SMOKE BARRIER FIRE SEPARATION AND OTHER ANNOTATION SO NOTED FIRE BA.... RATING 2-HR WALL TYPE PATH OF TRAVEL FIRE RATED CEILING. RATING AS NOTED...1-HR, 2-HR, ETC. 1-HR RM NAME 20 150 NSF FEC FACP KNOX SEMI-RECESSED ADA COMPLIANCE EXTINGUISHER CABINET FIRE ALARM CONTROL PANEL KNOX BOX EXIT SIGNS 2-HOUR NEW WALL 1-HOUR EXISTING WALL 2-HOUR EXISTING WALL LEGEND -LIFE SAFETY AMBULANCE STRETCHER (24"X84", WITH 5" RADIUS CORNERS) COMMON PATH OF EGRESS TRAVEL AV FIRE ALARM SPEAKER DEVICE W/ VISUAL ALARM DEVICE DOB APPROVAL STAMPS: 850 W Jackson Blvd, Suite 600 Chicago, IL 60607 (312) 431-9515 www.niaarch.com Civil Engineer M.E.P. & F.P. Engineers Owner Landscape Architect General Contractor Structural Engineer Architect GEO SOLAR ENERGY FARM BURR RIDGE, IL 60527 15 W 271 91ST ST (630) 936-7733 ROLE Company Name Address Line Address Line 000.000.0000 200 N Main St Oregon, WI 53575 (608) 835-3900 www.gogreenonracine.com 888 S. Michigan Ave. Unit PChicago, IL 60605 (312) 427-7240 www.site-design.com 225 W Ohio St. Chicago, IL 60654 (312) 467-0123 www.terraengineering.com Three Pillar Structural Engineering Group 2933 Halsted St. Chicago, IL 60657 (312) 431-9515 www.3pseg.com 1/8" = 1'-0" A-201G-008 1 FLOOR PLAN-3RD FLOOR LIFE SAFETY EGRESS CAPACITIES LEVEL 03 DOOR CAPACITY OCCUPANCIES LEVEL 03 UNIT NAME UNIT NUMBER OCCUPANCY CLASSIFICATION (14B-3-302.1) OCCUPANT LOAD FACTOR (14B-10-1004) AREA (SF) TOTAL OCCUPANCY D W W D W W W W W D W DN UP W D DN GFI 2S2S TRAVEL 38' - 9" TRAVEL 38'TRAVEL 48'TRAVEL 38' - 4" DISTANCE 34'TRAVEL DISTANCE 94' - 4" TRAVEL 42'TRAVEL 38'TRAVEL 38' - 2" TRAVEL 38' - 10" TRAVEL 39' - 2" TRAVEL 42' - 6" TRAVEL 38' - 7" TRAVEL 42'TRAVEL 37'TRAVEL 38' - 7" TRAVEL 37'TRAVEL 39' - 9" TRAVEL DISTANCE 103'1 2 FEC FEC UNIT 1B-III 314 TYPE A-504 UNIT 1B-II 316 TYPE B UNIT 1B-I 318 TYPE B (CON) UNIT 1B-IIA 312 TYPE UNIT 2B-II 310 TYPE B (HVI) UNIT 1B-II 308 TYPE B UNIT 1B-I 302 TYPE UNIT 1B-II 304 TYPE (CON) UNIT 1B-V 301 TYPE UNIT 2B-IV 305 TYPE B (CON) UNIT 1B-IV 307 TYPE B UNIT 1B-IV 309 TYPE B UNIT 1B-IV 311 TYPE B UNIT 1B-IV 313 TYPE A (CON) UNIT 2B-III 315 TYPE B (CON) M N 62" 62" UNIT 2B-I 306 TYPE A WEST STAIR EAST STAIR JANITOR CLOSET ELEC ELEV. EXIT ACCESS DIST. 145'-9" IDF RM ROOM NAME, AREA OCCUPANT CAPACITYFIRE SEPARATION AND OTHER ANNOTATION SO NOTED FIRE BA.... RATING -HR WALL TYPE PATH OF TRAVEL FIRE RATED CEILING. RATING AS NOTED...1-HR, 2-HR, ETC. 1-HR RM NAME 20 150 NSF SEMI-RECESSED ADA COMPLIANCE EXTINGUISHER CABINET FIRE ALARM CONTROL PANEL KNOX BOX EXIT SIGNS -HOUR NEW WALL -HOUR EXISTING WALLLEGEND -LIFE SAFETY (24"X84", WITH 5" RADIUS CORNERS) COMMON PATH OF EGRESS TRAVEL AV FIRE ALARM SPEAKER DEVICE W/ VISUAL ALARM DEVICE STAIR CLEAR WIDTH FACTOR (14B-10-1005) ACTUAL USE STAIR CAPACITY (STAIR WIDTH EGRESS CAPACITY FACTOR) ROOM NAME WEST STAIR EAST STAIR 54 in 54 in 0.2 0.2 270 PERSONS 270 PERSONS 57 PERSONS 57 PERSONS COMPLIANCE YES YES Submissions Revisions DOB APPROVAL STAMPS: 850 W Jackson Blvd, Suite 600 Chicago, 60607 (312) 431-9515 www.niaarch.com Civil Engineer M.E.P. F.P. Engineers Owner Landscape Architect General Contractor Structural Engineer Architect ENERGY FARM BURR RIDGE, 60527 (630) 936-7733 ROLE Company Name Address Line 000.000.0000 Oregon, WI 53575 (608) 835-3900 www.gogreenonracine.com 888 S. Michigan Ave. UnitChicago, 60605 (312) 427www.site-design.com 225 W Ohio St. Chicago, 60654 (312) 467www.terraengineering.com Three Pillar Structural Engineering Group 2933 Halsted St. Chicago, 60657 (312) 431-9515 www.3pseg.com 1/8" = 1'-0" A-201G-008 1 FLOOR PLAN-3RD FLOOR LIFE SAFETY COMMON PATH OF TRAVEL SCHEDULE LEVEL 03 FROM ROOM UNIT LENGTH BEDROOM 312 37' 4" BEDROOM 316 37' 9" BEDROOM 307 38' 1/2" BEDROOM 309 38' 1/2" BEDROOM 301 38' 1/2" EGRESS CAPACITIES LEVEL 03 NUMBER ROOM NAME WIDTH FACTOR (14B-10-1005) DOOR CAPACITY (DOOR WIDTH EGRESS CAPACITY FACTOR) ACTUAL USE COMPLIANCE 1WEST STAIR 32 0.15 214 PERSONS 54 PERSONS YES 2EAST STAIR 32 0.15 214 PERSONS 54 PERSONS YES OCCUPANCIES LEVEL 03 UNIT NAME UNIT NUMBER OCCUPANCY CLASSIFICATION (14B-3-302.1) OCCUPANT LOAD FACTOR (14B-10-1004) AREA (SF) TOTAL OCCUPANCY 301R-2, MULTIPLE DWELINGS125 gross8717 PERSONS 1B-I 302R-2, MULTIPLE DWELINGS125 gross7016 PERSONS 1B-II 304R-2, MULTIPLE DWELINGS125 gross7116 PERSONS 305R-2, MULTIPLE DWELINGS125 gross9458 PERSONS 2B-I 306R-2, MULTIPLE DWELINGS125 gross11199 PERSONS 1B-IV 307R-2, MULTIPLE DWELINGS125 gross6936 PERSONS 308R-2, MULTIPLE DWELINGS125 gross7116 PERSONS 1B-IV 309R-2, MULTIPLE DWELINGS125 gross6936 PERSONS 2B-II 310R-2, MULTIPLE DWELINGS125 gross11129 PERSONS 311R-2, MULTIPLE DWELINGS125 gross6936 PERSONS 1B-IIA 312R-2, MULTIPLE DWELINGS125 gross7116 PERSONS 1B-IV 313R-2, MULTIPLE DWELINGS125 gross6936 PERSONS 314R-2, MULTIPLE DWELINGS125 gross7116 PERSONS 2B-III 315R-2, MULTIPLE DWELINGS125 gross10879 PERSONS 1B-II 316R-2, MULTIPLE DWELINGS125 gross7116 PERSONS 318R-2, MULTIPLE DWELINGS125 gross6996 PERSONS TOTAL OCCUPANCY 108 PERSONS MINIMUM CORRIDOR WIDTH 44" (14B-10-1020.2) MINIMUM NUMBER OF EXITS PER STORY (14B-10-1006.3.3) MAXIMUM EXIT ACCESS DISTANCE 250'-0" (14B-10-1017.2) 403.10.2023100% DD 510.06.2023ISSUE FOR BID W W D W D D DN UP DN GFI GFI RH 2S2S TRAVEL DISTANCE 38' - 9" TRAVEL DISTANCE 38' - 7" TRAVEL DISTANCE 48' - 3" TRAVEL DISTANCE 38' - 4" DISTANCE 34' - 11" TRAVEL DISTANCE 94' - 4" TRAVEL DISTANCE 42'TRAVEL DISTANCE 38'TRAVEL DISTANCE 38'TRAVEL DISTANCE 38' - 10" TRAVEL DISTANCE 39'TRAVEL DISTANCE 42' - 6" TRAVEL DISTANCE 38'TRAVEL DISTANCE 42' - 8" TRAVEL DISTANCE 37'TRAVEL DISTANCE 38'TRAVEL DISTANCE 37'TRAVEL DISTANCE 39'TRAVEL DISTANCE 103'1 2 FEC FEC UNIT 1B-III 314 TYPE A-504 UNIT 1B-II 316 TYPE UNIT 1B-I 318 TYPE B (CON) UNIT 1B-IIA 312 TYPE UNIT 2B-II 310 TYPE B (HVI) UNIT 1B-II 308 TYPE B UNIT 1B-I 302 TYPE B UNIT 1B-II 304 TYPE B (CON) UNIT 1B-V 301 TYPE UNIT 2B-IV 305 TYPE (CON) UNIT 1B-IV 307 TYPE UNIT 1B-IV 309 TYPE UNIT 1B-IV 311 TYPE B UNIT 1B-IV 313 TYPE A (CON) UNIT 2B-III 315 TYPE (CON) 62" UNIT 2B-I 306 TYPE A WEST STAIR EAST STAIR JANITOR CLOSET ELEC ELEV. EXIT ACCESS DIST. 136'-10" EXIT ACCESS DIST. 145'-9" IDF RM ROOM NAME, AREA OCCUPANT CAPACITY -HOUR NEW WALL SMOKE BARRIER FIRE SEPARATION AND OTHER ANNOTATION SO NOTED FIRE BA.... RATING -HR WALL TYPE PATH OF TRAVEL FIRE RATED CEILING. RATING AS NOTED...1-HR, 2-HR, ETC. 1-HR RM NAME 20 150 NSF FEC SEMI-RECESSED ADA COMPLIANCE EXTINGUISHER CABINET FIRE ALARM CONTROL PANEL EXIT SIGNS -HOUR NEW WALL -HOUR EXISTING WALL -HOUR EXISTING WALL LEGEND -LIFE SAFETY AMBULANCE STRETCHER (24"X84", WITH 5" RADIUS CORNERS) TRAVEL AV FIRE ALARM SPEAKER DEVICE W/ VISUAL ALARM DEVICE STAIR CLEAR WIDTH FACTOR (14B-10-1005) ACTUAL USE STAIR CAPACITY (STAIR WIDTH EGRESS CAPACITY FACTOR) ROOM NAME EAST STAIR 54 0.2 270 PERSONS 57 PERSONS COMPLIANCE YES Project No: Checked By: Drawn By: Date: Drawing No. Seal Drawing Title Project Location 08.02.2023 Submissions Revisions DOB APPROVAL STAMPS: 850 Jackson Blvd, Suite 600 Chicago, 60607 (312) 431-9515 Civil Engineer M.E.P. & F.P. Engineers Landscape Architect Structural Engineer Architect ENERGY FARM BURR RIDGE, IL 60527 15 271 91ST ST (630) 936-7733 ROLE Company Name Address Line 000.000.0000 200 Main Oregon, WI 53575 (608) 835-3900 www.gogreenonracine.com 888 Michigan Ave. UnitChicago, 60605 (312) 427www.site-design.com 225 Ohio St. Chicago, 60654 (312) 467www.terraengineering.com Engineering Group 2933 Halsted St. Chicago, 60657 (312) 431-9515 www.3pseg.com G-008 2022-026 LIFE SAFETY, OCCUPANCY & EXIT DIAGRAMS -3RD FLOOR The Regenerator 1221 62nd Street, Chicago 60636 1/8" = 1'-0" FLOOR PLAN-3RD FLOOR LIFE SAFETY COMMON PATH OF TRAVEL SCHEDULE LEVEL 03 FROM ROOM UNIT LENGTH BEDROOM 312 37' 4" BEDROOM 316 37' 9" BEDROOM 307 38' 1/2" BEDROOM 309 38' 1/2" BEDROOM 301 38' 1/2" BEDROOM 313 38' 1/2" BEDROOM 314 38' 7" BEDROOM 304 38' 1/2" BEDROOM 302 38' 1/2" BEDROOM 311 38' 1/2" BEDROOM 308 39' 1/2" BEDROOM 318 39' 9" BEDROOM 305 42' 1/2" BEDROOM 310 42' 1/2" BEDROOM 315 42' 8" BEDROOM 306 48' 3" EGRESS CAPACITIES LEVEL 03 NUMBER ROOM NAME WIDTH FACTOR (14B-10-1005) DOOR CAPACITY (DOOR WIDTH EGRESS CAPACITY FACTOR) ACTUAL USE COMPLIANCE 1WEST STAIR 32 in 0.15 214 PERSONS PERSONS YES 2EAST STAIR 32 in 0.15 214 PERSONS PERSONS YES OCCUPANCIES LEVEL 03 UNIT NAME UNIT NUMBER OCCUPANCY CLASSIFICATION (14B-3-302.1) OCCUPANT LOAD FACTOR (14B-10-1004) AREA (SF) TOTAL OCCUPANCY 301R-2, MULTIPLE DWELINGS125 gross8717 PERSONS 1B-I 302R-2, MULTIPLE DWELINGS125 gross7016 PERSONS 1B-II 304R-2, MULTIPLE DWELINGS125 gross7116 PERSONS 2B-IV 305R-2, MULTIPLE DWELINGS125 gross9458 PERSONS 2B-I 306R-2, MULTIPLE DWELINGS125 gross11199 PERSONS 1B-IV 307R-2, MULTIPLE DWELINGS125 gross6936 PERSONS 1B-II 308R-2, MULTIPLE DWELINGS125 gross7116 PERSONS 1B-IV 309R-2, MULTIPLE DWELINGS125 gross6936 PERSONS 2B-II 310R-2, MULTIPLE DWELINGS125 gross11129 PERSONS 1B-IV 311R-2, MULTIPLE DWELINGS125 gross6936 PERSONS 1B-IIA 312R-2, MULTIPLE DWELINGS125 gross7116 PERSONS 1B-IV 313R-2, MULTIPLE DWELINGS125 gross6936 PERSONS 1B-III 314R-2, MULTIPLE DWELINGS125 gross7116 PERSONS 2B-III 315R-2, MULTIPLE DWELINGS125 gross10879 PERSONS 1B-II 316R-2, MULTIPLE DWELINGS125 gross7116 PERSONS 1B-I 318R-2, MULTIPLE DWELINGS125 gross6996 PERSONS TOTAL OCCUPANCY 108 PERSONS MAX COMMON PATH OF EGRESS TRAVEL DISTANCE 75'-0" NFPA13R (14B-10-1006.2.1) MINIMUM CORRIDOR WIDTH 44" (14B-10-1020.2) MINIMUM NUMBER OF EXITS PER STORY (14B-10-1006.3.3) MAXIMUM EXIT ACCESS DISTANCE 250'-0" (14B-10-1017.2) No.Date Description 212.16.2022100% SD 303.10.2023DPD RESPONSE 403.10.2023100% DD 510.06.2023ISSUE FOR BID
Life Safety Plan - Typical Floor
North East Aerial View Pedestrian Context - Looking east on 62nd street Pedestrian Context - Looking north on S Elizabeth Street Pedestrian Context - Looking west on W 62nd street

Inner Muslim Action Network (IMAN) Clinic Expansion | Chicago IL

The ‘Inner City Muslim Action Network’ (IMAN) Clinic is a 3,400 square foot expansion of an existing South Side Health Clinic in the Chicago Lawn neighborhood.

Type: Healthcare

Role: Architectural Designer

Helped drive the project through schematic design development and design development documentation. Responsibilities include site planning, preparing and modifying technical documents by utilizing building Information modeling and maintaining communication with the consultants and the client to develop solutions to technical and design issues.

NIA Architects / February 2023 to present
concept render by Gensler

SITE PLANNING

SITE PLANNING

VISITOR ENTRY STAFF ENTRY EXISTING PARKING IMAN May 01st, 2023 | SITE PLANNING April 25th, 2023 W. 63RD ST S. FAIRFIELD AV EXISTING PARKING LOT W. 63RD ST S. FAIRFIELD AV EXISTING PARKING LOT ENTRY/EXIT CIRCULATION
Visitor Entry/Exit with a drop-off area for 1 car. 2. Separate Staff Entry/Exit.
Service Access from NW corner adjacent to the existing garage being demolished. 4. How does the Existing Entry/Exit get incorporated. 1. One-way vehicular circulation, enter from W.63rd street and exit from rear street onto S. Fairfield Av. 2. Drop-off area for 1 car. 3. Potential to add a pedestrian island to slow traffic and aid in pedestrian crossing from across the street. Exist. Entry/Exit Pedestrian Island Service Access Service Access + Staff Entry/Exit 2 Loading/ Unloading Addtn. Staff Parking 1. Visitor Entry/Exit with a drop-off area for 1 car. 2. Separate Staff Entry/Exit. 3. Service Access from NW corner adjacent to the existing garage being demolished. 4. How does the Existing Entry/Exit get incorporated. 5. Additional staff parking (2) at service access. Service access doubles as rear Staff entry/exit. 6. Permeable threshhold b/w ‘front porch’ facing 63rd and Waiting Room. 7 8 IMAN May 01st, 2023
PLANNING April 25th, 2023 W. 63RD ST S. FAIRFIELD AV EXISTING PARKING LOT PARKING, BIKE STORAGE, LOADING/UNLOADING 1. Existing garage 2. Outdoor bike 3. Can the additional parking. 4. Can the existing the center. Exist. Garage Exist. Parking 20 spots Pedestrian Island Existing Garage Addn. Parking Questions from Landscape A. Vehicular Circulation - Parking: - Is there B. For the existing - Where does - Will this parking C. Trash and Recycling - Location, frequency, outside of buildings. D. Other vehicle - Shuttle buses, - Mobile RV - Size, frequency, E. Site Survey including IMAN May 01st, 2023 |
PLANNING April 25th, 2023 W. 63RD ST S. FAIRFIELD AV EXISTING PARKING LOT W. 63RD ST S. FAIRFIELD AV EXISTING PARKING LOT ENTRY/EXIT CIRCULATION
Visitor Entry/Exit with a drop-off area for 1 car.
Separate Staff Entry/Exit.
Service Access from NW corner adjacent to the existing garage being demolished. 4. How does the Existing Entry/Exit get incorporated. 1. One-way vehicular circulation, enter from W.63rd street and exit from rear street onto S. Fairfield Av. 2. Drop-off area for 1 car. 3. Potential to add a pedestrian island to slow traffic and aid in pedestrian crossing from across the street. Staff Entry/Exit Visitor Entry/Exit Exist. Entry/Exit mural Drop-off Pedestrian Island Service Access Service Access + Staff Entry/Exit 2 Loading/ Unloading Addtn. Staff Parking
with a drop-off area for 1 car.
Separate Staff Entry/Exit.
Service Access from NW corner adjacent to the existing garage being demolished. 4. How does the Existing Entry/Exit get incorporated. 5. Additional staff parking (2) at service access. Service access doubles as rear Staff entry/exit. 6. Permeable threshhold b/w ‘front porch’ facing 63rd and Waiting Room. 1 2 3 4 5 6 7 8 9 10 11 12 13 14 15 16 17 18 19 20
1.
3.
SITE
SITE
1.
2.
3.
1. Visitor Entry/Exit
2.
3.

CONTEXT BUILDING HEIGHTS CONTEXT BUILDING HEIGHTS

Approximate Building Height : 17’
Approximate
Approximate Building Height : 77’
Building Height : 55’
Height
Building Height
Approximate Building Height : 24’ Approximate Building Height : 36’ Approximate Building Height 44’ Approximate Building
: 24’ Approximate
: 24’
SITE ENTRY DESIGN STUDIES
W 63RD ST S FAIRFIELD AVE A4.0 A4.0 ASSUMED PROPERTY LINE NEW CONSTRUCTION EXISTING BLDG Drawing North PEDESTRIAN ENTRY 1 PEDESTRIAN ENTRY VEHCLR. ENTRY VEHCLR. EXIT VEHCLR. EXIT 2 TRASH ENCLOSURE (REF. LANDSCAPE) SERVICE ENTRY DROP-OFF AREA 01 02 03 04 05 06 07 08 09 10 17 16 15 14 13 12 11 18 19 20 SURFACE PARKING (17 SPACES) REAR SURFACE PARKING SPACES) LOADING UNLOADING AREA (REF. CIVIL) EXISTING ENTRY V.I.F V.I.F 3/8" V.I.F REAR SETBACK MIN. V.I.F LINE OF BUILDNG ABOVE SIDEWALK PROPOSED CURB EXTENSION (REFER CIVIL) PRECAST PLANTERS (REF. LANDSCAPE) LINE OF BUILDNG ABOVE PERMEABLE PAVING PARKING LOT (REF. LANDSCAPE) TURF PARKWAY (REF. LANDSCAPE) LINE OF BUILDNG ABOVE WOOD STEEL FENCE (REF. LANDSCAPE) ORNAMENTAL FENCE (REF. LANDSCAPE & CIVIL) ORNAMENTAL FENCE (REF. LANDSCAPE & CIVIL) TREE GRATE (REF. LANDSCAPE) IRRIGATED PLANTER (REF. LANDSCAPE) PLANTING (REF. LANDSCAPE) ENTRY PLAZA PAVERS (REF. LANDSCAPE) VEHICLE BOLLARDS (REF. CIVIL)TYP. 17' 0" EXIST. UTILITY POLE & BOLLARD (REFER CIVIL) VAN6 PLANTING BED (REF. LANDSCAPE) EXIT EXISTING BUILDING PROPOSED LEGEND LINE OF BUILDING ABOVE EXISTING BUILDING AREA: 3,335 SF (V.I.F.) NEW BUILDING PROPOSED AREA:21,492 SF EXISTING BUILDING STORIES: EXISTING BUILDING HEIGHT: 17'-6" (V.I.F.) NEW BUILDING PROPOSED STORIES: NEW BUILDING PROPOSED HEIGHT: FLOOR AREA RATIO (FAR): 1.3 ACCESSIBLE PARKING SPACE VAN VAN ACCESSIBLE SPACE ACCESS AISLE SHEET NOTES GENERAL NOTES KEY PLAN Gensler Date Project Name Project Number Description Scale Seal Signature 2023 Virtual Energy Solutions 444 Lake St, Chicago, 60606 United States www.virtualenergysolutions.com Tel 312.583.7023 CONSTRUCTION 11 East Madison Suite 300 Chicago, 60602 United States www.gensler.com KDM Engineering 1308 Elston Ave, Chicago, 60642 United States kdmengineering.com Tel 312.763.2198 nia architects 850 Jackson, Chicago, 60607 United States www.niaarch.com Tel 312.431.9515 Shen Milson 125 Wacker Dr, Chicago, 60606 United States PROGRESS As indicated A d D 1M N A hA0.0 ARCHITECTURAL 21.1126.000 IMAN Clinic INNER MUSLIM NETWORK 2744 West Chicago, IL SCALE: 1/8" 1'-0" SITE PLAN -LEVEL 01 1 ROOF ACCESS HATCH = 15' x 4' ROOF ACCESS HATCH = 5'x4' Gensler Description Project Name Project Number Description Seal Signature 2023 Virtual Energy Solutions 444 Lake St, Ste 1700 Chicago, 60606 www.virtualenergysolutions.com 312.583.7023 dbHMS 303 W Erie St, Ste 510 Chicago, 60654 www.dbhms.com Tel 312.915.0557 NOT FOR CONSTRUCTION Fax 312.456.0124 Suite 300 Chicago, 60602 United States KDM Engineering Chicago, 60661 United States kdmengineering.com 312.763.2198 TGDA 3233 Le Moyne Ste Chicago, 60651 United States tgdastudio.com Tel 312.481.8432 850 Jackson, Ste 600 Chicago, 60607 United States Shen Milson Wilke LLC Chicago, 60606 United States 312.559.4585 Rubinos Mesia Engineers, 200 Michigan Ave, Ste 1500 Chicago, 60604 www.rme-i.comA6.1A STAIR 02 -ROOF ACCESS OPTIONS 21.1126.000 IMAN Clinic Expansion INNER CITY MUSLIM ACTION NETWORK 2744 West 63rd Street Chicago, 60629 SCALE: STAIR 02 ROOF ACCESS -SETBACK STAIR ROOF HATCH 1 SCALE: STAIR 02 ROOF ACCESS -ALTERNATING TREAD DEVICE + ROOF HATCH 2 TO ROOF TO ROOF LEVEL 01 LEVEL 02 LEVEL 03 ROOF LEVEL 01 LEVEL 02 LEVEL 03 ROOF 211.14.2023Issued Design Development Roof Access Design Options Exhibit Architectural Site Plan - 100% Schematic Design

Greenhouse Gravity, Columbus OH | Kaufman Development

A new health-centered concept to Kaufman Development’s Gravity project in Franklinton - the Greenhouse project would consist of two buildings; one of the existing structures at the site would be renovated, and a new seven-story building will be added.

Type: Multifamily Housing

Role: Junior Project Coordinator

Helped drive the project from design development, through construction development, EFRB approvals, and permit. Main responsibilities include preparing and modifying architectural documents by utilizing building Information modeling and maintaining communication with the consultants and the client to develop solutions to technical and design issues.

Humphreys & Partners Architects /December 2021 to present
concept render by NBBJ
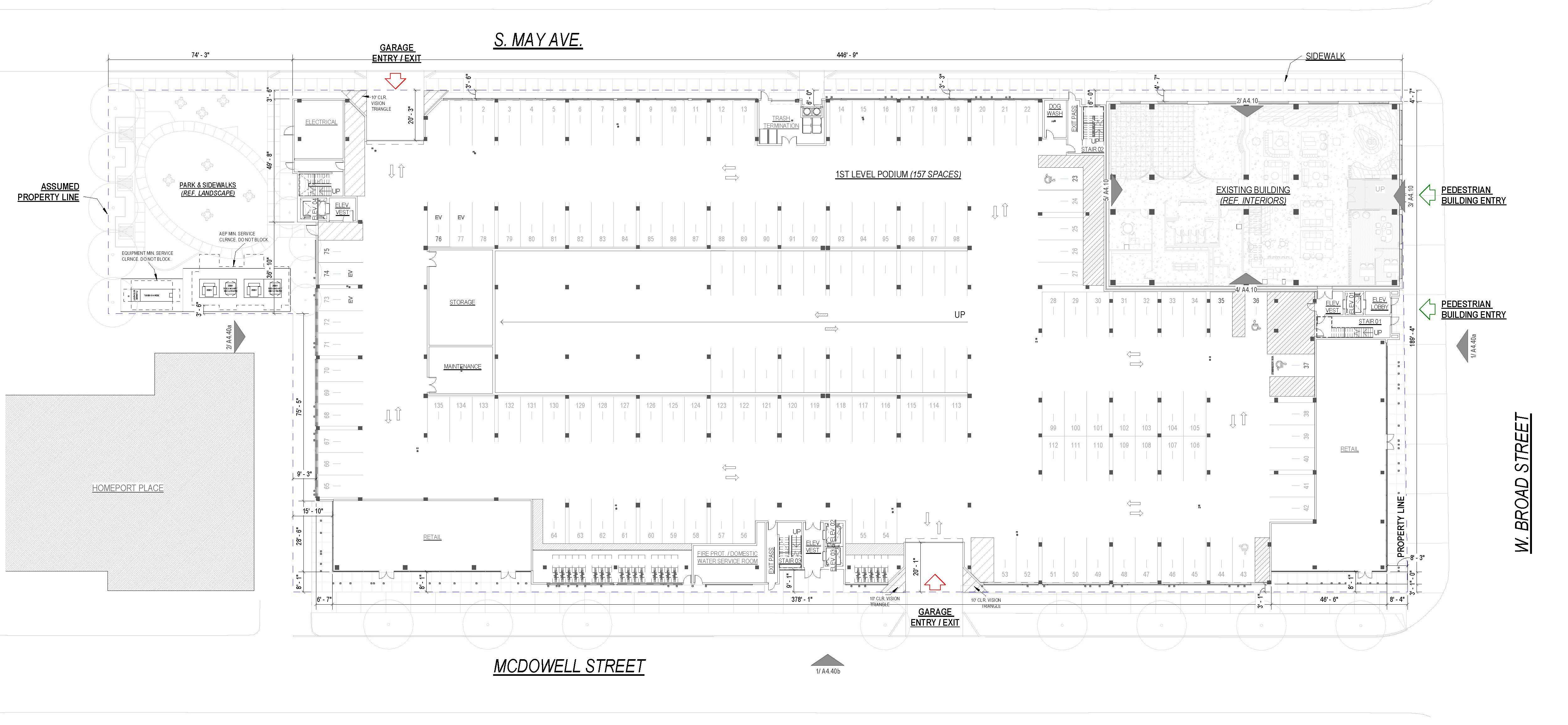
context and masterplan West North Northwest corner @ Broad East East streetscape along McDowell concept render by NBBJ concept render by NBBJ existing site photos
site plan building section N-S building section W-E existing building interior photos Amenity - stairway to mezannine Amenity @ entry entry NW corner corridor courtyard pass-through roof deck @ existing bldg existing building

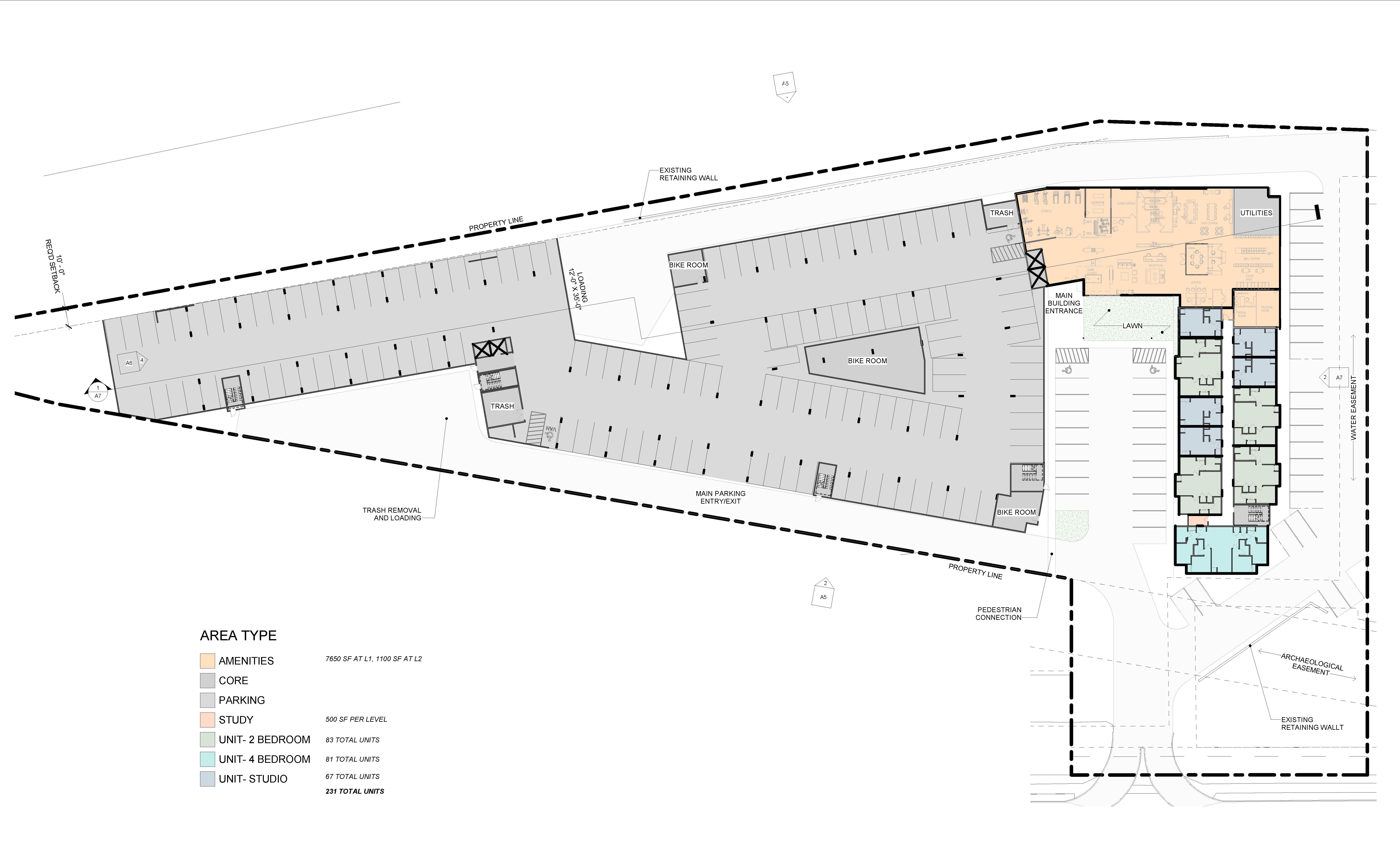
1415 Washington Avenue, Albany, NY |

Scenic Investments

Supporting Albany’s higher education institutions and complementing recent investment along Washington Avenue this investment will demolish the 2.85-acre site’s vacant hotel and construct a new five-story student housing complex to include 240 residential units.

Type:

Multifamily Housing

Role:

Architectural Intern > Junior Project Coordinator

Helped drive the project from design development, through construction development, permit and Construction Administration. Main responsibilities included preparing and modifying architectural documents by utilizing building Information modeling and maintaining communication with the consultants and the client to develop solutions to technical and design issues.

Humphreys & Partners Architects /July 2021 to present
level 1 plan level 2 plan perspective views before view facing east on I-90 after
courtyard amenity @ level 2 lawn amenity @ level 1
before view from washington ave after
corridor - study nooks corridor - study nooks corridor - unit entry corridor - unit entry amenity lobby amenity lounge / cafe level 2 clubroom
concept renders by BKV interiors

Environmental strategy

The proposal seeks to connect residents with the physical and environmental setting of Detroit, while also promoting a green, sustainable mode of construction and living. Exterior corridors shift much of apartment life to the outdoors, while units themselves always feature an outdoor balcony space.

Site strategy

All circulation throughout the community is exterior, covered and screened from the elements by a layer of wood battens. This decision presents an opportunity for significant operational cost reductions, minimizing the conditioned space of the building to the absolute essential amount, without sacrificing quality of living for residents.

east jefferson avenue east grand boulevard 2 1 3 3 3 4a 5 5 8 8 8 8 10 11 12 14 15 16 16 16 16 16 16 16 16 16 16 16 16 16 16 16 16 16 16 16 16 16 16 16 16 16 16 16
Site Plan
Winter View of Plaza Context Summer View of Plaza and Stair
Ground Floor Plan
from East Grand Boulevard Elevation from East Jefferson Avenue
Summer View of West Courtyard Stair
Elevation
Wall Section
Typical Extruded Window Detail Typical Inset Balcony Detail Unfinished Wood FacadeNewly Installed
Section Perspective
Unfinished Wood FacadePatina over a decade unit balcony facing jefferson
commercial rear edge facing interior
exterior corridor facing courtyard courtyard commercial edge facing jefferson
courtyard exterior collonade facing courtyard

Live-In Green is designed as multigenerational, communi-ty-driven housing. The design of units sought to provide a gradient of collectivity, blurring the typical boundaries be-tween public corridor and private apartment with the im-plementation of a large porch space to be shared by unit pairs. Each of these pairs consists of one smaller (1-2br) and one larger (3-4br), encouraging the co-living of families and smaller households. One scenario we wanted to enable was for an elderly parent to live in the smaller unit, and their family in the larger, allowing for independence and proximity.

Unit Axonometric North East Building W/D W/D DW DW W/D W/D DW W/D W/D W/D DW W/D DW W/D DW W/D DW W/D Third Floor Plan North East Building Circulation Front Porch
Balcony
Unity Typology & Social Agents

Turn static files into dynamic content formats.

Create a flipbook
Issuu converts static files into: digital portfolios, online yearbooks, online catalogs, digital photo albums and more. Sign up and create your flipbook.