Shaun Edward - M.Arch Portfolio

Page 1

Shaun Edward

DESIGNER, LEED GREEN ASSOCIATE, WELL AP

PROFILE

Versatile architectural designer skilled in creating architectural digital presentations, physical models and developing construction drawings, with a deep understanding of conceptual design, architectural detailing and sustainable design.

Strong communicator and visualizer experienced in working with clients, engineers and designers to transform communities.

LICENSES AND CERTIFICATIONS

LEED Green Associate 1587468-GREEN-ASSOCIATE (2024-26)

WELL AP WELL-AP-0000159318 (2024-26)

ACHIEVEMENTS

Top 50 Alps Wellness Retreat (2021)

Top 09 Satara Municipal Council Building (2019)

Citation 1 Design Trophy @ Zonal Annual Design Competition (2018)

Top 10 Ruebens Trophy @ Annual NASA Convention (2017)

THESIS

SF Urban Harm Reduction and Support Services Concept (2024)

M.Arch Thesis Project, Academy of Art University

-Developed the concept statement, researched precedent studies and conducted site and context analysis. Identified applicable planning and zoning guidelines. Created site model, designed floor plans, building sections, elevations, sustainability strategy, structural and mechanical drawings.

-Used SketchUp, Revit, AutoCAD, Adobe programs and Twinmotion.

Avakāśa Urban Park (2021)

B.Arch Thesis Project, BMS School of Architecture

EXPERIENCE

Architectural Design Intern M9 Design Studio (2021)

-Work with the design team and fabricators to create renderings, models, mock-ups and working drawings for a wide range of projects using various software tools.

-Conduct research on sustainable strategies and materials; create and maintain a reference library.

Architectural Design Intern M9 Design Studio (2021)

Design Assistant Boutique Wedding Planner (2015-2017)

CONTACT INFORMATION

(813)534-9478 ar.shaunedward@gmail.com

EDUCATION

Masters of Architecture Academy of Art University

NAAB Accredited (2021-2024)

Bachelors of Architecture

BMS School of Architecture (2015-2021)

SKILLS

Tools

AutoCAD, Revit, Rhinoceros, SketchUp, InDesign, Illustrator, Photoshop, Twinmotion, Enscape, Climate Consultant, FormIt, Office

Design

Architectural drafting, sustainable design, materials specification, structural knowledge, space planning, visualization, 3D modelling, physical modelling

Interpersonal

Problem solver, highly organized, strong verbal and writing skills, team worker, critical and analytical thinker

PORTFOLIO LINK

https://issuu.com/shauneddi/d ocs/shaunedward

Contents Fish Market and Culinary Hub 01. Recreational Hub Revamp 02. Museum 1619 03.
Building 04. Public Library and Cultural Center 05.
Law University 06.
07. Residential Interiors 08. SF Urban (M.Arch Thesis) 09.
Satara Municipal Council
Maharastra National
Yash Vatika
01
M TOILET COLD STORAGE SERVICE AREA LOADING AREA SEATING AREA FOOD MARKET F TOILET BUILDING SERVICES FISH MARKET ENTRANCE PLAZA 01 02 03 04 05 06 07 08 09 10 02
03

EXPOSED WIRE CUT BRICK

L-ANGLE SCREWED INTO

1.5 THICK STEEL ROD ANCHORED INTO CONCRETE SLAB

ALUMINUM BOX SECTION

SKYLIGHT AS PER SELECTION 6’’ THICK CONCRETE SLAB

W14X43

R-21 BATT INSULATION

5/8’’ GLASSMAT SHEATHING SHEET

EXPOSED PLYWOOD

ALUMINUM BOX SECTION

W14X43

SKYLIGHT AS PER SELECTION

EXPOSED CONCRETE FINISH

LOW-E GLASS WITH HIGH SOLAR GAIN COATING

EXPOSED PLYWOOD

EXPOSED PLYWOOD

6’’ THICK CONCRETE SLAB

W14X43

R-21 BATT INSULATION

5/8’’ GLASSMAT SHEATHING SHEET

04

02. Recreational Hub Revamp

Site - Bangalore, India

Area - 2,500,000 ft²

Year - 2020

Institution - BMS School of Architecture

Instructor - Himadri Das

The existing site, which currently includes a soccer field, a railway station, and a park, undergoing a comprehensive revamp to introduce new and appropriate programs aimed at revitalizing the dense urban fabric. Numerous strategies have been devised to seamlessly incorporate these new programs into the site, ensuring a harmonious and intriguing blend with the existing elements with an objective is to create a vibrant and multi-functional space that meets the diverse needs of the community and fosters a sense of unity and vitality within the urban setting.

$ $ $
05
SECTION A
06
Natural Lighting Air Movement Solar Panels Root Cellar

03. Museum 1619

Site - Hampton, USA

Area - 2,500,000 ft²

Year - 2023

Instituion - Academy of Art University

Instructor - Arugho Jyothi

The proposed museum commemorates the first slave ship that docked upon the shores of the Americas in the year 1619, carrying around 20 West Africans. The proposed museum represents a profound dedication to acknowledging the rich cultural heritage, artistic contributions, and resilience of the African community throughout history. Through careful consideration of architectural design, the intention was to create a physical environment that complements the museum’s mission. The building itself will serve as a work of art, emerging functionality with symbolic significance. It will provide a dynamic yet harmonious space that represents the historical context, enabling visitors to engage with the artwork in a meaningful and contemplative manner.

Architectural Alchemy Representing History Through Soil and Resilience SHORELINE
PLAZA FACADE
07
GREEN ROOF
08

NORTH SECTION

JUNE 21ST AT 5PM

JUNE 21ST AT 9AM

FACADE SECTIONS

SOUTH SECTION NOV 21ST AT 2PM DEC AT 9AM & 4PM MARCH 21ST AT 10AM

EAST SECTION

MARCH 21ST AT 9AM MARCH 21ST AT 11:30AM

250 109° 146° 4350
71°61° 4350
350 250 36° 50° 72° WEST SECTION MARCH 21ST AT 4PM 4350 275 353 39° 51°
10

05. Public Library and Cultural Center

Site - Bangalore, India

Area - 715,845ft²

Year - 2020

Institution - BMS School of Architecture

Director - Swetha Gupta

CHILDREN’S LIBRARY

GENERAL

GENERAL FICTION

GENERAL

PERIODICALS/ ACQUISITION CULTURAL CENTER + OAT + CAFE

24-HOUR/REFERENCE SECTION

Perched at the very heart of the city, overlooking the city's lungs, and embraced by a culturally significant plaza, the design seamlessly blends into the urban landscape. It boasts a warm and inviting façade that establishes a harmonious connection between the structure and the lush garden buffered by Minsq Square at the forefront. Elevated gracefully, it presents a shaded open amphitheater, inviting the city to partake in its serene ambiance.

11

06. Maharashtra

Site - Napur, India

Area -90,000ft²

Year - 2020

National Law University

Company - Architecture Paradigm Pvt. Ltd.

Instructor - Naveen Prabhakar, Sameer, Prajwal Mathad, Priyadharshini

The new Maharashtra National Law University’s new building is a completely green building with state of the art facilities for the students and staff. With a budget of 70M $, it is a ‘museum of law’, which will be one of its kind in the country along with health and wellness center to help the nearby villagers. This removes the common perception that lawyers usually belong to the elite class. The design follows Indian Green Building Council (IGBC) norms. It has solar panels to produce energy, and food would be cooked in it. All its classrooms will be embedded with information and communication technology (ICT). The team worked on the library complex with digital facilities spread , auditorium, meeting lounges and an amphitheater that connects itself with the surrounding infrastructure spread over an area of 90,000sqft, the master plan also features hostels, sporting and recreational facilities.

FRL GROUND FLOOR PLAN SSL FIRST FLOOR PLAN 275.85 FFL SECOND FLOOR THIRD FLOOR SSL ROOF Ha Hb Hc Hd He Hf 10000 10000 10000 10000 10000 1075 3425 4050 3750 4350 ST2 25 150 mm S2 RCC BEAMS AS PER STRUCTURAL DETAIL-REFER SSR ITEM NO-25.74 RCC BEAMS AS PER STRUCTURAL RCC SLABS AS PER STRUCTURAL 2400 FORM FINISH RCC FORM FINISH RCC RCC STAIRCASE AS PER STRUCTURAL DETAILREFER SSR ITEM NO-26.26 RCC STAIRCASE AS PER STRUCTURAL DETAIL-REFER SSR ITEM NO-26.26 CORRIDOR CORTEN STEEL CLADDING WITH TERRACE WATERPROOFING REFER DRAWING NO.MNLU/AR/MP/TD/DTD/GDO2 275.80 283.60 SSL 279.55 SSL 1100 STEPS IN BLOCKWORK 283.60 SSL 283.90 SSL SSL FUTURE FLOOR LVL 4500 1100 5450 1100 450 50 450 50 MNLU/AR/MP/TD/DTD/FA/RL01 Hb' Hc' Ha' Jh SSL TERRACE FLOOR 283.95 FFL SSL FRL GROUND FLOOR PLAN SSL FIRST FLOOR PLAN 275.85 FFL SECOND FLOOR THIRD FLOOR SSL ROOF 287.08 FFL Ha Hb Hc Hd He Hf D8 12 2950 3550 4350 26 150 mm ST4 10000 10000 10000 10000 10000 1075 3425 4050 3750 4350 DETAILS-REFER SSR ITEM NO-25.54 RCC BEAMS AS PER STRUCTURAL RCC BEAMS AS PER STRUCTURAL DETAIL-REFER SSR ITEM NO-25.74 RCC SLABS AS PER STRUCTURAL DETAIL-REFER SSR ITEM NO-25.74 STRUCTURAL DETAIL-REFER SSR ITEM NO-25.74 EXPANSION JOINTS WITH 25MM THICK BITUMINOUS PAD AS PER SSR ITEM NO-14.33 1100 1100 1100 DETAIL-REFER SSR ITEM NO-26.26 800 1200 RAMP FORM FINISH RCC FORM FINISH RCC REFER DRAWING 275.80 275.40 SSL 275.80 SSL TERRACE WATERPROOFING REFER SSL FUTURE FLOOR LVL 288.15 FFL 4500 450 MNLU/AR/MP/TD/DTD/FA/RL01 RAILING DETAIL REFER R01 MNLU/AR/MP/TD/DTD/FA/RL01 Gaq Hb' Hc' Ha' Jh SSL TERRACE FLOOR 283.95 FFL 1 250 Section 1 1 250 Section 2 2
Section 0112

07. Yash Vatika

Site - Belari, India

Area - 121,395ft²

Year - 2019

Company - Architecture Paradigm Pvt. Ltd.

Team - Naveen Prabhakar, Sameer, Prajwal Mathad, Priyadharshini

Yash Vatika is strategically crafted by the renowned builder . It is a splendid Residential development in Ring road, a posh locality in Bellary having all the facilities and basic needs within easy reach. It comprises of modern Villas with all the high-end, contemporary interior fittings. Set within scenic and wonderful views of the city, this grand property at Ring road, Bellary, Karnataka, INDIA. has comfortable and spacious rooms. It is spread over an area of 2.79 acres with 52 units. The Yash Vatika is presently completed. Till now 100, percent units has been sold out.

FIRST FLOOR PLAN 13

12MM THICK TOUGHENED GLASS

3MM THICK 75MM WIDE ALUMINUM FLAT

40X40MM ALUMINUM BOX SECTION

ALUMINUM LOUVERS

40X40MM ALUMINUM BOX SECTION

19MM THICK GRANITE COPING

12MM THICK TOUGHENED GLASS

50MM MS BOX FRAME

ELEVATION

EXPLODED AXONOMETRIC

3MM THICK 75MM WIDE ALUMINUM FLAT

40X40MM ALUMINUM BOX SECTION

12MM THICK TOUGHENED GLASS

12MM THICK TOUGHENED GLASS

40X40MM ALUMINUM CHANNEL

BLACK PAINT COATING TO BE DONE ON THE INNER WALLS

Ground Floor Level 450 220 350 600 125 240 106 108 134 750 COURTFFL Lower Terrace Level 1050 Upper Terrace Level 10800 0 Footpath Level SOLAR CHIMNEY SECTION
600 100
14

08. Residential Interiors

Site - Bangalore, India

Area - 1200 ft²

Year - 2021

Company - M9 Design Studio

Instructor - Abhay Kumar, Aashmita Haria, Sravya Gavini, Arjun Rathodi

As design makes a framework of our daily life and wellbeing, the importance of things we surround ourselves with in term as of light, materials, color and scale is paramount. To create this special cohesion within this home, all of interior has been made bespoke, recognizing that there is no one-size-fits-all solution. Surrounded by gardens, a fusion of rustic and elegant style with honest materials, traditional finishes and designer furniture, this house promises to be the perfect haven of peace. This minimalist oasis is a haven of practicality without compromising on elegance. Efficiency meets comfort with integrated appliances, carefully chosen textures and a dedicated pet bath area. Experience a space where every element has been thoughtfully crafted for the ultimate ease of use.

15
16

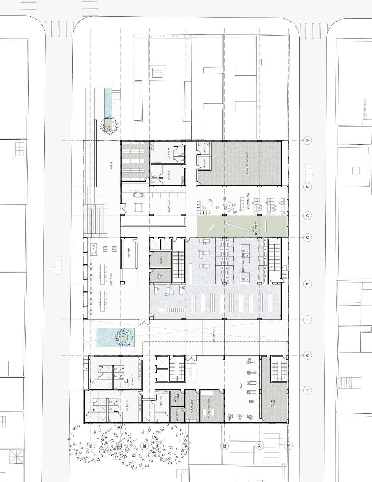
09. SF Urban

Site - San Francisco, USA

Area -24,000ft²

Year - 2024

Instituion - Academy of Art University

Instructor - Ivy Hume

The proposed project seeks to tackle the intricate issues of open drug use and homelessness in San Francisco’s Central area. These challenges have been exacerbated by escalating housing costs and the proliferation of open drug markets, making the city a focal point for significant social problems. Addressing these issues requires a comprehensive and nuanced strategy that provides refuge, support, and security for those affected.

17

Paired with comprehensive support services with a prime focus in well-being and security, this facility provides approach is the creation of a shelter that provides immediate refuge and a sense of familiarity. By dividing the large volume of the shelter into three linear segments aligned with the zoning grid, the design incorporates facades inspired by contemporary row houses.

18
19
20
AIR SUPPLY SUPPLY DUCT RETURN DUCT
LIGHT INLET
NATURAL
FIRE ESCAPE
21
FIRE ESCAPE
Thank you! +1 (813)-534-9478 ar.shaunedward@gmail.com

Turn static files into dynamic content formats.

Create a flipbook
Issuu converts static files into: digital portfolios, online yearbooks, online catalogs, digital photo albums and more. Sign up and create your flipbook.