Final Year Architeture Thesis

Page 1

Proposed New Wing of Mumbai City Bhau Daji Lad Museum at Byculla East, Mumbai, Maharashtra

SHAUN VARGHESE PALLIPARAMBIL| 80279 | DESIGN DISERTATION AND ARCHITECTURAL REPRESENTATION & DETAILING | DR. BALIRAM HIRAY COLLEGE OF ARCHITECTURE | 30 April, 2024 | SEMESTER X 5 TH YEAR PROPOSED NEW WING OF MUMBAI CITY BHAU DAJI LAD MUSEUM AT BYCULLA EAST, MUMBAI, MAHARASHTRA
01 Place SHAUN VARGHESE PALLIPARAMBIL| 80279 | DESIGN DISERTATION AND ARCHITECTURAL REPRESENTATION & DETAILING | DR. BALIRAM HIRAY COLLEGE OF ARCHITECTURE | 30 April, 2024 | SEMESTER X 5 TH YEAR PROPOSED NEW WING OF MUMBAI CITY BHAU DAJI LAD MUSEUM AT BYCULLA EAST, MUMBAI, MAHARASHTRA

Location:

The Bhau Daji Lad Museum, is located in the Byculla neighborhood, which is centrally positioned within the city. The museum itself is nestled within the verdant surroundings of Jijamata Udyan, a sprawling botanical garden.

Climate:

Mumbai lies in the warm and climatic zone. The city’s monsoon season, which occurs from June to September, bringing heavy rainfall and occasional flooding. The postmonsoon months, from October to February, are relatively cooler and more pleasant, with lower humidity levels and comfortable temperatures. However, occasional heatwaves occur, particularly in the summer months from March to May, when temperatures can soar, accompanied by high humidity. Certainly, let's delve deeper into the site analysis of the Bhau Daji Lad Museum in Mumbai, focusing on wind direction, sun path, and average temperatures:

Wind

Direction:

Mumbai experiences predominantly southwest monsoon winds during the monsoon season. Given the museum's location in the Byculla neighborhood, surrounded by relatively low-rise buildings and open green spaces, it may experience moderate wind flow from various directions, with the prevailing southwest winds influencing overall airflow patterns. The museum's orientation and site layout should be consider for optimizing the structure.

Sun Path:

During the winter months, the sun's path shifts towards the southern hemisphere, resulting in shorter days and lower sun angles. Conversely, in the summer months, the sun's path moves northward, leading to longer days and higher sun angles. The museum's positioning within Jijamata Udyan offers opportunities to leverage shading strategies and landscaping features to mitigate solar heat gain and optimize daylighting within the museum spaces.

Average Temperatures:

During the summer months, from March to May, average temperatures range from 30°C to 35°C , with occasional heatwaves leading to higher readings. The monsoon season, from June to September, increases humidity levels, with temperatures averaging around 25°C to 30°C . The postmonsoon period, from October to February, is characterized by cooler temperatures ranging from 20°C to 30°C

3
1 SHAUN VARGHESE PALLIPARAMBIL| 80279 | DESIGN DISERTATION AND ARCHITECTURAL REPRESENTATION & DETAILING | DR. BALIRAM HIRAY COLLEGE OF ARCHITECTURE | 30 April, 2024 | SEMESTER X 5 TH YEAR PROPOSED NEW WING OF MUMBAI CITY BHAU DAJI LAD MUSEUM AT BYCULLA EAST, MUMBAI, MAHARASHTRA

1 Mumbai City Bhau Daji Lad Museum

2 Byculla Railway Station

3 Eastern Express Highway Flyover

4 ES Patanala Marg

The Bhau Daji Lad Museum is connected by various modes of transportation- road, rail, and public transit. The museum is accessible via major arterial roads such as Dr. Babasaheb Ambedkar Road and Eastern Express Highway, facilitating convenient vehicular access. The site is served by the Byculla railway station, which is part of Mumbai's suburban railway network, providing direct rail connectivity to different parts of the city and beyond. The museum is within walking distance from bus stops and taxi stands.

4
1 2 3 4 SHAUN VARGHESE PALLIPARAMBIL| 80279 | DESIGN DISERTATION AND ARCHITECTURAL REPRESENTATION & DETAILING | DR. BALIRAM HIRAY COLLEGE OF ARCHITECTURE | 30 April, 2024 | SEMESTER X 5 TH YEAR PROPOSED NEW WING OF MUMBAI CITY BHAU DAJI LAD MUSEUM AT BYCULLA EAST, MUMBAI, MAHARASHTRA

1 Mumbai City Bhau Daji Lad Museum

5
2 Residential Areas
3 Ambedkar Hospital Compound
1 2 3 4 5 SHAUN VARGHESE PALLIPARAMBIL| 80279 | DESIGN DISERTATION AND ARCHITECTURAL REPRESENTATION & DETAILING | DR. BALIRAM HIRAY COLLEGE OF ARCHITECTURE | 30 April, 2024 | SEMESTER X 5 TH YEAR PROPOSED NEW WING OF MUMBAI CITY BHAU DAJI LAD MUSEUM AT BYCULLA EAST, MUMBAI, MAHARASHTRA
4 Government offices and Residential Buildings 5 Byculla Railway Station

Map Analysis:

The above map denotes the spaces with are under the use of the local residents of the neighbourhood.

1 Rani’s Baugh Playground

2 Residential Buildings

The above map denotes the spaces with are under the use of the tourists who visit the Botanical Zoo and the Museum.

1 Veermata Jijabai Bhosale Botanical Udyan and zoo

2 Public Plaza ahead of Zoo and Museum

3 Tourist Paths

7
1 2 1 2 3 SHAUN VARGHESE PALLIPARAMBIL| 80279 | DESIGN DISERTATION AND ARCHITECTURAL REPRESENTATION & DETAILING | DR. BALIRAM HIRAY COLLEGE OF ARCHITECTURE | 30 April, 2024 | SEMESTER X 5 TH YEAR PROPOSED NEW WING OF MUMBAI CITY BHAU DAJI LAD MUSEUM AT BYCULLA EAST, MUMBAI, MAHARASHTRA

The above map denotes the pedestrian thouroughfare in and around the site.

1 General Path of a person

The above map denotes the locations where there are maintained and usable footpaths.

8
1 1
SHAUN VARGHESE PALLIPARAMBIL| 80279 | DESIGN DISERTATION AND ARCHITECTURAL REPRESENTATION & DETAILING | DR. BALIRAM HIRAY COLLEGE OF ARCHITECTURE | 30 April, 2024 | SEMESTER X 5 TH YEAR PROPOSED NEW WING OF MUMBAI CITY BHAU DAJI LAD MUSEUM AT BYCULLA EAST, MUMBAI, MAHARASHTRA
9 Traffic Map of the Neighbourhood 1 Publicaly Accessed Areas 2 Ticketed/ Restricted Access 1 2 SHAUN VARGHESE PALLIPARAMBIL| 80279 | DESIGN DISERTATION AND ARCHITECTURAL REPRESENTATION & DETAILING | DR. BALIRAM HIRAY COLLEGE OF ARCHITECTURE | 30 April, 2024 | SEMESTER X 5 TH YEAR PROPOSED NEW WING OF MUMBAI CITY BHAU DAJI LAD MUSEUM AT BYCULLA EAST, MUMBAI, MAHARASHTRA

In 2014, the Bhau Daji Lad Mumbai City Museum sought architectural proposals for a new North wing to expand its capacity to house a diverse range of collections and accommodate essential functions typical of a City Museum. These functions included areas for conservation, offices, workshops, and special exhibition spaces. Despite selecting a winning proposal and assigning an architect to the project, it failed to progress due to local opposition to the plan. The proposed expansion involved appropriating open spaces utilized by the neighborhood as a park, sparking resistance from the community.

The area highlighted above in the grey denotes the area demarcated for the construction of the North Wing of the Bhau Daji Lad Museum in the 2014 Competition. This thesis proposal shall be considering the same area as the site boundaries for this thesis proposal.

10 1
SHAUN VARGHESE PALLIPARAMBIL| 80279 | DESIGN DISERTATION AND ARCHITECTURAL REPRESENTATION & DETAILING | DR. BALIRAM HIRAY COLLEGE OF ARCHITECTURE | 30 April, 2024 | SEMESTER X 5 TH YEAR PROPOSED NEW WING OF MUMBAI CITY BHAU DAJI LAD MUSEUM AT BYCULLA EAST, MUMBAI, MAHARASHTRA

Concept

“"The city is a collective representation, a concrete totality of different aspects which may combine in a thousand ways and which it is the task of the architect to clarify…. The individual buildings of the city form a fabric, and it is the fabric that makes the city. "

-Aldo Rossi ‘Architecture of the City‘

02
SHAUN VARGHESE PALLIPARAMBIL| 80279 | DESIGN DISERTATION AND ARCHITECTURAL REPRESENTATION & DETAILING | DR. BALIRAM HIRAY COLLEGE OF ARCHITECTURE | 30 April, 2024 | SEMESTER X 5 TH YEAR PROPOSED NEW WING OF MUMBAI CITY BHAU DAJI LAD MUSEUM AT BYCULLA EAST, MUMBAI, MAHARASHTRA

1 The Heritage Structure

2 Entry to the Site

3 Area for the North Wing

1 3 2 SHAUN VARGHESE PALLIPARAMBIL| 80279 | DESIGN DISERTATION AND ARCHITECTURAL REPRESENTATION & DETAILING | DR. BALIRAM HIRAY COLLEGE OF ARCHITECTURE | 30 April, 2024 | SEMESTER X 5 TH YEAR PROPOSED NEW WING OF MUMBAI CITY BHAU DAJI LAD MUSEUM AT BYCULLA EAST, MUMBAI, MAHARASHTRA

1 A North South Rectangular staring form so as to optimise the north sun and by having all services and circulation areas in the South having a climate efficient structure.

2 A barrier to secure the Museum Area

3 Entry point of the Heritage structure

4 A general path of a Museum Visitor

5 A general path of a public Pedestrian

1 4 2 3 4 5 5 SHAUN VARGHESE PALLIPARAMBIL| 80279 | DESIGN DISERTATION AND ARCHITECTURAL REPRESENTATION & DETAILING | DR. BALIRAM HIRAY COLLEGE OF ARCHITECTURE | 30 April, 2024 | SEMESTER X 5 TH YEAR PROPOSED NEW WING OF MUMBAI CITY BHAU DAJI LAD MUSEUM AT BYCULLA EAST,
MAHARASHTRA
MUMBAI,

1 Viewing point

2 West Void

3 Central Void

4 cone of Vision

5 The resulting for after conducting an operation preserving the views of the heritage Structure. Thus making a porous and malleable spaces around the structure in line with the theories of Mehrotra

1 1 3 2 4 SHAUN VARGHESE PALLIPARAMBIL| 80279 | DESIGN DISERTATION AND ARCHITECTURAL REPRESENTATION & DETAILING | DR. BALIRAM HIRAY COLLEGE OF ARCHITECTURE | 30 April, 2024 | SEMESTER X 5 TH YEAR PROPOSED NEW WING OF MUMBAI CITY BHAU DAJI LAD MUSEUM AT BYCULLA EAST, MUMBAI, MAHARASHTRA

"The city as a built form is a set of stable objects, or urban artifacts, in which the relationship between the parts is more significant than the parts themselves.“

- Aldo Rossi ’Architecture of the City’

The Design proposes a series of 7 viewing artifacts around the site .

13
SHAUN VARGHESE PALLIPARAMBIL| 80279 | DESIGN DISERTATION AND ARCHITECTURAL REPRESENTATION & DETAILING | DR. BALIRAM HIRAY COLLEGE OF ARCHITECTURE | 30 April, 2024 | SEMESTER X 5 TH YEAR PROPOSED NEW WING OF MUMBAI CITY BHAU DAJI LAD MUSEUM AT BYCULLA EAST, MUMBAI, MAHARASHTRA
Visitor Path
Public Path

The lines from the viewing artifacts are projected onto the site and the structure making indexes (Rosalind Krauss) of the particular Artifacts. The indexed portions of the site– remaining unpaved cauisng a folding (Deleuzian) of the urban plaza of Gehl and Piano with the unstraited space of social self determination. The facade and Floors of the structure open along these indexical lines trying to form a becoming with it.

13
SHAUN VARGHESE PALLIPARAMBIL| 80279 | DESIGN DISERTATION AND ARCHITECTURAL REPRESENTATION & DETAILING | DR. BALIRAM HIRAY COLLEGE OF ARCHITECTURE | 30 April, 2024 | SEMESTER X 5 TH YEAR PROPOSED NEW WING OF MUMBAI CITY BHAU DAJI LAD MUSEUM
AT BYCULLA EAST, MUMBAI, MAHARASHTRA

The Site

“The plan is imposed sentence of authority, but people do not simply accept it; they punctuate it with dessent, negotiate its rigid grammar through a series of hyphens and ellipses, appropriations and displacements that represent the tension between policy and Design on the one hand, as against instnctive, customary needs and preffereed behavior on the other,“

-Ranjith Hoskote ‘Hyphens and ellipses‘

03
SHAUN VARGHESE PALLIPARAMBIL| 80279 | DESIGN DISERTATION AND ARCHITECTURAL REPRESENTATION & DETAILING | DR. BALIRAM HIRAY COLLEGE OF ARCHITECTURE | 30 April, 2024 | SEMESTER X 5 TH YEAR PROPOSED NEW WING OF MUMBAI CITY BHAU DAJI LAD MUSEUM AT BYCULLA EAST, MUMBAI, MAHARASHTRA
19 8 Staircase Along a curved wall leading to Basement Parking and highlighting the Entry of North Wing 9 Staff Entry into Site 10 Canteen 11 Viewing Artifacts 12 Ramp to Basement Parking 13 Ramp from Basement Parking 14 Entry of North Wing 1 Site Entry 2 David Sasoon Clock Tower 3 Entry of Heritage structure 4 Ticket Counter 5 Admin offices 6 Heritage Structure Gallery Space 7 Curator’s Offices 8 1 2 3 4 5 5 5 6 5 5 7 7 8 9 1 0 1 1 1 1 1 1 1 1 1 1 1 1 1 3 1 2 1 4 1 5 1 5 N 15 Niches into Structure SHAUN VARGHESE PALLIPARAMBIL| 80279 | DESIGN DISERTATION AND ARCHITECTURAL REPRESENTATION & DETAILING | DR. BALIRAM HIRAY COLLEGE OF ARCHITECTURE | 30 April, 2024 | SEMESTER X 5 TH YEAR PROPOSED NEW WING OF MUMBAI CITY BHAU DAJI LAD MUSEUM AT BYCULLA EAST, MUMBAI, MAHARASHTRA

Drawings

“The plan is imposed sentence of authority, but people do not simply accept it; they punctuate it with dessent, negotiate its rigid grammar through a series of hyphens and ellipses, appropriations and displacements that represent the tension between policy and Design on the one hand, as against instnctive, customary needs and preffereed behavior on the other,“

-Ranjith Hoskote ‘Hyphens and ellipses‘

04
SHAUN VARGHESE PALLIPARAMBIL| 80279 | DESIGN DISERTATION AND ARCHITECTURAL REPRESENTATION & DETAILING | DR. BALIRAM HIRAY COLLEGE OF ARCHITECTURE | 30 April, 2024 | SEMESTER X 5 TH YEAR PROPOSED NEW WING OF MUMBAI CITY BHAU DAJI LAD MUSEUM AT BYCULLA EAST, MUMBAI, MAHARASHTRA
1 AHU Room 2 Gents WC 3 Differentially Abled WC 4 LGBTQ WC 5 Ladies WC 6 Staircase 7Children’s Museum 8 Museum Entrance Foyer Space 9 Museum Entry Point 10 Air Intake room (At 5.5m Above G.L.) 11 Ticket checking and CCTV Room 12 Ticket Counter 13 Elevators 14 Staff Locker Room 15 Artifact Conservation room 16 Packing and Unpacking Room 17 Loading Unloading Area 18 C3 Class Elevator 19Staff Entry 20 Curved Staircase to Basement 21 Ground Floor Plan: 1 2 3 4 5 6 8 9 7 10 15 6 5 2 1 14 16 17 13 11 12 13 3 19 18 N 0M 5M 10M 20M 20 SHAUN VARGHESE PALLIPARAMBIL| 80279 | DESIGN DISERTATION AND ARCHITECTURAL REPRESENTATION & DETAILING | DR. BALIRAM HIRAY COLLEGE OF ARCHITECTURE | 30 April, 2024 | SEMESTER X 5 TH YEAR PROPOSED NEW WING OF MUMBAI CITY BHAU DAJI LAD MUSEUM AT BYCULLA EAST, MUMBAI, MAHARASHTRA
1 Museum Library 2 Film Gallery 3 Museum Entrance Foyer 4 CCTV Room 5 Visitor Parking 6 Lift Lobby 7 Conservation Room 8 Staff Locker room 9 Mechanical Room 10 Conservation Room 11 Museum Storage 12 Janitor Office 13 Temporary Gallery 14 Staff Parking 15 West Void 16 Central Void 17 Children’s Museum 18 Special Exhibitions Gallery 19 Prints Gallery 20 Curved Staircase from Central Void to Basement 21 Ramp leading out of Basement Parking 22 Section AA’ 1 2 3 4 9 8 6 7 10 6 12 13 6 12 13 6 18 19 5 11 14 16 15 17 18 20 21 SHAUN VARGHESE PALLIPARAMBIL| 80279 | DESIGN DISERTATION AND ARCHITECTURAL REPRESENTATION & DETAILING | DR. BALIRAM HIRAY COLLEGE OF ARCHITECTURE | 30 April, 2024 | SEMESTER X 5 TH YEAR PROPOSED NEW WING OF MUMBAI CITY BHAU DAJI LAD MUSEUM AT BYCULLA EAST, MUMBAI, MAHARASHTRA
1 2 3 4 5 23 Section BB’ 1 Staff Parking 2 Bridge across Central Void 3 Architecture and Urbanism Gallery 4 Special Exhibitions Gallery 5 Pump Room 6 Central Void 6 4 SHAUN VARGHESE PALLIPARAMBIL| 80279 | DESIGN DISERTATION AND ARCHITECTURAL REPRESENTATION & DETAILING | DR. BALIRAM HIRAY COLLEGE OF ARCHITECTURE | 30 April, 2024 | SEMESTER X 5 TH YEAR PROPOSED NEW WING OF MUMBAI CITY BHAU DAJI LAD MUSEUM AT BYCULLA EAST, MUMBAI, MAHARASHTRA

Skylight

Polycarbonate exterior screen

Metal Stud Wall

Glass Floored area enabling a view of central void below

Bridge Connecting across the Central Void

Curved Wall with Staircase to Basement

Grass Concrete Pavement

SHAUN VARGHESE PALLIPARAMBIL| 80279 | DESIGN DISERTATION AND ARCHITECTURAL REPRESENTATION & DETAILING | DR. BALIRAM HIRAY COLLEGE OF ARCHITECTURE | 30 April, 2024 | SEMESTER X 5 TH YEAR PROPOSED NEW WING OF MUMBAI CITY BHAU DAJI LAD MUSEUM AT BYCULLA EAST, MUMBAI, MAHARASHTRA
24 First Floor Plan 1 2 34 5 6 7 8 9 10 11 12 13 14 15 16 17 18 19 2 4 5 6 8 1 AHU Room 2 Gents WC 3 Differentially abled WC 4 LGBTQ WC 5 Ladies WC 6 Staircase 7 Artifact Storage 8 Lift 9 Staircase to Second Floor Galleries 10 Foyer 11 Mumbai Gallery 12 Stair case from Ground Floor 13 Museum Entrance Lobby (Open below) 14 Air Intake (At 5.5m Above G.L.) 15 Mumbai Creative Gallery 16 C3 Class Elevator 17 Staff Foyer 18 Conservation Room 19 Viewing Deck N 0M 5M 10M 20M SHAUN VARGHESE PALLIPARAMBIL| 80279 | DESIGN DISERTATION AND ARCHITECTURAL REPRESENTATION & DETAILING | DR. BALIRAM HIRAY COLLEGE OF ARCHITECTURE | 30 April, 2024 | SEMESTER X 5 TH YEAR PROPOSED NEW WING OF MUMBAI CITY BHAU DAJI LAD MUSEUM AT BYCULLA EAST, MUMBAI, MAHARASHTRA
25 Second Floor Plan 2 3 12 13 11 10 9 8 7 6 5 4 14 15 11 10 9 8 6 5 19 18 16 17 1 Prints Gallery 2 Film and Photography Gallery 3 Paintings Gallery 4 AHU Room 5 Gents WC 6 Differentially abled WC 7 LGBTQ WC 8 Ladies WC 9 Staircase 10 Elevators 11 Lobby 12 Textile Gallery 13 Artifact Temporary Storage 14 Architecture and Urbanism Gallery 15 Temporary Galleries 16 C3 Class Elevator 17 Staff Foyer 18 Janitor room 19 Staff Storage 20 Design Gallery N 1 20 15 0M 5M 10M 20M SHAUN VARGHESE PALLIPARAMBIL| 80279 | DESIGN DISERTATION AND ARCHITECTURAL REPRESENTATION & DETAILING | DR. BALIRAM HIRAY COLLEGE OF ARCHITECTURE | 30 April, 2024 | SEMESTER X 5 TH YEAR PROPOSED NEW WING OF MUMBAI CITY BHAU DAJI LAD MUSEUM AT BYCULLA EAST, MUMBAI, MAHARASHTRA
10 2 4 5 5 8 7 6 9 9 8 5 5 3 8 26 Section CC’ 1 Visitor Parking 2 Ramp Leading to the Basement 3 Workshops 4 Childrens Museum 5 Gents WC 6 Double heighted Museum Entrance Lobby 7 Mumbai Gallery 8 Foyer 9 Textile Gallery 10 Heritage Museum Structure SHAUN VARGHESE PALLIPARAMBIL| 80279 | DESIGN DISERTATION AND ARCHITECTURAL REPRESENTATION & DETAILING | DR. BALIRAM HIRAY COLLEGE OF ARCHITECTURE | 30 April, 2024 | SEMESTER X 5 TH YEAR PROPOSED NEW WING OF MUMBAI CITY BHAU DAJI LAD MUSEUM AT BYCULLA EAST, MUMBAI, MAHARASHTRA
+20.5m +15.5m +10.5m +5.5m
-4.5m SHAUN VARGHESE PALLIPARAMBIL| 80279 | DESIGN DISERTATION AND ARCHITECTURAL REPRESENTATION & DETAILING | DR. BALIRAM HIRAY COLLEGE OF ARCHITECTURE | 30 April, 2024 | SEMESTER X 5 TH YEAR PROPOSED NEW WING OF MUMBAI CITY BHAU DAJI LAD MUSEUM AT BYCULLA EAST, MUMBAI, MAHARASHTRA
+0.5m +0.0m
27 Third Floor Plan 1 2 3 4 5 6 7 8 9 10 11 12 13 2 8 7 6 18 19 20 21 22 1 Museum Library 2 Lobby 3 AHU Room 4 Gents WC 5 Differentially abled WC 6 LGBTQ WC 7 Ladies WC 8 Staircase 9 Elevators 10 Museum Workshop 11 Temporary Artifact Storage 12 Special Exhibitions Gallery 13 Temporary Gallery 14 C3 Class Elevator 15 Staff Foyer 16 Janitor room 17 Staff Storage N 0M 5M 10M 20M SHAUN VARGHESE PALLIPARAMBIL| 80279 | DESIGN DISERTATION AND ARCHITECTURAL REPRESENTATION & DETAILING | DR. BALIRAM HIRAY COLLEGE OF ARCHITECTURE | 30 April, 2024 | SEMESTER X 5 TH YEAR PROPOSED NEW WING OF MUMBAI CITY BHAU DAJI LAD MUSEUM AT BYCULLA EAST, MUMBAI, MAHARASHTRA

Section DD’

1 Ramp to Basement Parking

2 Ramp to Basement Parking

3 AC Plant Room

4 Plenum

5 Low Voltage Room

6 Visitor Basement Parking

7 Prints Gallery

8 Museum Library

9 Paintings Gallery

1 2 3 4 5 7 8 28
7 SHAUN VARGHESE PALLIPARAMBIL| 80279 | DESIGN DISERTATION AND ARCHITECTURAL REPRESENTATION & DETAILING | DR. BALIRAM HIRAY COLLEGE OF ARCHITECTURE | 30 April, 2024 | SEMESTER X 5 TH YEAR PROPOSED NEW WING OF MUMBAI CITY BHAU DAJI LAD MUSEUM AT BYCULLA EAST, MUMBAI, MAHARASHTRA

Heat transfer and thus Cooling the structure

Cool Southwestern Wind

SHAUN VARGHESE PALLIPARAMBIL| 80279 | DESIGN DISERTATION AND ARCHITECTURAL REPRESENTATION & DETAILING | DR. BALIRAM HIRAY COLLEGE OF ARCHITECTURE | 30 April, 2024 | SEMESTER X 5 TH YEAR PROPOSED NEW WING OF MUMBAI CITY BHAU DAJI LAD MUSEUM AT BYCULLA EAST, MUMBAI, MAHARASHTRA
1 Mechanical Room 2 Photography Room 3 Staff Foyer 4 C3 Class Elevator 5 Museum Artifact Storage 6 Fire UGT 7 UGT 8 Pump Room 9 Staff Parking 10 Visitor Parking 11 Security Cabin 12 Ramp leading to Basement Parking 13 Ramp leading from Basement Parking to Ground 14 AC Plant Room 15 Plenum 16 Meter Room 17 Transformer Room 18 High Voltage Room 19 Low Voltage Room 20 Storage Room 21 AHU Room 22 2-Wheeler Parking 29 Basement Plan 16 17 18 19 20 21 15 14 13 12 11 10 9 8 7 5 4 3 2 1 1 6 23 Elevator 24 Staircase 25 Curved Staircase leading to Entrance of Museum N 0M 5M 10M 20M 22 23 24 23 24 25 SHAUN VARGHESE PALLIPARAMBIL| 80279 | DESIGN DISERTATION AND ARCHITECTURAL REPRESENTATION & DETAILING | DR. BALIRAM HIRAY COLLEGE OF ARCHITECTURE | 30 April, 2024 | SEMESTER X 5 TH YEAR PROPOSED NEW WING OF MUMBAI CITY BHAU DAJI LAD MUSEUM AT BYCULLA EAST, MUMBAI, MAHARASHTRA
3 0
South Elevation
SHAUN VARGHESE PALLIPARAMBIL| 80279 | DESIGN DISERTATION AND ARCHITECTURAL REPRESENTATION & DETAILING | DR. BALIRAM HIRAY COLLEGE OF ARCHITECTURE | 30 April, 2024 | SEMESTER X 5 TH YEAR PROPOSED NEW WING OF MUMBAI CITY BHAU DAJI LAD MUSEUM AT BYCULLA EAST, MUMBAI, MAHARASHTRA
North Elevation
3 1
SHAUN VARGHESE PALLIPARAMBIL| 80279 | DESIGN DISERTATION AND ARCHITECTURAL REPRESENTATION & DETAILING | DR. BALIRAM HIRAY COLLEGE OF ARCHITECTURE | 30 April, 2024 | SEMESTER X 5 TH YEAR PROPOSED NEW WING OF MUMBAI CITY BHAU DAJI LAD MUSEUM AT BYCULLA EAST, MUMBAI, MAHARASHTRA
West Elevation East Elevation

Layouts

05
SHAUN VARGHESE PALLIPARAMBIL| 80279 | DESIGN DISERTATION AND ARCHITECTURAL REPRESENTATION & DETAILING | DR. BALIRAM HIRAY COLLEGE OF ARCHITECTURE | 30 April, 2024 | SEMESTER X 5 TH YEAR PROPOSED NEW WING OF MUMBAI CITY BHAU DAJI LAD MUSEUM AT BYCULLA EAST, MUMBAI, MAHARASHTRA
ARD

Site Services Layout : (Fire loop; Water layout; Sanitary Drainage layout)

33
SHAUN VARGHESE PALLIPARAMBIL| 80279 | DESIGN DISERTATION AND ARCHITECTURAL REPRESENTATION & DETAILING | DR. BALIRAM HIRAY COLLEGE OF ARCHITECTURE | 30 April, 2024 | SEMESTER X 5 TH YEAR PROPOSED NEW WING OF MUMBAI CITY BHAU DAJI LAD MUSEUM AT BYCULLA EAST, MUMBAI, MAHARASHTRA
34 SAND PAPER TREE INDIAN TULIP INDIAN TULIP INDIAN CORK INDIAN CORK RED CHAPPA RED CHAPPA RED CHAPPA fountain tree ORCHID TREE ORCHID TREE ELEPHANTTREE ELEPHANTTREE FOOTSTOOLPALM SIVAN TAMARIND TAMARIND THRINIX PALMN INDIAN CHARCOAL CUSTARD APPLE CUSTARD APPLE SABAL PALM CHOTA TAMAN BAKUL EARLEAF ACCACIA AFREECAMANGOSTEEN PALMYRA PALM SANDPAPERTREE THRINAX PALM THRINAX PALM THRINAX PALM THRINAX PALM ARENGA PALM CLUSTERINGFISHTAIL PRIDE OF BURMA WILDALMOND PINE WHISTLING PINE PINE SIVAN WHISTLING PINE GURJON WHISTLING PINE WHISTLING PINE WHISTLING PINE WHISTLING PINE WHISTLING PINE SAFEDCHAPHA SAFEDC SH AAE PD HACHAPHA SAFEDCHAPHA CASHEW NUT TREE SIVAN SIVAN THRINIX PALMN INDIAN TULIP INDIAN TULIP INDIAN CORK INDIAN CORK RED CHAPPA RED CHAPPA RED CHAPPA fountain tree ORCHID TREE ORCHID TREE ELEPHANTTREE FOOTSTOOLPALM TAMARIND TAMARIND THRINIX PALMN INDIAN CHARCOAL CUSTARD APPLE CUSTARD APPLE SABAL PALM CHOTA TAMAN BAKUL EARLEAF ACCACIA AFREECAMANGOSTEEN SANDPAPER TREE PALMYRA PALM SANDPAPERTREE THRINAX PALM THRINAX PALM THRINAX PALM THRINAX PALM ARENGA PALM CLUSTERINGFISHTAIL PRIDE OF BURMA WILDALMOND PINE WHISTLING PINE PINE SIVAN WHISTLING PINE GURJON WHISTLING PINE WHISTLING PINE WHISTLING PINE WHISTLING PINE SAFEDCHAPHA SAFEDCHAPHA SAFEDCHAPHA CASHEW NUT TREE ELEPHANTTREE SIVAN SIVAN THRINIX PALMN ELEPHANTTREE SANDPAPERTREE HENNA TREE INDIAN TULIP FOOTSTOOLPALM FOOTSTOOLPALM NEEM NEEM SAFEDCHAPHA SAFEDCHAPHA SAFEDCHAPHA CUSTARD APPLE SIVAN Original
Relocated Tree Location Plan GRANITE PAVING LANDCAPED INDEXED ZONE GRASS PAVERS SHAUN VARGHESE PALLIPARAMBIL| 80279 | DESIGN DISERTATION AND ARCHITECTURAL REPRESENTATION & DETAILING | DR. BALIRAM HIRAY COLLEGE OF ARCHITECTURE | 30 April, 2024 | SEMESTER X 5 TH YEAR PROPOSED NEW WING OF MUMBAI CITY BHAU DAJI LAD MUSEUM AT BYCULLA EAST, MUMBAI, MAHARASHTRA
Tree Location Plan

HVAC Duct to AHU Room

35 -4.50M -4.05M -4.50 -4.50M -4.05M -4.50 -4.05 -4.50
Basement Mechanical Layout
SHAUN VARGHESE PALLIPARAMBIL| 80279 | DESIGN DISERTATION AND ARCHITECTURAL REPRESENTATION & DETAILING | DR. BALIRAM HIRAY COLLEGE OF ARCHITECTURE | 30 April, 2024 | SEMESTER X 5 TH YEAR PROPOSED NEW WING OF MUMBAI CITY BHAU DAJI LAD MUSEUM AT BYCULLA EAST, MUMBAI, MAHARASHTRA
Water Pipe to Toilet Shaft
36 +10.50 +10.50 +10.50M +10.50 +10.50M +10.50M
HVAC Layout of Second Floor
SHAUN VARGHESE PALLIPARAMBIL| 80279 | DESIGN DISERTATION AND ARCHITECTURAL REPRESENTATION & DETAILING | DR. BALIRAM HIRAY COLLEGE OF ARCHITECTURE | 30 April, 2024 | SEMESTER X 5 TH YEAR PROPOSED NEW WING OF MUMBAI CITY BHAU DAJI LAD MUSEUM AT BYCULLA EAST, MUMBAI, MAHARASHTRA
Fire Sprinkler Layout of Second Floor
3 7
SHAUN VARGHESE PALLIPARAMBIL| 80279 | DESIGN DISERTATION AND ARCHITECTURAL REPRESENTATION & DETAILING | DR. BALIRAM HIRAY COLLEGE OF ARCHITECTURE | 30 April, 2024 | SEMESTER X 5 TH YEAR PROPOSED NEW WING OF MUMBAI CITY BHAU DAJI LAD MUSEUM AT BYCULLA EAST, MUMBAI, MAHARASHTRA
Rooftop Solar Panel Layout
06 Details SHAUN VARGHESE PALLIPARAMBIL| 80279 | DESIGN DISERTATION AND ARCHITECTURAL REPRESENTATION & DETAILING | DR. BALIRAM HIRAY COLLEGE OF ARCHITECTURE | 30 April, 2024 | SEMESTER X 5 TH YEAR PROPOSED NEW WING OF MUMBAI CITY BHAU DAJI LAD MUSEUM AT BYCULLA EAST, MUMBAI, MAHARASHTRA

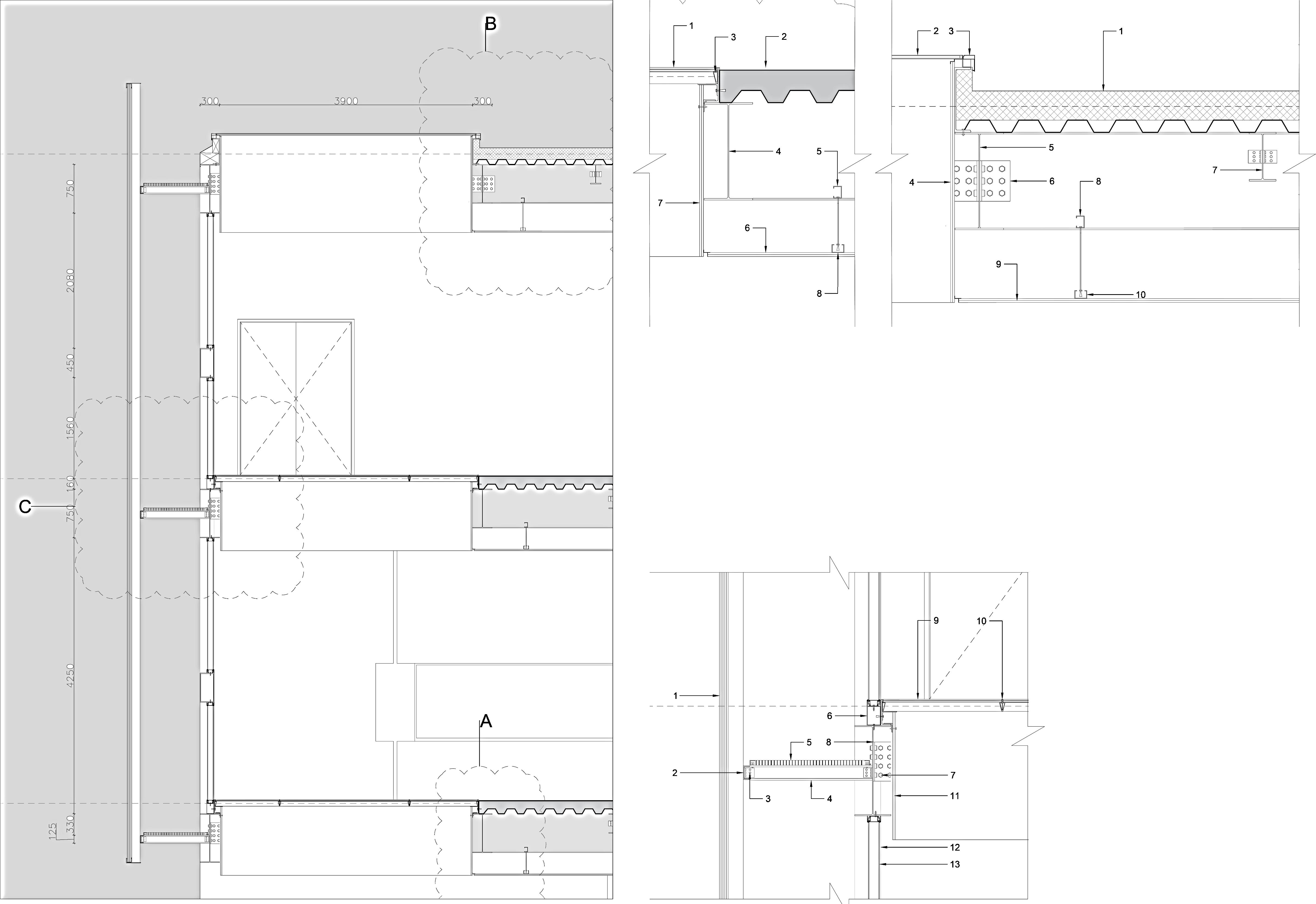
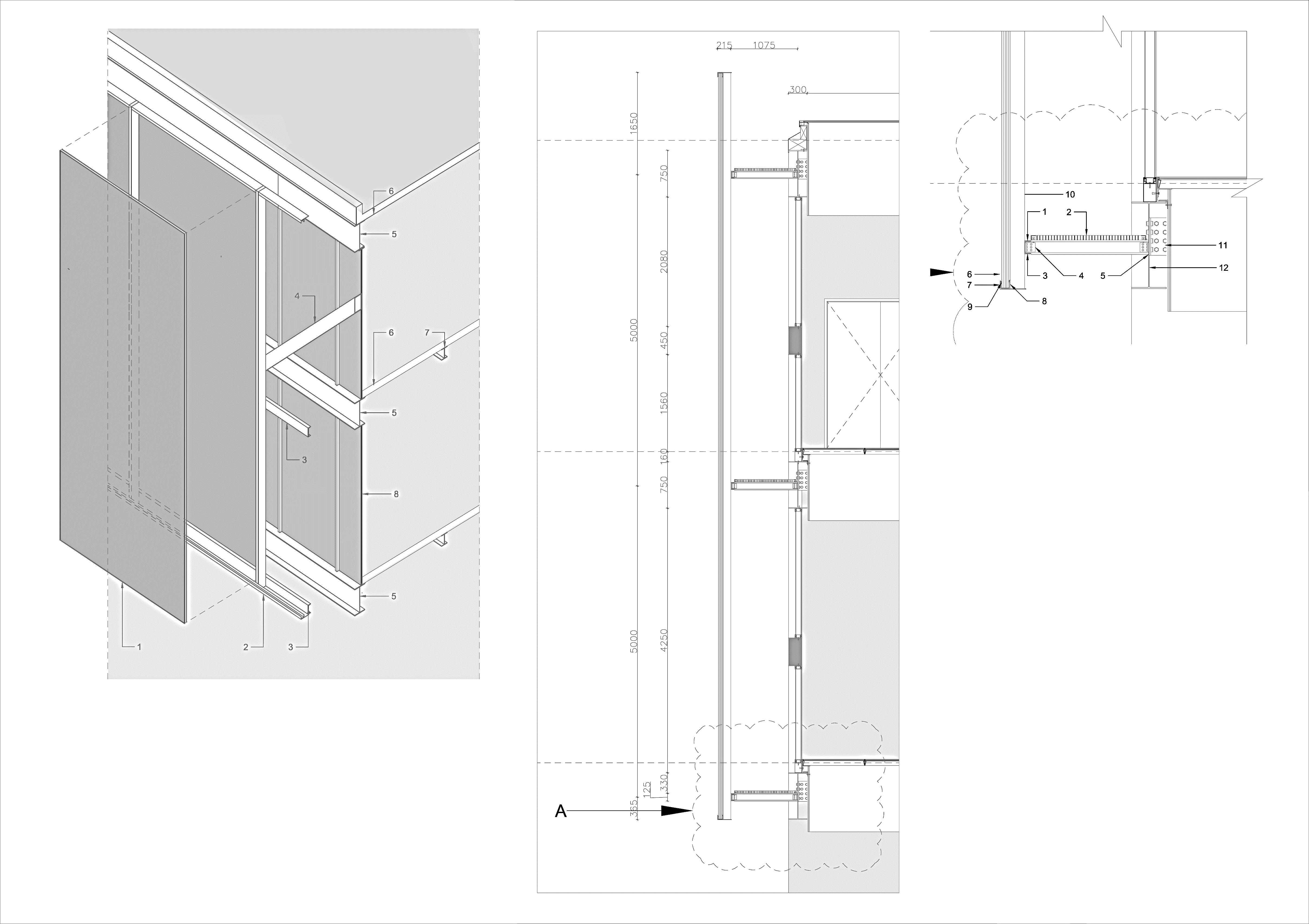
1 60MM THK Poly-Carbonate sheet

2 Steel End Profile

3 ISJC 125 C- Beam

4 215X450MM Steel Box Section

5 750MM DEPTH I Beam

6 Steel Deck Floor

7 ISHB 300

8 Double Glazing Façade Unit

Double Skin Facade

Construction Details

Detail A

1 ISJC 125 C- Beam

2 Steel Grating

4 125MM Angle Cleat Connection with 3 Bolts

5 750MM Depth I Beam

6 60MM THK Poly-Carbonate sheet

7 225MM Steel L-Section

8 75MM Steel L-Section

9 Backer Rod and Sealant

10 125MM Rectangular Box Section Vertical Mullion

11 300MM Angle Cleat Connection with 8 Bolts

39
SHAUN VARGHESE PALLIPARAMBIL| 80279 | DESIGN DISERTATION AND ARCHITECTURAL REPRESENTATION & DETAILING | DR. BALIRAM HIRAY COLLEGE OF ARCHITECTURE | 30 April, 2024 | SEMESTER X 5 TH YEAR PROPOSED NEW WING OF MUMBAI CITY BHAU DAJI LAD MUSEUM AT BYCULLA EAST, MUMBAI, MAHARASHTRA

Detail C

125MM THK Double glass flooring Panel

2 200MM Depth Steel Deck Slab

3 100 MM Depth Support Member

4 ISHB 600 Steel I-Beam

5 50X75 MM STEEL C PROFILE

6 2Layers of 12MM Thk Plaster Board False Ceiling

7 2Layers of 12MM Thk Plaster Board

8 75X50 MM Steel C Profile

Detail B

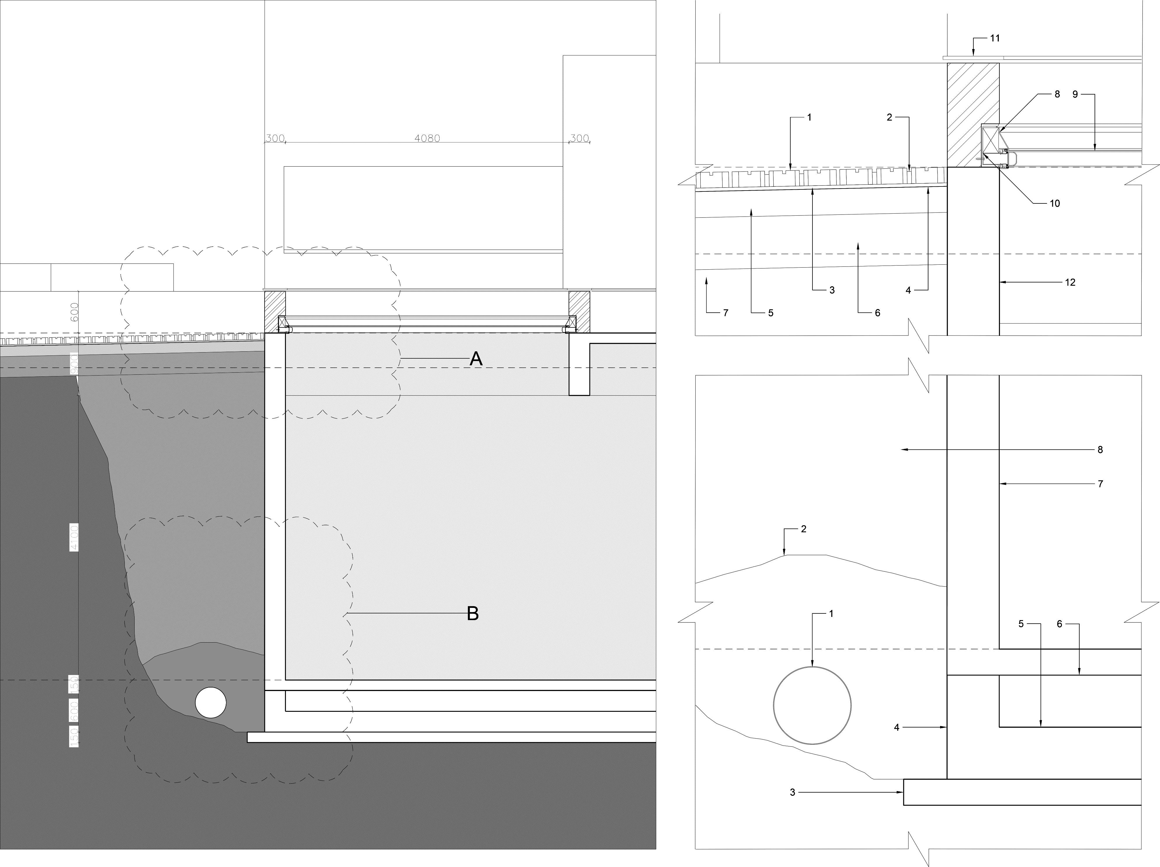
1Water proof layer

180MM XPS Foam

75MM Trapezoidal metal sheet

2 25MM Thk double pane Glass

3 Steel Flashing

4 2Layers of 12MM Thk Plaster Board

5 ISHB 600 Steel I-Beam

6 250MM Angle Cleat Connection with 6 Bolts

7 ISHB 125 I-Beam 2000MM C/C

8 50X75 MM Steel C Profile

9 2Layers of 12MM Thk Plaster Board False Ceiling

10 75X50 MM Steel C Profile

Detail C

1 6 60MM THK Poly-Carbonate sheet

2 ISJC 125 C- Beam

3 125MM Angle Cleat Connection with 3 Bolts

4 ISHB 125 I-Beam

5 Steel Grating

6 160MM Depth Steel Box Section(base for glazed façade unit)

7 325MM Angle Cleat Connection with 8 Bolts

8 750MM Depth Steel I-Beam

9 Structural Glass 25mm Thk

10 100 MM Depth Spacer Member

11 2Layers of 12MM Thk Plaster Board

12 Double Glazing Façade Unit

40 1 SHAUN VARGHESE PALLIPARAMBIL| 80279 | DESIGN DISERTATION AND ARCHITECTURAL REPRESENTATION & DETAILING | DR. BALIRAM HIRAY COLLEGE OF ARCHITECTURE | 30 April, 2024 | SEMESTER X 5 TH YEAR PROPOSED NEW WING OF MUMBAI CITY BHAU DAJI LAD MUSEUM AT BYCULLA EAST, MUMBAI, MAHARASHTRA
41 1 SHAUN VARGHESE PALLIPARAMBIL| 80279 | DESIGN DISERTATION AND ARCHITECTURAL REPRESENTATION & DETAILING | DR. BALIRAM HIRAY COLLEGE OF ARCHITECTURE | 30 April, 2024 | SEMESTER X 5 TH YEAR PROPOSED NEW WING OF MUMBAI CITY BHAU DAJI LAD MUSEUM AT BYCULLA EAST, MUMBAI, MAHARASHTRA Detail B 1 550MM Dia Perforated Pipe 2 Aggregate Surrounding Perforated Pipe 3 150MM PCC 4 300 MM Thk RCC Raft 5 450MM Thk Brick Bat Coba 6150MM Thk RCC Floor 7 300 MM Thk RCC Retaining Wall 8 Backfill Detail A 1 Grass Concrete Pavers 600X400MM 2 25 MM Fine Sand 3 25MM Sand Bedding 4 Geotextile filter Fabric 5 150MM Thk Aggregate Base 6 300 MM Thk Aggregate Sub-base 7 Backfill 8 Aluminium Flashing 9 Double Glazed Glass 10 ISJC 250 C- Beam 11 19MM Thk Granite Stone 12 300MM Thk RCC Retaining Wall

Renders

07
SHAUN VARGHESE PALLIPARAMBIL| 80279 | DESIGN DISERTATION AND ARCHITECTURAL REPRESENTATION & DETAILING | DR. BALIRAM HIRAY COLLEGE OF ARCHITECTURE | 30 April, 2024 | SEMESTER X 5 TH YEAR PROPOSED NEW WING OF MUMBAI CITY BHAU DAJI LAD MUSEUM AT BYCULLA EAST, MUMBAI, MAHARASHTRA
43 1 SHAUN VARGHESE PALLIPARAMBIL| 80279 | DESIGN DISERTATION AND ARCHITECTURAL REPRESENTATION & DETAILING | DR. BALIRAM HIRAY COLLEGE OF ARCHITECTURE | 30 April, 2024 | SEMESTER X 5 TH YEAR PROPOSED NEW WING OF MUMBAI CITY BHAU DAJI LAD MUSEUM AT BYCULLA EAST, MUMBAI, MAHARASHTRA
44 1 SHAUN VARGHESE PALLIPARAMBIL| 80279 | DESIGN DISERTATION AND ARCHITECTURAL REPRESENTATION & DETAILING | DR. BALIRAM HIRAY COLLEGE OF ARCHITECTURE | 30 April, 2024 | SEMESTER X 5 TH YEAR PROPOSED NEW WING OF MUMBAI CITY BHAU DAJI LAD MUSEUM AT BYCULLA EAST, MUMBAI, MAHARASHTRA
45 1 SHAUN VARGHESE PALLIPARAMBIL| 80279 | DESIGN DISERTATION AND ARCHITECTURAL REPRESENTATION & DETAILING | DR. BALIRAM HIRAY COLLEGE OF ARCHITECTURE | 30 April, 2024 | SEMESTER X 5 TH YEAR PROPOSED NEW WING OF MUMBAI CITY BHAU DAJI LAD MUSEUM AT BYCULLA EAST, MUMBAI, MAHARASHTRA
46 1 SHAUN VARGHESE PALLIPARAMBIL| 80279 | DESIGN DISERTATION AND ARCHITECTURAL REPRESENTATION & DETAILING | DR. BALIRAM HIRAY COLLEGE OF ARCHITECTURE | 30 April, 2024 | SEMESTER X 5 TH YEAR PROPOSED NEW WING OF MUMBAI CITY BHAU DAJI LAD MUSEUM AT BYCULLA EAST, MUMBAI, MAHARASHTRA
You SHAUN VARGHESE PALLIPARAMBIL| 80279 | DESIGN DISERTATION AND ARCHITECTURAL REPRESENTATION & DETAILING | DR. BALIRAM HIRAY COLLEGE OF ARCHITECTURE | 30 April, 2024 | SEMESTER X 5 TH YEAR PROPOSED NEW WING OF MUMBAI CITY BHAU DAJI LAD MUSEUM AT BYCULLA EAST, MUMBAI, MAHARASHTRA
Thank

Turn static files into dynamic content formats.

Create a flipbook
Issuu converts static files into: digital portfolios, online yearbooks, online catalogs, digital photo albums and more. Sign up and create your flipbook.