SHANEL SCARIA GEORGE | Architecture Portfolio

Page 1

P ORTFOLIO OLIO LIO IO

Shanel Scaria George
O

Being an architecture student has pushed my limits

helped unlock my deepest aspiration to become an architect and a designer. Architecture, being one of my passions is now demanding an internship to get some practical knowledge. I expect this is going to be different and give me new insights in this journey

Hello, DESIGN INTERESTS HOBBIES & INTERESTS Shanel Scaria George Student Architect shanel.george12345@gmail.com @shanel_george +91 - 7012085410 Nedumparapurathu (H) Monippally, Kurianad P.O. Kottayam - 686636 Kerala, IN Architecture Portfolio
Conceptual Design Urban Design and Planning Sustainable Architecture Minimalism Modular design Live Sketching Composition Physical Model making Cinema Direction Script writing D.O.P. Movies Thriller Sci-fi War Gaming Sandbox Shooter Racing RPG Memes Photography Travelling Foodie Quizzing Music Hip hop Pop, Rap Heavy Metal Art Renders Painting Sketches
and
This portfolio is a summarisation of academic and professional work from 2018-2022. The projects displayed varies from small-scale experiments to large-scale urban interventions.

LANGUAGE PROFICIENCY

English

Malayalam Hindi Tamil

EDUCATION

Bachelor of Architecture (B.Arch.)

2018 - ongoing Marian College of Architecture and Planning

Schooling (2016 – 2018) Higher secondary school – 12th grade Marygiri CMI Public School, Ernakulam, Kerala, IN (2005 – 2016) Senior secondary school – 10th grade Indian School Al Wadi Al Kabir, Muscat, Oman

SOFTWARE PROFICIENCY

WORK EXPERIENCE

Member of Editorial board SSA Committee (2019-20) Overall Co-ordinator PRADYOT (Book Publication)

Overall Co-ordinator “E.V.A. Reimagined” UD Exhibition, 2022

Student Volunteer and Host for Dignitaries Zonal NASA Convention : Moledro, 2019

Student Volunteer Claygrid 2019, MCAP, Trivandrum

Associate and Art Director, Story –Screenplay- Dialogues ‘Thira’ – Short Film, 2022

Attended Photography Workshop On behalf of Prahlad Gopakumar, MCAP (2021-22)

Attended technical session on “Awareness Program on Fort Area Conservation, Thiruvananthapuram” LSGD, Kerala & Dept. of Architecture, CET (2022)

SKILLS

Team co-ordination Analytical Thinking Creativity and Innovation Data Analysis

Problem solving Planning and Organization

Presentation

Conflict Management Time management Logical Reasoning Fast learner

CV
2018 - 2022
WHAT
INSIDE
01 04 Architecture Portfolio
IS
POOL HOUSE ARTS & CRAFT CENTRE
INNOVATION CENTRE RESDIENTIAL APARTMENT URBAN DESIGN - E.V.A. OTHER WORKS 02 03 05 06 2018 - 2022

POOL HOUSE

Architecture Portfolio
01 Project Type | Academic - Semester 1 & 2 Mentors | Ar. Adarsh Viswam, Ar. Joseph Alenchery, Ar. Shinana Sayanora Location | Puthenthope, Trivandrum, Kerala Site Area | 13 cent Softwares Used | Autocad, Sketchup, Lumion, Photoshop

Pool House

The primary purpose of a pool house is to provide a private space near the pool in which to change in and out of swimsuits, use the bathroom, shower, take a nap, enjoy a beverage, and entertain friends or family. Pool houses make pool ownership and swimming more enjoyable by placing everything you need within reach (or at least a few steps from the pool). It can be an all-purpose hangout space that also includes a bathroom with a shower and changing room.

The brief of the project was to design a pool house for a family of 4, located in Puthenthope, Trivandrum. The requirements included living space, dining space, 1 changing room and attached bathroom. Outdoor elements such as gathering spaces, swimming pool and additional amenities shall be designed as per creators’ freedom.

Floor plan

Living Area

Dining and Kitchenette

Sections
Section AA’ Section BB’ Key plan

Pool Deck

Pool Lounge

Pool dining and bar

Front yard

INNOVATION CENTRE

Architecture Portfolio
02 Project Type | Academic - Semester 5 Mentors | Ar. Rishie John Kurien, Ar. Ganga Krishnan, Ar. Lekshmi Raj Location | Menamkulam, Trivandrum, Kerala Site Area | 87 cent Softwares Used | Autocad, Sketchup, Lumion, Photoshop

Innovation Centre

Innovation centres can simply be defined as incubators that can nurture students into skilled and experienced individuals. They are capable of providing students with useful exposure to the outside world and its working. They provide the necessary platform for sharing innovative ideas, thoughts, conducting discussions and pitching of business/ research proposals to a much larger audience as compared to other institutions. It is vital for educational campuses to provide this facility to promote research attitude among students and for development of new innovations and ideas.

The vision for the project was to establish a skill development and exhibition centre within the Marian campus. It would provide a platform for conducting expos, prototype and creative exhibitions, workshops, Product launches and other learning events. The centre is expected to attract researchers, mentors, students and investors from all over the state. The brief of the project was to develop a centre with classrooms, workshops, exhibition spaces and a multipurpose hall. The structure must have a morphology that is similar to other buildings in the campus.

Concept GF Plan

The site is a rectangle shape, it position has been used as the modular element for planning and elevation.

Alternate blocks have been selected for each of the required spaces.

Removal of spaces, to create anti spaces, that can be used as junction points in pathways, gathering spaces.

More blocks added as per area requirement, alternate pattern maintained along plan.

ASection AA’

The separation in between has multiple uses, as a gathering space, as a landscape element and also provide good wind flow.

A’
1st Floor Section BB’
B

Design development

The concept of alternating structures, emphasised on one natural aspect : wind. The alternating form allowed for the passage of wind throughout the structure. The structure also gave rise to anti spaces, which require more attention.

The alternating concept which was of linear orientation is now tweaked a bit by rotating elements and creating an enclosed space, into a small usable building space. The anti-spaces are now developed into common junctions between the room blocks.

Some of the building blocks are removed, leaving their top faces in order to free up more area, for the junctions and also to give a wider pathway for wind to travel through the structure. The top faces are potential points of leisure or relaxation or focussed work.

In the previous stage some blocks have also been slid under the adjacent block, to increase the efficiency of spaces and for creating less confusion for users. The anti-spaces have a wide range of uses such as exhibition area, relaxation area, discussion areas, green roof etc.

B’

Site plan and details

Property owned and governed by Latin Archdiocese of Trivandrum. The site is governed by adinakulam grama panchayat

Location : Menamkulam, Kazahakkootam, Trivandrum

Site area : 3500 sqm

Road width : 5 m

Setback : Front : 7.5 m / Rear : 3 m / Sides : 3 m, 5 m

Permissible building coverage : 1750 sqm

F.A.R : 0.6

Building coverage : 33%

Total floor area : 1170 sqm

Steel space frame structure topped with acrylate or poly carbonate transparent sheets. These facilitate light penetration and rain protection. A great choice for overhanging roofs over green terraces

Jaali walls or roofs are used for their property of allowing partial light and wind through them. They help in colling down spaces and also illuminating them at the same time with diffused light.

Howe truss covered with acrylate sheets. These are lighter, more efficient, corrosion resistant, water proof and also allow greater spans.

AA’ A’
Section

Exhibiton space

The Courtyard

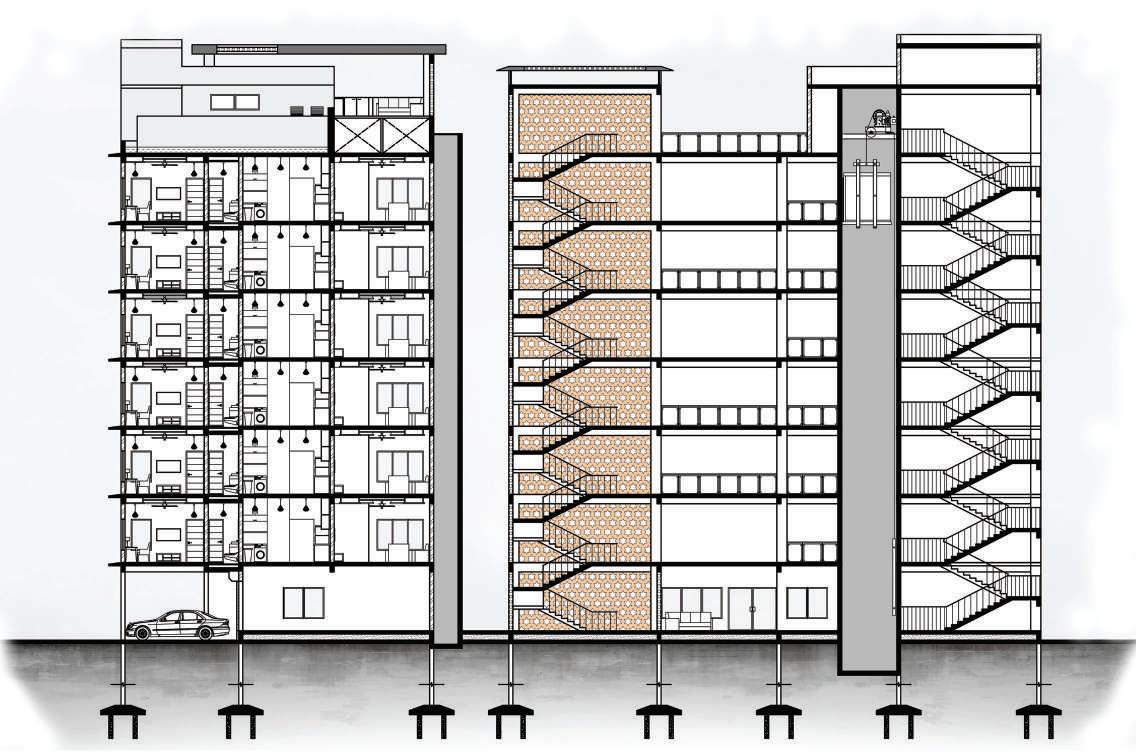
RESIDENTIAL APARTMENT

Architecture Portfolio
03 Project Type | Academic - Semester 6 Mentors | Ar. Rishie John Kurien, Ar. Ganga Krishnan, Ar. Lekshmi Raj Location | Pattom, Trivandrum, Kerala Site Area | 87 cent Softwares Used | Autocad, Sketchup, Lumion, Photoshop

Green Square Apartments

Residential apartments are vital to urban centres. Growth of cities has led to a rise for demand of these structures; however, the excessive development of multiple apartments has led to the diminishing quality of spaces and life in these structures. The initial idea was to develop a design with minimal wastage of space, and maximise the quality of spaces within the building. Concepts such as modularity of spaces and elements of biophilic architecture were incorporated in the design process to produce an efficient and functional design.

The brief of the project was to develop a mid-rise apartment building with 44 apartments of 1 BHK, 2 BHK & 3 BHK and respective premium typologies. A provision of amenities such as gym, children’s park and multi-purpose hall were required. The design should be able to improve the quality of life of the residents by incorporation of natural elements and activity areas. It should also have spaces that can facilitate community interaction and social well-being.

Location: Trivandrum Corp, Trivandrum, Kerala

Ward: Pattom

Address: Kesavadasapuram, Lekshmi Nagar, Pattom, Thiruvananthapuram, Kerala.

Nearest landmarks: Mahatma Gandhi college, Govt. medical college Trivandrum, Kesavadasapuram junction.

Plot area: 5.76 acre

Site chosen area: 1.01 acre / 4046.65 m2

Site section

Placement in site

Taking an axis aligned to the north. Setback of 5m is taken on all sides, for placement of road. The proposed placement is then aligned along with adjacent main road. The plot is extended up to setback line.

The whole complex is divided into 3 towers, 2 with normal apartment types, 1 with premium apartments.

Axis Orientation Built free zones
Site details

Modular room layouts

Room layouts are planned such that each of the smaller flats are subsets of the largest flat.

The voids created among the smaller apartments are utilised to create spaces where people can meet to enhance the community living and harmony among residents of the apartment.

Some voids are also made into green niches, which add to the overall views throughout the building.

The first floor takes the max advantage of the voids. 2 amenities are provided in the place of the combination of the voids space and the shaft area.

3
2
3
Voids are connected to create large open spaces for amenities + Concept
1 BHK adjacent apartments 1 BHK apartment 2 BHK apartment BHK apartment BHK premium apartment
BHK premium apartment

Design Development

Buildable Cube Recess along the south west side to capture wind Block split into towers, Light and Ventilation shafts introduced between towers

Circulation cores and bridges added connecting various

Structures for amenities and penthhouse added. Service areas and stairwell headroom added.

Further recesses from voids created due to modular layout

Building height : 26.4 m

No. Of floors : 7

Plinth area : 1680.66 sqm

Total floor area : 12,460 sqm

Typical floor height : 3.75 m

Amenities provided : children’s play area, central park.

Parking sheds : 3 car sheds (5 no. s, 3 no. s, 8 no. s)

1 bike shed (12 no. s)

Road width : 5m

Area of site : 1.01 acre / 4046.65 sqm Max coverage : group (a2) - 65% Coverage : 41.5% Max far : 4 Far : 3.1 Setback details : Front : 5 m, Back : 4 m, Side : 3 m, 3.5 m
Ceiling height : 3.3 m
Total plinth area : 740 sqm Plinth height : 0.45 m
Slope of ramp : 1 : 12 Parking spaces provided : 48
Plan
Turning radius : Inner : 3.5 m, Outer : 6m Site
Towards Keshavadasapuram Towards Pattom

Structural plan

Column dimensions : 50 x 20 x 45 cm (lbd)

Total no. of columns : 110

Ground floor plan

Total floor area : 740 sqm Floor height : 3.75 m
1st floor plan Total floor area : 1650 sqm Floor height : 3.3 m

Information Centre and Reading Room

Gym
Total floor area : 1580 sqm Floor height : 3.3 m
Typical floor plan

KITCHEN

BATHROOM 210 X 150

BATHROOM 210 X 150

HANGLING LIGHT SPOTLIGHT CEILING FAN CEILING FAN WITH LIGHT COFFERED LED STRIP Floor Plan Structural Grid Layout Ceiling Plan Layout Flooring Material Plan Vitrified Tile : 60 x 60 cm - Living, Dining, Bedroom, Kitchen Wood Vinyl Flooring : 120 x 20 cm - Balcony, Terrace Ceramic Tile : 30 x 60 cm - Bathroom 3 BHK Premium Apartment Detail BATHROOM 210 X 150 BATHROOM 210 X 150 KITCHEN 430 X 340 DINING 360 X 330 LIVING ROOM 340 X 470 BALCONY 350 X 300 BALCONY 320 X 340 LIVING ROOM 340 X 380 BEDROOM 350 X 400 BEDROOM 470 X 300 WASH 150 X 90 WALK IN CLOSET 150 X 170 WALK IN CLOSET 150 X 170 BATHROOM 210 X 150 BEDROOM 470 X 340 WALK IN CLOSET 150 X 170 BALCONY 470 X300 BALCONY 350 X 180 D1 D1 D2 D2 D3 D3 D4 SW1 SW1 SW1 SW2 SW1 SW3 SW3 SW2 SW4 V1 V1 D3 V1 D2D2 SW2 D1 SW1 W4 +13.65 LVL +13.65 LVL +13.65 LVL +13.65 LVL+13.65 LVL+13.65 LVL +13.60 LVL +13.60 LVL+13.60 LVL +13.60 LVL +13.60 LVL +13.60 LVL +13.65 LVL +13.55 LVL +13.55 LVL+13.55 LVL +13.60 LVL 0.50 2.50 1.20 0.50 2.90 1.00 0.50 0.50 3.60 0.50 0.70 0.30 1.50 0.50 1.00 3.40 0.20 0.70 0.20 0.60 0.20 1.80 0.20 0.20
0.70 0.50 0.50 2.60 1.00 0.50 0.20 0.25 2.90 0.25 0.20 0.20 0.25 2.90 0.25 0.20 0.20 1.10 0.15 1.95 0.60 0.70 2.15 0.15 1.00 0.30 0.20 0.20 0.25 2.90 0.25 0.20 1.10 0.20 1.95 0.15
430 X 340 DINING 360 X 330 LIVING ROOM 340
470 BALCONY 350 X 300 BALCONY 320
LIVING ROOM 340 X 380 BEDROOM 350 X
BEDROOM 470 X 300 WASH 150 X 90 WALK IN CLOSET 150 X 170 WALK IN CLOSET 150 170 BATHROOM 210 X 150 BEDROOM 470 X 340 WALK IN CLOSET 150 X 170 BALCONY 470 X300 BALCONY 350 X 180 +13.65 LVL +13.65 LVL +13.65 LVL +13.65
+13.65
+13.60
+13.60
+13.60
+13.60
+13.60
+13.60
+13.60
1 2
A
B
15.20
+0.00 +0.10 +0.10 +0.10 +0.10 +0.00 +0.00 +0.10 +0.10 +0.00 +0.00 +0.10 +0.10 +0.00 +0.00 +0.00 +0.00 +0.10 +0.10 +0.10 +0.10 +0.10 +0.10 +0.10 +0.10 +0.10 +0.10 +0.10 +0.10 +0.10 +0.10 +0.00 +0.00 +0.00 +0.00 +0.00 +0.00+0.00 +0.00 +0.00 +0.00 +0.00 +0.00 +0.00 +0.00 VITRIFIED TILE TILE SIZE 60 X 60 VITRIFIED TILE TILE SIZE 60 X 60 VITRIFIED TILE TILE SIZE 60 X 60 VITRIFIED TILE TILE SIZE 60 X 60 VITRIFIED TILE TILE SIZE 60 X 60 VITRIFIED TILE TILE SIZE 60 X 60 BATHROOM TILE TILE SIZE 60 X 30 BATHROOM TILE TILE SIZE 60 X 30 BATHROOM TILE TILE SIZE 60 X 30 WOOD VINYL FLOORING TILE SIZE 120 X 20 WOOD VINYL FLOORING TILE SIZE 120 X 20 WOOD VINYL FLOORING TILE SIZE 120 X 20 WOOD VINYL FLOORING TILE SIZE 120 X 20
X
X 340
400
LVL+13.65 LVL
LVL
LVL
LVL
LVL
LVL
LVL
LVL +13.65 LVL +13.55 LVL +13.55 LVL+13.55 LVL
LVL
3 4 1 2 3 4 D C B A
D C
4.90 6.20 4.10
10.80 3.60 3.60 3.60 +0.00
BATHROOM 210 X 150 KITCHEN 430 X 340 WASH 150 X 90 +13.65 LVL +13.60 LVL +13.55 LVL 3.40 2.4 1.0 0.80 1.20 1.10 1.20 4.30 0.19 1.50 2.60 0.80 WALK IN CLOSET 150 X 170 0.75 0.50 0.90 2.45 0.75 0.90 0.90 2.10 0.50 0.70 0.50 0.50 0.4 0.4 0.45 0.450.75 0.550.35 0.85 0.30 1.10 0.90 0.90 0.60 0.50 0.30 0.85 0.15 0.85 2.30 0.15 1.00 0.80 1.15 0.45 0.60 0.95 0.90 1.25 1.20 0.600.45 0.50 0.50 0.35 0.15 0.250.60 0.40 0.90 1.80 2.10 0.70 0.85 0.90 Electrical Plan & Layout Kitchen and Bathroom Plan Sectional Elevation : Bathroom Sectional Elevation : Kitchen 5A 15A 5A 5A 5A 5A5A 5A 5A 5A 5A5A5A 15A 5A5A 5A 5A 5A 5A 5A 5A 5A 5A 5A HANGLING LIGHT SPOTLIGHT CEILING FAN CEILING FAN WITH LIGHT COFFERED LED STRIP MIRROR LIGHT TUBE LIGHT EXHAUST FAN 15A SWITCH + SOCKET AT LVL +240 / +150 / +30 5A SWITCH + SOCKET AT LVL +150 / +30 / +90 5A SWITCH + REGULATOR CALLING BELL AT LVL +240 BELL PUSH AT LVL +135 DISTRIBUTION BOARD (MCB) CONNECTION FROM MCB CONNECTION BETWEEN APPLIANCES 5A 15A 5A 3 BHK Premium Apartment Detail

VIEW TO KITCHEN

Section AA

Sectional Elevation : Bedroom

5th floor plan Total floor area : 1680 sqm Floor height : 3.3 m

Indoor Games Area

Skybar and Swimming Pool

Banquet Hall

Section BB’
Section AA’
Sections
Key Plan
Views

ARTS & CRAFT CENTRE

Architecture Portfolio
04
|
| Ar.
|
Project Type
Academic - Semester 7 Mentors
Gautum Sasidaran, Ar. Devi Shyam, Ar. Vivek Venugopalan, Ar. Adarsh Viswam Location
Varkala, Trivandrum, Kerala Site Area | 36 Acre Softwares Used | Autocad, Sketchup, Lumion, Photoshop,

Centre for Arts & Craft

The culture that we follow shows our inner identity in an open-minded way. Akin, the culture of a place portrays its greatness and prosperity to the entire world and attracts everyone to explore one such culturally rich destination, that is Kerala. Kerala’s rich cultural heritage is depicted in its art and crafts. The state is well known for its articulate craftsmanship and vibrant art forms done immaculately captivating visitors and audiences with an ethereal experience which is an intimate part of her tradition.

The vision for the project was to showcase the cultural heritage of Kerala and earn the title of a ‘Cultural landmark for India’. The idea was envisioned to be realised under the Vision Varkala 2020 project by Vision Varkala Infrastructure Development Corporation Ltd (VIVID), Kerala. The brief of the project was to create a centre for arts and craft in Varkala, one of Kerala’s popular tourist destinations. The vision statement that drove the design process was “To develop the site into a glocal landmark, plugging in backwater tourism.”

Zoning based on inferences from vision

The paid zone accounts for most of the crz areas, along with areas which have some of the best views from the site to the surrounding interface. Thus attracting visitors to the paid zone.

Allocation of paid zone on higher contours which have more viewshed attracting tourists from afar, and neighbouring towns.

Free zone

Paid zone

Final zoning

Guest accomodation moved to edge of site which has max range view to the lake.

Large park provides necessary buffer between active zone and guest resort zone

Arts zone placed at cntre of the site, coming right after picot. The commercial zone is clubbed with arts zone to form the active zone of the region

Children’s park Guest accomodation Park

Water entry / Kayak Commercial zone Central pivot

Vehicle entry / Pond interface Learning centre Artist accomodation

Craft centre Parking Staff accomodation

The allocated free zone creates a connection between the vehicle entry and boat entry. This allows for movement of people through the site, hence attracting more visitors. The existing waterbody in site has been retained and waterfront elements have been constructed for public access to waterbody.

Arts centre

Free zone provided with areas of leisure, childrens play area, oat, pond interface and boating activties making it a landmark.

Craft zone is placed on the highest part of the zone due to its importance and also acting as a landmark

Parking and staff access have been placed such to reduce the amount of vehicle traffic within site, make th site more pedestrian friendly.

Artists accomodation moved to more private zone in site and has connection to both learning zone and craft centre

Kayaking Children’s ParkOAT
Boat
OAT
Jetty
Cottages
Accomodation Auditorium Kalari Thara Koothambalam Garden Stalls Central Pivot Restaurant Hostel Staff Accomodation Art and Craft centre Main Entry Main Parking Sale Points Training Centre Artist’s Accomodation
Park Nature Cove Event Ground Pedestrian Paved Path Vehicle Road Legend: Paved Ground Wooden Deck Dedicated Cycle Track Cycle and Cart Track Lawn ROOF PLAN MASTERPLAN, AREA : 36 Acres Main Entrance View
Boat
Jetty Floating
Guest
Sculpture

CENTRE FOR ARTS AND CRAFT

The Spine

SECTION AA’
Entrance Waiting Area Open Air Theatre

The Courtyard

Key
A’ A View Point
plan

URBAN DESIGN

Architecture Portfolio
05
Type | Academic - Semester 8
| Ar. Gautum Sasidaran, Ar. Devi Shyam, Ar. Vivek Venugopalan, Ar. Adarsh Viswam
| Akkulam, Trivandrum,
| 50 Acre
Hand-Drafting,
Illustrator
Project
Mentors
Location
Kerala Intervention Site Area
Presentation Done Using |
Hand-Rendering, Physical Model Making, Photoshop,

Urban Waterfront Development

Water is an important defining element of settlements across the world and can be traced back through a city’s historical structure and morphology. An urban waterfront has a special place in the modern resident’s heart because it connects them with nature. Equitable access to urban waterfront if ensured at all times, proves fruitful. A mixed-use development plan, celebrating the rich history, along the urban waterfront can make the place vibrant.

Parvathy puthanaar was an artificial canal that was developed during the reign of Rani Parvathi Bai, then maharani of Travancore. The canal connected various important towns and was a major trade route. However, at present, the canal remains unused and in a dilapidated condition. Most cities designed along the canal treat it as their backyard. People and cities end up dumping waste and sewage into the stream. The aim of this studio was to design urban water front development projects along the canal, introducing more activities and footfall to these regions, henceforth reinstating Parvathy Puthanaar to its former glorious state.

Vayalil Restaurant
Veli Tourist Village
Medical College, Trivandrum Infosys Limited, Trivandrum Aakkulam Tourist Village KIMS Hospital Lulu Mall, Trivandrum World Market Mall of Travancore Kerala Government Secretariat Trivandrum Central St. Thomas Church, Veli Veli Beach Kochuveli Railway Station Karikkakom Chamundi Devi Temple Madre De Deus Church (Vettucaud Church) Trivandrum International Airport Shangumugham
Sarabhai Space Centre (VSSC) Trivandrum Municipal Corporation Govt. Infrastructure E.V.A. REIMAGINED : REDEVELOPMENT OF PARVATHY Transportation landmark Tourist landmark LEGEND Commercial landmark Social Infrastructure Activity landmark NH66 Bypass Road Bypass Service Road Main Road Parvathy Puthanaar Intervention AreasRailway Line Religious landmark Akkulam Lake Amayizhanchan Thodu River Veli Lake Veli Beach Vettucaud Beach Kannanthura Beach Shangumugham Beach Vallakadavu Valiya Veli Fish Monger Amayizhanchan Thodu River Amayizhanchan Thodu River Amayizhanchan Thodu River LEGEND Trivandrum Corporation Limit Region of Interest Ward Boundary Parvathy Puthanaar Stretch Towards Technocity, Pallipuram Towards Kazhakkoottam Railway Station Akkulam Bridge Travancore Titanium Limited AAKKULAM PRASANTH NAGAR KARIMANAL THUMBA ORUVATHILKOTTA MADHAVAPURAM VELI KOCHUVELI VETTUCAUD SHANGUMUGHAM KARIKKAKOM PETTAH CHACKA PALAYAM CHETTIKUNNU ALATHARA PERUNTHANNI VALIYAKULAM NALUMUKKU VALIATHOPE SECONDARY STUDY Architecture Portfolio
College of Engineering, Trivandrum
Vikram
AAKKULAM HISTORICAL SIGNIFICANCE ECOLOGICAL IMPORTANCE CULTURAL SIGNIFICANCE INFRASTRUCTURE FUTURE POPULATION DENSITY VALLAKADAVU EDAYAR CURRENT GROWTH INTENSITY
KSRTC Bus Terminal Trivandrum Central Railway Station Sree Padmanabhaswamy Temple Poonthura Putthanpally Juma Masjid Chitranjali Studio, Thiruvallam Kerala Arts & Crafts Village, Kovalam
Central
Beach Bio Diversity Museum, Vallakadavu Valiyathura Beach Pier St. Thomas Church, PoonthuraBeemapally Dargah Shereef Parasurama Temple, Thiruvallam Towards Vizhinjam Harbour and Proposed Vizhinjam Port PARVATHY PUTHANAAR & THE URBAN COALESCE Valiyathura Beach Poonthura Beach Pozhikkara Beach Edayar Island Killi River Samudra Beach Panathura View Point Killi River Karamana River Karamana River Karamana River Karamana River Vellayani Lake Killi River Killi River Killi River Killi River Karamana River
Kovalam
Shangumugham
Towards
Towards Papanamcode
Railway
Sewage Treatment Plant Muttathura VALIYATHURA BEEMAPALLY POONTHURA EAST FORT (KIZHAKKEKOTTA) CHALAI THAMPANOOR
PUTHENPALAM THOTTAM MILMA Dairy Plant KUMARICHANTHA VIKAS NAGAR PACHALLOOR VAZHAMUTTOM POONKULAM THIRUVALLAM JUDGEKUNNU KARINKADAMUGAL ARATHAM MOOLA
Towards
Nemom
Station
PERUNTHANNI
MUTTATHARA NALUMUKKU
2018 - 2023 2018 - 2022
THAKARAPARAMBU VALIATHOPE

City Structure

Aakkulam

Aakkulam region acts like a bridge between the technology district and main city centre of Trivandrum. Aakkulam has plenty of transportation infrastructure such as railway station, national highway, airport, KSRTC bus terminal and national waterway. These infrastructures bring in visitors from all over the country and even on an international scale. Aakulam has plenty of natural resources in the form of lake, pozhi, beach, river, blue green edges and a plethora of flora and fauna. Hence one can witness Aakkulam transforming into a gateway to Trivandrum city.

MAJOR PLAYERS MAJOR INFLUENCE SECONDARY INFLUENCE COMMUNITY INFLUENCE MAJOR CONNECTIONS NH 66 SECONDARY DRIVERS PARVATHY PUTHANAAR TOWNS / COMMUNTIES RAILWAY LINE SECONDARY CONNECTIONS POTENTIAL COMMERCIAL CORRIDOOR EXISTING RESIDENTIAL MAIN ROAD EXISTING COMMERCIAL RIVERS REAL ESTATE GROWTH WATERBODIES INTERVENTION/ POTENTIAL ZONES MAIN ROADS COAST LINE REGION OF FOCUS ARRATTU PATH PEDESTRIAN CONNECTIONS Towards Technocity, Pallipuram VELI TOURIST VILLAGEVELI CHURCH VELI BEACH PADBHANABHA TRIVANDRUM BUS TERMINAL BIO DIVERSITY MUSEUM TRIVANDRUM INTERNATIONAL AIRPORT SHANGUMUGHAM BEACH KARIKKAKOM TEMPLE WORLD MARKET AAKKULAM TOURIST VILLAGE KIMS HOSPITAL TECHNO PARK INDUSTRIAL AREA KOCHUVELI RAILWAY STATION VETTUKAUD SHANGUMUGHAM KARIKKAKOM VENPALAVATTOM PERUNTHANNI VALIYATHURA VELI MADHAVAPURAM VALLAKADAVU LULU MALL AKKULAM LAKE VSSC OBJECTIVES VISION Envisioning vallakadavu by rejuvenating the past glory and by it a gate way or entry point to the city by establishing a linkage with the heritage and there by functioning as a urban node • Vallakadavu as a Gateway or entry point to the city • Heritage conservation • Rejuvanation of Parvathi puthanar • Community upliftment VISION OBJECTIVES Visualisation of a vibrant / thriving city destination serving as a gateway connecting people • Reshape akkulam into a city level destination • Strengthening the ecology and promoting symbiotic relationships between normal and Built environment • Establish cultural equity in building of that area. • Rejenuvation of Parvathy puthanaar and integrate it with the city. E.V.A. REIMAGINED : REDEVELOPMENT OF PARVATHY PUTHANAAR & THE URBAN COALESCEPRIMARY STUDY 2018 2023 Architecture Portfolio

Vallakadavu

Vallakadavu is a currently a defunct area, with under utilised land and infrastructure. even though the city is in close proximity to the padmanabha swamy temple area, the area id considered as the outskirts and lacks any major form of real estate development. However, the presense and sprawl around parvathy puthenaar and NH66 give high hopes of commercial activity and development in vallakadavu reinstating the old Trade port town back to its glorious state. Vallakdavu also has notable historic structures such as biodiversity museum and major events happening like arattu.

Edayar

Edayar is an untapped resource in terms of real estate and tourism. The island has rich floura and fauna and various edge characters such as river banks, beaches, deltas, etc. The richness of biodiversity and topography increase its importance as a tourist destination. As population increases, followed by rapid urban development in the capital city, residents will have to look for new natural landscapes, water features and green areas. Edayar surely is the next paradise that city residents can escape to. With the rejuvenation of parvathy puthanar more people can access the destination.

Towards proposed Vizhinjam Port Towards Padmanabhapuram Palace PADBHANABHA SWAMY TEMPLE
STATION
TRIVANDRUM CENTRAL BUS TERMINAL TRIVANDRUM CENTRAL RAILWAY
TERMINAL VALIYATHURA BEACH POONTHURA CHURCH POONTHURA BEACH THIRUVALLAM TEMPLEMILMA DAIRY PLANT CHENTHITTA VKK NAGAR BEEMAPALLI POONTHURA THIRUVALLAM CHALAI VALLAKADAVU JUNCTION EDAYAR ISLAND ATTUKAL TEMPLE PARVATHY PUTHANAAR POTENTIAL CITY SPINE NH 66
VISION • To
• To
POONTHURA MOSQUE
Capturing the sense of place with its unique regional character OBJECTIVES
conserve and enhance the existing ecological corridor along Edayar Island.
create and develop a sense of identity to Edayar
To enhance and enrich cultural and religious tourism. • To develop the island into a well established tourist destination considering its proimity to Kovalam and Vizhinjam
PLANT
SEWAGE TREATMENT

Aakkulam

Development of Parvathy puthanaar and its edges will increase transit via the waterbody for both tourists and cargo. Aakulam region also has industrial and residential zones as its neighbours. This will empower already existing businesses and become an incubator for development of more commercial infrastructure in the region. The import export infrastructure that Aakkulam provides will invite bigger players to the city.

The strategic importance of Aakkulam region (with respect to proximity to important cities and being a transportation hub) will attract more settlements in the region, particularly medium and high-rise type. This will lead to subsequent increase in population density and traffic. There will be a need for more traffic solutions such as road widening, metro, high speed rail, flyovers, redevelopment/ extension of existing transport infrastructure (rail, airport, bus) etc. Aakkulam which already has plenty of blue green edges and natural landscapes has a potential for becoming a destination of hospitality, meditation and wellness.

Aakkulam lake
Aakkulam bridge Venpalavattom Junction Lulu mall

Parvathy Puthenaar

With the rejuvenation of Aakulam lake and Parvathy puthanaar, more water front developments will be encouraged in the region, reviving and transforming the current dilapidated and defunct veil and Aakkulam walkways. Gradual development in the city will increase land value that can result in a shift in settlement typology. New land use plan and settlement patterns will be required to increase the carrying capacity of the region. The Vision we selected for urban design in aakkulam is Reimagining/ Restructuring defunct spaces through placemaking and community development.

NATIONAL HIGHWAY 66 LEGEND STATE HGHWAY RAILWAY LINES PARVATHY PUTHANAAR BRIDGES PEDESTRIAN ROUTES INTERVENTION BOUNDARY MAJOR NODES MAJOR BUS STOPS Towards Technopark Trivandrum Towards Thumba Testing and Launching Centre KOCHUVELI RAILWAY STATION VENPALAVATTOM JUNC LULU MALL AAKKULAM TOURIST VILLAGE ULLOOR AAKKULAM JUNC KARIKKAKOM CHAMUNDI TEMPLE VSSC RAILWAY CROSSING AKKULAM BRIDGE MINOR NODES MADHAVAPURAM To Pettah WORLD MARKET VELI TOURIST VILLAGE VELI CHURCH Veli walkway

City Centre - Aakkulam

The idea of the project was to rejuvenate the currently defunct clay factory into a city centre. The elements for the same included a national museum and art gallery, more exhibition spaces, a commercial street, a flea market and other transitional spaces. These elements are placed, beginning from Kochuveli railway station and ending with the serene beauty of Parvathy Puthenaar.

Physical Model
Hand rendered masterplan
SHEET DESIGN : SHANEL SCARIA GEORGE S8A

OTHER WORKS

Architecture Portfolio
06

Other works

During my architectural adventure at MCAP, I was able to participate in many workshops, events and competitions. My college had the chance to host the annual ZONASA, a nationally acclaimed architectural event for students. I also got the opportunity to participate in and the annual CLAYGRID workshop series held at my college. I have a particular interest in photography and a glimpse of some of my works are shown here.

As a batch, I have successfully been able to coordinate various studio exhibitions and also lead the creation and publication of a book on the topic: Kerala Arts and Craft. I have also been a part of development of a website “history inked” about display of various sketches of historically significant structures. The next few pages showcase the various works that I have created and gain exposure from.

Pradyot - Book publication

We started writing this book shortly after the beginning of our architectural design for this semester. As architecture students, our quests to imbibe knowledge before getting out in the field has become our duty over time. This led to our pursuit of understanding the working of arts and craft in Kerala.

First and foremost, we hope to provide a brief general assessment on the different arts and crafts in Kerala. The scope and contents of the various chapters of the book have been so planned as to make each chapter self-contained even at the risk of repetition. Secondly, we would like to acknowledge that exploring the arts and crafts of Kerala was a surreal experience and we hope that the same feeling is evoked in the reader.

In the execution of this extensive and multifarious undertaking; We, students of Marian Architecture and Planning take satisfaction in knowing we have done our very best and in this spirit, we lay rest to the manuscript of this volume. We hope this book comes to be accepted in due course as a work of approbation by paramours of Kerala Arts and Crafts.

Scan to read

Competition - Residence design

The competition had a vision on the concept of developing residences that were COVID – 19 compatible. The organisers was looking or new innovations solutions to tackle the current problems faced by quarantine patients in homes.

The brief of the project was to design a residence for 4 individuals. There must be a special set of isolation room within the house including a bedroom, workspace and living area. The kitchen must also have a window contact to the sick move.

board
space
Mood
Bedroom Courtyard Aerial view Living
History sketches
Contd.

Self illustration

Sketches
Exhibiton space Wall painting Short film : Thira Short film : Team
Scan to watch

Physical models

Lotus temple Site for art and craft centre
Contd.
Church of brasilia Residence
Chapel
Business hotel
Shanel Scaria George shanel.george12345@gmail.com
+91 7012085410

Turn static files into dynamic content formats.

Create a flipbook
Issuu converts static files into: digital portfolios, online yearbooks, online catalogs, digital photo albums and more. Sign up and create your flipbook.