Skip to main content

Architecture Portfolio

Page 1

R C H I T E C T U R E

POR TFO LIO

Education:

SEEMA BAKRI A
Thomas Jefferson University NAAB accredited Bachelor of Architecture

Hi! You are viewing the architecture portfolio of Seema Bakri.

I am a fourth year architecture student at Jefferson University in Pennsylvania, USA. I strive to enter the field of design with a Bachelors of Architecture, and my Associates of Business Administration to present my skills to the world.

My inspiration major came from recognizing my passion for creative design as well as the satisfaction that users experience from a space of exploration. From finding a sense of home in traveling and exploring our world, my enthusiasm is sparked by the endless cultures, architecture styles, fashion styles, and several other creative traits I can find outside my comfort zone.

Enjoy a look of my work!

CONTACT

EDUCATION

THOMAS JEFFERSON UNIVERSITY (TJU) • 2019 - 2023

bakriseema0@gmail.com linkedin.com/in/seemabakri12/

Philadelphia, PA

SKILLS

AUTO CAD

RHINOCEROS 3D

GRASSHOPPER

REVIT

ENSCAPE

LUMION

CURA

INDESIGN

PHOTOSHOP

ILLUSTRATOR

MICROSOFT OFFICE

Bachelor of Science in Architecture Award: Dean’s List

Organization: American Institute of Architecture Students (AIAS)

MONTGOMERY COUNTY COMMUNITY COLLEGE • 2016 - 2019 Associates Degree in Business Administration Award: Dean’s List

Organizations: Phi Theta Kappa Honor Society

EXPERIENCE

WHITE HOUSE BLACK MARKET • FASHION STYLIST • 2018 – 2019

Maintained knowledge of latest fashion trends

Provided clients with individualized and personal style

Facilitated wardrobing, coordinating fits and accessories

Led associate sales

KOHL’S • CUSTOMER SERVICE • 2016 – 2017

Identified and assessed customer needs to achieve satisfaction

Coordinated store operations, handling high call volumes daily Maintained financial accounts and resolved customer complaints

ACADEMIC ACTIVITIES

AIAS • CHAPTER PRESIDENT • 2021 - 2022

Organize and maintain official paperwork for chapter Represent University at local, national and international levels Lead event planning and coordination

Report chapter engagement to national level

Engage with faculty, members and students on event coordination

LANGUAGES

ARABIC ENGLISH

TEMPLE FEST • VIRTUAL COLLEGE PANELIST • OCTOBER 2021

Demonstrated success in TJU architecture program

Represented and led conversations on “lifestyle of a design student” Discussed and answered questions for prospective students

TJU • FRESHMAN VIRTUAL ORGANIZATION PANEL • SEPTEMBER 2021

native fluent

SPANISH

Represented AIAS, answered questions on organization Engaged with freshman on early design discussions

TJU • ACADEMY SUMMER PROGRAMS MANAGER & INSTRUCTOR • AUGUST 2021

Co-hosted 3-week summer design program for incoming freshman

Fostered discussions and answered questions

Encouraged collaboration and exploration

Facilitated technical aspect of virtual event

RESUME/CV
FRENCH moderate basic

TABLE OF CONTENTS

MOSQUE

• COLLAGE EXPERIMENTATION • MILLER HOUSE VISITOR CENTER • SIDEWALK COMMUNITY • HELIX AMBIANCE • AL-UMAYYAD
• CENTER OF UNITY • CAMPAIGN PACKET • LOUVER IMPLEMENTATION • LIBRARY TRANSIT HUB • CHARETTE • BETHLEHEM’S OWN
A STUDY ON LAYERING OBJECTS AND PERSPECTIVE LINES THROUGH A PHYSICAL ANALOG PROCESS AND DIGITAL PROCESS IN PHOTOSHOP. THE LOCATION ASSIGNED AND RESEARCHED IN PHILADELPHIA: ACADEMY OF
MUSIC,
THROUGH A SERIES OF SKETCHES AND PHOTOS DONE FROM SITE STUDIES. COLLAGE EXPERIMENTATION ON-SITE SKETCH OF BUILDING
PHOTOSHOPED COLLAGE STARTING POINT PRINTED COLLAGE STARTING POINT PROGRESS WORK PHOTOSHOPED COLLAGE END PRODUCT PRINTED COLLAGE END PRODUCT

AFTER A SEMESTER LONG STUDY OF THE MILLER HOUSE IN INDIANA, COLUMBUS, THIS PROJECT ASKED FOR AN ADDITION TO CAREFULLY FIT THE ALREADY EXISTING MASTERPIECE. THIS DESIGN INVOLVED THE UNDERSTANDING OF COLOR, FORM, AND A SENSUAL EXPERIENCE IN THE DESIRED INTERIOR AND EXTERIOR SPACES.

MILLER HOUSE VISITOR CENTER
ELEVATION DRAWINGS
SERIES
OF DIAGRAMS AXONOMETRIC DRAWING
LONGITUDINAL SECTION
PHYSICAL MODEL REPRESENTATION
ANOTHER PERSPECTIVE OF PHYSICAL MODEL

THE PRE-EXISTING DOX THRASH HOUSE LOCATED IN THE SHARSWOOD NEIGHBORHOOD OF PHILADELPHIA WAS CHOSEN TO DESIGN A COMMUNITY CENTER. A STEAM PROGRAM WAS INTENDED TO BRING A INSPIRING YOUTHFUL EXPERIENCE FOR THE YOUNG SOULS OF SHARSWOOD TO WANT TO CREATE.

SIDEWALK COMMUNITY FLOOR PLANS
INITIAL SKETCHES AXONOMETRIC DRAWING DIGITAL MODEL STREET VIEW PERSPECTIVE 2ND LEVEL INTERIOR PERSPECTIVE 1ST LEVEL INTERIOR PERSPECTIVE 3RD LEVEL INTERIOR PERSPECTIVE DIGITAL MODEL PERSPECTIVE - 2ND LEVEL TO STREET

INITIAL SKETCHES AND CONCEPT

A PROGRAM THAT CONSIDERS ENVIRONMENTAL FACTORS AND RE-PURPOSES THAT CONCEPT TO RELATE TO MEASUREMENT, ATMOSPHERIC MEASUREMENT, AND MONITORING STATIONS TO BE A PART OF STEM PROGRAM WAS IMPLEMENTED. THE INTENTION TO CONNECT TRANSPARENT DESIGN TO HOST PROGRAMS FOR MEASUREMENTS, TO ALLOW LIGHTNING, STUDY THE ATMOSPHERE THE NIGHT SKY AND A SPACE FOR LABS TO DO SO. A STRUCTURE THAT SUPPORTS AND CONNECTS TO ANOTHER LEARNING EXPERIENCES.

HELIX AMBIANCE
3D PRINTED PHYSICAL MODEL 3D PRINTED MODEL AERIAL PERSPECTIVE
SITE SECTION DIGITAL MODEL BUILDING SECTION DIAGRAMS

A SEMESTER LONG STUDY OF THE OLDEST AND LARGEST MOSQUE IN THE WORLD WAS SELECTED FOR THIS RESEARCH. BY DIAGRAMMING MAIN CONCEPTS ON THE DRAWINGS DONE, FURTHER UNDERSTANDING OF CONTEXT AND HISTORY HELPED WITH CHOOSING OBJECTS TO COMPARE TO THE TIME PERIOD AND THEIR USE IN DAMASCUS, SYRIA AT THAT TIME.

AL-UMAYYAD MOSQUE
Caliph Al-Walid I once said “People of Damascus, four things give you a marked superiority over the rest of the world: your climate, your water, your fruits, and your baths.To these I add a fifth: this mosque.” ELEVATION
DRAWING OF MOSQUE VOLUMES, INTERIOR VS EXTERIOR ENTRANCE, CIRCULATION SEQUENCE FORM DIFFERENCES, HEIGHT CONTRAST RHYTHM, SYMMETRY
DRAWING: TEXTILE FRAGMENT DATED 8TH C. DRAWING: CAPITAL IN THE “BEVELED STYLE” DATED 7TH C.WRITING: FOLIO FROM “TASHKUL QURAN’ DATED 8TH C. DRAWING: LAMP DATED 7TH CENTURY AXONOMETRIC HAND DRAWING

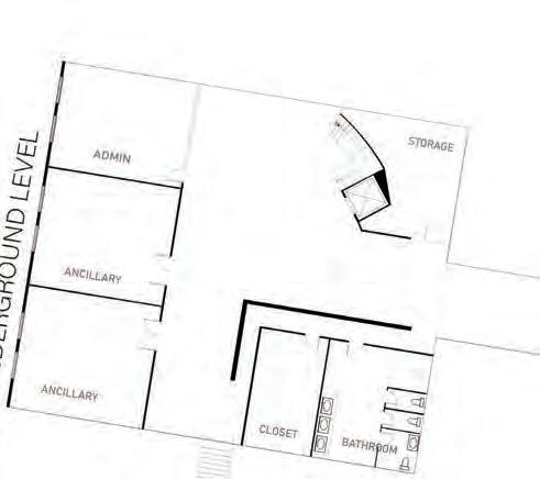
DESIGNED TO BE A SANCTUARY AND COMMUNION SPACE FOR VISITORS AND RELIGIOUS BELIEVERS TO UNITE THEM THROUGH EXPERIENCES THAT RANGE FROM PUBLIC TO PRIVATE AND MEDITATION SPACES. LOCATED IN FAIRMONT PARK AND BETWEEN THE PROMINENT LANDMARKS OF NORTHEAST PHILLY. INSPIRATION BEHIND THE MASSING OF THE BUILDING COMES FROM THE REFLECTIVE CIRCULAR TYPOLOGY SEEN IN PLAN VIEW STARTING FROM THE CUL-DE-SAC OF THE MANSION AND PROTRUDING ONTO THE ROADS.

CENTER OF UNITY
DN DN DN DN UP DN
PHYSICAL MODEL SHOTS DIGITAL MODEL INTEROIR PERSPECTIVE DIGITAL MODEL INTERIOR PERSPECTIVE DIGITAL MODEL EXTERIOR PERSPECTIVE
UNDERGROUND LEVEL SECOND LEVEL GROUND LEVEL THIRD LEVEL

FOR BOARD ELECTIONS FOR JEFFERSON UNIVERSITY’S AIAS CHAPTER, THIS CAMPAIGN PACKET WAS DESIGNED TO FIT THE THEME AND LOGO. THROUGH THE USE OF IN-DESIGN, STUDENTS WERE ABLE TO SEE THE INTERESTED CANDIDATES AND VOTE FOR THEIR CHOICE FOR BOARD MEMBERS.

WORKING WITH KAWNEER LOUVERS AND OVERHANGS, THIS PROJECT HELPED CALCULTE EFFECIENT WALL SECTIONS AND DESIGN TO THE FARNSWORTH HOUSE. RESPECTING THE ORIGINAL DESIGN AND RECONSIDERING THE HOUSE AS A MORE ENERGY-EFFICIENT BUILDING, THE CONNECTION BETWEEN TECHNOLOGY AND DESIGN IS DEMONSTRATED.

FARNSWORTH REDUX - TECH II

R Values ROOF & CEILING Standard Seam Aluminum Roof 0.1 x 1” Rigid Panel Insulation 7.5 x 3.75” Vapor Barrier 0.2 x 0.5” Precast Concrete Channel Slab 0.1 x 2” Fiberglass Batt Insulation 3.5 x 8” FLOORING Floor Slab 1.4 x 0.75” Concrete Mortar Bed 0.1 x 1” Rigid Panel Insulation 3.5 x 7.75” Precast Concrete Slab 0.1 x 2.75” 56.52 28.55 Aluminum Horizontal Louver Aluminum Horizontal Louver Hope’s Fixed Window Hope’s System Window In Mullion System Thermal Seal Wood Blocking Polyeurethane Rigid Panel Insulation Floor Slab Concrete Mortar Bed Precaset Concrete Slab Standard Seam Alumium Roof Rigid Panel Insulation Precaset Concrete Channel Slab Fiberglass Batt InsulationVapor Barrier CAMPAIGN PACKET
LOUVER IMPLEMENTATION

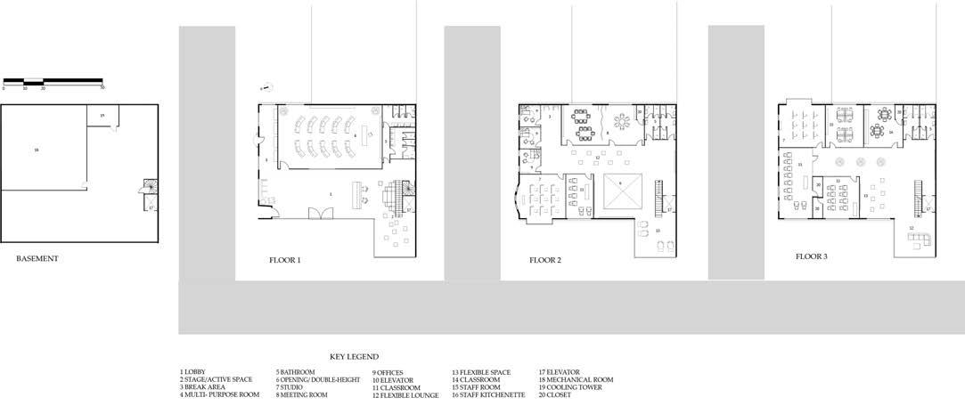
BY ENHANCING URBAN INCLUSIVENESS AND ACTING AS A CATALYST FOR POSITIVE CHANGE, THIS PROJECT OFFERS GRAND SERVICES TO THE COMMUTERS, STUDENTS, AND RESIDENTS OF THE AREA. THE REASONING BEHIND A TRANSIT-LIBRARY HUB IS TO ALLOW USERS OF THE AREA HIGHER ACCESS TO LIBRARY SERVICES, AS WELL AS AN ADDITIONAL SEPTA STOP FOR ANY TICKETING, OR SERVICING NEEDS. IN TERMS OF THE LIBRARY, THIS DESIGN RE-DEFINES THE TRADITIONAL DEFINITION INTO MORE OF A DIGITAL AND VIRTUALLY STORED HOUSE OF KNOWLEDGE.

LIBRARY TRANSIT HUB 1 2 3 54 6 7 8 9 10 11 12 1 2 43 5 6 7 8 10 9 LEVEL ONE PLAN 1 LOUNGE 2 SEATING 3 CAFE 4 CIRCULATION DESK 5 CHARGING STATIONS 6 KIOSKS 7 RESTROOMS 8 STORAGE 9 MECHANICAL 10 BICYCLE PARKING 11 VEHICLE PARKING 12 DROP OFF LANE LEVEL TWO PLAN 1 LOUNGE 2 OUTDOOR TERRACE 3 RECEPTION/RENTAL 4 KITCHENTTE 5 MULTI-PURPOSE 6 RESTROOMS 7 STORAGE 8 MECHANICAL 9 STAFF 10 STUDY ROOMS
A 0 50 100 1 32 4 5 6 7 8 10 9 11LEVEL THREE PLAN 1 COMPUTER LAB 2 STAFF 3 VIRTUAL REALITY 4 EVENT SPACE 5 LIVING AREA 6 RESTROOMS 7 STORAGE 8 MECHANICAL 9 STUDY ROOMS 10 STACKS 11 RECEPTION ROOF PLAN INITIAL SKETCHES CONCEPTUAL PARTI’S
EXTERIOR
PERSPECTIVE FLOOR PLANS
SECTION
DRAWING A
INTERIOR DIGITAL MODEL PERSPECTIVRES
VISUALIZATION CHARETTE USING PROGRAMS LIKE GRASSHOPPER, RHINO, AND LUMION, THE TASK WAS TO DESIGN A CORPORATE HIGH-RISE LOCATED IN AN ARCTIC / SUB-ARCTIC CLIMTAE. A QUICK 2-DAY CHARETTE PRODUCED THESE RENDERINGS, DIAGRAMS, AND BOARD.
BETHLEHEM’S OWN 32 28 34 BATHROOM 35 STUDY ROOM 37 SOLAR PANELS CONCRETE FOOTING RIGID INSULATION WALL SECTION NORTH ELEVATION 2ND LEVEL OUTDOOR DECK ONLOOKING SITE & STACKS 3RD LEVEL OUTDOOR DECK 1416 CONCRETE FOOTING RIGID INSULATION INTERIOR FLOOR SLAB EXTERIOR SLAB TINTED REFLECTIVE GLASS HORIZONTAL MULLION CURTAIN WALL STEEL COLUMN CURTAIN WALL HORIZONTAL MULLION STEEL COLUMN FLOOR SLAB STEEL COLUMN HVAC DUCT DRYWALL METAL PANEL STEEL BEAM STEEL BEAM METAL PANEL FLASHING ROOF MEMBRANE DRYWALL BRICK WALL AIR GAP RIGID INSULATION SHEATHING STEEL CHANNEL INSULATED METAL PANEL WALL SYSTEM RIGID INSULATION INSULATED METAL PANEL FLASHING RIGID INSULATION STEEL BEAM ROOF MEMBRANE METAL SOFFIT GYPSUM BOARD lifespan but also the region’s. Physical tectonic factors are specifically designed to fit flexible working spaces that can also transform to any program necessary at the time. For example, one of the key drivers of the design remains in the disappearing black box theatre and folding curtain SF OF SITE 85,000 SF OF BUILDING FOOTPRINT 33,956 SF OF GREEN SPACE 40,208 SF OF BUILDING 61,744 SF OF ELEVATIONS & ROOF 82,430 SF OF BUILDING WALLS 37,621 SF OF GLAZING 16,067 BUILDING FOOTPRINT TO SITE 40% GREEN SPACE TO SITE 47% ELEVATION TO ENCLOSED VOLUME 2% GLASS IN BUILDING FACADE 41% SOLID IN BUILDING FACADE 59% WALL SECTION EXTERIOR PERSPECTIVE NORTH ELEVATION 2ND LEVEL OUTDOOR DECK ONLOOKING SITE & STACKS NORTH ELEVATION WEST ELEVATION 2ND LEVEL OUTDOOR DECK ONLOOKING SITE & STACKS 3RD LEVEL OUTDOOR DECK SOUTH-EAST SECTION PERSPECTIVE DISAPP ARING B ACK B OX FOLDING CURTAIN WALL TECTONICS PROTECTIVE ROOF SLANTED ROOF S ACKING VOLUMES PROGRAM TERTIARY SE CON DARY PRIMARY FORM PROGRAM CONCRETE FOOTING RIGID INSULATION INTERIOR FLOOR SLAB EXTERIOR SLAB TINTED REFLECTIVE GLASS HORIZONTAL MULLION CURTAIN WA L STEEL COLUMN CURTAIN WALL HORIZONTAL MULLION STEEL COLUMN FLOOR SLAB STEEL COLUMN HVAC DUCT DRYWALL METAL PANEL STEEL BEAM STEEL BEAM METALPANEL FLASHING ROOF MEMBRANE DRYWALL BRICK WALL AIR GAP RIGID INSULATION SHEATHING STEEL CHANNEL INSULATED METAL PANEL WALL SYSTEM RIGID INSULATION INSULATED METAL PANEL FLASHING RIGID INSULAT ON STEEL BEAM ROO MEMBRANE METAL SOFFIT GYPSUM BOARD BIO WALES OUTDOOR DEC KS G ASS FRIT SKYLIGHT & SO AR PANELS SUSTAINABILITY METAL CLADDING STEEL STRUCTURE BRICK FACADE MATERIALITY DETAILED WALL SECTION FLOOR PLANS
CIRCULATION VIEW ACCESS
SHARP
FORMENCLOSED VS EXPOSED SUN PATHSTRUCTUREPROGRAM
SEEMA BAKRI bakriseema0@gmail.com THANK YOU

Turn static files into dynamic content formats.

Create a flipbook