Skip to main content

Architecture Portfolio 2024

Page 1


About Skills WorkExperience

Saya Kanazawa

7 | April | 1999

Based in Sendai, Japan

Bachelor

Ibaraki University

Department of Urban and Civil Engineering, College of Engineering 2019 ~ 2023

I did classical ballet for 13 years, from age 4 to 17. Now I enjoy watching ballet companies perform.

I often travel to see architecture and nature. I especially like to travel to remote islands.

AWARDS

06.2023 | TOP 26, JIA National Student Graduation Design Competition 2023

03.2023 | TOP 100, SENDAI DESIGN LEAGUE 2023

03.2023 | TOP 100, AKARENGA Diploma Collection 2023

08.2022 | 1st Prize, Graduation Design Competition in Ibaraki Univercity

09.2021 | TOP 100, Architecture Festival 2021~Rookie Selection~

I love taking pictures and always bring my camera when I travel. Recently, I have been enthusiastic about film cameras, and I use a Nikon FM10.

Illustrator
Archicad
Photoshop InDesign
AutoCAD
V-Ray Rhino 7 Microsoft
11.2023~ | NIKKEN SEKKEI, Part-time worker

Activities

2020

12.2020~03.2021

DIY town benches

I designed and also DIY benches for people of all ages to stay on the streets of Hitachi City, where Ibaraki University is located.

12.2022

DIY flower bed creation at a alternative school

We visited students attending an alternative school and created flower beds with them.

2022 2024

03.2024

Workshop on basic concept for Satte City Hall

We collaborated with an architectural design firm on the basic concept for the Satte City Hall, and facilitated a citizens’ workshop.

04.2021~ Children’s cafeteria

A children’s cafeteria is held once a week on the second floor of a restaurant

03.2021~03.2022

Campsite cottage renovation

We renovated the interior of a cottage at a campsite and made furniture. We students planned and completed the design, estimate calculation, material purchase, and construction.

06.2023~10.2023

Exhibition planning at Art Tower Mito

We planned an exhibition of the project we researched and designed, and exhibited it at Art Tower Mito.

10.2023~04.2024

Design project for childcare support facility

We designed a facility for a childcare support center organized by a non-profit organization

Rain House Manufacturing town nurtured by the “Dry wind in Joushu”

on the hill

House with rationality and lyricism

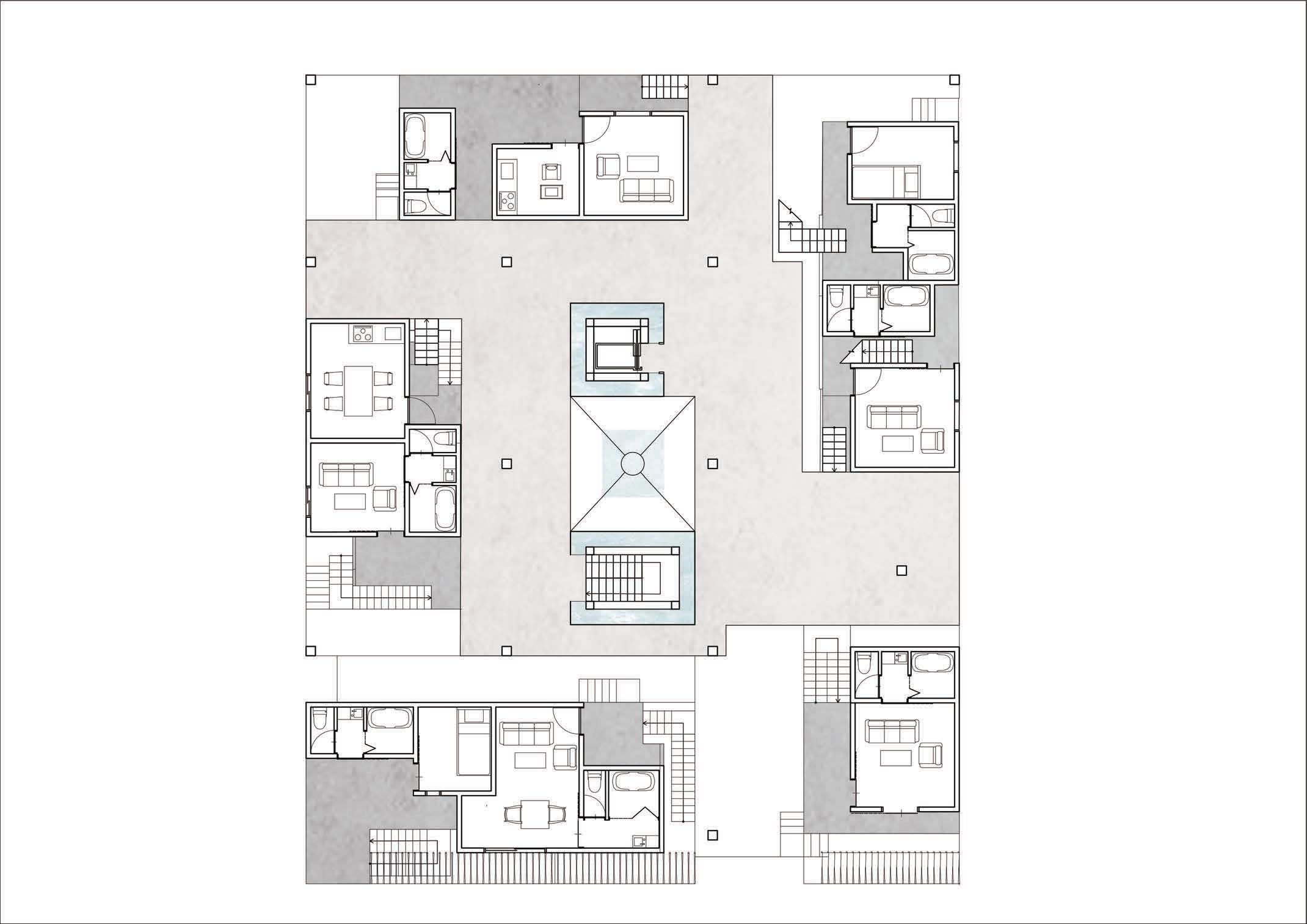
01 Rain House

Bachelor Diploma Project Ibarakai University

- 1st Prize, Bachelor Diploma Project Ibarakai University

- TOP 26, JIA National Student Graduation Design Competition 2023

- TOP 100, SENDAI DESIGN LEAGUE 2023

- TOP 100, AKARENGA Diploma Collection 2023

Architecture, which has played the role of sheltering people from wind and rain in their daily lives, is composed of roof shapes, gutters, and eaves that keep the rain away. However, rain is an indispensable blessing for human life. Just as light, wind, and other natural elements work well with architecture to create a comfortable lifestyle, why not incorporate rain into human life? We envision a new value of rain, aiming to create a lifestyle in which we can look forward to rainy days.

1 stepping-stone square
grand stair square 4 rain curtain
6 Rain Tank Square 5 Rainwater core stairs

Sumida-ku has long suffered from frequent urban flooding caused by the Sumida River and other factors. Since the 1980s, Sumida has been actively introducing rainwater harvesting as part of its efforts to prevent flooding and make effective use of water resources. However, most of the rainwater harvesting systems in Sumida collect rainwater underground and use it for domestic purposes. Rainwater is the only water resource on earth that is in physical contact with architecture, and I thought that by focusing on its movement and form and incorporating it into architecture, it could be used to enrich people’ s lives.

Sumida-ku has a rainwater harvesting system called “Roji-son. The system collects rainwater that falls on the roofs of neighboring houses and stores it in an underground tank. The stored rainwater is used by the community for watering plants and flowers, for children’s playgrounds, and as a source of water in times of disaster.

Around 1990, Sumida-ku frequently suffered from “urban flooding. The Kuramae Kokugikan, located in Taito-ku at the time, was to be moved to Sumida Ward, and Sumida Ward introduced rainwater harvesting to the building, which was rare at the time.

Sumida river
Tokyo Sky Tree
Ara river
Nishiki-cho station

■ Creates the form of rain

First, I organize the five characteristics of rain movement and the five main components of architecture. Next, by considering a matrix that multiplies them, it was possible to extract 20 rain shapes.

Six elements that rain affect spaceand their application to daily life

Based on the 20 forms obtained from the rain form matrix, I extracted six elements that affect space and organized the effects they have on people’s lives.

1.fall×floor

2.fall×wall

3.fall×roof

4.fall×stairs

5.flow down×floor

6.flow down×wall

7.flow down×roof

8.flow down×gutter

9.flow down×stairs

10.flow×floor

11.flow×roof

12.flow×gutter

13.flow×stairs

14.collected×floor

15.collected×roof

16.collected×stairs

17.evaporate×floor

18.evaporate×wall

19.evaporate×roof

20.evaporate×stairs

Ⅰ.sound

Ⅱ.reflection

sound insulation bright spaces

Ⅲ.cooling

Ⅳ.dividing

Ⅴ.limit

Ⅵ.linking

The value of rain as applied to human life

sound insulation

bright spaces

cool spaces

change in visual field

change of territory

cool spaces change in visual field change of territory

Roof to collect rain

The roof, with a maximum building coverage of 80%, efficiently collects rainfall on the site.

Main stream of rain ⇄ Common area flow lines and structural core

Steel construction

The roof catches the rain that falls on the site, and the rain flows around the main flow lines in the common areas.

Rain Flow Core

The two cores, one in the central stairwell and the other in the elevator room, serve as the main flow paths for the collected rain. The main flow of rainwater diverts to the residential units on each floor and to the rain space.

Reservoir to store water

Rain that has flowed through each residential unit and rain space is collected and filtered in the reservoir on the first floor. The filtered rain becomes domestic water in the housing complex.

Tributaries of rain ⇄ Residential area

Walled reinforced concrete construction

The interior of the residence, the main living space, is enclosed by reinforced concrete walls to protect it from heavy rain. The rain flow that branches off from the main flow and slows down flows through the corridors of the residence (semi-outdoor space) and forms rain curtains.

Dwelling unit form where rain and human flow lines are integrated

Decompose nLDK into room units. A rain path passes through the corridor in the

and

Rain curtain terrace

Architectural Institute of Japan Kanto Branch 24th Proposal Competition

Objective

Propose an architecture that will become a bustling center of activity on the south side of Isesaki Station in Gunma Prefecture, which has been hollowed out, while taking advantage of the potential of Isesaki City and its vacant lots.

The “Dry wind in Joushu”, which blows down from Mt. Akagi in the north, brought the drying culture to Isesaki, and manufacturing based on the drying culture is still actively practiced today. By taking advantage of the natural blessings brought by this wind and finding a new correlation between “streets, buildings, and open space,” the project aims to create a place for the community and a favorable townscape in a manufacturing town.

02 Manufacturing

town nurtured by the “Dry wind in Joushu”

Symbol Road Sites and Issues

The land readjustment project in the JR Isesaki Station area will create a symbol road extending from the station to the downtown area to the south. The land along the road has been converted and is expected to lead to attractive urban functions and residences in the future, but at this point, there are many vacant lots, and no concrete business operator has yet been decided. In addition, a district plan has been established to promote the formation of a good townscape.

Survey

There is an elementary school in the neighborhood, and Symbol Road is used by many children as a path to and from school. However, there are no places for children to play or rest along the street.

Along Symbol Road, there are many vacant lots that are not being utilized, and buildings are scattered throughout the area, making it difficult to call it a good townscape.

JR Isesaki Station

The “Dry wind in Joushu” wind blows down from Mt. Akagi, which is located directly north of Isesaki. Mt. Akagi, located just north of Isesaki, is a cold, dry wind that affects the lives of local residents. On the other hands, the wind also gave birth to a culture of drying, and even today, many local industries based on the drying culture are still in existence in Isesaki.

“Daruma” are known as lucky charms to pray for success and to make wishes come true.

After “Daruma” are painted, they are laid out in a well-ventilated place to dry the paint.

Isesaki area has a history of prosperity as a sericultural area and has been known as a production site of “Isesaki Meisen” since a silk weaving company was established in 1880.

After Isesaki Meisen is dyed with dyestuffs, it is hung to dry in the shade with good ventilation.

Many of the bamboo arrows used in “Kyudo” are produced in Isesaki, and their production is entirely by hand, testing the skill of the craftsmen.

Before production, the collected wet bamboo is laid out in a shady, wellventilated area to dry.

Isesaki is a popular place for growing gourds, and painted ornaments are made from dried gourds.

The inside of the gourd is taken out, soaked in water for a few days to clean it, and then hung to dry in the sun with good ventilation.

Think

The proposal is to create a new correlation between streets, buildings, and open space by making the most of the climate characteristic of a dry wind, and to create a place for the community and a good townscape through “Isesaki, a town of craftsmanship”. In this proposal, “Bamboo Arrows Atelier,” “Daruma Atelier,” “Meisen Remake Atelier,” and “Gourd Painting Atelier” were planned for four blocks along Symbol Road as case studies.

Correlation diagram of “Street - Building - Vacant lot” by Dry wind

1. Locate a open space at the back of the town block to attract ateliers on the street side.

2. Create a place to dry crafts under the eaves on the street side.

Creating a place for the community

4. The correlation of “streetbuilding - open space” will spread along the symbol road, creating a place to stay and a sense of circulation.

Dwelling open to open spacespace.

3. Provide a through traffic line in the atelier, leading to an outdoor space surrounded by houses and mitigating the influence of wind. Increase street density

Create an intermediate area of stay

students playing games

remake hands-on class

The open space at the back of the town block serves as a place for the atelier to experience craftsmanship, a courtyard for the surrounding dwellings, an after-school place for children, and a gathering place for local residents. On holidays and special occasions such as the “Isesaki Festival”, the atelier becomes a gallery and sales venue.

After-school soccer

Walking with “Pochi”

Holiday picnic

Elementary school students on their way home from school

Taking a break in the sunroom

High school students on their way home from school

Lunch time

Eating “manju” outside

Children’s hands-on class of “Meisen” remake

Craftsman
Meisen Remake Atelier
“Meisen”

Diagram

Historical Background of the Planned Site to open place

In the Edo period (1603-1867), the area centering on Kita Elementary School was the site of a camp and played a central role in the administration of the town as a samurai town. Today, the “Samurai Gate” and “Nio Gate” stand on the Samurai Gate Street next to Symbol Road.

Like a gate

The atelier acts as a gate that leads people into the open space. For this purpose, I referred to the form of the “nagaya-mon” gate found in samurai towns.

”Dry”

Behavior x Roof Framing

The roof framing corresponds to the “drying” style of each craft, and the scenery of each drying is expressed on the street.

Isometric

Extend the rafters and prop the bamboo

Expose the roof truss and place shelves

Bamboo Arrows Atelier
Daruma Atelier
Gourd Painting Atelier
Purlin is made to protrude to create a hanging area

Inamochi Lab×NPO “TADAIMA” Project Childcare Support Center (Ongoing...)

Objective

We are designing a childcare support center to be operated by the representative director of the NPO “TADAIMA” on the premises of a temple. Currently, we have completed the basic design with three members of our laboratory, and are now in the process of designing the implementation.

“Grando”
伽藍堂 on the hill ~A third place for children~

This design is for the construction of an activity base for a non-profit organization that operates a childcare support program at a temple. The site faces a temple hall with a distinctive large roof that soars above the farmland on a river terrace, and is surrounded by many ancient tombs and ruins along the intricate cliffs and slopes.

In response to the activities of a modern village with such history etched into it, we conceived of like a temple hall “Garando” that is layered with a collection of places that reflect specific activities and a generous large space as the surplus of these places. Specifically, the lower floor is a hill-like place where various activities coexist, with the central staircase surrounded by various rooms divided in plan and section, a shed, and external spaces, while the upper floor is a large roofed one-room composed of a hut structure that also serves as a base for play and learning.

We would like to depict a new landscape of the community as a large place for small children, with the “Garando on the Hill” consisting of a foundation of ground and furniture set up in reference to ancient topography and ruins, and a large roof that echoes the buildings on the temple grounds and surrounding farmhouses.

The client NPO TADAIMA began its activities at Shoanji Temple in Hitachinaka City, Ibaraki Prefecture, after holding a child-rearing support café as a hangout for mothers who tended to be lonely at home after the Great East Japan Earthquake. In response to the needs of the community, the organization now operates six projects. The support network is growing day by day. In response to the expansion of its scale, the organization was incorporated and became a corporation and in February 2022, the NPO TADAIMA was established. This project will serve as a base for the community circle that will expand from the temple.

Nakanehakkei・Miyataki’s harearashi
Tomb of the Fukushima clan
Ruins of Nakane Castle
Nhight rain in Nakanehakkei・Shitibetaki
Nakane Elementary School Elementary school district
Rice Paddy field
Nakane Elementary School
Preschool Rice Paddy field
Temple hall
Torazuka Tomb Jyugoro-anaouketu Tomb

Free School “Furatto.”

Hours: Every Monday, Thursday, Friday 9:30~14:30

Children who have not been attending school can rest their minds and be themselves

Once a month, Flatto holds a parent-child tea party

A Place for Child-Raising Exchanges Child Rearing Café

Hours: Every 4th Tuesday of the month 10:30~14:00

A place for mothers raising children to make friends and exchange information.

We help mothers make friends and exchange information.

Delicious meals are provided for children who come with their parents.

A Place for Young People "The High Teen Gathering"

Hours: Held irregularly

Young people in high school and college age gather together and BBQ with adults.

The schedule and contents are posted on SNS.

Building relationships where people can talk about their problems and worries

Build a relationship where you can talk about your problems and worries without being alone.

Regional Cafeterias ”TADAIMA SHOKUDOU”

Hours: 12:00~12:30 on the 3rd Sunday of every month

Once a month, 150 people are served free of charge with curry

As a café and lunch spot for local people Open weekdays 11:00~14:30

Food Pantry "TeToTe”

hours: 1st Friday of every month 9:00~12:00,15:00~18:00

3rd Sunday of every month 12:00~18:00

Reduction of food loss and temporary food assistance

For tax-exempt households, single-parent households, and those in need of food Cooperation with local farmers' donations and food banks

Management of Children's Place "Terakoya"

Hours: Every Wednesday 16:00~19:00

One of the “after-school mintama” promoted by the city

Supporting “learning,” “play,” and “food” for 5th and 6th graders at the nearest Nakane Elementary School

The structure supporting the large roof (about 85 ㎡) was designed to resemble a jungle gym, with hanging blackboards and sandbags to provide a space for children to learn and play.

All the extra space is used as a place for children to play and learn, and it is a large connected room with circulation around the staircase room.

Roof that responds to the landscape

The staircase in the center of the first floor is the core, and the various rooms are arranged around it.

By making the foundations unevenly shaped, the raised foundations serve as furniture, hand washing stations, and stair landings, providing infrastructure that supports not only the building but also the foundation of life.

2ndfloorplanS=1:100 N

1stfloorplanS=1:100 N

SHINKENCHIKU RESIDENTIAL DESIGN COMPETITION 2023

“NEW SUMMER COMFORT”- Judge : Bruther

Objective

While summer offers all kinds of possibilities, the season of summer is also a concern.Architecture must help provide a harmonious atmosphere, keeping in mind that facilities consume a lot of energy. How can we take climate change into account while maintaining building comfort? Architecture needs to rediscover its obligation to adapt. What can we ask of architecture in this era to help everyone rediscover the wonderful pleasures of summer while remaining conscious of environmental issues?

Summer has long been considered the season to enjoy the heat, but in recent years our bodies have become less and less able to withstand it.“Makuranosoushi”, a classic of Japanese literature, says that summer is best at night.In this classic, the author describes various scenes that appeal to people’s emotions, such as the darkness of the night, the moon, and the rain.Moreover, fireflies are mentioned. Fireflies hide themselves behind leaves and in bushes during the day, but at night they fly about in the air, glowing.Following the story of “Makuranosoushi” and fireflies, I thought that what if we should hide ourselves in our controllable homes during the day and venture out into the outside world littered with uncontrollable elements at night.Unlike in ancient times, when light could be artificially produced, today’s nights are colored by moonlight and artificial light. Smartphones will be part of those lights.Outside equipment that comes out to make indoor spaces comfortable is also an important factor, and equipment systems exposed outside affect the behavior of people, non-human animals, and insects.Thus we thought we could gain new summer comfort by avoiding the extremely hot summer days and throwing ourselves into the emotionally charged summer nights.

House with rationality and lyricism

夏は夜。

蛍の多く

月のころはさらなり。

Think

Summer is harsh, and the glaring sun, humid air, and sweaty limbs get in the way of my assignments. It’s hard to concentrate. I may have to stay up latetonight to finish. But why, in contrast to the noisy daytime atmosphere, is my heart pounding at night? A cool atmosphere, my own private atmosphere.The insects are dancing, the leaves are rustling in the night breeze, and the facilities are solemnly bringing us comfort. The moon continues to shine on us

Summer is good at night, when the moon is bright, needless to say.

It is also nice when there is moon in the dark, and many fireflies are flying wildly.

It is also quaint to see only one or two fireflies flying about, growing faintly.

It is also quiant when it is raining.

Diagram

Controllable

・Air-conditioning ・Ventilation duct ・Water supply

・Solar panel

Comfort is caused by the superposition of dense nodes

Network

・Weather

Uncontrollable

・Phone(Light)

・Moonlight ・Animals etc. etc.

・Moonlight

COMFORTABLE

Science (equipment) and religion (nature) in tune Antinomy of discomfort and comfort

Today, we can supply our own light. The facilities that seem so cluttered are lovely just now.

One notices the summer night’s charms, which surface out of the night.

It’s a little hot and humid, but the night breeze and the air from the basement is pleasant.

Summer nights are wonderful, and all the hustle and bustle of the daytime is forgotten.

It’s raining today, the drains are clogged and the frogs have taken up residence.

Cicadas hatch in no-man’s-land. This memory is a treasure for me.

Ⅰ Graduation thesis

ⅡWorkshop at Art Tower Mito

Ⅰ Graduation thesis

― The townscape of ‘‘Kasama Pottery Walkway’’ viewed from the divisional composition of the pottery shop’s building front

Kasama City, Ibaraki Prefecture, and Mashiko Town, Tochigi Prefecture, have long been in the same cultural sphere, and have been actively engaged in mutual exchange. In order to hand down and sustain the culture passed down from generation to generation, it is necessary not only to maintain the local community, but also to collaborate with the tourism industry by disseminating information and improving the environment, and it is important to understand and maintain the unique characteristics of the building front appearance.

In Kasama City, three streets have been designated as “Kasama Pottery Walkway” in the city center, where pottery stores are scattered in residential areas and bustle with daily activity. These stores have a variety of exterior spaces within their premises, where pottery or production tools are placed, creating a townscape with a mixture of shops and residences.

The purpose of this study is to clarify a part of the townscape of “Kasama Pottery Walkway” by examining the composition of the site and the divisional composition of the building front appearance, using the pottery stores along the “Kasama Pottery Walkway”.

Analysis Example

First, a divided site is defined as the street-side elevation of the subject site divided by the width of the building. Next, as shown in the figure below, the combination of the plan configuration of the divided site and the elevation elements of the building are used to capture the building front’s pattern, and the combination and arrangement of the patterns are used to capture the building front of each site.

CONCLUSIONS.

First, it was clarified that the information can be organized and the building front can be captured by examining the divisional composition of the site, because the settlement by the local industry tends to have several buildings and external spaces in one site.

Next, in the Kasama Pottery Walkway, by examining the arrangement and combination of divided sites, it was clarified that the coexistence of life and occupation is apparent in the building front, and that the layered building front is created by layering various elements in the exterior space facing the street. This is what characterizes the townscape of the Kasama Pottery Walkway.

Pattern Features

平面構成:建物のみ 人流要素:滞留要素 大開口あり 2

平面構成:建物のみ 人流要素:遮蔽要素 大開口あり 3

7

6

5

10

9

8

平面構成:建物のみ 人流要素:遮蔽要素

平面構成:建物のみ 4

平面構成:建物+空地 人流要素:滞留要素 大開口あり

平面構成:建物+空地 人流要素:滞留要素      遮蔽要素 大開口あり

平面構成:建物+空地 大開口あり

平面構成:建物+空地 人流要素:遮蔽要素 大開口あり

平面構成:建物+空地 人流要素:滞留要素

平面構成:建物+空地

人流要素:滞留要素

遮蔽要素 11

平面構成:建物+空地 12

平面構成:建物+空地 人流要素:遮蔽要素 13

平面構成:空地のみ 人流要素:滞留要素 14

平面構成:空地のみ 人流要素:滞留要素

遮蔽要素 15

平面構成:空地のみ 16

平面構成:空地のみ 人流要素:遮蔽要素

Elevation

ⅡWorkshop at Art Tower Mito

The number of parking lots in the central city area of Mito, Ibaraki Prefecture, is increasing every year. We tend to view this situation negatively, but as we researched these parking lots one by one, we found that there are parking lots with various interesting characteristics.

This exhibition is designed to give participants an opportunity to think about parking in a new way by categorizing the interesting parking spaces found through fieldwork into several categories and presenting them in an axonometric drawing. After conducting research, each group proposed and designed new ways of how parking spaces could be used, and models and drawings of these proposals and designs were also exhibited.

linked below

https://www.arttowermito.or.jp/gallery/lineup/article_5265.html

▲Proposal for new parking lot usage
▲Original T-shirts
▲Creating a Newspaper

How to read the catalog

Categories of parking lots

By comparing the spatial characteristics of all 15 types of parking lots, we found four levels that characterize parking lots in Mito: “size characteristics,” “shape characteristics,” “relationship with the boundary,” and “relationship with the building”.

We also found two more characteristics: “manifestation of history” and “manifestation of the surrounding environment”

Operating Method/Pavement = Monthly/asphalt parking spaces = 8 spaces

Surroundings = Mixture of residential and commercial Planning to make maximum use of the limited opening / Driving skill of users who park their cars here on a daily basis must be improved because of the high degree of difficulty

Operation method/pavement = Monthly/asphalt Parking spaces = 7 spaces

Surroundings = Mixture of residential and commercial

The previously hidden elevation of the building is now visible / The unadorned arrangement of the plumbing and windows is rather cool One-waytraffic

Half-underground on a site andithasadifferenceinelevation

Komon-san Street

Method of operation/ pavement = hourly (19 spaces) + monthly (6 spaces) / asphalt

Parking spaces = 25 spaces

Surroundings = Commercial (downtown)

Parking lot bordering residential yards/Parking lot extending into the city, giving the appearance of site expansion

of operation /pavement = Hourly

spaces = 52

Surroundings = Commercial (downtown) U-shape formed by several strips of land / Distorted shapes created through transition / Can be seen when the former site of something is turned into a parking lot

Surroundings = Mixture

The previous flagpole parking and the coin-operated parking entering

Surroundings = Cultural facilities

There is no fence on the boundary between the street and the parking lot, and it looks as if the street has been widened / The sidewalk appears to have been extended.

Turn static files into dynamic content formats.

Create a flipbook