Undergraduate Architecture Portfolio | Sariya Khan |2022

Page 1

SELECTED WORKS | 2019-2022

ARCHITECTURE PORTFOLIO Undergraduate SARIYA
Point | Line | Plane | Form | Space
KHAN

EDUCATION

Architecture has redefined my lens through distinct perspectives. I believe that architecture is about creating spaces for all, that help to weave together the built and unbuilt environment where the tangible and the intangible meet.

I consider myself curious and eager to learn new things by collaborating, contributing, and giving my best in whatever I do. +91

sariyaak2480@gmail.com

https://www.linkedin.com/in/sariya-khan-560a7023b

MUMBAI | INDIA

COMPETITIONS & CONFERENCES

Louis .I. Kahn 2020-2021 Juror’s Choice

Louis .I. Kahn 2021-2022 Annual Nasa Design Competition

Rotary Youth Leadership Awards

International Conference on Architecture and People 2019

2
9372439044
LANGUAGES English Hindi Marathi SARIYA KHAN
2019- Present 2016-2018 2016 Rizvi College of Architecture,Mumbai (Mumbai University) BARCH - Fourth Year (Pursuing) Bhartiya Vidya Bhavans College,Andheri Mumbai -
SKILLS
PCMB -(H.S.C) St Rock’s High School Mumbai -(S.S.C)
Model Making
Hand Drafting
Sketching
Documentation
Analysis
Research
&INTERESTS
&
HOBBIES
Photography
Crafting
Macrame Art
Graphic Design
Writing
SOFTWARE SKILLS Auto Cad 2D Sketchup Autodesk Revit Adode Photoshop Adode Indesign Twin Motion Microsoft Office
• Travelling •
CONTACT
2021-2022
2021 NASA NASA NASA RYLA
APIC
3 36-37 37 39-43 44-45 CONTENTS ENVIRONMENTAL CENTRE | Sem 05 INVISIBLE CITIES | Sem 03 INTERIOR DESIGN | Sem 03 WORKING DRAWING | Sem 06 LIK NASA Documentation |2020 & 2021 ANDC 2020 Competition|N.A.S.A RYLA | Competition SASSOON DOCK Documentation |Sem 06 SKILLS & INTERESTS URBAN HOUSING | Sem 07 Zainul Biviji Wasim Noori Fatema Master Tania Shah Darshan Phalak MENTORS PROJECTS 5-10 11-16 17-22 23-25 27-30 31-35 PG.NO.
4

URBAN HOUSING PROPOSED DEVELOPMENT OF RESIDENTIAL MIX AT KHARGHAR NODE IN NAVI MUMBAI

The aim of the project was to design mixed used residential housing which suffices the current demand for housing that provides flexibility for adapting to work from Home,spatial distancing and provide green open spaces to live in. It is to provide efficient design which adapts to the changes with respect to people needs while at the same time keeping in mind the climate,social and economic fabric of the region.

5
SEM 7 | ARCHITECTURAL DESIGN

INTRODUCTION:

CONCEPT:

• FORM | HORIZONTALITY:

AREA :1,80,000SQM

The site is a vacant plot in kharghar earmarked for commercial development. It is accessible from roads on two sides of which one side overlooks the Central Park, a well developed recreational city park in the Navi Mumbai.

The aim of the project was to design mixed used residential housing which suffices the current demand for housing that provides flexibility for adapting to work from Home,spatial distancing and provide green open spaces to live in. It is to provide efficient design which adapts to the changes with respect to people needs while at the same time keeping in mind the climate,social and economic fabric of the region.

DESIGN APPROACH:

BINDING TOGETHER THE USERS THROUGH OPEN SPACES

• SOCIAL GATHERING SPACES

• CULTURAL ACTIVITY SPACES

• MARKETS (A meeting point for different communities+Different people of varied age groups )

• FORM | VERTICALITY:

PROVIDING GATHERING SPACES

PROVIDING VERTICAL PUNCTURES

A SPACE THAT IS ACCESSIBLE TO :

SHADOW ANALYSIS OF SITE:

CLUSTER PLANS:

•OLD •CHILDRENS •SPECIALLY ABLED

• PROGRAMME DERIVED:(SELF APPROACH)

DAILY CYCLE (Activities of a Person)

• EAT

• WORK

• REST

• ENTERTAINMENT

• SLEEP

— A place where people can eat

— A place where people work

— A place where people feel at rest

— A place where peple like to socialize

— A place where ones live (Home)

6
Maharashtra Mumbai NaviMumbai Kharghar
TYPICAL MASS BLOCK TYPICAL PLACEMENT OF THE BUILDINGS CLUSTER FORMATION STAGGERING TO ACHIEVE VIEWS AND VENTILATION 1. 2. 3. 4. 1. 2. SHADOW AT 8:30 AM SHADOW AT 12PM SHADOW AT 3PM
1BHK Parking Amenities A
SITE MASSING :

Programme :

1. Bungalow cluster

2. Row House cluster

3. Studio Apartment Cluster

4. 1 BHK Apartment Cluster

5. 2BHK Apartment Cluster

6. Central Garden

7. Substations

8. Waste Composting Plant

9. Community Center

10. Shops

11. Market

12. School

7
5. 6. 3. 9.
4. 11. 1. 10. 10. 10. 7. 8. 12.
Playground 11. 11. Community garden 9.
Playground CLUSTER PLAN Playground Garden shops +0.3m +0.3m +0.6m +0.m A’ SECTION
1. 2.
4.
7.
SITE MASTER PLAN
THROUGH A-A’

1 BHK UNIT PLANS:

CORNER WINDOW DETAIL :

Shear wall

Window frame

Glazing

Shutter

MATERIALS USED:

G.R.C LOUVER BANDS PERFORATED PAVERS

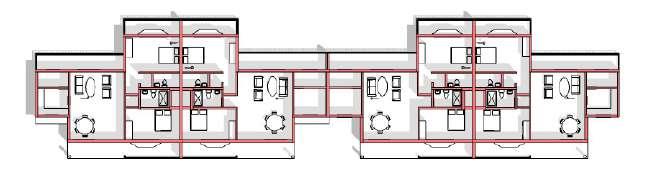
STUDIO CLUSTER PLAN

8 STILT LEVEL PLAN TYPICAL FLOOR PLAN TERRACE PLAN SCALE:1:100 TYPICAL FLOOR PLAN STILT LEVEL PLAN Playground Amenities Garden +0.3m +0.6m library +0.6m +0.3m +0.0m +23m +29.5m Community
TYPICAL PLAN
3D VIEW OF THE FLOOR PLATE POROUS BLOCK PAVERS Top Soil seeded as per species Precast open block Pavers Sand bed for Top Soil Compacted top soil
9 SCALE:1:100 TERRACE PLAN
Community gathering space Cafes ELEVATION OF 1 BHK APARTMENT BUNGALOW CLUSTER PLAN Garden +0.3m INDIVIDUAL UNIT PLAN SCALE:1:100
3D VIEW OF THE FLOOR PLATE 3D VIEW OF THE ROW HOUSE 3D VIEW OFCOMMUNITY GATHERING SPACE 3D VIEW OF BUNGALOW
PLAN OF
SCALE:1:100 DETAIL OF IN BUILT PLANTER Garden +0.3m +0.6m Central open space +0.3m +0.3m Community Hall PLANT RCC PLANTER GROOVE SOIL BED WATER DRAIN
PLAN OF ROW HOUSE CLUSTER
ROW HOUSE
10 AXONOMETRIC VIEW OF THE FLOOR PLATE
OF THE MARKET PLAN ON 2ND ALTERNATE FLOOR Seatings Shops wheelchair accessible ramp Seatings STILT LEVEL PLAN TERRACE PLAN Amenities Garden Market Garden Shops PLAY AREA
2BHK CLUSTER PLAN VERTICAL PUNCTURES TYPICAL FLOOR PLAN MARKET AREA AMPHITHEATRE PARKING +0.6m -0.6m +23m +29.5m +41.6m TYPICAL FLOOR PLAN PLAN ON REFUGEE FLOOR
VIEW
S+7 2BHK S+12 2BHK

ENVIRONMENTAL CENTRE (HUB FOR COMMUNITY & ENVIRONMENTAL AWARENESS)

The purpose of the project was to provide a visitors center alongside the wetland area in Navi Mumbai.This will be a place where people will be away from the hassle free environment where they will feel more connected to nature. This visitors center will itself speak for the environmental awareness, sustainability and community bonding.

“look deep into the nature and you will understand everything better”

11
SEM 5 | ARCHITECTURAL DESIGN

The purpose of the project is to provide a visitors center alongside the wetland area. This will be a place where people will be away from the hassle free environment where they will be more connected to nature .The center which will itself speak for environmental awareness ,sustainability and community bonding.

Separation of block with respect to their function

Insertion of softscape within the hardscape (Built form)

Site=9000sqm

To Bridge Connection Between:

Variety of age groups of people from residential, educational sector, karave village area.

Appropriate openings to ensure cross ventilation Over concretization should be avoided to allow water percolation Building materials used should not be affected by humidity.

The site receives wind prominently from west direction Due to high humidity, proper ventilation system should be provided. More openings should be provided on the north and east side.

Soil: Clay (fertile & high water retention capacity)

Permeable paver blocks : Space between the bricks allows grass to grow and help rainwater to seep into the ground.

12
Mass block
FORM DERIVATION:
Maharashtra Navi Mumbai
features Site Service Road Main road Manmade features
Natural

KEY IDEA:

The proposed structure will act as a buffer space ,a place where natural and man-made structures co-exists in balance,whole yet apart from each other in harmony.

Double Height Spaces

Visual Connectivity

Semi-open and Open Spaces

13
Use of sloping roof
Circulation Axis Use of Courtyard Use of different levels
14 0M +0.6M +4.8M +8.5M +9M +10.1M 0M +0.6M +4.8M +8.8M Roof Top View View from entry Site Overall view First Floor Master Plan Roof Master Plan
15 0M +0.6M +4.8M +8.5M +9M 0M +0.6M +4.8M +8.5M +9M +10.1M 0M +0.6M +4.8M +8.5M +9M +10.1M 0M +0.6M +4.8M +8.5M +9M +10.1M North Elevation East Elevation South Elevation West Elevation East Elevation South Elevation West Elevation North Elevation
16

INVISIBLE CITIES

Invisible Cities is a novel by Italian writer Italo Calvino. The book explores imagination and the imaginable through the descriptions of cities by an explorer, Marco Polo as a conversation between the elderly and busy emperor Kublai Khan.Each city Described has it’s unique characteristics.

Fedora,is a gray stone metropolis,where stands a metal building(Fedoras Museum) with a crystal globe in every room. Looking into each globe, you see a blue city,the model of a different Fedora. In every age someone, looking at Fedora as it was,imagined a way of making it the ideal city, but while he constructed his miniature model, Fedora was already no longer the same as before, and what had been until yesterday a possible future became only a toy in a glass globe.

Based on the city we were given,we had to critically think,analyze and propose architectural design solutions that we thought was needed in the city for better functioning.Along with the given programme we had to design public spaces that carried the essence of the story given to us.

Design Programme :

1.Interpretation Centre (given)

2.Market (given)

3.Library ( Based on Story )

4.municipal Office ( Based on Story )

5.Central Plaza ( Based on Story )

17
SEM 03 | ARCHITECTURAL DESIGN
18 (2) INTERPRETATION CENTER 1.ENTRY 2.SOUVENIR SHOP 3.RECEPTION 4.WAITING AREA 5.SECURITY CABIN 6.ITEM DEPOSIT 7.TOILET 8.COURTYARD (3)LIBRARY 1.ENTRY 2.COMPUTER SECTION 3.READING AREA 4.BOOK SHELVES 5.TREADING SECTION 6.TOILET 7.RECEPTION 8.COURTYARD (1)MUNICIPAL OFFICE 1.RECEPTION 2.CANTEEN 3.WAITING AREA 4,5.WORK SPACE 6.TOILET 7.CONFERENCE ROOM (1)MUNICIPAL OFFICE (2)INTERPRETATION CENTRE (3)LIBRARY (4)OPEN CENTRAL PLAZA (5)MARKET (6)PUBLIC TOILET (7) MINARET (AS TRIANGULATION) (8)PLAY AREA SITE LOCATION: AMMAN JORDAN MASTER PLAN @ 1.5 M SITE PROGRAMME:
SECTION AT D-D’
19
Space for solar cells Top Mesh Polycarbonate Sheet Base plate made of recycled material
FIRST FLOOR MASTER PLAN @ 4.5 M
EXPLODED VIEW OF THE CANOPY SECTION AT E-E’
20 SITE OVERALL VIEW
VIEW OF THE CENTRAL PLAZA ROOF TOP VIEW OF ENTIRE SITE
21 LIBRARY
MUNICIPAL OFFICE
MARKET
INTERPRETATION CENTRE
AXONOMETRIC VIEW OF ENTIRE SITE

Display Unit Toilet Waiting Area

EXPLODED Elevator Elevator

VIEW

OF THE MARKET

VIEW Open Courtyard Display Unit

Open Courtyard Item Deposit Security Cabin

Window Boxing

Sliding Window

Window Frame SITE OVERVIEW

22
AXONOMETRIC
EXPLODED AXONOMETRIC VIEW OF INTERPRETATION CENTER OF BOXED WINDOW
SECTION AT F-F’

INTERIOR DESIGN OF 2BHK APARTMENT

The brief demanded to design a 2BHK Apartment for the client according to their requirements, profession and activities performed by the them.

Client’s Details:

Name-Priya Advani

Age-35 Year

Members-3people

Profession:Botanist, A Professor

Hobbies :Gardening, Exploring New Plant Species. Activities:-Teaching,On Field Work Professional,Botanist Gardening (Terranium Gardening) Hosting Workshops.

Requirements:

• Book shelves to keep all the books and documents of the plant species

• Space to keep all her tools of field work like a microscope,slides,all hand tools dissection kit, etc.

• A display unit for herbarium

• A space for terrarium gardening & workshop

• A space to keep all the plant species

• A study room for her child

• A office space for her husband

23
SEM 03 | INTERIOR DESIGN
24 SECTION AT A-A’
VIEW OF THE LIVING ROOM
COLOUR PALETTE
PLAN WITH FURNITURES VANITY COUNTER WITH STORAGE
INTERIOR DESIGN
Workshop & Display Area
Kitchen Office space Workshop & Plant Display Balcony
Balcony
25 Area
SECTION AT B-B’
PALETTE
CEILING PLAN
VIEW
OF THE BEDROOM MATERIAL
PLANTER DIVIDER ROOF
SECTION AT C-C’
Workshop area kid’s Bedroom Utility room Bedroom Bathroom Bedroom
SECTION AT D-D’ Area Living Room Passage
Recessed
Pendant
LEGEND:
Light
Light Chandelier Vanity Lights
26

DESIGN OF TWIN BUNGALOW

The Intent of the semester 05 and 06 for Architecture Representation and Detailing Drawing was to produce Working Drawings for a Twin Bungalow having site area of 320 sq.m with all the necessary ‘construction details’keeing in mind the setbacks, materials and techniques used in the construction process.

Project Type: Residential

Building Type: Twin Bungalow Site Area: 320 Sq.m

TWIN BUNGALOW

27
SEM 05 & 06 | WORKING DRAWING
RIZVI COLLEGE YEAR: 3RD YEAR EXAM SEAT No.5157 ROLL NO.: 1912 NAME: SARIYA. DWG No.: 04 COLLEGE STAMP LEGEND NOTES 1. THIS IS AN ACADEMIC 2. DRAWINGS SHOULD NOT 3. DATA'S ARE ASSUMED 4. R.C.C FRAMED STRUCTURE. 5. REFER SEPARATE NOTES DEPTH,THICKNESS,PROJECT FOR STRUCTURAL MEMBERS. 6. WALLS ARE 230 AND 150 RESPECTIVELY. 7. BRICKS TO BE LAID WITH 8. MORTARS SHOULD NOT THICKNESS. 9. FIRST COAT TO BE MADE PROOFING ADMIXTURES. 10. DRIP MOULD TO BE PROVIDED PROJECTIONS. 11. PLASTER THICKNESS 12 18 MM EXTERNALLY. 12. ALL DIMENSIONS ARE UNFINISHED FACE. 13. LEVELS ARE MENTION THE GROUND FLOOR 14. ARCHITECTURAL PROJECTIONS CHAJJA,CANOPIES TO LINE, EXCEPTION FOR 15. VOIDS TO BE MARKED 16. DRAWINGS TO BE CHECKED THE SITE ENGINEER BEFORE OF WORK. 17. ANY AMBIGUITY TO BE ARCHITECT WITH IMMEDIATE WRITING.
KEYPLAN SHEET: GROUND +750 +450 +750 +450 +450M +450 UP ENTRY SERVANTS ROOM GUEST ROOM TOILET+BATHROOM POWDER ROOM +750 TOILET LIVING ROOM DUCT COURTYARD 1 2 4 6 8 10 11 21 20 19 18 17 16 15 14 13 12 +150 PARKING 22R 20T STORE ROOM +750 KITCHEN +750 LOBBY +750 DINING +750 +750 ENTRANCE PORCH +750 3880x4000 3100x3000 2000x1425 2000x1425 1380x2880 2085x3000 3170x4520 4060x3280 6115x3605 4360x3280 4R 3T RISER=300 TREAD=150 3885X2000 +450 DUCT COURTYARD +150 PARKING +750 ENTRANCE PORCH +750 1380x2880 4360x3280 4R 3T 1 3 5 7 9 10 11 21 20 19 18 17 16 15 14 13 12 22R 20T RISER=300 TREAD=150 C1 F1 S1 W1 C1 F1 S1 W1 C1 F1 S1 W1 C1 F1 S1 W1 UP ENTRY C1 F2 S1 W2 C1 F2 S1 W2 C1 F4 S1 W4 C1 F3 S1 W2 C1 F3 S1 W2 C1 F1 S1 W1 C2 F5W4 200 SUNK FFL 200 SUNK C2 F5W4 C2 F5W4 C1 F3 S1 W3 C1 F2 S1 W2 D5 D4 D3 D2 D2 D1 D1 D4 W1 W1 W1 W2 W2 W3 W4 W4 W4 W4 W4 D5 W2 D4 W2 D2 D3 D1 D1 W1 W1 W1 D2 D4 C2 F5W4 C1 F3 S1 W2 +750 LIVING ROOM 6115x3605 C1 F2 S1 W2 C1 F1 S1 W1 W2 W4 D2 D2 200 SUNK FFL FFL FFL (230X450) W2 W3 FFL FFL FFL FFL FFL FFL FFL FFL FFL FFL FFL KITCHEN +750 3880x4000 C1 F4 S1 W4 FFL DINING +750 4060x3280 C1 F2 S1 W2 FFL STORE ROOM +750 3885X2000 FFL FFL LOBBY +750 C1 F2 S1 W2 FFL +750 GUEST ROOM 3170x4520 C1 F3 S1 W3 FFL +450 TOILET+BATHROOM 2085x3000 200 SUNK FFL +450M TOILET 2000x1425 C2 F5W4 200 SUNK FFL +450 POWDER ROOM 2000x1425 FFL 200 SUNK C2 F5W4 SERVANTS ROOM +750 3100x3000 C1 F3 S1 W2 FFL FFL RISER=300 TREAD=150 RISER=300 TREAD=150 C1 C2 C4 C3 C5 C7 C6 C14 C13 C15 C8 C9 C10 C11 C12 C16 C17 C20 C21 C22 C23 C24 C25 C28 C29 C30 C31 C32 C33 C34 C35 C36 C37 (230X450) (230X450) (230X450) (230X450) (230X450) (230X450) (230X450) (230X450) (230X450) (230X450) (230X450) (230X450) (230X450) (230X450) (230X450) (230X450) (230X450) (230X450) (450X230) (450X230) (450X230) (450X230) (450X230) (450X230) (450X230) (450X230) (450X230) (450X230) (450X230) (450X230) (450X230) (450X230) (450X230) C18 (300X230) C19 (300X230) C26 (300X230) C27 (300X230) 3100 2000 1385 300 300 300 300 300 300 300 300 300 300 1340 300 300 300 300 300 300 300 300 300 300 1340 230 735 1200 3780 810 3340 2000 1345 2000 3340 800 3780 1200 980 25565 1625 1190 230 2060 805 4725 2065 4425 145 770 2310 600 1730 26785 2085 2000 1385 2200 740 610 300 3770 2085 3885 935 275 1225 830 680 2000 425 2000 3910 450 475 2535 1050 300 1350 300 300 300 300 300 300 300 0 300 300 3000 300 300 300 300 300 300 300 300 300 300 3155 2075 1385 1385 850 1230 2000 2000 125 890 2085 1145 1200 740 4220 4075 755 265 915 1320 300 300 300 4360 1900 285 1215 825 690 2000 425 2000 1000 3820 300 230 1615 1000 1270 3875 3745 2330 2290 820 770 A B C D E F G H 2 3 4 5 6 7 8 9 10 A B C D E F G H K T S 10 9 8 7 6 5 4 3 2 START FACE X-AXIS X-AXIS END FACE X-AXIS END FACE (0,0) 1 1 J J K M N P Q R S U T L L M N P Q R S C1,C2,C3,C5,C6,C7 +225 C8,C9,C10,C12,C13,C14, +3955 C11 +4065 C17,C18,C19,C20, +7235 C15,C16,C21,C22 +7345 C23,C24,C29,C30 +10075 C25,C26,C27,C28 +10185 C31,C34,C37 +14805 C32,C33,C35,C36 +14915 C4 +115 FLOORING SCHEDULE WALLS SCHEDULE SRNO. TYPE DESCRIPTION REMARK SRNO TYPE DESCRIPTION REMARK F1 38MM THICK 1:3:5 SCREEDING,18 MM THICK 600X600MM NON SKID TILES WITH WHITE CEMENT GROUT PORCH AND PARKING W1 18MM THICK PLASTER,WALL SURFACE FINISHED WITH CREAM ASIAN PAINT WEATHER PROOF EMULSION PAINT PORCH,PARKING AND TERRACE 2 F2 38MM THICK 1:3:5 SCREEDING,12 MM THICK 1200X1200MM POLISHED VITRIFIED TILES WITH WHITE CEMENT GROUT LIVING ROOM,LOBBY, DINING AREA,ENTERTAINMENT ROOM, AND FAMILY ROOM 2 W2 12 MM THICK PLASTER, COAT OF PUTTY ,2 COATS OF PRIMER, 2 COATS OF ASIAN PAINTS LIVING ROOM,STUDY ,FAMILY ROOM, DINING AREA, WALK IN CLOSET, SERVANTS ROOM,ENTERTAINMENT ROOM,LOBBY, AND STORE ROOM 3 F3 38MM THICK 1:3:5 SCREEDING,12 MM THICK 800X800MM POLISHED VITRIFIED TILES WITH WHITE CEMENT GROUT BEDROOMS,STUDY ROOM, SERVANTS ROOM,STORE ROOM WALK IN CLOSET W3 12MM THICK PLASTER, 1 COAT OF PUTTY, 2 COATS OF PRIMER,2 COATS OF ASIAN PAINTS,MATTE FINISHED BEDROOMS 4 F4 38MM THICK 1:3:5 SCREEDING,10 MM THICK 600X600MM POLISHED VITRIFIED TILES WITH WHITE CEMENT GROUT KITCHEN W4 12 MM SLURRY,10 MM THICK 300X600 VITRIFIED DADO TILES UPTO CEILINGS KITCHEN,TOILETS, POWDER ROOM 5 F5 38MM THICK 1:3:5 WATER PROOFING AGENT SCREEDING, 200 MM B.B.C LAID TO SLOPE,10 MM THICK 600X1200MM POLISHED VITRIFIED TILES WITH WHITE CEMENT GROUT TOILET ,BALCONY,TERRACE AND POWDER ROOM F6 CHINA MOSAIC TILES TOP FLOOR TERRACE CEILING SCHEDULE SKIRTING SCHEDULE SRNO. TYPE DESCRIPTION REMARK SRNO. DESCRIPTION REMARK 1 C1 12MM THICK GYPSUM PLASTER,2 COATS OF PRIMER, 2 COATS OF ASIAN PAINTS ALL CEILING EXCEPT TOILETS AND POWDER ROOM 12 MM THICK SLURRY, 150MM HIGH SKIRTING OF FLOORING USED IN RESPECTIVE ROOMS ALL ROOMS EXCEPT TOILETS AND POWDER ROOM 2 C2 12MM THICK WATER PROOFING AGENT COATS OF PRIMER, COATS OF ASIAN PAINTS TOILETS AND POWDER ROOM 12 MM THICK SLURRY, 150MM HIGH SKIRTING OF TILES USED FOR FLOORING TERRACE FLOOR DOOR SCHEDULE WINDOW SCHEDULE SRNO. SYMBOL DOOR NO. LENGTH HEIGHT SILL LEVEL LINTEL LEVEL DESCRIPTION REMARKS NOS. LINTEL GRANITE PATTI FRAME OF 18 MM THICK, WITH 30 MM THICK PLASTIC TYPE S1 S2-

TWIN BUNGALOW

28 KEYPLAN RIZVI COLLEGE OF ARCHITECTURE YEAR: 3RD YEAR EXAM SEAT No.5157 ROLL NO.: 1912 NAME: SARIYA. A.KHAN DWG No.: 04 COLLEGE STAMP & SIGN. LEGEND NOTES SCALE: 1:50 1. THIS IS AN ACADEMIC EXERCISE. 2. DRAWINGS SHOULD NOT BE MEASURED. 3. DATA'S ARE ASSUMED WHEREVER REQUIRED. 4. R.C.C FRAMED STRUCTURE. 5. REFER SEPARATE NOTES FOR MINIMUM DEPTH,THICKNESS,PROJECT SPECIFICATIONS FOR STRUCTURAL MEMBERS. 6. WALLS ARE 230 AND 150 MM. THK. RESPECTIVELY. 7. BRICKS TO BE LAID WITH FROGS UPWARDS. 8. MORTARS SHOULD NOT EXCEED 18 MM IN THICKNESS. 9. FIRST COAT TO BE MADE WITH WATER PROOFING ADMIXTURES. 10. DRIP MOULD TO BE PROVIDED TO ANY PROJECTIONS. 11. PLASTER THICKNESS 12 MM INTERNALLY AND 18 MM EXTERNALLY. 12. ALL DIMENSIONS ARE FROM UNFINISHED TO UNFINISHED FACE. 13. LEVELS ARE MENTION WITH REFERENCE TO THE GROUND FLOOR LEVEL. 14. ARCHITECTURAL PROJECTIONS SUCH AS CHAJJA,CANOPIES TO BE SHOWN IN DOTTED LINE, EXCEPTION FOR CASE SPECIFIC. 15. VOIDS TO BE MARKED WITH DIAGONAL LINES. 16. DRAWINGS TO BE CHECKED THOROUGHLY BY THE SITE ENGINEER BEFORE THE EXECUTION OF WORK. 17. ANY AMBIGUITY TO BE CLARIFIED BY THE ARCHITECT WITH IMMEDIATE EFFECT IN WRITING.
KEYPLAN SHEET: GROUND FLOOR PLAN +750 +450 +750 +450M +450 UP ENTRY GUEST ROOM TOILET+BATHROOM +750 TOILET DUCT COURTYARD 10 19 18 17 16 15 14 13 12 PARKING 22R 20T STORE ROOM +750 KITCHEN +750 +750 DINING +750 3100x3000 2000x1425 3170x4520 4060x3280 4360x3280 RISER=300 3885X2000 +450 COURTYARD PARKING 1380x2880 4R 3T 21 20 19 18 17 16 15 13 22R 20T RISER=300 C1 W1 F1 UP C1 F2 W2 C1 F4 W4 C2W4 200 SUNK 200 SUNKF5C1 W3 D1 W1 W2 W4 W4 W4 W4 D4 D1 D1 W1W4 S1 +750 LIVING ROOM 6115x3605 C1 F2 W2 FFL (230X450) FFL FFL FFL FFL FFL FFL FFL KITCHEN +750 F4 DINING 4060x3280 C1 S1 W2 FFL +750 FFL +750 GUEST ROOM 3170x4520 C1 W3 FFL +450 2085x3000 200 SUNK FFL +450M TOILETFFL +450 POWDER ROOM 2000x1425 FFL 200 SUNK C2SERVANTS ROOM +750 3100x3000 FFL FFL TREAD=150 RISER=300 C1 C2 C4 C3 C7 C6 C14 C13 C15 C8 C10 C12 C20 C22 C24 C25 C28 C29 C32 C33 C34 C35 C36 C37 (230X450) (230X450) (230X450) (230X450) (230X450) (230X450) (230X450) (230X450) (230X450) (230X450) (230X450) (230X450) (230X450) (230X450) (230X450) (230X450) (230X450) (230X450) (450X230) (450X230) (450X230) (450X230) (450X230) (450X230) (450X230) (450X230) (450X230) (450X230) (450X230) (450X230) (450X230) (450X230) (450X230) C18 (300X230) (300X230) C26 (300X230) (300X230) 3100 2000 1385 300 300 300 300 300 300 300 300 300 300 1340 230 735 1200 3780 810 3340 2000 1345 2000 3340 800 3780 1200 980 25565 1625 1190 230 2060 805 4725 2065 4425 145 770 2310 600 1730 26785 2000 1385 2200 610 300 2085 3885 935 275 1225 830 680 2000 425 2000 3910 450 300 1350 300 300 300 300 300 300 300 300 300 3000 3155 2075 1385 1385 850 1230 2000 2000 125 1145 1200 740 4220 1320 300 300 300 4360 1900 285 1215 825 690 2000 425 2000 1000 1270 3875 3745 820 770 A C D E G 4 5 10 B D E G H K 10 (0,0) 1 M N Q U T M Q R C1,C2,C3,C5,C6,C7 +225 C8,C9,C10,C12,C13,C14, +3955 C11 +4065 C17,C18,C19,C20, +7235 C15,C16,C21,C22 +7345 C23,C24,C29,C30 +10075 C25,C26,C27,C28 +10185 C31,C34,C37 +14805 C32,C33,C35,C36 +14915 C4 +115 FLOORING SCHEDULE WALLS SCHEDULE SRNO. TYPE SRNO TYPE DESCRIPTION REMARK 38MM THICK 1:3:5 SCREEDING,18 MM THICK 600X600MM NON SKID TILES WITH WHITE CEMENT GROUT PORCH AND PARKING W1 18MM THICK PLASTER,WALL SURFACE WEATHER PROOF EMULSION PAINT PORCH,PARKING AND TERRACE F2 38MM THICK 1:3:5 SCREEDING,12 MM THICK 1200X1200MM POLISHED VITRIFIED TILES WITH WHITE CEMENT GROUT LIVING ROOM,LOBBY, DINING AREA,ENTERTAINMENT ROOM, AND FAMILY ROOM W2 12 MM THICK PLASTER, COAT OF PUTTY COATS OF PRIMER, COATS OF ASIAN PAINTS LIVING ROOM,STUDY ,FAMILY ROOM, DINING AREA, WALK CLOSET, SERVANTS ROOM,ENTERTAINMENT ROOM,LOBBY, AND STORE ROOM 38MM THICK 1:3:5 SCREEDING,12 MM THICK 800X800MM BEDROOMS,STUDY ROOM, SERVANTS ROOM,STORE ROOM WALK IN CLOSET W3 12MM THICK PLASTER, COAT OF PUTTY, COATS OF PRIMER,2 COATS OF ASIAN PAINTS,MATTE FINISHED BEDROOMS F4 38MM THICK 1:3:5 SCREEDING,10 MM THICK 600X600MM POLISHED VITRIFIED TILES WITH WHITE CEMENT GROUT KITCHEN W4 12 MM SLURRY,10 MM THICK 300X600 VITRIFIED DADO TILES UPTO CEILINGS KITCHEN,TOILETS, F5 38MM THICK 1:3:5 WATER PROOFING AGENT SCREEDING, 200 MM B.B.C LAID TO SLOPE,10 MM THICK 600X1200MM POLISHED VITRIFIED TILES WITH WHITE CEMENT GROUT TOILET ,BALCONY,TERRACE AND F6 CHINA MOSAIC TILES CEILING SCHEDULE SKIRTING SCHEDULE TYPE REMARK DESCRIPTION REMARK C1 12MM THICK GYPSUM PLASTER,2 COATS OF PRIMER, COATS OF ASIAN PAINTS ALL CEILING EXCEPT TOILETS 12 MM THICK SLURRY, 150MM HIGH SKIRTING ALL ROOMS EXCEPT TOILETS AND POWDER ROOM C2 12MM THICK WATER PROOFING AGENT COATS OF PRIMER, COATS OF ASIAN PAINTS POWDER ROOM 12 MM THICK SLURRY, 150MM HIGH SKIRTING OF TILES USED FOR FLOORING TERRACE FLOOR SRNO. SYMBOL DOOR NO. LENGTH HEIGHT SILL LEVEL LINTEL LEVEL DESCRIPTION REMARKS NOS. SRNO. SYMBOL LENGTH HEIGHT SILL LEVEL LINTEL LEVEL DESCRIPTION REMARKS NOS GRANITE PATTI FRAME OF MM THICK, WITH MM THICK PLASTIC W1 D2 800 2100 2100 GRANITE PATTI FRAME OF MM THICK, WITH MM THICK PLASTIC WATERPROOF SINGLE SHUTTER FINISHED WITH MELAMINE POLISH PVC DOOR 10 1200 1200 900 2100 TWO SHUTTER FRENCH CASEMENT WINDOW-OPEN OUT WITH 10MM THICK GLASS AS PER APPROVED SIZE. CASEMENT WINDOWS 10 D3 900 2100 2100 SHUTTER FINISHED WITH MELAMINE POLISH FLUSH DOOR 12 W3 2000 1200 2100 10MM THICK GLASS AS PER APPROVED SIZE. CASEMENT WINDOWS D4 1000 2100 2100 SHUTTER FINISHED WITH MELAMINE POLISH FLUSH DOOR 10 W4 2000 1200 2100 WINDOW WITH 10MM THICK CLEAR GLASS PANEL AND GLASS SIZE AS PER REQUIREMENT SLIDING WINDOW 16 D5 1200 2100 2100 TEAK WOOD FRAME OF SIZE 75X100 MM WITH 35 MM THICK LAMINATED DOUBLE SHUTTER FINISHED WITH MELAMINE POLISH FRENCH DOOR W5 2000 1800 2100 WINDOW WITH 10MM THICK CLEAR GLASS PANEL AND GLASS SIZE AS PER REQUIREMENT SLIDING WINDOW D6 3000 2600 2100 TEAK WOOD FRAME OF SIZE 75X100 MM WITH 12 MM THICK GLASS FRENCH DOOR BIFOLD FRENCH DOOR TYPE S1 900 900 300--EAST ELEVATION 0.0M +0.6M -2.5M -3.8M +0.2M -7.1M -3.8M -2.5M -3.8M +0.0M -3.6M -3.6M -3.6M -3.6M -3.8M -3.8M -3.8M SITE GROUND LEVEL PLINTH LEVEL SILL LEVEL LINTEL LEVEL FIRST FLOOR LEVEL BALCONY LINTEL LEVEL SECOND FLOOR LEVEL BALCONY LINTEL LEVEL TERRACE FLOOR LEVEL MUMPTY LEVEL OHT BOTTOM LEVEL BUND WALL LEVEL OHT TOP LEVEL +0.15M +0.75M +1.65M +2.85M +4.05M +6.1M +7.35M +9.4M +10.65M +13.85M +14.75M +16.6M +17.05M GROUND LEVEL +0.0M PARAPET LEVEL +12M PAINT AND PLASTER COAT PAINT AND PAINT AND MS RAILING 1200MM PARAPET WALL TWO SHUTTER ALUMINIUM FRAMED SLIDING WINDOW 12MM THICK STONE FINISH TEXTURED TILE WALL FINISHED WITH 18 MM THICK PLASTER, COAT OF PUTTY COATS OF PRIMER, COATS OF ASIAN PAINTS WITH ROUGH FINISH 1200 MMX1200MM TWO SHUTTER FRENCH CASEMENT WINDOW-OPEN OUT WITH 10MM THICK GLASS COATS OF PLASTER, 2COATS OF 150MM 150MM MS PERGOLA 800MM 2100MM DOOR 1200MM 2100MM TEAK WOOD DOOR R.C.C BOXING FINISHED WITH 18MM THICK PLASTER OVER HEAD TANK 100MM GROOVE IN THE WALL WALL FINISHED WITH 18 MM THICK PLASTER, COAT OF PUTTY COATS OF PRIMER, COATS OF ASIAN PAINTS WITH SMOOTH FINISH R.C.C CHAJJA 2600MM 2100 MM FRENCH DOOR TWO SHUTTER ALUMINIUM FRAMED SLIDING WINDOW R.C.C BOXING FINISHED WITH 18MM THICK PLASTER EXAM SEAT No. ROLL NO.: 1912 NAME: SARIYA. A.KHAN DWG No.: 03 COLLEGE STAMP & SIGN. LEGEND NOTES SCALE: 1:50 TWIN BUNGALOW KEYPLAN SHEET: FOUNDATION PLAN 1000 X 1400 MM FOOTING Ground Floor Plan Foundation Plan
East Elevation Section Through A-A’

TWIN

TWIN BUNGALOW

Section through B-B’

DETAIL @ Q

Strip section through Balcony Strip Section through East Facade

@ D-D’

Key Plans

Section @ C-C’

29 KEYPLAN RIZVI COLLEGE OF ARCHITECTURE YEAR: 3RD YEAR EXAM SEAT No.5157 ROLL NO.: 1912 NAME: SARIYA. A.KHAN DWG No.: 13 COLLEGE STAMP & SIGN. LEGEND SCALE: 1:50 18 MM EXTERNALLY. 12. ALL DIMENSIONS ARE FROM UNFINISHED TO UNFINISHED FACE. 13. LEVELS ARE MENTION WITH REFERENCE TO THE GROUND FLOOR LEVEL. 14. ARCHITECTURAL PROJECTIONS SUCH AS CHAJJA,CANOPIES TO BE SHOWN IN DOTTED LINE, EXCEPTION FOR CASE SPECIFIC. 15. VOIDS TO BE MARKED WITH DIAGONAL LINES. 16. DRAWINGS TO BE CHECKED THOROUGHLY BY THE SITE ENGINEER BEFORE THE EXECUTION OF WORK. 17. ANY AMBIGUITY TO BE CLARIFIED BY THE ARCHITECT WITH IMMEDIATE EFFECT IN WRITING. KEYPLAN SHEET: EAST ELEVATION LEGEND NOTES 1. THIS IS AN ACADEMIC EXERCISE. 2. DRAWINGS SHOULD NOT BE MEASURED. 3. DATA'S ARE ASSUMED WHEREVER REQUIRED. 4. R.C.C FRAMED STRUCTURE. 5. REFER SEPARATE NOTES FOR MINIMUM DEPTH,THICKNESS,PROJECT SPECIFICATIONS FOR STRUCTURAL MEMBERS. 6. WALLS ARE 230 AND 150 MM. THK. RESPECTIVELY. 7. BRICKS TO BE LAID WITH FROGS UPWARDS. 8. MORTARS SHOULD NOT EXCEED 18 MM IN THICKNESS. 9. FIRST COAT TO BE MADE WITH WATER PROOFING ADMIXTURES. 10. DRIP MOULD TO BE PROVIDED TO ANY PROJECTIONS. 11. PLASTER THICKNESS 12 MM INTERNALLY AND 18 MM EXTERNALLY. 12. ALL DIMENSIONS ARE FROM UNFINISHED TO UNFINISHED FACE. 13. LEVELS ARE MENTION WITH REFERENCE TO THE GROUND FLOOR LEVEL. 14. ARCHITECTURAL PROJECTIONS SUCH AS CHAJJA,CANOPIES TO BE SHOWN IN DOTTED LINE, EXCEPTION FOR CASE SPECIFIC. 15. VOIDS TO BE MARKED WITH DIAGONAL LINES. 16. DRAWINGS TO BE CHECKED THOROUGHLY BY THE SITE ENGINEER BEFORE THE EXECUTION OF WORK. 17. ANY AMBIGUITY TO BE CLARIFIED BY THE ARCHITECT WITH IMMEDIATE EFFECT IN WRITING. TWIN BUNGALOW KEYPLAN SR.NO SYMBOL DESCRIPTION R.C.C COLUMN X-COLUMN NUMBER PBX PB-PLINTH BEAM F-FOOTING SUNK BRICK WALL DUCT PLAN @ 1500 C' C B' B A' A D' D VEHICULAR ENTRANCE PEDESTRIAN ENTRANCE VEHICULAR ENTRANCE PEDESTRIAN ENTRANCE 350 2070 350 4000 350 1500 350 2650 350 2650 350 2650 350 2650 350 1460 350 4000 350 1500 360 2210 350 350 2070 350 4000 350 1500 350 2650 350 2650 350 2650 350 2650 350 1460 350 4000 350 1500 360 2210 350 150 RCC LEVEL +1.84M COPING LEVEL TOP +1.94 M 600 310 940 150100 2250 350 310 660 350 660 640 930 930 930 640 350 350 740 390 350 ELEVATION PLAN @ 2500 M VEHICULAR ENTRANCE PEDESTRIAN ENTRANCE VEHICULAR ENTRANCE PEDESTRIAN ENTRANCE 350 2070 350 4000 350 1500 350 2650 350 2650 350 2650 350 2650 350 1460 350 4000 350 1500 360 2210 350 500 500 LAMP 20 MM DUCT FOR WIRING SCREW 150 MM COPING 350 MM BRICK PIER 8MM THICK MS PLATE DETAIL @ P 500 150 SCALE -1:10 SCALE -1:50 PLAN @ 1500 C' C B' B A' A D' D VEHICULAR ENTRANCE PEDESTRIAN ENTRANCE 350 2070 350 4000 350 1500 350 2650 350 2650 350 2650 350 2650 350 1460 350 350 2070 350 4000 350 1500 350 2650 350 2650 350 2650 350 2650 350 1460 350 150 GROUND LEVEL +0.0M RCC LEVEL +1.84M COPING LEVEL BOTTOM +2.2M 600 310 940 150100 2250 660 350 660 350 640 930 930 640 ELEVATION PLAN @ 2500 M VEHICULAR ENTRANCE PEDESTRIAN ENTRANCE 350 2070 350 4000 350 1500 350 2650 350 2650 350 2650 350 2650 350 1460 350 500 500 KERB SET ON BEDDING MORTAR SAND AND CEMENT MORTAR CONCRETE KERB RACE CONCRETE HAUNCH TO KERB 60MM THICK PAVER BLOCKS 40MM THICK SAND CEMENT SCREED 100MM THICK PCC 100 MM RCC 75 MM THICK GRC JAALI 150 MM COPING 100 MM RCC 230 MM DRY RUBBLE PACKING 150 MM PCC MS GRATING 60MM THK PAVER BLOCKS 40MM THICK SAND CEMENT SCREED 100 MM THK BRICK BAT COBA 230 MM THICK BRICK WALL SECTION @ C-C' 610 1340 270 300 GROUND LEVEL +0.0M PLANTER LEVEL +0.6M RCC LEVEL +0.9M RCC LEVEL +1.84M COPING LEVEL TOP +1.94 M COPING LEVEL BOTTOM +2.2M 500 300 1870 270 300 SCALE -1:50 15 MM THICK ACP SHEET 50MM X50MM HOLLOW SQUARE SECTION 12 MM THICK MS PLATE KEYPLAN RIZVI COLLEGE OF ARCHITECTURE YEAR: 3RD YEAR EXAM SEAT No.5157 ROLL NO.: 1912 NAME: SARIYA. A.KHAN DWG No.: 20 COLLEGE STAMP & SIGN. LEGEND NOTES SCALE: 1:25 1. THIS AN ACADEMIC EXERCISE. 2. DRAWINGS SHOULD NOT BE MEASURED. 3. DATA'S ARE ASSUMED WHEREVER REQUIRED. 4. R.C.C FRAMED STRUCTURE. 5. REFER SEPARATE NOTES FOR MINIMUM DEPTH,THICKNESS,PROJECT SPECIFICATIONS FOR STRUCTURAL MEMBERS. 6. WALLS ARE 230 AND 150 MM. THK. RESPECTIVELY. 7. BRICKS TO BE LAID WITH FROGS UPWARDS. 8. MORTARS SHOULD NOT EXCEED 18 MM IN THICKNESS. 9. FIRST COAT TO BE MADE WITH WATER PROOFING ADMIXTURES. 10. DRIP MOULD TO BE PROVIDED TO ANY PROJECTIONS. 11. PLASTER THICKNESS 12 MM INTERNALLY AND 18 MM EXTERNALLY. 12. ALL DIMENSIONS ARE FROM UNFINISHED TO UNFINISHED FACE. 13. LEVELS ARE MENTION WITH REFERENCE TO THE GROUND FLOOR LEVEL. 14. ARCHITECTURAL PROJECTIONS SUCH AS CHAJJA,CANOPIES TO BE SHOWN IN DOTTED LINE, EXCEPTION FOR CASE SPECIFIC. 15. VOIDS TO BE MARKED WITH DIAGONAL LINES. 16. DRAWINGS TO BE CHECKED THOROUGHLY BY THE SITE ENGINEER BEFORE THE EXECUTION OF WORK. 17. ANY AMBIGUITY TO BE CLARIFIED BY THE ARCHITECT WITH IMMEDIATE EFFECT IN WRITING.
BUNGALOW KEYPLAN SHEET: COMPOUND WALL PLAN SR.NO FOOTING PLAN @ 1500 C' C B' A' A D' D VEHICULAR ENTRANCE PEDESTRIAN ENTRANCE VEHICULAR ENTRANCE PEDESTRIAN ENTRANCE 350 2070 350 4000 350 1500 350 2650 350 2650 350 2650 350 2650 350 1460 350 4000 350 1500 360 2210 350 350 2070 350 4000 350 1500 350 2650 350 2650 350 2650 350 2650 350 1460 350 4000 350 1500 360 2210 350 150 +2.2M 600 310 940 150100 2250 660 660 930 350 350 740 390 ELEVATION PLAN @ 2500 M VEHICULAR ENTRANCE PEDESTRIAN ENTRANCE VEHICULAR ENTRANCE PEDESTRIAN ENTRANCE 350 2070 350 4000 350 1500 350 2650 350 2650 350 2650 350 2650 350 1460 350 4000 350 1500 360 2210 350 500 500 KERB SET ON BEDDING MORTAR SAND AND CEMENT MORTAR CONCRETE KERB RACE CONCRETE HAUNCH TO KERB 60MM THICK PAVER BLOCKS 40MM THICK SAND CEMENT SCREED 100MM THICK PCC 100 MM RCC 75 MM THICK GRC JAALI 150 MM COPING 100 MM RCC 230 MM DRY RUBBLE PACKING 150 MM PCC MS GRATING 60MM THK PAVER BLOCKS 40MM THICK SAND CEMENT SCREED 100 MM THK BRICK BAT COBA 230 MM THICK BRICK WALL SECTION @ C-C' 610 1340 270 300 GROUND LEVEL +0.0M PLANTER LEVEL +0.6M RCC LEVEL +0.9M RCC LEVEL +1.84M COPING LEVEL TOP +1.94 M COPING LEVEL BOTTOM +2.2M 500 100 MM RCC 75 MM THICK GRC JAALI 100 MM RCC 230 MM DRY RUBBLE PACKING 150 MM PCC MS GRATING 60MM THK PAVER BLOCKS 40MM THICK SAND CEMENT SCREED 230 MM THICK BRICK WALL SECTION @ D-D' 40 MM THICK CEMENT MORTAR 50 MM THICK STONE UNITS 300 1870 270 300 500 LAMP 20 MM DUCT FOR WIRING SCREW 150 MM COPING 350 MM BRICK PIER 8MM THICK MS PLATE DETAIL @ P 500 150 SCALE -1:10 SCALE -1:50 SCALE -1:25 B A M VEHICULAR ENTRANCE PEDESTRIAN ENTRANCE VEHICULAR ENTRANCE PEDESTRIAN ENTRANCE 350 2070 350 4000 350 1500 350 2070 350 4000 350 1500 350 2070 350 4000 350 1500 150 1850 250 300 GROUND LEVEL +0.0M PLANTER LEVEL +0.6M RCC LEVEL +0.9M RCC LEVEL +1.84M COPING LEVEL TOP +1.94 M COPING LEVEL BOTTOM +2.2M 500 500 500 500 500 350 2070 350 350 350 KERB SET ON BEDDING MORTAR SAND AND CEMENT MORTAR CONCRETE KERB RACE CONCRETE HAUNCH TO KERB 60MM THICK PAVER BLOCKS 40MM THICK SAND CEMENT SCREED 100MM THICK PCC 230 MM DRY RUBBLE PACKING 150 MM PCC MS GRATING 60MM THK PAVER BLOCKS 40MM THICK SAND CEMENT SCREED 100 MM THK BRICK BAT COBA SECTION @ A-A' 15 MM THICK ACP SHEET 50MM X50MM HOLLOW SQUARE SECTION 12 MM THICK MS PLATE Q 1880 320 300 500 KEYPLAN RIZVI COLLEGE OF ARCHITECTURE YEAR: 3RD YEAR EXAM SEAT No.5157 ROLL NO.: 1912 NAME: SARIYA. A.KHAN DWG No.: 21 COLLEGE STAMP & SIGN. LEGEND NOTES SCALE: 1:25 1. THIS IS AN ACADEMIC EXERCISE. 2. DRAWINGS SHOULD NOT BE MEASURED. 3. DATA'S ARE ASSUMED WHEREVER REQUIRED. 4. R.C.C FRAMED STRUCTURE. 5. REFER SEPARATE NOTES FOR MINIMUM DEPTH,THICKNESS,PROJECT SPECIFICATIONS FOR STRUCTURAL MEMBERS. 6. WALLS ARE 230 AND 150 MM. THK. RESPECTIVELY. 7. BRICKS TO BE LAID WITH FROGS UPWARDS. 8. MORTARS SHOULD NOT EXCEED 18 MM IN THICKNESS. 9. FIRST COAT TO BE MADE WITH WATER PROOFING ADMIXTURES. 10. DRIP MOULD TO BE PROVIDED TO ANY PROJECTIONS. 11. PLASTER THICKNESS 12 MM INTERNALLY AND 18 MM EXTERNALLY. 12. ALL DIMENSIONS ARE FROM UNFINISHED TO UNFINISHED FACE. 13. LEVELS ARE MENTION WITH REFERENCE TO THE GROUND FLOOR LEVEL. 14. ARCHITECTURAL PROJECTIONS SUCH AS CHAJJA,CANOPIES TO BE SHOWN IN DOTTED LINE, EXCEPTION FOR CASE SPECIFIC. 15. VOIDS TO BE MARKED WITH DIAGONAL LINES. 16. DRAWINGS TO BE CHECKED THOROUGHLY BY THE SITE ENGINEER BEFORE THE EXECUTION OF WORK. 17. ANY AMBIGUITY TO BE CLARIFIED BY THE ARCHITECT WITH IMMEDIATE EFFECT IN WRITING.
TWIN
KEYPLAN SHEET: COMPOUND WALL PLAN CX R.C.C COLUMN X-COLUMN NUMBER PBX NUMBER F-FOOTING DUCT FOOTING B A M VEHICULAR ENTRANCE PEDESTRIAN ENTRANCE VEHICULAR ENTRANCE PEDESTRIAN ENTRANCE 350 2070 350 4000 350 1500 350 350 2070 350 4000 350 1500 350 350 2070 350 4000 350 1500 350 150 1850 250 300 GROUND LEVEL +0.0M PLANTER LEVEL +0.6M RCC LEVEL +0.9M RCC LEVEL +1.84M COPING LEVEL TOP +1.94 M COPING LEVEL BOTTOM +2.2M 500 500 500 500 500 500 500 500 350 2070 350 350 350 350 350 KERB SET ON BEDDING MORTAR SAND AND CEMENT MORTAR CONCRETE KERB RACE CONCRETE HAUNCH TO KERB 60MM THICK PAVER BLOCKS 40MM THICK SAND CEMENT SCREED 100MM THICK PCC 230 MM DRY RUBBLE PACKING 150 MM PCC MS GRATING 60MM THK PAVER BLOCKS 40MM THICK SAND CEMENT SCREED 100 MM THK BRICK BAT COBA SECTION @ A-A' 15 MM THICK ACP SHEET 50MM X50MM HOLLOW SQUARE SECTION 12 MM THICK MS PLATE Q 1880 320 300 500 230 MM DRY RUBBLE PACKING 150 MM PCC MS GRATING 60MM THK PAVER BLOCKS 40MM THICK SAND CEMENT SCREED SECTION @ B-B' LAMP 20 MM DUCT FOR WIRING SCREW 150 MM COPING 350 MM BRICK PIER 8MM THICK MS PLATE 18 MM THICK EXTERNAL PLASTER 350 MM THICK BRICK PIER P 20MM GROOVE 100 40 60 2160 300 15 mm ACP SHEET WHEEL ASSEMBLY SCREW 15 MM THICK BASE PLATE CONTINUOUS U TRACK
TWIN BUNGALOW
10 MM THICK MS PLATE SCREW IN ASSEMBLY ANGLE SECTION 18 MM THICK PLASTER SCREW IN ASSEMBLY 10 MM THICK MS PLATE ROLLING SECTION 18 MM THICK PLASTER ANGLE SECTION FIXING DETAIL @ M PLAN SECTION SCALE -1:5 SCALE -1:10 15 MM THICK ACP SHEET 50MM X50MM HOLLOW SQUARE SECTION LEGEND NOTES 1. THIS IS AN ACADEMIC EXERCISE. 2. DRAWINGS SHOULD NOT BE MEASURED. 3. DATA'S ARE ASSUMED WHEREVER REQUIRED. 4. R.C.C FRAMED STRUCTURE. 5. REFER SEPARATE NOTES FOR MINIMUM DEPTH,THICKNESS,PROJECT SPECIFICATIONS FOR STRUCTURAL MEMBERS. 6. WALLS ARE 230 AND 150 MM. THK. RESPECTIVELY. 7. BRICKS TO BE LAID WITH FROGS UPWARDS. 8. MORTARS SHOULD NOT EXCEED 18 MM IN THICKNESS. 9. FIRST COAT TO BE MADE WITH WATER PROOFING ADMIXTURES. 10. DRIP MOULD TO BE PROVIDED TO ANY PROJECTIONS. 11. PLASTER THICKNESS 12 MM INTERNALLY AND 18 MM EXTERNALLY. 12. ALL DIMENSIONS ARE FROM UNFINISHED TO UNFINISHED FACE. 13. LEVELS ARE MENTION WITH REFERENCE TO THE GROUND FLOOR LEVEL. 14. ARCHITECTURAL PROJECTIONS SUCH AS CHAJJA,CANOPIES TO BE SHOWN IN DOTTED LINE, EXCEPTION FOR CASE SPECIFIC. 15. VOIDS TO BE MARKED WITH DIAGONAL LINES. 16. DRAWINGS TO BE CHECKED THOROUGHLY BY THE SITE ENGINEER BEFORE THE EXECUTION OF WORK. 17. ANY AMBIGUITY TO BE CLARIFIED BY THE ARCHITECT WITH IMMEDIATE EFFECT IN WRITING.
KEYPLAN SHEET: COMPOUND WALL PLAN SR.NO R.C.C COLUMN COLUMN CENTERLINE C-COLUMN X-PLINTH BEAM F-FOOTING X-FOOTING NUMBER BRICK WALL DUCT FOOTING PLAN @ 1500 C' C B' B A' A D' D VEHICULAR ENTRANCE PEDESTRIAN ENTRANCE VEHICULAR ENTRANCE PEDESTRIAN ENTRANCE 350 2070 350 4000 350 1500 350 2650 350 2650 350 2650 350 2650 350 1460 350 4000 350 1500 360 2210 350 350 2070 350 4000 350 1500 350 2650 350 2650 350 2650 350 2650 350 1460 350 4000 350 1500 360 2210 350 150 GROUND LEVEL +0.0M PLANTER LEVEL COPING LEVEL TOP COPING LEVEL BOTTOM 600 310 940 150100 2250 350 310 660 350 660 350 640 930 930 640 350 350 740 390 350 ELEVATION PLAN @ 2500 M VEHICULAR ENTRANCE PEDESTRIAN ENTRANCE VEHICULAR ENTRANCE PEDESTRIAN ENTRANCE 350 2070 350 4000 350 1500 350 2650 350 2650 350 2650 350 2650 350 1460 350 4000 350 1500 360 2210 350 500 500 LAMP 20 MM DUCT FOR WIRING SCREW 150 MM COPING 350 MM BRICK PIER 8MM THICK MS PLATE DETAIL @ P 500 150 SCALE -1:10 SCALE -1:50 KEYPLAN RIZVI COLLEGE OF ARCHITECTURE YEAR: 3RD YEAR EXAM SEAT No.5157 ROLL NO.: 1912 NAME: SARIYA. A.KHAN DWG No.: 21 COLLEGE STAMP & SIGN. LEGEND NOTES SCALE: 1:25 1. THIS IS AN ACADEMIC EXERCISE. 2. DRAWINGS SHOULD NOT BE MEASURED. 3. DATA'S ARE ASSUMED WHEREVER REQUIRED. 4. R.C.C FRAMED STRUCTURE. 5. REFER SEPARATE NOTES FOR MINIMUM DEPTH,THICKNESS,PROJECT SPECIFICATIONS FOR STRUCTURAL MEMBERS. 6. WALLS ARE 230 AND 150 MM. THK. RESPECTIVELY. 7. BRICKS TO BE LAID WITH FROGS UPWARDS. 8. MORTARS SHOULD NOT EXCEED 18 MM IN THICKNESS. 9. FIRST COAT TO BE MADE WITH WATER PROOFING ADMIXTURES. 10. DRIP MOULD TO BE PROVIDED TO ANY PROJECTIONS. 11. PLASTER THICKNESS 12 MM INTERNALLY AND 18 MM EXTERNALLY. 12. ALL DIMENSIONS ARE FROM UNFINISHED TO UNFINISHED FACE. 13. LEVELS ARE MENTION WITH REFERENCE TO THE GROUND FLOOR LEVEL. 14. ARCHITECTURAL PROJECTIONS SUCH AS CHAJJA,CANOPIES TO BE SHOWN IN DOTTED LINE, EXCEPTION FOR CASE SPECIFIC. 15. VOIDS TO BE MARKED WITH DIAGONAL LINES. 16. DRAWINGS TO BE CHECKED THOROUGHLY BY THE SITE ENGINEER BEFORE THE EXECUTION OF WORK. 17. ANY AMBIGUITY TO BE CLARIFIED BY THE ARCHITECT WITH IMMEDIATE EFFECT IN WRITING.
TWIN BUNGALOW
BUNGALOW KEYPLAN SHEET: COMPOUND WALL PLAN DESCRIPTION C-COLUMN PBX NUMBER X-FOOTING NUMBER 350 500 350 230 MM DRY RUBBLE PACKING 150 MM PCC MS GRATING 60MM THK PAVER BLOCKS 40MM THICK SAND CEMENT SCREED SECTION @ B-B' LAMP 20 MM DUCT FOR WIRING SCREW 150 MM COPING 350 MM BRICK PIER 8MM THICK MS PLATE 18 MM THICK EXTERNAL PLASTER 350 MM THICK BRICK PIER P 20MM GROOVE 100 40 60 2160 300 15 mm ACP SHEET WHEEL ASSEMBLY SCREW 15 MM THICK BASE PLATE CONTINUOUS U TRACK DETAIL @ Q 10 MM THICK MS PLATE SCREW IN ASSEMBLY ANGLE SECTION 18 MM THICK PLASTER SCREW IN ASSEMBLY 10 MM THICK MS PLATE ROLLING SECTION 18 MM THICK PLASTER ANGLE SECTION FIXING DETAIL @ M PLAN SECTION SCALE -1:5 SCALE -1:10
Section
@ A-A’
15 MM THICK ACP SHEET 50MM X50MM HOLLOW SQUARE SECTION 12 MM THICK MS PLATE KEYPLAN RIZVI COLLEGE OF ARCHITECTURE YEAR: 3RD YEAR EXAM SEAT No.5157 ROLL NO.: 1912 NAME: SARIYA. A.KHAN DWG No.: 20 COLLEGE STAMP & SIGN. LEGEND NOTES SCALE: 1:25 1. THIS IS AN ACADEMIC EXERCISE. 2. DRAWINGS SHOULD NOT BE MEASURED. 3. DATA'S ARE ASSUMED WHEREVER REQUIRED. 4. R.C.C FRAMED STRUCTURE. 5. REFER SEPARATE NOTES FOR MINIMUM DEPTH,THICKNESS,PROJECT SPECIFICATIONS FOR STRUCTURAL MEMBERS. 6. WALLS ARE 230 AND 150 MM. THK. RESPECTIVELY. 7. BRICKS TO BE LAID WITH FROGS UPWARDS. 8. MORTARS SHOULD NOT EXCEED 18 MM IN THICKNESS. 9. FIRST COAT TO BE MADE WITH WATER PROOFING ADMIXTURES. 10. DRIP MOULD TO BE PROVIDED TO ANY PROJECTIONS. 11. PLASTER THICKNESS 12 MM INTERNALLY AND 18 MM EXTERNALLY. 12. ALL DIMENSIONS ARE FROM UNFINISHED TO UNFINISHED FACE. 13. LEVELS ARE MENTION WITH REFERENCE TO THE GROUND FLOOR LEVEL. 14. ARCHITECTURAL PROJECTIONS SUCH AS CHAJJA,CANOPIES TO BE SHOWN IN DOTTED LINE, EXCEPTION FOR CASE SPECIFIC. 15. VOIDS TO BE MARKED WITH DIAGONAL LINES. 16. DRAWINGS TO BE CHECKED THOROUGHLY BY THE SITE ENGINEER BEFORE THE EXECUTION OF WORK. 17. ANY AMBIGUITY TO BE CLARIFIED BY THE ARCHITECT WITH IMMEDIATE EFFECT IN WRITING.
Section
KEYPLAN SHEET: COMPOUND WALL PLAN SR.NO SYMBOL X-COLUMN NUMBER X-PLINTH BEAM BRICK WALL VEHICULAR ENTRANCE PEDESTRIAN ENTRANCE 350 2650 350 1460 350 4000 350 1500 360 2210 350 350 2650 350 1460 350 4000 350 1500 360 2210 350 930 640 350 350 740 350 VEHICULAR ENTRANCE PEDESTRIAN ENTRANCE 350 2650 350 1460 350 4000 350 1500 360 2210 350 PACKING SCREED 100 MM RCC 75 MM THICK GRC JAALI 100 MM RCC 230 MM DRY RUBBLE PACKING 150 MM PCC MS GRATING 60MM THK PAVER BLOCKS 40MM THICK SAND CEMENT SCREED 230 MM THICK BRICK WALL SECTION @ D-D' 40 MM THICK CEMENT MORTAR 50 MM THICK STONE UNITS 300 1870 270 300 500 LAMP 20 MM DUCT FOR WIRING SCREW 150 MM COPING 350 MM BRICK PIER 8MM THICK MS PLATE DETAIL @ P 500 150 SCALE -1:10 SCALE -1:25 Section @ B-B’ Compound wall Details

SECTION @ A-A'

150 MM THICK R.C.C SLAB

300X300 VITRIFIED TILES DADO TILES

230 MM THICK BRICK WALL LOUVERED WINDOW

OVER HEAD SHOWER AS PER SPECIFICATION

18 MM THICK EXTERNAL PLASTER

FLOOR MOUNTED W.C AS PER SPECIFICATION

12 MM THICK VITRIFIED TILES

40 MM THICK SAND CEMENT SCREED

200 MM THICK BRICK BAT COBA (SUNK)

150 MM THICK R.C.C SLAB

230 MM THICK DRY RUBBLE PACKING

SECTION @ B-B'

150 MM THICK R.C.C SLAB

230 MM THICK BRICK WALL

300X300 VITRIFIED TILES DADO TILES

18 MM THICK EXTERNAL PLASTER

12 MM THICK VITRIFIED TILES

40 MM THICK SAND CEMENT SCREED

200 MM THICK BRICK BAT COBA (SUNK)

150 MM THICK R.C.C SLAB

230 MM THICK DRY RUBBLE PACKING

150 MM THICK R.C.C SLAB

300X300 VITRIFIED TILES DADO TILES

230 MM THICK BRICK WALL

OVER HEAD SHOWER AS PER SPECIFICATION

LOUVERED WINDOW

18 MM THICK EXTERNAL PLASTER

FLOOR MOUNTED W.C AS PER SPECIFICATION

12 MM THICK VITRIFIED TILES

200 MM THICK BRICK BAT COBA (SUNK)

150 MM THICK R.C.C SLAB

230 MM THICK DRY RUBBLE PACKING

THICK R.C.C SLAB

TWIN BUNGALOW

150 MM THICK R.C.C SLAB

TWIN BUNGALOW

Skirting Details

300X300 VITRIFIED TILES DADO TILES OVER HEAD SHOWER AS PER SPECIFICATION

230 MM THICK BRICK WALL LOUVERED WINDOW

18 MM THICK EXTERNAL PLASTER

FLOOR MOUNTED W.C AS PER SPECIFICATION

12 MM THICK VITRIFIED TILES

200 MM THICK BRICK BAT COBA (SUNK)

150 MM THICK R.C.C SLAB

230 MM THICK DRY RUBBLE PACKING

SECTION @ B-B'

150 MM THICK R.C.C SLAB

230 MM THICK BRICK

Handrail FixingDetails

East Elevation North

Handrail fixing Details

30 DWG No.: 22 COLLEGE STAMP & SIGN. LEGEND NOTES SCALE: 1:20 1. THIS IS AN ACADEMIC EXERCISE. 2. DRAWINGS SHOULD NOT BE MEASURED. 3. DATA'S ARE ASSUMED WHEREVER REQUIRED. 4. R.C.C FRAMED STRUCTURE. 5. REFER SEPARATE NOTES FOR MINIMUM DEPTH,THICKNESS,PROJECT SPECIFICATIONS FOR STRUCTURAL MEMBERS. 6. WALLS ARE 230 AND 150 MM. THK. RESPECTIVELY. 7. BRICKS TO BE LAID WITH FROGS UPWARDS. 8. MORTARS SHOULD NOT EXCEED 18 MM IN THICKNESS. 9. FIRST COAT TO BE MADE WITH WATER PROOFING ADMIXTURES. 10. DRIP MOULD TO BE PROVIDED TO ANY PROJECTIONS. 11. PLASTER THICKNESS 12 MM INTERNALLY AND 18 MM EXTERNALLY. 12. ALL DIMENSIONS ARE FROM UNFINISHED TO UNFINISHED FACE. 13. LEVELS ARE MENTION WITH REFERENCE TO THE GROUND FLOOR LEVEL. 14. ARCHITECTURAL PROJECTIONS SUCH AS CHAJJA,CANOPIES TO BE SHOWN IN DOTTED LINE, EXCEPTION FOR CASE SPECIFIC. 15. VOIDS TO BE MARKED WITH DIAGONAL LINES. 16. DRAWINGS TO BE CHECKED THOROUGHLY BY THE SITE ENGINEER BEFORE THE EXECUTION OF WORK. 17. ANY AMBIGUITY TO BE CLARIFIED BY THE ARCHITECT WITH IMMEDIATE EFFECT IN WRITING. TWIN BUNGALOW KEYPLAN SHEET: TOILET DETAILS A D 150 MM THICK R.C.C SLAB 230 MM THICK BRICK WALL 800 X 1000 FULL WIDE MIRROR 800X2100 DOOR AS PER SPECIFICATION 150 MM THICK R.C.C SLAB 230 MM THICK DRY RUBBLE PACKING 200 MM THICK BRICK BAT COBA (SUNK) 300X300 VITRIFIED TILES DADO TILES 40 MM THICK SAND CEMENT SCREED 12 MM THICK VITRIFIED TILES 18 MM THICK EXTERNAL PLASTER 450X500 MM COUNTER SUNK WASH BASIN SECTION @ C-C' D2 150MM THICK R.C.C SLAB 150 MM THICK R.C.C SLAB 230 MM THICK BRICK WALL LOUVERED WINDOW FLOOR MOUNTED W.C AS PER SPECIFICATION 150 MM THICK R.C.C SLAB 230 MM THICK DRY RUBBLE PACKING 200 MM THICK BRICK BAT COBA (SUNK) 300X300 VITRIFIED TILES DADO TILES 40 MM THICK SAND CEMENT SCREED 18 MM THICK EXTERNAL PLASTER 12 MM THICK VITRIFIED TILES OVER HEAD SHOWER AS PER SPECIFICATION SECTION @ A-A' 150 MM THICK R.C.C SLAB 230 MM THICK BRICK WALL LOUVERED WINDOW FLOOR MOUNTED W.C AS PER SPECIFICATION 150 MM THICK R.C.C SLAB 230 MM THICK DRY RUBBLE PACKING 200 MM THICK BRICK BAT COBA (SUNK) 300X300 VITRIFIED TILES DADO TILES OVER HEAD SHOWER AS PER SPECIFICATION 12 MM THICK VITRIFIED TILES 18 MM THICK EXTERNAL PLASTER SECTION @ B-B' 150 MM THICK R.C.C SLAB 230 MM THICK BRICK WALL 150 MM THICK R.C.C SLAB 230 MM THICK DRY RUBBLE PACKING 200 MM THICK BRICK BAT COBA (SUNK) 300X300 VITRIFIED TILES DADO TILES 40 MM THICK SAND CEMENT SCREED 18 MM THICK EXTERNAL PLASTER 12 MM THICK VITRIFIED TILES SECTION @ D-D' KEYPLAN RIZVI COLLEGE OF ARCHITECTURE YEAR: 3RD YEAR EXAM SEAT No.5157 ROLL NO.: 1912 NAME: SARIYA. A.KHAN DWG No.: 22 COLLEGE STAMP & SIGN. LEGEND NOTES SCALE: 1:20 1. THIS IS AN ACADEMIC EXERCISE. 2. DRAWINGS SHOULD NOT BE MEASURED. 3. DATA'S ARE ASSUMED WHEREVER REQUIRED. 4. R.C.C FRAMED STRUCTURE. 5. REFER SEPARATE NOTES FOR MINIMUM DEPTH,THICKNESS,PROJECT SPECIFICATIONS FOR STRUCTURAL MEMBERS. 6. WALLS ARE 230 AND 150 MM. THK. RESPECTIVELY. 7. BRICKS TO BE LAID WITH FROGS UPWARDS. 8. MORTARS SHOULD NOT EXCEED 18 MM IN THICKNESS. 9. FIRST COAT TO BE MADE WITH WATER PROOFING ADMIXTURES. 10. DRIP MOULD TO BE PROVIDED TO ANY PROJECTIONS. 11. PLASTER THICKNESS 12 MM INTERNALLY AND 18 MM EXTERNALLY. 12. ALL DIMENSIONS ARE FROM UNFINISHED TO UNFINISHED FACE. 13. LEVELS ARE MENTION WITH REFERENCE TO THE GROUND FLOOR LEVEL. 14. ARCHITECTURAL PROJECTIONS SUCH AS CHAJJA,CANOPIES TO BE SHOWN IN DOTTED LINE, EXCEPTION FOR CASE SPECIFIC. 15. VOIDS TO BE MARKED WITH DIAGONAL LINES. 16. DRAWINGS TO BE CHECKED THOROUGHLY BY THE SITE ENGINEER BEFORE THE EXECUTION OF WORK. 17. ANY AMBIGUITY TO BE CLARIFIED BY THE ARCHITECT WITH IMMEDIATE EFFECT IN WRITING.
KEYPLAN SHEET: TOILET DETAILS A A' B B' C C' PLAN 2085 D D' 150 MM THICK R.C.C SLAB 230 MM THICK BRICK WALL 800 X 1000 FULL WIDE MIRROR 800X2100 DOOR AS PER SPECIFICATION 150 MM THICK R.C.C SLAB 230 MM THICK DRY RUBBLE PACKING 200 MM THICK BRICK BAT COBA (SUNK) 300X300 VITRIFIED TILES DADO TILES 40 MM THICK SAND CEMENT SCREED 12 MM THICK VITRIFIED TILES 18 MM THICK EXTERNAL PLASTER 450X500 MM COUNTER SUNK WASH BASIN SECTION @ C-C' D2 150MM THICK R.C.C SLAB 150 MM THICK R.C.C SLAB 230 MM THICK BRICK WALL LOUVERED WINDOW FLOOR MOUNTED
150
230
200
300X300
40
18
12
OVER HEAD SHOWER
W.C AS PER SPECIFICATION
MM THICK R.C.C SLAB
MM THICK DRY RUBBLE PACKING
MM THICK BRICK BAT COBA (SUNK)
VITRIFIED TILES DADO TILES
MM THICK SAND CEMENT SCREED
MM THICK EXTERNAL PLASTER
MM THICK VITRIFIED TILES
AS PER SPECIFICATION SECTION @ A-A'
WALL 150 MM THICK R.C.C SLAB 230 MM THICK DRY RUBBLE PACKING 200 MM THICK BRICK BAT COBA (SUNK) 300X300 VITRIFIED TILES DADO TILES 40 MM THICK SAND CEMENT SCREED 18 MM THICK EXTERNAL PLASTER 12 MM THICK VITRIFIED TILES SECTION @ D-D' DWG No.: 22 COLLEGE STAMP & SIGN. LEGEND NOTES SCALE: 1:20 1. THIS IS AN ACADEMIC EXERCISE. 2. DRAWINGS SHOULD NOT BE MEASURED. 3. DATA'S ARE ASSUMED WHEREVER REQUIRED. 4. R.C.C FRAMED STRUCTURE. 5. REFER SEPARATE NOTES FOR MINIMUM DEPTH,THICKNESS,PROJECT SPECIFICATIONS FOR STRUCTURAL MEMBERS. 6. WALLS ARE 230 AND 150 MM. THK. RESPECTIVELY. 7. BRICKS TO BE LAID WITH FROGS UPWARDS. 8. MORTARS SHOULD NOT EXCEED 18 MM IN THICKNESS. 9. FIRST COAT TO BE MADE WITH WATER PROOFING ADMIXTURES. 10. DRIP MOULD TO BE PROVIDED TO ANY PROJECTIONS. 11. PLASTER THICKNESS 12 MM INTERNALLY AND 18 MM EXTERNALLY. 12. ALL DIMENSIONS ARE FROM UNFINISHED TO UNFINISHED FACE. 13. LEVELS ARE MENTION WITH REFERENCE TO THE GROUND FLOOR LEVEL. 14. ARCHITECTURAL PROJECTIONS SUCH AS CHAJJA,CANOPIES TO BE SHOWN IN DOTTED LINE, EXCEPTION FOR CASE SPECIFIC. 15. VOIDS TO BE MARKED WITH DIAGONAL LINES. 16. DRAWINGS TO BE CHECKED THOROUGHLY BY THE SITE ENGINEER BEFORE THE EXECUTION OF WORK. 17. ANY AMBIGUITY TO BE CLARIFIED BY THE ARCHITECT WITH IMMEDIATE EFFECT IN WRITING. TWIN BUNGALOW KEYPLAN SHEET: TOILET DETAILS A D 150 MM THICK R.C.C SLAB 230 MM THICK BRICK WALL 800 X 1000 FULL WIDE MIRROR 800X2100 DOOR AS PER SPECIFICATION 150 MM THICK R.C.C SLAB 230 MM THICK DRY RUBBLE PACKING 200 MM THICK BRICK BAT COBA (SUNK) 300X300 VITRIFIED TILES DADO TILES 40 MM THICK SAND CEMENT SCREED 12 MM THICK VITRIFIED TILES 18 MM THICK EXTERNAL PLASTER 450X500 MM COUNTER SUNK WASH BASIN SECTION @ C-C' D2 150MM THICK R.C.C SLAB 150 MM THICK R.C.C SLAB 230 MM THICK BRICK WALL LOUVERED WINDOW FLOOR MOUNTED W.C AS PER SPECIFICATION 150 MM THICK R.C.C SLAB 230 MM THICK DRY RUBBLE PACKING 200 MM THICK BRICK BAT COBA (SUNK) 300X300 VITRIFIED TILES DADO TILES 40 MM THICK SAND CEMENT SCREED 18 MM THICK EXTERNAL PLASTER 12 MM THICK VITRIFIED TILES OVER HEAD SHOWER AS PER SPECIFICATION SECTION @ A-A' 150 MM THICK R.C.C SLAB 230 MM THICK BRICK WALL LOUVERED WINDOW FLOOR MOUNTED W.C AS PER SPECIFICATION 150 MM THICK R.C.C SLAB 230 MM THICK DRY RUBBLE PACKING 200 MM THICK BRICK BAT COBA (SUNK) 300X300 VITRIFIED TILES DADO TILES OVER HEAD SHOWER AS PER SPECIFICATION 12 MM THICK VITRIFIED TILES 18 MM THICK EXTERNAL PLASTER SECTION @ B-B' 150 MM THICK R.C.C SLAB 230 MM THICK BRICK WALL 150 MM THICK R.C.C SLAB 230 MM THICK DRY RUBBLE PACKING 200 MM THICK BRICK BAT COBA (SUNK) 300X300 VITRIFIED TILES DADO TILES 40 MM THICK SAND CEMENT SCREED 18 MM THICK EXTERNAL PLASTER 12 MM THICK VITRIFIED TILES SECTION @ D-D' NOTES 1. THIS IS AN ACADEMIC EXERCISE. 2. DRAWINGS SHOULD NOT BE MEASURED. 3. DATA'S ARE ASSUMED WHEREVER REQUIRED. 4. R.C.C FRAMED STRUCTURE. 5. REFER SEPARATE NOTES FOR MINIMUM DEPTH,THICKNESS,PROJECT SPECIFICATIONS FOR STRUCTURAL MEMBERS. 6. WALLS ARE 230 AND 150 MM. THK. RESPECTIVELY. 7. BRICKS TO BE LAID WITH FROGS UPWARDS. 8. MORTARS SHOULD NOT EXCEED 18 MM IN THICKNESS. 9. FIRST COAT TO BE MADE WITH WATER PROOFING ADMIXTURES. 10. DRIP MOULD TO BE PROVIDED TO ANY PROJECTIONS. 11. PLASTER THICKNESS 12 MM INTERNALLY AND 18 MM EXTERNALLY. 12. ALL DIMENSIONS ARE FROM UNFINISHED TO UNFINISHED FACE. 13. LEVELS ARE MENTION WITH REFERENCE TO THE GROUND FLOOR LEVEL. 14. ARCHITECTURAL PROJECTIONS SUCH AS CHAJJA,CANOPIES TO BE SHOWN IN DOTTED LINE, EXCEPTION FOR CASE SPECIFIC. 15. VOIDS TO BE MARKED WITH DIAGONAL LINES. 16. DRAWINGS TO BE CHECKED THOROUGHLY BY THE SITE ENGINEER BEFORE THE EXECUTION OF WORK. 17. ANY AMBIGUITY TO BE CLARIFIED BY THE ARCHITECT WITH IMMEDIATE EFFECT IN WRITING. TWIN BUNGALOW KEYPLAN 150 MM THICK R.C.C SLAB 230 MM THICK BRICK WALL LOUVERED WINDOW FLOOR MOUNTED W.C AS PER SPECIFICATION 150 MM THICK R.C.C SLAB 230 MM THICK DRY RUBBLE PACKING 200 MM THICK BRICK BAT COBA (SUNK) 300X300 VITRIFIED TILES DADO TILES 40 MM THICK SAND CEMENT SCREED 18 MM THICK EXTERNAL PLASTER 12 MM THICK VITRIFIED TILES OVER HEAD SHOWER AS PER SPECIFICATION SECTION @ A-A' 150 MM THICK R.C.C SLAB 230 MM THICK BRICK WALL LOUVERED WINDOW FLOOR MOUNTED W.C AS PER SPECIFICATION 150 MM THICK R.C.C SLAB 230 MM THICK DRY RUBBLE PACKING 200 MM THICK BRICK BAT COBA (SUNK) 300X300 VITRIFIED TILES DADO TILES OVER HEAD SHOWER AS PER SPECIFICATION 12 MM THICK VITRIFIED TILES 18 MM THICK EXTERNAL PLASTER SECTION @ B-B' KEYPLAN RIZVI COLLEGE OF ARCHITECTURE YEAR: 3RD YEAR EXAM SEAT No.5157 ROLL NO.: 1912 NAME: SARIYA. A.KHAN DWG No.: 22 COLLEGE STAMP & SIGN. LEGEND NOTES SCALE: 1:20 1. THIS IS AN ACADEMIC EXERCISE. 2. DRAWINGS SHOULD NOT BE MEASURED. 3. DATA'S ARE ASSUMED WHEREVER REQUIRED. 4. R.C.C FRAMED STRUCTURE. 5. REFER SEPARATE NOTES FOR MINIMUM DEPTH,THICKNESS,PROJECT SPECIFICATIONS FOR STRUCTURAL MEMBERS. 6. WALLS ARE 230 AND 150 MM. THK. RESPECTIVELY. 7. BRICKS TO BE LAID WITH FROGS UPWARDS. 8. MORTARS SHOULD NOT EXCEED 18 MM IN THICKNESS. 9. FIRST COAT TO BE MADE WITH WATER PROOFING ADMIXTURES. 10. DRIP MOULD TO BE PROVIDED TO ANY PROJECTIONS. 11. PLASTER THICKNESS 12 MM INTERNALLY AND 18 MM EXTERNALLY. 12. ALL DIMENSIONS ARE FROM UNFINISHED TO UNFINISHED FACE. 13. LEVELS ARE MENTION WITH REFERENCE TO THE GROUND FLOOR LEVEL. 14. ARCHITECTURAL PROJECTIONS SUCH AS CHAJJA,CANOPIES TO BE SHOWN IN DOTTED LINE, EXCEPTION FOR CASE SPECIFIC. 15. VOIDS TO BE MARKED WITH DIAGONAL LINES. 16. DRAWINGS TO BE CHECKED THOROUGHLY BY THE SITE ENGINEER BEFORE THE EXECUTION OF WORK. 17. ANY AMBIGUITY TO BE CLARIFIED BY THE ARCHITECT WITH IMMEDIATE EFFECT IN WRITING.
KEYPLAN SHEET: TOILET DETAILS A A' B B' C C' PLAN 2085 D D' 150 MM THICK R.C.C SLAB 230 MM THICK BRICK WALL 800 X 1000 FULL WIDE MIRROR 800X2100 DOOR AS PER SPECIFICATION 150 MM THICK R.C.C SLAB 230 MM THICK DRY RUBBLE PACKING 200 MM THICK BRICK BAT COBA (SUNK) 300X300 VITRIFIED TILES DADO TILES 40 MM THICK SAND CEMENT SCREED 12 MM THICK VITRIFIED TILES 18 MM THICK EXTERNAL PLASTER 450X500 MM COUNTER SUNK WASH BASIN SECTION @ C-C' D2 150MM
W2 NORTH ELEVATION W3 W2 +1.25M +0.2M +1.25M -8.0M -8.0M -4.1M -6.3M -2.2M SITE GROUND LEVEL PLINTH LEVEL SILL LEVEL LINTEL LEVEL FIRST FLOOR LEVEL BALCONY LINTEL LEVEL SECOND FLOOR LEVEL BALCONY LINTEL LEVEL TERRACE FLOOR LEVEL MUMPTY LEVEL OHT BOTTOM LEVEL BUND WALL LEVEL OHT TOP LEVEL +0.15M +0.75M +1.65M +2.85M +4.05M +6.1M +7.35M +9.4M +10.65M +13.85M +14.75M +16.6M +17.05M GROUND LEVEL +0.0M -12.3M 0.0M -12.3M -12.3M PARAPET LEVEL +12M MS RAILING PAINT AND PLASTER COAT PAINT AND PLASTER COAT W5 1200MM PARAPET WALL RCC CHAJJJA FOUR SHUTTER ALUMINIUM FRAMED SLIDING WINDOW 12MM THICK STONE FINISH TEXTURED TILE WALL FINISHED WITH 18 MM THICK PLASTER, 1 COAT OF PUTTY ,2 COATS OF PRIMER, COATS OF ASIAN PAINTS WITH ROUGH FINISH 100 MM GROOVE IN THE WALL 2000 MMX1200MM TWO SHUTTER FRENCH CASEMENT WINDOW-OPEN OUT WITH 10MM THICK GLASS 2 COATS OF PLASTER, 2COATS OF ASIAN PAINTS IMPRESSION WITH ROUGH FINISH 150MM X 150MM MS PERGOLA 1200MM X 1200MM TWO SHUTTER FRENCH CASEMENT WINDOW-OPEN OUT WITH 10MM THICK GLASS 800MM 2100MM PVC DOOR R.C.C BOXING FINISHED WITH 18MM THICK PLASTER OVER HEAD TANK D2 PLASTER COAT EAST ELEVATION D2 D2 W4 W4 0.0M 0.0M 0.0M 0.0M +0.2M +0.2M +0.1M +0.1M +0.6M 0.0M -4.7M SITE GROUND LEVEL PLINTH LEVEL SILL LEVEL LINTEL LEVEL FIRST FLOOR LEVEL BALCONY LINTEL LEVEL SECOND FLOOR LEVEL BALCONY LINTEL LEVEL TERRACE FLOOR LEVEL MUMPTY LEVEL OHT BOTTOM LEVEL BUND WALL LEVEL OHT TOP LEVEL +0.15M +0.75M +1.65M +2.85M +4.05M +6.1M +7.35M +9.4M +10.65M +13.85M +14.75M +16.6M +17.05M GROUND LEVEL +0.0M PARAPET LEVEL +12M PAINT AND MS RAILING 1200MM PARAPET WALL RCC CHAJJJA TWO SHUTTER ALUMINIUM FRAMED SLIDING WINDOW WALL FINISHED WITH 18 MM THICK PLASTER, COAT OF PUTTY COATS OF PRIMER, COATS OF ASIAN PAINTS WITH ROUGH FINISH 1200 MMX1200MM TWO SHUTTER FRENCH CASEMENT WINDOW-OPEN OUT WITH 10MM THICK GLASS COATS OF PLASTER, 2COATS OF ASIAN PAINTS IMPRESSION WITH ROUGH FINISH 150MM 150MM MS PERGOLA 75 MM THICK GRC JAALI 800MM 2100MM PVC DOOR R.C.C BOXING FINISHED WITH 18MM THICK PLASTER OVER HEAD TANK 100MM GROOVE IN THE WALL WALL FINISHED WITH 18 MM THICK PLASTER, COAT OF PUTTY COATS OF PRIMER, COATS OF ASIAN PAINTS WITH SMOOTH FINISH W2 NORTH ELEVATION W3 W2 +1.25M +0.2M +1.25M -8.0M -8.0M -4.1M -6.3M -2.2M SITE GROUND LEVEL PLINTH LEVEL SILL LEVEL LINTEL LEVEL FIRST FLOOR LEVEL BALCONY LINTEL LEVEL SECOND FLOOR LEVEL BALCONY LINTEL LEVEL TERRACE FLOOR LEVEL MUMPTY LEVEL OHT BOTTOM LEVEL BUND WALL LEVEL OHT TOP LEVEL +0.15M +0.75M +1.65M +2.85M +4.05M +6.1M +7.35M +9.4M +10.65M +13.85M +14.75M +16.6M +17.05M GROUND LEVEL +0.0M -12.3M 0.0M -12.3M -12.3M PARAPET LEVEL +12M PAINT AND PLASTER COAT PAINT AND PLASTER COAT ROUGH OVER
Staircase Plan @ 1st floor Plan @ 2nd floor Plan @ terracefloor
Details:
SECTION @ D-D'
Section through the
Toilet
Elevation
Plan of Toilet

recycled materials. artisanal knowledge, develop the own methods. context, tradition, knowledge and labour.

ROOF TRUSS

Material:

1. LOUIS .I. KAHN | N.A.S.A |DOCUMENTATION TROPHY

Louis I. Kahn is a documenation Trophy,where documentation is carried out for a structure Pertaining to the given brief of the year.

• Jetavan Center - (2020-2021) (A structure Where Contemporary & Traditional Architecture meets )

• The Pupil Tree School - (2021-2022)

Infill Architecture( A Place where the structure responds to the Context ,User and the Climate of the region)

My Contribution: Research,Analysis and Sheet content.

2.ANNUAL N.A.S.A DESIGN COMPETITION | ANDC | DESIGN TROPHY

The Construction workers are an integral part of the construction industry, however they are not given much importance and are exploited.The workers come from different background, region and dedicate their time and efforts towards the development of others while they themselves decay in negelected living.

The intent of the brief was to design flexible dwelling units for construction workers that caters to their need and builds a sense of community.

3.ROTARY YOUTH LEADERSHIP AWARD | R.Y.L.A | DESIGN COMPETITION

The brief of the competition was to redesign the Architecture School .

KOPARGAON , MAHARASHTRA, Tradition.Transition.Innovation.

31 38X38 MM TW PURLIN 100 MM DIA MUD ROLLS T.W. TRUSS AXONOMETRIC VIEW
LIK 2020-21
no 63LIK-1
Sheet
shipping
trusses supported on walls transfer the load of
inverted
Repurposed, seasoned timber of old
vessels from ship breaking yards. Technique: Timber
the
roof.
in roof profile; functional yet aesthetically pleasing •Resembles stone ribbed Buddhist cave architecture from old shipping vessel PRODUCED BY AN AUTODESK STUDENT VERSION MM THK RAMMED FLY ASH WALL MM THK LINTEL 50X75 MM THK TW RAFTER 38X38 MM TW PURLIN MANGALORE TILES MM DIA MUD ROLLS 50X75 MM TW MEMBER NO.s 38X75 MM TW MEMBER
50X75 MM THK TW RAFTER 7 N Credits to all the Team Members for their Contribution COMPETITIONS | N.A.S.A | R.Y.L.A
Merits: •Innovation
36 I N D E X 01 02 03 - Lap joint to attach adjacent floor panels together. - Both sides of panel tied to the framework. - Door with bamboo frame and decking sheet panel. - Decking sheets for roofing. - Members of roofing framework tied with rope. - Window is a cut out in the wall panel, where the shutter becomes an adjustable chajja. - An Indoor-Outdoor stand used for drying clothes. - The roof is sloping and as an alternative, can be extended by adding a mezzanine floor. - Mezzanine floor fixed halfway at a height of 2.1 m using bamboo framework - The partition wall is made of a fabric, stretched on bamboo framework. - Resting Space - Cot (Charpai) woven with cotton tape. - Fabric cloth hooked onto the bamboo frame. -Joinery detail of bamboo framework. - Bamboo shelves created for storage, tied using a rope to the main framework. Step 01 Step 02 Step03 Step 04 Step 05 Step 01 Step 02 1) A mezzanine floor can be used in case of space constraints on site. 2) The mezzanine floor is optional and can be added on to the existing unit if there an increase in number of labourers. - Internal wall creates a private space which can be used as changing room, child care. I NTERIOR A.N.D.C | 2021-2022
- The front panel of the housing module can be removed to create the module for the kitchen and community area. - A semi-open extension is attached onto the housing module which would act as a foreground space for the common kitchen (integrated with washing area) and for the extended community area (used as parking). - Hooks are provided on the central timber pole to attach the strings that support the roof. Step 01 Step 01 Step 02 - A single housing unit consisting of three modules arranged in a “U” shape can have multiple arrangements depending on the site constraints. - On a sloping terrain, extra members are added for levelling the structure. - On flat terrain, the module is elevated above the ground using bricks R.Y.L.A | 2021-2022
38

Credits to all the Mentors & Team Members for their contribution

CLASS DOCUMENTATION | SASSOON DOCK |SOUTH BOMBAY

Documentation of Sassoon Dock was a Part of Semester 6 Architecture Design Studio which aimed at understanding the tangible and intangible heritage of the Sassoon Dock and its importance to the Bombay City. The Documentation covered different layers in terms of:

• History of Bombay through timeline covering different aspects

• context and Building Forms

• Landscape and Topography

• Activity Mapping

• Demographics

The Documentation aimed to create awareness about the docks, Indigenous communities and the Profession associated with them.

39
DOCUMENTATION |SASSOON DOCK

CONTEXT & BUILDING FORMS

40 1945 1824 1845 1853 1870 1875 1888 1896 1911 1920 1944 1854 1982 1861 1940 BOMBAY HIT BY DROUGHT CAUSING MASS MIGRATIONS BOMBAY FIRE LAND RECLAMATION CONNECTING WORLI AND PAREL FIRST COTTON MILL STARTED LAND RECLAMATION WORK UNDERTAKEN SUEZ CANAL OPENED BOMBAY PORT TRUST ESTABLISHED FAMINE BREAKS OUT FOLLOWED BY BUBONIC PLAGUE DEPARTMENT OF FISHERIES ESTABLISHED RECLAMATION WORK ALONG EAST AND WEST COASTS BOMBAY HARBOUR EXPLOSION RECLAMATION WORK ALONG NARIMAN POINT DECLINE OF THE MILLS DUS TO RISING COSTS AND WORKERS STRIKES LAND RECLAMATION IN BKC AREA AMERICAN CIVIL WAR BEGINS WWI BEGINS, ENDS IN 1918 WWII BEGINS, ENDS IN 1945 INDIA GETS INDEPENDENCE LIBERISATION OF INDIAN ECONOMY START OF THE COLD WAR 2010 1861 1869 1914 1939 1947 1959 1993 COTTON TRADE UNDERWAY AT COTTON GREENS MUKESH MILLS OPENED FOR COTTON TEXTILE PURCHASED BY THE GOVERNMENT 1870 1879 1873 1861 1920 1977 EFFORT TO CONVERT DOCKS TO A FISH PROCESSING CENTER DECLINE OF MILLS AFTER DECADES OF RISING COSTS EXPANSION TO SASSOON DOCKS WITH CONSTRUCTION OF NEW WAREHOUSES PROPOSAL TO MODERNISE SASSOON DOCKS ART EXHIBITION BASED AT SASSOON DOCKS 1961 1982 1995 2014 2017 COTTON GREENS SHIFTED FURTHER SOUTH TO COLABA 1879 SASSOON DOCK OPENED 1844 2017 TRADE 1900 2000 2020 ARTISANAL FISHING FARMING MILLS COMMERCIAL FISHING MUKESH MILLS 1870 1859 1938 LIBERTY CINEMA 1949 GATEWAY OF INDIA 1911 FIRST TRAIN RUNS BETWEEN BOMBAY AND THANE BOMBAY MUNICIPAL CORPORATION ESTABLISHED GATEWAY OF INDIA BUILT FORT ARCHITECTURE INDO-SARACENIC ARCHITECTURE ART DECO ARCHITECTURE CONTEMPORARY ARCHITECTURE POPULATION AROUND 16000 PEOPLE IN 1718 AD POPULATION AROUND 821,764 PEOPLE IN 1821AD POPULATION AROUND 1,63,68,084 PEOPLE IN 2001 AD AFGHAN CHURCH 1847 SETTLEMENTS FORT AREA SETTLEMENTS LAND RECLAMATION FORCES FISHERMEN FURTHER OUT TO SEA SASSOON DOCK 1875 DEEP SEA FISHING IN TRAWLERS BEGINNING OF COMERCIAL FISHING ACTIVITES HORNIMAN CIRCLE ONE OF THE FIRST PLANNED ASPECTS OF BOMBAY FARMLANDS REDUCE IN AREA DUE TO EXPANSION FOR SETTLEMENTS TRADERS AND BUSINESSMEN SETTLE IN THE CITY MIGRATION OF PEOPLE NORTH TOWARDS THE MAINLAND OPENING OF MULTIPLE FERRY SERVICES OPERATED BY PRIVATE INDIVIDUALS MASS MIGRATIONS TO THE CITY IN SEARCH OF JOBS POPULATION AROUND 4152056 PEOPLE IN 1961AD GLOBALISATION MODERNISATION MAHIM KOLIWADA WORLI KOLIWADA SION KOLIWADA COLABA KOLIWADA ALEXANDRA DOCKS 1914 HISTORY & EVOLUTION
41 ACTIVITY MAPPING
42 ACTIVITY MAPPING
44 LIGHT & SHADOWS
45 SOLIDS & VOIDS
46 sariyaak2480@gmail.com | +919372439044 | Mumbai THANK YOU ! SARIYA KHAN Gratitude to all those who shaped my path !

Turn static files into dynamic content formats.

Create a flipbook
Issuu converts static files into: digital portfolios, online yearbooks, online catalogs, digital photo albums and more. Sign up and create your flipbook.