Housing For Creatives - Residential architecture design folio

Page 1

ARCHITECTURE DESIGN SANSKAR JADHAV S-VII-2021722 HOUSING FOR CREATIVES

Project Brief

Design a housing scheme, as a mixed-use development, in Mumbai, along with allied facilities, infrastructure, services, and amenities, that shall cater to the current and futuristic housing requirement of the city. An interesting mix of creatives and artistic expressions are introduced, in the hope that the project outcome shall have a distinct personality & visual flavour true to its residents.

The residents consist of Creative Artists from two or more genres, co-living within a residential society, in a manner that reinforces their individual art forms and offers scope for professional, intellectual and spiritual engagement and growth. For this purpose, Primary Creative shall engage with a secondary art form (asides from their own), to create a holistic environment for collaborative growth.

Hence the creatives chosen are sculptor, potter and metal fabricator which will co-operate with each other, engage and will reflect their need in design also. A co-living for multiple artists hoousing is designed for low and mid income groups. Services provided like workshops, exhibition halls to showcase work, multipurpose halls, galleries, laundromat, community kitchens, salons, gym, recreational spaces, etc.

Site

The proposed site for housing for the artist is located in MBPT land. According to the Port trust draft proposal for port land redevelopment, the land is going to be developed for the citizen for recreation and cultural hub. Keeping this in mind the Housing for Creatives can be a component of the same precinct. The proximity to existing art hub like Kala Ghoda and proposed art street in port trust land will add to the value to the proposal.

The proposed site is a virgin land admeasuring 100mx95m. Towards the southern side of the site is 18mt wide road which is connected to cotton green station.

Vision

Purpose was to build for 3 art creatives and have a co- living nature with them and support their occupation which could help them grow. Mumbai is now home to many artists, and it has ushered in a new era of culture and tradition. Discover these treasures of Mumbai’s urban culture.

I tried to modernize the architectural style but with appreciating the old city, a new combination to the neighbourhood was created by our project, with the form, community shared spaces and Elevation style we created a healthy environment to interact and live peacefully. Every unit takes at least 2 view directly to the park and one to the society. Everyone have his own breathe. The random design of the units to make you feel free as possible far from the monotony of city buildings with a lot of recreational areas to make you breathe and the ability

1 Sem 7 AD folio | SANSKAR JADHAV | 1813
Site area - 9500 sqm, Site location - Near Cotton green station, EWF, Mumbai

Concept Form

exploration

3 Level modu concept

COMMON LOBBY AND AN INTERACTIVE

EACH MODULE HAVE 2-3 DIFFERENT LEVELS ACCESSIBLE BY SINGLE LOBBY.

ALL THE UNITS ARE INWARD LOOKING TO THE LOBBY.

T HESE SPACE COULD BE USED BY RESIDENTS FOR INFORMAL MEETUPS, FOR CHILDREN TO PLAY, ARTISTS TO DISCUSSION AND FOR RESIDENTS AS A OPEN DECK.

Repition of units in staggering form

Chawl concept

Mumbai chawls are so old co-living built for the low income groups. These have courtyards in between for gatherings and to celebrate festivals. Sharing corridors makes all units interacting and always holds cummunity. All buildings are only 3-4 storey high and inward looking.

We can see unity in diversity on the facade. Everyone has different shapes of protruding balconies creates an aesthetic on the facade.

2 Sem 7 AD folio | SANSKAR JADHAV | 1813
Terraces forming within Puzzling of spaces
3 Sem 7 AD folio | SANSKAR JADHAV | 1813
4 Sem 7 AD folio | SANSKAR JADHAV | 1813 STUDIO APARTMENT TYPE 1
1
STUDIO APARTMENT TYPE 2 & 3
3 BHK UPPER LEVEL STUDIO APARTMENT TYPE 2 & 3
2 BHK TYPE 1 STUDIO APARTMENT TYPE 2 & 3
1 BHK TYPE
2 BHK TYPE 1
1 BHK TYPE 2 3 BHK LOWER LEVEL
1 BHK TYPE 4
2 BHK TYPE 1
1 BHK TYPE 3
1 BHK TYPE 5

INDOOR GAMES AREA

SQUASH COURT

SHUFFLEBOARD COURT

CHILDREN PLAY AREA

EXHIBITION HALL

5 Sem 7 AD folio | SANSKAR JADHAV | 1813
BANQUET HALL SCULPTOR’S STUDIO GYM AND YOG MULTIPURPOSE HALL RESTAURANT GROCERY MART
6 Sem 7 AD folio | SANSKAR JADHAV | 1813
GROUND FLOOR PLAN
SITE PLAN

BASEMENT FLOOR PLAN

7 Sem 7 AD folio | SANSKAR JADHAV | 1813

PODIUM LEVEL PLANS

8 Sem 7 AD folio | SANSKAR JADHAV | 1813
PODIUM LEVEL 1 PLAN PODIUM LEVEL 2 PLAN
9 Sem 7 AD folio | SANSKAR JADHAV | 1813
LEVEL PLAN
LEVEL 3 PLAN PODIUM LEVEL PLANS
BRIDGE
PODIUM

TYPICAL FLOOR PLANS/UNIT PLANS

10 Sem 7 AD folio | SANSKAR JADHAV | 1813
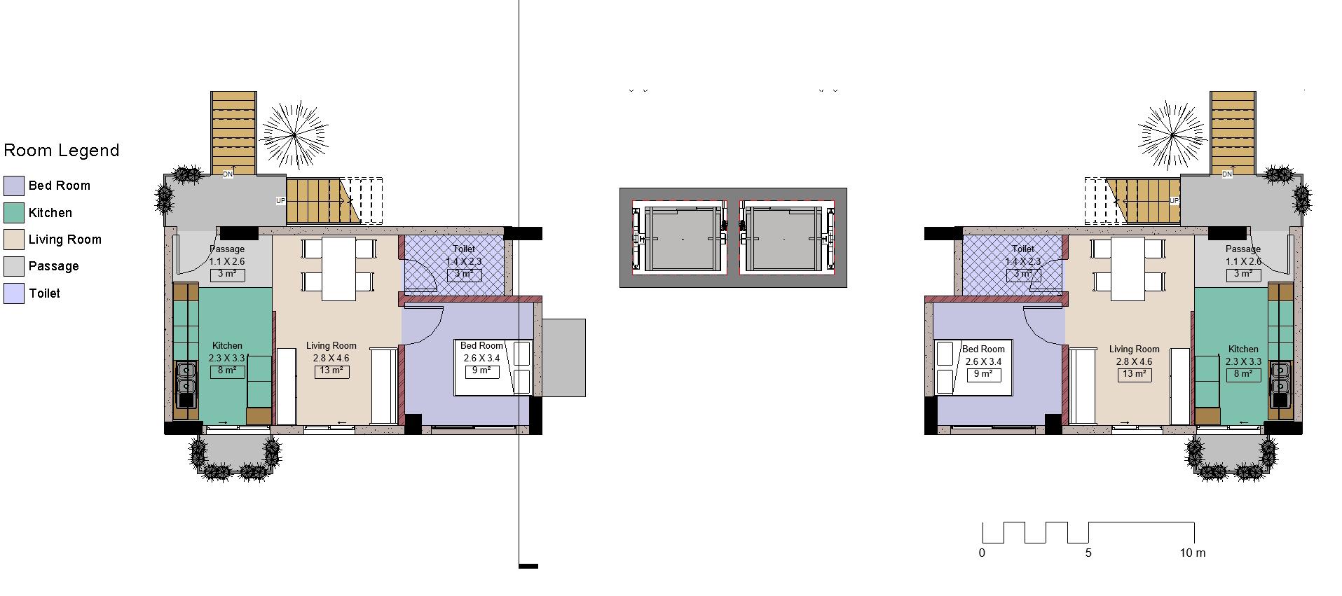
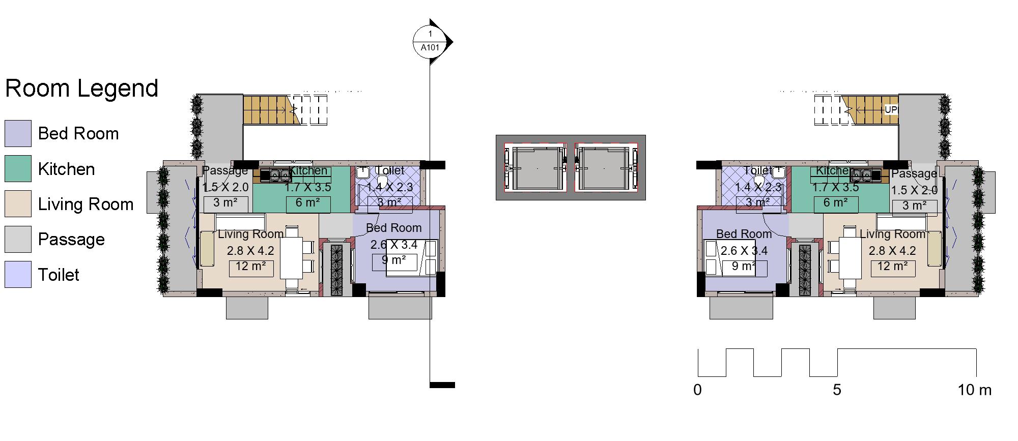
STUDIO APARTMENT TYPE 1 AREA - 30 SQM. LEVEL 01 1 BHK TYPE 1 AREA - 38 SQM. LEVEL 03 2 BHK TYPE 1 AREA - 66 SQM. LEVEL 04 STUDIO APARTMENT TYPE 2 & 3 AREA - 21 SQM. & 26 SQM. LEVEL 02

LEVEL 07

LEVEL 06

LEVEL 08

11 Sem 7 AD folio | SANSKAR JADHAV | 1813
LEVEL 05 1 BHK TYPE 2 AREA - 36 SQM. 3 BHK LOWER LEVEL AREA - 36 SQM. 3 BHK UPPER LEVEL AREA - 47 SQM. | TOTAL AREA - 83 SQM STUDIO APARTMENT TYPE 2 & 3 AREA - 21 SQM. & 26 SQM.

LEVEL

LEVEL

LEVEL

12 Sem 7 AD folio | SANSKAR JADHAV | 1813
10 1 BHK TYPE 4 AREA - 40 SQM. 11 2 BHK TYPE 1 AREA - 66 SQM. 12 STUDIO APARTMENT TYPE 2 & 3 AREA - 21 SQM. & 26 SQM. 1 BHK TYPE 3 AREA - 31 SQM. LEVEL 09
13 Sem 7 AD folio | SANSKAR JADHAV | 1813
1 BHK TYPE 5 AREA - 40 SQM. LEVEL 13 LEVEL 14 STUDIO APARTMENT TYPE 2 & 3 AREA - 21 SQM. & 26 SQM. LEVEL 16 2 BHK TYPE 1 AREA - 66 SQM. LEVEL 15 REFUGEE AREA AREA - 44 SQM.

SITE SECTION 01

14 Sem 7 AD folio | SANSKAR JADHAV | 1813
15 Sem 7 AD folio | SANSKAR JADHAV | 1813
SITE SECTION 02

SECTION 01 SECTION 02

16 Sem 7 AD folio | SANSKAR JADHAV | 1813
1 2
17 Sem 7 AD folio | SANSKAR JADHAV | 1813 NORTH ELEVATION
18 Sem 7 AD folio | SANSKAR JADHAV | 1813 EAST ELEVATION
19 Sem 7 AD folio | SANSKAR JADHAV | 1813 SOUTH ELEVATION
20 Sem 7 AD folio | SANSKAR JADHAV | 1813 EAST ELEVATION
21 Sem 7 AD folio | SANSKAR JADHAV | 1813
22 Sem 7 AD folio | SANSKAR JADHAV | 1813
23 Sem 7 AD folio | SANSKAR JADHAV | 1813
24 Sem 7 AD folio | SANSKAR JADHAV | 1813
25 Sem 7 AD folio | SANSKAR JADHAV | 1813
26 Sem 7 AD folio | SANSKAR JADHAV | 1813
27 Sem 7 AD folio | SANSKAR JADHAV | 1813 Scan to further explore design

Turn static files into dynamic content formats.

Create a flipbook
Issuu converts static files into: digital portfolios, online yearbooks, online catalogs, digital photo albums and more. Sign up and create your flipbook.
Housing For Creatives - Residential architecture design folio by Sanskar Jadhav - Issuu