Análisis de la Casa Solariega Ganoza Chopitea

Page 1

CASA GANOZA CHOPITEA

HISTORIA DE LA PROPUESTA

Buscamos elaborar una propuesta de museo que pretenda buscar la puesta en valor de la conservación del patrimonio cultural, a través de la promoción de su valor arquitectónico e histórico que busque sensibilizar y mostrar la belleza de nuestro patrimonio Trujillano en el que dia a dia vamos desenvolviendonos, y desarrollando distintas actividades. Todo esto, considerando completamente las distintas casonas solariegas que se encuentran en el centro histórico de nuestra ciudad, rescatando lo que fueron, sus funciones, su estilo arquitectónico, sus ornamentaciones y su historia, así como la función actual que presenta o alberga cada una de estas.

IDEA: DETRÁS DE LA VENTANA

PORFOLIO 19/12/22 - UNIVERSIDAD NACIONAL DE TRUJILLO H-01 Integrantes Curso: Lámina: Docente: Taller de conservación del patrimonio Mg. Arq. Miky Torres Garay Alejandria, Sunny Solange Ca uso Ant cona Em y A exand a Calderón Reyes, Francisco Javier R o Peña sa a Agu t n P nedo Gomez E an Ca o Gonza e Huamán Anaye y Ge a d ne V da Garc a Kev n Oma Sánchez V anueva Ca o Josué Rodr gue Rub o C s an And é
PORFOLIO 19/12/22 - UNIVERSIDAD NACIONAL DE TRUJILLO H-02 Integrantes Curso: Lámina: Docente: Taller de conservación del patrimonio Mg. Arq. Miky Torres Garay Alejandria, Sunny Solange Ca uso Ant cona Em y A exand a Calderón Reyes, Francisco Javier R o Peña sa a Agu t n P nedo Gomez E an Ca o Gonza e Huamán Anaye y Ge a d ne V da Garc a Kev n Oma Sánchez V anueva Ca o Josué Rodr gue Rub o C s an And é
CHOPITEA
Fuente: Google imágenes Fuente: Google imágenes Fuente: Google imágenes
CASA GANOZA
HISTORIA DE LA PROPUESTA
PORFOLIO 19/12/22 - UNIVERSIDAD NACIONAL DE TRUJILLO H-03 Integrantes Curso: Lámina: Docente: Taller de conservación del patrimonio Mg. Arq. Miky Torres Garay Alejandria, Sunny Solange Ca uso Ant cona Em y A exand a Calderón Reyes, Francisco Javier R o Peña sa a Agu t n P nedo Gomez E an Ca o Gonza e Huamán Anaye y Ge a d ne V da Garc a Kev n Oma Sánchez V anueva Ca o Josué Rodr gue Rub o C s an And é
Fuente: Google imágenes Fuente: Google imágenes Fuente: Google imágenes
CASA GANOZA CHOPITEA HISTORIA DE LA PROPUESTA

CASA GANOZA CHOPITEA HISTORIA

Nombre de la fotografía: Casa Ganoza Chopitea - Fachada

Fuente: Google Imágenes

Posteriormente esta casa, paso a albergar a la congregación o orden religiosa que se hizo con la tenencia del inmueble, los Franciscanos. Sin embargo, el inmueble no sufrió adaptaciones o remodelaciones significativas en su arquitectura, puesto que la función en esencia seguia siendo la de albergar a individuos.

ORDEN RELIGIOSA ¨FRANCISCANOS¨ CONSTRUCCIÓN CAMBIO DE

Nombre de la fotografía: Propietario Ganoza Chopitea

Fuente: Google Imágenes

PRIMEROS

PROPIETARIOS

El patrimonio cultural denominado como ¨Casa Ganoza-Chopitea¨ tuvo como primer propietario a Teresa Ramírez de Laredo, al fallecer fue vendida en construcción al matrimonio Flores Samamé, quienes a su vez dejaron a su hija Ángela como única propietaria, quien posteriormente cedió la casa a la orden religiosa de los Padres Franciscanos.

PROPIETARIO CAMBIO DE PROPIETARIO

Nombre de la fotografía: Casa Ganoza Chopitea - Fachada

Fuente: Google Imágenes

PROPIETARIO GANOZA CHOPITEA

Tras años de la ocupación por la orden Franciscana en el inmueble, deciden venderla a la familia Ganoza Chopitea, quienes posteriomente la ocupan y desarrollan funciones similares de vivienda en relación al entorno Trujillano.

PORFOLIO 19/12/22 - UNIVERSIDAD NACIONAL DE TRUJILLO L-02 Integrantes Curso: Lámina: Docente: Taller de conservación del patrimonio Mg. Arq. Miky Torres Garay Alejandria, Sunny Solange Ca uso Ant cona Em y A exand a Calderón Reyes, Francisco Javier R o Peña sa a Agu t n P nedo Gomez E an Ca o Gonza e Huamán Anaye y Ge a d ne V da Garc a Kev n Oma Sánchez V anueva Ca o Josué Rodr gue Rub o C s an And é

CASA GANOZA CHOPITEA HISTORIA

Se identifica que al tratarse de una casa con tantos años de vida, y haber estado sin un mantenimiento adecuado en todo este tiempo, las restauraciones se deberian extender 4 años de forma ininterrumpida.

TRABAJOS DE RESTAURACIÓN

PRIMER BIENAL

Para el año 2005 este inmueble se incendia, aunque con apoyo del gobierno y distintas organizaciones logro restaurarse, para posteriormente atribuirsele la función de restaurante.

ADAPTACIÓN DE RESTAURANTE

Y RESTAURACIÓN

BANCO INDUSTRIAL DEL PERÚ

Tras años, la propiedad es vendida al banco industrial del Perú y puesta inmediatamente en valor patrimonial, ordenandosé y procediendosé a su restauración por el INC.

BIENAL DE ARTE CONTEMPORÁNEO

Conforme a la epóca, esta casa solariega, busca adaptarse a las necesidades de la ciudad de Trujillo, buscando albergar funciones que le permitan seguir funcionando, en este caso el primer bienal de arte contemporáneo en Trujillo.

PORFOLIO 19/12/22 - UNIVERSIDAD NACIONAL DE TRUJILLO L-03 Integrantes Curso: Lámina: Docente: Taller de conservación del patrimonio Mg. Arq. Miky Torres Garay Alejandria, Sunny Solange Ca uso Ant cona Em y A exand a Calderón Reyes, Francisco Javier R o Peña sa a Agu t n P nedo Gomez E an Ca o Gonza e Huamán Anaye y Ge a d ne V da Garc a Kev n Oma Sánchez V anueva Ca o Josué Rodr gue Rub o C s an And é
CAMBIO DE PROPIETARIO RESTAURACIÓN
1973
1975 2005 - Act. 1983 INCENDIO

CASA GANOZA CHOPITEA

ENCUESTAS - ACERCAMIENTO A LA POBLACIÓN

Pregunta 01

En que rango de edad se encuentra?

Al realizar la encuesta, notamos que el intervalo de edades juega un papel importante para la noción de la puesta en valor del patrimonio, identificando mayor preocupación por parte de los adultos mayores que suelen emplear este espacio, reflejandosé en primera instancia por la disposición de ellos por responder el cuestionario.

Pregunta 02 Usted vive en la ciudad de Trujillo?

Residenc ia en Truj illo

Pregunta 03

Así también preguntamos por el lugar de procedencia de cada uno de los encuestados, a fin de conocer el contexto en el que suelen desevolverse y la relación o conexión que tienen con Trujillo. Observando que más del 50% de los encuestados no reside en Trujillo y que sin embargo expresan preocupación por su patrimonio.

Qué reconoce como parte de nuestra arquitectura nacional?

Conoc imient o de la arquit ec t ura nacional

Así también preguntamos por el lugar de procedencia de cada uno de los encuestados, a fin de conocer el contexto en el que suelen desevolverse y la relación o conexión que tienen con Trujillo. Observando que más del 50% de los encuestados no reside en Trujillo y que sin embargo expresan preocupación por su patrimonio.

PORFOLIO 19/12/22 - UNIVERSIDAD NACIONAL DE TRUJILLO L-05 Integrantes Curso: Lámina: Docente: Taller de conservación del patrimonio Mg. Arq. Miky Torres Garay Alejandria, Sunny Solange Ca uso Ant cona Em y A exand a Calderón Reyes, Francisco Javier R o Peña sa a Agu t n P nedo Gomez E an Ca o Gonza e Huamán Anaye y Ge a d ne V da Garc a Kev n Oma Sánchez V anueva Ca o Josué Rodr gue Rub o C s an And é
Rang
17% 24% 32% 27% 5 0- más 2 6- 50 1 9- 25 0 -1 8
S N o
o de edades
1 2 3 4 5 48% 52% 25% 9% 9% 26% 31%

CASA GANOZA CHOPITEA ENCUESTAS

¿Qué opina del espacio donde nos encontramos, cree que debe ser protegido y valorado?

Posterior, a entablar una conversación con el encuestado y asegurarnos del interés que tiene de la arquitectura nacional, pasamos a una pregunta más especifica, donde obtenemos que las opiniones de los encuestados, refiere a más del 50% a favor de un interés o preocupación por la situación en la que se encuentra nuestro patrimonio.

¿Que piensa acerca de poner en valor la identidad arquitectónica de nuestra ciudad?

Tras poner en valor y entablar el interés por nuestra arquitectura, comentamos nuestra idea de elaborar un museo de apreciación y conservación de la identidad arquitectónica de nuestra ciudad, obteniendo respuestas en su mayoria positivas, siendo el 72% de los encuestados que se muestran a favor y con ansias de visitarlo.

¿Cómo debería ofertarse el ingreso a un museo con está temática?

también preguntamos por el lugar de procedencia de cada uno de los encuestados, a fin de conocer el contexto en el que suelen desevolverse y la relación o conexión que tienen con Trujillo. Observando que más del 50% de los encuestados no reside en Trujillo y que sin embargo expresan preocupación por su patrimonio.

PORFOLIO 19/12/22 - UNIVERSIDAD NACIONAL DE TRUJILLO L-06 Integrantes Curso: Lámina: Docente: Taller de conservación del patrimonio Mg. Arq. Miky Torres Garay Alejandria, Sunny Solange Ca uso Ant cona Em y A exand a Calderón Reyes, Francisco Javier R o Peña sa a Agu t n P nedo Gomez E an Ca o Gonza e Huamán Anaye y Ge a d ne V da Garc a Kev n Oma Sánchez V anueva Ca o Josué Rodr gue Rub o C s an And é
Así
Pregunta 04 Pregunta 05 Pregunta 06 I nt eres por la arquit ec t ura de Trujillo 1 2 3 4 5 I nt erés por la t emát ic a identidad arquitectónica de Trujillo 1 2 3 4 5 M odalidad de ing reso Entra da ( S/1 - S/5 ) Entra da ( S/5 - S/1 0) Entra da ( S/1 0 -más) L bre o c o aborac ión 18% 23% 14% 10% 7% 42% 64% 15% 16% 5% 27% 34% 12% 13%

CASA GANOZA CHOPITEA

UBICACIÓN: Montreal , Quebec , Canadá.

ARQUITECTO: Montreal Peter Rose.

AÑO: 1985 y 1989

DIMENSIONES: 12 000 m2

CENTRO CANADIENSE DE ARQUITECTURA

DATOS GENERALES

Alberga salas de exposiciones, el Teatro Paul Desmarais, una librería, la biblioteca y un centro de estudios en el Ala Alcan. También contiene laboratorios de restauración y oficinas de conservación.

El trabajo de conservación y restauración de Shaughnessy House, con una superficie de más de 1.900 metros cuadrados (20.000 pies cuadrados), se llevó a cabo bajo la dirección de Denis Saint-Louis. También en el interior se encuentra el Conservatorio Devencore y las salas de recepción.

Debido a su tamaño, ubicación y uso de materiales tradicionales y modernos, que combinan el aluminio estructural con la piedra caliza gris de Montreal, la arquitectura del edificio CCA combina el pasado y el presente. Sus paisajes, incluido el jardín de esculturas CCA frente al edificio en el lado sur del boulevard René Lévesque, fueron diseñados de acuerdo con la ecología de cada lugar. La mayoría de las habitaciones de Shaughnessy House han sido restauradas a su estado original de 1874.

CONSERVACIÓN

El centro organiza espectáculos regulares compuestos por investigaciones sobre temas temáticos, diferentes aspectos de sus colecciones, y alberga exposiciones itinerantes de otros museos. El centro ofrece recorridos adaptados a grupos específicos y programas educativos para niños. También cuenta con librería, sala de conciertos y jardines. El jardín de esculturas que se encuentra al otro lado del boulevard René Lévesque ofrece una capa inferior fantasmal a gran escala de la parte inferior de la mansión Shaughnessy, y una variedad de esculturas o construcciones modernistas que se desarrollan en torno al tema de la arquitectura.

INFORMACIÓN

EXHIBICIONES

PORTAFOLIO 05/12/22 - UNIVERSIDAD NACIONAL DE TRUJILLO L-07 Integrantes Curso: Lámina: Docente: Taller de conservación del patrimonio Mg. Arq. Miky Torres Garay Alejandria, Sunny Solange Ca uso Ant cona Em y A exand a Calderón Reyes, Francisco Javier R o Peña sa a Agu t n P nedo Gomez E an Ca o Gonza e Huamán Anaye y Ge a d ne V da Garc a Kev n Oma Sánchez V anueva Ca o Josué Rodr gue Rub o C s an And é
CASO 1
FUENTE: Wikipedia FUENTE: Wikipedia FUENTE: TU Delft FUENTE: TU Delft FUENTE: Musees Montreal FUENTE: Behance

CASA GANOZA CHOPITEA

EDIFICIO DISSENY HUB BARCELONA

UBICACIÓN: Barcelona, Catalunya, España.

ARQUITECTOS: MBM, Josep Martorell, David Mackay. AÑO: 2008 - 2013

DIMENSIONES: 29.352 m2

DATOS GENERALES

Se trata de un equipamiento de última generación, tanto por las prestaciones como por el carácter sostenible, motivo por el que ha recibido el Distintivo de Garantía de Calidad Ambiental otorgado por la Generalitat de Catalunya y la Etiqueta Ecológica de la Unión Europea. El Centro de Diseño de Barcelona es uno de los más grandes museos de diseño del mundo y uno de los pocos con un objetivo específico, no sólo ser un espacio para el diseño sino también un catalizador para el encuentro y la investigación en temas relacionados con los beneficios tanto culturales como económicos del sector, dentro del mercado contemporáneo, en constante cambio.

Todo el proyecto prevée un alto grado de calidad ambiental y de sostenibilidad, gracias a un importante sistema de suficiencia energética, consiguiendo la máxima calificación posible, que lo afianza como uno de los edificios más eficientes de la ciudad en la distribución y consumo energético.

También se ha contemplado en la construcción evitar el sobrecalentamiento de las zonas interiores y el ahorro de agua, aprovechado el agua de lluvia y utilizando agua freática para los usos donde no haga falta el agua potable, como es el caso del lago que rodea el edificio en uno de sus lados, utilizando plantas acuáticas y filtros de grava que aportan una depuración natural.

SOSTENIBILIDAD

En el auditorio se utilizaron dos tipos de butacas, la butaca 6035 Flex para la zona de honor, acompañadas con mesas F1000 y otra butaca más compacta, 6061 Microflex en las filas posteriores, ambas con tapicería negra.

Se han utilizado los mismos materiales que para las salas de exposiciones y el vestíbulo: suelos de roble, paneles de acero galvanizado y barnizados para el techo, paneles de cartón yeso pintados de blanco para las paredes con revestimientos de madera o del mismo material que los techos.

INFORMACIÓN

AUDITORIO

PORTAFOLIO 05/12/22 - UNIVERSIDAD NACIONAL DE TRUJILLO L-08 Integrantes Curso: Lámina: Docente: Taller de conservación del patrimonio Mg. Arq. Miky Torres Garay Alejandria, Sunny Solange Ca uso Ant cona Em y A exand a Calderón Reyes, Francisco Javier R o Peña sa a Agu t n P nedo Gomez E an Ca o Gonza e Huamán Anaye y Ge a d ne V da Garc a Kev n Oma Sánchez V anueva Ca o Josué Rodr gue Rub o C s an And é
CASO
2
FUENTE: Archdaily FUENTE: Arqxarq FUENTE: Spanish Architects FUENTE: Ajuntament de Barcelona FUENTE: Figueras Seating
PORFOLIO 19/12/22 - UNIVERSIDAD NACIONAL DE TRUJILLO L-09 Integrantes Curso: Lámina: Docente: Taller de conservación del patrimonio Mg. Arq. Miky Torres Garay Alejandria, Sunny Solange Ca uso Ant cona Em y A exand a Calderón Reyes, Francisco Javier R o Peña sa a Agu t n P nedo Gomez E an Ca o Gonza e Huamán Anaye y Ge a d ne V da Garc a Kev n Oma Sánchez V anueva Ca o Josué Rodr gue Rub o C s an And é CASA GANOZA CHOPITEA UBICACIÓN PLANO DE LOCALIZACIÓN PLANO DE UBICACIÓN Manzanas Área recreativa Escala gráfica: Plaza de armas de Trujillo Casa Ganoza de Chopitea Hospital Belén Estadio Mansiche Av. Larco Av España Av España Av Esp a ña Av España Jr Independencia Jr FranciscoPizarro Jr MiguelGrau Jr. FranciscoPizarro Jr Independencia Jr Independencia Jr Bolivar Jr SánMartín Jr SánMartín Jr SánMartín Jr Zepita Jr Zepita Jr Zepita Jr Ayacucho Jr Ayacucho Ubicación - Casa Ganoza Chopitea 0 1 5 10 Leyenda: Esc: 1/2000 Esc: 1/500 Jr. Independencia Jr. Independencia Jr FranciscoPizarro
Jr .
Jr .
Jr
Jr .
La casa solariega Ganoza Chopitea, se encuentra ubicada en el departamento La Libertad, en la provincia de Trujillo y en el distrito del mismo
la Plaza
armas
Trujillo.
1 3 2 4 1 2 3 4
Casa Ganoza Chopitea
Gamarra
Junín
. Junín
Gamarra
nombre, exactamente en la Calle Independencia, con numeración de lote 630, a aproximadamente 150m de
de
de
Este monumento arquitectónico es considerado como patrimonio monumental de la Nación, de acuerdo a la resolución suprema N° 2900-72-ED. También es denominada como ¨Casa de los Leones¨, debido a que en su portada encontramos representados a dos felinos con apariencia de león; además cuenta con una fachada policroma siendo además la única casa virreinal con estas carácteristicas en America Latina.
PORTAFOLIO
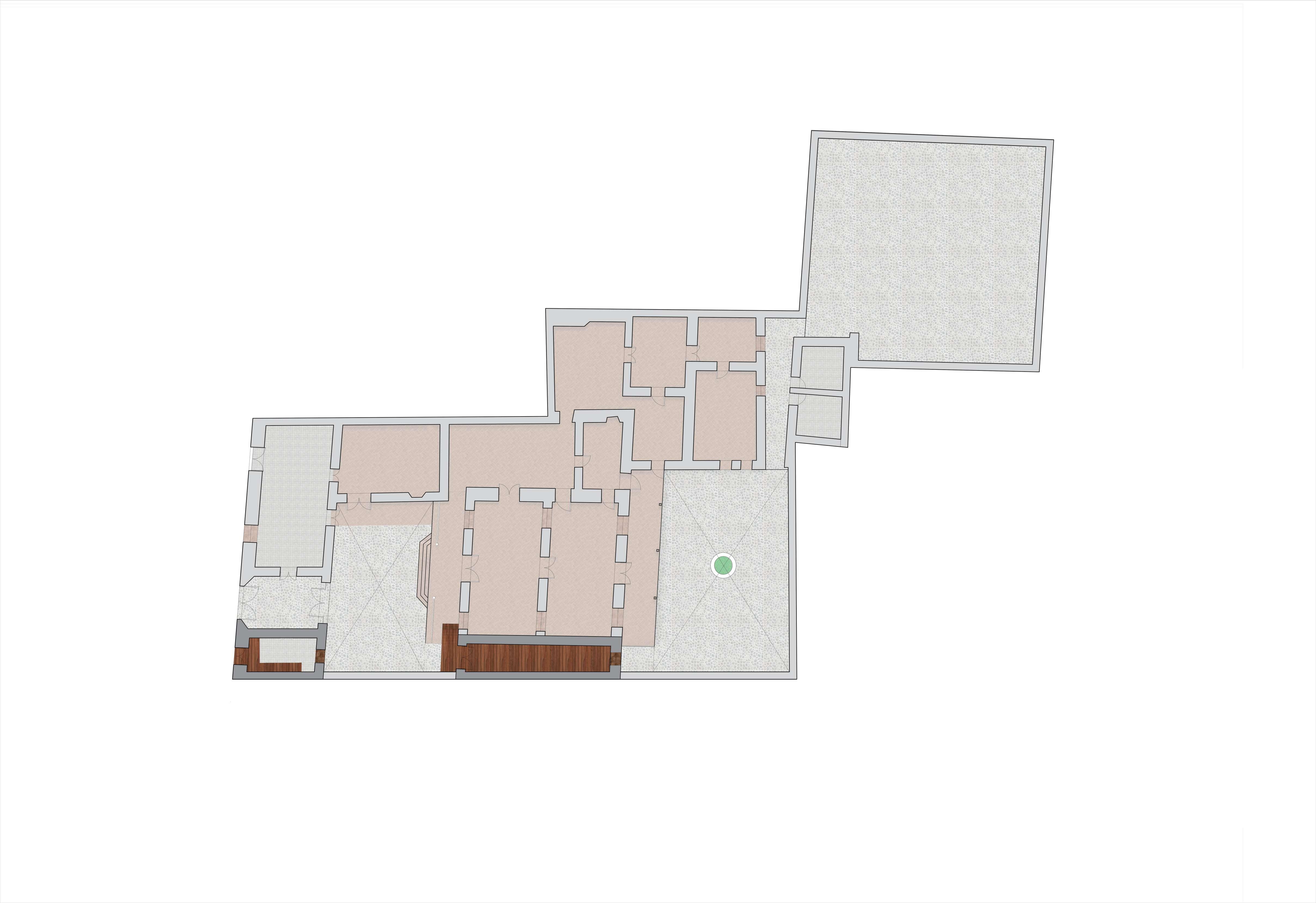
PLANTA esc. 1:125 1 3 4 A B C D E F G H 1.06 5.26 0.72 7.50 7.67 0.57 5.67 0.57 4.24 0.85 4.46 0.71 2.64 0.57 17.70 0.57 0.57 1.67 1.84 4.22 1.35 3.43 2.60 2.20 1.33 1.14 16.94 0.57 0.57 14.10 1.84 0.49 3.31 0.57 0.57 3.52 1.95 15.89 0.57 0.57 36.26 0.72 5.26 1.06 7.04 36.83 3.57 4.96 11.81 6.66 8.27 7.99 11.43 5.24 3.04 18.84 18.08 14.67 6.22 4.09 18.41 20.34 43.87 22.93 19.71 14.05 8.39 BALCÓN NPT 2.30 Piso: Madera de algarrobo PASADIZO NPT 2.30 Piso: Madera de algarrobo A A B B P41.30 2.10 P171.80 2.10 V21.00 2.10 V21.00 2.10 FUENTE: Tripadvisor Casa Ganoza Chopitea Piso de adoquinado de piedra cuadradas en un tono gris FUENTE: Tripadvisor - Casa Ganoza Chopitea Piso de adoquinado de piedra rectangulares en un tono marrón oscuro Escalera recta de
de algarrobo. Puerta de dos hojas de
y vidrio. FUENTE: Tripadvisor Casa Ganoza Chopitea Porcentaje de muros 16.26 % Deterioro en muros En fachada 8.01 % 5.20 % 3.20 %4.10 %Zaguán Oratorio Calasera Salones Andorceo Gineceo
CASA GANOZA PRIMERA
madera
madera

CASA GANOZA

PORTAFOLIO
A B C D E F G H
36.26
5.26
36.83
43.87
BALCÓN NPT 2.30 Piso: Madera de algarrobo PASADIZO NPT 2.30 Piso: Madera de algarrobo A A B B P42.10 V21.00 V2 -
SEGUNDA PLANTA esc. 1:125 FUENTE: Tripadvisor Casa Ganoza Chopitea 1 2 3 4
1.06 5.26 0.72 7.50 7.67 0.57 5.67 0.57 4.24 0.85 4.46 0.71 2.64 0.57 17.70 0.57 0.57 1.67 1.84 4.22 1.35 3.43 2.60 2.20 1.33 1.14 16.94 0.57 0.57 14.10 1.84 0.49 3.31 0.57 0.57 3.52 1.95 15.89 0.57 0.57
0.72
1.06 7.04
3.57 4.96 11.81 6.66 8.27 7.99 11.43 5.24 3.04 18.84 18.08 14.67 6.22 4.09 18.41 20.34
22.93 19.71 14.05 8.39
Porcentaje de muros 2.17 % Deterioro en muros Balcón 0.45 % 0.82 % Pasadizo
PORTFOLIO 19/12/22 - UNIVERSIDAD NACIONAL DE TRUJILLO L-12 Integrantes Curso: Lámina: Docente: Taller de conservación del patrimonio Mg. Arq. Miky Torres Garay Alejandria, Sunny Solange Ca uso Ant cona Em y A exand a Calderón Reyes, Francisco Javier R o Peña sa a Agu t n P nedo Gomez E an Ca o Gonza e Huamán Anaye y Ge a d ne V da Garc a Kev n Oma Sánchez V anueva Ca o Josué Rodr gue Rub o C s an And é CASA GANOZA CHOPITEA PLOT PLAN DE ESTADO ACTUAL ESC. 1:125
UNIVERSIDAD NACIONAL DE TRUJILLO 13 CORTES
PORTAFOLIO 19/12/22 - UNIVERSIDAD NACIONAL DE TRUJILLO L-14 Lámina: Docente: Taller de conservación del patrimonio Mg. Arq. Miky Torres Garay Alejandria, Sunny Solange Ca uso Ant cona Em y A exand a R o Peña sa a Agu t n P nedo Gomez E an Ca o V da Garc a Kev n Oma Sánchez V anueva Ca o Josué
N.T.T. + 6.46 N.T.T. + 0.00 N.T.T. + 9.18 Muro de adobe
CASA GANOZA CHOPITEA ELEVACIÓN PRINCIPAL

CASA GANOZA CHOPITEA PRESUPUESTO

4.50 m

Costo por demolicion:

Maestro Chemo: S/.32.00 /m2

Maestro Jose Ruiz: S/. 35.00 /m2 2.90 m

MURO 02 - DEMOLICIÓN DEL MURO

Muro de adobe que rodea un vano, actualemnte presenta un una fisura en la parte superior sin emabrgo para la propuesta se decidió demoler en su totalidad.

Costo: S/. 417.60

MURO 01 - DEMOLICIÓN DEL MURO

Muro de adobe , actualemnte presenta una gran fisura central y un fraccionamiento en la esquina, sin emabrgo para la propuesta se decidió demoler en su totalidad.

Costo: S/. 619.20

COTIZACIÓN MANO DE OBRA

Costo por abertura de vanos:

Maestro Chemo: S/.28.00 /m2

Maestro Jose Ruiz: S/. 30.00 /m2

Costo por reparacion:

Maestro Chemo: S/.30.00 /m2

Maestro Jose Ruiz: S/. 32.00 /m2

1976 1980 1990

ESTADO EN ESTE AÑO ESTADO BUENO ESTADO REGULAR

Al inicio de su construcción cada material se dejó en excelete estado, los muros limpiios sin fisuras así como los pisos, vanos y puertas en perfecto funcionamiento

Como su primer año, se siguió con el mantenimiento conservando de buena manera cada aspecto.

Se iniciaron a ver cierto agrietamiento de muros, propios de la construcción, y se hicieron trabajo de reparación de anos y muros.

2000 2020

ESTADO MALO ESTADO MUY MALO

El descuido fue notorio, empolvamiento en la fahcad, así como 1 de 2 de las fisuras mas pronunciadas que existen.

Se identificó los agrietamientos internos en muros, así como en esquinas, el descuido es notorio, existen algunas reparaciones pero solo fueron en fachada.

MURO 03 - REMPLAZO DE VANO Y REPARACIÓN

Muro de adobe que rodea un vano, para lapropuesta primero de remmeplazaría el vano así como la reparación de als fisuras.

Costo remmplazo: S/. 77.30 Costo reparación: S/. 15.60

MURO 04 - DEMOLICIÓN DEL MURO

Muro de adobe actualmente presenta fisuran en un 45% de su área por lo que para la propuesta se decidió demoler en su totalidad.

Costo: S/. 665.30

PORTFOLIO 19/12/22 - UNIVERSIDAD NACIONAL DE TRUJILLO L-15 Integrantes Curso: Lámina: Docente: Taller de conservación del patrimonio Mg. Arq. Miky Torres Garay Alejandria, Sunny Solange Ca uso Ant cona Em y A exand a Calderón Reyes, Francisco Javier R o Peña sa a Agu t n P nedo Gomez E an Ca o Gonza e Huamán Anaye y Ge a d ne V da Garc a Kev n Oma Sánchez V anueva Ca o Josué Rodr gue Rub o C s an And é
4.30
2.30 m 1.20 m 4.50 m 4.50 m
m 4.62 m

SALÓN AUDIOVISUAL

Conservar la cafetería que se venía desarrollando como comercio en esta edificación, sirviendo como espacio complementario al museo, para disfrute de los usuarios.

SOUVENIR

Conservar la cafetería que se venía desarrollando como comercio en esta edificación, sirviendo como espacio complementario al museo, para disfrute de los usuarios.

SALÓN DE EXPOSICIÓN

Exposición de principales casas solariegas, mediante el uso de paneles arquitectónicos, planimetría y maquetas.

SALÓN DE EXPOSICIÓN PRINCIPAL

Exposición de todo el centro historico mediante el uso de una maqueta volumétrica, explicando la parte histórica de las casas Solariegas.

CAFETERÍA

Conservar la cafetería que se venía desarrollando como comercio en esta edificación, sirviendo como espacio complementario al museo, para disfrute de los usuarios.

PORTFOLIO UNIVERSIDAD NACIONAL DE TRUJILLO L-17 Integrantes Curso: Lámina: Docente: Taller de conservación del patrimonio Mg. Arq. Miky Torres Garay Alejandria, Sunny Solange Ca uso Ant cona Em y A exand a Calderón Reyes, Francisco Javier R o Peña sa a Agu t n P nedo Gomez E an Ca o Gonza e Huamán Anaye y Ge a d ne V da Garc a Kev n Oma Sánchez V anueva Ca o Josué Rodr gue Rub o C s an And é CASA C C A A B B
PRIMERA PLANTA - PROPUESTA esc. 1:125 0 5 10 20
PORTFOLIO 19/12/22 - UNIVERSIDAD NACIONAL DE TRUJILLO L-18 Integrantes Curso: Lámina: Docente: Taller de conservación del patrimonio Mg. Arq. Miky Torres Garay Alejandria, Sunny Solange Ca uso Ant cona Em y A exand a Calderón Reyes, Francisco Javier R o Peña sa a Agu t n P nedo Gomez E an Ca o Gonza e Huamán Anaye y Ge a d ne V da Garc a Kev n Oma Sánchez V anueva Ca o Josué Rodr gue Rub o C s an And é CASA GANOZA CHOPITEA PLOT PLAN DE PROPUESTA ESC. 1:125
PORTAFOLIO 19/12/22 - UNIVERSIDAD NACIONAL DE TRUJILLO L-19 Integrantes Curso: Lámina: Docente: Taller de conservación del patrimonio Mg. Arq. Miky Torres Garay Alejandria, Sunny Solange Ca uso Ant cona Em y A exand a Calderón Reyes, Francisco Javier R o Peña sa a Agu t n P nedo Gomez E an Ca o Gonza e Huamán Anaye y Ge a d ne V da Garc a Kev n Oma Sánchez V anueva Ca o Josué Rodr gue Rub o C s an And é CASA GANOZA CHOPITEA
A B D G ZAGUÁN NPT 0.00 PATIO NPT +- 0.00 COMEDOR NPT + 0.54 CAFETERÍA NPT 0.54 CIRCULACIÓN NPT 0.54 PATIO RETROALIMENTACIÓN NPT + 0.36 Muro de adobe Portada policromada barroca 9.18 Viguetas de madera Muro enlucido de yeso pintura blanca 6.46
CORTE A - A’ CORTE B - B’

ELEVACIÓN PRINCIPAL - PROPUESTA

PORTFOLIO 19/12/22 - UNIVERSIDAD NACIONAL DE TRUJILLO L-20 Lámina: Docente: Taller de conservación del patrimonio Mg. Arq. Miky Torres Garay Alejandria, Sunny Solange Ca uso Ant cona Em y A exand a Calderón Reyes, Francisco Javier R o Peña sa a Agu t n P nedo Gomez E an Ca o y y V da Garc a Kev n Oma Sánchez V anueva Ca o Josué g
esc. 1:50 0 1 esc. 1:50 0 1 N.P.T. + 0.00 N.T.T. + 6.46 N.T.T. + 9.18
CASA GANOZA CHOPITEA

CASA GANOZA CHOPITEA

ANÁLISIS CONSTRUCTIVO

El sistema constructivo utiliza el muro portante de adobe, que sostiene la cobertura de caña mediante el uso de vigas y vigetas de madera. Sobre la primera capa de la cobertura hay una capa superior de torta de barro y finalmente un recubrimiento con una mezcla de cal, arena y yeso. En los primeros dos patios, las columnas de madera sostienen a las vigas y viguetas que conforman una semi - galería.

Madera de algarrobo Utilizado en el techo de los ambientes, en las vigas, viguetas, viguetillas, columnas de galerías, balcones y en algunos pisos.

En los detalles de la portada, así como en el acabado de la cubierta.

SISTEMA CONSTRUCTIVO NO CONVENCIONAL

debajo de la torta de barro.

Utilización de adobe para muros portantes y qincha en techos y paredes.

En la preparación de la adobe para el muro portante, así como para el techo sobre la caña. de de los muros portantes.

VIGAS Y VIGUETAS

En vano exterior y en reja de entrada al primer patio.

CIMENTACIÓN

Sistema
Piedra
Piedra de zanja Adobe en
Adobe en muro Techo
Techo de madera Torta
Torta de barro Isométrico de la vivienda solariega
Materialidad en fachada
constructivo en corte
de zanja
muro
de madera
de barro
Piedra de zanja MUROS Adobe COLUMNAS Madera de algarrobo
Madera de roble
Quincha o caña TECHO Torta de barro
Cal, arena
yeso PORTAFOLIO 19/12/22 - UNIVERSIDAD NACIONAL DE TRUJILLO L-21 Integrantes Curso: Lámina: Docente: Taller de conservación del patrimonio Mg. Arq. Miky Torres Garay Alejandria, Sunny Solange Ca uso Ant cona Em y A exand a Calderón Reyes, Francisco Javier R o Peña sa a Agu t n P nedo Gomez E an Ca o Gonza e Huamán Anaye y Ge a d ne V da Garc a Kev n Oma Sánchez V anueva Ca o Josué Rodr gue Rub o C s an And é
TECHO
TECHO
y

CASA GANOZA CHOPITEA

ANÁLISIS ESTRUCTURAL

La estructura de madera conformada por vigas y viguetas distribuye la carga del techo a los muros portantes, asimismo, estos tiene un espesor de 0.50 m < M < 0.90m de acuerdo al análisis realizado en la vivienda. Por otro lado, los muros portantes definidos dentro de la estructura son pocos.

W

Muro portante

Muro no portante

Modificación

El peso viene principalmente de la cubierta. Esta se compone de 3 capas (exterior: recubimeinto de cal, arena y yeso; media: torta de barro; interna: caña o qincha). Los muros portantes reciben la carga que es distribuida por las vigas de madera y las transmite a la cimentación.

Peso de la cubierta

Distribución de cargas

Marco de madera

Distribución de carga a cimentación

Distribución de cargas

PORTAFOLIO 19/12/22 - UNIVERSIDAD NACIONAL DE TRUJILLO L-21 Integrantes Curso: Lámina: Docente: Taller de conservación del patrimonio Mg. Arq. Miky Torres Garay Alejandria, Sunny Solange Ca uso Ant cona Em y A exand a Calderón Reyes, Francisco Javier R o Peña sa a Agu t n P nedo Gomez E an Ca o Gonza e Huamán Anaye y Ge a d ne V da Garc a Kev n Oma Sánchez V anueva Ca o Josué Rodr gue Rub o C s an And é

CASA GANOZA CHOPITEA VALORACIÓN ARQUITECTÓNICA

MEMORIA DESCRIPTIVA

I. GENERALIDADES

PROYECTO: Inmueble con valor monumental

POPIETARIO ACTUAL: Luis Deza

UBICACIÓN:

Dirección: Calle Independencia 630 Distrito: Trujillo Provincia: Trujillo Región: La Libertad

II. ANTECEDENTES

El presente proyecto ha surgido como iniciativa de recuperar el inmueble Casa Ganoza Chopitea. El cual busca poner en valor monumento histórico, para desarrollar un museo con temática arquitectónica de la ciudad de Trujillo, explicando la historia y la evolución del crecimiento urbano,a través de paneles, maquetas y planimetría, donde se tendrá salones de exhibición interactivos donde se mostrará toda nuestra diversidad cultural regional.

III. PROPUESTA POR EJECUTARSE

El proyecto comprende los siguientes niveles:

1º Piso, lo conforma el zaguán, calesera, oratorio, androceo, gineceo, siete salones de evento y tres patios 2ª Piso, ambientes para balcones, pasadizos

IV. RELEVAMIENTO DEL ESTADO DEL INMUEBLE

4.1 ESTADO ORIGINAL DEL INMUEBLE

La conservada tipología arquitectónica de la Casa Solariega Ganoza Chopitea, tamnién conocida como la casa de los leones, nos dá evidencias físicas (muros de adobe y quincha con cubierras y pórticos de madera que reciben techumbres, quincha y tortabarro). Las dimensiones del muro de adobe varía entre 0.80 y 0.60 m, lo que es insuficiente para la altura que alcanzan las habitaciones, especialmente los salones principales; estas carcterísticas pertenecen a la época de construcción de este inmueble. Tal es así, que luego del análisis se realizó una propuesta de la posible distribución original, en la cual se plantea la recuperación de espacios mediante la liberación y elementos intrusivos sin valor original.

4.2 ESTADO ACTUAL DEL INMUEBLE

El estado actual del inmueble se encuentra diferenciado en 2 partes, una donde se realizó trabajos de restauración en el año 1975, los cuales duraron 4 años (zaguán, patio principal, salones y correrdores) y otra parte aún sin restaurar, que comprende los ambientes finales de la casa. La parte sin restaurar se encuentran algunos muros rajados y adoquines faltantes en el suelo. Actualmente, y en concordancia con el uso al que estuvo dedicada la casa Solariega, muestra además de su deterioro, variaciones a su estado original por la presencia de elementos intrusivos que de han afectado a su tipología original. Tal como se ha podido verificar en información existente, la casa dio uso a un negocio de cafetería, por lo cual algunos ambientes se tuvieron que adaptar a esta nueva tipología. Ahora el inmueble se encuentra desocupado, donde posteriormente se puede prestar para realizar nuevos estudios técnicos y determinar el tipo de grado de afectación a la edificación.

V. ANÁLISIS EVOLUTIVO DE LA EDIFICACIÓN

ESTADO MALO

Se realizó una restauración ejecutada por el INC, debido a que se vendió al Banco Industrial del Perú.

SIGLO XVI 1973 1975

ESTADO BUENO

Construcción de la edificación y los propietarios fueron Ramirez y Laredo.

ESTADO REGULAR

Continuan con las restauraciones de los salones y algunos ambientes principales, durante 4 años y de forma pausada.

ESTADO MALO

Se realizó mantenimiento a los elementos constructivos y mejoramiento de los acabados. Debido a que hubo un incendio y deterioró la estructura colonial

ESTADO REGULAR

Se realizaron algunas modificaciones en los ambientes, porque adquirió una tipología de negocio de cafetería. Se dio mantenimiento en las paredes, suelo y techo, para lograr ambientes agradables ya que estará abierto al público.

PORTAFOLIO 19/12/22 - UNIVERSIDAD NACIONAL DE TRUJILLO L-22 Integrantes Curso:
Taller de conservación del patrimonio Mg. Arq. Miky Torres Garay Alejandria, Sunny Solange Ca uso Ant cona Em y A exand a Calderón Reyes, Francisco Javier R o Peña sa a Agu t n P nedo Gomez E an Ca o Gonza e Huamán Anaye y Ge a d ne V da Garc a Kev n Oma Sánchez V anueva Ca o Josué Rodr gue Rub o C s an And é
Lámina: Docente:
2005 2022

CASA GANOZA CHOPITEA

VALORACIÓN ARQUITECTÓNICA

FICHA Nº1

ESTUDIO DE PATOLOGÍA

DESCRIPCIÓN PATOLÓGICA

LOCALIZACIÓN GENERAL

ORATORIA

PROYECTO: PATOLOGÍA CASA SOLARIEGA GANOZA CHOPITEA FECHA 19/12/2022

ELEMENTO ESTRUCTURAL LOCALIZACIÓN ESPECÍFICA

MURO 1

MUROS

FICHA Nº1

ESTUDIO DE PATOLOGÍA

DESCRIPCIÓN PATOLÓGICA PROYECTO: PATOLOGÍA CASA SOLARIEGA GANOZA CHOPITEA FECHA 19/12/2022

LOCALIZACIÓN GENERAL

PATIO PRINCIPAL ELEMENTO ESTRUCTURAL LOCALIZACIÓN ESPECÍFICA

VANOS

VANOS

TIPO DE LESIÓN PATOLOGÍA IDENTIFICADA

ELEMENTO AFECTADO

FISURA - GRIETA MURO

ESQUEMA / IMÁGENES

Mecánica Física Química Biológica

DESCRIPCIÓN DE LA PATOLOGÍA

Fisura vertical de 2 metros de longitud, con tendencia a mayor espesor en la parte inferior del muro. En la parte superior su espesor es de 1mm en el intermedio se observa de 2mm y en la parte inferior es aproximadamente 4 mm con descascaramiento alrededor de la fisura.

ELEMENTO AFECTADO

CORROSIÓN DEL FIERRO VANOS

TIPO DE LESIÓN PATOLOGÍA IDENTIFICADA

Mecánica Física Química Biológica

X X

ESQUEMA / IMÁGENES DESCRIPCIÓN DE LA PATOLOGÍA

PLANTA GENERAL

Agentes orgánicos presentes en el ambiente generan corrosión en las estructuras metálicas de las ventanas y puertas, disminuyendo la resistencia de los elementos.

Se recomienda limpiar los elementos afectados y recubrirlos con pintura o materiales anticorrosivos.

PORTAFOLIO 19/12/22 - UNIVERSIDAD NACIONAL DE TRUJILLO L-23 Integrantes Curso: Lámina: Docente: Taller de conservación del patrimonio Mg. Arq. Miky Torres Garay Alejandria, Sunny Solange Ca uso Ant cona Em y A exand a Calderón Reyes, Francisco Javier R o Peña sa a Agu t n P nedo Gomez E an Ca o Gonza e Huamán Anaye y Ge a d ne V da Garc a Kev n Oma Sánchez V anueva Ca o Josué Rodr gue Rub o C s an And é
PLANTA GENERAL
-ZAGUÁN CALESERA PATIO SALONES SALONES SALONES PATIO CORREDOR----------LEYENDA: MURO 1 X
ORATORIOZAGUÁN SALONES ANDROCEO SALONES SALONES----------PUERTA LEYENDA: VANOS
PUERTA

CHOPITEA

ARQUITECTÓNICA

MURO 02 - DEMOLICIÓN DEL MURO

Se plantea un recorrido lineal por los salones de exhibición, por lo tanto, se necesita un ingreso entre el salón audiovisual y de exposición. Es así que el área sustraída es de 0.71 m2, generando una puerta de 1m de ancho.

MURO 01 - DEMOLICIÓN DEL MURO

El área sustraída es de 2.72 m2 y presenta una grietas en las esquinas, encontrándose en un estado no favorable para la edificación. Por ello, se demuele el muro con la finalidad de generar un espacio amplio para el patio de mesas, de la propuesta de cafetería.

De carácter funcional, debido a que la ventana solo favorece al acondicionamiento del ambiente, pero no permite una conexión directa con el patio trasero, así que mejor se hace uso de una puerta de 1.20m de ancho.

MURO 04 - DEMOLICIÓN DEL MURO

Es uno de los muros con más deterioro, debido a que su mantenimiento no es tan continuo como en los salones principales. Se demuele con el propósito de reubicarse, siguiendo el eje de muros de los salones, para no desaprovechar el espacio. Además se plantea un diseño de pintura para los muros, que vaya acorde con los existentes.

PORTAFOLIO 19/12/22 - UNIVERSIDAD NACIONAL DE TRUJILLO L-24 Integrantes Curso: Lámina: Docente: Taller de conservación del patrimonio Mg. Arq. Miky Torres Garay Alejandria, Sunny Solange Ca uso Ant cona Em y A exand a Calderón Reyes, Francisco Javier R o Peña sa a Agu t n P nedo Gomez E an Ca o Gonza e Huamán Anaye y Ge a d ne V da Garc a Kev n Oma Sánchez V anueva Ca o Josué Rodr gue Rub o C s an And é
REMPLAZO
VANO
CASA GANOZA
VALORACIÓN
MURO 03 -
DE
SOMBREADO DESCRIPCIÓN LEYENDA MUROS A DEMOLER SALÓN AUDIOVISUAL NPT + 0.00 Piso: Adoquinado de piedra COMEDOR NPT 0.54 Piso: Adoquinado de piedra color gris oscuro CAFETERÍA NPT 0.54 Piso: Adoquinado de piedra color gris oscuro SALÓN DE EXPOSICIÓN NPT + 0.54 Piso: Adoquinado de piedra color gris oscuro SALONES NPT + 0.54 Piso: Adoquinado de piedra color gris oscuro

CASA GANOZA CHOPITEA

CONSERVACIÓN

1

Y RESTAURACIÓN DEL PATRIMONIO MONUMENTAL -REGLAMENTACIÓN

LEY GENERAL DEL PATRIMONIO CULTURAL DE LA NACIÓN Nº28296

APROBADA POR DECRETO SUPREMO N° 011-2006-ED

LEY N° 28296

Artículo 1 - Objeto de ley

Establecer políticas nacionales de defensa, protección, promoción, propiedad y régimen legal y el destino de los bienes que constituyen el Patrimonio Cultural de la Nación.

Artículo 3 - Presunción legal

Se presume que tienen la condición de bienes integrantes del Patrimonio Cultural de la Nación, los bienes materiales o inmateriales, de la época prehispánica, virreinal y republicana, sin distinción por su condición de propiedad pública o privada.

D.S. N° 011-2006-ED, Art. 49 y Art. 66 (Reglamento de la presente Ley)

Artículo 43 - Constitución de museos privad.

El Instituto Nacional de Cultura, la Biblioteca Nacional y el Archivo General de la Nación y demás organismos vinculados a la Cultura velarán para que se promueva y difunda en la ciudadanía la importancia y significado del Patrimonio Cultural de la Nación como fundamento y expresión de nuestra identidad nacional.

Artículo 51 - Educación y difusión

El Instituto Nacional de Cultura, la Biblioteca Nacional y el Archivo General de la Nación y demás organismos vinculados a la Cultura velarán para que se promueva y difunda en la ciudadanía la importancia y significado del Patrimonio Cultural de la Nación como fundamento y expresión de nuestra identidad nacional.

2

DECRETO N°007-2020-MC

Artículo 28-A-2

Nos habla sobre la autirozación sectorial para la ejecución de intervenciones especializadas en bienes inmuebles del patrimonio cultural de la Nación, posterior al prehispánico:

La anastolysis.

El desmontaje.

La liberación.

La restitución.

La consolidación.

El mantenimiento.

La conservación.

Otras de la misma o similar naturaleza, relacionadas a elementos arquitectónicos.

Artículo 28-A-2.1

Refiere a la autorización, dada por el Ministerio de cultura para la ejecución de toda obra pública o privada, ya sea de remodelación, restauración, ampliacación, refacción, acondicionamiento, demolición, puesta en valor o cualquier otra que involucren bienes inmuebles integrantes del Patrimonio Cultural de la Nación o otra obra ubicada en el entorno de dicho inmueble.

Artículo 28-A-2.2

Refiere a que el Ministerio de Cultura emite las autorizaciones sectoriales para la ejecución de obras en espacios vinculados a bienes integrantes del patrimonio cultural de la Nación.

Artículo 28-A-2.3

Detalla que corresponderá a las Direcciones Desconcentradas de Cultura emitir las autorizaciones sectoriales en su ámbito territorial, excepto cuando se trate de proyectos de intervención relacionados a monumentos históricos, en cuyo caso la Dirección General de Patrimonio Cultural emite la autorización.

Artículo 28-A-2.4

Posterior, a admitida la documentación, la dirección de Patrimonio Histórico Inmueble o la Dirección desconcentrada de Cultura del Ministerio de Cultura, informa al solicitante dentro de 5 días habiles contados desde el día posterior a la presentación de la solicitud, la fecha y hora en la que se realizará la inspección ocular, la misma que se efectua en 10 días habilides contados desde la fecha de presentada la solicitud.

Artículo 28-A-2.5

De la inspección ocultar, nos menciona que consta de un registro fotográfico y/o video, como sustento para la emisión de un informe técnico correspondiente, que recomendará la autorización o no de la intervención.

Artículo 28-A-2.6

De existir observaciones en el proceso de evaluación de la propuesta, se detallan e informan, otorgando 10 días habiles a partir de la recepción de la notificación para subsanar las observaciones, dicho plazo puede ser postergado una unica vez, por 10 días hábiles adicionales, siempre que se solicite antes de su vencimiento.

Artículo 28-A-2.9

La autorización sectorial tendrá una vigencia de 18 meses para iniciar su ejecución, el cual puede ser ampliado por única vez por un plazo de 6 meses a solicitud de parte. Vencido el plazo se debera volver a requerir una autorización sectorial de un nuevo proyecto de intervención.

PORFOLIO 19/12/22 - UNIVERSIDAD NACIONAL DE TRUJILLO L-25 Integrantes Curso: Lámina: Docente: Taller de conservación del patrimonio Mg. Arq. Miky Torres Garay Alejandria, Sunny Solange Ca uso Ant cona Em y A exand a Calderón Reyes, Francisco Javier R o Peña sa a Agu t n P nedo Gomez E an Ca o Gonza e Huamán Anaye y Ge a d ne V da Garc a Kev n Oma Sánchez V anueva Ca o Josué Rodr gue Rub o C s an And é

DECRETO N°007-2020-MC (Artículo 28-A-2.10)

La solicitud para la autorización sectorial para la ejecución de intervenciones especializadas en bienes inmuebles, deberá ir acompañada de los siguientes requisitos:

A) La solicitud presentada mediante formulario o documento que contenga la misma información, en el que se detalla lo siguiente:

Datos del propietario copropietarios o representante legal

Nombres completos, domicilio, DNI o carné de extranjería. Partida electrónica del inmueble. Partida electrónica del registro de mandatos y poderes del representante legal. Número de constancia y fecha de pago.

C) Planos del estado actual del bien inmueble por intervenir:

B) Memoria descriptiva que detalle la siguiente información:

REGLAMENTACIÓN - REFERENCIAS

Representación técnica del bien inmueble a intervenir:

Planos en planta, cortes, elevaciones y detalles, según corresponda a escala 1:500, precisando el estado de conservación, suscrito por un arquitecto y propietario o copropietarios o representante legal, en versión impresa o digital.

Datos del bien inmueble a intervenir, investigación histórica o justificación

Estado actual, con información registral presente y su estado de conservación. Investigación histórica que motiva la propuesta de intervención, incluyendo planos de la edificación original. Justificación de los criteriores y especificaciones técnicas planteadas

D) Planos de la intevención o propuesta en el inmueble internvenido:

Representación técnica de la propuesta a desarrollar:

Planos en planta, cortes, elevaciones y detalles, según corresponda a escala 1:500, precisando el estado de conservación, detalles constructivos y ornamentales según corresponda, con las especificaciones técnicas necesarias, materiales y acabados, suscritas por un arquitecto y propietario, copropietario o representante legal, en versión impresa o digital.

Bibliografía:

Ley General del Patrimonio Cultural de la Nación Nº28296 y su reglamento

RNE Norma A.140 Bienes culturales inmuebles

Decreto supremo N°007-2020-MC

Decreto supremo N° 011-2006-ED

Reglamentos de centros históricos

PORFOLIO 19/12/22 - UNIVERSIDAD NACIONAL DE TRUJILLO L-26 Integrantes Curso: Lámina: Docente: Taller de conservación del patrimonio Mg. Arq. Miky Torres Garay Alejandria, Sunny Solange Ca uso Ant cona Em y A exand a Calderón Reyes, Francisco Javier R o Peña sa a Agu t n P nedo Gomez E an Ca o Gonza e Huamán Anaye y Ge a d ne V da Garc a Kev n Oma Sánchez V anueva Ca o Josué Rodr gue Rub o C s an And é
CONSERVACIÓN Y RESTAURACIÓN DEL
-REGLAMENTACIÓN 2 3
CASA GANOZA CHOPITEA
PATRIMONIO MONUMENTAL

CASA DE LA EMANCIPACIÓN

CALDERÓN REYES FRANCISCO JAVIER

El hacer llegar nuestra propuesta con la población, por medio del dialogo a tráves de una encuesta formulada para fomentar la participación del encuestado, nos ayudo a enclarecer las ideas que teniamos previamente, y evidenciar así, que la labor del arquitecto, no solo queda en el proyectar o intervenir, si no también, en hacer llegar y comunicar está misma propuesta con la población.

Analizar la casa Ganoza Chopitea y estudiar el proceso que requiere la restauración de un patrimonio de la mano con la reglamentación empleada, así como la elaboración de los planos actuales, el diseño de una nueva propuesta, y además, contar con la opinión de la población, en conjunto nos permitó entender el valor de este patrimonio y la importancia que conlleva promover su conservación.

Se trató de adaptar la propuesta de la vivienda en función a las necesidades de las personas que fueron encuestadas, por ello se propuso una amplia zona de souvenirs ya que, como los artesanos nos comentaron, pocos los toman en cuenta; asimismo, se trató de realizar espacios y recorridos múltiple, proponiendo así, un recorrido de museo y un espacio social, siendo este la cafetería.

CONCLUSIONES

El trabajar y/o proyectar en un bien inmueble considerado Patrimonio Cultural de la Nación, como lo es la Casa Ganoza Chopitea notamos en primera instancia que, la gran cantidad de normativas ayudan a que su preservación y mantenimiento sea regulada minuciosamente y aunque esto suponga mayores tiempos para la ejecución de intervencióness, brinda garantías que aportan en la protección de estos.

Con este estudio, se pudo entender cómo la distribución de este tipo de casonas guarda relación con la funcionalidad y la importancia que se les dio antiguamente a los ambientes, como el caso de los patios, donde pudimos ver que se encuentran al centro de la vivienda, articulándola con las demás zonas. Así como, los pasillos, que permitían conectar con otras habitaciones pero dándoles una sensación más íntima.

Se puede destacar una vivienda que esté parcialmente en ruinas si la restauras y le das un buen funcionamiento para poder mantenerla. Es así que, se genera un aporte en la sociedad y se mantiene un espacio histórico. Con esta propuesta, por un lado, ayuda a embellecer la calle y atraer turismo mientras que, por otro lado, genera conocimientos debido a su razón de ser.

La casa Ganoza Chopitea es un inmueble monumental representativo para la ciudad de Trujillo. Por ello, se realizó un trabajo de campo para recopilar información y analizar cronológicamente su arquitectura, estableciendo los lineamientos necesarios en busca de su valorización y conservación. Además se analizó las morfológias espaciales y funcionales, para comprender mejor el espacio y generar una buena propuesta

El planteamiento de conservación de está Casa Solariega, mediante la implementación de un museo de arquitectura, permite poder dar un valor en su uso actual, y poder recuperar además de su valor histórico, el valor arquitectónico que se va perdiendo por la falta de mantenimiento que existe en este tipo de ambientes; brindando un espacio que genere a su vez rentabilidad para la preservación de la misma.

La casa solariega Ganoza Chopitea se ha desarrollado con estilos policromáticos y un sistema constructivo no convencional, la qincha y muros de adobe. Asimismo, algunos de sus muros portantes se han desgatado por el tiempo, la humedad, falta de mantenimiento y por el tiempo de vida útil de sus materiales. Por lo tanto, se puede optar por preservar algunos de los ambientes con la misma temática e incluir otros con nuevos usos que en su conjunto conforme una nueva atmósfera.

La Casa Ganoza de Chopitea presenta una arquitectura dinámica y de una amplia espacialidad, pero debido al desuso en el que se encuentra sus muros se deterioran con el tiempo, y existen espacios creados para una antigua función los cuales no se conectan, sin embargo, son parte de la esencia que presenta la casa solariega en mención.

Luego del análisis planteado en la casa Ganoza, notamos el interés por preservar nuestro patrimonio, mediante el curso hemos comprendido desde el diseño y la normativa, la remodelación de estos ambientes, considerando preservar los códigos arquitectónicos, así como intervenir en lo mínimo dando un nuevo uso al espacio, en este caso mediante un museo que permite revalorar las historias de Trujillo.

Logramos identificar una necesidad existente en la población trujillana, que es la falta de conocimiento de la arquitectura propia de la ciudad, y asi, pudimos evidenciar el interés que tiene la población local y turista por conocer estos referentes trujillanos, dando un uso especifico al lugar, restaurando la estructura, sin perjudicar lo ya existente de pudo plantear una propuesta de museo de acuerdo a sus necesidades.

Luego de identificar los daños y patologías de la vivienda, se plantea una propuesta de restauración acorde a las necesidades constructivas y que preserve sus códigos arquitectónicos. Tendrá un nuevo uso, de un museo, en el cual se pueda exhibir parte de la arquitectura Trujillana de una forma más interactiva y con ello se puede generar mayor rentabilidad para su mantenimiento.

Comprendimos la importancia del usuario en el planteamiento del museo de arquitectura, entendiendo sus distintas necesidades y observando el interés que el poblador Trujillano tiene, por querer conocer más de la parte arquitectónica del Centro Histórico de Trujillo; sirviendo de claro ejemplo para la puesta en valor, de tantas Casas Solariegas que en la actualidad se encuentran en estado de deterioro y riego de derrumbe.

La temática planteada afirma y revalora la vivienda solariega porque rescata los patrones, colores, materialidad e incluye nuevos ambientes que conformarán el nuevo uso, el museo de la arquitectura trujillana. Asimismo, a partir de la norma A. 140 de Bienes culturales inmuebles se ha realizado el análisis de las áreas a preservar y a modificar. Finalmente, se ha cumplido con los estándares planteados por el equipo para el restablecimiento de un ícono trujillano.

Trujillo es una ciudad donde destaca mucho el arte, es por ello que ante el desuso de la Casa Ganoza, se propone activar su uso a través de un museo para presentar obras arquitectónicas de valor histórico, esto haciendo un análisis de datos en base a encuestas realizadas a los usuarios, llegando a si a mantener la arquitectura trujillana y generar sus propios recursos.

Al identificar los daños en la propiedad y cotizar precios de remodelación, reparación y demolición logramos tener una idea mas clara de la importancia de la preservación de las casas solariegas, además del trabajo de campo realizado, podemos rescatar que la población tiene ciertas necesidades específicas con respecto a esas edificaciones antiguas, las cuales por medio de proyectos dándoles un nuevo uso.

Plantear una propuesta de intervención en una zona tan importante y protegida como lo es la ciudad de Trujillo supone tener un conocimiento enrome sobre la conservación de patrimonio trujillano y nos pone en un compromiso el preservar la estructura previamente existente, sin embargo como arquitectos que siempre buscamos innovar y crear arquitectura diferente, tenemos muchas veces que limitar algunas ideas, con el fin

PORTAFOLIO 19/12/22 - UNIVERSIDAD NACIONAL DE TRUJILLO L-27 Integrantes Curso: Lámina: Docente: Taller de conservación del patrimonio Mg. Arq. Miky Torres Garay Alejandria, Sunny Solange Ca uso Ant cona Em y A exand a Calderón Reyes, Francisco Javier R o Peña sa a Agu t n P nedo Gomez E an Ca o Gonza e Huamán Anaye y Ge a d ne V da Garc a Kev n Oma Sánchez V anueva Ca o Josué Rodr gue Rub o C s an And é
CASUSOL ANTICONA EMILY ALEXANDRA GARAY ALEJANDRIA SUNNY SOLANGE GONZALES HUAMÁN ANAYELY GERALDINE RÍOS PEÑA ISAIAS AGUSTIN RODRIGUEZ RUBIO CRISTIAN ANDREÉ SÁNCHEZ VILLANUEVA CARLOS JOSUÉ PINEDO GÓMEZ ELIAN CARLOS VIDAL GARCÍA KEVIN OMAR

CASA DE LA EMANCIPACIÓN

CALDERÓN REYES FRANCISCO JAVIER

Al trabajar y proponer una propuesta de intervención dentro de un bien inmueble considerado Patrimonio Cultural de la Nación, debemos estar conscientes de las implicancias normativas, sociales y culturales a las que debemos responder de manera eficaz, a fin de brindar una propuesta que rescate la identidad de la ciudad y brinde a su vez un aporte al funcionamiento de la misma.

Para poder realizar un proceso de restauración a este tipo de casonas, es importante estar al tanto de todas las normativas existentes, sin embargo, no hay que descuidar el contexto y el medio en el que se encuentre la edificación, puesto que, la finalidad de estas remodelaciones es mejorar el estado constructivo y arquitectónico sin perder la esencia que estas poseen.

RECOMENDACIONES

La propuesta de la tipología del museo que se quiere mostrar en sí, es un aporte que se quiere brindar a la sociedad, debido a que muchas personas se interesan en la arquitectura nacional, sobretodo, en este caso, a la trujillana; no obstante, no existen espacios actuales que reúnan todo el conocimiento necesario con las tecnologías actuales que muestren en mayor detalle nuestra arquitectura.

El trabajo de investigación puede aportar a nuevos estudios, teniendo en cuenta el orden en el cual se ha ido recopilando información para luego plantear una propuesta. Recalcamos que es importante realizar un trabajo de campo, mediante entrevistas para conocer las necesidades del usuario, así como la visita al lugar para identificar sus potencialidades y poder aprovecharlas.

El proyecto de intervención en esta Casa Solariega, trata de utilizar los recursos que la tecnología actual nos ofrece, pero sin opacar por completo el valor arquitectónico que está presenta, preservando el estilo que se representan en sus muros tanto en su fachada, como en sus interiores. La idea de poder permitir la accesibilidad universal en este museo, se ve plasmado en la implementación de una rampa de madera que se complementa con la materialidad característica de esta edificación.

El análisis de reconocimiento de la vivienda solariega formará parte de futuros trabajos para la revaloración de la arquitectura trujillana como un antecedente. Asimismo, a partir del trabajo de campo en colaboración con el trabajo de gabinete han permitido desarrollar propuestas 3d para la mejor visualización de la propuesta.

Para la restauración y mantenimiento de esta casa solariega se pretende seguir patrones que permitan mantener el valor histórico y arquitectónico de la edificación, dando un aporte a la cultura se propone materialidad similar a la existentes en distintos ámbitos de intervención, para mantener el lenguaje que presenta esta edificación.

La propuesta de museo al partir de las necesidades de la población refleja en sus ambientes cuidadosamente estas ideas, siento una propuesta que vincula todas las edificaciones virreinales del centro históricos en un solo recorrido turístico-histórico, mostrando de manera didáctica cada uno de ellos, ya sea por medio de maquetas o paneles, acercando al pueblo con su historia, asimismo siendo un hito cultural.

La propuesta de museo que nosotros estamos implementando, responde directamente a la necesidad del poblador, que es conocer detalladamente cada una de las estructuras históricas de la ciudad, y lo hace planteando un recorrido secuencial que permite ir adentrándose poco a poco en la cultura y arquitectura trujillana.

El centro histórico de nuestra ciudad, si bien es cierto, representa una parte esencial de nuestra identidad como Trujillanos, y para que permanezca viva dentro de esta, tiene que mantenerse en funcionamiento, estableciéndose nuevas actividades adaptadas a las necesidades y presunciones funcionales modernas, para que así, pueda sustentarse su mantenimiento y protección, ante entes que atentan contra su integridad.

Al momento de realizar un proceso de restauración en necesario conocer cada detalle de la edificación, tanto en los elementos por reconstruir, así como los que se mantienen aún conservados o en buen estado, pues esto nos va a ayudar a evitar posibles errores en el cálculo del presupuesto, por ello, se recomienda evaluar y buscar diferentes referencias para constrastar todo tipo de precios.

La fachada de la edificacion permanece intacta, ya que la vivienda es parte del centro histórico, sin embargo, ciertos muros del interior fueron derribados según las necesidades del proyecto; es decir, para generar vanos y circulaciones. Naturalmente, esto se by realizó tomando en cuenta los requisitos estructurales y reglamentación para evitar futuros desastres y mantener la estabilidad.

La propuesta de museo arquitectónico tiene como objetivo transmitir la historia de la ciudad de manera didáctica, en la cual el público forme parte de esta exhibición. Una forma es por medio de vídeos, maquetas, paneles que se encontrarán en las salas de exhibiciones; por otro lado, las personas también puedes disfrutar de permanecer en la cafetería. Es así que se trata de fusionar lo educativo con un lugar de recreación.

La propuesta de museo recoge las opiniones del poblador Trujillano, para poder plantear una idea que no esté ajeno a sus necesidades, entendiendo los distintos tipos de usuario y permitiendo la participación de cada uno de ellos, mediante el empleo de material didáctico ( maquetas, paneles arquitectónicos, salas audiovisuoales) que permita poder interactuar desde los escolares hasta los adultos mayores que demuestran un interés por el valor histórico y arquitectonica de estas edificaciones.

La propuesta de museo rescata el valor arquitectónico que tienen las viviendas solariegas del centro histórico de Trujillo. Por otro lado, se han planteado ambientes audiovisuales que mejoran la percepción del usuario visitante y el mensaje que tiene el nuevo uso como Museo.

La cultura y el aporte como arquitectos ante esta propuesta, es dar a conocer a personas nacionales e internacionales el valor de las casas solariegas en Trujillo, estas que con el paso de los años marcaron hitos importantes para el Perú y que con el paso del tiempo se vieron afectadas, puedan generar ingresos propios y dar a conocer su valor histórico cultural.

El proyecto de intervención preserva en la fachada como cumplimiento de los reglamentos, asimismo, los muros que se intervienen no son de carácter estructural permitiendo su demolición, ya que previo se identificó los muros portantes, estos como condición de diseño, teniendo de este modo espacios seguros para el uso, además como aporte se desarrolló una rampa para la accesibilidad universal.

Se planteo además zonas de estancia, recreación y comercio que sabemos que es lo mas abundante en la ciudad, además permitirían un ingreso extra para el museo, que permita que se pueda auto sustentar por su cuenta, además de espacios con abundante vegetación en la parte central, para que los visitantes puedan descansar y contemplar la arquitectura de la Casa Ganoza Chopitea, y asi mismo par rematar este espacio, se planteo una zona donde se pueda exponer una maqueta a escala de todo Trujillo, en la cual podamos tener todas las estructuras emblemáticas representadas en un solo lugar.

PORTAFOLIO 19/12/22 - UNIVERSIDAD NACIONAL DE TRUJILLO L-28 Integrantes Curso: Lámina: Docente: Taller de conservación del patrimonio Mg. Arq. Miky Torres Garay Alejandria, Sunny Solange Ca uso Ant cona Em y A exand a Calderón Reyes, Francisco Javier R o Peña sa a Agu t n P nedo Gomez E an Ca o Gonza e Huamán Anaye y Ge a d ne V da Garc a Kev n Oma Sánchez V anueva Ca o Josué Rodr gue Rub o C s an And é
CASUSOL ANTICONA EMILY ALEXANDRA GARAY ALEJANDRIA SUNNY SOLANGE GONZALES HUAMÁN ANAYELY GERALDINE RÍOS PEÑA ISAIAS AGUSTIN RODRIGUEZ RUBIO CRISTIAN ANDREÉ SÁNCHEZ VILLANUEVA CARLOS JOSUÉ PINEDO GÓMEZ ELIAN CARLOS VIDAL GARCÍA KEVIN OMAR

CASA GANOZA CHOPITEA

REFERENCIAS BIBLIOGRÁFICAS

1. Marilu P. (2021, febrero 17). Casa Ganoza Chopitea. https://issuu.com/arquitecturaperuana2/docs/casa_ganoza _chopitea_-_grupo_6

2. Antipode. (s. f.). Casa Ganoza Chopitea. Recuperado el 19 de diciembre de 2022, de https://antipode-peru.com/es-mapa-casa-ganoza-chopitea

3. La Libertad. (2017, febrero 3). casa ganoza chopitea atractivo turistico la Libertad peru.https://www.enperu.org/la-libertad/casa-ganoza-chopi tea-atractivo-turistico

4. Olivari, J. J. (s. f. ). Por Juan José Olivari. Blogspot.com. Recuperado el 19 de diciembre de 2022, de http://olivarinet.blogspot.com/2008/07/casa-ganoza-chopit ea-orgullo.html

5. Casona De Los Leones (s. f. ) - Lo que se debe saber antes de viajar. . Tripadvisor. Recuperado el 19 de diciembre de 2022, de https://www.tripadvisor.com.pe/Attraction_Review-g298444d319361-Reviews-Casa_Ganoza_Chopitea-Trujillo_La_Liberta d_Region.html

PORTAFOLIO 19/12/22 - UNIVERSIDAD NACIONAL DE TRUJILLO L-29 Integrantes Curso: Lámina: Docente: Taller de conservación del patrimonio Mg. Arq. Miky Torres Garay Alejandria, Sunny Solange Ca uso Ant cona Em y A exand a Calderón Reyes, Francisco Javier R o Peña sa a Agu t n P nedo Gomez E an Ca o Gonza e Huamán Anaye y Ge a d ne V da Garc a Kev n Oma Sánchez V anueva Ca o Josué Rodr gue Rub o C s an And é

CASA GANOZA

VISTAS DE LA PROPUESTA DE RESTAURACIÓN

RENDERS EN VUELO DE PÁJARO

RENDERS EXTERIORES

PORTAFOLIO 19/12/22 - UNIVERSIDAD NACIONAL DE TRUJILLO
4 C E H 17.70 0.57 16.94 0.57 0.57 0.57 0.57 5.26 1.06 7.04 18.84 18.08 43.87 B
RUBRA MANGIFERA INDICA SCHEFFLERA ARBORICOLA CYPERUS PAPYRUS VEGETACIÓN EMPLEADA
de madera de algarrobo que se
constante
de piedra laja española oscura que recubre todo el zaguán.
de mármol de Carabamba. Piso de piedra que muestra cierto desgaste, a pesar del mantenimiento, debido a a la exposición. Material de vidrio templado que protege los restos de la vivienda construida en el siglo XVII, después del terrible terremoto de San Valentín (14 de febreo de 1619). Piso con un patrón tesalónico hexagonal en tonos marrones. FUENTE: BBVA Banco Contintental FUENTE: BBVA Banco Contintental FUENTE: BBVA Banco Contintental FUENTE: BBVA Banco Contintental FUENTE: BBVA Banco Contintental FUENTE: BBVA Banco Contintental FUENTE: BBVA Banco Contintental FUENTE: BBVA Banco Contintental FUENTE: BBVA Banco Contintental FUENTE: BBVA Banco Contintental
CORDYLINE
Piso
encuentra en
mantenimiento. Piso
Pileta

3.57

4.96

11.81

6.66 8.27 7.99

1.06 5.26 0.72 7.50 0.71 7.67

19.20

20.34 43.87 Ca uso Ant cona Em y A exand a

P131.00 2.100.90 2.10 CASA GANOZA CHOPITEA ANEXOS ESC.: 1/125

16.94

-

0.57 5.67 0.57 4.24 0.85 4.46 0.71 2.64

P151.20 2.10 P151.28 2.10

22.93 Calderón Reyes, Francisco Javier R o Peña sa a Agu t n

0.57 17.70 0.57 0.57 1.67 1.84 4.22 1.35 3.43 2.60 2.20 1.33

11.43 5.24 3.04 PRIMERA PLANTA - ESTADO ACTUAL

P131.00 2.10

0.57 0.57 0.57 14.10 1.84 0.49 3.31 0.57 0.57 3.52 1.95 15.89 0.57 0.57 36.26 0.72 5.26 1.06 7.04 36.83

19.71 P nedo Gomez E an Ca o

P151.20 2.100.90 2.100.90 2.10

0.82 2.10

14.05 8.39 P101.60 2.10 Gonza e Huamán Anaye y Ge a d ne V da Garc a Kev n Oma

P6P111.65 2.10 P12Sánchez V anueva Ca o Josué

P131.00 2.10 Rodr gue Rub o C s an And é

18.84 18.08 14.67 6.22 4.09 18.41 PORTAFOLIO 19/12/22 - UNIVERSIDAD NACIONAL DE TRUJILLO A-01 Integrantes Curso: Lámina: Docente: Taller de conservación del patrimonio Mg. Arq. Miky Torres Garay Alejandria, Sunny Solange

JIRÓN INDEPENDENCIA
NPT
cemento CALESERA NPT 0.00 Piso: Adoquinado de piedra SALONES NPT 0.00
PATIO NPT
con cemento SALONES NPT 0.54 Piso: Adoquinado de piedra ANDROCEO NPT 0.54 Piso: Adoquinado de piedra color beige oscuro GINECEO NPT 0.54 Piso: Adoquinado de piedra color gris oscuro SALONES NPT 0.54 Piso: Adoquinado de piedra SALONES NPT 0.54 Piso: Adoquinado de piedra SALONES NPT 0.54 Piso: Adoquinado de piedra SALONES NPT + 0.54 Piso: Adoquinado de piedra SALONES NPT + 0.54 Piso: Adoquinado de piedra PATIO NPT
con cemento CORREDOR NPT 0.00 Piso: Piedra con cemento PATIO NPT + 0.72 Piso:
A B C D E F G H
-
-
ORATORIO NPT 0.00 Piso: Madera P21.00 2.10 P11.84 2.10 ZAGUÁN
0.00 Piso: Piedra con
Piso: Adoquinado de piedra
0.00 Piso: Piedra
0.72 Piso: Piedra
Piedra con cemento 1 2 3 4
P3P4
1.30 2.103.18 2.10 P41.30 2.10 P2
P7P8 -
1.86 2.10 P9
2.00 2.10
2 3 4 A B C D E F G H
4.22 1.35 3.43 2.60 2.20 1.33 1.14
36.26 0.72 5.26 1.06 7.04 36.83 3.57 4.96 11.81
20.34 43.87
BALCÓN NPT 2.30 Piso: Madera de algarrobo PASADIZO NPT 2.30 Piso: Madera de algarrobo SEGUNDA PLANTA - ESTADO ACTUAL PORTAFOLIO 19/12/22 - UNIVERSIDAD NACIONAL DE TRUJILLO A-02 Integrantes Curso: Lámina: Docente: Taller de conservación del patrimonio Mg. Arq. Miky Torres Garay Alejandria, Sunny Solange Ca uso Ant cona Em y A exand a Calderón Reyes, Francisco Javier R o Peña sa a Agu t n P nedo Gomez E an Ca o Gonza e Huamán Anaye y Ge a d ne V da Garc a Kev n Oma Sánchez V anueva Ca o Josué Rodr gue Rub o C s an And é CASA GANOZA CHOPITEA ANEXOS ESC.: 1/125
1
1.06 5.26 0.72 7.50 7.67 0.57 5.67 0.57 4.24 0.85 4.46 0.71 2.64 0.57 17.70 0.57 0.57 1.67 1.84
16.94 0.57 0.57 14.10 1.84 0.49 3.31 0.57 0.57 3.52 1.95 15.89 0.57 0.57
6.66 8.27 7.99 11.43 5.24 3.04 18.84 18.08 14.67 6.22 4.09 18.41
22.93 19.71 14.05 8.39
N.P.T. 0.00 ZAGUÁN N.P.T. 0.00 PATIO CENTRAL N.P.T. 0.54 ANDROCEO N.P.T. 0.54 GINESEO N.P.T. 0.36 PATIO TRASERO A B C D E F G H Portada policromada barroca Viguetas de madera Zócalo inferior rojizo Muro enlucido de yeso-pintura blanca Muro de adobe Pintura mural estilo manierista SALONES SALONES SALONES ORATORIO SALONES SALONES Portada policromada barroca Viguetas de madera Zócalo inferior rojizo Muro enlucido de yeso-pintura blanca Muro de adobe ESC.: 1/125 CORTE A ESC.: 1/125 CORTE B PORTAFOLIO 19/12/22 - UNIVERSIDAD NACIONAL DE TRUJILLO A-03 Integrantes Curso: Lámina: Docente: Taller de conservación del patrimonio Mg. Arq. Miky Torres Garay Alejandria, Sunny Solange Ca uso Ant cona Em y A exand a Calderón Reyes, Francisco Javier R o Peña sa a Agu t n P nedo Gomez E an Ca o Gonza e Huamán Anaye y Ge a d ne V da Garc a Kev n Oma Sánchez V anueva Ca o Josué Rodr gue Rub o C s an And é CASA GANOZA CHOPITEA ANEXOS

3.57

4.96

11.81

22.93

6.66 8.27 7.99

1.06 5.26 0.72 7.50 0.71 7.67

SALÓN AUDIOVISUAL NPT 0.00 Piso: Adoquinado de piedra

SOUVENIR

NPT 0.00 Piso: Madera

P21.00 2.10

1.25 2.10

19.71

11.43 5.24 3.04

0.57 5.67 0.57 4.24 0.85 4.46 0.71 2.64

MUEBLE BAJO DE EXPOSICIÓN MUEBLE BAJO DE EXPOSICIÓN

14.05 8.39

SALÓN DE EXPOSICIÓN NPT 0.54 Piso: Adoquinado de piedra

P151.20 2.10

SALÓN DE EXPOSICIÓN NPT 0.54 Piso: Adoquinado de piedra

P131.00 2.10

SALÓN DE EXPOSICIÓN NPT 0.54 Piso: Adoquinado de piedra MUEBLE BAJO DE EXPOSICIÓN MUEBLE BAJO DE EXPOSICIÓN

16.94

PATIO NPT + 0.00 Piso: Piedra con cemento

SALÓN DE EXPOSICIÓN NPT 0.54 Piso: Adoquinado de piedra

P13 -

SS.HH. NPT + 0.54 Piso: Adoquinado de piedra

SALÓN DE EXPOSICIÓN NPT 0.54 Piso: Adoquinado de piedra

P140.90 2.10

SALÓN

P1ZAGUÁN NPT 0.00 Piso: Piedra con cemento

1.20 2.101.00

1.20 2.10 P140.90 2.10

NPT 0.54 Piso: Adoquinado de piedra

P16 -

SS.HH VARONES NPT + 0.36 Piso: Adoquinado de piedra

SS.HH MUJERES NPT + 0.36 Piso: Adoquinado de piedra

2.60 4.20

1.00 2.10

P4

1.30 2.10

P92.00 2.10

P101.60 2.10 P6P12 -

PATIO 2 RETROALIMENTACIÓN NPT + 0.36 Piso: Piedra con cemento

18.84 18.08 14.67 6.22 4.09 18.41

SALÓN DE EXPOSICIÓN PRINCIPAL NPT 0.36 Piso: Piedra con cemento 1 2 3 4

0.57 17.70 0.57 0.57 1.67 1.84 4.22 1.35 3.43 2.60 2.20 1.33 1.14

20.34 43.87

COMEDOR NPT + 0.54 Piso: Adoquinado de piedra color beige oscuro CAFETERÍA NPT 0.54 Piso: Adoquinado de piedra color gris oscuro

NPT 0.00 Piso: Adoquinado de piedra

2.10

0.57 0.57 0.57 14.10 1.84 0.49 3.31 0.57 0.57 3.52 1.95 15.89 0.57 0.57 36.26 0.72 5.26 1.06 7.04 36.83

PRIMERA PLANTA - PROPUESTA

JIRÓN INDEPENDENCIA
CORREDOR NPT 0.00 Piso: Piedra con cemento
A B C D E F G H
-
P32.60 4.20 P41.30 2.10
-
P21.00 2.10 P7 -
-
PANELES MÓVILES MADERA CONTRAPLACADA MUEBLE BAJO DE PANELES MÓVILES MADERA
BOLETERÍA
ESC.: 1/125 PORTAFOLIO 19/12/22 - UNIVERSIDAD NACIONAL DE TRUJILLO A-04 Integrantes Curso: Lámina: Docente: Taller de conservación del patrimonio Mg. Arq. Miky Torres Garay Alejandria, Sunny Solange Ca uso Ant cona Em y A exand a Calderón Reyes, Francisco Javier R o Peña sa a Agu t n P nedo Gomez E an Ca o Gonza e Huamán Anaye y Ge a d ne V da Garc a Kev n Oma Sánchez V anueva Ca o Josué Rodr gue Rub o C s an And é CASA GANOZA
ANEXOS
DE EXPOSICIÓN INICIA RAMPA RAMPA 1 RAMPA 2 LLEGA RAMPA INICIA N.P.T. + 0.30 PISO MADERA N.P.T. 0.54 PISO MADERA P3 -
CHOPITEA

3.57

4.96

11.81

CASA GANOZA CHOPITEA ANEXOS ESC.: 1/125

22.93

6.66 8.27 7.99

19.71

11.43 5.24 3.04

0.57 5.67 0.57 4.24 0.85 4.46 0.71 2.64

14.05 8.39

0.57 17.70 0.57 0.57 1.67 1.84 4.22 1.35 3.43 2.60 2.20 1.33 1.14

0.57 0.57 0.57 14.10 1.84 0.49 3.31 0.57 0.57 3.52 1.95 15.89 0.57 0.57 36.26 0.72 5.26 1.06 7.04 36.83

4.62 0.71 PLANO DE DEMOLICIONES

0.71 0.71 1.00 4.30 Ca uso Ant cona Em y A exand a

0.71 Calderón Reyes, Francisco Javier R o Peña sa a Agu t n

20.34 43.87 SOMBREADO DESCRIPCIÓN MUROS DEMOLER

18.84 18.08 14.67 6.22 4.09 18.41

16.94

Gonza e Huamán Anaye y Ge a d ne V da Garc a Kev n Oma

Rodr gue Rub o C s an And é

Sánchez V anueva Ca o Josué

P nedo Gomez E an Ca o

1.20 PORTAFOLIO 19/12/22 - UNIVERSIDAD NACIONAL DE TRUJILLO A-05 Integrantes Curso: Lámina: Docente: Taller de conservación del patrimonio Mg. Arq. Miky Torres Garay Alejandria, Sunny Solange

A B C D E F G H
1 2 3 4
1.06 5.26 0.72 7.50 0.71 7.67

11.81

22.93

CASA GANOZA CHOPITEA ANEXOS ESC.: 1/125

6.66 8.27 7.99

3.57

4.96

2.16 0.71 0.71 A B C D E F G H

19.71

11.43 5.24 3.04

14.05 8.39

1.59 0.71 PLANO DE REMODELACION

1 2 3 4 Calderón Reyes, Francisco Javier R o Peña sa a Agu t n

20.34 43.87 SOMBREADO DESCRIPCIÓN MUROS A CONSTRUIR

0.64 0.90 Ca uso Ant cona Em y A exand a

18.84 18.08 14.67 6.22 4.09 18.41

0.57 0.57 0.57 14.10 1.84 0.49 3.31 0.57 0.57 3.52 1.95 15.89 0.57 0.57 36.26 0.72 5.26 1.06 7.04 36.83

16.94

Gonza e Huamán Anaye y Ge a d ne V da Garc a Kev n Oma

Rodr gue Rub o C s an And é

Sánchez V anueva Ca o Josué

P nedo Gomez E an Ca o

0.80 0.85 1.29 PORTAFOLIO 19/12/22 - UNIVERSIDAD NACIONAL DE TRUJILLO A-06 Integrantes Curso: Lámina: Docente: Taller de conservación del patrimonio Mg. Arq. Miky Torres Garay Alejandria, Sunny Solange

1.06 5.26 0.72 7.50 0.71 7.67
0.57 5.67 0.57 4.24 0.85 4.46 0.71 2.64
0.57 17.70 0.57 0.57 1.67 1.84 4.22 1.35 3.43 2.60 2.20 1.33 1.14

Turn static files into dynamic content formats.

Create a flipbook
Issuu converts static files into: digital portfolios, online yearbooks, online catalogs, digital photo albums and more. Sign up and create your flipbook.