Samantha Newman Design Portfolio 2022

Page 1

SAMANTHA NEWMAN INTERIOR SAVANNAH COLLEGE OF ART AND DESIGN PORTFOL O I DE S GN
HEALTH. HAPPINESS. SUSTAINABILITY. CURIOSITY.
snewman734@gmail.com 203 - 945 - 9888 I’M SAMANTHA NEWMAN Garment: Daniella Guiterrez - SCAD Fashion
Pillars of design and life.
RETAIL Moseart Records 3 CO NT EN TS RETAIL Rarible Concept Store 2 WORKPLACE Cuckooz Nest Coworking 1

FLI G H T

01 OF THE IMAGINATION

WORKPLACE DESIGN

A co-working office space for parents and guardians of young children that offers support for re-entering the work force with a catered setting for work and childcare resources to generate the successful businesses of tomorrow.

CONCEPT

Owls can be traced through history as symbols of fierce wisdom and knowledge. Protecting their young in their nests, these animals soar through the skies hunting, providing, and thriving. Even when faced with obstacles, these animals find ways to thrive and care for their young.

LOCATION

Clark Hall | Savannah, GA

Clark Hall, 229 Martin Luther King Jr Blvd, Savannah, GA 31401

Today, Clark Hall serves as an academic building for the Savannah College of Art and Design. Originally, it was erected as a train station. The project honors the buildings original use by preserving the historic arch forms and stained glass windows throughout.

THE CONVERSATION

NEST

Incorporation of historic stained glass and window molding

Custom lighting element to incorporate branding

Live wall - improve air quality and focus

0'5" 2' 10 1/2" 0' 8 1/2" 13'10" 12' 5 1/2" 0'9" 0'9" 0' 5 1/2"
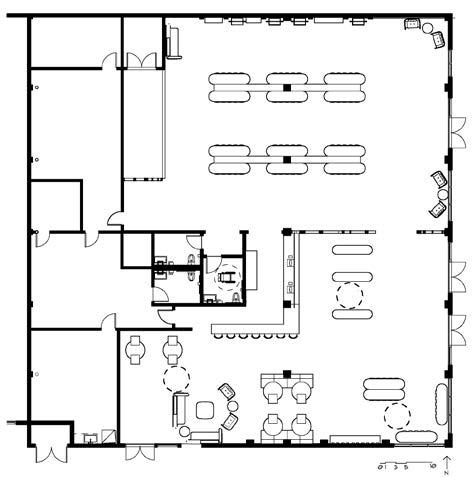
OF THE IMAGINATION FLI G H T COLLABORATION INCLUSION COMMUNITY UP DN 0 10 M Bathroom 81 sq. ft Copy & Supply Room 359 sq. ft Coffee Bar 800 sq. ft Reception 677 sq. ft Daily Offices 1214 sq. ft Co-working Center 1214 sq. ft Focus Desks Focus Desks Break Area Collaborative Nest Conference Room 677 sq. ft Office Suites 870 sq. ft (combined) Large Co-working Room 381 sq. ft Small Co-working Room 276 sq. ft Monthly Offices 500 sq. ft (combined) ISSUE FOR MINORITIES CONSIDERING NEURODIVERISITY 36% of Black
of Hispanic
$50,000
income
The
FLOOR PLAN
mothers, 30%
mothers
in annual
work after having a child.
project specifically supports users with ADHD. ADHD is often left undiagnosed in women , leaving them feeling alone and unable to reach their full potential.

The Parlaiment is the co-working center of the Cukooz project. Users gather to collaborate, like a group of owls. Thus the name: Parliament, which describes a group of owls.

FLI G H T

THE HYPERFOCUS DEN OF THE IMAGINATION

By using design strategies that increase productivity the hyperfocus den is the ideal spot for a single user to power through a day of work.

Feeling of protection

Preserve historic arch and original stained glass

Owls are safe and supported in their nest

Simplify the nest and owl forms

Distill the essence of safety and support

Apply to built environment

CONSIDERING NEURODIVERISITY

Floor to ceiling structure

Users with ADHD feel more comfortable without open space at their backs.

Eye tracking

Rectangular forms in window used to bring users eyes down to the desk.

Acoustic consideration

Buzzi panels between each desk serving as pin-up boards and acoustic assistance.

N FT

02 RARIBLE CONCEPT STORE

MUSEUM/RETAIL

A concept store that explores future exhibition oppertunities for NFTs, non-fungible tokens, as pieces of fine art. The Rarible Concept Store is an exploration into museums of tomorrow and retail experiences of today.

CONCEPT

What does the future hold? If we are today in the rise of technology, what will the age of technology look like?

The Rarible Concept store explores the imagery of the metaverse, in real life.

LOCATION

Long Beach, CA

Rarible Concept Store

Long Beach is a suburb of Los Angeles, home to high to middle income users. This is a prime vacation home area. The community tends to be friendly, many inhabitants have dogs or children, and the nearby public schools are highly rated.

THE NFT GALLERY LED display Downlights to create drama High gloss finishes-create drama and future appeal
VIEWING LEARNING INTERACTING Purchasing and Perusing Break Room Manager Office Restroom Museum Viewing Gallery VR Center Learning Center LF-1 LF-4 LF-4 LF-1 LF-1   LF-5             LT-7 LF-6 LF-3 LF-3 LF-1 LF-2 1/8" = 1'-0" 1 Reflected Ceiling Plan FURNITURE PLAN Purchasing and Perusing Break Room Manager Office Restroom Museum Viewing Gallery VR Center Learning Center REFLECTED CEILING PLAN RARIBLE CONCEPT STORE N F T

FIBER OPTIC ILLUSION

This illusion transition metaphorically displays the technology that connects the world; fiber optics. Spotlights encourage the eye to see an implied line of light connecting from floor to ceiling. In a nod to the past this experience displays what makes the present possible.

N F T

RARIBLE CONCEPT STORE

CONSIDERING BRANDING

THE RESPAWN POINT

A respawn point is an imaginary place where a character in a video game is resurrected after they die or lose the game. The Respawn Point in the Rarible project is where the users physical body is metaphorically left behind as they enter and exit the space dedicated to the metaverse in real life.

Purchase and display kiosks where users can buy or discuss NFT’s

High gloss finishes to create reflections

03MOSAERT RECORDS

RETAIL

Wynwood Miami is a creative and developing community. Moseart records will be a center for self expression , offering opportunity to shop, preform, or relax while appealing to Wynwood’s demographics.

CONCEPT

The Sapeur movement is more than a fashion choice. It’s a way of living. Mosaert records is an interpretation of the sartorial culture of the sapeur. Today, men and women of this movement, sapeur and sapeuse, are beacons of style in their community. Mosaert pays homage to this style and adds a musical backdrop to the movements catwalk.

LOCATION

Wynwood Miami, Florida

2320 NW 2nd Ave, Miami, FL 33127

Wynwood, Miami is a rapidly gentrifying neighborhood located north of Miami. The area was once a hub for musicians and artists. Today, these artists are forced to relocate as cost of living rapidly increases.

Form inspired by the glamor and elegance of the Sapeur

Interactive screen

Drawer illuminates when user searches for a record inside

Users can search for their desired record, or find recommendations for new music
DISPLAYS
THE RECORD GALLERY CUSTOM

Bright patterns on the walls and floors nod to the concept while engaging the user and creating activity groups.

GROOVY TUNES
MAKING SPACE FOR EVERYONE ELEVATING THE CLASSIC EXPERIENCE Mosaert combats gentrification by providing space for music performance and consumption. By gathering a cafe and stage with a record store, Mosaert preserves the classic record shopping experience and fulfills the needs of users today. RECORDSMOSAERT RETAIL INTERACTION COMMUNITY Retail Center Point of Sale “New In Music” Section Listening Wall Cafe Employee Restoom Restroom Performance Stage FURNITURE PLAN

RECORDSMOSAERT

VINYL CAFE

Bold forms and playful lighting are the main events in the vinyl cafe, where users can gather to chat or grab a bite. Close by, the listening wall allows users to listen to new emerging artists.

CONSIDERING USER NEEDS

Community Involvement

The vinyl cafe offers a casual space for music discussions and brainstorming. Bright colors sit against a backdrop of industrial finishes speaking to the authentic roots of the building.

Emerging Talent Exposure

At the Listen In station, users can either listen to emerging artists or leave their music to be listened to. In this way, users are constantly being exposed to new artists and new artists can advertise affordably.

Elevated Shopping Experience

With interactive record displays the shopping experience still includes thumbing through records, but without the endless searching if the user so chooses.

Turn static files into dynamic content formats.

Create a flipbook
Issuu converts static files into: digital portfolios, online yearbooks, online catalogs, digital photo albums and more. Sign up and create your flipbook.
Samantha Newman Design Portfolio 2022 by Samantha Newman - Issuu