Skip to main content

Architecture Portfolio

Page 1

LinkedIn: www.linkedin.com/in/sakshi-b-776031147

Website: https://parsnip-dachshund-nsz9.squarespace.com/

olio
F
of Selected Works Architecture and Art
Sakshi Bagaddeo

Software Skills

-Vectorworks -AutoCAD -Rhino

Possess working knowledge of any relevant software. Currently self-educating in Revit.

2 1. Selected Works
-Adobe Creative Suite -MS Office

Oil painting by Sakshi-Dated-22/10/2022

Created at Fitzroy Painting Studio, Melbourne, VIC

VSBA Documentation Works

Selected Works 2.

Project: CAMBERWELL HIGH SCHOOLCamberwell, VIC

Typology: Education Company: DiMaseArchitects

Contract Documentation for a VSBA project. This project required an extensive refurbishment job for 66 large Timber double hung windows with the traditional pulley system.

Design Process and Challenges:

• The project was divided into 10 stages and the windows were put into 5 different categories depending on the construction type and the amount of refurbishment work to be done to them.

• Each window required careful investigation of existing conditions and detailed documentation of all repair works required.

• This involved numerous site visits with at least 1 site visit per week.

• Consultation with local window manufactures allowed us to understand remedial measures better.

• Software used for all stages: Vectorworks

• Team: Worked majorly alongside the Director and with a team of 2 for the final tender drawings.

Selected Works
3.
Sample drawing

Project: KANGAROO

ELEVATIONS,FITOUT PACKAGE AND SANITARY FACILITES(AS1428.1), Kangaroo Ground, VIC

Typology: Education Company: DiMaseArchitects

Contract Documentation for a VSBA project. This was a proposal for a primary school accommodating 300 students and staff members.

Design Process and Challenges:

• The brief required a decent space distribution of learning and admin spaces.

• Careful documentation was carried out for wet areas and fit-outs for learning spaces keeping in mind anthropometrics , sufficient space for printing equipment and other appliances, sanitary fixture dimensions that catered to primary students.

• Accessibility requirements were documented in accordance to AS1428.1 for accessibility and ambulant compliance.

• Software used for all stages: Vectorworks

• Team: Worked majorly alongside the Director and with a team of 2 for the final tender drawings.

Selected Works
PRIMARY
GROUND
SCHOOL-INTERNAL
5.

Residential Documentation Works

Oil painting by Sakshi-Dated-15/10/2022

Created at Fitzroy Painting Studio, Melbourne, VIC

Selected Works 6.

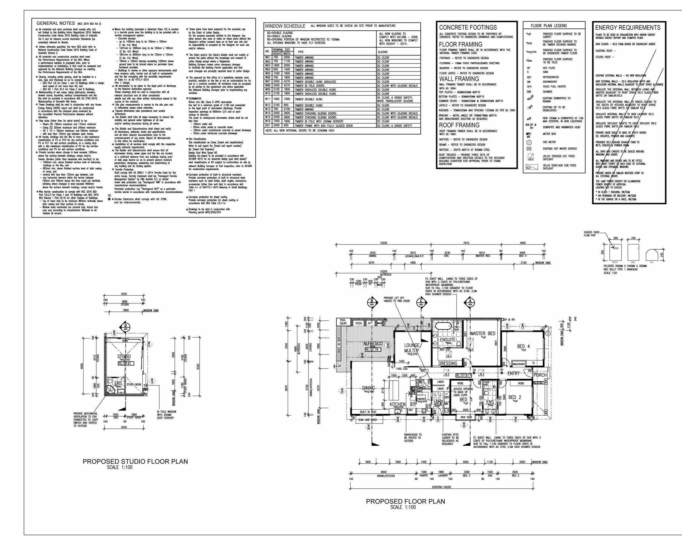
Project: STUDIO EXTENSION, AnketellSt, Coburg, VIC

Typology: Residential

Company: DiMaseArchitects

Contract Documentation for a residential project. This was a proposal for an existing dwelling and the requirement was for a multi-purpose studio.

Design Process and Challenges:

• This project was a good introduction to timber framing and construction.

• I also had the opportunity to take over the Contract Administration and maintain correspondence with the client and the builder for the smooth running of the project. This also included preparing crisp site meeting minutes.

• Software used for all stages: Vectorworks

• Team: Worked alongside with the Director.

7. Selected Works
Sample drawing
8. Selected Works

Project: EXTENSION AND RENOVATION-WORKING DRAWING SET

Clarendon St, VIC

Typology: Residential

Company: Levan Design

Design Process and Challenges:

1. This project required an understanding of the overall process involved in the documentation of an extension to a dwelling. This also was an opportunity to understand the working methodology of a building designer.

2. This project also gave me the opportunity to understand every Architect/Building designer’s documentation styles.

3. Maintaining a balance in the amount of information given to the builders through clear drawings and a sound construction knowledge was one of the many lessons learnt.

• Software used for all stages: AutoCAD

• Team: Worked alongside Director

9. Selected Works

Student Works

Selected Works 10.
Oil painting by Sakshi-Dated-27/09/2023 Created for the annual Linden Postcard Show 2023 at the Linden Art Gallery, Melbourne, VIC

Project: Student work – Masters

University: RMIT (Melbourne)

1. (Masters coursework) - Understanding how occupants occupy a space and decide their ‘spot’ in a room was the driving force to the project. Using furniture to record time spent in a space was a subsequent outcome of the project. Patina was the concept explored and it helped in making time a tangible means to understand space occupation

Software: The project required physical prototyping and exploration in Rhino 3D.

11.
1.
Final Speculative Model images

Project: Student work – Bachelors

University: BNCA (India)

1. (Bachelors coursework) - A thesis on an unconventional dwelling. The soul of this project was understanding design strategies for making a space for the dead and departed occupants. Ultimately, the space was intended to remove stigma and make it more welcoming. The outcome was envisioned to be a comfortable space to bid goodbye to loved ones.

Software: The project required physical prototyping and finaloutcomesin AutoCAD 2D and Sketchup.

1.
Final Technical drawings
Selected Works 12.
Final Rendered Digital Model

Sakshi Bagaddeo

LinkedIn: www.linkedin.com/in/sakshi-b-776031147

Email: sakshi.bagaddeo@gmail.com

Ph.No: (+61)435071067

painting by Sakshi-Dated-29/10/2022

Oil
Created at Fitzroy Painting Studio, Melbourne, VIC 14. Selected Works

Turn static files into dynamic content formats.

Create a flipbook
Architecture Portfolio by Sakshi Bagaddeo - Issuu