sabmag88 fall 2025

Page 1


CITE ANGUS PHASE II - BLOC 4

High density living follows passive strategies

BIOREGIONAL MATERIALS

The opportunities for Canada

EXPANDING ROLE OF ENERGY

SIMULATION IN NET ZERO MURBS

Integrating envelope design, energy storage and heat pumps

PORTLAND COMMONS

Designed to LEED Gold, Zero Carbon, and WELL Building Gold

Walls Reinvented

Low carbon. High circularity. No compromise.

Sustainable Insulation TM

A brighter solution for a better tomorrow

Sustainable Finishing Products

GREENGUARD Gold certified for low VOC-emissions.

Scan the QR code to learn more

For more about the articles in this

Build Canada Homes

& Products

Portland Commons: Designed to achieve LEED Gold, Zero Carbon, and WELL Building Gold

Cite Angus Phase II – Bloc 4: High density follows passive strategies

Ulster House: Prototype targets gentle density and sustainable living

Expanding Role of Energy Simulation in Net Zero MURBs: Integrating envelope design, energy storage and heat pumps

Jones Residence Reno: 1945 cabin reimagined

Bioregional Materials: The opportunities for Canada

(S) efficient house: Compact design a rethink on housing and retirement

The Winning Teams: 2025 Canadian Green Building Awards

Designing for Zero Carbon Building: An overview of process and recent examples

Building Prefabrication: Two projects demonstrate the benefits

Solar air heating: Innovation and flagship projects

The 2026 Directory of Products and Services for Sustainable High-Performance Building: Our annual Special Supplement … and more!

Cover: Cite Angus Phase II – Bloc 4. Ædifica. David Boyer Photographe.

Dedicated to high-performance building

Member Canada Green Building Council

SABMag is a proud member and official media partner of the Canada Green Building Council.

VISIT www.sabmagazine.com

Publisher Don Griffith

613-890-9634, dgriffith@sabmagazine.com

Editor Jim Taggart, FRAIC 604-874-0195, architext@telus.net

Senior Account Manager Patricia Abbas 416-438-7609, pabbas@sabmagazine.com

Graphic Design Carine De Pauw cdepauw@sabmagazine.com

Subscriptions/Change of Address Lyse Cadieux, lcadieux@sabmagazine.com

Published by www.janam.net PO Box 462 Stn Aylmer Gatineau, QC J9H 5E7

Subscription prices for print [taxes extra]

1 year [4 issues] $28.95 $39.95 $84.95

2 years [8 issues] $50.95 $69.95 $148.75

3 years [12 issues] $74.95 $104.95 $219.85

order print or digital: https://sabmagazine.com/subscribe/

ISSN 1911-4230

Copyright by Janam Publications Inc. All rights reserved. Contents may not be reprinted or reproduced without written permission. Views expressed are those of the authors exclusively.

Publication Mail Agreement #40024961 Return undelivered Canadian address mail to: Janam Publications Inc., 81 Leduc St., Gatineau, Qc J8X 3A7

Printed on EQUAL Offset paper.

Build Canada Homes

Since Prime Minister Mark Carney announced the creation of a new federal agency called Build Canada Homes (BCH) in September, the response from industry stakeholders and non-governmental organizations has been mostly positive.

The re-engagement of the federal government in a national housing strategy is long overdue, and the stated goal of BCH to tackle Canada's housing crisis is ambitious, wide ranging and socially progressive. It includes:

• to significantly increase the supply of affordable housing through large-scale, long-term projects

• to leverage publicly owned land to reduce the base cost of building

• to provide flexible financing for builders

• to encourage modern, sustainable construction methods including prefabrication

BCH envisages a collaborative approach, working with provinces, municipalities, Indigenous communities, NGOs and the private sector.

Growing the supply of affordable and community housing will require the active involvement of mission-driven organizations whose core purpose is to advance social, community, or equity-focussed goals.

These organizations will include non-profits, co-operatives, Indigenous housing providers, and those supporting women, people with disabilities, newcomers, and groups in need of supportive and transitional housing.

Fostering a new Canadian housing industry focused on efficiency and increased production will require a paradigm shift from traditional site construction to factory-based prefabrication, where material efficiency, productivity and cost control can all be significantly improved.

While building homes faster is critical to the success of this initiative, we must also continue to emphasize solutions that are high performance, low carbon, resilient against extremes of heat and cold, and truly affordable relative to the household income of the target demographic.

While repetition underpins the speed and economy of factory production, we must not forget that architecture should be responsive to regional materials, topography and climate – as well as the scale and density of its physical context – whether low or high. Also important are the qualitative attributes that support occupant wellbeing and social interaction, both of which are fundamental to community resilience.

This issue features residential projects at a variety of scales, demonstrating the synergies that are achievable between the quantitative performance goals of environmental sustainability and the qualitative goals of community engagement.

Photo: Roy Grogan

Daylighting

balance

Only Kalwall offers the power of beautifully balanced daylighting. Unlike other glazing products on the market, Kalwall provides predictable, glare-free daylight that blocks harmful UV-A and UV-B rays while transmitting the full spectrum of visible light for perfect color rendition within interiors.

productivity

To be most productive, one needs to be comfortable first. Add superior light quality and views to the outdoors along with natural ventilation to enhance indoor environmental quality and people thrive. Daylighting done right has been proven to increase productivity, reduce absenteeism and improve mood. Kalwall works hard so employees can work smart.

sustainability

Translucent Kalwall panels provide perfectly diffuse daylighting that evenly bathes spaces in natural light, meaning fewer lights on during the day. Our high recyclability and low embodied carbon ratings are planet friendly. Even better, our best-in-class thermal performance means you get superb daylight without any solar heat gain. That means savings for electrical and cooling costs, which is good for both your bottom line and the environment.

College of Architecture, UNL | Lincoln, NE
photo: Nic Lehoux

RECONCILIATION AND REGENERATION: Ethical Space in the Architecture of Tomorrow

Canada’s path to sustainability must include reconciliation. As the building sector grapples with the climate crisis, equity, and ecological degradation, Indigenous knowledge and leadership offer powerful guidance for regenerative practice. Since 2020, the Royal Architectural Institute of Canada (RAIC) Truth and Reconciliation Task Force (TRTF) has been helping to redefine the architectural profession through this lens—shaping not just what we build, but how and why we build.

Informed by the Truth and Reconciliation Commission’s Final Report (2015), the National Inquiry into Missing and Murdered Indigenous Women and Girls (2019), and the United Nations Declaration on the Rights of Indigenous Peoples (2007), the TRTF has laid the foundation for change. It challenges the profession to move beyond symbolic gestures and into spaces of genuine Indigenous leadership, cultural safety, and systemic accountability. The recent transition in Task Force leadership marks a significant moment. Founding co-chairs Alfred Waugh (Treaty 8, Status Indian), FRAIC, and Sim’oogit Ksi-Baxhlkw | Dr. Patrick Stewart (Nisga’a), PhD, FRAIC, are stepping down after five years of transformational work. Their leadership helped the RAIC formally adopt UNDRIP in 2021 and created space for critical education, mentorship, and cross-cultural engagement within the profession.

“Reconciliation in architecture must go beyond symbolism—it must shape how we design, plan, and teach,” says Waugh, known for his work integrating Indigenous values and sustainability in architectural design. Stewart adds, “Truth comes before reconciliation. We must continue moving toward respect, accountability, and real partnership.”

Taking up the co-chair roles are Darian McKinney, MRAIC, an Anishinaabe architect from Swan Lake First Nation with a strong foundation in community-based design, and Jennifer Cutbill, FRAIC, a settler architect of mixed European descent whose career has centred on ethical regenerative practice and ecosocial justice.

“The TRTF is a space for listening, learning, and acting,” says McKinney. “This work must be led by Indigenous voices and grounded in community.”

Cutbill notes, “Reconciliation is an ongoing responsibility. It requires embedding UNDRIP into everyday practice, and co-creating Ethical Space—where Indigenous and non-Indigenous knowledge systems engage as equals.”

www.raic.org/truth-and-reconciliationtask-force.

CAGBC EXPANDS ZCB STANDARD TO PART 9 BUILDINGS

The Canada Green Building Council (CAGBC) has expanded its Zero Carbon Building –Design Standard™ to include some Part 9 multi-unit residential buildings (MURBs).

ZCB-Design is an established and proven framework for reducing greenhouse gas (GHG) emissions from new construction and major renovations. While the Standard is widely applied to Part 3 buildings, its expansion to Part 9 MURBs with five or more stacked units is essential for aligning smaller-scale developments with national climate goals.

CAGBC has published a pilot document for applying ZCB-Design v4 to select Part 9 multifamily buildings. The document outlines the new eligibility criteria for Part 9 residential buildings, along with unique technical requirements – particularly for embodied carbon.

Interested projects can reach out to zerocarbon@cagbc.org for more information.

MICHAEL QUAST NAMED NEW CEO OF PASSIVE HOUSE CANADA

Michael Quast has replaced Chris Ballard as CEO of Passive House Canada. Ballard led the organization for more than five years, significantly advancing the national conversation around sustainable, high-performance building. Quast’s accomplishments include designing and building Oakville's first straw bale home, spearheading branding initiatives with The Holmes Group, and shaping regulatory and consumer protection strategies in Ontario's new home warranty program. jessica@passivehousecanada.com

Utilize the power of wastewater for your sustainable heating & cooling projects, from district sized to individual buildings! Wastewater pairs well with geothermal, is consistent and is proven to reduce energy & water consumption while slashing carbon emissions. Broaden your design portfolio today!

sharcenergy.com

SHARC ENERGY

CERTAINTEED CANADA INTRODUCES LANAÉ AND ECOPHON

CertainTeed Canada has launched Lanaé, a sustainable glass fibre insulation, and Ecophon® Fade™, an advanced acoustic plaster system that delivers superior sound performance without compromising design flexibility.

Manufactured at CertainTeed’s insulation facilities in Redcliff, AB, and Ottawa, ON, Lanaé has received the following standards and certifications: GREENGUARD Gold; 0:0 ratings on UL Flame spread and Smoke spread testing; and CCMC evaluation. Lanaé insulation features:

• Up to 82% recycled content and a biosourced renewable binder for a reduced carbon footprint. It supports a circular economy with production waste recycled into the Ultratherm regrind insulation product.

• Reduced dust, odourless installation, and improved handling, recovery, and rigidity.

• Formulated without formaldehyde while improving energy efficiency and acoustic performance.

The spray-applied Ecophon Fade provides a smooth, seamless aesthetic acoustic solution on curved and angled surfaces and complex architectural forms, and delivers a Noise Reduction Coefficient (NRC) of 0.80–0.90, depending on coreboard thickness and surface application.

EVENTS

December 3-5: The Buildings Show 2025, Toronto. https://informaconnect. com/the-buildings-show/. SABMAG readers save 20% with code TBS25SAB

CONSTRUCTION SPECIALTIES INTRODUCES STYX™

AND BETTERBUILT STUDIO™

Construction Specialties has introduced STYX™ - lightweight aluminum linear profiles of 2”, 4”, or 6” depths and up to 10’ long to enhance depth and bring visual interest to both interior and exterior settings.

The profiles can also be curved to simulate flow, waves or visual movement on walls or ceilings while pre-made corners sport precise right angles that are attached in vertical, horizontal or diagonal orientations.

The new BetterBuilt Studio™ from Construction Specialties offers complete design assistance, including structural and mechanical engineering support, custom detailing, comprehensive drawings, advanced test reporting, and installation guidance. It allows designers to explore new configurations beyond traditional louvre, sunshade or façade elements.

BIGFOOT DOOR APPOINTED AS NORTH AMERICAN WHOLESALE DISTRIBUTOR OF SCHÜCO SYSTEMS

Bigfoot Door, a Mississauga-based family-owned manufacturer in the fenestration industry for over 45 years, has been appointed as the wholesale distributor

of Schüco aluminum window and door systems across North America.

Bigfoot Door has 15+ years of experience with Schüco systems, and will strengthen and expand the Schüco fabrication partner network across North America, ensuring fabricators have access to Schüco premium systems, technical expertise, and training.

ENGINEERED ASSEMBLIES OFFERS CUPACLAD, A NATURAL SLATE CLADDING

Engineered Assemblies, a supplier of world-class facade materials backed by leading expertise in Rear-Ventilated Rain Screen (RVRS) sub-structure assemblies, now supplies CUPACLAD, natural sate cladding with high aesthetics and durability. Its innovative fastening as a rainscreen cladding make it a competitive and sustainable cladding option. https://www. engineeredassemblies.com/en/materials/cupaclad

CANADIAN DIRECTORY OF PRODUCTS AND SERVICES

Visit SABMag's Directory of Sustainable Products and Services for Sustainable, High-Performance Building [sabmagazine. com/product-directory/ ] where products are organized by Product Category and by LEED Category. Examples of featured listings include:

Rockfon - Highperformance solutions with low environmental impact. That’s what Rockfon stone wool ceiling tiles and panels offer. In addition to delivering IAQ support and acoustic comfort, Rockfon ceilings also feature a low carbon footprint, geared towards minimizing the environmental footprint of buildings all over the world.

Lanaé
Ecophon
Photo: Denis, Dean & Daniel Zigante, Co-Founders & Managing Partners, Bigfoot Door

PRODUCTS

Canada Brick - Located in Ontario, Canada Brick manufactures an impressive selection of residential and architectural brick, including modern and traditional colour ranges and several premium finishes. Canada Brick has manufactured brick locally for 70 years and is a smart option to buy Canadian.

Dulux/PPG - Dulux Paints operates the largest network of company-owned paint stores across Canada with the scale to deliver outstanding services and experienced account representatives to help you meet any of your design challenges.

ECO Building Resource - Suppliers of High-Performance Membranes & Tapes, Sealants & Adhesives, Paints & Finishes, Insulation & MUCH MORE.

Innotech Windows + Doors - A BC-based manufacturer of Passive House Institute certified fenestration systems for deeply sustainable custom residences and multi-family developments.

Trane - We’ll meet you where you are — achieving building or project-specific goals for your customer — by combining sustainable and efficient equipment, optimized system control strategies, and the tools you need to get the job done.

Unitiwall - Redefining the way we build with a high-performance prefabricated wall system that streamlines construction, reduces ownership costs, and accelerates schedules by up to 80%. Sustainable and resilient, our all-in-one panel solution delivers superior energy efficiency, occupant comfort, and customizable cladding and window options, for quick, on-site installation.

Aqua-Tech Sales and Marketing Inc. - Providing the Canadian marketplace with high-efficiency condensing boilers and water heater products manufactured by Lochinvar LLC. LEED BD & C Category potential for New Construction, Major Renovations and Homes for energy performance.

Canada Green Building Council - CAGBC membership unlocks the value of green buildings. Through industry-leading certifications like LEED and the Zero Carbon Building Standards, low-carbon training, and professional certifications, CAGBC supports the building sector’s efforts to reduce carbon emissions and environmental impacts while improving energy efficiency.

Kalwall - Not a window. Not a wall. But you can trust Kalwall’s translucent daylighting systems to provide all the benefits of both. Museum-quality daylighting™ validated by complimentary daylight modelling; Best-in-industry thermal performance and solar heat gain control; Wind, fire and impact resistance. Meet all your project needs with Kalwall.

NZP - A passivhaus certified tilt and turn window manufacturer located in Quebec.

We offer high-performance products and support from our team of experts from the production of the plans to the installation. Our uPVC profile allows us to manufacture very large dimensions, install the best triple glazing available, and significantly reduce your energy use.

Unicel Architectural - Specialists in the manufacturing of high energy- efficiency timber curtain wall with proven RAICO technology. Each Therm+ H-I system (56 and 76mm) combines Passive House certification-level thermal insulation, along with superior wind resistance and greater air tightness.

Alberta Ecotrust: Retrofit AcceleratorWe offer support for sustainable buildings in Alberta through: Free deep-retrofit coaching services for building owners via our Retrofit Accelerator program. Access to free resources for better building practices through our Emissions-Neutral Buildings Information Exchange (ENBIX).

Evolve Builders Group Inc.Climate Conscious Construction – 25 industry leading years; 35+ knowledgeable staff; 100s of inspiring projects. Passive House. Strawbale. Rammed Earth. Renovations. Test our reputation for expertise with costing, carbon calcs & construction on your next custom, highperformance, low-carbon home. Guelph KW – Grey County – GTA – Greater Sudbury.

Green Building Initiative - Start your building on the journey to net zero. Evaluate performance. Implement change.

Jeld-Wen - One of the world’s largest solution providers to the building products industry and one of Canada's most recognized Window and Door brands. We believe a home is more than just shelter, it’s your legacy. So we design and manufacture products that are innovative, energy efficient and of the highest quality to build lasting value for the homeowners and the professionals who use them.

Tempeff - Building on over 20 years of European innovation, Tempeff is pleased to offer air to air Dual Core® energy recovery ventilation equipment with up to 90% energy efficiency in winter without any requirement for an energy robbing defrost strategy. In these times of escalating energy costs, and concern over environmental impact, Tempeff Dual Core® Technology is the highest efficiency solution available for your building ventilation needs.

PORTLAND COMMONS

Portland Commons is a high-performance commercial office and retail development, integrating with the surrounding neighbourhood through its preservation of surrounding heritage buildings, terraced massing and activated, pedestrian focussed street presence.

Designed to achieve the hat trick of LEED Platinum, LEED Zero Carbon, and WELL Building Gold

By contributing high-quality employment and retail spaces, this project strengthens the economic and social fabric of an important mixed-use district, just steps from the planned Front and Spadina GO and commuter rail station.

The Project is designed to achieve LEED Platinum (Core + Shell), LEED Zero Carbon, and WELL Building Gold standards, supporting the highest levels of energy efficiency, environmental responsibility, and occupant physical and mental well-being through access to outdoor terraces, biophilic elements, and abundant natural light.

Commons serves as a model for sustainable, future-ready office developments supporting the dynamic life of an active

1. The eastern elevation from Portland Street. Portland
downtown neighbourhood.

Thirteen landscaped tenant terraces, green roofs, and native plantings enhance local biodiversity while reducing the urban heat island effect. Stormwater management strategies include permeable surfaces and rainwater harvesting to support sustainable greywater use within the site.

Floor-to-ceiling glazing provides occupants with unrestricted panoramic views and deep sunlight penetration. In addition, more than 90% of the occupied spaces have direct access to an operable window supporting natural ventilation and occupant comfort. The HVAC system employs MERV 13 filters and bipolar ionization to maintain superior indoor air quality while reducing energy consumption.

The underfloor (UFAD) HVAC system allows all occupants personal control of temperature and fresh air with individual manually operated diffusers. The UFAD system follows a "one pass" airflow approach that supports occupant health by delivering fresh air at the floor and drawing it away at the ceiling, eliminating the mixing of fresh and stale air in the space.

Amenities such as spa-like “end-of-trip” facilities, comfortable and secure bicycle storage, and touchless building controls further enhance the user experience.

Portland Commons integrates low-flow plumbing fixtures, waterefficient landscaping, and a rainwater harvesting system to minimize potable water consumption. The project achieves a 47% reduction in water use compared to baseline models.

The building employs Enwave’s Deep Lake Water Cooling system, underfloor air distribution, and a high performance building envelope to minimize energy demand. Annual heating and cooling energy intensity is 137 kWh/m² or less, with a strong emphasis on reducing reliance on fossil fuels. The HVAC system allows for up to a 25% reduction in outside air conditioning, and the supply air temperature requires less cooling: to 17-18 degrees Celsius rather than the traditional office building standard of 12-14 degrees Celsius. This allows for longer free-cooling periods that can extend into the late spring and start in early fall, reducing the cooling energy used by 26.8% compared to a typical office building.

PROJECT TEAM

OWNER/DEVELOPER Carttera Private Equities Inc.

ARCHITECT Sweeny&Co Architects Inc

GENERAL CONTRACTOR EllisDon Corporation

LEASING TEAM JLL

LANDSCAPE ARCHITECT NAK Design Strategies

CIVIL ENGINEER MGM Consulting Inc.

STRUCTURAL ENGINEER RJC Engineers

MECHANICAL ENGINEER TMP (The Mitchell Partnership & BPA) Consulting Engineers

ELECTRICAL ENGINEER Mulvey & Banani International Inc.

VERTICAL TRANSPORTATION Soberman Engineering

ENERGY CONSULTANT Ecovert

MANAGEMENT AND CONSULTING SERVICES FOR CONSTRUCTION AND DEVELOPMENT Cavendish Management

PHOTOS Gus Sarino

2. View to Memorial Square. Floor-to-ceiling glazing provides occupants with unrestricted panoramic views and deep sunlight penetration. Part of the interiors are finished with Quebec Mosaic, Quartz Jambs and Granite Stone by Olympia Tile+Stone

PROJECT PERFORMANCE

ENERGY INTENSITY (HEATING AND COOLING)

137KWhr/m2/year

ENERGY INTENSITY REDUCTION RELATIVE TO REFERENCE BUILDING UNDER MNECB 1997 26.8% REDUCTION IN WATER CONSUMPTION RELATIVE TO REFERENCE BUILDING UNDER LEED 47% RECYCLED MATERIAL CONTENT BY VALUE 46.8%

3. View from South-west. Employing Enwave’s Deep Lake Water Cooling system, underfloor air distribution, and high-performance building envelope reduces energy demand to an annual heating and cooling energy intensity of 137 kWh/m² or less. Part of the exterior cladding consists of Vicwest Channel Wall.

The building incorporates 43% recycled materials and prioritizes low-embodied carbon materials. A life cycle assessment was conducted to ensure durability and to minimize environmental impact. During construction, significant efforts were made to recycle construction waste and repurpose materials with 82% of construction materials diverted from landfill through five waste streams.

Portland Commons’ stepped form, supported on 21m high steel struts, cantilevers above the existing heritage buildings, preserving them in their entirety. This opens up pedestrian space at the ground level while minimizing shadow impact on adjacent Victoria Memorial Square and reduces the building’s visual impact on Portland Street, consistent with the lower scale neighbourhood.

Portland Commons strengthens the King-West district’s urban fabric by preserving heritage buildings and creating activated pedestrian-first spaces. The development introduces extensive public realm improvements including new streetscaping, landscaping, and a vital through-block connection that links the heritage structures and the contemporary architecture with a privately-owned-public-space (POPS) plaza, an internal pedestrian mews, and a mid-block landscaped courtyard.

The project increases the scale and quality of the public realm with 6m wide pedestrian walkways and landscaped spaces along both Portland Street and Front Street. It also promotes alternative transportation through its proximity to public transit, the inclusion of extensive bicycle and changeroom facilities, and a significant reduction in parking supporting the new development.

Building Up: Around the heritage properties on site

Minimize shadowing on the nearby park

Maximize outdoor amenities

Pedestrian First: New through block connections
Carving: Mass is sculpted to reduce shadow on the adjacent park
Terracing: Creating diverse outdoor spaces

Designed for adaptability, the office spaces feature flexible floorplates, multiple distributed elevator cores, and regular column grids for simple interior reconfigurations. Public engagement efforts include interactive displays on energy performance, water conservation, and wellness initiatives, educating tenants and visitors about sustainable design. Further, extensive educational resources augment the project marketing materials and operating manuals to promote and encourage the efficient and effective use of the building's many sustainability features.

Portland Commons serves as a model for sustainable, futureready office developments, integrated into its urban context and responsibly supporting the dynamic life of an active downtown neighbourhood.

JOHN GILLANDERS IS A PARTNER AT SWEENY&CO (ARCHITECTURAL PRINCIPAL-IN-CHARGE ON PORTLAND COMMONS).

5
4. Section rendering showing underfloor air distribution, solar shading, and terraces. The interior is finished with CertainTeed Type X and Acoustic Gypsum Board.
5. Thirteen landscaped tenant terraces, green roofs, and native plantings enhance local biodiversity while reducing urban heat island effect.
6. The stepped building form supported on 21m high steel struts cantilevers above the existing heritage buildings and opens up pedestrian space at the ground level.

• A quick read every month

• Industry news and events

• SABMag Canadian Green Building Awards updates

• Highlights of past SABMag and regional FOCUS articles

SUBSCRIBE: https://sabmagazine.com/newsletter

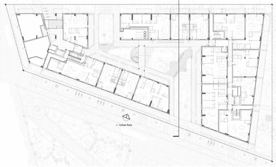
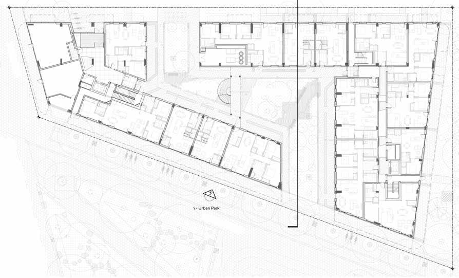
CITE ANGUS PHASE II

High density living follows passive strategies

Cité Angus Phase II is located on the last vacant lot of the Technopôle Angus site, in the Rosemont-La Petite-Patrie district of Montreal. Technopôle Angus is part of an integrated approach to sustainable development, revitalization, and access to home ownership for families wishing to settle in the heart of the city.

1. Cité Angus Phase II - Main Facade.

The district features a mix of green spaces, public squares, restaurants, local shops and services, office space, and residential buildings. Certified LEED Neighbourhood Development, the Technopôle is a humble, local response to the contemporary challenges of housing shortages and the exodus of families to the Montreal suburbs.

Major challenges for the project included the heterogeneity of the surrounding building context, the desire to give each building its own identity, and the dense program to be implemented on a cramped site with an atypical shape. These challenges were transformed into opportunities for innovation in the building organization and the treatment of the various residential interfaces.

1. Bloc 1
Bloc 2
Bloc 3
Bloc 4
Bloc 5
Bloc 6
Bloc 7
Bloc 8
Public square
2. Monumental spiral staircase.
3. Inner courtyard.

DESIGN RESPONSE

Within the triangular site, the building comprises two L-shaped wings that define an inner courtyard, at the heart of which is a monumental, Coppercoloured spiral Staircase. Alluding to the Montréal tradition of exterior iron staircases, this one is both a main vertical circulation route and an informal common space encouraging social interaction. The courtyard has two openings, connecting it to the street and the surrounding green space, forming a passageway through the Phase II development.

Architecturally, the building envelope was designed to offer two distinct treatments, depending on its location. Facing the urban context, a perforated, diaphanous second skin of metal, inspired by the district's industrial heritage, is either tight to the building between the projecting balconies, or brought forward to form the balustrade of the continuous access corridor. Facing the courtyard, it is interrupted to maximize the natural light entering the apartments.

The 88 housing units have been designed to ensure the versatility and adaptability of the spaces and to reflect the great diversity of today's family needs, accentuated by the transition in family-work balance models during the pandemic.

Throughout the building, some units are on two levels, some are walk-through, some are accessible via the exterior corridor system, and others via a central interior corridor served by an elevator.

All have been developed with a concern for equity, accessibility, and inclusion, within a healthy, efficient, and sustainable environment, supported by the use of local, sustainably- sourced, lowcontaminant materials, and the integration of water- and energyefficient equipment.

PASSIVE DESIGN APPROACH

A departure from the double loaded corridor approach to multifamily apartment buildings typical across North America, the primarily dual aspect design of Cité Angus Phase II is fundamental to its passive design strategy, optimizing natural light and ventilation. It also offers more generous views to the surrounding public spaces, promoting occupant wellbeing and enhancing the sense of connectivity with their immediate community and the neighbourhood beyond. On one side, accessibility to natural light has been enhanced and, on the other, the generous covered passageways help mitigate heat gains during oppressive heat waves.

To further reduce energy consumption and greenhouse gas emissions, these passive strategies are enhanced by a high-performance building envelope, and variable refrigerant flow (VRF) heat pumps with energy recovery for heating and cooling dwellings. The building is connected to a district energy loop that serves seven other buildings, facilitating thermal load exchanges and reducing greenhouse gas emissions.

The design of Cité Angus Phase II features multiple ecological water management strategies, including: native planting that requires no irrigation system; the collection and reuse of rainwater from rooftops , for non potable uses to limit drainage into the municipal system; a 20% reduction in potable water consumption through the use of low- flow plumbing fixtures; and the retention and management of 100% of snow on site.

South elevation - Urban Park
Interior courtyard Central staircase

Building section A-A

Building envelope detail

PROJECT CREDITS

CLIENT Société de Développement Angus ARCHITECT AND INTERIOR DESIGNER Ædifica

GENERAL CONTRACTOR Sidcan

CIVIL, MECHANICAL & ELECTRICAL ENGINEERING Desjardins Experts Conseils

ENERGY LOOP Energere

FIRE PROTECTION SERVICES Les Services de P.I. CP inc.

LANDSCAPE ARCHITECTURE NIP Paysage

LEED FOR HOMES CONSULTANT Écohabitation

STRUCTURAL ENGINEERING Leroux+Cyr

PHOTOS David Boyer Photographe & Olivier Bousquet (MU)

PROJECT PERFORMANCE

ENERGY INTENSITY (HEATING, COOLING, LIGHTING, EQUIPMENT) = 19.7/m2/year

ENERGY INTENSITY REDUCTION RELATIVE TO REFERENCE BUILDING UNDER (ASHRAE 90.1 – 2010) = 50.6%

WATER CONSUMPTION FROM MUNICIPAL SOURCES = 55,424 litres/occupant/year

REDUCTION IN WATER CONSUMPTION RELATIVE TO REFERENCE BUILDING UNDER LEED = 19.29%

RECYCLED MATERIAL CONTENT BY VALUE = 10%

REGIONAL MATERIALS (800KM RADIUS) BY VALUE = 50%

CONSTRUCTION WASTE DIVERTED FROM LANDFILL = 50%

4. Plan view - Green roof.
5. Outdoor Mural '' Toujours " by Ben Johnston.
6. Main facade from Augustin Frigon street. Much of the interior is finished with Newton 1867 Engineered Hardwood flooring by Boussada.

IN SUMMARY

This project was born from the desire of the Société de Développement Angus to push the boundaries of responsible urban revitalization and the social involvement of neighbourhood residents. The project aims for a LEED certification: LEED for Homes Gold Level, and draws inspiration from WELL criteria, reflecting our commitment to human-centered and environmentally conscious architecture.

Integrating these principles from the outset, selecting durable materials, and creating spaces that foster social interaction and physical activity are central to our approach. Cité Angus 2 exemplifies our expertise in designing quality living spaces that positively contribute to their neighbourhood and the well-being of their residents.

Within the context of the Technipole Angus development generally, Le Bloc 4 confirms the holistic nature of sustainability, adhering to the principles of land development based on wellbeing and sharing.

Achieving a critical density enabled the implementation of strategies to save energy, support the viability of alternative transportation systems, and develop community facilities, all of which are necessary for socio-ecological transformation.

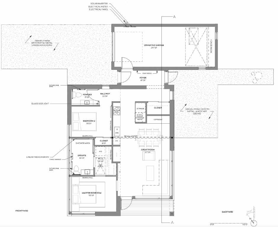
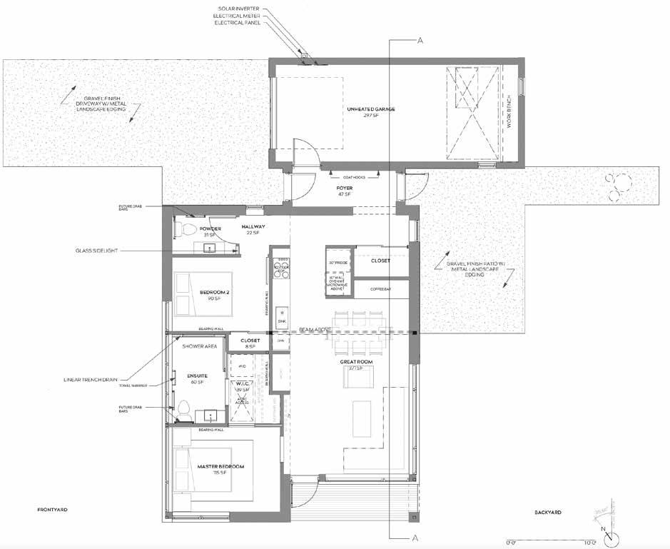
ULSTER HOUSE

Prototype targets gentle density and sustainable living

Completed in the spring of 2025, Ulster House, Toronto’s first multiplex condominium, exemplifies gentle density, market affordability, thoughtful design, and environmental responsibility. The infill project comprises four condominium units with a total floor area of 377 m² and a 56 m² laneway suite.

1. Ulster House represents a new housing typology, a sustainable infill strategy to introduce medium-density housing into established neighbourhoods.

Completed in the spring of 2025, Ulster House, Toronto’s first multiplex condominium, exemplifies gentle density, market affordability, thoughtful design, and environmental responsibility. The infill project comprises four condominium units with a total floor area of 377 m² and a 56 m² laneway suite.

A self-initiated project by LGA principals Janna Levitt and Dean Goodman, the development challenges policies and perceptions, paving the way for a new housing typology. It presents a viable, sustainable infill strategy to introduce medium-density housing into established neighbourhoods.

Ground floor plan N
Foyer
Kitchen + Dining
Living Area Bathroom
EntryI
Entry II
Storage
Foyer
2. The main entrance and siding types. Most of the cladding on the main building is Petersen Cover™ TEGL, a handmade tile product for roofs and facades which lends a distinctive, modern look while offering all the advantages of tile.

Cover™

The

original. Handmade in Denmark.

Developed in 2008 in a collaboration between the Dutch architects Min2 bouw-kunst and Petersen Tegl.

Adapted in 2011 by Lundgaard & Tranberg for Sorø Art Museum, Denmark.

Designed for cladding roofs and façades. Mounted on a wooden or metal structure.

Different types of clay and firing temperatures infuse the bricks with texture and rich colour variation.

Easy to mount and remove. Infinitely recyclable.

14 shades and two standard formats: 528 x 170 x 37mm and 528 x 240 x 37mm. Customised colours and formats by appointment.

Handmade in wooden moulds. Mixed by hand and exported all over the world. Option of firing with biogas.

Bergen aan Zee, The Netherlands Sorø Art Museum, Denmark
Photos: Anders Sune Berg

To maximize natural light and take advantage of walkable services and amenities, Levitt and Goodman purchased a corner lot in Harbord Village, a mature Toronto neighbourhood. They replaced a deteriorating two-storey single-family home and rear garage with a three-storey multiplex and a laneway suite, creating five condominium units. Their goal was to design homes that are as desirable—and in many ways superior—to conventional Toronto condominiums in terms of cost, livability, and long-term value.

High-Performance Design with Lower Environmental Impact

The cornerstone of the project is its commitment to the environment, adhering to passive design principles, with sustainability integrated from the outset. Collaborating with Juliette Cook, at that time a University of Toronto graduate student and now a partner at Ha/f Climate Design, the team analyzed embodied and operational carbon emissions, benchmarking the building’s Global Warming Potential (GWP) against the Architecture 2030 Challenge, 6.

MECHANICAL

CIVIL

LANDSCAPE DESIGNER Lorraine Johnson, Native Plant Consultant

CODE CONSULTANT David Hine Engineering Inc.

BUILDING SCIENCE RDH

GENERAL CONTRACTING Desar Construction Studio inc.

ACOUSTICS Thornton Tomasetti (TT)

PHOTOS Doublespace Photography

3. The infill project comprises four condominium units and a separate laneway suite. 4. The outdoor sitting area/walkway and garden linking the main building and the laneway house.
5. Sliding glass doors dissolve the boundaries between indoors and out. Oak veneer plywood finishing gives a warm, contemporary interior.

As a result, the complex meets the sustainability metrics set by the Passive House standard as well as the Architecture 2030 Challenge, which initially calls for a 40% reduction in carbon emissions compared to current industry standards, and ultimately the elimination of fossil fuels for energy generation altogether.

This rigorous approach led to strategic material choices: including replacing steel framing with light wood framing and decreasing the quantity of cement in concrete components. Such decisions reduced the building’s GWP by almost half, surpassing the targeted benchmark. In addition, Ulster House has no gas line and operates entirely on an all-electric HVAC system supplemented by a rooftop photovoltaic array, further enhancing energy efficiency.

A Contemporary Form That Feels Familiar

While Ulster House defies conventional housing typologies, it remains contextually sensitive. Its clay tile cladding references the surrounding Victorian brick homes without imitation. A mature Blue Spruce, retained as a focal point in the yard, is complemented by a new pollinatorfriendly landscape that supports stormwater retention and urban food production. While each unit has its own front entrance, there are few other indications that this is a multi-unit development.

Edge of cover tile on sloped north elevation aligns with cover tile on west elevation, achieved through alternate spacing of rows on sloped north elevation.

Typical spacing between horizontal wood strapping @ sloped surface.

Critical placement of horizontal wood strapping for primary angled tile.

Critical placement of horizontal wood strapping for top vertical tile prior to slope.

Continuous sheet vapour barrier.

Continuous air barrier ice and water shield @ sloped surface to continue down vertical face of north elevation.

Typical spacing between horizontal wood strapping @ vertical surface.

Critical placement of horizontal wood strapping.

Additional wood strapping to meet typical angle of tile above opening.

Inside, Levitt and Goodman occupy both the main floor of the primary building and the adjacent laneway suite. They have designated the main house for communal gatherings and the laneway suite for private living, though both spaces can easily be adapted for single occupancy. A covered, screened walkway connects the two, ensuring daily engagement with the elements.

Sliding glass doors open onto the garden, further dissolving boundaries between indoors and out. The interiors are predominantly finished with oak veneer plywood—offering both warmth and a healthier alternative to drywall. Additional units include a two-bedroom residence on the lower level with planted window wells and two upper units, each featuring two bedrooms on the second floor and living spaces on the third. These top-floor public areas open onto expansive terraces, offering generous views, natural ventilation, and an enhanced sense of space.

A Model for Future Urban Housing

Part provocation, part demonstration project, Ulster House proposes a scalable model for housing that challenges the prevailing “tall” and “sprawl” paradigms. By embracing gentle density, it showcases how single-family neighbourhoods can evolve to accommodate a growing population while maintaining affordability, environmental sustainability, and a high quality of everyday life.

Moreover, it highlights the potential for “citizen developers” to redefine homeownership prioritizing social connection, architectural integrity, and ecological responsibility.

The Broader context of ‘Missing Middle’ Development

In addition to our built work, we lead applied research related to progressive housing. This includes working with CMHC as the National Project Manager for the reboot of Canada’s National Housing Catalogue.

In Collaboration with TUF Lab at the University of Toronto we have established ReHousing, a multi-year initiative aimed at easing the creation of multiplex development in singlefamily residential zones across Canada. With SVN Architects, we have co-written the Mid-Rise Manual, a comprehensive guide on best practices for mid-rise development in Ontario; and LGA has led an ongoing study on Fire Code reform that proposes the elimination of the second stair requirement in Canada’s small multi-unit residential buildings.

THE AUTHORS ARE THE LGA PROJECT TEAM: DEAN GOODMAN (PARTNER-IN-CHARGE),

6. The opposite view of photo 5 looking to the front of the building. The project uses compact RenewAire SL Series energy recovery ventilators designed for multi-family units and with a CFM range of 30–130, and the RenewAire BR130 ERV for single-family homes.

JANNA LEVITT (PARTNER-IN-CHARGE), KARA BURMAN, ANDRIA FONG, MEGAN CASSIDY AND JOSHUA GIOVINAZZO.
Wall detail at bend

GETTING MURBS TO NET ZERO: The Expanding Role of Energy Simulation in Design

Integrating envelope design, heat pumps, energy storage, renewables

Multi-Unit Residential Buildings (MURBs) occupy a critical place in Canada’s urban decarbonization strategy. These high-density residential forms are growing rapidly in every major city and represent a large share of new construction floor area. They also embody a paradox: MURBs can be more energy-efficient per capita than low-rise housing, yet their dependence on centralized heating and cooling systems, complex envelope geometries, and dense electrical loads present substantial challenges to achieving net-zero performance.

Against this backdrop, energy simulation is evolving from a compliance exercise into a design intelligence tool. For decades, simulations were deployed at the end of design - largely to demonstrate NECB or ASHRAE 90.1 compliance to regulators. Today, forward-looking design teams are integrating simulation from the earliest concept stages. This transition is enabling more robust decision-making around electrification, heat pump system selection, code compliance, and carbon reduction strategies.

This article explores the shift in the role of simulation, the pathways for electrification in MURBs, and how integrated modelling is helping teams navigate code complexity, manage grid impacts, and deliver projects that balance costeffectiveness with sustainability.

1. IESVE Model - One Burrard Place, Vancouver.

FROM COMPLIANCE TOOL TO DESIGN INTELLIGENCE

Historically, simulation models were “back-end” tools. A building was designed, and then a model was created to prove that it complied with minimum standards. The process was often siloed, with little feedback between the energy model and the architectural or mechanical design.

That paradigm is changing. Several factors are driving this evolution:

1. Code escalation: NECB 2020 introduces tighter envelope and system requirements. Provincial frameworks such as the BC Energy Step Code and the Toronto Green Standard demand not just compliance, but tiered performance improvements.

2. Electrification pressure: Cities and provinces are phasing out fossil-fuel-based heating, forcing design teams to compare heat pump strategies head-to-head.

3. Carbon accounting: Owners and regulators are increasingly prioritizing greenhouse gas intensity over raw energy use.

4. Grid constraints: Utilities face strain from coincident heating loads during cold snaps, making demand-side management and load shifting critical.

In this environment, simulation is being leveraged iteratively and strategically. Models are now decision-support engines, allowing engineers to test design concepts before they are fixed, explore alternative technologies, and quantify lifecycle cost and carbon outcomes.

HEAT PUMP TECHNOLOGIES IN MURBS

Choosing the Right Path Electrification of heating in MURBs is one of the most consequential design decisions teams face today.

The choice among air-to-air, air-to-water, and groundsource heat pump (GSHP) systems involves trade-offs in cost, performance, resilience, and integration with building loads.

AIR-TO-AIR HEAT PUMPS

• Advantages: Lowest upfront cost, straightforward installation, minimal space requirements.

• Limitations: In cold Canadian climates, performance drops sharply at sub-zero temperatures. Supplemental resistance heating is often required, inflating peak demand and operating costs.

• Best Fit: Smaller MURBs, milder climates, or retrofit scenarios where hydronic distribution is not feasible.

Air-to-Water

Heat Pumps

• Advantages: Integration with hydronic heating and domestic hot water (DHW), better efficiency at low ambient temperatures, supports load-sharing across zones.

• Limitations: Higher capital cost and mechanical complexity, requires larger plant space.

• Best Fit: Mid- to high-rise new construction where DHW is a dominant load and hydronic distribution is viable.

GROUND-SOURCE HEAT PUMPS (GSHPS)

• Advantages: Highest seasonal efficiency, stable performance in extreme cold, significant reduction in grid reliance during peak conditions.

• Limitations: High upfront capital cost, site constraints for borefield or geoexchange loops, long payback horizon.

• Best Fit: Large-scale MURBs with long ownership horizons, institutional housing projects, or developments with access to district energy infrastructure. Simulation’s role here is indispensable. Models can evaluate:

• Seasonal Coefficient of Performance (COP) curves.

• Peak demand implications.

• Interaction between heating and DHW production.

• Lifecycle energy and carbon intensity.

By quantifying these trade-offs, design teams can align technology choice with project goals—whether that means minimizing capital cost, reducing lifecycle carbon, or mitigating utility demand charges.

2. Residential tower utilizing high-efficiency glazing. 3. and 4. IESVE Model - One Burrard Place, Vancouver.

REDUCING DESIGN HEATING LOADS: THE FIRST LEVER

A key insight from simulation-driven design is that load reduction often trumps system efficiency. A poorly insulated or leaky envelope forces even the best heat pump to work harder, inflating equipment sizes and utility bills.

STRATEGIES TO REDUCE HEATING LOADS

1. Envelope Optimization:

o High-performance glazing with low U-values and tuned solar heat gain coefficients (SHGCs).

o Continuous insulation strategies to minimize thermal bridging.

o Airtightness testing and detailing to reduce infiltration.

2. Internal Loads Management:

o High-efficiency appliances and LED lighting.

o Smart zoning and control strategies to avoid overconditioning unoccupied spaces.

3. Passive Design Measures:

o Strategic orientation to maximize winter solar gain and minimize summer overheating.

o Shading devices and thermal mass integration.

COST AND GRID BENEFITS

• Owners: Lower heating and cooling loads reduce first cost (smaller equipment, reduced electrical service upgrades) and ongoing operational cost.

• Grid Operators: Lower coincident demand means reduced strain on distribution transformers and deferral of costly infrastructure upgrades.

Simulation enables precise quantification: a 20% reduction in design heating load might translate to a 15% reduction in peak demand, yielding significant avoided capital costs for both owners and utilities.

ENERGY STORAGE AND GRID INTERACTION

As electrification scales, energy storage becomes central to the net-zero conversation. Both thermal and electrical storage solutions are emerging as complements to heat pump systems in MURBs.

THERMAL STORAGE

• Hot water tanks or phase-change materials can store lowcost or off-peak thermal energy for later use.

• Simulation can model time-of-use pricing scenarios, quantifying potential cost savings.

Electrical Storage

• Battery systems can reduce demand charges by shaving peak loads.

• Simulation helps assess the balance between capital investment and utility tariff savings.

Grid Resilience

• Models can also test resilience scenarios: e.g., how long can critical loads be maintained during an outage with storage support?

The integration of heat pumps + storage + demand management is where simulation moves beyond compliance and becomes a planning tool not just for the building, but for the surrounding grid ecosystem.

NAVIGATING CODE COMPLEXITY

Design teams are working in a rapidly shifting regulatory environment:

• NECB 2017 vs. NECB 2020: Stricter thermal performance, expanded trade-off compliance paths, new requirements for mechanical systems.

• Tiered Codes:

- BC Step Code escalates performance over time toward net-zero-ready.

- Toronto Green Standard includes GHG intensity caps in addition to EUI metrics.

• Carbon-Intensified Compliance: Increasingly, regulators are asking for not only kWh saved, but CO2e avoided. Energy models are uniquely capable of bridging this complexity.

A SINGLE CALIBRATED MODEL CAN SIMULTANEOUSLY:

• Demonstrate compliance with NECB.

• Quantify carbon intensity.

• Evaluate pathways to future tiers, “future-proofing” design.

In effect, simulation allows design teams to “see around corners” of regulation, making informed choices that anticipate— not just react to—code evolution.

THE INTEGRATED PATHWAY TO NET ZERO

For MURBs to achieve true net-zero outcomes, a multi-pronged strategy is required. Simulation is the thread that ties these strategies together:

1. Envelope + Passive Designreduce heating and cooling loads.

2. Optimal Heat Pump Selectionbalance CAPEX, OPEX, and carbon reduction.

3. Energy Storage Integrationmanage peaks and improve resilience.

4. Onsite RenewablesPV generation with net metering or battery storage.

5. Iterative IDP Processsimulation embedded from concept through detailed design ensures no “blind spots.”

Through this approach, MURBs can progress beyond minimum compliance toward buildings that genuinely contribute to urban decarbonization targets.

THE FUTURE: AI, SURROGATES, AND DIGITAL TWINS

The next frontier is already emerging. Traditional energy simulations can be computationally intensive, limiting their use in fastmoving design cycles. The introduction of AI-driven surrogate models offers a solution: trained on thousands of simulation runs, these models can deliver near-instant predictions of building performance.

• Surrogate Models: Enable real-time design feedback during charrettes or schematic iterations.

• Digital Twins: Post-construction, models can be linked to actual building performance data, enabling operational optimization and continuous commissioning.

• Engineers’ Evolving Role: As tools evolve, energy modellers and mechanical engineers are becoming carbon strategists - responsible not only for compliance, but for shaping long-term operational and environmental outcomes.

Getting MURBs to net zero is not a matter of choosing a single technology or complying with the latest code revision. It is a systems challenge - one that requires balancing electrification, envelope performance, storage integration, and grid realities.

Energy simulation is the backbone of this process. By shifting from a back-end compliance tool to a front-end design intelligence engine, simulation empowers design teams to navigate complexity, quantify trade-offs, and deliver buildings that are not only compliant but genuinely aligned with Canada’s netzero ambitions.

As codes tighten and electrification accelerates, the teams that master simulation-driven design will be the ones that deliver high-performance, resilient, and future-ready MURBs for Canadian cities.

CHRIS

FLOOD, A MECHANICAL ENGINEER WITH MORE THAN 20 YEARS’ EXPERIENCE WITHIN THE BUILDING SERVICES INDUSTRY, IS VICE PRESIDENT, CANADA, FOR IES.

The Nordic W Series Commercial heat pump is a geothermal water-to-water system engineered for large buildings.

Designed for radiant in-floor heating and fan coil coilin, this heat pump offers capacities from 9 to 81 tons and supports open or closed loop configurations. With reversible heating and cooling, integrated phase protection, and R454B refrigerant, it’s ideal for multi-unit residential applications. Units can be installed in parallel for modular performance and deliver a COPh up to 4.74.

JOIN

CAGBC makes sustainability a competitive advantage in a shifting market, giving members solutions to protect their assets and advance their bottom line through certifications, expert knowledge and skills, data-driven insights, and government advocacy efforts.

Want to learn more?

Contact getinvolved@cagbc.org

CERTIFY

Solidify your sustainability investments with trusted third-party certification platforms including the LEED rating system and the Zero Carbon Building Standards.

Access support for your projects from the experts at CAGBC to help realize your sustainability goals.

We’re here to help. cagbc.org/certify

LEARN

Grow your green building expertise with on-demand courses, live workshops and events, and now, the new Zero Carbon Building Micro-Credential.

With individual and private group training, CAGBC has what you need to upskill your workforce for a low-carbon future.

Get started today. cagbc.org/learn

Windows + Doors for Passive House Projects

Innotech Windows + Doors is a Canadian manufacturer of high-performance windows and doors. The Defender 88PH+ System combines decades of fenestration knowledge to deliver a robust window and door system that is not only Passive House Institute certi ed, but that also delivers the air, water and structural performance required for highly sustainable housing developments.

JONES RESIDENCE RENO

1945 cabin reimagined as an enduring retirement home

The village of Kaslo is located on the west shore of Kootenay Lake in southeastern British Columbia on the traditional territory of the Ktunaxa and Sinixt First Nations. Settlers used Kaslo as a sawmill site from 1889, but the village expanded because of the silver boom of the late 19th century. The village retains several buildings that date from this period as well as the sternwheeler, S.S. Moyie, which operated on the lake from 1898 to 1957.

What began as a humble summer cabin nestled along Kootenay Lake has been reimagined as a permanent home that honours the past, embraces the present, and thoughtfully considers the future. The project transforms a well-loved family retreat into an adaptable home for retirement, while maintaining a deep connection to its familial and community legacies.

1. Jones Residence after the renovation: a study in restraint, clarity, and continuity.
2. Front view of the Jones family’s long-serving summer retreat before renovation.

Originally built in 1945, the 1,388sf (129m2) cabin owned for decades by my parents has long served as a gathering space for family, friends, and neighbours alike. It has always been a place that brought people together; the view, the community and the natural setting – have always been grounding. We wanted to carry that spirit forward, while making the home resilient and responsive to the realities of aging in place.

While modest in scale, the design takes a comprehensive approach to adaptation, balancing immediate needs with long-term livability. The renovation preserves the familiar outline of the original structure while integrating durable, context-sensitive materials: steel cladding and exposed concrete are used together with highperformance insulation and a rainscreen assembly, offering both fire resilience and low maintenance in a region shaped by a history of wildfires.

A 166sf (15m2) addition expands the main floor for improved functionality, while a new crawlspace adds critical storage for year-round use. Original wood salvaged from the 1945 structure, already reclaimed once before, was reused for the concrete formwork of a new wraparound patio, continuing a legacy of material reuse that stretches back generations.

The design strikes a quiet balance between openness and privacy. A wood stove, visible from both inside and out, anchors the home in warmth.

3. High-efficiency wood stove anchors the living space, a nod to the cabin’s original hearth.
Floor plans: Before and after renovation. N

A flat-roofed addition contrasts with the original gable form, marking the evolution of the home without erasing its origins.

Sightlines are deliberate: a clerestory window frames the historic SS Moyie from the kitchen and dining area, grounding the home in the visual heritage of Kaslo. Expansive windows and large sliding doors open the living area to lake and mountain views, while the carport, once an ad hoc space for meals and hammock afternoons, has been refined for vehicle use without losing its informal social function.

PROJECT CREDITS

ARCHITECT TOWN Architecture Inc.

PHOTOS TOWN Architecture Inc.

4. A view of Kootenay Lake and surrounding mountains. Durable steel cladding and rainscreen assembly ensure resilience.

5. Aerial view shows the modest addition and wrap-around deck integrated with the original form.

6.

The story of the Jones Residence is still unfolding. Future plans include a large sliding barn door to enhance privacy and mitigate solar gain, photovoltaic panels for on-site energy generation, and additional outdoor living elements that reflect the family’s enduring relationship to the site.

Designing with care does not always mean starting over; this project is about continuity of place, of family, and of community. We’ve simply given this home the structure it needs to last. In many ways, the project embodies TOWN Architecture’s ethos: design grounded in history, shaped by context, and carried forward with intention.

The renovation was not about creating something flashy, but rather about building something that lasts physically, emotionally, and culturally.

JORDAN JONES IS A PRINCIPAL AT TOWN ARCHITECTURE INC. IN KASLO BC.

Evening view: large sliders connect living spaces to the lakefront landscape.

Canadian Directory of Products and Services

for Sustainable, HighPerformance Building

YOUR LEED QUICK-REFERENCE

Visit our on-line Directory to see hundreds of listings of companies which supply products and services for sustainable, high-performance building. Listings are organized by Product Category and by LEED Category. Our Directory is created with the help of our partner:

SITE | LANDSCAPING |

RAINWATER HARVESTING

ACO Systems

Filterra Bioretention Systems/Langley Concrete Group

Make Way Environmental Technologies

Molok North America Ltd.

Roth North America

Wishbone Site Furnishings

STRUCTURE & EXTERIOR ENVELOPE

Airfoam Industries

Arriscraft

Canada Brick

CAYAKI Charred Wood/ CFP Woods

CBC Specialty Metals and Processing

Corbec

Engineered Assemblies

475.Supply

International Timberframes

Live Roof Ontario

MAPEI Canada

Radon Environmental

Sapphire Balconies Ltd.

Siga

Thames Valley Brick & Tile

Unitiwall

THERMAL, WINDOWS & DYNAMIC GLASS

Cascadia Windows & Doors

Duxton Windows & Doors

Inline Fiberglass Ltd.

Innotech Windows + Doors

JELD-WEN Windows & Doors

KALWALL

Kohltech Windows & Entrance Systems Our 2025 Partners

NZP Fenestration passivhaus windows and doors

Silex Fiberglass Windows and Doors

Unicel Architectural Corp.

VETTA Windows & Doors

COATINGS AND INTERIOR FINISH PRODUCTS

Dulux/PPG

Eco Building Resource

Forbo Flooring Systems

MAPEI Canada

Rockfon

ELECTRICAL | PLUMBING | HVAC | RENEWABLES

AquaTech Sales and Marketing Inc.

Daikin Applied

Fantech Canada Ltd

Mitsubishi Electric Sales Canada Inc.

Sharc Energy

Sloan Valve/Dobbins Sales

Tempeff Inc.

Teritt Indoor Environmental

TRANE

GREEN DESIGN SUPPORT + PROFESSIONALS

Alberta Ecotrust

Canada Green Building Council

Canadian Precast Concrete Quality Assurance

Certification Program

Evolve Builders Group

FABRIQ architecture

Green Building Initiative

Pretium Engineering

Save EnergyNB

BIOREGIONAL MATERIALSthe Opportunities for Canada

As the recipient of DIALOG’s 2023 Iris Prize, our practice’s internal research opportunity and grant, I travelled to Europe in the spring of 2024 to learn from real-world examples of bioregional design: buildings and practices that draw on local materials, traditional knowledge, and innovative low-carbon techniques to reshape how we build.

While applications of bioregional design varied by region, project, and practice, they shared several common threads: design and construction leaders in Europe are leveraging what they already have – local materials, traditional craft knowledge, a deep commitment to reuse, and a culture of design experimentation – to innovate for a healthier built environment. The following is a field report showing how bioregional design is already being done and how Canada might follow suit.

In Germany, the Vitra Campus commissioned architect Tsuyoshi Tane to design a sustainable garden house as a signal of a lower-carbon future. Intended to support the maintenance staff of the Piet Oudolf Garden, the structure – built from thatch and timber – embodies a shift from resource extraction to the use of regenerative materials.

The future of sustainable construction in Canada lies in the untapped potential of our bioregions. Trading globalized construction supply chains for international knowledge-sharing on sustainable design strategies won’t just help us build more responsibly – it has equal potential to deepen our connection to place.

On almost every element of the building, Tsuyoshi Tane collaborated with craftspeople to create custom design solutions, highlighting the role of local craft in advancing low-carbon design. The building is also an economic demonstration, teaching younger generations traditional regional methods of making and building. The takeaway: innovations often begin with small-scale projects like the garden house, but they can generate insights with broad, scalable potential.

In Basel, Herzog & de Meuron’s HORTUS – short for House of Research, Technology, Utopia, and Sustainability – is a five-storey, 150,000-square-foot office building at the Basel Link Technology Campus. Designed to be energy-positive within 31 years, its material palette is also firmly rooted in place, featuring locally sourced wood, clay, and cellulose. The building’s most impressive innovation is its rammed earth floor system. Earth excavated onsite was compacted into vaults, flipped, and installed, then layered with thin cross-laminated timber for structural performance and a sand acoustic layer made from crushed brick. Coming together to form an elegant example of circular material use, HORTUS demonstrates that ambitious, largescale buildings can meet rigorous technical standards and owner’s ESG ambitions while embracing local, low-carbon materials.

DING, Design Museum Ghent’s renovation and mass timber expansion by Carmody Groarke, TRANS Architects and BC Materials, presents an example of reuse that meets Eurocode standards while significantly reducing environmental impact. The design features custom brick made from recycled concrete, glass, porcelain and hydrolyzed lime for binding – a choice that generates just 30 per cent of the embodied carbon of traditional brick. The design required and passed testing for Euro-code compliance, such as freeze-thaw resistance, serving as another proof point that sustainability and building performance for code compliance aren’t mutually exclusive.

1.

In Belgium, BC Architects Earth Discovery Workshop offers participants opportunities to explore the properties and potential of earth-based building. Credit: BC Materials.

A final takeaway from BC Architects’ Earth Discovery Workshop in Belgium is the deep commitment to advancing climate action through hands-on education in construction and design.

Rooted in earth construction techniques using locally sourced materials, the workshop offered a day of experiential learning: mixing clay, sand, loam, and stone to explore the properties and potential of earthbased building. Central to BC Architects’ practice and workshops is geological literacy: participants study the local geology of Brussels to understand how different earth types align with specific construction applications. The workshop site itself is fully demountable and designed as a living classroom, featuring learning installations and evolving prototypes.

At just 80 euros per session, the workshops are intentionally priced for accessibility, enabling widespread engagement and helping scale this regenerative construction approach. No matter the design locale, education can and should serve as a driving force behind the shift to climate-conscious, place-based building.

Through design leadership, investments in imagination, and disrupting the status-quo of globalized supply chains, the Canadian construction industry can weave bioregional design principles to our practice.

While regulatory frameworks present real limitations, particularly the Canadian building code’s strict classification of materials as combustible or non-combustible, these barriers are similar to those that once constrained the rise of mass timber. In Canada, a sustained effort driven by pioneering projects, research partnerships, and advocacy ultimately led to broader acceptance and code changes that unlocked the potential of engineered wood.

We are now well-positioned to do the same for other bioregional materials. In Europe, more nuanced regulatory environments, visionary owners, and brave designers have allowed natural materials like earth, thatch, and bio-based insulation to enter mainstream construction. Canada can build on this momentum, tailoring it to our geography: forested regions can lead in advanced timber; prairie and grassland zones are ideal for adobe, rammed earth, and thatch; and urban areas, rich in existing building stock, can prioritize reuse and circular construction.

The real opportunity is about rethinking what we value in architecture. Bioregional design invites us to create buildings that are rooted in place, using local craft, traditional knowledge, and renewable resources. A project can become a low-carbon expression of its terroir and a love letter to its place.

At Canadian universities, professors and students are already leading the charge. They’re questioning the use of toxic, petroleum-based materials and designing with regenerative systems in mind. But meaningful adoption of bioregional design at scale will require support from industry and government: updated codes, incentives for innovation, and investment in material supply chains. We need to see every project as a prototype, every material decision as a step toward a healthier future.

With collaboration, education, and political will, Canada can adapt bioregional design to our geographies and help lead its adoption for a cleaner, beautiful built environment.

RYAN MCCLANAGHAN IS AN ARCHITECT AND ASSOCIATE AT DIALOG.

2. On the Basel Link Technology Campus, the House of Research, Technology, Utopia and Sustainability (HORTUS) – a five-storey, 150,000 office building made of locally-sourced materials – is designed to be energypositive within 31 years. Credit: Herzog & de Meuron. 3. Ryan McClanaghan.

(S) EFFICIENT HOUSE

Compact design a rethink on housing and retirement

Sitting on a small lot of a tight urban street on the outskirts of downtown Halifax, the (s)efficient house overlooks a south-facing garden while keeping the east views of the industrial lands to a minimum.

The retired homeowners wanted to downsize in retirement. With 960 sq. ft. of living space on one level, the house has minimal upkeep and future accessibility potential. An additional 300 sq ft of garage space allows for the storage of cars and other items. The living space has the opposite “gull wing” roof shape allowing the main living spaces to have high, vaulted ceilings which make the compact interior feel voluminous.

1. The exterior walls and roof are clad in metal for affordability and low maintenance. Windows are Kohltech Supreme Triple-Glazes with Energlas Plus LoE coating.

The house is efficient, but the (S) in the name of the house stands for sufficient. It is not a large house, and the clients wanted a house that was just enough, no extras. It is about having not only less to heat and cool, but less to maintain. We think it is a great precedent because our culture always sells the idea of the “dream home” which tends to have lots of extras and be very expensive. It was a delight to have a client looking for elevated living that was not about excess.

The foyer area between the separate garage and living space creates the entry point to the house. The small footprint was purposely designed with a “divider” closet/dining servery creating a threshold between the front entry hall and the mudroom before meandering and opening into the main public areas of the house.

An important factor for wellness is occupant comfort related to natural daylighting and a comfortable room temperature. The large, southfacing feature window ensures adequate solar gain and natural light in winter. The home’s heat pump is set at 18c and stays at 19c to 23c depending on where it’s measured and the time of day. With windows in every room, oftentimes with dual aspects, the house requires little lighting, except at night.

Water strategies needed only simple measures involving water-conserving fixtures, thus saving the budget for more pressing issues of envelope design and the photovoltaic array. The water use in the first nine months of operating has been 14 CM for three months, or roughly 140l/day.

2

OPERATING ENERGY

The house is double framed to ensure no thermal bridging or puncturing through the vapour barrier and has a ducted heat pump system. It exhibits R48 insulated walls, R88 roof, triple-pane windows, and tight envelope detailing. The garage has a steeply pitched roof to accept the photovoltaic array.

PROJECT CREDITS

ARCHITECT RHAD Architects

STRUCTURAL ENGINEER SANI Engineering

MECHANICAL ENGINEER Tate Engineering

CONSTRUCTION Kildare Construction

PHOTOS Julian Parkinson, jp@formatfilms.ca

The exterior walls and roof of the house were clad in metal for affordability. It’s also low maintenance, long-lasting, and is recyclable at end-of-life. The frame was built of wood for low embodied energy and the benefits and acting as a carbon store. It was designed without using long spans or cantilevers to avoid the need to use steel in the structural design. It also kept both embodied energy and cost down. Drywall and wood flooring were used for the simple interior.

The house effectively operates as a Net Zero Energy Home with slightly net positive energy consumption (producing more than it’s using). The energy target for Passive House is 15 kWh/m2/year.

The rated capacity of the photovoltaic array is 6.88kw but the project has only seen a max of about 5.2kw. The home has averaged about 18.6kwh with a peak day of 35+. The reduction is mainly shading losses from an oak tree to the south/west, especially when in full leaf, which slightly shades the solar panels at certain times and due to the low slope in the winter.

The home’s power usage is monitored by an ‘Emporia Energy’ Smart Home Energy Monitoring device. The device allows homeowners to gauge certain appliances or circuits on an app on their phone to ensure their home is operating efficiently in real-time.

The largest power consumers have been the heat pump followed by the ERV and the water heater. There was a learning curve on how best to operate the heat pump and ERV in the first year and the ow ers anticipate improvements in efficiency in the coming year.

Retirement goals are often associated with owning a “big house” and perhaps retreating to the countr side. This project looks at retirement goals diffe ently, focussing on a “right-sized” house nested into a community close to amenities of a downtown core.

The design focused on attributes such as having a bright, airy space and a low-maintenance home free from concerns of electric inflation. The design sati fies the goals of rethinking housing and retirement while fully serving the needs of the owners.

MAEGAN MURRINS AND RAYLEEN HILL ARE WITH RHAD ARCHITECTS.
Building section
2. Caption
3. The foyer area between the separate garage and living space creates the entry point to the house. The Fantech Fit 120E ERV with EcoTouch Control combined with a heat pump will bring heating and cooling efficiencies.

CANADIAN GREEN BUILDING 2025 AWARDS

CONGRATULATIONS TO THE WINNING TEAMS OF THE 2025 CANADIAN GREEN BUILDING AWARDS. The annual program to recognize excellence in the design and execution of all types of sustainably-designed, high-performance Canadian residential and non-residential buildings and interiors, both new and renovated.

ZAS ARCHITECTS + INTERIORS AND BUCHOLZ MCEVOY ARCHITECTS (DUBLIN); AND INTROBA. COMMERCIAL INDUSTRIAL (LARGE) AWARD FOR THE TORONTO AND REGION CONSERVATION AUTHORITY HEADQUARTERS. (l to r): Merritt Bucholz, Karen McEvoy, Marek Zawadzki, Andrzej Gortat and Carmine Canonaco of ZAS Architects; and (l to r): Mike Godawa, Jamie Dabner and Jeff Phinney of Introba.

DIALOG. COMMERCIAL INDUSTRIAL (SMALL) FOR THE UBC SMART HYDROGEN ENERGY DISTRICT (SHED) – HYDROGEN GENERATION AND FUELING STATION. (l to r): Martin Nielsen and Kyle Bruce.

SOLTERRE DESIGN. EXISTING BUILDING UPGRADE AWARD FOR THE ROSS CREEK ANNEX. David Gallaugher.

MONTGOMERY SISAM ARCHITECTS. RESIDENTIAL (LARGE) AWARD FOR THE HAMILTON PASSIVE HOUSE MODULAR HOUSING. (l to r): Daniel Ling, Jake Pauls Wolf, Enda McDonagh, Victoria Ngai, Kevin Hutchinson, Zheng Li and Sonja Storey-Fleming.

PURE INDUSTRIAL. COMMERCIAL INDUSTRIAL (LARGE) AWARD FOR THE LAKERIDGE LOGISTICS CENTRE. (l to r): Peter McFarlane, Jonathan Rovira, Rawan Khan, Lori Hipwell, Michael Duff and David Owen.

PERKINS&WILL. INTERIOR DESIGN AWARD FOR THE PERKINS&WILL VANCOUVER STUDIO. (back to front): Manuela Londono, Markus Brown, Rufina Wu, Cindy Nachareun, Naomi Tremblay and Amy Brander (on screen).

DIAMOND SCHMITT ARCHITECTS AND PHILIP AGAR ARCHITECT INC. INSTITUTIONAL (LARGE) AWARD FOR FANSHAWE COLLEGE INNOVATION VILLAGE. (l to r): Sarah Low, Amanda Van Amelsfort, Sydney Browne, Elcin Unal, Ewa Rudzik, Micheal Leckman. Missing from photo: Martin Gauthier, Kourosh Fathi, Michael Kim, Amy Norris, Christina Pascoa, Philippa Swartz, Jimmy Hung, Eva Xiao, Judith Geher, Nicole Wilke, Ronny Sepulveda, Michael Jess, Philip Agar, Andrew Ransom and Eric Shell, all of Diamond Schmitt Architects.

BEAUPRÉ MICHAUD ET ASSOCIÉS, ARCHITECTES IN COLLABORATION WITH MU ARCHITECTURE, NCK ET MARTIN ROY ET ASSOCIÉS. EXISTING BUILDING UPGRADE AWARD FOR THE HÔTEL DE VILLE DE MONTRÉAL/ MONTREAL CITY HALL. (l to r): David Gour, Nicolas Gautier, Antoine Cloutier-Bélisle, Camille Chabot, Patrick Ma, Jonathan Levesque, Menaud Lapointe, Nelly Charpentier, Maxime Bonesso, Camille Charest, Etienne Miloux, Sabrina Richardson, Catherine Lamarre, Pierre Beaupré, Josette Michaud, Jean-Daniel Mercier and Baptiste Aitken, all of Beaupré Michaud et Associés, Architectes.

SOLTERRE DESIGN. INSTITUTIONAL (SMALL) AWARD FOR THE NOVA SCOTIA NATIVE WOMEN’S ASSOCIATION ADMINISTRATION OFFICE AND RESILIENCY CENTRE. (l to r): Joshua Stromberg, Jennifer Corson and Keith Robertson.

BAIRD SAMSON NEUERT ARCHITECTS/WF GROUP. INSTITUTIONAL (LARGE) AWARD FOR THE CANADIAN CENTRE FOR CLIMATE CHANGE AND ADAPTATION, UNIVERSITY OF PEI. (l to r): Rana Alsharif, Madison Tousaw, Andrea Macecek, Jon Neuert, Sean March, Shannon Clark, and Corinne Barak.

CSV ARCHITECTS. INSTITUTIONAL (SMALL) AWARD FOR THE FOREST EXPLORERS OUTDOOR EARLY LEARNING CENTRE. (l to r): Alex Sargent, Richard Gurnham and Jessie Smith.

Stephan Moyon, President, VELUX North America on resilient design and circularity

Q1: How do VELUX products contribute to resilient construction and improved indoor environmental quality (IEQ)?

VELUX offers innovative skylight systems that promote healthy ventilation and leverage the natural beauty of daylight to transform interior spaces. We are passionate about making products that perform better and help people to perform better. Sunlight and fresh air have dramatic effects on IEQ and occupant health, from improved mood to increased productivity. At the same time, people spend about 90% of their time indoors in the northern hemisphere. These insights inspire our team to deliver solutions that bring the health benefits of fresh air and daylight into our clients' homes, schools, and offices.

Q2: Where do you think the greatest opportunities lie in advancing resilient design and construction as a norm for the building industry?

We see a big opportunity to take advantage of what we already have. Roughly 80% of North American buildings that will be standing in 2050 have already been built. The opportunities, therefore, lie in how we can transform these spaces, adapt them to our current needs, and upgrade their performance to meet our modern energy goals. Virgin materials are diminishing in supply due to overuse, and the built environment accounts for about a third of the world’s waste. Therefore, there is a great need for our industry to take advantage of the materials which already exist, through practices like urban mining and retrofitting. By focusing strategically on circularity, we can put less strain on our diminishing natural resources.

Q3: How can circular design make cities more resilient, affordable, and livable while also lowering carbon emissions?

Circular design allows us to transform spaces and buildings to keep up with our modern needs and uses, without imposing the high environmental and economic costs of new builds. Updating these spaces to our modern standards is not just desirable, but necessary. Data, such as the statistics pulled from the VELUX Group’s Healthy Building Barometer, shows that the values of resiliency, affordability, and livability are intertwined. For example, by improving the resilience of the built environment, less energy is required to maintain and operate these spaces. There are also clear benefits to sourcing recycled materials for lower carbon emissions as well as resource independence. We inherently become more flexible during periods of international instability by drawing from the resources and materials that are available to us now.

Q4: How does VELUX incorporate circularity into its business model?

We aim to integrate circularity throughout our value chain. We start by working to source materials with higher recycled content and embedding circularity principles into the product design process. At the same time, we are reducing waste in our own operations and beginning to transition our packaging in North America to recyclable, paper-based solutions. We’re expanding these efforts with some great pilot programs in Europe, such as a take-back service for older windows. We also conduct demonstration projects that highlight our circularity approach. For example, we recently renovated one of the buildings at our production facility in Denmark to convert it into what we call the LKR Innovation House. Our team was able to reuse more than 50% of the original materials associated with the building. For our team, circularity isn't just a mantra, it’s the foundation of all our business and product decisions.

Q5: What do you think the building industry needs to do to advance its circularity goals?

I think the building industry is a sector with many challenges and even more opportunities. There are barriers to our progress, though, in our culture and mindset. The tendency has been to ask, “what’s the next project?” or “where can we develop next?” But have we stopped to assess what we already have and how we can repurpose it to serve our evolving needs? Or when we build new—how can we do so with decreased impact. Considering not just the immediate future, but also longer-term, including changes in weather, usage of space, and other factors? Industry leaders have the opportunity to benefit from the value of what we already have by recycling materials and retrofitting spaces to align with the new reality and selecting products where circularity is taken into account. We have the technologies and the knowledge at our disposal— now it’s time to put them into action.

1. and 2. A VELUX pilot program in Europe operates a take-back service for its older windows.
3. Sunlight and fresh air from skylight systems can contribute to resilient building through improved indoor environmental quality.

With Canada’s housing crisis, prefab precast concrete offers a powerful solution. It is faster, durable, and costeffective, as each component is made in a controlled environment. Prefab precast concrete offers superior quality, making it a resilient and sustainable approach to addressing Canada's mid to high–rise housing shortage.

Find out more about the benefits of using prefab precast concrete for your next project.

Let’s build fast, affordable housing together!

For more information on affordable housing with prefab precast concrete, visit: www.cpci.ca/publications to download your free copy of the Structural Solutions Guide.

info@cpci.ca | 877.937.2724

Project: Maple Avenue Condo, Barrie, ON
Photos:
Stubbe’s Precast

Pursuing better.

We pioneered the rst PVC-free wall protection. Now, we’re aiming for every 4x8 sheet of Acrovyn® to recycle 130 plastic bottles—give or take a bottle. Not only are we protecting walls, but we’re also doing our part to help protect the planet. Acrovyn® sheets with recycled content are available in Woodgrains, Strata, and Brushed Metal finishes. Learn more about our solutions and how we’re pursuing better at c-sgroup.com.

Turn static files into dynamic content formats.

Create a flipbook
Issuu converts static files into: digital portfolios, online yearbooks, online catalogs, digital photo albums and more. Sign up and create your flipbook.
sabmag88 fall 2025 by SAB Magazine - Issuu