FA23 - Thesis Design Award Winners

Page 1


ARCH 613 THESIS DESIGN AWARD WINNERS

FALL 2023

Laura Griffin Thesis Honor Award

Smith Thesis Award

Meghan

The Oasis

Topic: Water Scarcity and Women’s Health/Education

Marrakesh, Morocco

Meghan Smith

Submitted December 2023 - Submitted in fulfillment of the requirements for the Master of Architecture degree

Dean of the Architecture School
Stephen White
Thesis Studio Professor
Andrew Cohen
Thesis Student Meghan Smith

Introduction

Abstract:

A brief history of Morocco, is that it is one of three kingdoms remaining in Africa, the Government does have a Prime Minister and has been moving towards a democracy. In this process several organizations have begun work in Morocco to improve equality, and social/political conditions. Such as, education for girls, and more opportunities for them to work. Some of those organizations are the Mobilizing for Rights Association (MRA) which focuses on Women’s Rights in Morocco and their need for protection; and the Borgen Project which has a focus on relieving the effects of water scarcity, food insecurity, and improving Women’s health. Not to mention there has been a shift in the public stance on women’s rights and have been improving for the better. The city of Marrakesh was chosen because in general the rural areas are shrinking. Where over 57% of the population lives in an urban setting. Which is why it was vital to place this center to be in a site where access and outreach wasn’t an issue.

This project would aim to continue to support Women and Girls in Morocco and further push forward to equality. By having this center not only act as a resource hub for a specific group, to avoid alienation of the project there has to be communication with the local community and culture. The Architecture here could speak to the culture being represented visually, and the water resource spaces would promote community interaction. All of this would begin to inform more about desertification and hopefully have an impact on the local community and improve conditions for any visitor who interacts with the project. Specifically, this facility would not only address the water crisis and use bio-mimicry to produce water, but also have extensive storage systems to capture as much as possible in the rainy seasons. This facility would be treated like a mini-metropolis where there would be stores within it for the Women to sell their products, Womens health centers, safe rooming accommodations, etc. People will be able to interact with the building in many different ways instead of just being a place to gather water.

Introduction ~ Problem Statement

Problem Statement:

Water Scarcity is a problem in today’s world all over the globe which will only get worse with the increasing stresses placed on the earth and environments from climate change, population increases, pollution, and over usage. It is estimated that by 2050 60% of the population (minimum) will be faced with water scarcity. This proposal aims to relieve some of that stress while supporting a marginalized group.

Water Scarcity:

In Morocco rainfall has declined each year since notice was taken in 2015. This means each year there is a reduction of water to the dams, and reduction of groundwater replenishment. This reduction of rainfall alone will have dramatic effects for the country of Morocco. Which is why in 2020 the National Water Plan was enacted. This bill plans to invest $40 Billion into their water sector. Morocco’s current main industries include Agriculture, Fishing, Textiles, and Tourism. Therefore water availability and access is beyond important for the leading industries and the people themselves.

While the Government has taken action they have also created policies to relieve other crises the country is facing such as food shortage, and maintaining their agriculture industry. However, these policies contradict each other as they have boosted irrigation and food production to combat hunger. This creates a much larger strain on their water supply.

Introduction ~ Water Scarcity

Water Scarcity - Food Crisis

Morocco in 2011 included the Right to Water in their constitutions. As water scarcity gets worse the problem of water equity will rise creating more political unrest.

Morocco has managed to maintain its food and economic stability better than its neighbors, by increasing its water withdrawals by 12% since 1977. Which in respect to its neighbors isn’t as bad. Compared to the 346% in Algeria from 1962-2017.

- However, Morocco expects to reach ‘Absolute water scarcity (having less than 500 cubic meters per person per year) by 2030’

In order to combat potential political unrest due and worsening of conditions caused by water scarcity Morocco has built a large desalination plant, and increased its water storage capabilities by building dams. However, this cannot solve climate change, and water loss from over-farming.

General:

2018 UN: 6 Billion people will suffer from Water Scarcity by 2050 … Suggested this is an underestimate

Hit first the most in Africa and Asia - Developing Countries

Present 47% of the global population live in areas with water scarcity - By 2050 that boosts to 57%

2010’s - India, U.S., Pakistan, China, Iran accounted for 67% of global extractions for water

“Water pollution will intensify over the next few decades and become a serious threat to sustainable development. At present 80% of industrial and municipal wastewater are released untreated”

The food demand will increase by 60% by 2050

The CDC says chronic illness’ accounts for 70% of all deaths in the U.S. Which is caused or worsened by poor food access/quality

Low-income and minority groups have even less access or opportunity to health foods

They have implemented several movements/programs to increase access to fresh healthy foods and there have been positive increases in all locations the programs partake in.

Introduction ~ Climate Refugees

Climate Refugees and Resource Depletion

Red Cross estimates that currently there are more environmental refugees than political refugees

36 Million displaced by natural disasters in 2009

- UN predicts this will rise to 50 Million by 2050 (could be as high as 200 Million on some estimates)

The increasing threat of water scarcity and insufficient measures could cause 700 million people to leave their homes in the Maghreb region (Northern Africa), the Sahel, the Horn of Africa, the Levant, and Central America’s dry corridor.

Heightens strains on other countries/ecosystems to support the influx of refugees

Overpopulation, urbanization account for high amounts of usage and resource depletion.

They usually can have poor conditions anyway -contaminations, etc.

Excessive harvesting of resources, use, farming, deforestation, implementation of concrete/pavement, etc. will only worsen with increasing populations and developing urban areas further

Introduction ~ Intentions

Client/Users

This proposal aims to provide a safe haven for Women no matter their circumstance. Provide educational and career resources for them, so they have a larger role in the solution to climate change, and their nation’s crisis’. However to prevent alienation this project also aims to appeal to the community as a whole. As a safe shared space to gain access to water and other resources. While this project does have a special focus towards Women and providing them access to opportunities which they might not otherwise have, it will not forget the communities it aims to help. By providing clean/fresh water to those who come, a small shopping center for the Women to sell their products, and even to sell food grown on site.

Architectural Intentions:

Examine and analyze the local Vernacular Architecture as well as the materials and use that information to guide the design choices and composition. This way the culture and purpose can blend and be an accepted place by the community. By combining their architectural vocabulary with strategies from other cultures will not only introduce something new, but create better efficiencies. By creating spaces that would provide new opportunities and memories the hope is to create a landmark in Marrakesh. A place seen for aid, water, peace, etc.

Specific intentions are for this project to behave like a complex seen throughout Morocco’s architectural history. One strategy which will also make the project more familiar or homey is the use of courtyards. Some will be completely tiled. Others will have garden characteristics but all spaces will open into these courtyards. A goal of mine is to have this complex act as if it is its own world which is related to the vernacular of Marrakesh. “A Moroccan house is an enclosed world of its own.” (Pg.22 Courtyards in Marrakesh, RWU Architecture Library.) This specific vernacular will be paired with traditional decorative elements such as mosaics, and Moorish influences such as horseshoe arches. It is also important to note Moorish Architecture has decorative elements on load-bearing elements, which will be included in this complex.

Security must be considered in this complex as well if the intention is to be semi-public and a safe haven for Women in the area. This idea of security and intention of creating a landmark -Power- must be included throughout the design. Traditional ways of displaying power throughout the Islamic world and in Morocco is through the use of design considerations like: Gates; to admit or exclude, it represents strength, security, and wealth. Which as a Women’s center/refuge will be important to provide an atmosphere of safety, while also representing their strength to the outside world. A Moroccan example of gates is the Gate of Wind in Rabat. The next consideration is Walls+Towers; They do tend to be used more for militaristic design however provide security, and further the vernacular of making the home its own world. The towers can be refurbished to be areas for the Women to relax in.

Once security and power have been established decoration and other influences must be incorporated so as to not feel like a prison. The traditional Islamic ways to solve this include courtyards, gardens, water ponds, color, decorations, but mainly the use of light. The strategic placement, reflection considerations, and screens which create inviting spaces that pull people in.

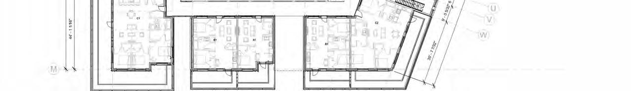
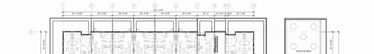
Program Outline and Areas

The program was influenced by the idea of a complex and creating opportunities. Which is why there is a greater importance on the Womens Center, as that will be the main programmatic elements. The exact estimates and sub spaces are shown in the chart below. But mainly the Womens center will have a health center, classrooms, gardens, special housing, and career centers. The Other programmatic elements such as the Community Water Rooms and Commercial spaces will be available to the larger public to provide water produced at the complex. The other public spaces will give the Women spaces to sell products they produce such as textiles or trinkets for tourists who frequent the area.

* Rough estimates - not final sqft*

Climate Data ~ Psychometric Data

The Climate in Marrakesh is Hot semi-arid. Where as to the north and east (Casablanca) is Warm-summer Mediterranean climate. The only climate data available in detail for Morocco is located in Casablanca. NOTE: There will be change data conditions in Marrakesh, however this as close as possible.

Williams University - Professor Cohen -

Climate Data ~ Temperature

Dry Bulb and Dew Point Data
Dry Bulb and Relative Humidity Data

Climate Data ~ Sun Path + Monthly Data

Roger Williams University - Professor Cohen - Spring
Summer Sun Data
Winter Sun Data

Climate Data ~ 3D Charts

Wet Bulb Temperature Data
Wet Bulb Depression Data
Wind Speed Data
Relative Humidity Data

Project Predictions

There is no set data on average rainfall in Marrakesh, however I found a few different measurements and found the mean rainfall and used that for my calculations. (In the chart to the right.)

In the chart below I calculated the Average Gallons my project could potentially produce based on my assumed Roof square footage. Which for analysis purposes was 3/4 of my total estimated square footage. In total based on the assumptions mentioned above this project could collect 1,126.62 gallons a year from rainwater collection on the roof. The month with the least rain water collection being July with 4.73 Gallons collected. The highest water collected is in November with 180.66 Gallons.

Average Rainfall in Marrakesh - 2 Sources

Site Identification and Rationale

Site:

Morocco was chosen as the location for this proposal because as the climate crisis worsens water scarcity will drastically increase making locations like these suffer. Countries like Morocco will experience this crisis first, on top of their already existing water crises. Which is why when choosing a site, Northern Africa, The Middle East, and other dry climates were examined first. If this project were to take place I would want it to be placed in an area that immediate relief could be provided which was why Morocco was chosen. Morocco has many different environmental conditions. To the north there is more greenery and follows a more Mediterranean climate. Where as to the south lies the Atlas Mountains which acts as a transition space between the Mediterranean climate and the Sahara desert climate. One of the many problems facing the countries of North Africa is desertification. The Sahara is expanding as less rain falls and more droughts follow due to a variety of factors. Which leads to the choice to place the complex in the capitol of Safi Region, Marrakesh. The city lies just north to the Atlas Mountains in the transition space between climates. This area is experiencing desertification and will see more demand for water compared to its northern cities. Due to these factors Marrakesh is the perfect location to provide current, and future relief when it comes to water.

The political systems in Morocco have also begun to shift tracts to a more equitable society for Women. In 2018 the Moroccan Parliament passed a law that made violence against Women and Girls illegal. While they are putting laws into place and beginning to shift directions there is still a lot of work and support to be made for the Women and Girls of Morocco, which this proposal would help implement.

Located just below Jardin Majorelle-Yves Saint Laurent Mansion in Marrakesh, there is a large empty lot in the city center. This lot has great access to the larger community due to being bordered by two interstates, as well as many bus routes. Making access to the site easy for locals and visitors. This site would also bring attention to the building due to the mansion across the street which is a tourist attraction. Overall this is a great site to develop a project to help women and their communities, while also displaying their local vernacular strategies as well as culture.

Site Topography and Section

Roger Williams University - Professor Cohen - Spring

Site Context

Site:

-The neighborhood of Marrakesh my site is located in is Rouidate. This district is a mix of residential, shops, and museums. To the direct north of my site is the Yves Saint Laurent Museum. So it is a wealthier, tourist attracted district close to the city center (the district of Medina).

-The Medina neighborhood to the right of the site is the old Islamic Capital from the 11th century. It is the old quarter of Marrakesh. The Capital during its time grew under the Almoravide and Almohade Dynasties. Currently it is a huge Tourist location for those who visit Marrakesh. There are many historic structures, and it is the heart of the city.

-Gueliz to the south is one of the Rich districts in the city. This district has great attractions and luxury shopping

-Semlalia is a district to the left of our site which is mainly residential neighborhoods.

-Daoudiate to the right is another residential neighborhood

Parks

To the left is a map of medical centers around my site. It shows while there are a lot of pharmacies there are few clinics, and doctor offices in the immediate area. When this is apart of the city center.

Flora - Marrakesh ~ The Daughter of the Desert

Typical Plant Species in Morocco and Marrakesh

-Aloe-Vera

-Prickly Pear Cactus

-Agave

-Mint -Geranium -Thyme

-Eucalyptus -Rosemary

-Bitter Sweet Orange -Lavender

-Olive Trees

Native Species:

-Casuarina

-Eucalyptus

-Loquat -Acacia Mountainous

- Cork Oak

-Evergreen Oak

-Holm Oak

-Juniper -Cedar

-Fir -Pine Plains

-Cork Oaks

-Olive Trees

-Argan-Thorny Trees

-Scrub Brush

-Alfalfa grass

Eco-regions

Bitter Sweet Orange Tree
Loquat Fruit Tree
Cork Oak Tree
Geraniums

Flora - Marrakesh ~ The Daughter of the Desert

Drought Resistant Plants

-Argan Trees

-Acacia Gummifera

-Dragon Tree -Succulents

-Euphorbia -Kleinia -Aconium -Apteranthes -Astydamia -Periploca -Drusa -Andrachne -Kalanchue -Wariona

-Etc.

Medicinal Flora:

-Euphorbia (20 species)

-Thymus (12 species)

-Eucalyptus (11 species)

-Astragalus (11 species)

-Salvia (11 species)

-Artemisia (8 species)

-Rumex (9 species)

-Citrus (9 species)

-Diplotaxis (7 species)

-Mentha (7 species)

-Ranunclus (5 species)

-Calendula (5 species)

Roger Williams University - Professor Cohen - Spring
Atlas Mountain Flora
Dragon Tree
Eco-regions
Eucalyptus
Acacia Gummifera

Hydroponic Systems

Hydroponic Introduction Information

- Hydroponics is a system of techniques that grow plants in water-based nutrient rich solutions rather than in soil. There are two different types of Hydroponic systems, the first being liquid based, the second is aggregate based. It is typical an aggregate substitute is used such as vermiculite, coconut coir, wood fiber, brick shards, or perlite.

-The typical use of these systems are for small farmers, hobby enthusiasts, and commercial enterprises.

-These systems have been used throughout history, first given its name in 1929 and used throughout WWII as a way to give soldiers in the Pacific fresh food.

Advantages of Hydroponic systems are:

- It can be used in places where in-ground agriculture or gardening isn’t possible such as dry desert areas

- More control of nutrient content. pH and growing environments

- Lower water and nutrient cost associated with water and nutrient recycling

- Faster growth due to more available oxygen to roots

- Elimination or reduction of soil related insects, fungi, and bacteria

- Higher crop yields

- No weeding needed

- Shor ter standing crops can be elevated for better working conditions

- Crop rotation not necessary

- Transplant shock is reduced to plants

Disadvantages of Hydroponic systems are:

- Initial and operating costs are higher than soil culture

- Skills and Knowledge needed to run

- Some diseases such as Fursarium and Verticillium can spread quickly through the system, but varieties resistant to the diseases above have been developed

Hydroponic System
Hydroponic System
Hydroponic System

Hydroponic Systems

Liquid Hydroponic System

- The Nutrient Film Technique (NFT) is when the plants are placed in a polyethylene tube that has slits cut in the plastic for the roots to pass through, then the nutrient solution is flown through this tube

-Floating Hydroponic systems are when plants are grown on a floating raft of expanded plastic

-Aeroponics system is when the plant roots remain suspended and enclosed in a chamber and are sprayed with a mist of the nutrient solution in intervals. Typically every few minutes

Aggregate Hydroponic System

-The Open System uses either Rock-wool or Sand Cultures. The Rock-wool Culture is the most used medium. It is ground up basalt rock that is heated and spin into threads making the wool. It is a light material, and can hold water while retaining sufficient air space for the most efficient root growth

-The Closed System uses materials like Graven, NFT, and Rock-wool. The plants are situated on the material slabs and positioned in channeled with the nutrient solution.

These two systems can be broken down further in to active and passive systems.

- Passive systems use a wick and growing media with high capillary action. This allows the water to be drawn to the plants. The wick system is the simplest system

-Active Systems work be actively passing the nutrient solution over the plant roots. Like in the Water Culture System. Which is the simplest active system. A platform holds the plants is usually a light buoyant material that floats on the nutrient solution. An Air pump then supplies air to the ‘air stone’ which creates bubbles in the water which supplies the roots with oxygen.

Roger Williams
Liquid Hydroponic System
Hydroponic Systems
Aggregate Hydroponic System

Regulatory Environment Summary Report

Zoning Analysis:

- Being located in Morocco has proven some challenges of finding the Zoning information for my site. I have found the Ministry of National Land Use Planning, Housing, and City Policy Page and they have several laws from Urban Planning to Environmental Integrity. However I am unable to find specific Zoning information for Marrakesh and my site. I have reached out to Oualalou+Choi (O+C) an Architecture firm based in Paris, France but have a second office in Casablanca, Morocco. They have also produced many project in Morocco, I am waiting for a response from them with any advice or hints to finding the appropriate zoning information. I of course have continued searching while waiting, but alas nothing specific such as lot coverage percentages, setbacks, landscape requirements, height restrictions, etc.

Historic District Codes and Regulations:

-Specific Codes were unable to be found. However there is writing on their stance towards historic districts, and their historic architecture. First Morocco’s Architecture has roots in Hispano-Moorish Architecture. Morocco is the crossroads of the Arab East and the Western Mediterranean. While the architecture is heavily influenced the country over time has made alterations, such as adding more color. Like the blue buildings in Chefchaouen. -There is a special importance the country has put on safeguarding and enhancing their Architectural Heritage. The Ministry of Planning, Housing, and City Policy are promoting research in the field and of landscape quality. They aim to support the enhancement of Architecture in rural areas. Monitor and support Architectural training, as well as support the Architectural profession.

Statement of Sustainability Resiliency:

-Under Environmental Law No.11-03 (relating to protection and enhancement of the environment) decrees that flora, fauna, and biodiversity must be protected by means of management. With the goal of preserving all species and guaranteeing an ecological balance. No outside species that may harm the natural local species.

- Under article 27 of this law it states that regular management of inland waters must be maintained to prevent pollution

- Under article 30 states the air must be protected from various forms of pollution that contribute to climate change and the depletion of the Ozone.

Building Code Analysis:

-Unable to find specific codes. Unless it is to be assumed to proceed with the EN EuroCodes. The European Union has data showing that Morocco is interesting in adopting the EN EuroCodes for buildings and other Civil Engineering works. (See map below)

Technical Investigation Outline

Technical and Environmental Performance Issues:

-Located in a hot semi arid climate there will be performance issues to make sure the complex remains comfortable for the visitors. The Assembly of the building will have critical importance to keep heat out of the building and providing air for ventilation. Which is where several passive systems can come in use. However, to assist the passive design strategies a Air sourced heat pump would be beneficial to look into. By taking the natural air outside through a system underground which according to the climate charts is almost a 10 degree difference. By cooling the air that way will be a great supply into the complex.

-The gathering of water will also be an environmental and technological challenge. Since there is not a lot of rain fall, especially during the summer, there needs to be another way besides relying on the already stressed ground water supplies. Which is where the Solar Panel-Water Producer comes into play. (Further researched in the Technology section of Precedents later on.) As well as the Warka Water Towers. (Also further researched in the technology precedent section.) These towers are able to pull moisture from the air/fog and transport it down into a container.

- Further technological considerations deals with materials, and construction practices. If I plan on using any material substitutes, or alternative construction materials such as rammed earth, the feasibility of each assembly should be looked at. As well if the local area would be able to locally source those materials for efficiency and to lower the carbon footprint of the building itself.

-Producing a resilient building in the face of climate change and desertification will be crucial for this thesis.

-Producing a building that accommodates and provides a comfortable environment will also be key. Which is why Screen systems will be taken advantage of, wall construction, acoustic barriers to create a ‘mini-world’ within the complex, as well as natural light without heating the spaces.

Building Code Analysis:

-While I haven’t been able to find specific codes for my site, and have reached out to a firm in Morocco. I have decided in the meantime I want this complex to be self sufficient. Producing its own electricity, water, etc. All using environmentally friendly strategies to ensure, and follow what laws I have found which have an importance on fighting climate change and providing new ways of thinking to combat climate change and the depletion of the ozone.

- Energy efficient envelope will also be important to this thesis project, and I hope to speak with Professor Charles on the matter to develop an envelope that will meet the needs of the design in the best strategy possible.

- I would like to perform a wind analysis multiple times throughout the development of the project to determine if the air sourced heat pumps is possible, and which way is best to naturally ventilation the building. To know how I might manipulate the wind direction for better, more efficient ventilation throughout my complex.

Thesis Precedents

Water Scarcity

-In 2020 Morocco passed a new bill called National Water Plan (PNE) to invest nearly 40 Billion into the Water Sector

-Dam Engineering and Construction

-Desalination Plants

-Wastewater Treatment and Reuse

- Water Supply and Distribution

-Water Security

-Groundwater Prospection

- Drinking Water in Rural Areas

-Water Transfer Networks

- Management Software

- Green Infrastructure

-Training

“...while increasing its water withdrawals only 12 percent since 1977. Yet now Morocco expects to reach “absolute water scarcity” (having less than 500 cubic meters per person per year) by 2030. And while Morocco has faced less of the mass protests or domestic upheavals of its North African neighbors, it has witnessed so-called thirsty protests, triggered by water cutoffs in the south.”

“The government-affiliated Economic, Social and Environmental Council highlighted studies projecting that current water consumption habits, coupled with the effects of climate change, could contribute to a loss of 80 percent of all water resources in Morocco by 2045 .”

Precedent 1: Women’s Opportunity Center - Kayonza, Rwanda

- Sharon Davis Design

- 2013 - 23,600 sqft

- Semi-rural -Property: two Hectare, buildings 23,600sqft -Studied Vernacular Rwandan Villages to provide security/boundaries/and community

Precedent 1: Women’s Opportunity Center - Kayonza, Rwanda

-Occupants are 300 Women

-Designed with Women for Women International - an Organization that helps survivors or war rebuild

-Aim to rebuild agriculture, economic opportunities, social infrastructure, and restoring African Heritage

-Water collection through roof design

-Underground storage

-Solar powered water pumps

-Filtration

-Water tower

-Gravity Distribution

Roger Williams University - Professor Cohen - Spring

Precedent 1: Women’s Opportunity Center - Kayonza,

-Village Organization

-Stepped with landscape / gardens

-Spatial/Social layers

-Classrooms in center

-Complex community space

- Farmers markets

-Public community space

-Public Realm

-Organization creates layers of protection for the program within

-Sets boundaries between Public vs. Complex space

Precedent 1: Women’s Opportunity Center - Kayonza, Rwanda

-Studied the historic King’s Palace in southern Rwanda

-Woven Reed dwellings: indigenous vernacular which was almost lost, reinstated here

-Adjusted to be perforated brick walls

-Solar protection, natural ventilation, privacy

-450,000 clay bricks made on site with local materials by the future users of this center

Roger Williams University - Professor Cohen - Spring

Precedent 1: Women’s Opportunity Center - Kayonza, Rwanda

-The Women run the market on site, selling the produce they grow/textiles

-Commercial Integrated Farming Initiative teaches the women how to grow sustainably, organically, and geared towards more commercial use

-These classrooms are cooled by:

-Brick Screen

-Green Roof

-Retained Earth Walls

Precedent

- 180 Degrees Design and Build

- 2018

- 9,000 sqft

-Large metal cylinders that capture rainwater from the roofing systems and is used to water plants

-Designed with the Living Building Challenge

-Up-cycles materials, and reuses construction materials on site.

Precedent

Roger Williams University - Professor Cohen

Women’s Centers

Precedent 3: GYAAN Center -

- Diana Kellogg Architects

- 2021

-Commissioned by CITTA, a non-profit organization that supports development in the most economically challenged, geographical remote, or marginalized communities around the world

-For 400 girls from kindergarten to grade 10

-In the mystic Thar Desert

-Where female literacy is barely 32%

Precedent 3: GYAAN Center - Jaisalmer, India

-One of 3 three buildings which would create the GYAAN Center

- Building 1: The Rajkumari Ratnavati Girl’s School

-Building 2: The Medha a performing art/exhibition space/Library/museum

-Building 3: The Women’s Cooperative, education for mothers and women weaving, embroidery

Precedent 3: GYAAN Center - Jaisalmer, India

-Form and design inspired by cultural symbols of femininity and strength

-Settled on Ovals to represent the power of femininity and infinity

- Local hand-carved Jaisalmer sandstone by local craftsmen

- Built by many of the students fathers

- Solar panel canopy, for energy and cooling/shading device

- Stone screens allow for ventilation, privacy, and shading

The

Precedent 4: The Women’s House of Ouled Merzoug - Idelsane, Morocco

- Building Beyond Borders

- 2019

- 1291.67 sqft

-Near Atlas Mountains

-Small section of land was gifted by the community to the new Women’s Association ( Association des Femmes d’Ouled Merzoug)

- Built/designed by students, locals, and the future occupants

Precedent 4: The Women’s House of Ouled Merzoug - Idelsane, Morocco

-A Women’s house, where meetings, classes, gatherings take place.

-Located at the intersection of two key paths used by locals -Near the town center, the Women here sell products they make

-Focused on bioclimatic design and responsible material use.

Precedent

-Material use and construction waste were highly considered

-Uses Granite rock from the hillside the building is located on

-Interior of adobe bricks

- Eucalyptus beams

- Ceiling - Reeds from the Palmeraie (The valley that is a small river in the cooler months)

- Wall finishing: Local Earth, River Sand, Lime, and straw

- The use of traditional and modern construction tactics were used

- Local Craftsmen were large contributors

Precedent 4: The Women’s House of Ouled Merzoug - Idelsane, Morocco

-A ‘Forest Garden’ was planted next to the building on the formally bare hillside

-Adds biodiversity to the site

-Cools the area

-New Social space for the town

-On the other side of the ‘Forest’ there is a stepped garden. Whos dry-stacked walls slow water movement for better water infiltration and reduces erosion

Workshop and communal baking space

Meeting, teaching, learning space

Roger Williams University - Professor Cohen - Spring

Other Precedents

Precedent 5: Sultan Hassan Complex - Cairo,

- AD 1362 - Mamluk Period -Stone/marble

-Madrasas, Mosque, Mausoleum, Hospital, Residences, Orphanage, Water Tower all reside in this building -Variety or programmatic elements/organization

Roger Williams University - Professor Cohen

Precedent 6: ReYard House - Ben Guerir, Morocco

- Team Bosphorous from Turkey

- 2019

-1,506 sqft

-Privacy is at the utmost importance for family homes, and they enjoy spending time in their yards

-Comfort conditions in the

-Perforated wall allows wind to ventilate, and provides some shading/privacy

-Solar panels that are places above also generate shade for the courtyard space

Precedent 6: ReYard House - Ben Guerir, Morocco

-The solar canopy also directs wind into the courtyard which interacts with the condensation from the algae pond to further cool the space

-Rammed Earth and Wood Construction

-Two paneled rammed earth system

-Bamboo shoots in between for insulation

-Microalgae based wastewater treatment system

-bathroom/kitchen wastewater is treated in a Membrane Bioreactor which the remaining nutrients are used in the algae pond

-Promotes plant growth, used in irrigation

-The microalgae in the pool generates 5-10 times more oxygen. Absorbs more carbon from the area

-Reuse of 80% of wastewater

-Air source heat pump for cooling

Roger Williams University - Professor Cohen - Spring 2023
Roger Williams University - Professor Cohen - Spring 2023

Technology

-Series of solar panels laid over a highly absorbent Hydrogel

-Set above a sloped box with a water spout

-Overnight the box is left open allowing the hydrogel to absorb moisture from the air and store it

-In the morning the box is closed and the heat evaporates the moisture from the hydrogel. Condensation occurs on the back of the solar panels, which drips into the box.

-This improves efficiency of the solar panels by reducing their temperature

Tech 1: Water-Electricity-Crop Co-Production System (WEC2P)

-1 panel tested for two week during June in the Saudi Arabian desert

-Collected 1,519 watt hours

-2 liters of water

SOURCE (Company)

-15 year life span

-Eliminates need for 54,000 single use water bottles

-Has built projects all around the world

-South Africa -School

-United Arab EmiratesLuxury Hotel

-Philippines - Remote Community

- Arizona

Tech 2: The Warka-Water Tower

-Developed in the Ethiopian landscape by studying the Warka Tree, is a bamboo lattice design lined with orange polyester mesh

-Collects rainwater, dew, and fog

-Stands 30’ tall and is 13’ wide

-Acts like an air well, previously done in tall stone structures

-Can harvest 13-26 gallons a day (based on lab testing results)

Roger Williams University - Professor Cohen - Spring

Tech 2: The Warka-Water Tower

-Reflective elements to deter birds

-Water resistant Polyester mesh collects the dew, condensation and delivers it to a storage box

-MIT is developing something similar based on the Namib Beetle

-Canopy to provide shade and ability to be a social space like the Warka Tree

-Easily Built/moved

Thesis Studio

Questions

How to respect cultural traditions while challenging social norms to support the advancement of Women? (Who are typically seen as a second class citizen)

For the Women who need the emergency housing to escape domestic violence... How can I create spaces that promote safety, hominess, and healing (both psychically and mentally)?

-How to provide different scaled levels of interactions and private reflection spaces without alienation?

How to display local typologies to show strength and stature but also rivaling the oppressive ideologies that they might represent?

- How to use those local design strategies and re-purpose them to show warmth, strength, and represent a bright future?

- How to allow these Women to reclaim these visual representations to be a symbol of their advancement towards equality?

Roger Williams University - Professor Cohen
Roger Williams University - Professor Cohen
Roger Williams University - Professor Cohen

Sketches

Roger Williams University - Professor Cohen - Fall

Schematic Design

Roger Williams University - Professor Cohen -
10"x10" Rammed Earth Blocks
Vapor Barrier
2" Air Gap
1'x10" Hammed Earth Blocks
Concrete Foundation

Schematic Design - Site Strategy 1

Schematic Design - Site Strategy 1

Roger

Schematic Design - Site Strategy

Schematic Design - Site Strategy

Process Work

Roger Williams University - Professor Cohen - Fall

Mid Review - Process

Mid Review - Process

Entry Elevation 1’=1/32”

Roger Williams University - Professor Cohen
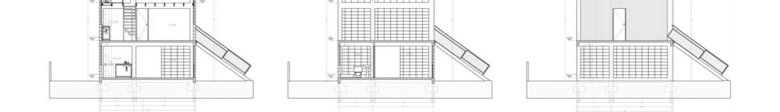
Section A 1’=1/32”
Section B 1’=1/32”
North East Corner
South East Corner
North West Corner
South West Corner

Mid Review - Process

Roger Williams University - Professor Cohen -

Mid Review - Process

Site Axon - North East Corner
Site Axon - South East Corner
10"x1' Rammed Earth Blocks
Concrete Foundation
6" Wooden Beam
1/2" Air Gap
1'x6" Rammed Earth Block
Tadelakt Finish
Wall Detail: Rammed Earth
Room Detail: Secure Housing Rammed Earth

Mid Review - Process

Roger Williams University - Professor Cohen
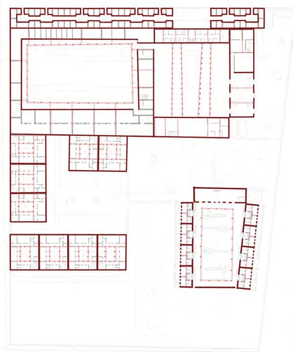
‘Mini Souk’ Plan
Single Room Units
Riad Units
General Education and Arts School
Water Center/ STEM School
Monastery Units (Iter..2 - 32 Units)
Monastery Units (Iter.1 - 16 Units)
Health Center

Mid Review - Process

Pavilion Walkway Complex

Mid Review - Process

Roger Williams University - Professor Cohen -
Boundary to Women’s Center
Main Courts of Women’s Center
Secure Healing Unit
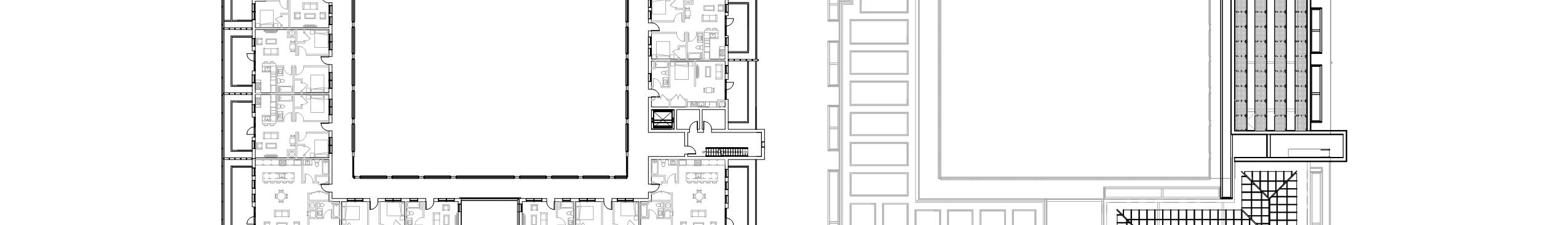
Riad Unit Courtyard

Final Work

Introduction:

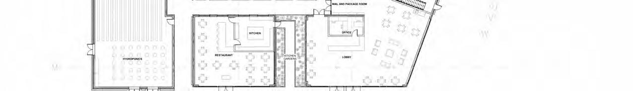
With the climate crisis, water will become a highly sought after commodity. Areas already experiencing high water stress like Morocco will only see this need grow exponentially. It is projected that Morocco will lose 80% of its current water supply by 2045 due to water usage habits and climate change. Which is why the Moroccan Government has implemented a bill called the National Water Plan to invest nearly 40 Billion into their water sector. The Moroccan Government is also shifting gears when it comes to Women’s rights. The Queen created several programs to help Women receive higher education and to have access to opportunities. This Thesis aims to further advance Women’s education and standing in the country, while also giving them the education to work in the nation’s infrastructure sector. This complex aims to be a safe place for Women to receive an education whether it be general, in the traditional arts, or in STEM. As well as provide other supportive programmatic elements such as a health center focused on Women’s Health, a female lead community center, as well as two different types of housing. The first for any Woman needing emergency housing to escape domestic violence or whatever it may be, no questions asked. The second, a Riad style housing unit for single Mothers and their children, any woman seeking general housing, or even the complex’ own employees. Here the Women will learn about new technologies for producing and storing water, as well as learning about the complex’s own water collection and treatment systems.

Final Work

Parti:

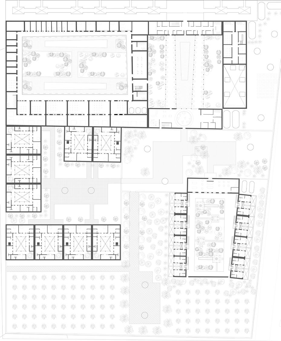
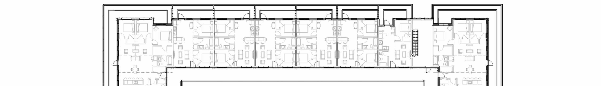
The design proposal is inspired and derived from the local historic architecture as well as influenced from Mediterranean classical times. The Materiality of the project is purely inspired by the local historical structures such as the Bahia Palace, and the Saadian Tombs. This landscape is flat, dry, and rocky since its location is along the outskirts of the Atlas mountains. The form of the complex is taken from the traditional language and sequences of courtyards and their respective spaces. Instead of looking at the complex as several different buildings, it is approached as one large building connected by different sized and shaped courtyards for unique experiences as you move throughout the complex. To allow for privacy and security the buildings will all be inward facing with no exterior windows. This also follows the local building style so there is a level of connection and comfort when women occupy this space.

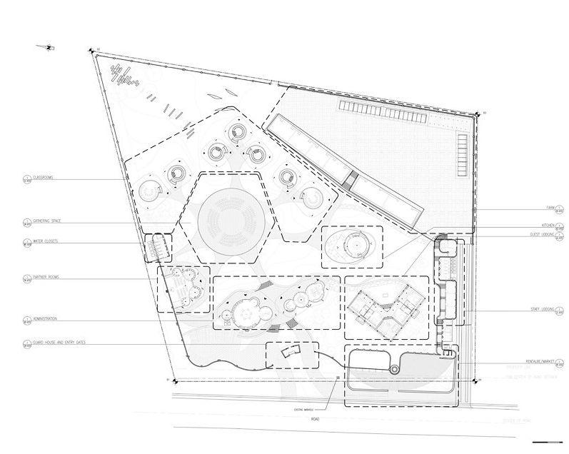
Site Strategies:

The site strategy for this site was to split up the land between the development for the thesis proposal and the areas for future development. By allowing the main street fronts to be sections for future development allows for future opportunities for commercial developments, as well as mixed use projects. These future developments would also be used as a source of income for the Women’s Center, through rents for example. The Women’s Center land does have some street frontage on the northern side of the site. Which is in proximity to the Jardin Majorelle Gardens. A large tourist attraction in Marrakech. Having the street frontage and main entrance on this side allows for better interaction between the garden’s visitors and the new shopping spaces where women would be able to sell their products.

Building Systems Strategies:

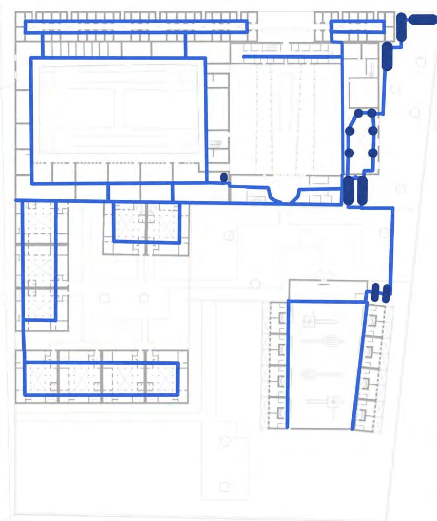
The building systems in this building aim to have the building run the most efficiently and independently as possible. Starting off with the wall system, the rammed earth while thicker provides a lot of natural insulation which is paired with a smaller layer of clay brick on the interior further increasing the thermal insulation. Keeping my spaces cool and having better room control. This is further represented by the inward facing approach to my buildings which have no exterior windows. Not only for privacy, but so there are limited solar gains. Natural light is gained from courtyard systems. To further cool and to heat in the winter months the floor would have a radiant system which would provide a lot of the adjustments needed since the room itself is an independent condition. Energy and water would be gathered from rooftop water collection systems, warka towers, and specialty solar panels which can also generate water.

Sustainability Strategies:

The sustainability strategies in this building start with the building systems. The assembly of rammed earth and clay blocks allow for a much lower carbon footprint, and can benefit the local economy+traditional building methods since the local earth can be used for these blocks. This system also eliminates a lot of the need for insulation, and prevents energy loss through overdone heating/cooling. Then whatever heating and cooling that is needed would be done from a water radiant system. The energy would be generated from special solar panels that when used properly can also generate

Final Work

water. Which is further supported by the roof top collection systems on the buildings all to be re-purposed and used throughout the complex. To top the cake, the warka water towers can be built out of renewable materials such as bamboo and can capture a lot of water through rain, fog, mist, dew, etc. Having them spread throughout the site brings a lot of fresh water for instantaneous use. The water generated would be able to take care of the needs of each resident, fountains, and could even contribute to a hydroponic system in the STEM school to grow food used in the complex’ cafe, and kitchens.

Detail Strategies:

Detail strategies used throughout the project revolve around space, and the different experiences/emotions that can be produced through them. For example, there are different typologies of columns in each of my courtyard to elicit different emotions; such as safety, comfort, structured importance, etc. For example the columns are used to show an immediate understanding this building is established/important, but the program in which it is used (Women’s School) also challenges the traditional representation of them by promoting Women’s education in STEM and giving them a foothold for intellectual and financial independence. Each main programmatic space challenges a specific social or systematic restraint but re-purposed to become a symbol of their power and adaption, which is why each is different and slightly abstracted.

Final Work

Marrakesh Average Yearly Rainfall: 11”

Comparison Average Yearly Rainfall in RI: 46”

Roger Williams University - Professor Cohen

Future Development (For Complex’ Income)

(Designated Commercial Space for Women to Sell Their Goods)

Mini-Souk
Women’s Community Center

Final Work

Women’s Health and Education

1st Fl: Education i.e. STEM/Arts/College Prep

2nd Fl: Health Center

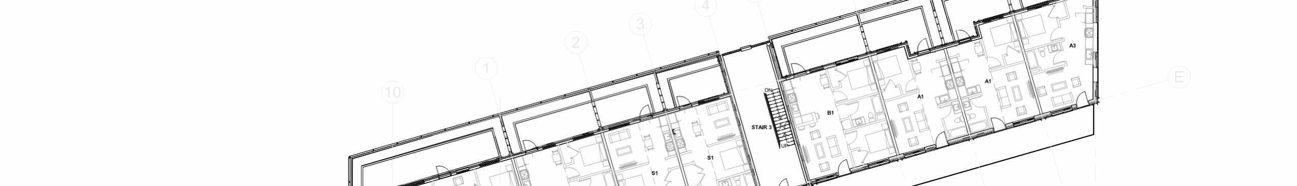
Emergency Housing for Women in Distress

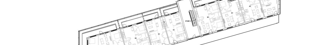
Riad Housing (Female Travelers, Complex Employees, Single Mother Families)

Final Work

Main Entrance

(3 Step Entry Sequence. To ensure privacy by obscuring reasons for entering. See Space Detail.)

Loading Dock

Security Boundaries

Gate to Water Gathering Technologies

Secure Transition to Housing Areas

Gate to Olive Groves for Complex’ uses or profits

Final Work

Completely Public

Only Women

Only Complex Residents

Only Unit Resident(s)

Levels of Intimacy/Interaction

Final Work

Column Types

Final Work

Site Section A - Looking South
Site Section B- Looking East
East Facade
North Facade West Facade
South Facade
Site Elevations

Final Work

Roger Williams University - Professor Cohen -

Final Work

Final Work

Roger Williams University - Professor Cohen -
West Facade
South Facade

Final Work

Roger Williams University - Professor Cohen
East Facade
North Facade

Final Work

Average Yearly Water Collection from Rooftop collection strategies: 883,728 Gallons per year (assuming yearly rainfall follows the average of 11”)

86 Residents~ assume they use 20gal a day (Roughly what the average American uses)

627,800 gallons would be used by residents yearly

Leaving 255,928 gallons left (of the Rooftop collection water)

Average Yearly Water Collection from Water Producing Solar Panels: *data from test run in Saudi Deserts+articles*

1 of these panels could produce 385.7 gallons a year and 157.9 kWh annually

Average Yearly Water Collection from 1 Warka Water Tower: in ideal locations: 11,539 Gallons per year

Tested in Ethiopia with an national annual average humidity of 60.7%

Morocco’s national average annual humidity percentage is 62%

Water Collection Paths
Pipes
Storage Tanks

Final Work

Load Bearing Systems Columns

Roger Williams University - Professor Cohen
Structural Plan
Major Beams
Structural Section
Non Permeable Footprint Natural vs. Artificial Light
Main Wind Directions - Natural Ventilation
Heating/Cooling - Radiant Floor

Final Work

Mechanical Plan - Locations for Mechanical Equipment

Roger Williams University - Professor Cohen

Emergency Housing Room Detail: Rammed Earth

Concrete Foundation
Tadelakt Finish
Wall Detail: Rammed Earth

Final Work

Approach

Roger Williams University - Professor Cohen -
View Down ‘mini-souk’
Entry to Main Women’s Center Courtyard

Final Work

Roger Williams University - Professor Cohen -
Community Center 2nd Floor
Riad Unit Courtyard
School + Health Center Courtyard

Final Work

Roger Williams University - Professor Cohen -
Secure Housing Pavilions

Final Work

Olive Groves Looking Towards Secure Housing

Final Work

Roger Williams University - Professor Cohen - Fall
Secure Unit Colonnade
Secure Housing Unit Entrances

Conclusion

Women all over the world face cultural and systematic challenges, setbacks, and prejudices. The challenges women face will only worsen as the climate crisis and the water crisis continue, especially in more restrictive countries. The strategies, technologies, and underlying design strategies can be used all over the world since everywhere will experience water stress. Adapting this project to suit different geographical locations will only benefit the women there, and the larger communities when it comes to access to clean and available water. These systems can relieve a lot of stress and by teaching these women how to use the machinery will give them an invaluable foothold when it comes to the future, and the preservation of their communities. These ideas and strategies can even be used in well developed countries such as the United States. Which has several different climate types, and can easily be adapted to be in areas where flooding is more common. To have clean water for the region, and to store excess storm water there would be an abundance. This would allow the excess to be sent around the world where it may be needed more. If this project was built all over the world they could become a network where resources such as water, energy, medicine, and food could be shared and distributed.

The design strategies, technological strategies, and building systems all work towards making this complex completely self sufficient. The on-site water treatment/gathering system, solar panels, and hydroponic labs would allow these buildings to provide the women an environment of independence to learn, teach, and/or receive resources without worries. Overall, this project can be extremely beneficial if it were to be built, and I would love to see these ideas furthered and adapted to different geographical regions, cultures, and biomes.

Resources

Bibliography

Abdel, Hana. “The Rajkumari Ratnavati Girl’s School / Diana Kellogg Architects.” ArchDaily, 29 Apr. 2021, www.archdaily. com/960824/the-rajkumari-ratnavati-girls-school-diana-kellogg-architects.

Baldwin, Eric. “Modern Morocco: Building a New Vernacular.” ArchDaily, 26 Nov. 2019, www.archdaily.com/929075/modern-morocco-building-a-new-vernacular.

Blaser, Werner. Innen-Hof in Marrakesh : Islamische Geschichte Als Gegenwart = Courtyards in Marrakech : The Living Presence of Islamic History. Birkhäuser, 2004.

Chandler, David L. “How to Get Fresh Water out of Thin Air.” MIT News | Massachusetts Institute of Technology, news.mit.edu/2013/ how-to-get-fresh-water-out-of-thin-air-0830. Accessed 14 May 2023.

Curl, Lori Catalano & Kelly. “Wenk Associates: Working With Water.” ArchDaily, 13 July 2022, www.archdaily.com/985286/ wenk-associates-working-with-water?ad_source=search&ad_medium=search_result_all.

“Desertification and Drought Day 2023 Sets an Ambitious Women’s Land Rights Agenda  .” UNCCD, www.unccd.int/news-stories/press-releases/desertification-and-drought-day-2023-sets-ambitious-womens-land-rights. Accessed 14 May 2023.

“Education of Morocco.” Encyclopædia Britannica, www.britannica.com/place/Morocco/Education. Accessed 14 May 2023.

“Even in Deserts, This System Can Generate Water and Electricity: The Optimist Daily.” The Optimist Daily: Making Solutions the News |, 3 Mar. 2022, www.optimistdaily.com/2022/03/even-in-deserts-this-system-can-generate-water-and-electricity/.

“Gallery of Volubilis Visitor Center / OUALALOU+CHOI - 23.” ArchDaily, www.archdaily.com/171917/volubilis-visitor-center-kilo-architectures/5015da1c28ba0d5a4b001264-volubilis-visitor-center-kilo-architectures-wooden-lattice-detail?next_project=no. Accessed 14 May 2023.

Gaete, Javier. “Women’s Opportunity Center / Sharon Davis Design.” ArchDaily, 3 Oct. 2013, www.archdaily.com/433846/women-s-opportunity-center-sharon-davis-design.

Grube, Ernst J, and George Michell. Architecture of the Islamic World : Its History and Social Meaning, with a Complete Survey of Key Monuments. Thames and Hudson, 1978.

“Hazel Hare Center for Plant Science / 180 Degrees Design + Build + colab studio” 14 Dec 2022. ArchDaily. Accessed 14 May 2023. <https://www.archdaily.com/969433/hazel-hare-center-for-plant-science-180-degrees-design-plus-build-plus-colab-studio> ISSN

0719-8884

Hasila Jarimi, Richard Powell, Saffa Riffat, Review of sustainable methods for atmospheric water harvesting, International Journal of Low-Carbon Technologies, Volume 15, Issue 2, May 2020, Pages 253–276, https://doi.org/10.1093/ijlct/ctz072

“How Do Hydropanels Work?” SOURCE Water, 10 May 2023, www.source.co/how-hydropanels-work/.

“Hydroponics.” Hydroponics | National Agricultural Library, www.nal.usda.gov/farms-and-agricultural-production-systems/hydroponics#:~:text=Hydroponics%20is%20the%20technique%20of,%2C%20hobbyists%2C%20and%20commercial%20enterprises. Accessed 14 May 2023.

Kiprop, Joseph. “The Biggest Industries in Morocco.” WorldAtlas, 29 Oct. 2018, www.worldatlas.com/articles/which-are-the-biggestindustries-in-morocco.html.

Kühnel Ernst, and Lehnert & Landrock. North Africa: Tripoli, Tunis, Algeria, Morocco: Architecture, Landscape, Life of the People. Brentano’s, 1924. INSERT-MISSING-DATABASE-NAME, http://books.google.com/books?id=R4NDAQAAIAAJ. Accessed 14 May 2023.

“Morocco.” Geography, 9 Nov. 2021, kids.nationalgeographic.com/geography/countries/article/morocco.

“Morocco Reflects a Global South Dilemma: Water or Food?” United States Institute of Peace, 16 June 2022, www.usip.org/publications/2022/06/morocco-reflects-global-south-dilemma-water-or-food.

75. “Morocco - Water.” International Trade Administration | Trade.Gov, www.trade.gov/country-commercial-guides/morocco-water. Accessed 14 May 2023.

Mowchan, Sara. “Global Rights for Women in Morocco.” Global Rights for Women, 27 Feb. 2023, globalrightsforwomen.org/global-rights-for-women-in-morocco/#:~:text=MRA%20is%20an%20international%20non,in%20Morocco%2C%20Tunisia%20and%20Libya.

“Plant Biodiversity of South-Western Morocco.” Teline.Fr - Plant Biodiversity of South-Western Morocco, www.teline.fr/en#:~:text=The%20current%20species%20of%20tropical,%2C%20Kalanchoe%2C%20Apteranthes%2C%20Orbea%2C. Accessed 14 May 2023.

“ReYard House / Team Bosphorus from Turkey” 30 Jun 2020. ArchDaily. Accessed 14 May 2023. <https://www.archdaily.com/942491/reyard-houseteam-bosphorus-from-turkey> ISSN 0719-8884

Ritchie, Hannah, and Max Roser. “Water Use and Stress.” Our World in Data, 20 Nov. 2017, ourworldindata.org/water-use-stress.

Ruggles, D. Fairchild. Islamic Gardens and Landscapes, University of Pennsylvania Press, 2008. ProQuest Ebook Central, https://ebookcentral-proquest-com.rwulib.idm.oclc.org/lib/rwu/detail.action?docID=3441711.

Solovyov, Marina, et al. “Botanical Gardens of Marrakech, Top 10 Medicinal Plants &amp; Herbs.” Morocco Travel Blog, 10 Apr. 2021, moroccotravelblog.com/2019/02/23/botanical-gardens-of-marrakech-top-10-medicinal-plants-herbs/.

Stinson, Liz. “A Bamboo Tower That Produces Water from Air.” Wired, 9 Jan. 2015, www.wired.com/2015/01/architecture-and-vision-warkawater/.

The BRAHMS Project, University of Oxford. “Flora of Morocco.” Brahms: Floraofmorocco, herbaria.plants.ox.ac.uk/bol/floraofmorocco#:~:text=The%20most%20represented%20genera%20in,%2C%20Ranunclus%20(5%20species)%20and. Accessed 14 May 2023.

“The Gyaan Center: Diana Kellogg Architects.” Mysite, www.dkarchitects.com/thegyaancenter. Accessed 14 May 2023.

Thelwell, Kim. “The Status of Women’s Rights in Morocco.” The Borgen Project, 31 Oct. 2020, borgenproject.org/womens-rights-in-morocco/.

“The Women’s House of Ouled Merzoug / Building Beyond Borders Hasselt University” 03 Jan 2022. ArchDaily. Accessed 14 May 2023. <https://www. archdaily.com/937147/the-womens-house-of-ouled-merzoug-building-beyond-borders> ISSN 0719-8884

“Women’s Opporunity Center.” Sharon Davis Design, 6 Mar. 2023, sharondavisdesign.com/project/womens-opportunity-center-rwanda/.

Turn static files into dynamic content formats.

Create a flipbook
Issuu converts static files into: digital portfolios, online yearbooks, online catalogs, digital photo albums and more. Sign up and create your flipbook.