ARCH 515 GRADUATE ARCHITECTURAL
DESIGN STUDIO
FALL 2023
Beyond Boundaries: Exploring housing typologies in urban and rural contexts
Amenta Emma Architects - Teaching Firm in Residence



















![]()
Beyond Boundaries: Exploring housing typologies in urban and rural contexts
Amenta Emma Architects - Teaching Firm in Residence



















Eliana Greenstein Himle
Arch 515.05
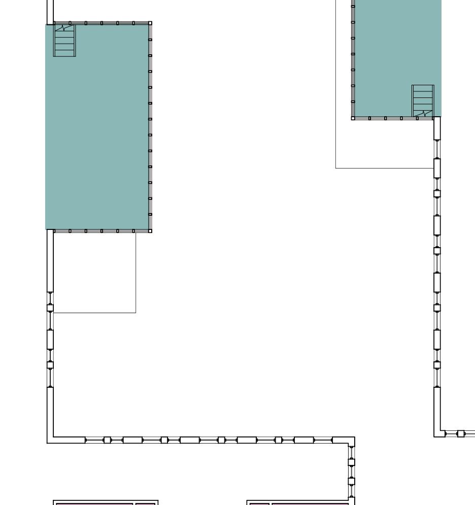
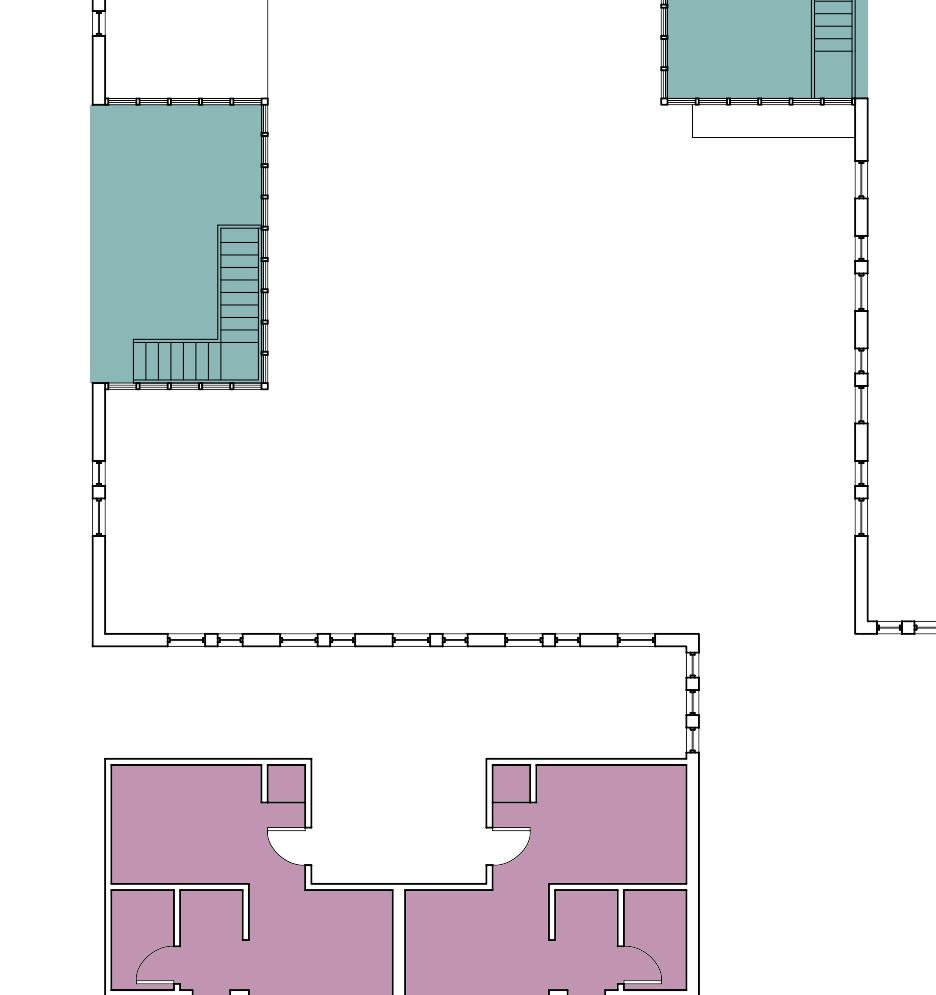
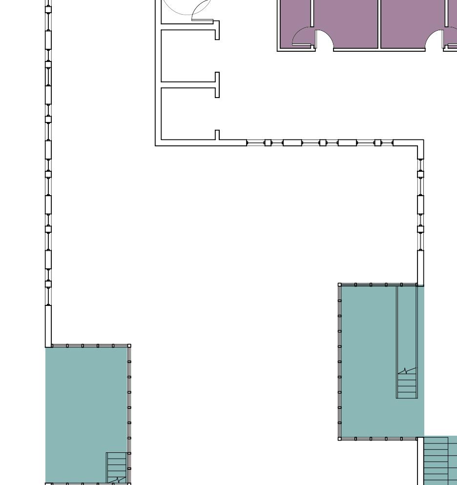
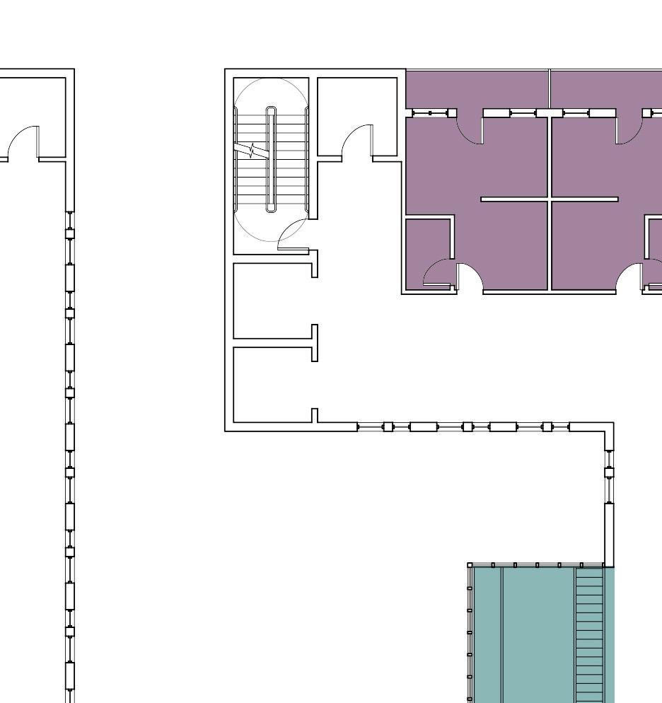
Neighborhoods create community, identity, and ownerships within cities that are full of people who might feel faceless. However, the creation of neighborhoods can also be used to separate, which is why fostering connection between neighbors is of utmost importance. Boston is facing many layers of housing issues that are putting many populations of people in precarious housing situations. The elderly population is increasing but their ability to stay housed is decreasing. There are tens of thousands of students in the city who are taking up many of the rental properties which is pushing other populations to the outskirts. Nearly half of non-elderly, non-family households are struggling to afford the rental prices, let alone buy property. This housing proposal brings together 4 populations in one spot. Each tower houses a group of people, but the emphasis is on connecting, not separating. The façade reflects this through brick colors that mesh into each other on the inner faces of the towers, which are angled to take advantage of direct or indirect sunlight. In the center of the towers is a cross of connecting spaces – whether that be for gathering, studying, or talking in passing. The ground floor maintains the urban edge and blurs the lines of the towers to provide meaningful business activity which can benefit the lives of residents.












































































































































































































































































































































































































































































































































































































































































































































































































































































































































































