ARCH 517
COLLABORATIVE REVITALIZATION STUDIO
SPRING 2024
Sacred Spaces--Preserved, Adapted, Added Onto Rather Than Abandoned
Julia Bernert, Adjunct Faculty - John Tschirch, Adjunct Faculty
Stephen White, Dean and Professor of Architecture
![]()
Sacred Spaces--Preserved, Adapted, Added Onto Rather Than Abandoned
Julia Bernert, Adjunct Faculty - John Tschirch, Adjunct Faculty
Stephen White, Dean and Professor of Architecture
For our semester’s investigation into the preservation and adaption of sacred spaces, we begin with two short exercises to investigate, document and discuss existing historic spaces whose function has been to join users to the divine. How can one sensitively adapt a space that is eternal, perfect and fixed?
Trinity Kendrick ARCH.517

Located on the south side of market square in Newport’s historic waterfront, the Seamen’s Institute was once situated in the middle of a bustling and dense commercial district. However, urban removal in the 1960s caused the loss of many of these surrounding buildings, and now the Institute is much more prominent in the landscape due to the lack of density. It occupies nearly all of its lot although there is a small walled garden directly to its east. On the south side of the building is a variety of shops and restaurants in Bowen’s Wharf, some even directly connected to the building.







As is visible in the timeline, the landscape around the Church has changed over the years with the building itself as a sort of anchor. However, in recent years since urban renewal changed the landscape and added the four lane highway, or America’s Cup Avenue, alongside the wharf, there has been a revitalization in terms of businesses and activity in the area.





The Seamen’s building is part of the larger Colonial Revival movement in 1920s and 1930s America, and specifically the more formal aspect of a Georgian Revival. Within Newport, the style was equally pervasive. A very similar architectural precedent of the Seamen’s Church is the Newport YMCA (now the Newport Vanderbilt Hall Hotel) on Mary Street, built 1908-1910. The Church is also not the only one of its kind, as there are other Institutes in the US including New York and Philadelphia, but there is no consistent architectural style for the buildings.


The Church is a brick, 2-story Georgian Revival structure with a slate-clad gambrel roof and parapetted end walls ending in paired chimney stacks. String courses, gauged brick window arches, and a molded water table elaborate the Institute’s Flemish bond brickwork. The east and south elevations, originally obscured by adjacent buildings, are somewhat irregular and are not fully articulated, but the always “public” west elevation and the north-facing entrance front are symmetrical and fully elaborated. Nine bays long and four wide, the building measures roughly ninety by thirty feet. The nine gabled dormers of the north front contain windows hung with 6/6 sash. Below a modillion cornice the segmental-head first- and second-story windows of this elevation have caststone lug sills and 9/9 sash. Twin twelve-light oculi flank a central entrance. Its cast- stone architrave bears a broken segmental pediment framing a draped urn and pine cone.
The plate-glass entrance doors and transom replace the 1930 paneled doors and fan-pattern transom.







Off the first floor central hall, a staircase leads up to the second floor into a small hallway. This passage leads into the chapel, the whole sequence somewhat unremarkable until you enter in. The space is intimate and rectangular, with frescoed walls and ceiling and a floor covered with handmade glazed tiles incised with sea shells, coral, seaweed, and a compass. Above marbleized wainscot murals portray a host of saints, all associated with the sea. A number of these figures bear the likeness of well known Newporters. Fictivecloth-of-gold drapery cast in plaster embellishes the altar niche and frontal. Pierced Work screens cover the chapel windows and the door is paneled in chevron-pattern marquetry. A back-lit, block letter inscription from Psalm 107 which begins “They that go down to the sea in ships…” forms the room's cornice. Benches line two sides of the room with nautical themed cushions depicting seashells and ships.


“The Chapel is thought of as quai-side, looking out upon the Seven Seas of the world.”





While the Seamen’s Church was founded as an Episcopalian institution and does contain a chapel, it is not a religious institution in the traditional sense and there is no clear lived religion. I would argue, however, that there is a clear culture expressed throughout the architectural character of the building, one of the maritime clientele. It permeates every detail, from the port windows to the anchor symbols. The size and intimacy of its chapel encourages private worship or reflection, and could be used regardless of religious affiliation. The boxy and nondescript shape doesn’t reference any particular historical religious spaces. Aside from the chapel, the rest of the building is for secular use. However, there are still clear architectural details in the chapel that connect to its Christian roots, such as the inscription from Psalm 107, the Bible near the altar, and the depictions of saints on the walls.

They that go down to The Sea in ships, and occupy their business in great waters;
These men see the works of The Lord and His wonders in the deep.
For He maketh the storms to cease so that the waves therof are still.
Then are they glad because they are at rest, and so he bringeth them unto their desired haven.
Psalsm 107
Historic American Buildings Survey, Creator. Robert Stevens Warehouse, Bowen's Wharf, Newport, Newport County, RI. Newport Newport County Rhode Island, 1933. Documentation Compiled After. Photograph. https://www.loc.gov/item/ri0038/.
Sanbor n Fire Insurance Map from Newport, Newport County, Rhode Island. Sanborn Map Company, Jul, 1896. Map. https://www.loc.gov/item/sanborn08092_003/.
Sanbor n Fire Insurance Map from Newport, Newport County, Rhode Island. Sanborn Map Company, 1921. Map. https:// www.loc.gov/item/sanborn08092_005/.
Sanbor n Fire Insurance Map from Newport, Newport County, Rhode Island. Sanborn Map Company, - Aug 1950, 1950. Map. https://www.loc.gov/item/sanborn08092_006/.
Sanbor n Fire Insurance Map from Newport, Newport County, Rhode Island. Sanborn Map Company, ; Republished 1953, 1953. Map. https://www.loc.gov/item/sanborn08092_007/.
Seamen’s Church Institute. n.d. Seamen’s Church Institute - Newport | Serving Our Maritime Community. Accessed January 29, 2024. https://seamensnewport.org/.
Original Diagrams: A minimum of twelve are expected. At least one diagram must be made in plan view, at least one in section or elevation view and at least one in three dimensions.
1 Site and Context / 2 Orientation and Approach / 3 Entrance / 4 Circulation / 5 Structure / 6 Symmetry/Asymmetry / 7 Balance / 8 Massing / 9 Order/Parti/Hierarchy / 10 Axis / 11
Geometry / 12 Alignments / 13 Datum / 14 Plan to Section / 15 Repetitive to Unique / 16
Volume / 17 Proportion/ Regulating Lines / 18 Layering / 19 Public and Private / 20 Sacred/ Profane / 21 Emphasis/Anomaly / 22 Transformation / 23 Contrast / 24 Transparency / 25
Base/Middle/Top / 26 Unit to whole / 27 Materiality/Color/Texture / 28 Program Organization / 29 Composition and Hierarchy 3/ 0 Audience Relationship/Position / 31 Natural Lighting / 32 Community and Cultural Context

As the Quakers were merchants and centrally located within the community, they often rented the grounds that they owned adjacent to the Meeting House to other businesses or as homes for people in the area
Residential area developed by the Quakers around 1705, used a grid system with numbers and streets named after trees
Strong connection to Newport and its different regions/neighborhoods

Great Common Civic and commercial heart of downtown Newport
Queen Anne’s Square Extension of the Great Common, was renamed Washington Square after the American Revolution



Structure
Post and beam timber framing structure for each of the three units


Entry


Volume with Voids
Meeting Room as one volume with openings in the facades according to the activities and needs of the meeting inside

Orientation and Natural Light
Building angled towards the Northwest, allowing for sunlight to enter the building in multiple directions throughout the day




The connection and site lines of the visitors to the open meeting rooms is seen in the spatial organization of the building and location of the balconies and pews


Openings in each facade align with the program and organization of the meeting rooms inside

Proportions and Repetition of Geometry
The pitch of the roof and awnings are the same angle, and each of the six different windows form proportional rectangles based on the standard window pane sizes used in the building
Working in teams of two, propose an addition and/or modification to one of the 7 historic sacred spaces listed below that studio members have previously documented and diagrammed. You are requested to add a ground level room, upper-level room, and any related architectural and landscape elements that are part of your conception. Provide documentation through elevation and plan drawings. You may choose to provide additional details that clarify the relationship between the historic host building and your proposed intervention.
FOLLOWED BY 1 LONG DURATION PROJECT AT 4 SITES
Structure
Current Circulation
Proposed Circulation

Proportion (Front Elevation)
Proportion (Plan)
Proportion (Side Elevation)
Assignment 3: Sacred Space; Adaptation and Addition
ARCH.517 Collaborative Revitalization Studio
and Trinity Kendrick
The southwest elevation is thirteen bays across, and is made up of three sections, all the same white clapboard siding and brown shingle roof: the original 1699 central section made up of five bays, the 1729 extension to the northwest (which is of a slightly smaller volume and three bays across), and the 1807 extension to the southeast (which is of roughly the same volume as the original and is also five bays). The Meeting House reflects the Quaker beliefs of the people who built it, with its simple, minimally ornamented design. It is a very practical and sparse building, with its main architectural features being its small 16:16 sash windows, triangular pediment over the doorways, pitched gabled roof, post and beam timber framing, white clapboard siding and green doors. Its simplicity in itself is its main character defining feature, representing the Quaker plain style of living and aversion to “distracting” architectural ornamentation.
Triangular Pediment



Our design for the Welcome Center aims to create an improved circulation for the Great Friends Meeting House. Currently when someone parks in the lot on the northeast elevation, they must walk around to either the northwest or southeast side to enter the building. With this addition, the entrance would be on the same side as the parking.
We chose to locate the center on the northeast side as well so it would not stand out or be obstructive to the sides of the building most visible from the street. By locating it here, the addition will not affect the linearity of the main facade. We also chose to connect the addition to the original by way of a glass walkway, so as to create the least damage possible to the historic fabric and avoid having to remove any windows. Besides minimizing the size of the parking lot and adding a walkway to the southeast elevation, the landscape remains relatively unchanged.
The addition itself takes subtle visual cues from the original building; the cladding is similar in style and color to the wooden clapboards, but is differentiated by a slightly different color and vertical orientation. The roof is oriented opposite to create a cross-gable effect. The front/northeast side of the addition is glazed and the geometry mimics the triangular pediments of the historic facade. It also takes cues from the simplicity and austerity of the original building with its minimal openings. While the size and massing is similar to the northwest extension, the addition is differentiated by its modern design, perpendicular orientation, glass connector and materiality.











March 1-April 12
To understand process of documenting existing conditions and character defining features for historic sites.
To recognize and respond to complex conditions of history, site and context.
To use historical research, analysis and diagramming in concert with architectural design tools.
To facilitate the ability to coordinate work for production by a team.
Working in teams, create a comprehensive reuse proposal for one of several historic sacred spaces. Over the course of the project, the team will produce and compile all the necessary information included in a typical application for a Certificate of Appropriateness to the pertinent local historical commission.

271 Manton Ave
Providence, RI
ARCH.517 - March 22nd, 2024

Earliest available records reveal that Olneyville began as a homestead farm owned by Christopher Olney in the late 18th century. Olney operated two small-scale mills powered by the Woonasquatucket River, foreshadowing laterdevelopment.19thcenturyIndustrializationandwaves of Irish immigrants during 1840’s famine brought on the presentlandscapeof Large factory complexes and worker housing. In the 1950s, an expressway isolated the neighborhood from West-Side Providence. Riverside Park has replacedbygonefactories.





Anarrowlotinadenselybuiltneighborhood offered space for a long, narrow church. The vacant northeast section(below) was privatelyownedduringoriginalconstruction, but has since become part of the total property. Thesiteisborderedbystreetsand closelypackedmulti-unithousing.




William Walker and Sons designed the first incarnationofthechurch,builtin 1883. Itwas entirely wood wood construction and vaguely Gothic in style and massing, though the architect of its later renovation described it as “notbelongingtoanyoftherecognizedstyles” and “erected during an unfortunate period of American architecture,” though also considered the “venerable edifice,” to be worthyofimprovements.
The original building (red outline) still determinestheoverallmassingatpresent,with theexceptionofrearadditions (greenoutline). The facade, piano nobile, and asymmetrical tower continue to define the church. Two internal colonnades separating aisles from nave support the roof, and are reflected in inter-fenestralpilastersonsideelevations.




Wrapped in Renaissance
CatholicChurchesweretypicallydesignedaccording the architectural heritage of their parish. Irish immigration yielded to Italian; in 1930, Ambrose J. Murphy was charged with improving St Teresa’s circulation and fire-safety. He began renovations so that“Theentirechurchwillbebroughtuptothebest traditions of Catholic Art.” The Italian renaissance restyling is expressed through superficial detail over extant forms, and reflects a the change in local Catholic taste toward classical Italian forms circa






The present church is defined by its common-bond brick veneer, 1930s slate roof,andliberaluseofcast-stoneinboth details and as cladding for the foundation. The flat, likely sealed brick veneer is least expressive of the building's character. The slate roof is rarelyvisiblebutingoodrepair.Thecast stone, however, is the essential defining featureofthechurch:itsinnateplasticity allowed for the intricate details of composite capitals at portico columns andpilastersonallbuttherearelevation.
Thiscaststoneappearstohavebeena deliberate facsimile of granite; the juxtaposition of the actual granite cornerstone to its surroundings(red outline) shows it to be an uncanny imitation,thoughhardlyindetectable.




Windows and doors were once thoughtfully designed in stained glass and bronze. At present, they are all broken, boarded up, or hastily sealed in plastic sheeting. Nonetheless, the housing of these openings is maintained. The dromers are a particular and impractical oddity,butthesimplearchandkeystoneframes of maine-elevation windows offer a canvas for inventive design. The facade’s rosette window offers the same amplified. Other small novelty windows appear, like a miniature rosette in a northwestgable(redoutline).




TheInteriorofthechurchisdefinedbyits1930s renovation. The vestibule harbors a chir gallery above, and is separated from the nave by an “ornamental screen.” Ten corinthian columns and two pilasters are decorated in the imposts above with symbology of the 12 apostles, and support a plaster barrel-vaulted internal ceiling interspersed with clerestory windows dimly lit through external dormers. The structure of the ceiling nonetheless becomes a defining feature andaplatformofreimagination.
Brackets connect each column to flat aisle ceilings, which are wrapped into clever historicist – if not quite historical – allusions to renaissance sculptural decoration. These flat ceilingsdrawfromthethearchedvaulttocreate theimpressionofancolonnadedarcade.






The church edifice was deconsecrated in 2009 due to the prohibitivecostofrepairs. It’smembers,however,continuedto see and use it as a center of connection. The current community, predominantly hispanic and a harbor for undocumented immigrants, is active and organized to advocate for rights and fair improvements. Olneyville has seen some altruistic investment in new housing on abandoned lots, a food pantry adjacent to the defunct church, and a renovated public library. Anyproposeddesignmustconsidertheseinhabitants.




The extant church edifice is zone as R-3 in alignmentwithitssurroundingarea,whiletherear northeast lot is zoned as C-2. The distinctions between these zones are mostly immaterial for our gestationally proposed program, but both are constrainedtoa40ftheightlimit.
Olneyville is currently Providence’s poorest neighborhood according to US Census data, and is a USDA Low Income, Low Access Tract. Car ownership sits at ca. 40%, and indicates the importance of local, walkable access to spaces within this community.. Despite efforts to add housing units, the area still suffers from a relative lackofnewconstruction.



The present site is not listed in the National Register of Historic Places nor as part of an encompassing district, but our Proposal seeks to recognize its historic and current cultural significance. The church and its adjacent vacant lot will become a public community gathering and recreation facility, an activity center for children and students of the William D’Abate Elementary school, and a community gardeningoasis.
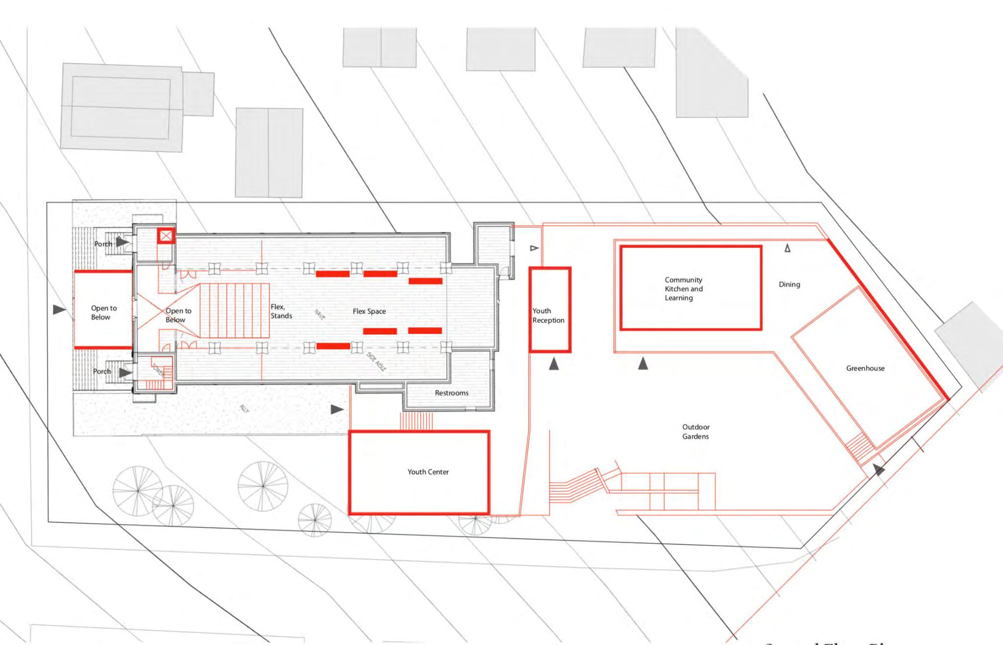
Until recently, Olneyville residents used the church as a space for organizing collective action and assistance for its substantial immigrant population, and the building reflects the neighborhood’s long-standing association with local and national immigration patterns over time. The current nave will become a gathering place for continued activities in the same spirit, flexible and adaptable for gatherings, public speaking, civic meetings, celebrations, and more mundane recreational activities. The aisles will support the more publichallasglass-partitionedenclosures,offeringspacefor quiet contemplation ona day-to-day basis. Access will resume through the present maine entrance of the front facade, in addition to a rear doors flanking a platform stage in lieu of the altar and leading to a central Information and public-facing,centraladministrativebuilding
The Information center will connect to the present church by a glass enclosure wrapping around its east and south elevations. Thisenclosurewillinspireafeelingof“campus,” connecting also to a new addition housing youth activity spaces. It will terminate at a bicycle rack along the south elevation of the church. The lower floor of the addition is contiguously connected to the existing basement, which will house a youth computer lab and related office space. The youth center’s main entry will be downard flight of steps inset at the center of the existing front steps at the present facade.
The community garden will consist of raised beds and seating areas, and will be adaptable for changeable layouts and a mixture of vegetable and ornamental horticulture as the community sees fit. The Greenhouse will follow this model for indoor growing. Equipment storage will be provided for shared and personal items for both facilities. The greenhouse complex will contain a kitchen designed for community use, and an adjacent dining area within the transparentgreenhouseenclosure.

McGowan, Lewis and Daniel Brown. Images of America: Providence. (2006.) p. 61
National Register Nomination
https://preservation.ri.gov/sites/g/files/xkgbur406/files/2022-05/prov_mps_roman-catholic-church-complexes.pdf
Olneyville Expressway
https://bridges.rwu.edu/access/content/group/468086c2-9b04-4bf6-a5e2-fb54d2f0c9c5/07_saint%20teresa_s%20additional%20resour ces/The_Olneyville_Expressway_1949.pdf
Providence Preservation Soicety https://www.rihs.org/mssinv/MSS1110.htm#scopecontent
PPS https://guide.ppsri.org/property/st-teresa-of-avila-church#:~:text=The%20red%20brick%20St.,due%20to%20a%20
RIHPC https://preservation.ri.gov/sites/g/files/xkgbur406/files/pdfs_zips_downloads/survey_pdfs/prov_westside.pdf
The Public’s Radio, Mosaic https://explore.thepublicsradio.org/stories/juan-garcia-part-ii-the-birth-of-an-organizer/
USDA https://www.policymap.com/newmaps#/

271 Manton Ave
Providence, RI

Austin Jarvis - Ryan DeSanctis - John Rutecki
ARCH.517 - March 22nd, 2024









ABOVE: NYC Community Gardens



BELOW: Edinburgh Botanical Garden









Scaled to page

Programmatic Breakdown
Community Center
- PublicSpace -Library -FlexSpaces -OutdoorGathering
-YouthSpace -ComputerLab -ActivityRooms -SeparateEntry
-Mixed -Greenhouse -AdjustableGathering -Plaza -Kitchen -CommunityRooms
Size -Existing -7300SF -Addition -5500SF -Demolished -120SF
Spaces - Basement -YouthCollection -YouthLabs -ADAEntry
-MainFloor -FlexibleLibrary -Meeting/ReadingSpaces -InformationCenter -Greenhouse -Garden -Kitchen -Addition -Offices -Workshop/Classrooms -Meeting
Mass/Proportio n/Layers



Scaled to page


Scaled to page


Scaled to page


Scaled to page


Scaled to page

Scaled to page

Scaled to page


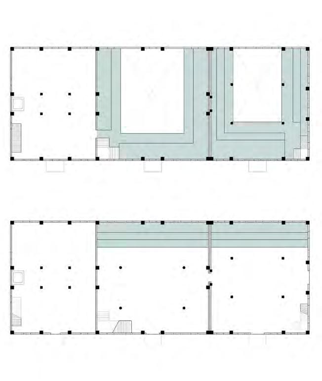
After comments from Tuesdays crit, we are seeking to minimize the program to a singular youth center. Our addition strategy will be less destructive of the stairs yet still give appropriate access beyond ADA standards. As of proposals for the following Friday, as shown on the next pages, we consolidated the village like additions to the back to a more unified form. Service spaces were used below rather than the youth center so children can have adequate light. The youth center is now positioned behind the church, allowing space between the new and the old to show its expression as a different addition rather then part of the church. It is parallel to a protected outdoor area for children. Further on the site remains the greenhouse with landscaped gardens. As stated moving forward, the intention is for the site to be more unified as a space for children rather than mixing generations. Additions to the rear follow the line of the balustrade, continuing a language of the mass. More is to come to unite the new and the old on the site.
Scaled to page


Scaled to page








Building Development @ 1/8” = 1’-0”
Exterior Elevations (include relevant/allowable heights, relation to adjacent buildings/context)
Section(s)--Interior major space—current or former sacred space
Diagrams and descriptions as appropriate to explain building elevation and interior major space, materials and detail
Renderings +/- Model(s)
Site views
Interior rendering +/- model—beginnings, to be developed later in Presentation/Exhibition stage
Detail mode(s)l if/where appropriate to your vision. Scale to be explored
Selected Detail(s) @ 1” or 1-1/2”- 1’-0” (TBD by project)























for the
Little Compton Laneway Overlay District
2.1 Historic Images of the Town Commons
3. Site Design Guidelines
3.1 Laneway Patterns
3.2 Building Placement & Orientation
3.3 Landscaping & Lots
4. Building Scale Guidelines 8-9
4.1 Mass & Scale
4.2 Height
4.3 Width
4.4 Solid to Void Ratio
5.1 Form & Visual Emphasis
5.2 Proportion & Emphasis of Facade Elements
5.3 Rhythm & Spacing of Windows & Doors Building Materials & Details
5.4 Materials
5.5 Windows
5.6 Architectural Elements & Details 7. Approved Building Typologies
8. Little Compton Laneway Overlay District Zoning Laws 9. Conclusion

The Little Compton Laneway Overlay District was specially created to create opportunities for new development in and around the Town Common that is sensitive to the existing rural character of the town. The Overlay District encompasses both the existing Little Compton Common Historic District (recognized on the National Register of Historic Places), as well as the Little Compton Business (B) District, which includes light retail and office, government and institutional, and recreational uses. Little Compton, along with the rest of Rhode Island, is currently experiencing a housing crisis. In particular, the town has identified a need for affordable housing; Little Compton is the municipality with the smallest percentage of affordable housing in the state, and most of the town is not zoned for multifamily or mixed-use buildings. This creates a unique opportunity in Little Compton to increase density while retaining the integrity of the town.
The Overlay District (zoning is laid out on page 16) will allow for a variety of new residential and commercial buildings, both single and multi family, as well as the development of new laneways that mimic the character of the existing historic ones. The guidelines outlined in this document are meant to preserve the rural, historic character of Little Compton while still encouraging the development of new affordable housing units. Because the Overlay District does include the National Register Historic District, the guidelines encourage designs that are compatible with the existing historic fabric, while still being distinguishable as per the established National Register guidelines (i.e. should not try and create a false sense of historical development). New construction should not obstruct historic viewsheds, such as to the fields around the Commons, & designs should consider the architectural character of the larger neighborhood. While direct imitation of historic styles is discouraged, new buildings should reflect the essential character defining features of the district and setting identified in this document. The guidelines outlined here have inspired five basic typologies (see pages 13-15), some with subtypes that have direct local precedents can be referenced and altered as needed.
The land that is now known as Little Compton was originally inhabitated by the Sakonnet Indians. The written narrative of Little Compton began in the 1670s when Benjamin Church, an original proprieter, arrived to begin building on land he had purchased in 1673 from Awashonks, the Sakonnet tribe’s female sachem. By 1674, tribal tensions & legal challengings in the Plymouth Court would lead to the Sakonnet’s losing control of their ancestral territory. Land proprietors begin to draw lots for shares of properties, all hoping for both equal access to the riverfront and rich farmland. The map (right) shows an early vision of Little Compton’s land divison. The beginning of King Philip’s War in June 1675 would delay development by colonists, but not for long. In 1677, the original


1673 map of Little Compton showing divisions by the original town proprieters “neglect of duty,” but it would be another 15 years before a full-time minister was hired.
proprieters met to divide up lots in the village, and also voted to select a site for the town center (soon called the Commons) which would have room for a “burying ground” and “meeting house.” The town’s name was not chosen until 1682, and in 1683, the town officers were elected at the urging of Plymouth Court directives. However, Little Compton was slow to organize a formal church community, which was at odds with Plymouth’s Protestant views and would lead to future conflict: in 1686, Plymouth Court fined the town for their
By 1693, the homesteading population in Little Compton was around 600 individuals. Little Compton, along with Tiverton, had been annexed by Massachusetts Bristol County in 1691, whose more authoritarian rule was at odds with the settlers independent minded, loose approach to government. Early on, Little Compton residents felt that they should be a part of the more openminded and religiously inclusive Rhode Island. In 1692 Little Compton Representatives, resenting colony taxation, pressed the court in Boston to redraw its boundaries and be included in Rhode Island. This attempted secession - Almy’s Tax Revolt - failed, and Little Compton & Tiverton would remain under the dominion of the Massachusetts Bay Colony until 1746 when they were added to the jurisdiction of Rhode Island.
Throughout this, Little Compton was slowly growing, and new buildings began to dot the landscape. In 1694 the first structure in the Commons, the Meeting House, is built on the northeast corner.
It acted as a house of worship on Sundays before the construction of a dedicated church. Meeting House Lane was also constructed, which opened the way for business to be transacted in one central place. The first gravestones begin to appear in the Commons burial ground as well. The early houses of Little Compton were simple, wood-frame structures with stone chimneys and foundations, and few survive today. The Betty Alden House (below), located across from the Commons and built c. 1682, does remain however, and was the home of original town proprieter William and Elizabeth Pabodie’s son.

Betty Alden House, b. 1682
The town continued to grow modestly during the 18th century; livestock drove the rural economy, and this brought prosperity to the town. The First Congregational Church (not the version that stands in the Commons today) was built in 1723, nearly 20 years after the founding of the congregation in 1704. In 1746 when Little Compton becomes a part of Rhode Island, the census shows a population of 1,004 English colonists, 62 Black people and 86 Native Americans. As the Revolutionary War rages, many Little Compton citizens enlist. The war devastates the town’s economy and in 1783 a town meeting is called to as for more “support for the poore.” The town struggles to recover in the following decades, exacerbated first by the War of 1812 and then The Great Gale of 1815, which once again devastates the town. The old Friends Meeting House, built in 1700
“By the early 1860s, the Commons was home to the Congregational and Methodist Churches, the post office, the school, the Town House, two cemeteries, three dry goods stores, two smithies, a shoe shop, and nearly twenty residences. In the late nineteenth and early twentieth centuries, the Commons saw the addition of a new Town Hall (1880), the Grange Hall (1902), the Brownell Library (1929), and the Josephine Wilbour School (1929), and several new houses.”
Historic and Architectural Resources of Little Compton, RI (p.16 )
by Quaker settlers, is completely destroyed, but the rebuilt 1815 version still stands today. In 1832 to accomodate a larger population, the current version of the First Congregation Church is built. The area in and around the Commons begins to densify comparitively: C. R. Wilbur’s General Merchandise and the Methodist Church (no longer standing) are both built in 1840 (below). A number of civic buildings

Town Commons, including Methodist Episcopal Church, c. 1905-15 are constructed in the second half of the 19th century, including the Number 8 School (1845) and Town Hall (1880). The Union Cemetery (directly across the street from the Commons Burial Ground) is established in 1850. Population growth declined
in the nineteenth century aside from an influx of Portuguese immigrants. There were a few notable buildings constructed arount the Commons in the first half of the 20th century, such as the Grange Hall in 1902, and the Brownell Library and Josephine Wilbur School in 1929. However the density of buildings actually appears to have declined overall when comparing early images to how the Commons appears now. The Commons Meeting House was destroyed by fire in 1917, and the Methodist Episcopal Church was damaged in the 1944 hurricane and torn down.
Little Compton began as a farming community, and much of this history can still be seen in the landscape today. For nearly two hundred years, from the beginning of the eighteenth century until the end of the nineteenth, the town’s agricultural production and its population changed remarkably little in comparison with the rest of the state and the region. Due to the lack of dramatic change in the town, preservation of its historic buildings and agricultural traditions has been significant.
courtesty of Little Compton Historical Society
(right) Black and white photographic postcard. Photograph of the east end of the Commons in Little Compton RI. Buildings include houses and stores. A horse and carriage is parked in front of Wilbur's Store. A large American flag is flying from one of the buildings. Elm trees line the road. (1905-15)

17.
18.
19.
12.
13.
14.
15.
20.
21.
22.
23.
24.
25. American Legion-Post originally-school-house, 1850
26. Town Hall, 1880
27. Cottage, XX Century
28. Cottage, XX Century.


Black and white photographic postcard. Photograph looking South from Little Compton RI Commons. On the left part of the postcard are carriage sheds for the Congregational Church and then a general store. There are elm trees, stonewalls and a horse and wagon. On the right is a house with a wooden fence in front. (1905-15)


Black and white photomechanical postcard. Photograph of the north end of the Commons in Little Compton RI. Postcard shows parts of several building including the town hall, grange hall, Brownell House, Methodist Church and church sheds. (which were torn down in the 1940s) 1919 postmark.
Black and white photographic postcard. Photograph looking North from Little Compton RI Commons from a location at the beginning of South of the Commons road. At the left is the Congregational Church, the Town House,Large barn with a cupola and weathervane, stonewalls and a telephone pole. Behind the barn is a building was once a general store of Bliss & Cowen. Also, Dr. Cowen had and office in the building. Later the building was moved to Grange Avenue. On the right are elm trees and part of a building. On the back of this postcard is written "the Meeting House on the left is the house of Henry Brown adjoining his store a Post Office, with old town hall upstairs over the store". (c. 1905-15)

Black and white photographic postcard. Looking West from Little Compton RI Commons. Congregational Church on right with stonewalls, large elm trees and cemetery. Methodist Episcopal Church in the background. One horse and buggy on the road. (1905-15)
The existing plan of primary & secondary (laneway) roads is essential to historic character and should be retained. New laneways should follow the established rural pattern. One of Little Compton’s most important historic character defining features is its landscape, including its narrow rural laneways. Early maps of the town’s land division by its proprieters show some of the earliest impacts on the current landscape: all of the proprietors hoped for equal access to the riverfront and rich farmland, leading the the narrow strips of property shown. While ownership has changed over the years, the roads in Little Compton largely retain their vertical and horizontal patterns, with small secondary laneways branching off of main roads leading to private property. This rural, organic approach to planning is markedly different than a grid or radial layout that may be seen in a city, and it is imperative that it be preserved even with further development. These laneways,


along with landscaping, also act as a tool to “hide” new developments, as they can’t be seen from the Common and won’t block scenic viewsheds, but are still providing much needed density. This approach is nothing new, and has always been a design feature of the town common. Laneways also tend to be wider at the entrance and then gradually narrow in a funnel-like shape. Permeable gravel paving is preferred, as it retains the unpaved rural feel of existing laneways & allows for adequate drainage. Garages are discouraged.
When designing a new building, the historic settlement patterns of the district and context should be respected.
• A new building should be situated on its site in a manner similar to the historic buildings in the area.
• This includes consideration of building setbacks, orientation and open space (setbacks may vary depending on the lot and personal
preference, but should adhere with zoning).
• The front and the entrance of a primary structure should orient to the street or laneway.
• A new building should be oriented parallel to the lot lines.
In the neighborhood around the Commons, there is a decent amount of variation when it comes to building placement depending on lot size and location. However, lots tend to be relatively large which allows for both a generous front and back yard and sizeable setback (this is less true for the civic and commercial buildings immediately around the Commons, which are set closer to the street). This variation in building placement creates an organic feeling effect, adding to the rural character of the district. This feeling should be preserved when possible, as opposed to equally paced and located developments, which feels markedly more suburban or urban.

The existing agricultural landscape of Little Compton is, in itself, a character defining feature and should be preserved. It is important that historic viewsheds to surrounding fields be retained.

• Well-designed landscaped areas should be maximized and balanced throughout the site.

• Native trees and shrub plantings should be grouped together to create strong accent points within the site, but should not overtake the expanse of a simple, wellmaintained front yard. A large tree in the front yard for privacy is a common feature.
“...the entire Common area is one of picturesque quietude, dominated by the bulk and spire of the Congregational Church and the grey ranks of vertical old stone markers in the adjacent burying-ground. The bordering streets, with their various but not domineering structures, all fortunately well maintained, form a visually interesting perimeter to the Common and are very important parts of the Historic District’s totality.”
• Dense landscaping can help screen unattractive views and features such as storage areas, trash enclosures, transformers, generators and other similar elements. (these features should also be located near the back of the site if possible)
• Stone walls to separate properties and separate the yard from the laneway are encouraged.
Buildings should be compatible in scale, mass, and form with adjacent structures and the pattern of the surrounding area (assuming the adjacent structures are generally in compliance with these design guidelines). The following are some general patterns in Little Compton residential buildings that should be referenced
• Most residential buildings are two units deep, (with some being one deep)
• Most homes are 3-5 bays wide
The height of a new building should not overwhelm historic structures in the immediate setting, and should fall within the range of height defined by historic structures in the district. Similarities in heights among prominent building features, such as porches and cornices, are equally important.
• Buildings should not be over over 2.5 stories, and buildings under 1.5 stories are discouraged
• Buildings should be no more than 26 ft tall, including raised foundation and roof pitch (but not chimneys)

A new building should appear similar in width to that established by nearby historic buildings.
• Buildings should not be more than 28 ft wide on one side and 48 ft on the other (see Approved Typologies section)
The ratio of wall-to-window (solid to void) should be similar to that found in historic structures in the district.
• Large surfaces of glass should not be used, rather, divide large glass surfaces into smaller windows (see Windows section)
• Window and door openings on the front facade should occupy a total of no less than 30% and no more than 80% of the gross sq. footage of that facade.

General Architectural Guidelines adapted from Portsmouth, RI historic guidelines
1. New architectural design should be compatible with the character of the neighboring area. Design compatibility includes complementary building style, form, size, color and materials.
2. Building architecture should be designed to provide an attractive appearance. All architectural details should be related to an overall architectural design approach.
3. Historic structures of merit should be preserved and maintained. If the development requires relocation of an historic building, every effort should be made to preserve the building.
4. Diversity of architectural design is encouraged. Highly stylized buildings that are characteristic of a particular historic period other than their own are discouraged.
5. Loud or gaudy colors, sharply contrasting colors and highly reflective materials are not compatible with the character of Little Compton and should be avoided.
6. Efforts to coordinate the actual and apparent height of adjacent structures that are architecturally compatible with Little Compton are encouraged,

particularly where buildings are located close to one another.
7. Multiple buildings on the same site should be designed to create a cohesive visual relationship. Out buildings should be designed to complement the primary building on the site in style and material expression.
8. Building siting should take best advantage of solar orientation, climatic and other environmental conditions, should encourage safety and privacy of adjacent outdoor spaces, and should reduce the impact of noise upon (or from) the project.

A similarity of building forms contributes to a sense of visual continuity and identity. In order to maintain this sense, new buildings should have basic roof and building forms that are similar to those seen traditionally.
• Building forms should be similar to those seen traditionally, which are typically simple rectangular solids (the exceptions being ells or additions added later)
• Roof pitch and form should be designed to relate to the context (see Roof Line and Materials)
5.2 Proportion & Emphasis of Facade Elements
Overall facade proportions should be designed to be similar to those of historic buildings in the neighborhood.
• The width is always less than than height for residential buldings in Little Compton, which helps maintain a human scale.
• Porches and porticos can provide an alternative and balancing visual emphasis.
The pattern and proportions of window and door openings should fall within the range associated with historic buildings in the area.
• Residential buildings in Little Compton tend to have a symmetrical bay pattern as a majority are center hall plan (however, side hall plans are also common).

The following building materials are recommended to create a long-lasting building design that is consistent with the character of Little Compton:
1. Natural wood clapboard siding and cementbased artificial wood siding, such as hardie board, may be used as an alternative. Neutral paint colors (light or dark gray, white or beige, light blue or, alternatively, natural wood) are recommended.
2. Stone is discouraged for building facades as it is not a part of Little Compton’s character defining features for residential buildings; however, fieldstone is recommended as the material for property diving stone walls.
3. Glass.
4. Synthetic materials such as vinyl, plastic, or aluminum siding are not appropriate.

5.5
• Sloped roofs are highly preferred. Gabled are the ideal form,and may be either front or side gable, but should consider the context of the surrounding buildings. They should have a slope between 10/12 (39.81°) and 12/12 (45°).
• Gambrel and hipped roofs are also appropriate provided that the vertical rise is appropriate for the building size (see examples in Approved Typologies section).
• If dormers are employed, they should be of the shed type. The roof pitch of the dormer must be sympathetic to the style of the existing building and set back substantially from eaves to maintain existing roof lines.
• Standing seam metal roofing is preferred for lower pitch roofing, and cedar shingles are encouraged elsewhere. Asphalt shingles of a high quality that will last at least 50 years may be used as an alternative. Roofing materials that imitate another material are generally discouraged.
• Flat or steeply pitched roofs (over 12/12 or 45°) or are strongly discouraged.
• Dark and neutral colors such as gray or standard textures are encouraged.

Windows and doors should be framed in materials that appear similar in scale, proportion and character to those used traditionally in the neighborhood.
• Windows with vertical emphasis are encouraged, aside for side lights alongside doors
• Double-hung windows (6:6 especially) with “true” divided lights, traditional reveal depth & trim, and painted wood are encouraged

Building components should reflect the size, depth and shape of those found historically along the street: Contemporary interpretations of traditional details are encouraged. There are a mixture of styles present in Little Compton, but Greek Revival detailing tends to dominate. While buildings from the early to mid 19th century tend more towards Greek Revival, most of the details added during the late-19th century are Victorian Gothic. Other building styles include Italianate (Alfred Bodington House), Georgian Revival (Brownell Library), Victorian, Cape Cod cottages (Brownell House) and nondescript vernacular styles. The architecture is mostly very simplistic, reflecting the Quaker influence post-1700.
Some common architectural details include:
• Exterior cornic mouldings and cornice returns
• Pedimented entryways or hooded doorways
• Shutters
• Sidelights and transom windows
• Front porches
• Front steps
However, the architectural detailing in Little Compton tends towards spare, and excess detailing is discouraged. Architectural details that are not commonly found on residential buildings and should be avoided are columns, pilasters, full-height entry porches, paired chimneys, flat or high pitched roofs, brick or stone facades, brightly colored cladding or shed dormers.







Approved lot setbacks for all typologies - based on Little Compton Business District zoning
Presentation to a panel of visiting critics who are faculty members, practicing professionals, and leaders of SNEC Foundation.










• Simple & vernacular Greek Revival and Victorian, with little ornament for their style and time period.
• Clapboard, weathered shingle, and shades of white, blue, brown and gray are very common
• Buildings tend to be no taller than 2.5 stories; the tall steeple of the Congregational Church dominates the landscape.
• The landscape is rural, with relatively flat meadows and field crops. Abundant stone walls break up these large fields.









Properties filled in with blue are historic, and part of the National Register Historic District of the Little Compton Commons. The light blue overlay encompasses the Business (B) District of Little Compton, which allows for commercial and multifamily residential uses.





























Design based on housing characteristics of Little Compton Different house types for variations in amount of density per property


Options for individual house organizations for density variation
Characteristics for each house can change based on the proposed Guidelines

























































Our Proposal seeks to recognize historic and cultural signifcance of this deconsecrated Roman Catholic Church, and to respond to both physical and social circumstances of its surroundings. Te church and its adjacent vacant lot will become an activity center for children and students of William D’Abate Elementary School, Spaces are designed for learning, play, and technology access, while maintaining fexibility for gathering and activity. A greenhouse will supplement Olneyville’s youth with fresh, nutritious food and allow children to participate in its cultivation.























































