Twelvestone Homes - Fairgrounds Semis & Detached Homes Brochure

Page 1

Family-Sized Semi-Detached & Detached Homes

Luxury

Your is Here Place Happy

An Exclusive Limited Release of Luxury Detached and Semi Detached Homes in Sutton

There’s something enchanting about living just minutes from the lake. The waves lapping at the shore, the soft sand under your feet, the sun on your face. Welcome to Sutton, a picture postcard community on the shores of Lake Simcoe. Rich in small town charm, a place where life moves to a slower pace. Where lush green space gently transitions to blue waters. Friendly townsfolk stop and swap heartwarming stories. Family amenities are located close by for you to live an active, connected life. In this gorgeous setting, Twelve Stone Group invites you to buy in their luxury community, The Fairgrounds in Sutton. Less than an hour from Toronto, yet a world apart in life, location and leisure. Welcome home.

Sutton 5 minutes 25 minutes 40 minutes 60 minutes 60 minutes 60 minutes
Well connected
Barrie Brampton Pearson International Airport Lake Simcoe Newmarket Markham

Sutton Why Move to

With its lakeside location and thriving local economy, Sutton is among the fastest growing communities in York Region

Perfect community

Sutton is a community in Georgina, one of the largest municipalities in York Region, with a population of 50,000. Big enough to offer all amenities, yet small enough to be intimate and charming.

Great quality of life

Sutton’s proximity to major urban centres, relatively affordable real estate and quality of life offer many competitive advantages. It is recognized as a place with a strong sense of community.

Country meets city

Sutton is the perfect fusion of cottage country and urban convenience. With its lakeside location, year-round recreation and a thriving local economy, Sutton is a desired location to live, work and play.

Laid back lifestyle

The joys of living close to nature are evident everywhere you look in Sutton, boat trailers and canoe racks are visible in many driveways. The pace is slower than in nearby Newmarket and Barrie.

Diverse amenities

Sutton has three elementary schools, easy access to Southlake Regional Health Centre and many parks including Kin Park, Wyndham Park, Sutton Cenotaph Park and Franklin Beach Park

connected
60 minutes Toronto
COOKS BAY LAKE SIMCOE Briars Golf Club Lake House Golf Course Lyndhurst Golf Course Shawneeki Golf Club Silver Lakes Golf & Country Club National Pines Golf Club Big Cedar Golf Club Harbour View Golf & Country Club Ravenshoe Trailhead Bird Clearing Sibbald Point Provincial Park Willow Beach Conservation Area Zephyr Creek Wetlands Provincial Neezh Meegwunun Family Campground Holland Landing Prairie Provincial Nature Reserve FisHaven.com Recreational Park Glenwood Beach Park Adeline Park Scanlon Creek Conservation Area North Gwillimbury Park Innisfil Beach Park Bee Happy Family Campground Big Bay Point Tyndale Park McRae Beach Sunkist Beach Franklin Beach Sunset Beach Brighton Beach Balfour Beach Innisfil Beach Johnson’s Beach Centennial Beach East Point Marina Aszhaawe Simcoe Ferry Landing Monto-Reno Marina Skydive Toronto Gateway Casinos Innisfill Gilford Hall Georgina Military Museum SV Country Events Belcroft Estate & Event Centre Georgina Ice Palace Stroud Innisfil Community Centre Arena Bob Fallis Sports Centre Walmart Supercentre Home Depot Foodland Keswick Marketplace No Frills Keswick Top Casino Blue Gaboo Stables Riding School Sandelwood Stables Riding School Deer Park Public School Innisfil Central Public School Killarney Beach Public School St. Thomas Aquinas Catholic Elementary School Keswick Public School W J Watson Public School Fairwood Public School Lake Simcoe Public School Prince of Peace Catholic Elementary School Our Lady of the Lake Catholic Academy Stephen Leacock Theatre HWY 4 0 4 48 79 18 32 32 12 34 1 4 4 54 45 77 11 8 65 67 65 3 8A 80 78 78 79 27 27 27 89 89 3 39 39 HWY 400 HWY 400 HWY 400 OLDHOMESTEADRD. BLACKRIVERRD. LAKEDR.E. WOODBINE AVE. KENNEDY RD. KENNEDY RD. McCOWAN RD. McCOWAN RD. CATERING RD. QUEENSVILLESIDEROAD LESLIE ST. 9THLINE 11THLINE 11THLINE 9THLINE 10 SIDEROAD 10 SIDEROAD MIDDLETOWN RD. YONGE ST. BIGBAYPOINTRD. MAPLEVIEWDR.E. VICTORIAST. MckayRd. MckayRd. 10THLINE 20TH SIDEROAD LAKESHORE DR. HURONIA RD. RIDGERD.W. COLLIERST. 5 & 6 SIDEROAD ESSARD. 25TH SIDEROAD GEORGINA ISLAND SNAKE ISLAND BARRIE GEORGINA The ROC Location An Ideal

With fi ne amenities like parks, schools, shops and more, Sutton offers everything your family desires

Off the beaten track, yet connected to everything, Sutton offers all the comfort, convenience and amenities your family desires. Laid back and charmingly pretty, Sutton is home to local shops, boutiques and quaint cafes that reflect the unique character of the community. The people are friendly and fun loving, as befi ts a great location that offers all kinds of recreational activities. For commuters, it’s a quick hop to Highway 404 or Highway 48. The lake is just 5 minutes to the north. Enjoy miles of trails and campgrounds at the sprawling Sibbald Point Provincial Park. Schools, community centres, arenas and parks keep your family active, healthy and engaged.

Pines of Georgina Golf Course Beaverton Golf Course Cedarhurst Golf Club Shades of Hope Wildlife Refuge Creek Wetlands Morning Glory Provincial Nature Reserve Holmes Point Park Thorah Park Cedar Beach Maple Beach East Point Marina Hess Equestrian Facility 79 21 48 32 31 1 23 23
SANFORDRD.
RAVENSHOERD. RD.

A Site Planned by

Lot 1 Lot 2 Lot 3 Lot
BLACK RIVER ROAD SCOTIA ROAD
5 Lot 4 Nature

The Site Plan for The Fairgrounds in Sutton is designed to bring you closer to nature

As the site plan shows, we have chosen to blend pristine nature into the design of our homes. All the lots are carefully sited so that no home is more than a few feet away from the wonders of the great outdoors. The community is just moments from all the amenities on Black Street yet sheltered by the bustle by lush greenery. Live in an idyllic location with nothing coming in between you and beautiful nature.

Richness Experience the of Life

Feel at home amidst the small town charm of Sutton in a signature community defi ned by quality and style.

The Fairgrounds in Sutton is an inspiring community designed for people like you who appreciate the fi ner things in life. Every home is detailed with quality fi nishes and expansive spaces, befi tting the lifestyle you deserve. Step out and enjoy nature at its most enchanting. Feel at home amidst the small town charm of Sutton, cultivate new friendships, acquire new experiences. After a busy day at work, unwind in a charming, laidback community and refresh your body, mind and spirit. You’re so ready for this. Welcome home to The Fairgrounds in Sutton.

3 BEDROOM 2.5 BATHROOM 1 CAR GARAGE 1,971 SQ. FT. THE MOSSINGTON
THE
DN DW GARAGE GARAGE GARAGE GARAGE 9' - 10" X 23' - 0" PWD PWDPWD PWD PORCH PORCH S F ISLAND 36X72 P FOYER LIVING 12' - 0" X 13' - 0" KITCHEN KITCHEN 12' - 0" X 11' - 5" DINING DININGDINING DINING 9' - 4" X 13' - 0" FIREPLACE UP LOUNGE 9' - 4" X 12' - 0" DN DW GARAGE GARAGE 9' - 10" X 23' - 0" PWD PWDPWD PORCH PORCH PORCH PORCH S F ISLAND 36X72 P FOYER FOYERFOYER FOYER LIVING 12' - 0" X 13' - 0" KITCHEN KITCHEN KITCHEN KITCHEN 12' - 0" X 11' - 5" DINING 9' - 4" X 13' - 0" FIREPLACE UP LOUNGE LOUNGE 9' - 4" X 12' - 0" DN DN A B FIRST FLOOR
MOSSINGTON

getting.

&

June 2023

porch only where required by O.B.C. All inside coffered ceilings and heights are approximate. All images and landscaping are artist’s concept only and not indicative of what purchaser is actually O. E.

3 BEDROOM 2.5 BATHROOM 1 CAR GARAGE BEDROOM 2 BEDROOM 2 2 2 11' - 2" X 11' - 0"
3 BEDROOM 3 BEDROOM BEDROOM 11' - 8" X 11' - 0" LNDRY. LNDRY. LINEN DN PRIMARY BEDROOM PRIMARY BEDROOM BEDROOM BEDROOM 15' - 0" X 13' - 6" PRIMARY ENS. PRIMARY ENS. ENS. ENS. 6' - 0" X 14' - 9" PRIMARY WIC. PRIMARY 11' - 2" X 5' - 5" LIN. LIN. SHARED BATH. BATH.BATH. BATH. 11' - 2" X 6' - 0" HALF Ht. WALL WIC. 3 WIC. 3WIC. 3 WIC. 4' - 8" X 6' - 7"
2 BEDROOM 2 BEDROOM BEDROOM 11' - 2" X 11' - 0"
3 BEDROOM 3 3 3 11' - 8" X 11' - 0"
LNDRY. LNDRY. LNDRY. LINEN DN
BEDROOM PRIMARY BEDROOM PRIMARY BEDROOM PRIMARY BEDROOM 15' - 0" X 13' - 6" PRIMARY ENS. PRIMARY ENS. ENS. ENS. 6' - 0" X 14' - 9"
WIC. PRIMARY WIC. PRIMARY PRIMARY 11' - 2" X 5' - 5" LIN. LIN. SHARED BATH. BATH.BATH. 11' - 2" X 6' - 0" HALF Ht. WALL RAISED CLG. WIC. 3 WIC. 3WIC. 3 3 4' - 8" X 6' - 7" RAISED CLG. RAISED CLG. RAISED CLG. 2ND FLOOR FLOOR PLAN
2ND FLOOR FLOOR PLAN BSECOND FLOOR
BEDROOM
BEDROOM
BEDROOM
LNDRY.
PRIMARY
PRIMARY
A
The floor plans and elevations shown are pre-construction plans and may be revised or improved as necessitated by architectural controls and the construction process. The measurements adhere
to the rules and regulations of the TARION Warranty Corporation’s official method for the calculation of floor area. Actual usable floor space may vary from the stated floor area. Railings on front E.
4 BEDROOM 3.5 BATHROOM 2 CAR GARAGE 2,544 SQ. FT.
THE JACKSON ELEV. B
ELEV. A
DINING GARAGE PWD KITCHEN GREAT ROOM DINETTE BREAKFAST BAR S GAS FIREPLACE UP P 17'-6" X 12'-8" 10'-4" X 12'-8" 10'-4" X 12'-6" 13'-0" X 12'-0" F DW PORCH 18'-6" X 19'-6" 1ST FLOOR PLAN DN 4 BEDROOM | 3.5 BATHROOM | 2-CAR GARAGE | OPEN CONCEPT |DETACHED | 2,544SF
THE JACKSON

3.5 BATHROOM 2 CAR GARAGE

SECOND FLOOR

getting.

&

E. June 2023

porch only where required by O.B.C. All inside coffered ceilings and heights are approximate. All images and landscaping are artist’s concept only and not indicative of what purchaser is actually O.

4 BEDROOM
The floor plans and elevations shown are pre-construction plans and may be revised or improved as necessitated by architectural controls and the construction process. The measurements adhere
to the rules and regulations of the TARION Warranty Corporation’s official method for the calculation of floor area. Actual usable floor space may vary from the stated floor area. Railings on front E.
BEDROOM 4
BEDROOM 3
LAUNDRY DN BEDROOM 2 MASTER BEDROOM ENSUITE W.I.C. T W D
11'-0" X 11'-10"
16'-6" (15'-2") X 18'-6" 11'-0" X 11'-6" 11'-0" X 11'-6" RAISED CEILING (ELEV. A)
4 BEDROOM 3.5 BATHROOM 3 CAR GARAGE 2,670 SQ. FT. THE
KEMPENFELT
2,670 SQ. FT. THE KEMPENFELT DINING PWD GREAT ROOM DINETTE BREAKFAST BAR KITCHEN UP S DN GAS FIREPLACE P 10'-4" X 12'-4" F DW GARAGE 27'-8" X 19'-6" 13'-0" X 11'-8" 17'-6" X 12'-10" 10'-4" X 12'-10" PORCH 1ST FLOOR PLAN 4 BEDROOM | 3.5 BATHROOM | 3-CAR GARAGE | OPEN CONCEPT |DETACHED |2,670SF

getting. E. & O.

E.

June 2023

porch only where required by O.B.C. All inside coffered ceilings and heights are approximate. All images and landscaping are artist’s concept only and not indicative of what purchaser is actually

to the rules and regulations of the TARION Warranty Corporation’s official method for the calculation of floor area. Actual usable floor space may vary from the stated floor area. Railings on front

The floor plans and elevations shown are pre-construction plans and may be revised or improved as necessitated by architectural controls and the construction process. The measurements adhere

SECOND FLOOR

4 BEDROOM 3.5 BATHROOM 3 CAR GARAGE
BEDROOM 4 BEDROOM 3 LAUNDRY BEDROOM 2 MASTER BEDROOM ENSUITE W.I.C. DN RAISED CEILING (ELEV. A) T W D 17'-10" X 13'-8" 11'-0" X 13'-4" 11'-0" X 13'-0" 11'-0" X 13'-0"

Finishes Features and

Exterior Finishes

• Elevations are principally all clay brick construction with brick arches, soldier coursing and colour coordinating mortar, as per plan.

• Architectural features such as raked masonry joints, decorative stone and precast as per front elevation.

• Self sealing asphalt roof shingles with a 25yr warranty from vendor’s predetermined colour schemes.

• Maintenance-free aluminum soffit fascia, eaves trough, and downspouts, as per elevation.

• Vinyl sliding patio doors with screen, as per plan.

• Low maintenance vinyl casement, sliders, or thermo-fixed glass windows throughout, as per plan. Muntin bars on front elevation. Colours are as per vendor’s predetermined colour schemes. Basement windows to be white vinyl sliders. Transom windows on main floor, as per plan.

• Screens on all operational windows.

• Premium sectional roll-up garage doors with decorative windows, as per plan.

• Professionally graded and sodded lot.

• Front entry to have poured or precast steps and slab walkways and steps as required.

• Poured reinforced concrete garage floor.

• Two exterior water taps, one in garage and one at rear/side of home.

• Exterior front door with brushed nickel package including grip set and dead bolt.

• Convenient direct access to home from garage where grading permits, as per plan. Landing & steps may be required.

• Upgraded black coach lamps at garage and front door and exterior light fixture at the rear door.

Interior Finishes & Features

• 9’ ceilings on main, 8’ ceilings on second floor.

• Main staircases in finished areas to be oak in natural finish and all mid-height landings to have prefinished oak strip flooring with natural finish. Secondary staircase to the basement to be paint grade stairs.

• Interior railings in natural finish oak to have upgraded 1 ¾” (approx.) spindles on all finished areas. Hallway railings to be installed on natural finish oak nosings, as per plan.

• Classique style interior doors.

• All trim and doors are painted white.

• Stippled ceilings with smooth borders on main and second floors (expect kitchen, laundry, and bathroom).

• Upgraded casing approximately 2 ¾” wide on all windows and doors and upgraded baseboards approximately 4 ¼” high.

• All interior door levers to be brushed nickel.

• All archways on main floor are trimmed, as per plan.

• Natural gas fireplace with white mantel, marble-surrounded and flat hearth from vendor’s standard samples, as per plan.

Kitchen

• Double stainless steel kitchen sink with single lever faucet pull out spray.

• Heavy-duty receptacle for stove.

• Electrical outlets for refrigerator and at counter level for small appliances.

• Quality cabinetry selected from vendor’s standard samples including lower and upper cabinets, rough-in space for dishwasher, and one bank of drawers.

• Rough-in plumbing and electrical for dishwasher.

• Cabinet with 6” venting and standard plug required for future over the range Microwave.

• Post-formed laminate countertops from vendor’s standard samples.

Floor Coverings

• Choice of 40oz broadloom with 12mm chip foam underpad in all designated floor areas as per plan from vendor’s standard samples.

• Ceramic flooring from vendor’s standard samples ceramic tile is located as per plan.

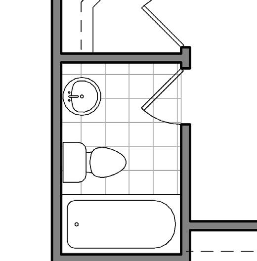
Bathrooms & Laundry

• White bathroom sinks and tubs in ensuites, shared baths, and main baths. Pedestal sinks to be white.

• Drop-in tubs in semi-detached and townhouses, as per plan.

• Luxuriously appointed ensuites featuring double sinks, as per plan.

• Master ensuites feature shower with standard marble surround and recessed shower light, as per plan.

• Vanity cabinets include choice of styles and colours from vendor’s standard samples.

• Mirrors in all bathrooms.

• Heavy-duty receptacle and outside vent for dryer.

• Ceramic wall tiles from vendor’s standard samples in all tub and shower enclosures.

• Single lever faucets in all vanities, tubs, and showers, as per plan.

• Pressure balanced shower controls.

• Exhaust fans in all bathrooms.

• Privacy locks on all bathroom doors.

• Laundry area with connections for water and drain.

• Laundry tub with base cabinet and upper cabinet as per plan.

Electrical

• Rough-in for Central Vacuum in finished areas dropped to the basement ceiling.

• Cable TV and telephone rough-in in Family Room and Master Bedroom.

• Electric door chimes at main door entry.

• All bathroom electrical duplex receptacles protected by ground fault interrupter.

• Smoke detectors provided as per Ontario Building Code

• All rooms to have switch-controlled quality ceiling light-fixture.

• White switches and receptacles throughout.

• Electrical outlet provided in garage for future garage door opener(s).

• Weatherproof electrical outlets at front door and rear door. 100 AMP electrical service with breaker panel and copper wiring throughout.

Energy Saving Features

• High efficiency forced gas central heating, HRV, and rough-in for central air conditioning system.

• High efficiency gas fired hot water tank (rental).

• Metal insulated entry door with glass insert and high quality weather stripping.

• Upgraded foam insulation above garage and porch ceilings with living areas above.

• Attic space with R50 insulation.

• Exterior walls with R22 insulation.

• Basement insulation wrap with R20 insulation.

• Garage ceiling spray foamed with R31 insulation.

Quality Construction

• Poured concrete basement walls damp-proofed with spray and foundation wrap to enhance overall water resistance.

• Steel post and beam construction as required.

• Engineered truss-joint floor system, to allow for minimal use of structural posts.

• 5/8” tongue and groove subfloor screwed and/or glued to engineered floor joists.

• Windows and doors fully sealed with high quality caulking.

• Covered front porches as per plan. Porches are poured concrete with fiberglass columns as per plan. Railings are installed subject to grading requirements.

All purchasers’ selections from standard samples. A wide variety of upgrades and options are available. Specifications, terms, and conditions are subject to change without notice. Builder has the right to substitute materials and fixtures of equal or better value. As constructed homes may not include all of the features listed, purchasers are advised to examine as constructed homes to determine what features are included. E. & O.E. February 2023.

Twelve Stone Group is dedicated to designing and building high quality homes that are spacious, comfortable, and homeowner-ready. As well as bringing those homes together in communities which provide a true sense of belonging.

Our family strives to give your family the very best in quality, style, and craftsmanship, with an abiding commitment to excellence and lasting value. Your satisfaction is the cornerstone of our business and always will be.

Designed by ryan design international

Turn static files into dynamic content formats.

Create a flipbook
Issuu converts static files into: digital portfolios, online yearbooks, online catalogs, digital photo albums and more. Sign up and create your flipbook.