
Ryan Beliakoff is an award-winning designer whose work has been recognized by the AIA, Architectural Record, & the European Centre for Architecture. While earning a Master of Architecture degree from the University of California, Berkeley, he developed a passion for residential architecture. This passion was honed while working for such award-winning firms as Iwamoto Scott Architecture Mary Wong Donn Logan Architects, and the renowned Backen Gillam Architects. Ryan brings over a decade worth of experience in design, planning, project coordination, and high-end residential architecture.

UC BERKELEY master of architecture 2013
UC DAVIS bachelor of arts in design 2007 emph. Visual communication




The Hideaway Cottages is an iconic property located in the heart of Calistoga, a world-class resort destination. The land has been owned and operated as a wellness retreat for close to a century. The property will be renovated and expanded upon to add newly constructed guest rooms, an amenity building, and event space all while maintaining the core essence and charm of the “Hideaway”. The new resort will be reborn as a combination of old and new under the existing tree canopy.





Perched high atop a dramatic rock outcropping along the eastern ridge line direct;y adjacent to downtown Napa, the Rock Ridge House takes full advantage of it’s unique site. From the street, the home is minimal & steadfast, cognitive of its natural surroundings. Care is taken to prolong the reveal. Once one has entered the home they are met by the sight of a reflecting pool, outstretched over a cliff, pointing towards expansive views of Napa all the way to the Golden Gate Bridge & San Francisco skyline.





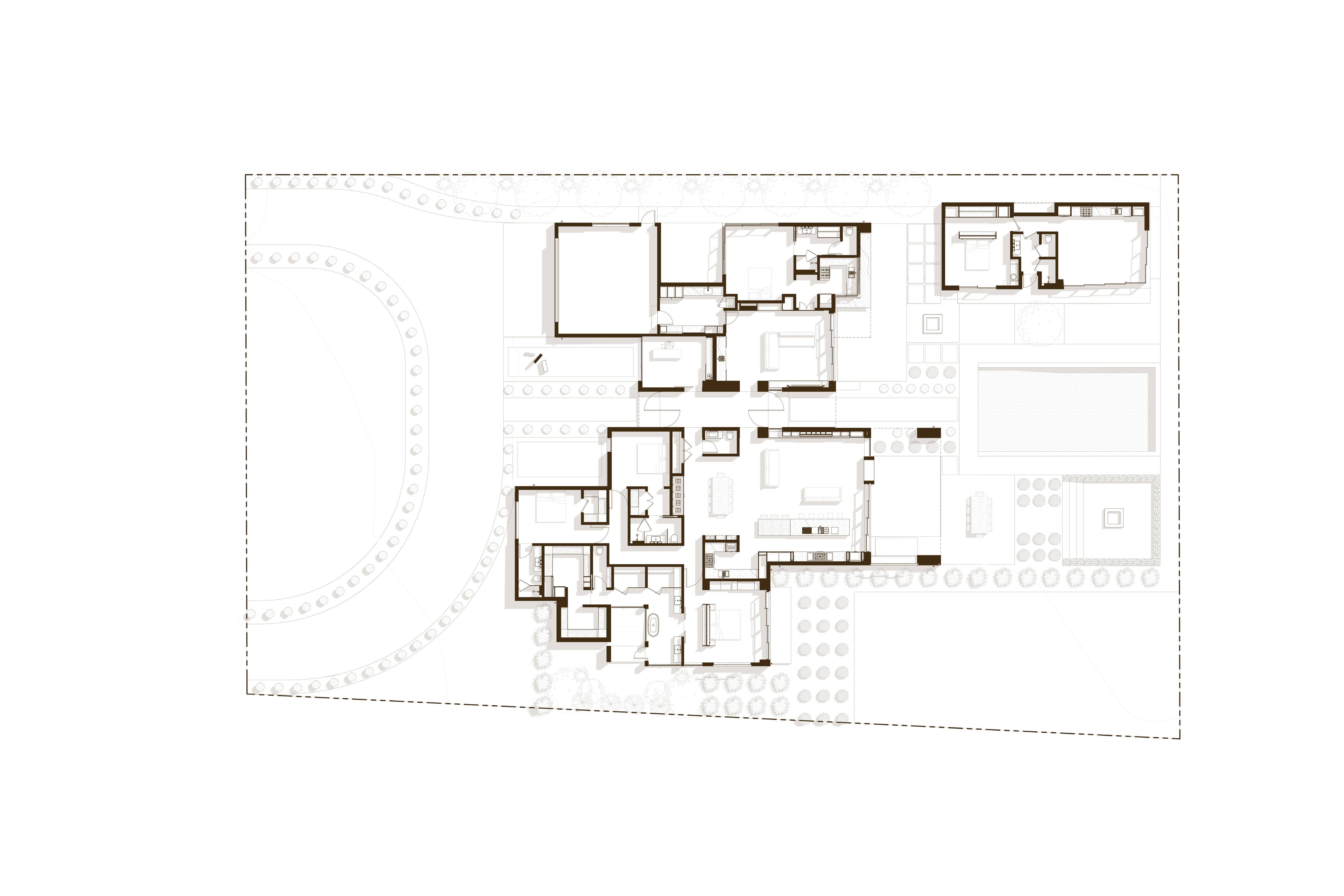
Designed as a “forever home”, Suwanee Creek includes everything a growing family could possibly want. Embodying the ideals of work/life balance, the home features two offices, a home gallery & studio space, just steps away from the main living areas, which boast a Lego room, a speakeasy, & rooftop deck. Central to the “forever home” concept, the house serves as a multi-generational residence. The lower level provides an ideal space for againg loved ones to reside.







Located feet from the final tee box along the 18th fairway at Old Greenwood, sits this spacious vacation home nestled between the pines of Truckee CA. Designed to fit the needs for both summer & winter outdoor activities, this home boasts amenities suitable for multiple families to enjoy the Sierra Nevadas. The home includes a great room, media/game room, bar, large kitchen with pantry, two bedrooms with en suites, a bunk room that sleeps eight, & a spacious primary overlooking the golf course.


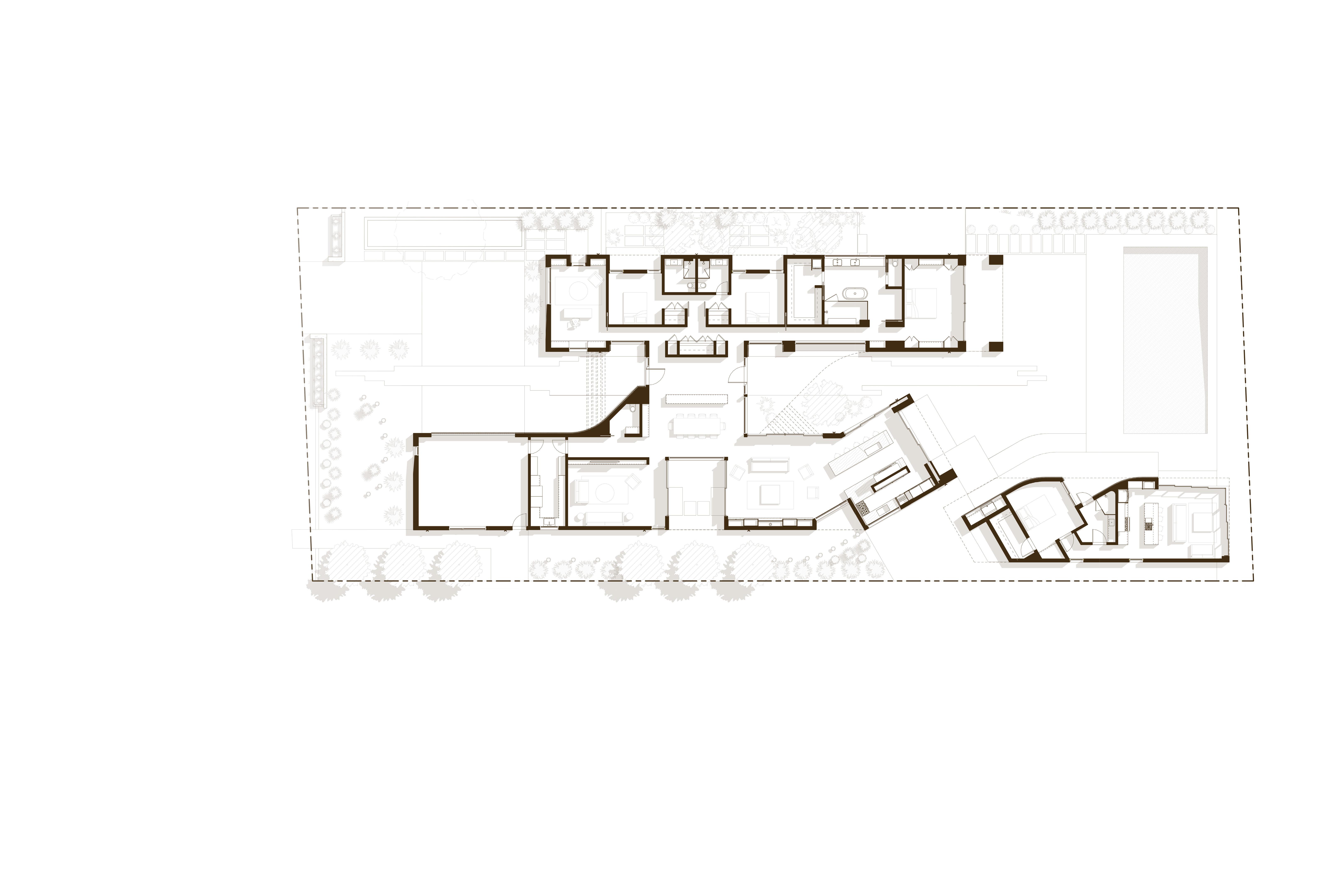
NICCA Home 001 is the first in a series of high-end residential offerings being brought to the Napa Valley. Building upon & modernizing the tranquility of the farmhouse, NICCA Home 001 brings a contemporary vision to the quintessential “Napa Style”. Walkable to historic downtown St. Helena, Home 001 sits on a large .36 acre infill lot & boasts a 3,578 square foot main residence, pool, & 800 square foot pool house. Home 001 is designed to capitalize on the wonderful weather Northern California has to offer by bring the outdoors in.




Permit APPROVAL 2024







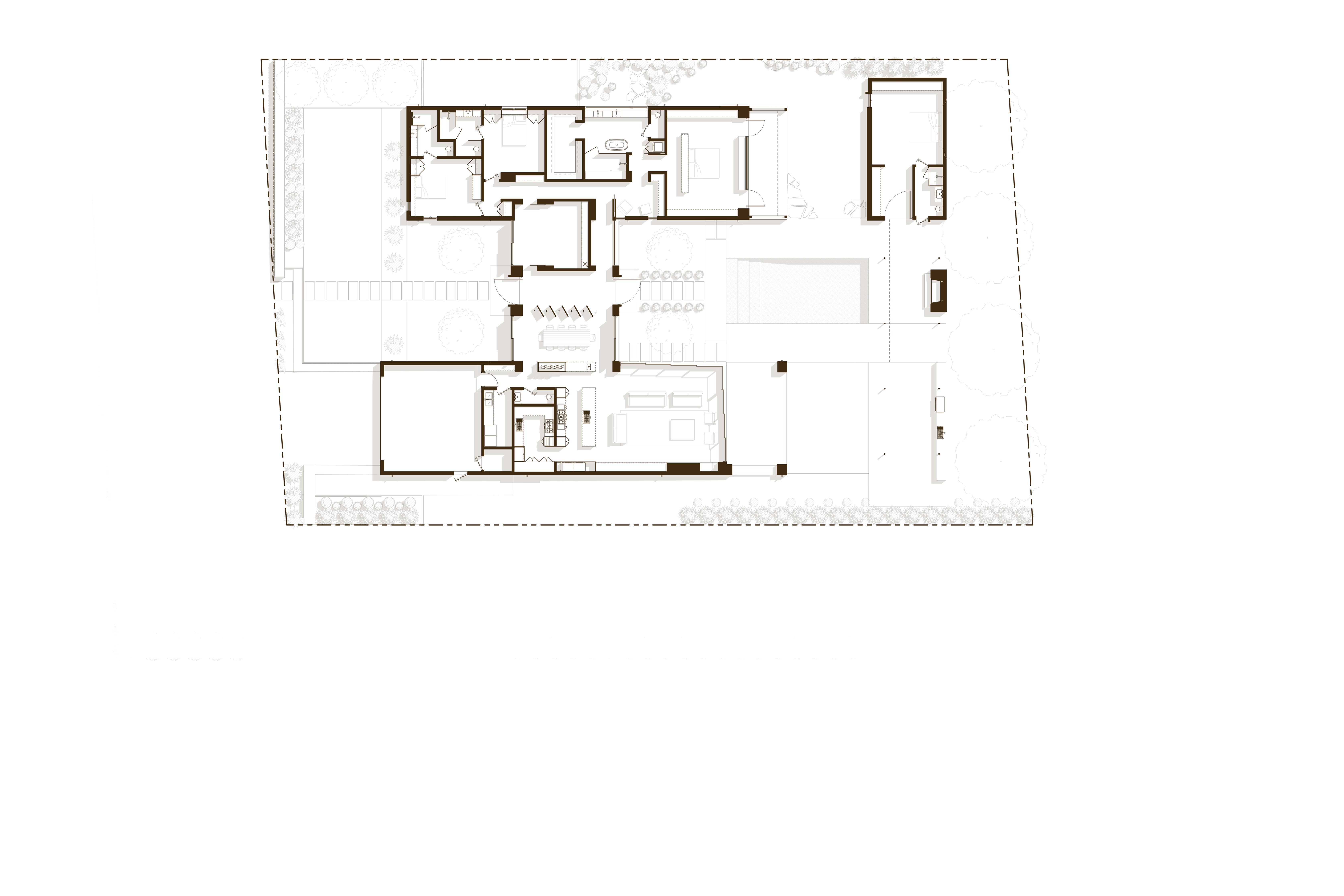
by the city of St. Helena, three units are required to be built on site. Home 003 consists of a 3,797 square foot main residence, 798 square foot pool house, & a 477 square foot in-law unit. Dramatic views north to the Mayacamas Mountains are accentuated by large openings positioned to capitalize on the natural beauty of the surrounding valley.








Built for a prominent Napa Valley wine maker & their family, the Napa Hill House tops the crest of the western hillside, looking north up valley & over the city of Napa. Designed to speak to the local architectural vernacular, the home is influenced by the agrarian roots that established the Napa Valley wine culture. Mimicking the layout often used on farms, the home is broken up into smaller, connected, programmatic elements that create a compound-like feel centered around a central courtyard. The central courtyard is protected from the elements, in particular high winds, that frequent the hilltop.







High in the hills, overlooking the glitz & glam of Hollywood & the surrounding Los Angeles basin, actors Ashton Kutcher & Mila Kunis built this stunning ode to a farmhouse. Their Beverly Hills home brings an air of modernity to the rural architectural stylings of the barn from a bygone era. Material selection emphasizes the rustic nature associated with farm style living, while modern touches, such as board formed concrete & enormous steel windows, bring the home into the now. With a focus on sustainable living, the main residence, guest house, & entertainment barn are powered completely by a rooftop solar voltaic array.








The Richmond Ferry Terminal, recipient of multiple design awards, is the first of its kind in the city, brining a vital connection between it & San Fransisco for essential commerce. Located within the Rosie the Riveter World War II Home Front National Historical Park, its waterfront location & sprawling views of nearly the entire bay are the impetus to the terminal’s design. The terminal is glazed on all four sides, giving patrons unobstructed views of the entire San Fransisco skyline. Copper colored louvers along the western facade gradually twist from vertical to horizontal as you progress out & onto the gangway.









Located in downtown Berkeley, CA, The Center Street Garage accommodates a growing population of theater goers, college attendees, & overflow from visitors to BAMPFA. Designed to conceal a multi-level parking garage, perforated bent aluminum panels of varying degrees are back lit to accentuate the undulating metal facade, masking the cars behind. The circulation extends out beyond the threshold of the building to create a dynamism traditional parking structures lack. Distinct colors are used to distinguish the Center Street facade from the Addison Street facade. The Center Street Garage has received multiple national & international design awards








The Rope Room was a design/build project for the interior renovation of an existing warehouse space that is home to Heavybit Industries. The Rope Room demarcates a communal meeting space, doing so with the idea of the “wall” constructed from unconventional materials. Thick cotton rope, electrical conduit, cable & turnbuckles float in the center of the room creating a permeable membrane that defines space with an ethereal quality. The Rope Room has been featured in Arch Daily, Architectural Record & the project as a whole was a recipient of a AIA


