Concert elemjegyzék

Page 1


CONCERT elemes konyhabútorcsalád

A méretek szélesség x magasság x mélység sorrendben, cm-ben vannak megadva, valamint tájékoztató jellegűek. Az alsó elemek méretei munkalap nélkül, 10 cm-es lábakkal értendőek. A fogók elhelyezése tájékoztató jellegű. 2025. 02. 17. állapot szerint

AP 15

alsó palacktartó 15 x 82 x 57

ANY alsó nyitott 15/30/40/50/60 x 82 x 57

A3F alsó 3 fiókos

30/40/45/50/60 x 82 x 57

70/80/90/100/120 x 82 x 57

A1AM alsó 1 ajtós mosogatós 45/50/60 x 82 x 57

A2ASARPOLC

alsó 2 ajtós sarokszekrény polcos

87 x 82 x 87

A1A alsó 1 ajtós 30/35/40/45/50/60 x 82 x 57

A4F alsó 4 fiókos 30/40/45/50/60 x 82 x 57

A2AM alsó 2 ajtós mosogatós 70/80/90 x 82 x 57

Beépítési méret: 90 x 82 x 90 cm

A1ATÉR alsó 1 ajtós térbefordulós

30/40/45 x 82 x 56

A2A alsó 2 ajtós 60/70/80/90 x 82 x 57

A2FFT alsó 2 fiókos főzőlaptartó 60/90 x 82 x 57

A1AMSAR J+B

alsó 1 ajtós, mosogatós sarokszekrény 100 x 82 x 55 Beépítési méret: 105 x 65 cm

A2ASAR

alsó 2 ajtós sarokszekrény forgókosárral 87 x 82 x 87

Beépítési méret: 90 x 82 x 90 cm

A2ATÉR alsó 2 ajtós térbefordulós

60/70/80/90 x 82 x 56

KFMH147 kamra félmagas hűtőtartó 60 x 147 x 58

KFM1A147 kamra félmagas polcos

40/45 x 147 x 58

50/60 x 147 x 58

AK 15 alsó kamra kosárral 15 x 82 x 57

A3FTÉR alsó 3 fiókos térbefordulós

30/40/45/50/60/70/80/90 x 82 x 56

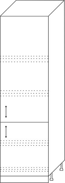
K2AS211 kamra 2 ajtós sütőtartó 60 x 211 x 58

K2A211 kamra 2 ajtós polcos

40/45 x 211 x 58 50/60 x 211 x 58

AK 30 alsó kamra kosárral 30 x 82 x 57

A1A1F alsó 1 ajtós, 1 fiókos 30/40/45/50/60 x 82 x 57

ATI alsó tűzhelytartó indukciós laphoz 60 x 82 x 57

A1ASAR J+B

alsó 1 ajtós sarok, kifordító tálcás 100 x 82 x 55

Beépítési méret: 105 x 65 cm

AVZ J+B alsó végzáró 25/30 x 82 x 56

A1ASARTÉR J+B

alsó 1 ajtós sarok térbefordulós 100 x 82 x 56

Beépítési méret: 105 x 65 cm

KK211 kamra kihúzható 4 kosaras 30/40 x 211 x 58 45/60 x 211 x 58

P1ÜAKO 40/125 pultra 1 fiókos, 1 üvegajtós, keresztosztós 40 x 125 x 34

KH2A211 kamra 2 ajtós hűtőtartó 60 x 211 x 58

A2A2F alsó 2 ajtós, 2 fiókos 80/90 x 82 x 57

A1FT alsó 1 fiókos tűzhelytartó 60 x 82 x 57

A1ASARPOLC J+B

alsó 1 ajtós sarok, polcos 100 x 82 x 55 Beépítési méret: 105 x 65 cm

P1ÜAKO 40/145 pultra 1 fiókos, 1 üvegajtós, keresztosztós 40 x 145 x 34

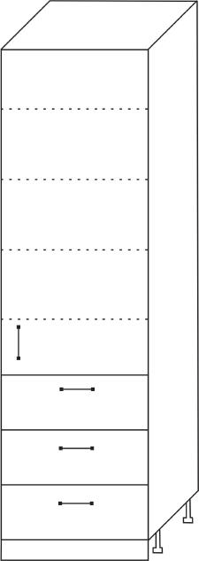
K1A3F211 kamra 1 ajtós 3 fiókos 40/60 x 211 x 58

KFMS147 kamra félmagas sütőtartós 60 x 147 x 58

K2F1ASM211 kamra 2 fiókos, 1 ajtós sütő + mikrótartós 60 x 211 x 58

A jegyzék az RS tulajdona, annak sokszorosítása, utánközlése kizárólag az RS engedélyével lehetséges, minden jog fenntartva. Az adatok tájékoztató jellegűek, a változtatás jogát mindenkor fenntartjuk. Az aktuális kínálatra vonatkozó felvilágosítást és mintát az eladóktól kérhet.

CONCERT elemes konyhabútorcsalád

A méretek szélesség x magasság x mélység sorrendben, cm-ben vannak megadva, valamint tájékoztató jellegűek. Az alsó elemek méretei munkalap nélkül, 10 cm-es lábakkal értendőek. A fogók elhelyezése tájékoztató jellegű. 2025. 02. 17. állapot szerint

K1A3F231

kamra 1 ajtós 3 fiókos 40/60 x 231 x 58

F1A72

felső 1 ajtós

30/40 x 72 x 34

45/50/60 x 72 x 34

F1AELSZ72

felső 1 ajtós elszívós 60 x 72 x 34

K2A231 kamra 2 ajtós polcos 40/45 x 231 x 58 50/60 x 231 x 58

K3AH231 kamra 3 ajtós hűtőtartó 60 x 231 x 58

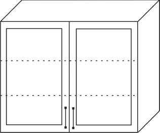
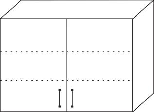
F2A72 felső 2 ajtós

70/80/90 x 72 x 34

KK231 kamra kihúzható 5 kosaras 30/40 x 231 x 58 45/60 x 231 x 58

F1ÜA72 felső 1 üvegajtós 30/40 x 72 x 34

45/50/60 x 72 x 34

F2AELSZ72

felső 2 ajtós elszívós 90 x 72 x 34

F1ÜASAR45KO72

felső 1 üvegajtós 45 fokos sarokszekrény keresztosztós 60 x 72 x 60 65 x 72 x 65

F1A92

felső 1 ajtós

30/40 x 92 x 34

45/50/60 x 92 x 34

F2ASAR92

felső 2 ajtós sarokszekrény 60 x 92 x 60 65 x 92 x 65

F1AELSZ66 felső 1 ajtós elszívós 60 x 66 x 34

F1ASAR45 72 felső 1 ajtós 45 fokos sarokszekrény 60 x 72 x 60 65 x 72 x 65

F2A92 felső 2 ajtós

70/80/90 x 92 x 34

F1ÜA92 felső 1 üvegajtós 30/40 x 92 x 34

K2F1ASM231 kamra 2 fiókos 1 ajtós sütő + mikrótartó 60 x 231 x 58

F2ÜA72 felső 2 üvegajtós 70/80/90 x 72 x 34

K2AS231 kamra 2 ajtós sütőtartó 60 x 231 x 58

F1ÜAKO72 felső 1 üvegajtós keresztosztóval

30/40 x 72 x 34

45/50/60 x 72 x 34

F2AELSZ66

felső 2 ajtós elszívós 90 x 66 x 34

FP 72/15 felső palacktartó 15 x 72 x 34

FP 72/30 felső palacktartó 30 x 72 x 34

F2ÜA92 felső 2 üvegajtós 70/80/90 x 92 x 34

F1AELSZ50 felső 1 ajtós elszívós 60 x 50 x 34

T1A tetejére 1 ajtós

30/40/45/50/60 x 36 x 58

F1AF felső 1 ajtós felhajtós 40/45/50/60 x 36 x 34

F1ÜAF felső 1 üvegajtós felhajtós 40/45/50/60 x 36 x 34

T2A tetejére 2 ajtós

70/80/90 x 36 x 58

F1AF felső 1 ajtós felhajtós 70/80/90/100/120 x 36 x 34

F1ÜAF felső 1 üvegajtós felhajtós 70/80/90/100/120 x 36 x 34

F2ÜAKO72 felső 2 üvegajtós keresztosztóval 70/80/90 x 72 x 34

F2AFHF72 felső 2 ajtós felnyíló HF vasalattal 60/80/90 x 72 x 34

F2AELSZ50 felső 2 ajtós elszívós 90 x 50 x 34

FNYFP72 felső nyitott fix polcos 15 x 72 x 32

F1ÜAKO92 felső 1 üvegajtós keresztosztóval

F3FNY72 felső 3 fiókos nyitott 15 x 72 x 34

F2ÜAKO92 felső 2 üvegajtós keresztosztóval

FNY72 felső nyitott

30/40/45/50/60 x 72 x 32

F1AMIK72 felső 1 ajtós felhajtós mikrótartó 60 x 72 x 34

FVZJ72 felső végzáró J+B 25 x 72 x 32 30 x 72 x 32

F2ASAR72 felső 2 ajtós sarokszekrény 60 x 72 x 60 65 x 72 x 65

F1AH felső 1 ajtós hűtő fölé 60 x 36 x 58

45/50/60 x 92 x 34

F1ÜASAR45KO92

felső 1 üvegajtós 45 fokos sarokszekrény keresztosztós 60 x 92 x 60 65 x 92 x 65

F1ASAR45 92

felső 1 ajtós 45 fokos sarokszekrény 60 x 92 x 60 65 x 92 x 65

30/40 x 92 x 34

45/50/60 x 92 x 34

FP 92/15 felső palacktartó 15 x 92 x 34

FP 92/30 felső palacktartó 30 x 92 x 34

70/80/90 x 92 x 34

FNYFP92 felső nyitott fix polcos 15 x 92 x 32

F2AFHF92 felső 2 ajtós felnyíló HF vasalattal 60/80/90 x 92 x 34

F3FNY92 felső 3 fiókos nyitott 15 x 92 x 34

FVZJ92

felső végzáró J+B 25 x 92 x 32 30 x 92 x 32

FNY92 felső nyitott 30/40/45/50/60 x 92 x 32

F1AMIK92

felső 1 ajtós felhajtós mikrótartó 60 x 92 x 34

A jegyzék az RS tulajdona, annak sokszorosítása, utánközlése kizárólag az RS engedélyével lehetséges, minden jog fenntartva. Az adatok tájékoztató jellegűek, a változtatás jogát mindenkor fenntartjuk. Az aktuális kínálatra vonatkozó felvilágosítást és mintát az eladóktól kérhet.

Turn static files into dynamic content formats.

Create a flipbook
Issuu converts static files into: digital portfolios, online yearbooks, online catalogs, digital photo albums and more. Sign up and create your flipbook.