Skip to main content

Portfolio 2020-Ronak abdolhoseiny

Page 1

ARCHITECTURE PORTFOLIO

Ronak Nejade Abdolhoseiny

1

Ronak Nejade Abdolhoseiny

June 8th, 1995

Contact Info:

2014-2020

EDUCATION Work Experience

Bachelor of Architecture

Azad University of Central Tehran Branch

Master of Sustainable Architecture

Iran University Of Science and Technology

SKILLS & INTERESTS

-Architecture Design

-Concept Design

-Graphic Design

-Sociology

-Painting

-Photography

SOFTWARE SKILLS

Revit

Autocad

ronakabdolhoseiny@gmail.com

Tehran , Iran

SketchUp

Rhinoceros

Grasshoper

Lumion

Photoshop

InDesign

Illustrator

LANGUAGES

Farsi

Nov.2020----

Seventh Sense Studio

Designer-Graphic Designer

English German
2

Young art center

Under graduation thesis

3 Bus Terminal Design studio 4 Residental Complex Design studio 5 P. 4 P. 11 P. 15
P. 19
Other Works

Young art center

Under graduation thesis Advisor:Dr. Parisa Alimohammadi

1
4

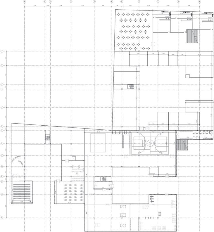
Young art center

A cultural center is an organization, building or complex that promotes culture and arts.this organization contains several parts that each of them reserve special activities and it can accept different layers of society.unfortunately nowadays in our country artists and just a few people use it.

Therefore the propose of this project is the connecting two general layers of society,young artists and people who may have not backgrounds in art.

Nowadays with increase the art students and art graduated people,it requires the place to practice individualy and collaboratively and exhibit them to the groups of people and take feedbacks,that prepared them for their professional carrer future. in the other hands it helps people to know young artists and see veriety artworks.

In the long term the connection between young artists and people promotes the culture of society.

Site situation

Daneshgah

Access
5

Site analysis

Concept

In the project we have two objects(artists and people)that works separated but they are not isolate and each groups work effects the other ones job and they are totally influanced Like the two object that each one have theire own shape and when they are combined they keep their own shape and show the other ones too.

6

Interact two layer together

One deform layer and a straight one the places between this two make new spaces that doesnt totally belongs to one of them and work as a binary space.

7
Facade Pattern
8
9
10

Residental Complex

One Concept

Two Contexts

Design studio 5

Advisor:Dr. Parisa Alimohammadi

2
11

Concept

Synchrony and diachrony are two different and complementary viewpoints in linguistic analysis. A synchronic approach considers a language at a moment in time without taking its history into account. Synchronic linguistics aims at describing a language at a specific point of time, usually the present. By contrast, a diachronic approach considers the development and evolution of a language through history. Historical linguistics is typically a diachronic study.

Site No. 1

Gharabelogh Azam village,Kermanshah

A post earth quake house

Site No. 2

Pol rumi St.,Tehran

A Residental Complex

Ferdinand de Saussure
12
Sport complex Cultural Commercial plaza residental Sport complex 13

This project innovates the traditional rammedearth building technology to provide villagers a safe, economical, comfortable, and sustainable reconstruction strategy that the villagers can afford, own, and pass on. an extraordinary project in terms of the scope of ambition, exemplified in the addressing of profound problems facing ordinary people. They applauded the re-use of traditional material and construction methods but with the addition of new technologycombining ancient wisdom with modern know-how.

14

Design studio 4

Advisor:Dr. Behrouz Mansoori

Bus Terminal 3

15

Site Analysis

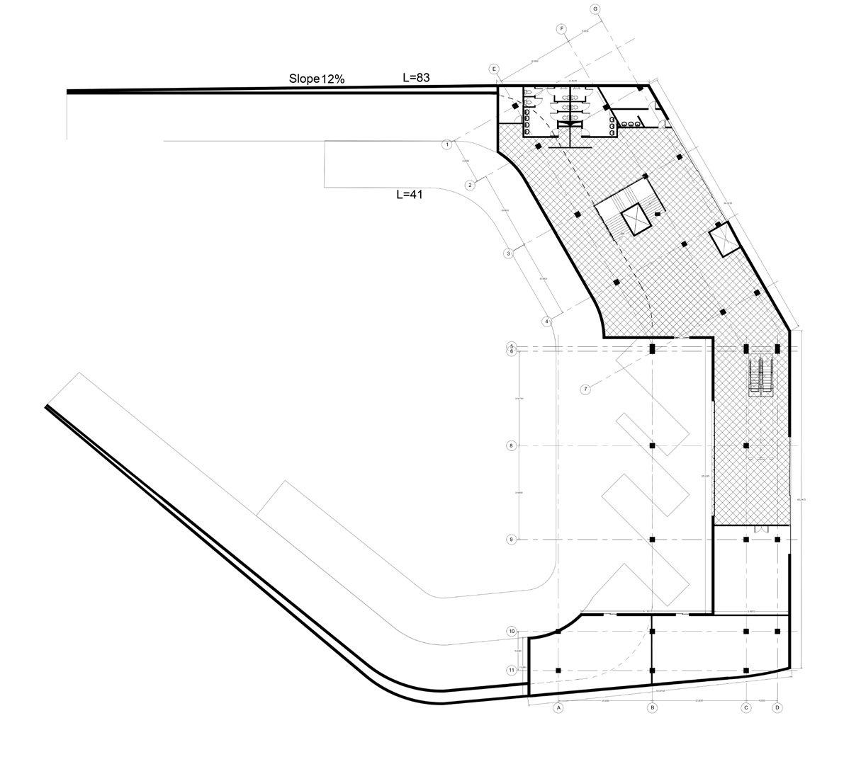
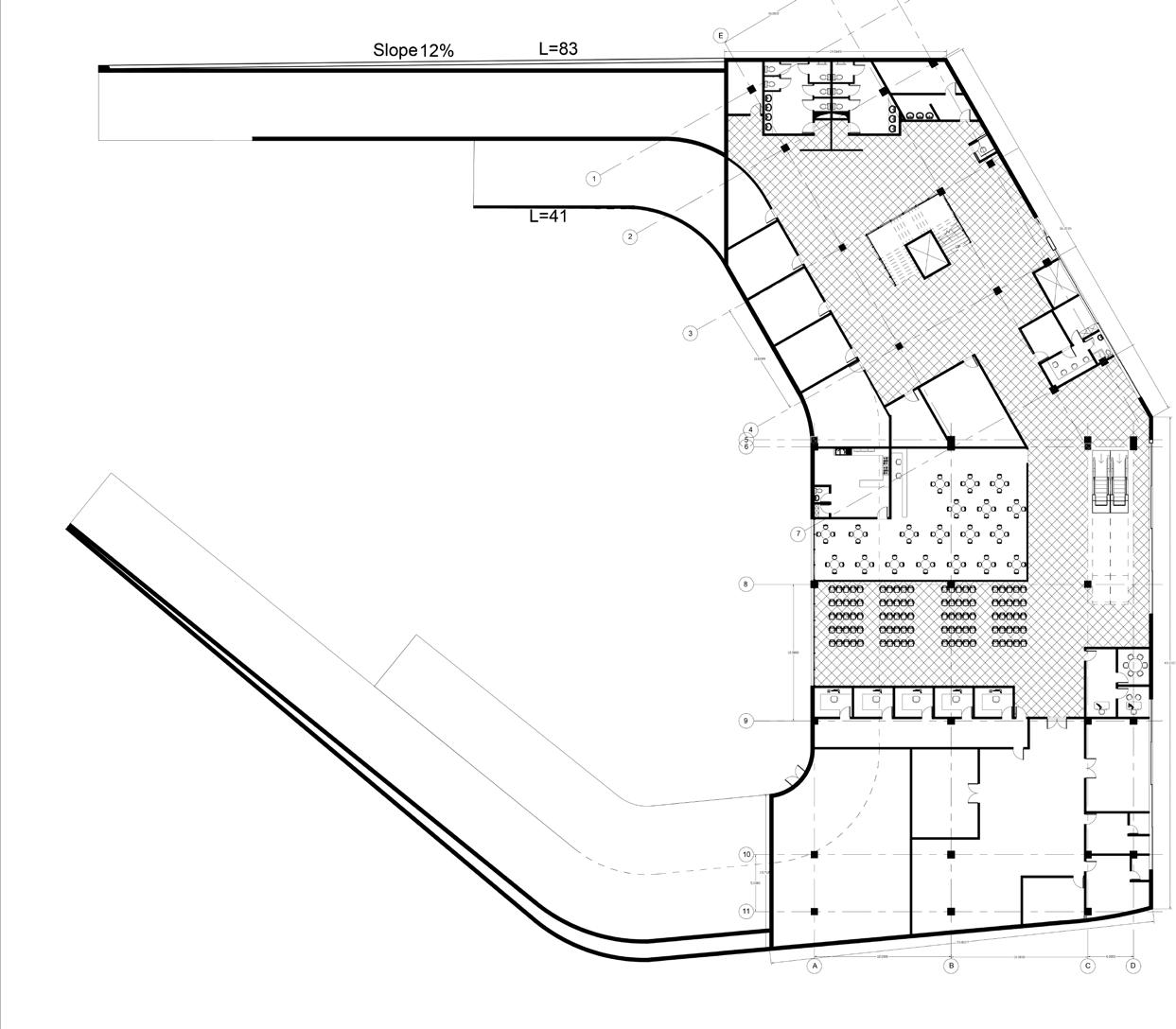
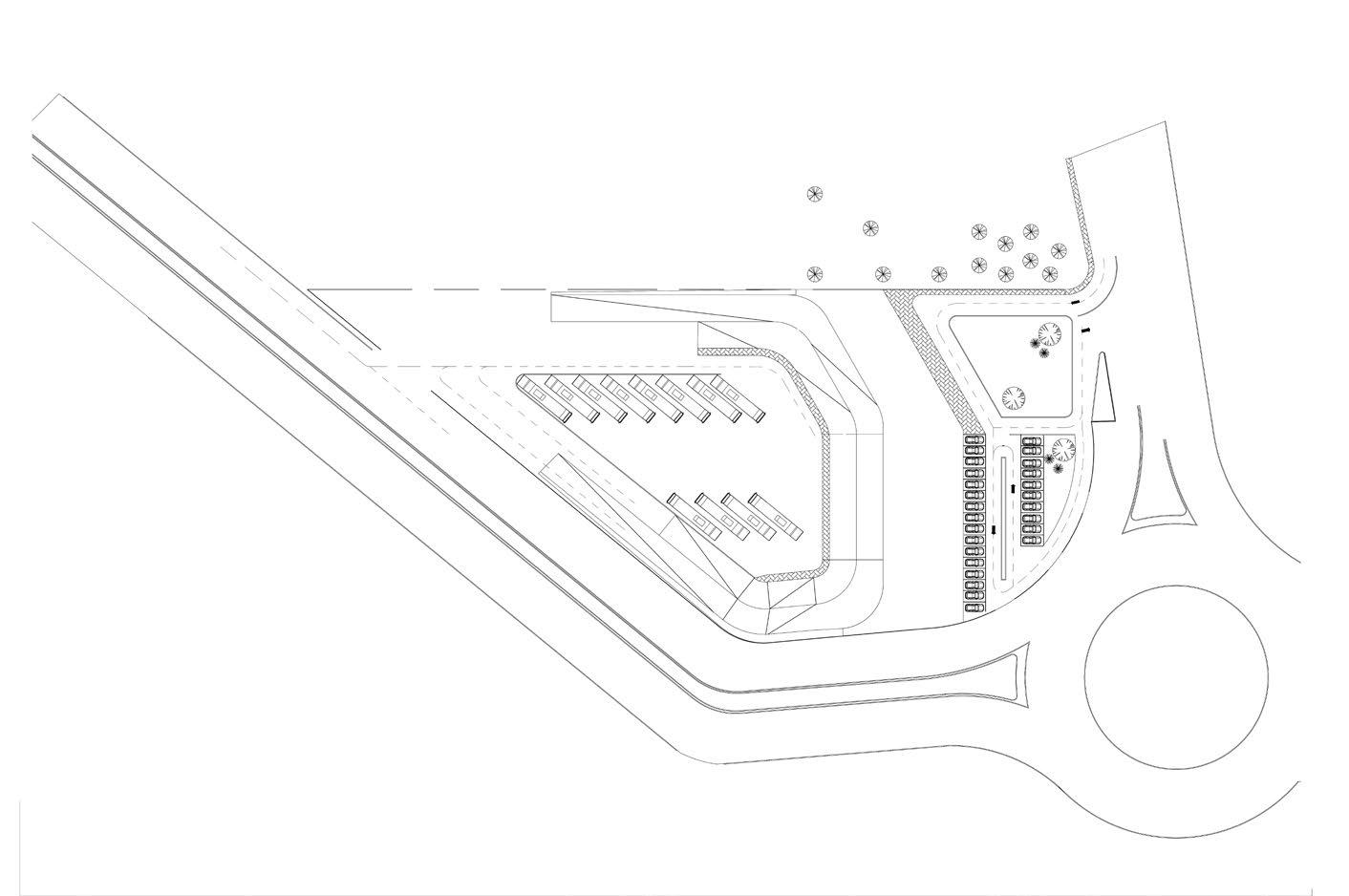
Site location: Qom Highway

A bus terminal designed in a 10000 square meter site on Qom highway next to the green area.that has access from two diffrent side of the site.Used area is 5000 square meter that countaines three kinds of spaces;public spaces that can be used by the people who are passengers or not(e.g resturant’Bank’Stores)/Semi private spaces that used by passengers and the Private area for drivers and busses.

16

Design Process

A terminal is the last place that connect people to the city.after they entered the connection will be decrease till they leave . the building placed toward north to prevent undesirable wind.the mass divide the site to two areas for cars and pedestrian and the other side for the busses.they dont have access to each other from outside of the building.

17
Site Plan
Second Floor
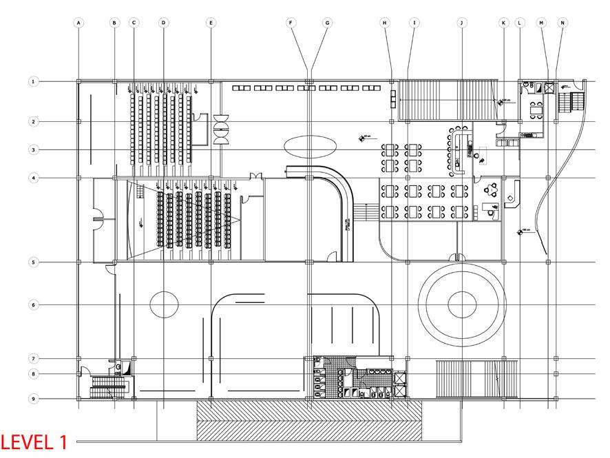
18
First Floor
19
PHOTOGHRAPY
20 POST
PRODUCTION

Turn static files into dynamic content formats.

Create a flipbook