Design Journal - Example

Page 1

Page 1 Liturgical Designers, Artists, and Artisans In service of the Church for more than a half-century St. John Neumann Church Au S ti N , t ex AS Co lle C ti o N o f Progre SS of l it urgi CA l i te m S D e S ig N iD e AS De veloped through the work of SJN A& e C ommittee and r oh n & Associates Design, i nc . m ay 3, 2008 through January 16, 2009 Rohn & Associates Design, Inc. © Rohn & Associates Design, Inc. 2009. All rights reserved www.rohndesign.com

Rohn

St. John Neumann Church

Au S ti N , t ex AS

Co lle C ti o N o f Progre SS of l it urgi CA l i te m S D e S ig N iD e AS

De veloped through the work of SJN A& e C ommittee and r oh n & Associates Design, i nc .

m ay 3, 2008 through January 16, 2009

overview of the contents & purpose of the binder index

1. Preface

a. Project team members

b. A&e Commitee - Job Description

c. Theme for the Building Project

d. A&e Committee Background research for Design ideas

e. A&e Criteria for formulating Preliminary Designs

Design History

2. Design Consultant’s Suggested Changes to Architectural Drawings

3. mosaics

a. Dome

b. Pendentives

c. Shrine Backgrounds

4. Art glass

5. Sculptures

a. Crucifix

b. Sculpture Saint John Neumann

c. Sculpture our lady of the rosary

d. Sculpture St. Joseph & Child

e. Sculpture 3 Arch Angels

f. Column Sculptures

6. Sanctuary Back Walls - carved relief

7. liturgical furniture

8. liturgical Appointments

9. tympanum

10. exterior Door Panels

11. Side Wall medallions

12. Stations of the cross

13. Day Chapel mural

14. Sketches and illustrations

15. fund raising Presentations - 3 versions

Page 2
© Rohn & Associates Design, Inc. 2009. All rights reserved
& Associates Design, Inc.

St. John Neumann Church

1. Preface

a. Project team members

b. A&e Commitee - Job Description

c. Theme for the Building Project

d. A&e Committee Background research for Design ideas

e. A&e Criteria for formulating Preliminary Designs

Page 3
© Rohn & Associates Design, Inc. 2009. All rights reserved
C olle C tio N of P ro gre SS of li turgi CA l it em S D e S ig N i D e AS
Associates Design, Inc.
Rohn

St. John Neumann Church

DEVELOPMENT TEAM FOR THE NEW ST. JOHN NEUMANN CHURCH

most reverend gregor y m. Aymond, D.D. - Bishop of Diocese of Austin

reverend Bud roland, Pastor

reverend Jim evans, Associate Pastor

Professional Team:

Project manager: ed lee – Broaddus & Associates

Architect: luis Duron – Stg Architects

liturgical Designer: rolf rohn – rohn & Associates liturgical Design

Building Committee: Arts & Environment Committee:

reverend Bud roland

John Barzizza

rebecca Joseph

Peter lamy

ed lee

Dan listrom

gerry Nichols

lynn meredith

Nancy Clark

lucille lamy

margaret Parrish

Capital Campaign Committee:

Doug murrell

lisa Allen

emily Bien

Doug Clark

John Dirrin

rebecca Joseph

tasha Key

ladd Pattillo

Vern Pohlmeier

Page 4 © Rohn & Associates Design, Inc. 2009. All rights reserved Project team members
C olle C tio N of P ro gre SS of li turgi CA l it em S D e S ig N i D e AS Rohn & Associates Design, Inc.

Theme for the Building Project, St. John Neumann St. John Neumann Church

5-2-08 A&E (SJN Theme) TRINITY THROUGH THE CROSS

The theme employed throughout the architectural design of St. John Neumann Church is ‘ trinity through the Cross,’ a truth we express whenever we make the Sign of the Cross: in the name of the father, and of the Son and of the Holy Spirit.

As we enter St. John Neumann Church, we are immediately drawn into this mystery. With its prominent North-South-east-West orientations, the interior takes on a cruciform dimension. Dominant within this axial floor plan is the ‘ trinity of Domes’ of the Baptistry, the Altar of Sacrifice and the Catafalque.

We enter and pass by the Baptistry and the living waters of creation which invite us into a new life within the Church. under the all-encompassing center dome are the Crucifix and Altar of Sacrifice where we participate in the very life of Christ through the Sacraments of Holy eucharist, Confirmation, matrimony and Holy orders. Here we are united in a profound way with Christ as members of His mystical Body. All of creation and our entire beings and lives are offered up to the father through the Cross and the Holy eucharist in praise and thanksgiving for our creation, redemption and sanctification. finally as we leave the Church and are sent forth, empowered by the Holy Spirit to make disciples of all nations, we pass by the Catafalque and are reminded of the passing of our time on earth and our ultimate birth into eternal life, a fulfillment of the new life begun at Baptism.

Page 5 © Rohn & Associates Design, Inc. 2009. All rights reserved
C olle C tio N of P ro gre SS of li turgi CA l it em S D e S ig N i D e AS Rohn & Associates Design, Inc.

Theme for the Building Project, St. John Neumann St. John Neumann Church

TRINITY THROUGH THE CROSS

As we enter St. John Neumann Church we are immediately drawn into the mystery of the Cross through the trinity. With its prominent North-South-east-West orientations, the interior takes on a cruciform dimension. Dominant within this axial floor plan is the ‘ trinity of Domes’ of the Baptistry, the Altar of Sacrifice and the Catafalque.

We enter and pass by the Baptistry and the living waters of creation which invite us into a new life within the Church. under the all-encompassing center dome are the Crucifix and Altar of Sacrifice where we participate in the very life of Christ through the Sacraments of Holy eucharist, Confirmation, matrimony and Holy orders. Here we are united in a profound way with Christ as members of His mystical Body. All of creation and our entire beings and lives are offered up to the father through the Blood of the Cross in praise and thanksgiving for our creation, redemption and sanctification. finally as we pass by the Catafalque and are sent forth, empowered by the Holy Spirit to make disciples of all nations, we are reminded of the passing of our time on earth and our ultimate birth into eternal life, a fulfillment of the new life begun at Baptism.

The theme employed throughout the architectural design of St. John Neumann Church is ‘ trinity through the Cross’. The symbol of the Cross is represented as the wedding, the uniting of heaven and earth over time.

Jesus Christ Himself in the perfect prayer to the father prays that His kingdom come, His will be done on earth as it is in heaven as He gives us our daily bread, our sustenance as we carry our crosses daily – through time. We are created in the image and likeness of god: the father, Son and Holy Spirit and so are called to live out our lives as other Christs, members of His mystical Body, one with the Cross. This truth is manifested each time we make the Sign of the Cross over our bodies in the name of the father, the Son and the Holy Spirit.

The Cross is the ultimate sign of god’s love. it is the very essence of life. it symbolizes ‘Creation’ through the order, justice and integrity of the plan of the god the father. it symbolizes ‘redemption’ of mankind and creation through the mercy and sacrifice of Jesus, the Son of god made man. The movement of this creative and redemptive love within the trinity and throughout the world, from its beginning to its completion, is the Holy Spirit. The universe – with its longitudes and latitudes, its graphs and grids – is simply a series of crosses. from atoms to planets the cross is the underlying component of all matter. This same 3-D mesh forms the infrastructure of our being. This mesh, conformed to our body, is what we call the soul and so man is intrinsically a ‘sign of the cross’.

Because the Cross is trinitarian, it is eucharistic, from the greek word meaning thanksgiving. god the father in loving the Son gives His plan to the Son. The Son, totally open and receptive, lovingly accepts the gift, nurtures it and brings it into being, giving back to the father the completion of the plan, the kingdom. This giving and receiving of one to the other, freely and openly, in appreciation and thanksgiving, is love. This sharing and loving exchange is itself, the Holy Spirit. There is no end to this love. it creates and gives life forever.

man is a living sign of god’s creative love. Jesus, the Son of man, through the gift of the Holy eucharist gives us a sharing in god’s trinitarian life, thereby uniting god and man, heaven and earth as we journey through time.

march 22, 2008

Page 6 © Rohn & Associates Design, Inc. 2009. All rights reserved
C olle C tio N of P ro gre SS of li turgi CA l it em S D e S ig N i D e AS Rohn & Associates Design, Inc.
HeAVeN time eArtH

St. John Neumann Church

5-2-08 b Symbols

Alpha & omega god as the beginning and the end.

trignetra ancient symbol of trinity from Celtic art.

Passionflower denotes Passion of Christ

Pelican feeding her young with her own blood Jesus’ passion and death p. 12

Phoenix rising from ashes Jesus’ resurrection p. 12

Holy family flight into egypt

Cockleshell pilgrimage; Baptism

4 symbols of universal priesthood:

Baptism & Confirmation marks of priesthood of laity multiplicat’n of loaves & fishes and eucharist and ordained priesthood

last Supper

xP (Chi-rho) represent mary and Jesus respectively

7 doves Seven gifts of the Holy Spirit p. 59 tree of Jesse lineage of Jesus & mary and entrance (as thoughts for our entrance; not found in basilica)

‘How lovely is your dwelling place, o lord, mighty god (Ps 84) ‘my being proclaims the greatness of the lord. my spirit finds joy in god my Savior.’ Passion & death of Christ

Domes

A&e Committee Background research for Design ideas

• Under the main dome are 36 stained glass windows p. 7

Themes of Holy trinity – 12 windows

Worship – 8 windows

• Dome above the Baldachin: Triumph of Lamb

• Lamb of Apocalypse with blood flowing from pierced heart and scroll at feet

• 24 elders divided in 4 groups form a cross around Lamb

• 4 evangelists between groups

• At corners: 4 angels each holding globe showing XT reign extending to 4 corners of world

• 3 Domes in Crypt Church representing trinity: father, Son and Holy Spirit

• Descent of Holy Spirit

• Dozens of bright red “ tongues of fire” against brilliant gold dome

• Flames descending on Mary and apostles (6 surrounding, 6 in distance)

• Flames descending on ordinary men, women, and children.

• In 4 corners: images of people from Asia, Africa, Europe & America: Spirit’s universal sanctification of world

• Biblical ref: Acts 2:33, Joel 1:2, Psalms 103:30, Wisdom 7:24-8:1

e & W transept

• Last Judgment Mosaic (West)

• Shows Christ’s glorious Second Coming

• 4 angels trumpet the message

• Fire rages on earth and mountains are split by divine power.

• Savior beckons the saints to himself: Virgin Mary, Peter and Paul, John, Teresa of Avila, elizabeth of Hungar y, John Vianney, martin de Porres, Pope Pius x, isaac Jogues, Thomas more, maria goretti, Stephen and cast of other accompanied by angels.

• Also: colonial-American man, frontier woman and child, Native American woman, modern businessman, laborer, boy soldier, friar.

• 5 people who have turned away from salvation, suggesting condemnation.

• 6 Days of Creation Mosaic (East)

• Center: hand of God the Father and Adam & Eve

• Below, enclosed in earth: human fetus symbolizing dust from which man was formed

• Top: expanses of universe

• Left: waters, sea creatures and aquatic plants

• Right: dr y land with animals and vegetation

• Left corner: symbols of DNA, basic unit of living matter

Page 7 © Rohn & Associates Design, Inc. 2009. All rights reserved
C olle C tio N of P ro gre SS of li turgi CA l it em S D e S ig N i D e AS Rohn & Associates Design, Inc.

St. John Neumann Church

Patronage and titles of mary

The immaculate Conception: Patroness of the united States

our lady of guadalupe: Patroness of the Americas

The immaculate, Queen of the universe

‘Thou art the glor y of Jerusalem, the joy of israel, the honor of our people.’ (Jdt 15:9) ‘my being proclaims the greatness of the lord. my spirit finds joy in god my Savior.’ (Lk 1)

‘i am the immaculate Conception’ – lourdes

‘o mary, conceived without sin, pray for us…’ – lourdes ‘mother of the Church’ Pius xii at close of Vatican ii p. 50

‘Sign of certain hope and comfort to the pilgrim People of god (Lumen Gentium 1964)

5 marian Dogmas

mother of god

Virginity of mary

immaculate Conception

Assumption

(Co-Redeemer, Mediatrix, Advocate yet to be proclaimed)

mary in Scripture

Annunciation

Visiting elizabeth & magnificat Wedding of Cana miracle of crippled (‘your mother is outside’) foot of Cross

Blessed Sacrament chapel: mosaic of mary at foot of cross holding a vessel to catch blood and water flowing from his pierced side

Pentecost in upper room

Woman to crush the head of Satan – genesis

Woman clothed with the sun, moon, stars – revelation

Seven sorrows of mary:

1. Prophecy of Simeon (Lk 2:25-38)

2. flight to egypt (cf. Mt 2:13-18)

3. Search for Jesus in Jerusalem (Lk 2:41-52)

4. meeting at the carrying of Cross

5. Crucifixion (Jn 19:16-30)

6. Jesus taken down into mary’s arms

7. Burial of Jesus (Lk 23:50-55)

rosary: old & New testament quotations

• Annunciation OT: angel, Moses & burning bush & redemption from slaver y (Ex 3:1-4)

• Visitation OT: Obededom welcomes Ark into his home (2 Sm 6:9-11)

• Birth of XT OT: Isaiah prophesied virgin birth (Is 7:12-14)

• Presentation OT: Hannah presents Samuel (1 Sm 1:24-28)

• Finding of XT in Temple OT: Daniel amazes elders by exonerating Susanna (Dn 13:45-65)

• Agony OT: Adam & Eve expelled from Garden (Gn 3:23-24)

• Scourging OT: Jeremiah unjustly beaten ( Jer 37:13-16) [also Joseph]

• Crowning OT: unlike shameful surrender of Jehoachin (2Kgs 24:8-17) [also David crowned king]

• Carrying of Cross OT: Isaac carries wood for sacrifice (Gn 22 6:-10)

• Crucifixion OT: Passover lamb (Ex 12:1-13)

• Resurrection OT: Joseph rescued from cistern (Gn 37:12-28)

• Ascension OT: Elijah into heaven (2 Kgs 2:1-15)

• Descent of HS OT: God gives Moses 10 Commandments (Ex 19-20:1)

• Assumption OT: Solomon brought Ark to Temple (1Kgs 8:19)

• Coronation OT: Bathsheba received honor from son Solomon (1 Kgs 2:19) [Luminous mysteries not included]

Women who prefigured mary

old testament; Sara (see also gal 4:31), miriam, ruth and Naomi, Judith, esther

New testament: elizabeth, Anna, mary & martha, Samaritan Woman

images representing mary:

fleur-de-lis (purity), tower of ivor y (strength), Cedar of lebanon (beauty & sanctity), ‘A’ & ‘m’ intertwined (Ave maria in Hail mary), ‘m’ (morning Star) p.7

5 point star and letter m with small + at center p. 8

Stars of Bethlehem (mary as mother of god)

Prophets related to the glorification of Blessed mother in Birth of Jesus

moses, Aaron, isaiah, micheas, Jeremiah, elijah, gideon, John Baptist, Simeon

12 old testament figures of Patriarchs and Prophets

• Moses, Joshua, Isaiah, Jeremiah, Hosea, Jonah

• Elijah, Elisha, Ezekiel, Daniel, Micah Malachi

Page 8 © Rohn & Associates Design, Inc. 2009. All rights reserved
C olle C tio N of P ro gre SS of li turgi CA l it em S D e S ig N i D e AS
& Associates Design, Inc.
Rohn
A&e Committee Background research for Design ideas

St. John Neumann Church

St. Joseph

“The faithful husband will be highly praised

and he who is guardian of his Lord will be highly praised.”

images of Priesthood

• Priesthood of laity: sacraments of Baptism and Confirmation

• Ordained priesthood: multiplication of loaves and fishes and Last Supper

New testament figures

Apostles & St. Paul [Peter & Paul on ambo]

Saints depicting ‘faith’

ignatius of Antioch, Justin martyr, Jerome, Augustine, John Chrysostom, leo the great Charles Borromeo, robt Bellarmine, Thomas Aquinas, Pius x

fathers of early Church:

Ambrose, Cyril of Alexandria, irenaeus, Basil the great fathers of Church p. 56

Athanasius, John Chrysostom, Basil, gregor y Nazianzen (east)

Augustine, Ambrose, Jerome, gregor y the great ( West)

4 evangelists

matthew (man), mark (lion), luke (bull), John (eagle)

great saints of early church

iraneaus of lyons, Athanasius, Cyril of Alexandria, John the Baptist, John Chr ysostom, Jerome, Ambrose, Augustine of Hippo, gregor y the great, Patrick, Columba of iona

early female saints p. 26

[See also Eucharistic prayer with early saints M & F]

Brigid of ireland, margaret of Antioch, Catherine of Alexandria, Susanna, lucy

Anastasia, Perpetua & felicity, Cecilia, Agatha, Agnes (mass)

Anne, elizabeth

Doctors of Church

There are 33 doctors of the Church; 3 women:

• Teresa of Avila

• Therese of Lisieux

• Catherine of Siena

American Saints

John Neumann

elizabeth Seton

mother Cabrini

Kateri tekakwitha

rose Philip Duchesne

mother Katharine Driscoll

isaac Jogues & North American martyrs

mother guerin

*** 56 bell carillon may be played from Within the tower or from console of organ in church p. 7

See:

mary in Scripture

fathers of the Church – latin & greek

Doctors of the Church

Page 9 © Rohn & Associates Design, Inc. 2009. All rights reserved
C olle C tio N of P ro gre SS of li turgi CA l it em S D e S ig N i D e AS
& Associates Design, Inc. A&e Committee Background research for Design ideas
Rohn

St. John Neumann Church

5-2-08 Symbols

????? Patron of Austin Diocese

immaculate Conception Patroness of the united States

large palm tree tree of life with faithful as branches, or growth of Church from tiny seed into mighty tree

Hearts of Jesus and mary surrounded by 12 stars

mP mu-rho: mary, 2 letters of greek word for mother

xP Chi-rho, invokes crucifixion of Jesus and his role as the Christ

iC-xC and Ni-KA Christ Victor

representations of Satan snake, boar, dragon, griffin

instruments of xt’s passion lantern, hammer and nails, scourge, ladder and sponge, spear, knife crown of thorns

Bishops chair

4 great fathers (and Doctors) of Western Church

Jerome, gregor y, Augustine, Ambrose p. 39

Symbols of Apostles Thomas: builder’s rule and spear

James the less: club, instrument of martyrdom

matthew: t-square and purses (tax collector)

Peter: keys

Andrew: cross

James the greater: patron of pilgrims with scroll and staff

John: chalice and eagle

matthias: lance

Simon: saw, instrument of martyrdom

Philip: staff

Thaddeus: halberd

entrance doors entering paradise thru which faithful are invited to enter the life and grace of Christ

South dome: Holy trinity (explain in reverse with Beatitudes the most distant) external manifestations of trinity manifested thru the arches of

• Creation,

• Sanctification,

• Judgment and Triumph thru activities of

• prophets of OT and apostles,

• evangelists and doctors of NT who have extended the revelation of the trinity in time…

• then missionaries and pastoral, educational and social works that have brought that revelation to America.

9 Beatitudes east: Blessed are poor in spirit, meek, they that mourn

South: Blessed are they that hunger and thirst after justice, merciful West: Blessed are clean of heart, peacemakers, they that suffer persecution for justice sake

Pendentives American Saints: isaac Jogues & rene goupil & martyrs, Kateri tekakwitha Philippine Duchesne, mother Cabrini, elizabeth Seton

Central Dome (p. 16) Pantocrator (also see front cover – not the one in dome): to create a sense of awe in the presence of the divinity and majesty of Christ

• Heavenly Jerusalem: 4 scenes

1. Vertical trinity or Throne of grace. father seated with outstretch arms supporting His Son attached to Cross and below the Dove of the Holy Spirit. Below text: glory be to the father to the Son and to the Holy ghost.

2. ezekiel & 4 Winged Creatures: 4 evangelists matthew (man), mark (lion), luke (ox), John (eagle), prefigurations of St. John’s vision of apocalypse & hence link between ot & Nt p. 17

3. elijah lifted into heaven: prefigurement of Ascension of Christ

4. Woman of Apocalypse rev. 12:1

• 4 Cherubim with blue wings separate 4 scenes, praise Trinity

• Seraphim in a ring around the center of the dome, highest spirits in choirs of angels, represented in red amidst flames: aflame with the love of god

• 8 Archangels & angels in lower circle of dome each governing one of the 16 circumpolar constellation of the northern and southern skies (see p. 19). Angelus means messenger: mediators between heaven and earth.

- Archangel michael (-el: of god, warrior of god, lord and guardian of souls), pictured in armor, commander in chief of host of heaven, victorious over lucifer.

- Angel with coat of arms of Pope Paul Vi, wears sleeved vestments of deacons to represent servants of Christ in offering the eternal mass in heaven.

- Archangel raphael, healer of god, companion of tobias, protector of travelers, carries a pilgrim’s staff and candle, wears the casual: the roman wayfarer’s garb which is source of the liturgical chasuble.

- Angel, in roman tunic and toga, carrying coat of arms of Bishop of time.

- Archangel gabriel, ambassador/messenger of god (brought message to mary at Annunciation), holds scroll with words: Ave gratia Plena; on left wing: monogram of BVm, above left shoulder is Archangelic cross

- Angel with seal of diocese

- Archangel uriel, light of god, holds the sun in his hands, with coat of arms of artists because his function: pass judgment on artists at the last Judgment

- Angel holds a model of the Cathedral of St. louis, as its guardian

Page 10 © Rohn & Associates Design, Inc. 2009. All rights reserved
C olle C tio N of P ro gre SS of li turgi CA l it em S D e S ig N i D e AS
& Associates Design, Inc.
Rohn
A&e Committee Background research for Design ideas

St. John Neumann Church

- Archangel Barachiel (blessing of god), chief guardian angel, crowned with wreath of white roses

- Angel carries seal of city

- Archangel Juhudiel (teacher of god), holds the Book of Knowledge

- Angel dressed in 13 century garb with seal of St. louis (for us: St. John Neumann)

- Archangel Zadkiel (righteousness of god), stayed at hand of Abraham at sacrifice of isaac

- Angel, intercessor for all who worked for the Cathedral in any capacity, holds inscription: Pray for the builders and benefactors of this cathedral

- Archangel raguel, (protector of god)

- Angel dressed in an early chasuble holding coat of arms of Holy See

Pendentives see p. 21 for picture

Ne: blindfolded angel symbolizes old law with partial view of the revelation of god. Holding Ark of Covenant and Staff of Aaron (i had not a shadowy image of the future)

NW: angel with full vision represents fuller knowledge of the revelation of god in New law; holds cross, chalice and host (from the fullness of Christ i have received grace and truth)

Se: angel rep secular authority, symbolized by scepter and crown (ever y individual is subject to higher powers)

SW: angel of ecclesial authority symbolized by crosier and church (All power is given to it in heaven and on earth)

4 arches support’g dome

Arch of Creation (east) p. 22

god father with eye (omniscience) on each side; below michael with fiery sword in right hand and in left shield with inscription: Who is like god? rest of arch: world god created: 9 choirs of angels with crosiers, 6 days of creation in large discs: creation of light of firmament separating waters, trees & plants, sun, moon & planets, creation of birds & fishes, Adam & eve. (Ps 102:26 in the beginning o lord, you established the earth and the heavens are the work of your hands)

Arch of Sanctification (West) p.23

The spreading of the good news of salvation throughout the world under the guidance of the Holy Spirit, a mammoth dove dwelling in bosom of the father.

• Angels on either side bear 7 smaller doves symbolizing 7 gifts: fear of Lord, piety, knowledge, understanding, wisdom, counsel, fortitude.

• Right: saints inspired by HS to spread the seed of faith in world: Augustine, Francis Xavier, francis Solano; Columban, Cyril & methodius; martin, titus, timothy.

• Left: faithful expounding the doctrine of faith: Justin, Cyprian, Augustine, Basil, Jerome, Alphonsus liguori; Bonaventure, francis de Sales, Peter Canisius. Inscription on arch: Ps 104:30 He sent forth his Spirit, and they were created, and He renewed the face of the earth.

Arch of Judgment (South) p. 24

last judgment with Christ as judge, encircled by rainbow at top center.

• Right side an angel with scepter of Christ’s authority; left angel holds a books of judgment; bottom left 3 of dead in tattered clothes & eyes closed (cannot see xt ) & rising from tombs; behind them the ruins of a city and figures of the apocalyptic red horsemen – war & fire – ravagers of the world on the last day. Then St. Peter at gates of paradise with roman chasuble and primitive of 1st cent. Bishop.

• Left and above: angel holding a barque, symbol of the Church, channel of Christ’s grace on earth; then St. Dismas, the good thief, the 1st to enter paradise; on this side of xt , the BVm as mother of mercy Right” John the Baptist offering his head as a sacrifice;

• Below Michael the Archangel, sheathing sword in his scabbard (battle for souls is over), next St. Odile (established feast of all Souls in 10th cent) as shepherd of dying with lantern in hand (invoked at hour of death); bottom: group of doomed, nameless and faceless carrying black shield with white skull & ice and snow all around (no love).

Inscription on arch: He has prepared His throne in judgment, and He has judged the whole world in equity.

Arch of Triumph (North)

Church triumphant in heaven with figures from ot & Nt. left, great saints from New Dispensation:

• Adalbert, Rose of Lima (1st canonized saint from Western Hemisphere), Elizabeth of Hungary;

• Founders of religious orders: Francis of Assisi, Ignatius Loyola, Benedict:

• Great national patrons: Boniface of Germany, Louis of France; Patrick of Ireland;

• Apostles: Peter, Paul & John; Xt’s mother. Right, heralds of good news of salvation from OT

• Immediate precursor: John Baptist;

• Prophets: Daniel, Jeremiah, Ezekiel, Isaiah;

• Kings: Hezekiah, David, Solomon;

• Leaders: Samuel, Joshua, Moses;

• Patriarchs: Melchizedek, Abraham, Noah. Inscription on arch: You have redeemed us, o lord god, in your blood and have made of us a kingdom for our god p. 26

Page 11 © Rohn & Associates Design, Inc. 2009. All rights reserved
C olle C tio N of P ro gre SS of li turgi CA l it em S D e S ig N i D e AS Rohn & Associates Design, Inc. A&e Committee Background research for Design ideas

St. John Neumann Church

transepts RESURRECTION

• Resurrection garden with Mar y Magdalene as Apostle of Resurrection to the Apostles p. 28 If xt has not risen your faith is vain

• Descent from Cross, procession to tomb, centurion: This man was the Son of God

• Christ with disciples on road to Emmaus & breaking of bread: They knew Him in the breaking of the bread.

Resurrection theme p. 30:

• Raising of Lazarus: Lazarus come forth

• Jonah and whale

• Doubting Thomas: My Lord and my God

• Eucharist: risen XT

• Clump of wheat springing up from seed: Unless the seed dies…

• Phoenix: consumed by fire & rose from ashes

• Large Cross with gold crown: XT ’s death & resurrection

PENTECOST

• Gigantic flame with Mary & 12: I will pour out my spirit on all flesh

• Effects of Holy Spirit in actions of Peter and Paul

• Peter with walls of Jerusalem speaking boldly: You will receive the gift of the HS

• Paul with Barnabas preaching to gentiles: I have made you light to the gentiles.

Pentecost theme:

• Baptism of Christ, the first manifestation of Trinity: I will baptize with HS

• Ascension of XT. Would send the HS to teach you all things

• Flame hovering over water, at top: creative power of love and life, supernatural & natural p. 31 Thomas, builder’s rule and spear.

EUCHARIST

• Peacocks: paradise & immortality & grace poured out thru Mass

• Alpha & Omega: Christ as Beginning and End of all things

1. Priesthood of ot & Nt

• Cross and throne: XT ’s death, both priest and victim

• OT priests: Abel, Aaron, Melchizedek Simon, son of Onias

• Saintly priests of new dispensation: Gregory the Great, Athanasius, Peter Damien, Anselm of Canterbury

• Abraham sacrificing Isaac: God will provide a lamb for a burnt offering (Gn 22:8)

• Melchizedek offering bread and wine, unbloody sacrifice: There shall be offered a clean oblation (gn 22:8) p. 34

2. Christ and eucharist

• Lamb on altar with banner as seen in Revelations: Behold lamb of God… p 34

• Chalice and host: fulfillment of sacrifice of Melchizedek

• Seder, celebration of Passover, OT prototype of Eucharist

• Nativity: Incarnation, word made flesh: Glory to God in highest and peace…

• Miracle of Cana

• Cross surrounded by sun, moon, stars, water and God Father: Thou art my beloved Son in whom I am well pleased p. 35

• Last Supper, fulfillment of the Passover Eucharist theme

1. Symbols of eucharist

• 4 Seraphim with 6 wings (Is. 6:2) to praise and adore Christ in Divine Liturgy: Sanctus, Sanctus, Sanctus

• Quatrefoil medallion with 2 fish and fishing net: Christ in Eucharist and apostles as fishers of men

• Star of David: Ancestry of Christ; Your throne, O God is forever and ever (p 41 for Latin)

• Pelican feeding its young with own flesh: Christ in Eucharist

• Crown of thorns; grapevine; deer drinking from fountain of living water (ref: Ps. 42)

• Chi-Rho (XP): Christ as source of all grace

• 12 apostles in dome with words: Go therefore teach all nations, baptizing them in the name of the father … p. 37

• Behold the Bread of Angels

• Medallion with chalice and monograph IHS (first 3 letters of ‘Jesus” in Greek), represents Christ as great High Priest p. 44

• Sacraments of the Eucharist: Holy Orders, Holy Eucharist, Extreme Unction

2. 4 Doctors of Church on eucharist

• East: Cyril of Jerusalem, John Chrysostom

• West: Ambrose, Aquinas

3. 9 Choirs of Angels surrounding altar as they surround throne of god in heaven; choristers of god in heaven (good theme for choir also)

• West wall

• Seraphim, fiery spirits of love with leader Uriel with a sword

• Cherubim, many eyed with Jophkiel

• Thrones, throne bearers of the divinity with Japhkiel, with wheel of fire at his feet

• North wall: Princes of heaven, each with scepter and seal of God, IC-XC

• Dominions, typifying God’s dominion over world, with Jadkiel

• Virtues, typifying invincible courage, with Mankiel

• Powers, protectors of mankind, with Raphael

• East wall

• Principalities, protectors of rulers, with Shamael

• Archangels, servants of the throne of God, with Michael

• Angels, God’s servants in various capacities, with Raphael (though not formally their leader but often shown with them)

Page 12 © Rohn & Associates Design, Inc. 2009. All rights reserved
C olle C tio N of P ro gre SS of li turgi CA l it em S D e S ig N i D e AS Rohn & Associates Design, Inc. A&e Committee Background research for Design ideas

Rohn

St. John Neumann Church

trinity Dome

With Archangels michael, gabriel, raphael. uriel. See p. 40 for a detailed description of the symbol of the trinity

Blessed Sacrament Chapel

Christ in Blessed Sacrament: 2 adoring angels and 8 cherubs: Behold the bread of angels

Pulpit

outstanding preachers of the Word of god

1. Symbols for 4 evangelists

• John: eagle

• Matthew: human head

• Mark: lion

• Luke: ox

2. 4 eastern fathers:

• John Chr ysostom

• Basil

• Athanasius

• Gregory Nazianzen

3. 4 Western fathers:

• Ambrose

• Augustine

• Jerome

• Gregory the Great

mary Chapel

Scenes of mary

• Presentation by Anne and Joachim and Mary, Health of Sick

• Annunciation and Mary, Mother of Mercy: her mercy to all who turn to her

• Visitation and Mary, Help of Christians (Lepanto)

• Assumption and Mary, Refuge of Sinners

A&e Committee Background research for Design ideas

All Souls Chapel (our Catafalque area)

Symbols of Christian death

• 2 Medallions at opposite ends focus on suffering, sorrow, and death that were a part of the life of Christ Himself and His Blessed mother Christ, the man of Sorrows our lady of Sorrows

• Burial of XT and apparition to Mary Magdalene in garden

• 2 fold nature of death: death and hope for life and happiness beyond the grave.

- Winged hour glass: fleeting nature of time and all things mortal

- mosaic stars: symbol of hope

- Crossed palms ( immortality and victory over death) surmounted by burning torch (light of faith that enables the Christian to see beyond death) next to stars

- in center between stars and cross and palm symbols is another set of crossed palms surmounted by a cross (death of Christ and victory of His resurrection, a promise of like triumph for every Christian who dies in the lord.)

- Crossed palms and a crown beneath a dove with an olive branch in its mouth and the whole arched by a rainbow: god has made a covenant with man (rainbow) so that eternal peace (olive branch and dove) and triumph over suffering and death (crossed palms) and the reward of eternal life in heaven (crown) will be assured to those who die in the lord. may they rest in peace. (requiescant in pace)

- lighthouse and ship: hope

- tree: life

- Snail: eternal life

- Dolphin: Christ

- xP: Chi-rho

- Alpha and omega: Christ as the beginning and end of all Christian life

- Cross

- lighted candle in candlestick: light of faith which enkindles a hope for life eternal. may perpetual light shine upon them (lux perpetua luceat eis).

- Anchor and dolphin with Alpha and omega to each side: anchor (hope), cross (xt’s redemptive death), dolphin (symbol of xt), Alpha & omega (beginning & end). requiem aeternam dona eis Domine (give them eternal life, o lord).

- Chalice surmounted by host: eucharist and mass (means available to every Christian to participate in salvific death and resurrection of Christ). Signum futurae gloriae (Sign of eternal glory).

- risen Christ: most glorious sign of eternal life carrying banner of victory over death. 2 eagles or phoenix with inscription: Jesus Christ, Son of god, our Savior. i am resurrection and the life (ego sum resurrection et vita).

- Crux fidelis – lux perennial (faithful cross – light eternal)

Page 13 © Rohn & Associates Design, Inc. 2009. All rights reserved
C olle C tio N of P ro gre SS of li turgi CA l it em S D e S ig N i D e AS
& Associates Design, Inc.

We have assembled the package of sketches and descriptions that we developed on site or discussed in conversations and finished in Pittsburgh.

our thanks for ed’s cooperation in working with us to supply preliminary measurements as much as possible. The package includes the following:

Plan of the space

Dwg # item type location Theme

g-1 Art glass West transept Sanctification (Blessed Mother side)

Art glass West transept Windows - Sanctification

The center portion at the top are swirling flames … This is to represent god the father (the light of god) This is supposed to tie in with the top of the other transept glass on the east side.

from it are flowing the waters of life, they spiral out to the sides. in these waters are the saints, martyrs they are processing from the early days to the present.

We are showing them from the earliest martyrs and saints on the top to the newer saints of today. John Paul ii and mother Theresa as well as just lay people (adults and children) mixed in with them will be toward the bottom. The saints & martyrs should be holding symbols so that they can be identified.

Dwg # item type location Theme

Art glass West transept Windows - Sanctification – Cont’d.:

The flames come from the center of the top thru the water and surround the Pentecost scene. flames should be red gold as in dome. Around the image of god the father there are the 7 gifts represented as doves in circles.

The left and right arches at the top are to show the same shape of the dome and the dark waters of the firmament.

g-2 Art glass east transept Creation (St. Joseph side)

Art glass east transept Windows - Creation

outside the arch going across the 3 upper windows are the dark waters of the firmament. inside the arch across the upper 3 is the creation of the heavens.

The lower windows represent the creation of the earth (Adam & eve) in the center, the tree of life in the center … on the right is the water, and the creatures that would be found in water … on the left are the plants and animals & birds found on earth.

G-3 Art Glass Balcony (South) Design “A”

resurrected Christ w/Symbols

Art glass South Balcony rose Window – resurrected Christ w/Symbols

The resurrected Christ in the center holding the world flanked with the symbols of Alpha and omega

Design “B”

Resurrection Christ w/Angels

Design “C”

Choirs of Angels

Dwg # item type location Theme

G-4 Art Glass Gathering Space Design “A”

Saints of the Americas

Design “B”

Possible Saints with Scenes

Design “C”

Vignettes of St. John Neumann’s Life

Page 14 © Rohn & Associates Design, Inc. 2009. All rights reserved A&e Criteria for formulating Preliminary Designs images and Descriptions of Preliminary Designs St. John Neumann Church C olle C tio N of P ro gre SS of li turgi CA l it em S D e S ig N i D e AS Rohn & Associates Design, Inc.

St. John Neumann Church

mo-1 mosaic Dome

top Center: trinity Symbol

Surrounded by: 12 Seraphims & flames

Then 4 scene quadrants melchisidech, Abraham & isaac, Nativity & Wedding at Cana

Between the 4 quadrants: 4 Symbols of the evangelists

Surrounded by: 12 Apostles & the 12 tribes of israel (in groups of 3) alternating with flowing water of life behind them

Surrounded by: “Our Father who art in Heaven + Hallowed be Thy name + Thy Kingdom come + Thy will be done – on earth as it is In Heaven”

r-1 mosaic Pendentives Soul of the earth

Three dimensional angels holding translucent spheres or orbs (longitude and latitude) representing the soul of the earth

S-1 Sculpture Blessd mother Chapel Queen of Heaven & earth figure executed in Statuary White Carrara marble standing on a globe of the world showing the united States with a separate gold jeweled crown. Sculpture will be mounted away from the wall as if she were “floating”

Mosaic Blessed Mother Chapel Back wall

executed in smalti mosaics. Background will be a rich blue having 12 large gold stars and numerous small gold stars randomly spaced. The Blessed mother will be surrounded by a gold aura of the miraculous metal going from lighter gold from behind her to a rich gold. Side openings to shrine to have floor to ceiling laminated glass panels with sandblasted clouds carved stars golf leafed

Dwg # item type location Theme

S-2 Sculpture St. Joseph & Child Shrine Joseph as father

figure executed in Statuary White Carrara marble holding the child Jesus. Joseph & the child Jesus will both be gazing down at us. Joseph is to represent the loving father, protector of his family. Sculpture will be mounted away from the wall as if he were “floating” Mosaic St. Joseph & Child Back wall executed in smalti mosaics. Background will be red-brown. St. Joseph will be surrounded by an aura of gold with a red gold band. white lilies with gold emanating from behind him going from rich gold to lighter gold then moving into red-brown background light then going to richer tones of red-brown.

A&e Criteria for formulating Preliminary Designs images and Descriptions of Preliminary Designs

S-3 Sculpture Gathering Space St. John Neumann

St. John Neumann as priest sculpture executed in various shades of marble. figure will be holding a real monstrance. He was the first to establish 40 hours of devotion.

St. John Neumann - Statue Pedestal

Pedestal will be executed in stone with the words

O Sacrament Most Holy + O Sacrament Divine!

All praise and all thanksgiving + Be every moment Thine!

S-4 Sculpture exterior (Sacristy) 3 Arch Angels

3 Arch Angels holding a cross … michael, raphael , gabriel. executed in Statuary White Carrara marble.

S-5 Sculpture Sanctuar y – Crucifix looking up saying last words

Corpus will be executed as a wood carving finished in light see-through glazes to see the warmth of the wood.

Dwg # item type location Theme

S-6 Sculptures Through-out church Community of Saints

The columns of the church will be in a cruciform shape and saints will be mounted into each of the 4 corners of the columns separated by a cap/base. The figures will be 3’ figures and will be stacked up 3 high giving a total per column of 12. Dwgs dated 5-8-08 there will be 12 full columns and 6 half columns.

S-7 Stations North transept Walls

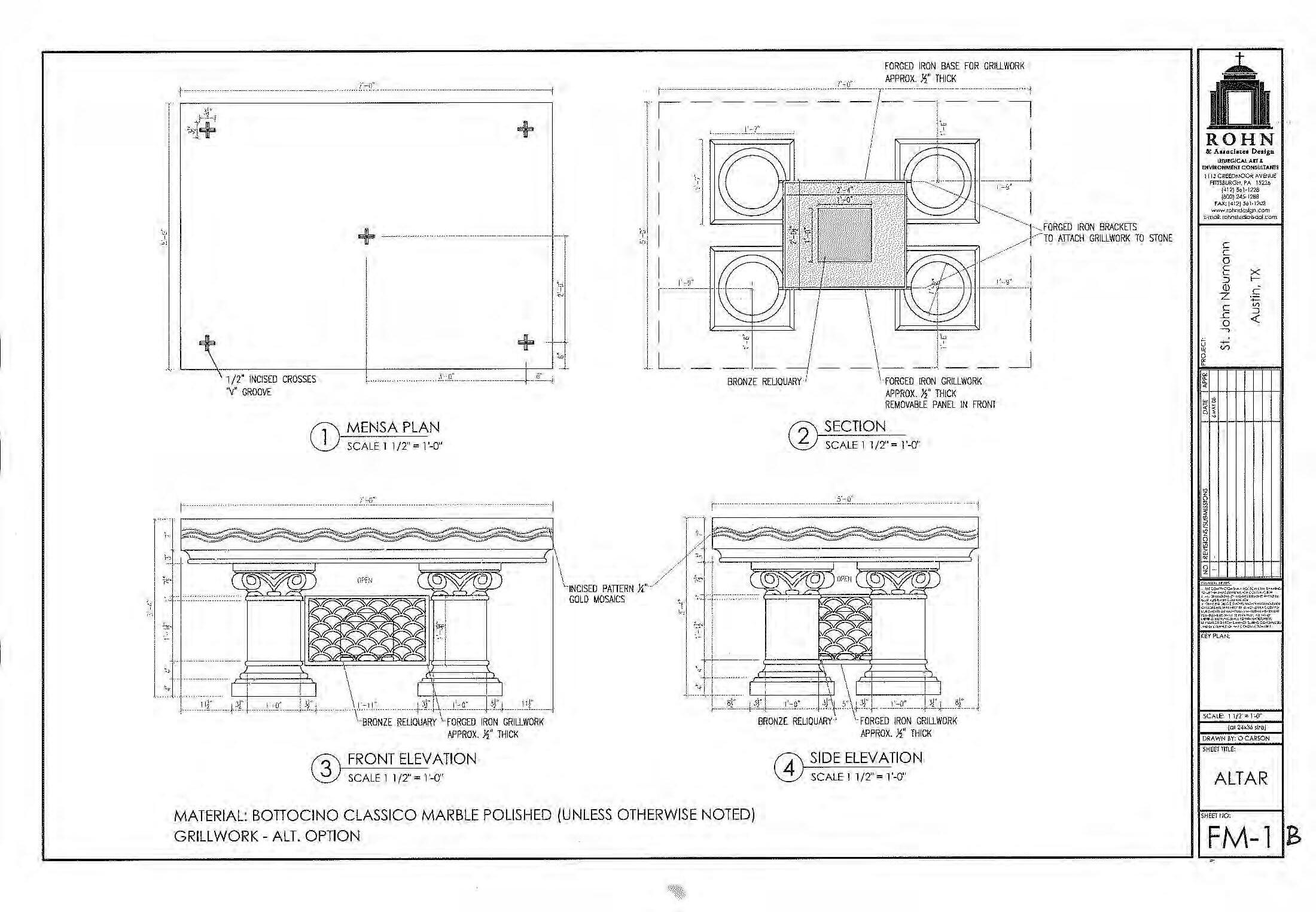
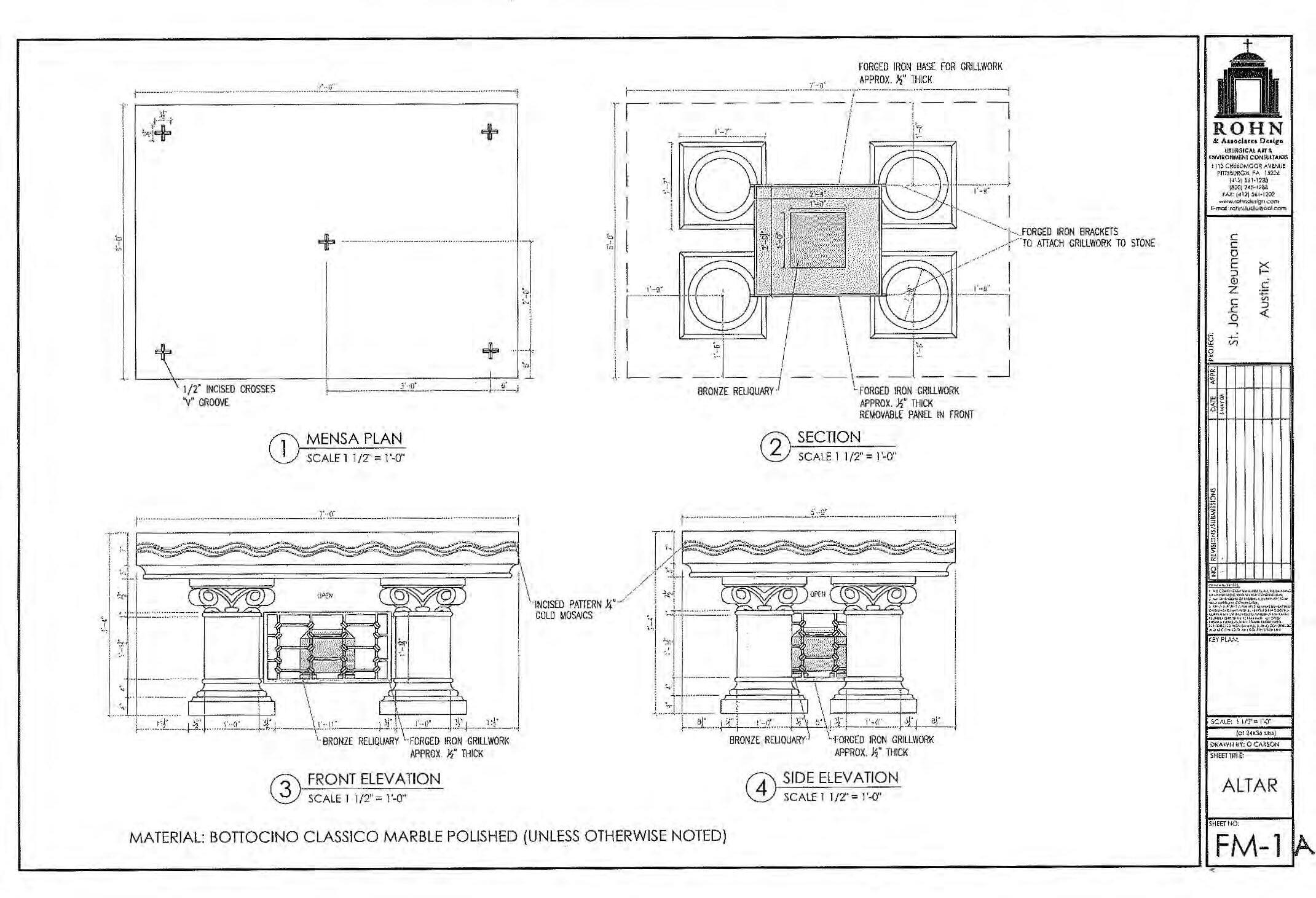
fm-1A Altar table Sanctuar y 1-2nd century simple, powerful strength

Simple design showing power, strength and permanence. The building itself is a very powerful design. This design brings the attention to the altar for the celebration of the liturgy. Columns very substantial at 12” width, with a ver y substantial 10” thick mensa fabricated in Bottocino Classico marble. Columns are of the composite order created by the romans which is a combination of the ionic and Corinthian orders and speculated that the style dates as early as the first century A.D. We have used a forged iron grillwork between the columns that is a similar style to the grillwork used at Peter tomb in rome showing a knot at each of the intersections of the grill. reliquary will be of bronze and clearly visible. Since the image of water is used consistently through the glass and mosaic designs, we incorporated it into the mensa of the altar and will be the common “thread“ that ties all of the liturgical furnishings together.

Page 15 © Rohn & Associates Design, Inc. 2009. All rights reserved
C olle C tio N of P ro gre SS of li turgi CA l it em S D e S ig N i D e AS
& Associates Design, Inc.
Rohn

Rohn

St. John Neumann Church

trinity Dome

With Archangels michael, gabriel, raphael. uriel. See p. 40 for a detailed description of the symbol of the trinity

Blessed Sacrament Chapel

Christ in Blessed Sacrament: 2 adoring angels and 8 cherubs: Behold the bread of angels

Pulpit

outstanding preachers of the Word of god

1. Symbols for 4 evangelists

• John: eagle

• Matthew: human head

• Mark: lion

• Luke: ox

2. 4 eastern fathers:

• John Chr ysostom

• Basil

• Athanasius

• Gregory Nazianzen

3. 4 Western fathers:

• Ambrose

• Augustine

• Jerome

• Gregory the Great

mary Chapel

Scenes of mary

• Presentation by Anne and Joachim and Mary, Health of Sick

• Annunciation and Mary, Mother of Mercy: her mercy to all who turn to her

• Visitation and Mary, Help of Christians (Lepanto)

• Assumption and Mary, Refuge of Sinners

A&e Criteria for formulating Preliminary Designs images and Descriptions of Preliminary Designs

All Souls Chapel (our Catafalque area)

Symbols of Christian death

• 2 Medallions at opposite ends focus on suffering, sorrow, and death that were a part of the life of Christ

Himself and His Blessed mother Christ, the man of Sorrows our lady of Sorrows

• Burial of XT and apparition to Mary Magdalene in garden

• 2 fold nature of death: death and hope for life and happiness beyond the grave.

- Winged hour glass: fleeting nature of time and all things mortal

- mosaic stars: symbol of hope

- Crossed palms ( immortality and victory over death) surmounted by burning torch (light of faith that enables the Christian to see beyond death) next to stars

- in center between stars and cross and palm symbols is another set of crossed palms surmounted by a cross (death of Christ and victory of His resurrection, a promise of like triumph for every Christian who dies in the lord.)

- Crossed palms and a crown beneath a dove with an olive branch in its mouth and the whole arched by a rainbow: god has made a covenant with man (rainbow) so that eternal peace (olive branch and dove) and triumph over suffering and death (crossed palms) and the reward of eternal life in heaven (crown) will be assured to those who die in the lord. may they rest in peace. (requiescant in pace)

- lighthouse and ship: hope

- tree: life

- Snail: eternal life

- Dolphin: Christ

- xP: Chi-rho

- Alpha and omega: Christ as the beginning and end of all Christian life

- Cross - lighted candle in candlestick: light of faith which enkindles a hope for life eternal. may perpetual light shine upon them (lux perpetua luceat eis).

- Anchor and dolphin with Alpha and omega to each side: anchor (hope), cross (xt’s redemptive death), dolphin (symbol of xt), Alpha & omega (beginning & end). requiem aeternam dona eis Domine (give them eternal life, o lord).

- Chalice surmounted by host: eucharist and mass (means available to every Christian to participate in salvific death and resurrection of Christ). Signum futurae gloriae (Sign of eternal glory).

- risen Christ: most glorious sign of eternal life carrying banner of victory over death. 2 eagles or phoenix with inscription: Jesus Christ, Son of god, our Savior. i am resurrection and the life (ego sum resurrection et vita).

- Crux fidelis – lux perennial (faithful cross – light eternal)

Page 16 © Rohn & Associates Design, Inc. 2009. All rights reserved
C olle C tio N of P ro gre SS of li turgi CA l it em S D e S ig N i D e AS
& Associates Design, Inc.

St. John Neumann Church

fm-1B Altar table Same basic design as above only incorporating a difference grillwork pattern that ties the arches of the building into the design.

fm-2 tabernacle eucharistic Chapel 1-2nd century

Throne follows the same basic design of altar table so that the furnishings are in harmony with one another.

P-1 Panels entrance Doors mysteries of the rosary

Dwg # item type location Theme

t-1 tympanum Above exterior enthroned Christ & entrance Blessed Mother

Pt-1 Painting Chapel Back Wall Divine mercy

marble furniture:

1. Ambo

2. Baptismal font

3. Credence table

4. Holy Water fonts

5. Catafalque - memorial niche/book/etc.

6. Catafalque - flower Shelves

Wood furniture:

1. Church – Presider’s Chair

2. Church – Deacon’s Chair

3. Church – lectern

4. Church – Cantor Stand

5. Church – Wedding Kneeler

6. Church – enthronement of the Word

7. Church – table for the gifts

8. Church – Ambr y

9. Baptister y – Shelf & Cabinet

10. reconciliation Chapel Screen

11. Chapel – Altar table

A DD itio NA l Dr AW i N g S S ti ll N ee D e D:

Sculptures:

1. tympanum - 2nd entrance design

2. exterior – St. John Neumann sculpture

Art glass:

1. Dome oculus – 20’ diameter

2. Dome glass along the outer ring

3. Chapel – windows (nave)

4. Chapel – rose window

5. Cr y room – window

12. Chapel – Ambo

13. Chapel – Presider’s Chair

14. Chapel – Deacon’s Chair

15. Chapel – Credence table (built-in)

metalwork:

1. tabernacle

2. Sanctuar y lamp

3. Church – Altar Candles

4. Paschal Candle

5. Church – Processional Cross

6. Advent Wreath

7. Consecration Candles

8. Chapel – Altar Candles

9. Chapel – Processional Cross

10. Catafalque – Wall Candles

11. Catafalque – gate (radius) – forged iron

Page 17 A&e Criteria for formulating Preliminary Designs images and Descriptions of Preliminary Designs © Rohn & Associates Design, Inc. 2009. All rights reserved
C olle C tio N of P ro gre SS of li turgi CA l it em S D e S ig N i D e AS
& Associates Design, Inc.
Rohn
Page 18
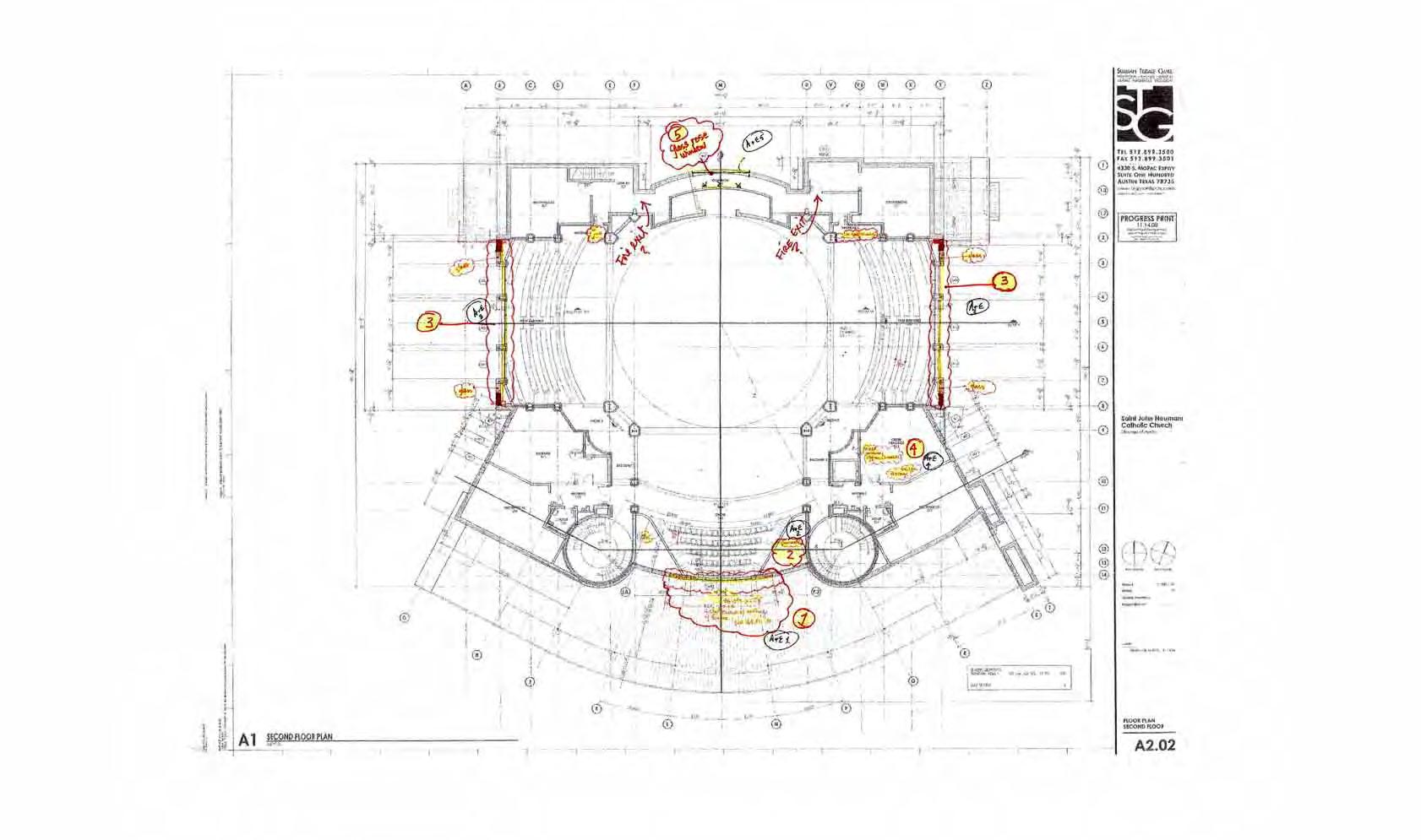
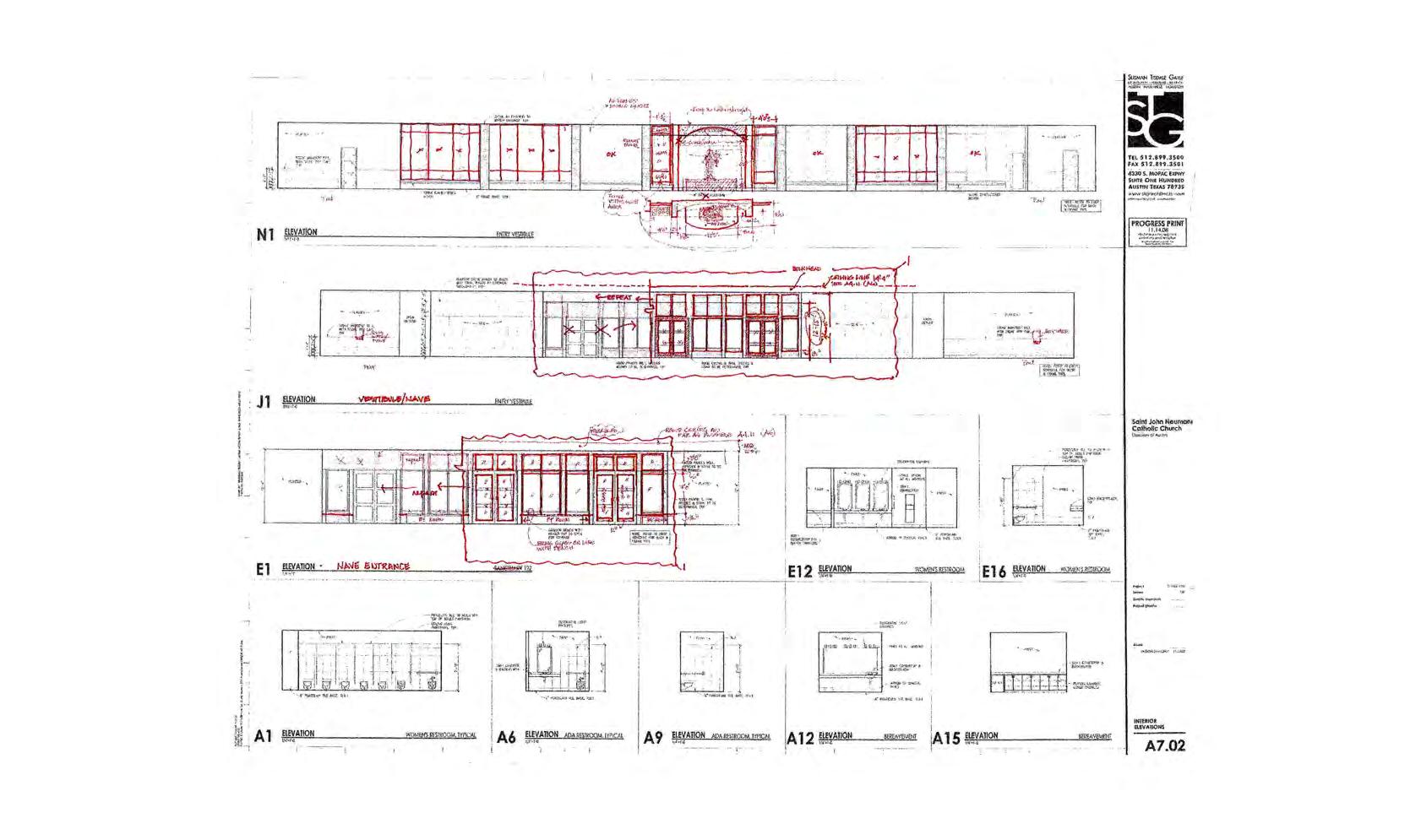
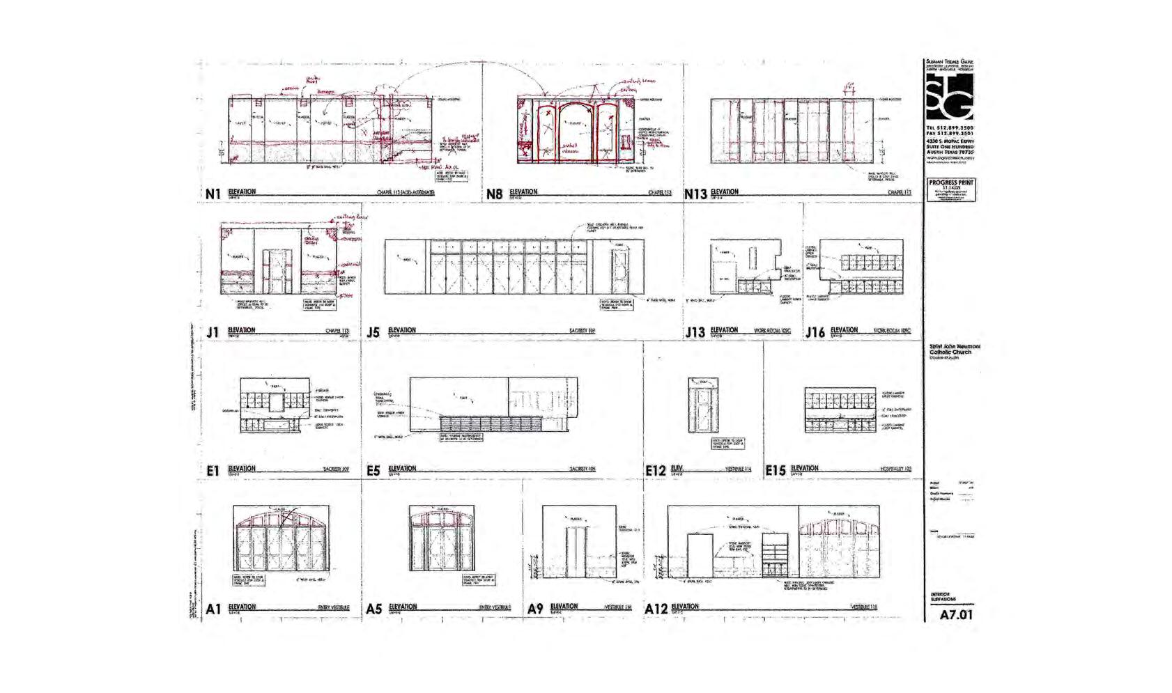
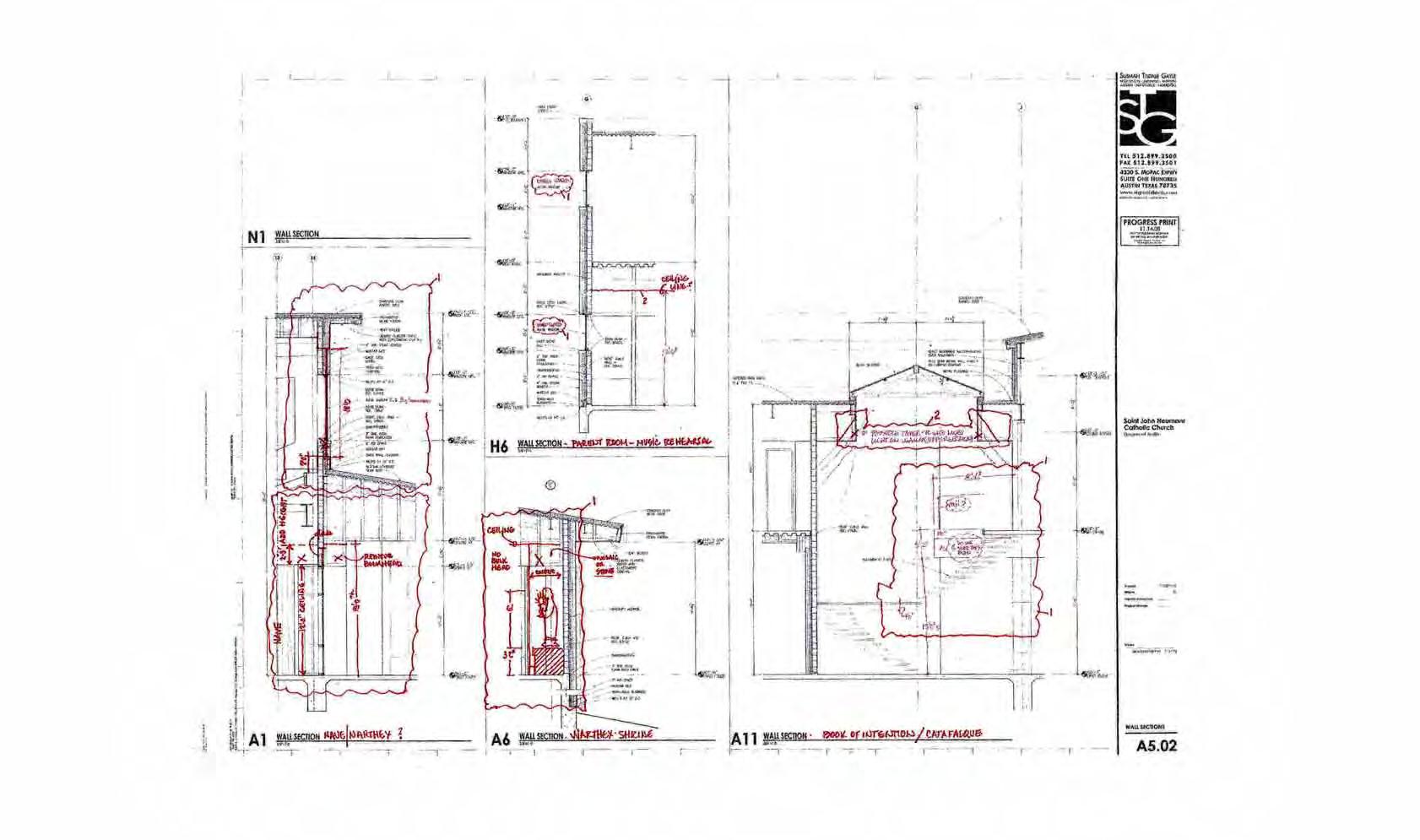
A&e’s and liturgical Designer Suggested revisions to Architectural Drawings, Dated Nov 14, 2008 © Rohn & Associates Design, Inc. 2009. All rights reserved St. John Neumann Church C olle C tio N of P ro gre SS of li turgi CA l it em S D e S ig N i D e AS Rohn Associates Design, Inc.
2. Design History

Suggested Modifications to Architectural Drawings

Date here MO-01

Page 19 Rohn & Associates Design, Inc.
Saint John Neumann Catholic Church Diocese of Austin, Texas

Saint John Neumann Catholic Church Diocese of Austin, Texas Suggested Modifications to Architectural Drawings

Date here MO-02

Page 20 Rohn &
Inc.
Associates Design,

Saint John Neumann Catholic Church Diocese of Austin, Texas Suggested Modifications to Architectural Drawings

Date here MO-03

Page 21 Rohn & Associates Design, Inc.

Suggested Modifications to Architectural Drawings

Date here MO-04

Page 22 Rohn & Associates Design, Inc.
Saint John Neumann Catholic Church Diocese of Austin, Texas

Suggested Modifications to Architectural Drawings

Date here MO-05

Page 23 Rohn & Associates Design, Inc.
Saint John Neumann Catholic Church Diocese of Austin, Texas

Suggested Modifications to Architectural Drawings

Date here MO-06

Page 24 Rohn & Associates Design, Inc.
Saint John Neumann Catholic Church Diocese of Austin, Texas

Suggested Modifications to Architectural Drawings

Date here MO-07

Page 25 Rohn & Associates Design, Inc.
Saint John Neumann Catholic Church Diocese of Austin, Texas

Suggested Modifications to Architectural Drawings

Date here MO-08

Page 26 Rohn & Associates Design, Inc.
Saint John Neumann Catholic Church Diocese of Austin, Texas

Suggested Modifications to Architectural Drawings

Date here MO-09

Page 27 Rohn & Associates Design, Inc.
Saint John Neumann Catholic Church Diocese of Austin, Texas

Suggested Modifications to Architectural Drawings

Date here MO-10

Page 28 Rohn & Associates Design, Inc.
Saint John Neumann Catholic Church Diocese of Austin, Texas

Suggested Modifications to Architectural Drawings

Date here MO-11

Page 29 Rohn & Associates Design, Inc.
Saint John Neumann Catholic Church Diocese of Austin, Texas

Suggested Modifications to Architectural Drawings

Date here MO-12

Page 30 Rohn & Associates Design, Inc.
Saint John Neumann Catholic Church Diocese of Austin, Texas

Suggested Modifications to Architectural Drawings

Date here MO-13

Page 31 Rohn & Associates Design, Inc.
Saint John Neumann Catholic Church Diocese of Austin, Texas

Suggested Modifications to Architectural Drawings

Date here MO-14

Page 32 Rohn & Associates Design, Inc.
Saint John Neumann Catholic Church Diocese of Austin, Texas

Suggested Modifications to Architectural Drawings

Date here MO-15

Page 33 Rohn & Associates Design, Inc.
Saint John Neumann Catholic Church Diocese of Austin, Texas

Suggested Modifications to Architectural Drawings

Date here MO-16

Page 34 Rohn & Associates Design, Inc.
Saint John Neumann Catholic Church Diocese of Austin, Texas

Suggested Modifications to Architectural Drawings

Date here MO-17

Page 35 Rohn & Associates Design, Inc.
Saint John Neumann Catholic Church Diocese of Austin, Texas

Suggested Modifications to Architectural Drawings

Date here MO-18

Page 36 Rohn & Associates Design, Inc.
Saint John Neumann Catholic Church Diocese of Austin, Texas

Suggested Modifications to Architectural Drawings

Date here MO-19

Page 37 Rohn & Associates Design, Inc.
Saint John Neumann Catholic Church Diocese of Austin, Texas

Suggested Modifications to Architectural Drawings

Date here MO-20

Page 38 Rohn & Associates Design, Inc.
Saint John Neumann Catholic Church Diocese of Austin, Texas

3.

Page 39
© Rohn & Associates Design, Inc. 2009. All rights reserved
John Neumann Church C olle C tio N of P ro gre SS of li turgi CA l it em S D e S ig N i D e AS Rohn Associates Design, Inc.
mosaics a. Dome b. Pendentives c. Shrine Backgrounds
St.
Page 40
Neumann Church C olle C tio N of P ro gre SS of li turgi CA l it em S D e S ig N i D e AS Rohn & Associates Design, Inc. © Rohn & Associates Design, Inc. 2009. All rights reserved
St. John
Page 41 © Rohn & Associates Design, Inc. 2009. All rights reserved a. Dome mosaics
Church C olle C tio N of P ro gre SS of li turgi CA l it em S D e S ig N i D e AS Rohn & Associates Design, Inc.
St. John Neumann
Page 42 © Rohn & Associates Design, Inc. 2009. All rights reserved a. Dome mosaics
Church C olle C tio N of P ro gre SS of li turgi CA l it em S D e S ig N i D e AS Rohn & Associates Design, Inc.
St. John Neumann

St. John Neumann Church

Design: Rohn & Associates Design Inc.,

Sketch is an interpretation by Mellini Mosaic and Glass

Design: Rohn & Associates Design Inc.,

Sketch is an interpretation by Mellini Mosaic and Glass

Page 43 © Rohn & Associates Design, Inc. 2009. All rights reserved a. Dome mosaics
C olle C tio N of P ro gre SS of li turgi CA l it em S D e S ig N i D e AS Rohn & Associates Design, Inc.
Page 44 © Rohn & Associates Design, Inc. 2009. All rights reserved a. Dome mosaics
Sketch
interpretation
St. John Neumann Church C olle C tio N of P ro gre SS of li turgi CA l it em S D e S ig N i D e AS Rohn & Associates Design, Inc.
Design: Rohn & Associates Design Inc.,
is an
by Mellini Mosaic and Glass
Page 45 © Rohn & Associates Design, Inc. 2009. All rights reserved a. Dome mosaics Design: Rohn & Associates Design Inc., Sketch is an interpretation by Mellini Mosaic and Glass St. John Neumann Church C olle C tio N of P ro gre SS of li turgi CA l it em S D e S ig N i D e AS Rohn & Associates Design, Inc.
Page 46 © Rohn & Associates Design, Inc. 2009. All rights reserved a. Dome mosaics
St. John Neumann Church C olle C tio N of P ro gre SS of li turgi CA l it em S D e S ig N i D e AS Rohn & Associates Design, Inc.
Design: Rohn & Associates Design Inc., Sketch is an interpretation by Mellini Mosaic and Glass
Page 47 © Rohn & Associates Design, Inc. 2009. All rights reserved a. Dome mosaics
John Neumann Church C olle C tio N of P ro gre SS of li turgi CA l it em S D e S ig N i D e AS Rohn & Associates Design, Inc.
Design: Rohn & Associates Design Inc., Sketch is an interpretation by Mellini Mosaic and Glass
St.
Page 48 © Rohn & Associates Design, Inc. 2009. All rights reserved a. Dome mosaicsresearch St. John Neumann Church C olle C tio N of P ro gre SS of li turgi CA l it em S D e S ig N i D e AS Rohn & Associates Design, Inc.
Page 49 © Rohn & Associates Design, Inc. 2009. All rights reserved a. Dome mosaics research St. John Neumann Church C olle C tio N of P ro gre SS of li turgi CA l it em S D e S ig N i D e AS Rohn & Associates Design, Inc.
Page 50 © Rohn & Associates Design, Inc. 2009. All rights reserved a. Dome mosaics research St. John Neumann Church C olle C tio N of P ro gre SS of li turgi CA l it em S D e S ig N i D e AS Rohn & Associates Design, Inc.
Page 51 © Rohn & Associates Design, Inc. 2009. All rights reserved a. Dome mosaics research St. John Neumann Church C olle C tio N of P ro gre SS of li turgi CA l it em S D e S ig N i D e AS Rohn & Associates Design, Inc.
Page 52 © Rohn & Associates Design, Inc. 2009. All rights reserved a. Dome mosaics research St. John Neumann Church C olle C tio N of P ro gre SS of li turgi CA l it em S D e S ig N i D e AS Rohn & Associates Design, Inc.
Page 53 © Rohn & Associates Design, Inc. 2009. All rights reserved a. Dome mosaics research St. John Neumann Church C olle C tio N of P ro gre SS of li turgi CA l it em S D e S ig N i D e AS Rohn & Associates Design, Inc.
Page 54 © Rohn & Associates Design, Inc. 2009. All rights reserved b. Pendentives
Church C olle C tio N of P ro gre SS of li turgi CA l it em S D e S ig N i D e AS Rohn & Associates Design, Inc.
St. John Neumann
Page 55 © Rohn & Associates Design, Inc. 2009. All rights reserved b. Pendentives
C olle C tio N of P ro gre SS of li turgi CA l it em S D e S ig N i D e AS Rohn & Associates Design, Inc.
St. John Neumann Church
Page 56 © Rohn & Associates Design, Inc. 2009. All rights reserved b. Pendentives Design: Rohn & Associates Design Inc., Sketch is an interpretation by Mellini Mosaic and Glass St. John Neumann Church C olle C tio N of P ro gre SS of li turgi CA l it em S D e S ig N i D e AS Rohn & Associates Design, Inc.
Page 57 © Rohn & Associates Design, Inc. 2009. All rights reserved b. Pendentives
C olle C tio N of P ro gre SS of li turgi CA l it em S D e S ig N i D e AS Rohn & Associates Design, Inc.
St. John Neumann Church
Page 58 © Rohn & Associates Design, Inc. 2009. All rights reserved c. mosaic Backgrounds
John Neumann Church C olle C tio N of P ro gre SS of li turgi CA l it em S D e S ig N i D e AS Rohn & Associates Design, Inc.
St.

4.

Page 59
- chronological order
& Designs © Rohn & Associates Design, Inc. 2009. All rights reserved
C olle C tio N of P ro gre SS of li turgi CA l it em S D e S ig N i D e AS Rohn Associates Design, Inc.
Art glass
Sketches
St. John Neumann Church
Page 60 © Rohn & Associates Design, Inc. 2009. All rights reserved Art glass
John
Church C olle C tio N of P ro gre SS of li turgi CA l it em S D e S ig N i D e AS Rohn & Associates Design, Inc.
St.
Neumann
Page 61 © Rohn & Associates Design, Inc. 2009. All rights reserved Art glass
John
Church C olle C tio N of P ro gre SS of li turgi CA l it em S D e S ig N i D e AS Rohn & Associates Design, Inc.
St.
Neumann
Page 62 © Rohn & Associates Design, Inc. 2009. All rights reserved Art glass
John
Church C olle C tio N of P ro gre SS of li turgi CA l it em S D e S ig N i D e AS Rohn & Associates Design, Inc.
St.
Neumann

St. John Neumann Church

Design: Rohn & Associates Design Inc.,

Sketch is an interpretation by Mellini Mosaic and Glass

Page 63
Inc. 2009. All rights reserved Art glass
© Rohn & Associates Design,
C olle C tio N of P ro gre SS of li turgi CA l it em S D e S ig N i D e AS Rohn & Associates Design, Inc.

Design: Rohn & Associates Design Inc., Sketch is an interpretation by Mellini Mosaic and Glass

Page 64 © Rohn & Associates Design, Inc. 2009. All rights reserved
glass
Art
C olle C tio N of P ro gre SS of li turgi CA l it em S D e S ig N i D e AS Rohn & Associates Design, Inc.
St. John Neumann Church
Page 65 © Rohn & Associates Design, Inc. 2009. All rights reserved Art glass
John
Church C olle C tio N of P ro gre SS of li turgi CA l it em S D e S ig N i D e AS Rohn & Associates Design, Inc.
St.
Neumann
Page 66 © Rohn & Associates Design, Inc. 2009. All rights reserved Art glass
John
Church C olle C tio N of P ro gre SS of li turgi CA l it em S D e S ig N i D e AS Rohn & Associates Design, Inc.
St.
Neumann
Page 67 © Rohn & Associates Design, Inc. 2009. All rights reserved Art glass
John
Church C olle C tio N of P ro gre SS of li turgi CA l it em S D e S ig N i D e AS Rohn & Associates Design, Inc.
St.
Neumann
Page 68 © Rohn & Associates Design, Inc. 2009. All rights reserved Art glass
John
Church C olle C tio N of P ro gre SS of li turgi CA l it em S D e S ig N i D e AS Rohn & Associates Design, Inc.
St.
Neumann
Page 69 © Rohn & Associates Design, Inc. 2009. All rights reserved Art glass
John Neumann Church C olle C tio N of P ro gre SS of li turgi CA l it em S D e S ig N i D e AS Rohn & Associates Design, Inc.
St.
Page 70 © Rohn & Associates Design, Inc. 2009. All rights reserved Art glass
Church C olle C tio N of P ro gre SS of li turgi CA l it em S D e S ig N i D e AS Rohn & Associates Design, Inc.
St. John Neumann
Page 71 © Rohn & Associates Design, Inc. 2009. All rights reserved Art glass
John
Church C olle C tio N of P ro gre SS of li turgi CA l it em S D e S ig N i D e AS Rohn & Associates Design, Inc.
St.
Neumann

5. Sculptures

a. Crucifix

b. Saint John Neumann

c. our lady of the rosary

d. St. Joseph & Child

e. exterior - 3 Arch Angels

f. Column Sculptures

Page 72
© Rohn & Associates Design, Inc. 2009. All rights reserved
C olle C tio N of P ro gre SS of li turgi CA l it em S D e S ig N i D e AS Rohn Associates Design, Inc.
St. John Neumann Church
Page 73 © Rohn & Associates Design, Inc. 2009. All rights reserved
a. Crucifix
John Neumann Church C olle C tio N of P ro gre SS of li turgi CA l it em S D e S ig N i D e AS Rohn & Associates Design, Inc.
Sculptures:
St.
Page 74 © Rohn & Associates Design, Inc. 2009. All rights reserved
a. Crucifix
John Neumann Church C olle C tio N of P ro gre SS of li turgi CA l it em S D e S ig N i D e AS Rohn & Associates Design, Inc.
Sculptures:
St.

Sculptures: b. St. John Neumann St. John Neumann Church

Page 75 © Rohn & Associates Design, Inc. 2009. All rights reserved
C olle C tio N of P ro gre SS of li turgi CA l it em S D e S ig N i D e AS
& Associates Design, Inc.
Rohn

Sculptures: b. St. John Neumann St. John Neumann

Page 76 © Rohn & Associates Design, Inc. 2009. All rights reserved
C olle C tio N of P ro gre SS of li turgi CA l it em S D e S ig N i D e AS
& Associates Design, Inc.
Church
Rohn

St. John Neumann Church

Page 77 © Rohn & Associates Design, Inc. 2009. All rights reserved
Sculptures: c. our lady of the rosary
C olle C tio N of P ro gre SS of li turgi CA l it em S D e S ig N i D e AS Rohn & Associates Design, Inc.

St. John Neumann Church

Page 78 © Rohn & Associates Design, Inc. 2009. All rights reserved
Sculptures: c. our lady of the rosary
C olle C tio N of P ro gre SS of li turgi CA l it em S D e S ig N i D e AS Rohn & Associates Design, Inc.
Page 79 © Rohn & Associates Design, Inc. 2009. All rights reserved
c. our lady of the rosary
John Neumann Church C olle C tio N of P ro gre SS of li turgi CA l it em S D e S ig N i D e AS Rohn & Associates Design, Inc.
Sculptures:
St.

St. John Neumann Church

Sculptures: d. St. Joseph and Child

Page 80 © Rohn & Associates Design, Inc. 2009. All rights reserved
C olle C tio N of P ro gre SS of li turgi CA l it em S D e S ig N i D e AS
& Associates Design, Inc.
Rohn

St. John Neumann Church

Sculptures: d. St. Joseph and Child

Page 81 © Rohn & Associates Design, Inc. 2009. All rights reserved
C olle C tio N of P ro gre SS of li turgi CA l it em S D e S ig N i D e AS
& Associates Design, Inc.
Rohn

St. John Neumann Church

Sculptures: e. 3 Arch Angels

Page 82 © Rohn & Associates Design, Inc. 2009. All rights reserved
C olle C tio N of P ro gre SS of li turgi CA l it em S D e S ig N i D e AS Rohn & Associates Design, Inc.

St. John Neumann Church

Sculptures: f. Column Sculptures

Page 83 © Rohn & Associates Design, Inc. 2009. All rights reserved
C olle C tio N of P ro gre SS of li turgi CA l it em S D e S ig N i D e AS
& Associates Design, Inc.
Rohn

Sculptures: f. Column Sculptures

Page 84 © Rohn & Associates Design, Inc. 2009. All rights reserved
C olle C tio N of P ro gre SS of li turgi CA l it em S D e S ig N i D e AS Rohn & Associates Design, Inc.
St. John Neumann Church
Page 85 © Rohn & Associates Design, Inc. 2009. All rights reserved 6. Sanctuary Back Walls Sketches & Designs St. John Neumann Church C olle C tio N of P ro gre SS of li turgi CA l it em S D e S ig N i D e AS Rohn Associates Design, Inc.
Page 86 © Rohn & Associates Design, Inc. 2009. All rights reserved Sanctuary Back Wall - Carved relief St. John Neumann Church C olle C tio N of P ro gre SS of li turgi CA l it em S D e S ig N i D e AS Rohn & Associates Design, Inc.
Page 87 © Rohn & Associates Design, Inc. 2009. All rights reserved Sanctuary Back Wall - Carved relief St. John Neumann Church C olle C tio N of P ro gre SS of li turgi CA l it em S D e S ig N i D e AS Rohn & Associates Design, Inc.
Page 88 © Rohn & Associates Design, Inc. 2009. All rights reserved 7. liturgical furniture Sketches & Designs St. John Neumann Church C olle C tio N of P ro gre SS of li turgi CA l it em S D e S ig N i D e AS Rohn Associates Design, Inc.
Page 89 © Rohn & Associates Design, Inc. 2009. All rights reserved liturgical furniture
C olle C tio N of P ro gre SS of li turgi CA l it em S D e S ig N i D e AS Rohn & Associates Design, Inc.
St. John Neumann Church
Page 90 © Rohn & Associates Design, Inc. 2009. All rights reserved liturgical furniture
C olle C tio N of P ro gre SS of li turgi CA l it em S D e S ig N i D e AS Rohn & Associates Design, Inc.
St. John Neumann Church
Page 91 © Rohn & Associates Design, Inc. 2009. All rights reserved liturgical furniture
C olle C tio N of P ro gre SS of li turgi CA l it em S D e S ig N i D e AS Rohn & Associates Design, Inc.
St. John Neumann Church
Page 92 © Rohn & Associates Design, Inc. 2009. All rights reserved liturgical furniture
C olle C tio N of P ro gre SS of li turgi CA l it em S D e S ig N i D e AS Rohn & Associates Design, Inc.
St. John Neumann Church
Page 93 © Rohn & Associates Design, Inc. 2009. All rights reserved liturgical furniture
John Neumann Church C olle C tio N of P ro gre SS of li turgi CA l it em S D e S ig N i D e AS Rohn & Associates Design, Inc.
St.
Page 94 © Rohn & Associates Design, Inc. 2009. All rights reserved 8. liturgical Appointments - chronological order Sketches, Designs & research St. John Neumann Church C olle C tio N of P ro gre SS of li turgi CA l it em S D e S ig N i D e AS Rohn Associates Design, Inc.
Page 95 © Rohn & Associates Design, Inc. 2009. All rights reserved Appointments
C olle C tio N of P ro gre SS of li turgi CA l it em S D e S ig N i D e AS Rohn & Associates Design, Inc.
St. John Neumann Church
Page 96 © Rohn & Associates Design, Inc. 2009. All rights reserved 9. tympanum - chronological order Sketches, Designs & research St. John Neumann Church C olle C tio N of P ro gre SS of li turgi CA l it em S D e S ig N i D e AS Rohn Associates Design, Inc.
Page 97 © Rohn & Associates Design, Inc. 2009. All rights reserved tympanum
C olle C tio N of P ro gre SS of li turgi CA l it em S D e S ig N i D e AS Rohn & Associates Design, Inc.
St. John Neumann Church

St. John Neumann Church

Page 98 © Rohn & Associates Design, Inc. 2009. All rights reserved tympanum
C olle C tio N of P ro gre SS of li turgi CA l it em S D e S ig N i D e AS Rohn & Associates Design, Inc.
Page 99 © Rohn & Associates Design, Inc. 2009. All rights reserved 10. exterior Door Panels Sketches & Design St. John Neumann Church C olle C tio N of P ro gre SS of li turgi CA l it em S D e S ig N i D e AS Rohn Associates Design, Inc.
Page 100 © Rohn & Associates Design, Inc. 2009. All rights reserved exterior Door Panels St. John Neumann Church C olle C tio N of P ro gre SS of li turgi CA l it em S D e S ig N i D e AS Rohn & Associates Design, Inc.
Page 101 © Rohn & Associates Design, Inc. 2009. All rights reserved exterior Door Panels St. John Neumann Church C olle C tio N of P ro gre SS of li turgi CA l it em S D e S ig N i D e AS Rohn & Associates Design, Inc.
Page 102 © Rohn & Associates Design, Inc. 2009. All rights reserved exterior Door Panels St. John Neumann Church C olle C tio N of P ro gre SS of li turgi CA l it em S D e S ig N i D e AS Rohn & Associates Design, Inc.
Page 103 © Rohn & Associates Design, Inc. 2009. All rights reserved exterior Door Panels St. John Neumann Church C olle C tio N of P ro gre SS of li turgi CA l it em S D e S ig N i D e AS Rohn & Associates Design, Inc.
Page 104 11. Side Wall medallions Sketches & Designs © Rohn & Associates Design, Inc. 2009. All rights reserved St. John Neumann Church C olle C tio N of P ro gre SS of li turgi CA l it em S D e S ig N i D e AS Rohn Associates Design, Inc.
Page 105 © Rohn & Associates Design, Inc. 2009. All rights reserved Side Wall medallions
John Neumann Church C olle C tio N of P ro gre SS of li turgi CA l it em S D e S ig N i D e AS Rohn & Associates Design, Inc.
St.
Page 106 © Rohn & Associates Design, Inc. 2009. All rights reserved Side Wall medallions St. John Neumann Church C olle C tio N of P ro gre SS of li turgi CA l it em S D e S ig N i D e AS Rohn & Associates Design, Inc.
Page 107 © Rohn & Associates Design, Inc. 2009. All rights reserved 12. Stations of the Cross Sketches & Designs St. John Neumann Church C olle C tio N of P ro gre SS of li turgi CA l it em S D e S ig N i D e AS Rohn Associates Design, Inc.
Page 108 © Rohn & Associates Design, Inc. 2009. All rights reserved Stations of the Cross
Church C olle C tio N of P ro gre SS of li turgi CA l it em S D e S ig N i D e AS Rohn & Associates Design, Inc.
St. John Neumann
Page 109 © Rohn & Associates Design, Inc. 2009. All rights reserved 13. Day Chapel mural Sketches & Designs St. John Neumann Church C olle C tio N of P ro gre SS of li turgi CA l it em S D e S ig N i D e AS Rohn Associates Design, Inc.
Page 110 © Rohn & Associates Design, Inc. 2009. All rights reserved Day Chapel mural
C olle C tio N of P ro gre SS of li turgi CA l it em S D e S ig N i D e AS Rohn & Associates Design, Inc.
St. John Neumann Church
Page 111 © Rohn & Associates Design, Inc. 2009. All rights reserved 14. Sketches & illustrations St. John Neumann Church C olle C tio N of P ro gre SS of li turgi CA l it em S D e S ig N i D e AS Rohn Associates Design, Inc.
Page 112 © Rohn & Associates Design, Inc. 2009. All rights reserved Sketches and illustrations
John Neumann Church C olle C tio N of P ro gre SS of li turgi CA l it em S D e S ig N i D e AS Rohn & Associates Design, Inc.
St.
Page 113 © Rohn & Associates Design, Inc. 2009. All rights reserved Sketches and illustrations
John Neumann Church C olle C tio N of P ro gre SS of li turgi CA l it em S D e S ig N i D e AS Rohn & Associates Design, Inc.
St.
Page 114 © Rohn & Associates Design, Inc. 2009. All rights reserved Sketches and illustrations
John Neumann Church C olle C tio N of P ro gre SS of li turgi CA l it em S D e S ig N i D e AS Rohn & Associates Design, Inc.
St.
Page 115 © Rohn & Associates Design, Inc. 2009. All rights reserved Sketches and illustrations
John Neumann Church C olle C tio N of P ro gre SS of li turgi CA l it em S D e S ig N i D e AS Rohn & Associates Design, Inc.
St.
Page 116 © Rohn & Associates Design, Inc. 2009. All rights reserved Sketches and illustrations
John Neumann Church C olle C tio N of P ro gre SS of li turgi CA l it em S D e S ig N i D e AS Rohn & Associates Design, Inc.
St.
Page 117 © Rohn & Associates Design, Inc. 2009. All rights reserved Sketches and illustrations
John Neumann Church C olle C tio N of P ro gre SS of li turgi CA l it em S D e S ig N i D e AS Rohn & Associates Design, Inc.
St.
Page 118 © Rohn & Associates Design, Inc. 2009. All rights reserved Sketches and illustrations
Neumann Church C olle C tio N of P ro gre SS of li turgi CA l it em S D e S ig N i D e AS Rohn & Associates Design, Inc.
St. John
Page 119 © Rohn & Associates Design, Inc. 2009. All rights reserved Sketches and illustrations
John Neumann Church C olle C tio N of P ro gre SS of li turgi CA l it em S D e S ig N i D e AS Rohn & Associates Design, Inc.
St.
Page 120 © Rohn & Associates Design, Inc. 2009. All rights reserved Sketches and illustrations
Neumann Church C olle C tio N of P ro gre SS of li turgi CA l it em S D e S ig N i D e AS Rohn & Associates Design, Inc.
St. John
Page 121 © Rohn & Associates Design, Inc. 2009. All rights reserved Sketches and illustrations St. John Neumann Church C olle C tio N of P ro gre SS of li turgi CA l it em S D e S ig N i D e AS Rohn & Associates Design, Inc.
Page 122 © Rohn & Associates Design, Inc. 2009. All rights reserved Sketches and illustrations
John Neumann Church C olle C tio N of P ro gre SS of li turgi CA l it em S D e S ig N i D e AS Rohn & Associates Design, Inc.
St.
Page 123 © Rohn & Associates Design, Inc. 2009. All rights reserved Sketches and illustrations
Church C olle C tio N of P ro gre SS of li turgi CA l it em S D e S ig N i D e AS Rohn & Associates Design, Inc.
St. John Neumann
Page 124 © Rohn & Associates Design, Inc. 2009. All rights reserved Sketches and illustrations
John Neumann Church C olle C tio N of P ro gre SS of li turgi CA l it em S D e S ig N i D e AS Rohn & Associates Design, Inc.
St.
Page 125 © Rohn & Associates Design, Inc. 2009. All rights reserved Sketches and illustrations
John Neumann Church C olle C tio N of P ro gre SS of li turgi CA l it em S D e S ig N i D e AS Rohn & Associates Design, Inc.
St.
Page 126 © Rohn & Associates Design, Inc. 2009. All rights reserved Sketches and illustrations
John Neumann Church C olle C tio N of P ro gre SS of li turgi CA l it em S D e S ig N i D e AS Rohn & Associates Design, Inc.
St.
Page 127 © Rohn & Associates Design, Inc. 2009. All rights reserved 15. fund raising Presentations 3 iterations St. John Neumann Church C olle C tio N of P ro gre SS of li turgi CA l it em S D e S ig N i D e AS Rohn Associates Design, Inc.
Page 128 © Rohn & Associates Design, Inc. 2009. All rights reserved 20. Fund Raising Presentations VERSION 3 St. John Neumann Church COLLECTION OF PROGRESS OF LITURGICAL ITEMS DESIGN IDEAS Rohn & Associates Design, Inc.
Page 129 © Rohn & Associates Design, Inc. 2009. All rights reserved 20. Fund Raising Presentations VERSION 2 St. John Neumann Church COLLECTION OF PROGRESS OF LITURGICAL ITEMS DESIGN IDEAS Rohn & Associates Design, Inc.
Page 130 © Rohn & Associates Design, Inc. 2009. All rights reserved 20. Fund Raising Presentations VERSION 1 St. John Neumann Church COLLECTION OF PROGRESS OF LITURGICAL ITEMS DESIGN IDEAS Rohn & Associates Design, Inc.

St. John Neumann

Austin, TX

Preliminary Liturgical Designs

1
Presented by Rohn & Associates Design, Inc.
St. John Neumann, Austin, TX

Floor Plan

4
St. John Neumann, Austin, TX

Narthex - St. John Neumann Statue and Art Glass

Lorem ipsum dolor sit amet Lorem ipsum dolor sit ametLorem ipsum dolor sit ametLorem ipsum dolor sit ametLorem

ipsum dolor sit ametLorem ipsum dolor sit ametLorem ipsum dolor sit ametLorem ipsum dolor sit ametLorem ipsum dolor sit ametLorem ipsum dolor sit ametLorem ipsum dolor sit ametLorem

ipsum dolor sit ametLorem ipsum dolor sit ametLorem ipsum dolor sit ametLorem ipsum dolor sit ametLorem ipsum dolor sit ametLorem ipsum dolor sit am-

5
St. John Neumann, Austin, TX

Sanctuary - Crucifix and Back Wall

Lorem ipsum dolor sit amet Lorem ipsum

dolor sit ametLorem ipsum dolor sit am-

etLorem ipsum dolor sit ametLorem

ipsum dolor sit ametLorem ipsum dolor

sit ametLorem ipsum dolor sit ametLorem ipsum dolor sit ametLorem ipsum

dolor sit ametLorem ipsum dolor sit ametLorem ipsum dolor sit ametLorem

ipsum dolor sit ametLorem ipsum dolor

sit ametLorem ipsum dolor sit ametLorem ipsum dolor sit ametLorem ipsum

dolor sit ametLorem ipsum dolor sit am-

6
St. John Neumann, Austin, TX

Dome Artwork and Pendantives

Lorem ipsum dolor sit amet Lorem ipsum dolor sit ametLorem ipsum dolor sit am-

etLorem ipsum dolor sit ametLorem

ipsum dolor sit ametLorem ipsum dolor sit ametLorem ipsum dolor sit ametLorem ipsum dolor sit ametLorem ipsum dolor sit ametLorem ipsum dolor sit ametLorem ipsum dolor sit ametLorem

ipsum dolor sit ametLorem ipsum dolor sit ametLorem ipsum dolor sit ametLorem ipsum dolor sit ametLorem ipsum dolor sit ametLorem ipsum dolor sit am-

7
St. John Neumann, Austin, TX

West Transept Window

Sanctification, Stations of the Cross

Lorem ipsum dolor sit amet Lorem ipsum dolor sit ametLorem ipsum dolor sit ametLorem ipsum dolor sit ametLorem

ipsum dolor sit ametLorem ipsum dolor sit ametLorem ipsum dolor sit ametLorem ipsum dolor sit ametLorem ipsum dolor sit ametLorem ipsum dolor sit ametLorem ipsum dolor sit ametLorem

ipsum dolor sit ametLorem ipsum dolor sit ametLorem ipsum dolor sit ametLorem ipsum dolor sit ametLorem ipsum dolor sit ametLorem ipsum dolor sit am-

8
St. John Neumann, Austin, TX

East Transept Window

Creation, Stations of the Cross

Lorem ipsum dolor sit amet Lorem ipsum dolor sit ametLorem ipsum dolor sit ametLorem ipsum dolor sit ametLorem

ipsum dolor sit ametLorem ipsum dolor sit ametLorem ipsum dolor sit ametLorem ipsum dolor sit ametLorem ipsum dolor sit ametLorem ipsum dolor sit ametLorem ipsum dolor sit ametLorem

ipsum dolor sit ametLorem ipsum dolor sit ametLorem ipsum dolor sit ametLorem ipsum dolor sit ametLorem ipsum dolor sit ametLorem ipsum dolor sit am-

9
St. John Neumann, Austin, TX

Marble Furniture

Altar, Ambo, Tabernacle Throne, Baptismal Font

Lorem ipsum dolor sit amet Lorem ipsum dolor sit ametLorem ipsum dolor sit am-

etLorem ipsum dolor sit ametLorem

ipsum dolor sit ametLorem ipsum dolor sit ametLorem ipsum dolor sit ametLorem ipsum dolor sit ametLorem ipsum dolor sit ametLorem ipsum dolor sit am-

etLorem ipsum dolor sit ametLorem

ipsum dolor sit ametLorem ipsum dolor sit ametLorem ipsum dolor sit ametLorem ipsum dolor sit ametLorem ipsum dolor sit ametLorem ipsum dolor sit am-

10
St. John Neumann, Austin, TX

Side Shrines

Our Lady of the Rosary, St. Joseph

Lorem ipsum dolor sit amet Lorem ipsum dolor sit ametLorem ipsum dolor sit am-

etLorem ipsum dolor sit ametLorem

ipsum dolor sit ametLorem ipsum dolor sit ametLorem ipsum dolor sit ametLorem ipsum dolor sit ametLorem ipsum dolor sit ametLorem ipsum dolor sit ametLorem ipsum dolor sit ametLorem

ipsum dolor sit ametLorem ipsum dolor sit ametLorem ipsum dolor sit ametLorem ipsum dolor sit ametLorem ipsum dolor sit ametLorem ipsum dolor sit am-

11
St. John Neumann, Austin, TX

Choir Loft - Pantocrator Window

Lorem ipsum dolor sit amet Lorem ipsum dolor sit ametLorem ipsum dolor sit ametLorem ipsum dolor sit ametLorem

ipsum dolor sit ametLorem ipsum dolor

sit ametLorem ipsum dolor sit ametLorem ipsum dolor sit ametLorem ipsum dolor sit ametLorem ipsum dolor sit ametLorem ipsum dolor sit ametLorem

ipsum dolor sit ametLorem ipsum dolor sit ametLorem ipsum dolor sit ametLorem ipsum dolor sit ametLorem ipsum dolor sit ametLorem ipsum dolor sit am-

12
St. John Neumann, Austin, TX

Catafalque

Lorem ipsum dolor sit amet Lorem ipsum dolor sit ametLorem ipsum dolor sit am-

etLorem ipsum dolor sit ametLorem

ipsum dolor sit ametLorem ipsum dolor

sit ametLorem ipsum dolor sit ametLorem ipsum dolor sit ametLorem ipsum dolor sit ametLorem ipsum dolor sit ametLorem ipsum dolor sit ametLorem

ipsum dolor sit ametLorem ipsum dolor

sit ametLorem ipsum dolor sit ametLorem ipsum dolor sit ametLorem ipsum dolor sit ametLorem ipsum dolor sit am-

13
St. John Neumann, Austin, TX St. John Neumann, Austin, TX

Chapel

Lorem ipsum dolor sit amet Lorem ipsum dolor sit ametLorem ipsum dolor sit ametLorem ipsum dolor sit ametLorem

ipsum dolor sit ametLorem ipsum dolor

sit ametLorem ipsum dolor sit ametLorem ipsum dolor sit ametLorem ipsum

dolor sit ametLorem ipsum dolor sit ametLorem ipsum dolor sit ametLorem

ipsum dolor sit ametLorem ipsum dolor

sit ametLorem ipsum dolor sit ametLorem ipsum dolor sit ametLorem ipsum dolor sit ametLorem ipsum dolor sit am-

14
St. John Neumann, Austin, TX

Turn static files into dynamic content formats.

Create a flipbook
Issuu converts static files into: digital portfolios, online yearbooks, online catalogs, digital photo albums and more. Sign up and create your flipbook.