Portafolio Curso Geometría Descriptiva y Perspectiva III

Page 1

GEOMETRÍA DESCRIPTIVA Y PERSPECTIVA III Portafolio de proyectos Estudiante: Róger Federico Pérez Ramírez Profesor: Arq. Pablo Mora Fallas Carrera: Arquitectura Universidad HispanoamericanaIIITrimestre,2022

2 Portafolio de proyectos Portafolio de proyectos ..................................................................................................................................... 3 Ejercicios de entourage ................................................................................................................................... 4 Ejercicios de achurados ....................................................................................................................................6 Perspectiva libre 01 ............................................................................................................................................. 8 Perspectiva libre 02 ...........................................................................................................................................10 Proyecto Dibujo Arquitectónico en Color........................................................................................... 12 Referencias del proyecto ...............................................................................................................................14 Plantas arquitectónicas .................................................................................................................................. 16 Perspectivas internas ....................................................................................................................................... 18 Perspectiva externa ..........................................................................................................................................20 Cortes ......................................................................................................................................................................... 22 Fachada principal .............................................................................................................................................. 24 Perspectiva de escalera ................................................................................................................................. 25 Contenido

3Portafolio de proyectos

Este portafolio de curso contiene todos ejercicios y proyectos desarrollados a lo largo de este curso. Los ejercicios consisten en el desarrollo de las destrezas nece sarias para desarrollar los grandes proyectos del curso. Mientras que el proyecto general consiste en desarrollar paulatinamente todos sus componentes mediante revisiones de mejora a lo largo de las semanas. Es portafolio tiene una finalidad adicional que consiste en el análisis en retrospec tiva del desarrollo y mejora de las habilidades y conocimientos requeridos para crear proyectos de proyecciones en planta y en perspectiva en color de diversos proyectos

Portafolio de proyectos

arquitectónicos.

Ejercicio Semana 01: Árboles. Vista en planta.

El ejercicio de achurado de naturaleza consiste en retomar una misma escena y conferirle diferentes estilos y formas de achurado para explorar la diversi dad en el tratamiento de las texturas y los planos.

Ejercicios de entourage

En este caso se visualiza una escena de la naturaleza con árboles, cielo, rocas y agua.

4 Portafolio de proyectos

5Portafolio de proyectos

Ejercicio Semana 02. Figura Humana.

Al igual que el ejercicio anterior este consiste en reto mar una misma escena y conferirle diferentes estilos y formas de achurado para explorar la diversidad en el tratamiento de las texturas y los planos. En esta ocasión se visualiza una escena más cercana y detallada de un conjunto de rocas con un fondo inde terminado. La misma escena es tratada con diferentes achurados.

6 Portafolio de proyectos El ejercicio de achurado de naturaleza consiste en retomar una misma escena y conferirle diferentes estilos y formas de achurado para explorar la diversi dad en el tratamiento de las texturas y los planos. En este caso se visualiza una escena de la naturaleza con árboles, cielo, rocas y agua. Ejercicios de achurados Ejercicio Semana 03: Achurado naturaleza 01.

7

Ejercicio Semana 04. Achurado naturaleza 02.

En esta ocasión se visualiza una escena más cercana y detallada de un conjunto de rocas con un fondo inde terminado. La misma escena es tratada con diferentes achurados.

Portafolio de proyectos Al igual que el ejercicio anterior este consiste en reto mar una misma escena y conferirle diferentes estilos y formas de achurado para explorar la diversidad en el tratamiento de las texturas y los planos.

8

Perspectiva libre 01

Perspectica en técnica de acuarela y liner. Semana 10.

Se realizan dos propuestas de la misma vista en perspectiva, la pirmera de ellas co rresponde a una perspectiva elaborada con la técnica de acuarela y liner posterior mente escaneadas y con un montaje tipográfico para complementar el diseño. La segunda propuesta consiste en la misma perspectiva pero en una técnica de marcador y liner a manera de ejercicio o práctica adicional de la técnica.

Portafolio de proyectos Este ejercicio consiste en la práctica de una proyección en perspectiva de dos pun tos de fuga como mínimo, aplicando textura y color. Se decidió realizar un estudio de la llamada Casa de la Cascada del famosos arquitecto Frank Lloyd Wright.

9Portafolio de proyectos Perpectiva en técnica de marcador y liner. Semana 10. Referencia fotográfica 1 Referencia fotográfica 2

Este ejercicio consiste en la práctica de una proyección en perspectiva de dos puntos de fuga como mínimo, aplicando textura y color. Se decidió realizar un estudio del fa moso edificio de la Escuela Bauhaus en Dessau, Alemacio.

10 Portafolio de proyectos

Perspectiva libre 02

11Portafolio de proyectos En este ejercio se realiza la práctica fundamental de una vista en perspectiva de dos puntos de fuga y a la vez un ejercicio para profundizar en las técnicas de color. En este caso se experimenta por vez primera el efecto de la iluminación interna en contraste con una ambientación oscura. Referencia fotográfica 1 Referencia fotográfica 2

Referencias del proyecto

En esta sección se muestran los documentos referentes aportos por el profesor del curso con el objetivo de que los estudiantes diseñen sus pro pias versiones de proyección arquitectónica. En el margen izquierdo de la página se muestra un render 3D de una vista en perspectiva de dos pun tos de fuga. Mientras que en el margen derecho de la página se muestras los planes de vista en planta del primer y segundo nivel de la vivienda. A partir de estos referentes en la siguiente página de presentan las pro puestas de vista en planta, tanto en su versión preliminar en línea, como en su versión vinal con texturado y color.

14 Portafolio de proyectos

15Portafolio de proyectos

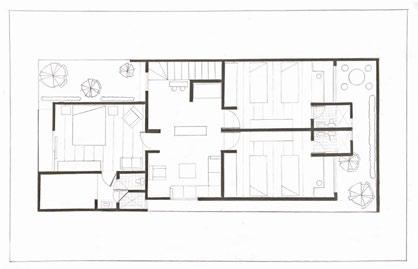
16 Portafolio de proyectos Plantas arquitectónicas

17Portafolio de proyectos

Perspectiva interna de un punto de fuga de la cocina en primera planta

18 Portafolio de proyectos Los dos proyectos presentados en esta sec ción representan dos tipos de perspectivas diferentes de dos aposentos de la vivienda en estudio. La primera proyección corresponde a una vista de perspectiva interna de un punto de fuga de la cocina ubicada en la primera planta. Perspectivas internas

19Portafolio de proyectos Perspectiva interna de dos puntos de fuga de dormitorio en segunda planta La segunda propuesta corresponde a una vista en perspectiva interna de dos puntos de fuga de la habitación principal ubicada en la segunda planta.

Perspectiva externa

Perspectiva externa en color de dos puntos de fuga

Portafolio de proyectos En esta sección se presenta el estudio de una perspectiva externa de dos puntos de fuga de la vivienda modelo aportada por el profe sor del curso. El estudio consiste tanto en las perspectiva como en la aplicacíon de las texturas, color y los elementos del entorno o Entourage alrededor de la vivienda. Se presentan los planes con medidas tipo boceto que sirven de ori gen para elaborar la perspectiva inicial lineal, de igual forma se pre senta el avance o boceto inicial en línea del estudio en perspectiva.

20

Planos

21Portafolio de proyectos

medidas para referencia

Boceto inicial en línea con

22 Portafolio de proyectos Como parte de las proyecciones arquitectónicas se elaboran dos cortes de sección de dos caras del proyecto. Un corte transversal presentado en este margen izquierdo de la página cuya dirección es indicada en los dos planos adjuntos. En el segundo corte longitudinal presentado en el margen inferior derecho de la siguiente pági na cuya dirección se indica en los planos en su margen superior.

CorteCortestransversal

23Portafolio de proyectos Corte longitudinal

24

Portafolio de proyectos Este ejercicio se desarrollar como estudio de la vista o fachada principal frontal de la vivienda en estudio. Se aprecia que el entourage corresponde al mismo que se desarrolla en el corte transversal con el propósito de estaclecer que el punto de vista del observador es exac tamente el mismo.

Fachada principal

Fachada frontal

La elección de colores, texturas y formas corresponde al mismo tratamiento que le es conferido a la vista exte rior en perspectiva de dos puntos de fuga el la vivienda.

25Portafolio de proyectos Este ejercicio corresponde a un estudio de pers pectiva de dos puntos de fuga de la escalera de la vivienda en análisis. Se elige una vista desde el exterior, simulando una transparencia en una de las paredes laterales para observar la escalera desde un primer plano con el fondo de los apo sentos proyectados de fondo. Perspectiva de escalera Perspectiva de dos puntos de fuga de escalera

GEOMETRÍA DESCRIPTIVA Y PERSPECTIVA III Portafolio de proyectos

Turn static files into dynamic content formats.

Create a flipbook
Issuu converts static files into: digital portfolios, online yearbooks, online catalogs, digital photo albums and more. Sign up and create your flipbook.