Rob Ward | Architecture Portfolio

Page 1

ROB WARD

ARCHITECTURE PORTFOLIO | 2020-2023

rward750@g.rwu.edu

508.446.2930

https://www.linkedin.com/in/rward3/

Travel and architecture are inseparable. For my entire life, I’ve had a great love for the unknown and unexpected. It is through this lens that I view architecture. It is a tool to teach, connect, inspire, and challenge. My education has empowered me to further my passion for travel through architectural design and study.

My time at Roger Williams University has enabled me to explore new cultures through design, both through remote site analysis and in-person site visits in Switzerland and Spain. These experiences broadened my mind not only as a global citizen, but as a designer. This portfolio highlights five architectural projects, with some of my personal travel photography included throughout.

SELECTED WORKS

PLAÇA VIVRE | BARCELONA, SPAIN

SERENE ISOLATION | BARRE, VERMONT

AGUA CURATIVA | LANZAROTE, SPAIN

BASEL KUNSTWÜRFEL | BASEL, SWITZERLAND

BEACON HILL KITCHEN | BOSTON, MASSACHUSETTS

PROFESSIONAL EXPERIENCE

Hickox Williams Architects | Architectural Intern

Boston, Massachusetts | 2022; 2023

- Produce drawings for permit sets, including floor plans, elevations, structural diagrams, and electrical plans

- Visit sites and document existing conditions via photography, measuring, sketching, and drafting

- Created an asset library of frequently used fireplace designs in residential projects

Roger Williams University | Research Assistant Bristol, Rhode Island | 2021 - Present

Assist a professor with climate legislation research with the goal of producing visual documentation at the end of the Spring 2023 semester

- Research, log, and detail current local and state climate legislation related to the built environment

- Analyze legislation and identify patterns that can be used to develop a visualization tool to effectively communicate the findings of the research

Diamond Web Services | Social Media Specialist Los Angeles, California | 2020-2021

- Planned and executed interactive campaigns across Twitter, Facebook, and LinkedIn

- Managed webinar livestreams

- Lead ‘Accessibility in the Enterprise’, a content series featuring interviews with leaders at enterprise organizations including Twitter, McDonalds, and TDBank.

EDUCATION

Roger Williams University | May 2023

Master’s of Architecture | GPA: 3.7

Barcelona Architecture Center | 2022 Graduate Semester Abroad | GPA: 3.8

Boston Architectural College | 2019 Graduate Coursework | GPA: 4.0

University of North Carolina Wilmington | 2016

B.S. Business Administration - Marketing Spanish Minor | GPA: 3.6

TECHNICAL SKILLS

Adobe Suite: Photoshop, Illustrator, InDesign, Lightroom, PremierePro

Design Software: AutoCAD, Rhino, Lumion, SketchUp

Microsoft Office Suite: Word, PowerPoint, Excel

Marketing Platforms: Salesforce, Pardot, Eloqua, Hubspot, HootSuite, Planoly, Later, SquareSpace

Social Media Platforms: Facebook, Twitter, Instagram, TikTok, Snapchat, BeReal

AWARDS & RECOGNITION

Student Academic Showcase & Honors

Roger Williams University School of Architecture, Art & Historic Preservation, 2022

Excellence in Marketing Panda Security, 2020

Finalist, Southeast Sell-A-Thon

Pi Sigma Epsilon, 2015

PERSONAL INTERESTS

In my spare time, I enjoy long outdoor runs; trying new recipes; taking photographs; reading; and when I’m able, traveling to new places. My favorite city is Paris, and I am currently trying (with varied success) to teach myself French.

PLAÇA VIVRE

ESTABLISHED IN 1626 as an independent town outside of Barcelona, the Gracia neighborhood maintains its unique identity despite its 1897 annexation. Gracia is known for its restaurants, art galleries, boutiques, narrow streets, and plaças — central, traditionally paved outdoor spaces where neighbors congregate to eat, drink, play, and celebrate.

Plaça Vivre replaces an abandoned marketplace in the heart of Gracia. All that remains of the original market today is its steel structure. This project takes inspiration from that structural grid - using it to create a new, elevated green space with direct connections to the street level. By liberating the ground plane, two new plaças are created—the lower paved, and the upper green and vegetated.

The building sits atop this new platform, featuring public kitchens, multipurpose rooms, as well as pools and water treatment facilities, making this a true community hub in the spirit of Gracia.

COURSE: Graduate Studio

DATE: Fall 2022

DURATION: Semester

PROGRAMS USED: AutoCAD, Rhino, Adobe Photoshop, Adobe Illustrator, Adobe InDesign, V-Ray

This project was completed at the Barcelona Architecture Center

-1 PLAN

Pools, Treatment Rooms, Lockers

GROUND PLAN

Cafe, Reception, Administration

+1 PLAN

Multipurpose Community Rooms

+2 PLAN

Community Kitchens & Dining Rooms

SERENE ISOLATION BARRE,

B

ARRE, VERMONT HAS a rich history of producing high quality granite used in monuments around the world. Tucked into the mountains, the town is remote and industrious. Serene Isolation provides a contemplative space to reconnect with the natural world. The project consists of ten guest suites, a fitness facility with a pool, a cafe, and a gallery space and exhibition hall.

With the exception of a small lobby, the entire project is sunken ten feet underground, exposing the area’s famous granite stone and creating a deep connection between visitors and the earth. An expansive central courtyard brings light into public spaces and serves as a social gathering space. Skylights bring additional light into public spaces and guest suites. The result is a retreat center that allows visitors to leave their busy lives behind and feel a sense of calm.

COURSE: Graduate Studio

DATE: Fall 2022

DURATION: Semester

PROGRAMS USED: AutoCAD, Rhino, Adobe Photoshop, Adobe Illustrator, Adobe InDesign, Lumion

Main Floor Plan (Below Grade) Upper Floor Plan

AGUA CURATIVA

LANZAROTE, CANARY ISLANDS, SPAIN

B ASED ON CENTURIES OF PRACTICE, Thalassotherapy uses seawater to promote health and well being. The practice’s deep connection with nature calls for a design that celebrates the natural landscape.

Perched high above Salinas de Janubio on the island of Lanzarote in the Canary Islands, this project employs a triangular form to maximize three principal views: the salt flats and ocean to the south and west, mountains to the north, and desert to the east. Providing landscape views from primary treatment and social areas creates a consistent context as guests explore the space. The design language is informed by traditional local architecture, and features a sequence of patios and indoor spaces, bringing light into the plan while also creating a dialogue between the inside and outside, strengthening the bond between guests and the natural world.

COURSE: Graduate Summer Studio

DATE: Summer 2021

DURATION: 6 weeks

PROGRAMS USED: AutoCAD, Rhino, Adobe Photoshop, Adobe Illustrator, Adobe InDesign, TwinMotion

BASEL KUNSTWÜRFEL

BASEL, SWITZERLAND

BASEL’S CITY CENTER is a rich cultural district home to theatres, museums, and shops. In the center of the district lies an underutilized urban plaza, serving as a gateway to Theatre Basel, the city’s municipal theatre.

This project aims to create a space for temporary art exhibitions and events while preserving public space at the street level. This is accomplished by raising the building up a level and building vertically, resulting in a seven-story “floating cube”.

The building employs a hanging structure. A strong central circulation core of load-bearing concrete walls supports a series of large trusses at the top. The steel frame of the building connects to the trusses, creating a hanging effect that brings loads from the beams and columns of the frame, into the trusses, and down to the ground through the load-bearing walls.

Interior and exterior finishes are kept minimal to keep attention on the art.

COURSE: Graduate Comprehensive

Studio

DATE: Spring 2021

DURATION: Semester

PROGRAMS USED: AutoCAD, Rhino, Adobe Photoshop, Adobe Illustrator, Adobe InDesign

BASEL ART HOUSE ARCH 513 INTEGRATED PROJECT DESIGN STUDIO ROBERT WARD PROF. ROBERTO VIOLA OCHOA SPRING 2022 SITE PLAN A0-01 1/8” = 1’

Ground Floor: Entry & Circulation

Second Floor: Reception, Cafe, Bookshop

1. Glazed curtain wall 2. Copper panel 3. 2” rigid insulation 4. Water vapor 5. Vapor barrier 6. Steel framed structure 7. Gypsum wall board Wall Assembly: Core Wall Assembly: Cube

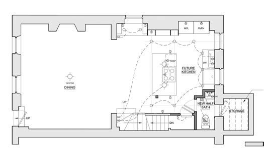
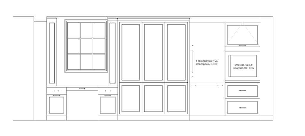
BEACON HILL KITCHEN

BOSTON, MASSACHUSETTS

During my internship at Hickox Williams Architects, I worked closely with the Principal Architect to develop design documentation for the renovation of a historic townhome on Beacon Hill. The drawings at right show my contributions to the project, and were used in both the city permitting process and in design meetings with the client.

Floor Plan Electrical Plan Interior Elevations
Rob Ward rward750@g.rwu.edu 508.446.2930 https://www.linkedin.com/in/rward3/

Turn static files into dynamic content formats.

Create a flipbook