
mgr inż. arch.
mgr inż. arch.
magister inżynier architekt
+48 608 320 249 rmaskos@hotmail.com instagram.com/robert_maskos_arch
Dyplom magisterski obroniłem na Politechnica Gdańskiej, dyplom inżynierski obroniłem na Politechnice Wrocławskiej
Architektura jest moją pasją od zawsze. Posiadam doświadczenie w projektowaniu zrównoważonych budynków, modelowaniu 3D, sporządaniu master planów i architekturze wnętrz. Brałem udział w wielu architektonicznych warsztatach i międzynarodowych projektach. Każde zlecenie jest dla mnie nową przygodą.
Podczas pracy jakoAsystentArchitekta zdobyłem doświadczenie przy projektach budynków wielorodzinnych, ośrodków wypoczynkowych i domów jednorodzinnych.
wykształcenie
2022 - 2023
2016 - 2021
Architektura (studia magisterskie)
Politechnika Gdańska
Architektura (studia inżynierskie)
Politechnika Wrocławska
doświadczenie zawodowe
12.2023 - 05.2024 R3D3 PracowniaArchitektoniczna praca
07.2023 - 08.2023 WolskiArchitekci praktyki
07.2020 - 09.2023 APSzczepaniak praktyki
doświadczenie
2022 Nürtingen-Geislingen University, Niemcy Landscape Economy Online Programme
2019 - 2021 Koło Realizatorów Filmowych „Fosa” przy PWr członkostwo
2018 - 2020 KołoArtystyczne „Yello” przy PWr przewodniczenie
2017 Letnia Szkoła Projektowania Konserwatorskiego w Worochcie, Ukraina udział
2016 2018 2019 Letnia SzkołaArchitektury Krajobrazu w Lądku-Zdroju udział
osiągnięcia
2023 Arturbain
finał konkursu organizowanego przez l'Art Urbain dans les Territoires
2023 Stypendium Praktyka wyróżnienie w konkursie organizowanym przez Fundację Stefana Kuryłowicza
2022 Kolej na Południe wyróżnienie w konkursie organizowanym przez FarU i PKM
umiejętności
Archicad Autocad 3DS Max Twinmotion Sketch Up Corel Photoshop Blender Rhino + Grasshopper Revit
języki
polski (ojczysty) angielski (biegle) hiszpański B1 niemiecki A2
WĘZEŁKLINICZNA 05-12
NOWECENTRUM ORUNIGÓRNEJ 13-16
HABITAT SOLIS 17-20
TEATR PANTOMIMY 21-24
opis Projekt wykonany jako praca magisterska na Politechnice Gdańskiej, obejmuje przekształcenie znajdującego się w Gdańsku węzła komunikacyjnego będącego reliktem modernistycznego projektowania. Centralne położenie i bliskość wielu ważnych funkcji daje potencjał wykreowania nowego centrum dzielnicy
typ projektu uniwersytecki, magisterski
lokacja Polska, Gdańsk, Młyniska rok 2023
To relikt modernistycznego sposobu projektowania z minionej epoki. Jest podręcznikowym przykładem tak zwanego nie-miejsca zdefiniowanego przez MarcaAugé, czyli przestrzenią służącą wyłącznie transportowi, a nie miejscem budującym lokalną tożsamość.
Kryzys ekologiczny i ekonomiczny wymusza zmianę tego paradygmatu na bardziej świadomy. Europejskie miasta takie jak Amsterdam i Berlin wiele lat temu rozpoczęły proces transformacji, który skutkuje wysokim współczynnikiem transportu publicznego i rowerów i przede wszystkim, zmniejszeniem użycia samochodów Prywatny transport samochodowy obarcza miasta olbrzymimi kosztami, które mogą zostać wykorzystane w znacznie bardziej efektywny sposób.
Zmiany potrzebne są już dziś. Istnieje wiele sposobów na przeprowadzenie transportowej transformacji. Miasta mogą likwidować parkingi, wprowadzać opłaty klimatyczne i strefy czystego transportu, przydatne jest zwężanie ulic, zastępowanie pasów ruchu ścieżkami rowerowymi i przekształcanie ulic w piesze deptaki. Ważne jest również naprawianie błędów w przeszłości, na przykład przeskalowanych węzłów, dzielących centra miast.
Usunięcieprzeskalowanegowęzłatookazjanietylkodoscaleniatkanki miejskiej, ale przede wszystkim odzysk olbrzymiej przestrzeni, która może zostać wykorzystana w znacznie lepszy sposób, na przykład na park,kulturę,albodostępnemieszkania.
Gdańsk
Historyczne centrum miasta jest stopniowo wyłączane z ruchu. Po budowie obwodnic, dotychczasowe ulice tranzytowe przez centrum tracą znaczenie, zwłaszcza ruch towarowy obsługujący porty i Stocznię.
Efektem tego jest spadek znaczenia Węzła Kliniczna, dotychczas jednego z ważniejszych skrzyżowań miasta, co pozwala na jego reurbanizację.
legenda: głównedrogitranzytowe drogioznaczeniulokalnym głównaliniakolejowa WęzełKliniczna przemysłstoczniowyiportowy historycznecentrumGdańska
industrialny charakter
Wielki wpływ na charakter Gdańska ma jego industrialne dziedzictwo. Wielkie żurawie stoczni, dźwigi portu, liczne fabryki obecne w tej części miasta przeplatają się ze współczesną zabudową i modnymi klubami. Nowa zabudowa powinna podkreślać tą relację.
nowy wiadukt kolejowy, ulica Trubadurów
Rejon przystanku SKM Politechnika jest największym węzłem w Gdańsku. Przejeżdża tędy 11 linii tramwajowych, dla porównania na przystanku Gdańsk Główny zatrzymuje się 9 linii. Daje to potencjał wykreowania najlepiej skomunikowanej przestrzeni w mieście. Obecny, skomplikowany system przystanków jest wymuszony wielopiętrowym skrzyżowaniem.
30min.Lotnisko
min.GdyniaGłówna 20min.Sopot
domstarców
Conradinum
zakresopracowania
kościół
SKMPolitechnika
WęzełKliniczna
OperaBałtycka
legenda: jezdnia
liniatramwajowa
torykolejowe
izochrona3minuty(300metrów)
przystanektramwaju
przystanekkolejowy
istniejącazabudowa
sytuacjapozmianach
skala1:10000
legenda: jezdnia liniatramwajowa torykolejowe
izochrona3minuty(300metrów) przystanektramwaju przystanekkolejowy istniejącazabudowa nowazabudowa
przestrzeniezielone
skala1:10000
Bardzo ważnym aspektem planowania współczesnych miast powinien być dostęp do terenów zielonych. Zaprojektowano nowe zielone place, szpalery drzew i zielone wnętrza podwórek.
legenda:
parkowa zieleń publiczna
zieleń wewnątrz kwartałów zieleń na miejskich placach
zieleń uliczna, szpalery woda
plac przy skrzyżowaniu Klinicznej
plac przed przystankiem SKM
warstwy miasta Lepsze wykorzystanie przestrzeni dzięki wykorzystaniu parterów i piątej elewacji.
Elementem budynku w największy sposób wpłwającym na odbiór przestrzeni są partery. Dlatego ich wysoka jakość jest bardzo ważna. Lokalizacja w nich usług sprzyja aktywizacji okolicy - usługi - mieszkania - apartamenty - zielone dachy
arkady Arkady zapewniają cień w lecie i ochronę przed deszczem.
fasady Zróżnicowanie fasad jest jednym z elementów kreujących ludzką skalę miasta. Dzięki temu łatwiej wykreować ciąg czasoprzestrzenny, czego skutkiem jest interesująca przestrzeń do spacerowania.
parter
kąt wewnętrzny
Zbyt wysoki kąt wewnętrzny sprawia, że ulica przypomina kanion, ciężej jest doświetlić niższe piętra. Zbyt niski kąt sprawia, że ciężej wytworzyć wnętrze urbanistyczne - miasto zaczyna przypominać wieś. Szerokość ulicy równa wysokości gzymsu wytwarza przytulną, miejską atmosferę.
szpalery
Drzewa poprawiają mikroklimat ulicy Ich cień chroni przed słońce, co zapobiega przegrzewaniu i miejskiej wyspie ciepła. Zwiększają bioróżnorodność.
natura
Zielono-niebieska infrastruktura, łąki kwietne, retencja wody i zielone przestrzenie rekreacyjne zapewniają bardzo istotny kontakt z naturą.
współczesny kwartał
Czytelny podział na część publiczną i prywatną. Zielone wnętrze kwartału. Dzięki zmniejszeniu ilości miejsc parkingowych możliwe jest zwiększenie powierzchni biologicznie czynnej i przestrzeni społecznej. Rozrzeźbienie formy Aktywizacja piątej elewacji - dachu. Lokalizacja tam zielonych dachów i tarasów
opis Projekt otrzymał wyróżnienie w konkursie
Kolej Na Południe, mającym na celu znaleźć rozwiązania dla przystanków drugiego etapu rozwoju Pomorskiej Kolei Metropolitalnej. Celem naszego projektu było utworzenie miejskiego centrum łączącego dzielnice Łostowice, Ujeścisko i Orunię Górną.
typ projektu konkursowy, uniwersytecki
lokacja Polska, Gdańsk, Orunia Górna rok 2022
Współczesnasytuacja Terenprzystanku ŁostowiceŚwiętokrzyska Skomplikowana sytuacjakomunikacyjna,chaosprzestrzenny
legenda: elementydoprzekształcenia
ulicaNowaŚwiętokrzyska
Uporządkowanieistniejącejsytuacjikomunikacyjnej WprowadzenieplanowanejNowejŚwiętokrzyskiej wrazzliniątramwajową,wprowadzenie podziemnegoprzejazdudlasamochodów poruszającychsięulicąHavlanapołudnie Nowe uliceouspokojonymruchu
legenda: nowejezdnie tuneldlasamochodów noweuliceouspokojonymruchu liniatramwajowa parking
Wprowadzenieinfrastrukturyzrównoważonej mobilności-ścieżkirowerowe,buspasy,bezpieczne przejściadlapieszych
legenda: ścieżkarowerowa buspas ulicezuspokojonymruchem przystanektramwajowo-autobusowy przystanekautobusowy
Wykreowaniemiejskiegocharakterupoprzez dogęszczeniezabudowybudynkamimieszkalnymiz usługamiwparterachwukładziepierzejowym Wewnątrzkwartałówznajdąsiępółprywatneogrody zapewniająceretencjęwody
WprowadzeniestacjiPKMiwykreowaniewokółniej lokalnegocentrum-placuotoczonegopierzejami budynkówmieszkalnychzusługamiwparterach
Zejścienaperonyodstronynowegoplacuiulicy Świętokrzyskiej Wprowadzeniezieleniimałej architektury
legenda: budynkimieszkalnewielorodzinne budynkimieszkalnezusługamiwparterach przebiegliniiPKM dworzeczmediateką wejścienadworzec placprzeddworcem p
dach zzielonymogrodem dostępnymdlawszystkich ścianakurtynowaz cortenu
+2mediateka salezainteresowań salawielofunkcyjna zaplecze
+1mediateka księgozbiór wypożyczalnia stanowiskapracy kawiarnia
ul.NowaŚwiętokrzyska
0 strefawejściowadobibliotekii dworca kiosk infopunkt stacjarowerówmiejskich
al.VaclavaHavla
stacjarowerówmiejskich
parkingpodziemny na100samochodów -3peron -3 parkingdlasamochodów -1 parkingrowerowy parkingdlasamochodów
parkingrowerowy
wejścienaperon odstronywschodniej
aksonometriazałożenia
plac sprzyjający organizowaniufestynów
przestrzeń do organizowania tymczasowychtargów
wyjście na powierzchnię od stronyaleiHavla,biblioteka
wyjścienapowierzchnięod stronyulicyŚwiętokrzyskiej
opis Projekt wykonany w ramach konkursu Uni Living-Hub organizowanego przez UNI.XYZ Głównym celem było wykreowanie żywej tkanki miejskiej inspirowanej nurtem solarpunk. Budynek może być domem dla 119 mieszkańców. Posiada w dwu i jedno-osobowe pokojach zorientowane wzdłuż dwóch galerii. Dwie główne elewacji są przeznaczone na sklepy, warsztaty i inne komercyjne lokale. Wewnętrzny dziedziniec jest zorientowany wokół wodnego habitatu z centralnym pionem służącym mieszkańcom, znajduje się tam osiedlowy klub, pralnie i sauna. Dachy przeznaczone są na miejskie farmy. Miękkie i kolorowe formy obiektu zostały zainspirowane wesołymi eksperymentami Hundertwassera. typ projektu konkursowy
lokacja Wielka Brytania, Londyn, Hackney Burrough, Kingsland Road rok 2022
studioopowierzchni25.4 m²
trójkątnestudioopowierzchni25 m²
dwu-osobowemezonetyopowierzchni59 m², każdyzdwomasypialniami,salonemiłazienką jedno-osobowe jedno-osoboweorientacjanamapieLondynu
lokalizacjawHackney
stacjaHaggerstonOverground przystanekautobusów
przestrzeńkomercyjna studia mezonety ogródiszklarnie
parkingnarowery klub pralnia sauna częśćobniżona, byzwiększyćnasłonecznienie
orientacja
przestrzeniezielone galerie schody windy
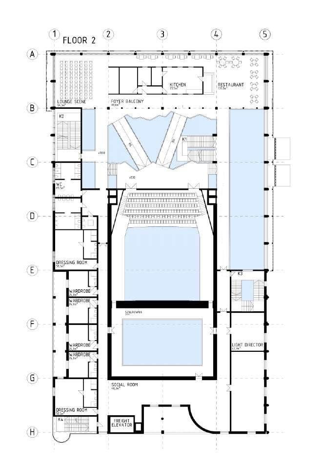
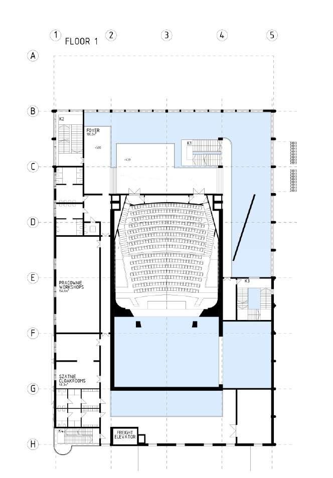
opis Wrocławski Teatr Pantomimy został założony w 1956 roku przez legendę pantomimy - Henryka Tomaszewskiego. W ramach przedmiotu Projektowanie obiektów usługowospołecznych zaprojektowałem nową siedzibę dla Teatru. T posiada główną scenę z widownią mieszczącą 650 osób, małą scenę z siedzeniami dla 264 osób, restaurację z salą kameralną i liczne funkcje pomocnicze. Projekt jest częścią większego założenia mającego na celu rewitalizację zdegenerowanego obszaru placu I Maja we Wrocławiu. typ projektu uniwersytecki lokacja Polska, Wrocław, Szczepin, plac I Maja rok 2020
główna scena
wspornik restauracja kawiarnia scena klubowa
duża scena szatnia bileter komunikacja
duża scena
288 siedzeń na parterze
208 siedzeń na balkonie II
156 siedzeń na balkonie II
mała scena
264 siedzeń
scena ze sztankietami zaplecze sceny wejście dla pracowników magazyn biura sale prób